романн Опубліковано: 5 лютого 2009 Поділитись Опубліковано: 5 лютого 2009 Жаль, печка теряет смысл Можно конечно поставить ее посреди холла, открыть двери во все комнаты и таким образом пытаться их прогреть. Но наверное это не лучший способ отопления? Остается твердотопливный котел? Посилання на коментар Поділитися на інших сайтах More sharing options...
Белая Рысь Опубліковано: 5 лютого 2009 Поділитись Опубліковано: 5 лютого 2009 Почему никто не пишет про печь-камин Кузнецова? Кто-то искал печника, способного это сделать? Мне кажется, это наилучший вариант камина с обогревом. Там есть и камин, и обычная печь -- два в одном. А может еще и плита -- три в одном. Единственный недостаток -- громоздкость и не очень изящный внешний вид. Что поделаешь -- печь есть печь. Андрей, как я понимаю, Вы только отталкивались от принципа печи Кузнецова, но создали совсем другой вариант? А в чем разница? Прошу прощения за тупость -- еще и печи класть надо учиться, помимо всего прочего. Чертова стройка:D Посилання на коментар Поділитися на інших сайтах More sharing options...
oldic Опубліковано: 5 лютого 2009 Поділитись Опубліковано: 5 лютого 2009 Почему никто не пишет про печь-камин Кузнецова? Кто-то искал печника, способного это сделать? Мне кажется, это наилучший вариант камина с обогревом. Там есть и камин, и обычная печь -- два в одном. А может еще и плита -- три в одном. Единственный недостаток -- громоздкость и не очень изящный внешний вид. Что поделаешь -- печь есть печь. Андрей, как я понимаю, Вы только отталкивались от принципа печи Кузнецова, но создали совсем другой вариант? А в чем разница? Прошу прощения за тупость -- еще и печи класть надо учиться, помимо всего прочего. Чертова стройка:D Я обращался к Кузнецову. Он переслал мое письмо одному из своих учеников. Тот сделал мне предложение сложить или уже типовую или под заказ. Я пока еще в раздумьях, так как стоимость работы превысила стоимость материалов ОЧЕНЬ значительно. Но есть еще задумка сложить печь самому. Насчет не очень изящного вида не соглашусь с Вами. Если нормальный кирпич, и руки из нужного места сама печь смотрится очень неплохо. А если подойти к вопросу творчески, то есть простор, начиная от самой кладки, огранки кирпичей и заканчивая изразцами. Вообще советую просмотреть stove.ru и stovemaster.ru Посилання на коментар Поділитися на інших сайтах More sharing options...
Белая Рысь Опубліковано: 5 лютого 2009 Поділитись Опубліковано: 5 лютого 2009 Да, я знаю этот сайт. А сколько печник запросил за работу? Может, выгоднее ТТ котел купить?:D О внешнем виде я сужу по фото на сайте Кузнецова. Просто деревенский камин выглядит изящнее,у того же Кузнецова, хотя и он делает с чугунной вставкой. Слава Богу, время на раздумья есть :D Посилання на коментар Поділитися на інших сайтах More sharing options...
AndrejKiev Опубліковано: 5 лютого 2009 Автор Поділитись Опубліковано: 5 лютого 2009 Почему никто не пишет про печь-камин Кузнецова? Кто-то искал печника, способного это сделать? Мне кажется, это наилучший вариант камина с обогревом. Там есть и камин, и обычная печь -- два в одном. А может еще и плита -- три в одном. Единственный недостаток -- громоздкость и не очень изящный внешний вид. Что поделаешь -- печь есть печь. Андрей, как я понимаю, Вы только отталкивались от принципа печи Кузнецова, но создали совсем другой вариант? А в чем разница? Прошу прощения за тупость -- еще и печи класть надо учиться, помимо всего прочего. Чертова стройка:D Таня, смотрите, в чем особенность. Как правило, топка это самая трудно исполнимая часть камина. Там легко "напортачить". Моей целью было сделать такую конструкцию, чтоб она была проста и надежна. Меня привлекает возможность закрытого камина, когда дрова горят в "придушенном режиме". Без герметичной топки тут не обойтись. Кроме того мне удалось решить "турбо" режим. Т.е. как только дрова начали гореть, горячий воздух пошел в комнату - конвекция вокруг чугуной топки. А через час "подключается" тяжелая артилерия - кирпичный колпак, который равномерно прогревается по всей высоте до температуры ~ 60-70 градусов (отбор тепла у отходящих продуктов горения). Задействовав в конструкции шамотные плиты, как основание колпака, удалось свести кладку печи к простой и тривиальной последовательности. Насчет внешнего вида. Наоборот стремился уйти от традиционного камина. Есть стена в гостинной, а на ней топка. Никаких выступов, полочек. Все строго. Облицую тонким светлым керамогранитом. Посилання на коментар Поділитися на інших сайтах More sharing options...
oldic Опубліковано: 6 лютого 2009 Поділитись Опубліковано: 6 лютого 2009 Да, я знаю этот сайт. А сколько печник запросил за работу? Может, выгоднее ТТ котел купить?:D О внешнем виде я сужу по фото на сайте Кузнецова. Просто деревенский камин выглядит изящнее,у того же Кузнецова, хотя и он делает с чугунной вставкой. Слава Богу, время на раздумья есть :D На тот момент 15 грн. за 1 положеный кирпич. Сравнимо с хорошим пиролизным твердотопливным котлом. Посилання на коментар Поділитися на інших сайтах More sharing options...
Белая Рысь Опубліковано: 6 лютого 2009 Поділитись Опубліковано: 6 лютого 2009 2 oldic. Так трудно ведь посчитать, сколько всего получается -- в среднем... 2 Андрей, а это Ваше ноу-хау? Почему никто больше так не делает? Ведь, действительно, получается вещь незаменимая -- весь дом отапливает? А сколько стоит сейчас топка? И почему все печники-каминщики, когда я спрашивала о закрытой топке, начинали раздражаться и обижаться? Какие у Вас новости? Почему не пишете? Посилання на коментар Поділитися на інших сайтах More sharing options...
oldic Опубліковано: 6 лютого 2009 Поділитись Опубліковано: 6 лютого 2009 2 oldic. Так трудно ведь посчитать, сколько всего получается -- в среднем... 2 Андрей, а это Ваше ноу-хау? Почему никто больше так не делает? Ведь, действительно, получается вещь незаменимая -- весь дом отапливает? А сколько стоит сейчас топка? И почему все печники-каминщики, когда я спрашивала о закрытой топке, начинали раздражаться и обижаться? Какие у Вас новости? Почему не пишете? Сначала я смотрел на типовой проект к которому были порядовки. Сам прочертил каждый кирпич, по ходу дела многое стало ясно как оно работает. Потом прикинул кол-во кирпичей на саму печь и трубу. У меня вышло около 600 кирпичей на печь и около 700 на трубу. В принципе трубу можно было бы и обычному каменщику заказать. Почитав ветку на форуме печников я пришел к выводу что на Украине купить хороший кирпич для печи можно, но это тоже не так дешево. Обычный строительный не рекомендуется. Насчет того что никто так не делает, наверно я буду второй кто будет так делать. И при этом ложить кирпич наверно возьмусь сам. Хочу пойти по пути, предложенному автором. Но у меня камино-печь будет угловая и греть будет гостинную и кухню. Когда возьмусь за реализацию, открою свою ветку с детальным протоколированием действий. Посилання на коментар Поділитися на інших сайтах More sharing options...
Белая Рысь Опубліковано: 6 лютого 2009 Поділитись Опубліковано: 6 лютого 2009 А Вы не поделитесь координатами того Кузнецовского печника в Киеве? Возможно, он сможет сделать и Андрееву печь-камин? Посилання на коментар Поділитися на інших сайтах More sharing options...
oldic Опубліковано: 6 лютого 2009 Поділитись Опубліковано: 6 лютого 2009 А Вы не поделитесь координатами того Кузнецовского печника в Киеве? Возможно, он сможет сделать и Андрееву печь-камин? Романко Юрий. тел. (093) 839-47-48 e-mail: uta777@yandex.ru Посилання на коментар Поділитися на інших сайтах More sharing options...
AndrejKiev Опубліковано: 6 лютого 2009 Автор Поділитись Опубліковано: 6 лютого 2009 А Вы не поделитесь координатами того Кузнецовского печника в Киеве? Возможно, он сможет сделать и Андрееву печь-камин? Таня, Вы плохо меня слушаете. Какие супер спецы? Любой человек, который может положить стенку, чтоб она не завалилась, в состоянии сделать такую "каминопечь". Не надо супер кирпич, там нет особо высоких температур. Любой крепкий без дырок. Не нужна супергеометрия, если не под расшивку. Не надо умничать с растворами, покупаете готовую кладочную смесь для печей - мертель. Не надо покупать чугуные решетки, мудрить с зазорами и расширениями. А как на меня все печники "кричали", Вам не передать.! Главный аргумент - не будет тяги, не растопить такую конструкцию. А в реальности, приходится "душить" топку, иначе мартен гудит. Посилання на коментар Поділитися на інших сайтах More sharing options...
Белая Рысь Опубліковано: 6 лютого 2009 Поділитись Опубліковано: 6 лютого 2009 А кто Вам делал? Это было бы проще всего -- уже опыт есть! Не поделитесь ли? Посилання на коментар Поділитися на інших сайтах More sharing options...
AndrejKiev Опубліковано: 6 лютого 2009 Автор Поділитись Опубліковано: 6 лютого 2009 А кто Вам делал? Это было бы проще всего -- уже опыт есть! Не поделитесь ли? Эти люди пока на другом объекте, но если у Вас есть ЛЮБОЙ каменьщик, я устрою Вам министажировку-знакомство с тем, кто клал. Но посмотрите, на фото, что я выложил - там же все прозрачно. Посилання на коментар Поділитися на інших сайтах More sharing options...
Белая Рысь Опубліковано: 6 лютого 2009 Поділитись Опубліковано: 6 лютого 2009 Нам пока еще рано -- окон нет еще. Посилання на коментар Поділитися на інших сайтах More sharing options...
Privet Опубліковано: 7 лютого 2009 Поділитись Опубліковано: 7 лютого 2009 Еще сайтик по печам и каминам. www.mirkis.sitecity.ru/index.phtml Посилання на коментар Поділитися на інших сайтах More sharing options...
bampo Опубліковано: 10 лютого 2009 Поділитись Опубліковано: 10 лютого 2009 Андрей, что за кирпич(производитель) использовал для кладки камина-красивый очень... Верно-ли я понял, что у колпака стенка в пол кирпича? Да, и откуда забор воздуха в топку(по фото вроде из помещения?) Посилання на коментар Поділитися на інших сайтах More sharing options...
AndrejKiev Опубліковано: 10 лютого 2009 Автор Поділитись Опубліковано: 10 лютого 2009 Андрей, что за кирпич(производитель) использовал для кладки камина-красивый очень... Верно-ли я понял, что у колпака стенка в пол кирпича? Да, и откуда забор воздуха в топку(по фото вроде из помещения?) Если тот, что на макете, то это основной кирпич, что стены дома клали. БЦ лицевой. А колпак клали из цельного, я даже не знаю чей он. Между Пуховкой и Погребами стоит все время камаз с таким. Да 1/2 кирпича. Забор из дома, через регулируемые отверстия на лицевой части топки. А та большая дырка снизу - забор воздуха, который конвекционный и в топку не попадает. Посилання на коментар Поділитися на інших сайтах More sharing options...
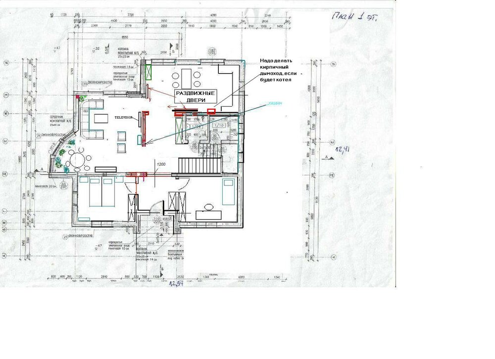
iro4ka Опубліковано: 11 лютого 2009 Поділитись Опубліковано: 11 лютого 2009 Ну просто нет слов!!!Читаешь ваши ветки и кажеться, действительно"все гениальное просто....".Уже хочу такую печь-камин!!!Только вот сомневаюсь ,что место для такого сооружения в нашем проекте подходящее...греть она будет только гостинную и коридор.См.приложение. Фундамет под камин уже выполнен....А как бы устроить какие-то воздуховоды ,чтобы теплый воздух попадал и в другие помеЩения? Или это невозможно?Поскольку еще полы не залиты,то можно плюнуть и сделать под нее фундамент в другом месте , очень хотелось бы узнать ваше мнение. Все что вы показали на форуме мне ужасно нравиться.ВСЕ продумано,красиво,талантливо.Вселяет надежду и желание строиться ,несмотря на непредвиденное будущее... В идеале мы все хотим одного и того же-крепкий,теплый и красивый дом.Каждый ищет свой путь,а я ищу "гуру",который все сделал правильно и уже наслаждаеться теплом и красотой своего дома. поэтому ваши идеи и ловлю Вот стены начали выгонять и будем тоже перлит засыпатьСлава богу нашла вашу ветку и кончились муки выбора утеплителя.Зато сразу возникли вопросы: 1.Какой фракции перлит брать?Как его трамбовать? 2.Как часто клали сетку в стены и какую(конструктор знакомый говорит,что будет большая боковая нагрузка на стены и может распереть)3.Когда надо сыпать перлит,после каждой перевязки или можно потом ,когда будет вся стена(1 этаж)?А потом 2ой? 4.Какую использовали сетку? 5.Если перлит усаживаеться со временем и вверху будет образовываться неутепленное пространство,что вы предусматривали,чтобы досыпать перлит? Извините ,что вопросы не связанные с печкой,но пока мы до нее дойдем еще -не раз ваших советов попросим.;) Посилання на коментар Поділитися на інших сайтах More sharing options...
AndrejKiev Опубліковано: 12 лютого 2009 Автор Поділитись Опубліковано: 12 лютого 2009 Ну просто нет слов!!!Читаешь ваши ветки и кажеться, действительно"все гениальное просто....".Уже хочу такую печь-камин!!!Только вот сомневаюсь ,что место для такого сооружения в нашем проекте подходящее...греть она будет только гостинную и коридор.См.приложение. Фундамет под камин уже выполнен....А как бы устроить какие-то воздуховоды ,чтобы теплый воздух попадал и в другие помеЩения? Или это невозможно?Поскольку еще полы не залиты,то можно плюнуть и сделать под нее фундамент в другом месте , очень хотелось бы узнать ваше мнение. Все что вы показали на форуме мне ужасно нравиться.ВСЕ продумано,красиво,талантливо.Вселяет надежду и желание строиться ,несмотря на непредвиденное будущее... В идеале мы все хотим одного и того же-крепкий,теплый и красивый дом.Каждый ищет свой путь,а я ищу "гуру",который все сделал правильно и уже наслаждаеться теплом и красотой своего дома. поэтому ваши идеи и ловлю Вот стены начали выгонять и будем тоже перлит засыпатьСлава богу нашла вашу ветку и кончились муки выбора утеплителя.Зато сразу возникли вопросы: 1.Какой фракции перлит брать?Как его трамбовать? 2.Как часто клали сетку в стены и какую(конструктор знакомый говорит,что будет большая боковая нагрузка на стены и может распереть)3.Когда надо сыпать перлит,после каждой перевязки или можно потом ,когда будет вся стена(1 этаж)?А потом 2ой? 4.Какую использовали сетку? 5.Если перлит усаживаеться со временем и вверху будет образовываться неутепленное пространство,что вы предусматривали,чтобы досыпать перлит? Извините ,что вопросы не связанные с печкой,но пока мы до нее дойдем еще -не раз ваших советов попросим.;) Спасибо на добром слове. На все вопросы ответил в ЛС Посилання на коментар Поділитися на інших сайтах More sharing options...
Лида Опубліковано: 12 лютого 2009 Поділитись Опубліковано: 12 лютого 2009 Спасибо на добром слове. На все вопросы ответил в ЛС Ой!А почему в личку? Я тоже хочу знать,пожалуйста.И еще,лицевой кирпич+12 перлита +кирпич?сколько? Молодец,правду все говорят что второй дом строишь лучше первого. Заранее благодарна. Посилання на коментар Поділитися на інших сайтах More sharing options...
Chiara Опубліковано: 12 лютого 2009 Поділитись Опубліковано: 12 лютого 2009 Ой!А почему в личку? Я тоже хочу знать,пожалуйста.И еще,лицевой кирпич+12 перлита +кирпич?сколько? Молодец,правду все говорят что второй дом строишь лучше первого. Заранее благодарна. Потому что тема о Русской печи. Задайте Ваш вопрос в соответствующем разделе. Посилання на коментар Поділитися на інших сайтах More sharing options...
Лида Опубліковано: 12 лютого 2009 Поділитись Опубліковано: 12 лютого 2009 Потому что тема о Русской печи. Задайте Ваш вопрос в соответствующем разделе. Прошу прощения! Посилання на коментар Поділитися на інших сайтах More sharing options...
Sergei Опубліковано: 13 лютого 2009 Поділитись Опубліковано: 13 лютого 2009 Потрясающе! А что у вас осталось от первоначальной задумки, я имею ввиду той печи, ссылку на которую вы давали в начале темы? Интересно бы было посмотреть на конструкцию вашего колпака. Посилання на коментар Поділитися на інших сайтах More sharing options...
AndrejKiev Опубліковано: 13 лютого 2009 Автор Поділитись Опубліковано: 13 лютого 2009 Потрясающе! А что у вас осталось от первоначальной задумки, я имею ввиду той печи, ссылку на которую вы давали в начале темы? Интересно бы было посмотреть на конструкцию вашего колпака. Ничего не осталось, кроме принципа "колпачного" движения продуктов сгорания. На фотках все очевидно и прозрачно. Свод колпака можно делать как угодно. На уголках или аркой, все равно, верх ровной стенкой до потолка "догоняем". Посилання на коментар Поділитися на інших сайтах More sharing options...
Sergei Опубліковано: 13 лютого 2009 Поділитись Опубліковано: 13 лютого 2009 Ничего не осталось, кроме принципа "колпачного" движения продуктов сгорания. На фотках все очевидно и прозрачно. Свод колпака можно делать как угодно. На уголках или аркой, все равно, верх ровной стенкой до потолка "догоняем". Извините, а на какие фотки вы ссылаетесь? Возможно у меня что-то не отображается или я что-то пропустил. Из тех фоток, что размещены в теме, понятно только то, как чугунная топка обложена кирпичём. Не ли у вас фоток или рисунков вашего колпака? Спасибо. Посилання на коментар Поділитися на інших сайтах More sharing options...
Рекомендовані повідомлення
Створіть акаунт або увійдіть у нього для коментування
Ви маєте бути користувачем, щоб залишити коментар
Створити акаунт
Зареєструйтеся для отримання акаунта. Це просто!
Зареєструвати акаунтУвійти
Вже зареєстровані? Увійдіть тут.
Увійти зараз