Sopa Опубліковано: 21 червня 2016 Поділитись Опубліковано: 21 червня 2016 Все кто занимаются автополивом , знают что работа меньше чем 50% от стоимости автополива не есть рентабельной. Просто человек видимо не знает , что любые переделки автополива это не только потраченное время но и расход на доп материалы. Не там резанул трубу- пошёл купил доп фитинг, и так далее.... Я уже не говорю о том как расчитывались зоны расхода полива, гидравлика и прочие исходники. Все индивидуально. Заложив основные магистрали до укладки тротуарки, собрав гребенку в приямке, и сделав контур с капельным поливом, я сэкономил около 10000 грн. При том что своими руками я только вставлял адаптера под капельницы, и проверял соединения. Посилання на коментар Поділитися на інших сайтах More sharing options...
ch.off Опубліковано: 21 червня 2016 Поділитись Опубліковано: 21 червня 2016 Оборудование рекомендую использовать Hunter. Есть 2 варианта, Вы можете обратится в компанию которая занимается монтажом или сделать своими руками полив. В личку, сбросил данные в Одессе людей которые могут помочь с монтажом. Видео о том, как сделать полив автоматический своими руками, добавлено ниже: Благодарю за разъяснения и видео ;)! Контактов монтажников в Одессе не обнаружил в личке ,киньте еще разок подалуйста сообщением . Посилання на коментар Поділитися на інших сайтах More sharing options...
vickov Опубліковано: 14 липня 2016 Поділитись Опубліковано: 14 липня 2016 Подскажите, пожалуйста, трубу полиэтиленовую черную обязательно закапывать? Сверху, на грунте она долго не прослужит? Посилання на коментар Поділитися на інших сайтах More sharing options...
Dimakiev Опубліковано: 15 липня 2016 Поділитись Опубліковано: 15 липня 2016 Подскажите, пожалуйста, трубу полиэтиленовую черную обязательно закапывать? Сверху, на грунте она долго не прослужит? Желательно закапывать трубу. На поверхности труба может конечно находится, солнце ее не "расплавит", но чисто с эстетической точки зрения более красиво когда ее не будет видно. А так же например при покосе газона, труба будет мешать. А так личное дело каждого, по техническим параметрам труба будет почти одинаково служить, что под землей, что на поверхности. Посилання на коментар Поділитися на інших сайтах More sharing options...
sergeydnepr Опубліковано: 27 серпня 2016 Поділитись Опубліковано: 27 серпня 2016 Сколько может стоить проект на такой участок? (все очень схематично ,без деревьев и кустов, при необходимости дополню).Собирать буду сам, потому что как сказал в другой теме один из форумчан: "давайте по возможности без распальцовки, а то пальцы стали ощутимо короче."План 1.doc Посилання на коментар Поділитися на інших сайтах More sharing options...
Dimakiev Опубліковано: 29 серпня 2016 Поділитись Опубліковано: 29 серпня 2016 Сколько может стоить проект на такой участок? (все очень схематично ,без деревьев и кустов, при необходимости дополню).Собирать буду сам, потому что как сказал в другой теме один из форумчан: "давайте по возможности без распальцовки, а то пальцы стали ощутимо короче." Вам необходим только проект на полив, или же узнать стоимость материалов с расчетом на Ваш участок ? Добавлено через 12 минут Вам необходим только проект на полив, или же узнать стоимость материалов с расчетом на Ваш участок ? Оборудования Hunter + капельный полив 1. Роторный дождеватель PGP ADJ - 10 шт 2. 3 клапана электромагнитных 3. Программатор Хантер на 4 зоны 4. Труба ПЭ 32 мм 5. Трубка для капельного полива 120 м. 6. Фитинги для капельного полива - 20 шт 7. Фитинги ПЭ - 40 шт 8. Гибкие колена для дождевателей - 10 шт 9. Колодец для клапана - 3 шт Итого по материалам: 7800 грн. Это расчет по материалам для Вашего участка. Проект делается бесплатно. Посилання на коментар Поділитися на інших сайтах More sharing options...
sergeydnepr Опубліковано: 29 серпня 2016 Поділитись Опубліковано: 29 серпня 2016 Спасибо за ориентир в цене, что от меня еще нужно для полноты картины? Посилання на коментар Поділитися на інших сайтах More sharing options...
Dimakiev Опубліковано: 29 серпня 2016 Поділитись Опубліковано: 29 серпня 2016 Спасибо за ориентир в цене, что от меня еще нужно для полноты картины? Точные размеры с разнесением растений, если будут какие то на газоне, может клумба будет и тд... Так как это все влияет в дальнейшем на качество полива, что бы избежать "мертвых" зон при поливе. Посилання на коментар Поділитися на інших сайтах More sharing options...
gothic3men Опубліковано: 3 вересня 2016 Поділитись Опубліковано: 3 вересня 2016 Хочу заложить по периметру участка трубу 32 мм под полив и потом после облагораживания участка по ходу дела в нужных местах врезаться в нее. Понятно, что на зиму нужно сливать воду. Я так понимаю, что трубу нужно делать с уклоном и в нижней точке организовать приямок для слива. Но нет уверенности, что на периметре 150 м плюс отводы вся вода выйдет. Есть ли какой-то способ, типа продувки системы? Может можно обойтись и без приямка под слив? Також думаю над цим питанням, планую 3 сотки під газон та зелені насадження, замовити готову систему поливу дорогувато, можливо хтось робив систему поливу своїми руками, поділіться досвідом, заздалегідь буду вдячний...... пс: продуктивність насосу в скважини 1,5м3 в годину кажуть малувато для поливу Посилання на коментар Поділитися на інших сайтах More sharing options...
Dimakiev Опубліковано: 5 вересня 2016 Поділитись Опубліковано: 5 вересня 2016 Також думаю над цим питанням, планую 3 сотки під газон та зелені насадження, замовити готову систему поливу дорогувато, можливо хтось робив систему поливу своїми руками, поділіться досвідом, заздалегідь буду вдячний...... пс: продуктивність насосу в скважини 1,5м3 в годину кажуть малувато для поливу Видео очень много, на эту тему. В принципе ни чего сложного нет. Главное понять, смысл работы всей системы в целом. 1,5 куба может и хватить, если сделать правильное разделение по зонам полива. Посилання на коментар Поділитися на інших сайтах More sharing options...
vshtark Опубліковано: 16 вересня 2016 Поділитись Опубліковано: 16 вересня 2016 Купил напрямую в США клапана Hunter, но у них оказались вход/выход с резьбой NPT. А фитинги Irritec под полиэтиленовую трубу покупал в Украине и у них обычная дюймовая резьба. Где можно найти переходники с NPT на дюймовую резьбу? Посилання на коментар Поділитися на інших сайтах More sharing options...
Катерина Ш Опубліковано: 18 вересня 2016 Поділитись Опубліковано: 18 вересня 2016 Dimakiev, а по Днепру никого не посоветуете на монтаж? И можно ли будет бросить Вам план и купить все у Вас, если мы надумаем сами делать? Посилання на коментар Поділитися на інших сайтах More sharing options...
Dimakiev Опубліковано: 19 вересня 2016 Поділитись Опубліковано: 19 вересня 2016 Dimakiev, а по Днепру никого не посоветуете на монтаж? И можно ли будет бросить Вам план и купить все у Вас, если мы надумаем сами делать? К сожалению не подскажу, по монтажу в Днепре. План участка можете сбросить. Только большая просьба писать все размеры и указывать деревья, кусты и тд... Так как это имеет большое значение при проектировании. Сами вы сможете сделать полив. Вот есть видео например монтажа автоматического полива своими руками: 1 Посилання на коментар Поділитися на інших сайтах More sharing options...
gobiosoma Опубліковано: 19 вересня 2016 Поділитись Опубліковано: 19 вересня 2016 Купил напрямую в США клапана Hunter, но у них оказались вход/выход с резьбой NPT. А фитинги Irritec под полиэтиленовую трубу покупал в Украине и у них обычная дюймовая резьба. Где можно найти переходники с NPT на дюймовую резьбу? Там же где и покупал, на Евау, у нас только у токаря могут сделать. Должна быть резьба BSP.Нужно там было повнимательней у них там стандарты другие.Сейчас не вижу там смысла покупать( сам покупал у диллера Хантера там 3 года) у нас почти такие же цены Посилання на коментар Поділитися на інших сайтах More sharing options...
Тюня Опубліковано: 19 вересня 2016 Поділитись Опубліковано: 19 вересня 2016 Где можно найти переходники с NPT на дюймовую резьбу? Поищите в профильных компаниях, которые занимаются всякими муфточками, краниками на воду Или закажите токарю Посилання на коментар Поділитися на інших сайтах More sharing options...
vshtark Опубліковано: 19 вересня 2016 Поділитись Опубліковано: 19 вересня 2016 Там же где и покупал, на Евау, у нас только у токаря могут сделать. Должна быть резьба BSP.Нужно там было повнимательней у них там стандарты другие.Сейчас не вижу там смысла покупать( сам покупал у диллера Хантера там 3 года) у нас почти такие же цены На некоторые позиции разница почти в 3 раза не в пользу местных. Плюс большинство позиций в наличии только ширпотреб, нормальные только под заказ и ждать 2-3 месяца. На общей сумме почти вдвое меньше получилось даже с учетом доставки мист-экспрессом через авиа. По-внимательнее был-бы рад, но на сайте где заказывал например для клапанов даже вариантов выбора резьбы не было. Посилання на коментар Поділитися на інших сайтах More sharing options...
Dimakiev Опубліковано: 20 вересня 2016 Поділитись Опубліковано: 20 вересня 2016 На некоторые позиции разница почти в 3 раза не в пользу местных. Плюс большинство позиций в наличии только ширпотреб, нормальные только под заказ и ждать 2-3 месяца. На общей сумме почти вдвое меньше получилось даже с учетом доставки мист-экспрессом через авиа. По-внимательнее был-бы рад, но на сайте где заказывал например для клапанов даже вариантов выбора резьбы не было. Не могу согласится по поводу разницы в цене, в 2-3 раза. Это могло быть лет 5 назад такое, когда например Hunter ввозили в Украину 2 компании, сейчас конкуренция намного больше. Поэтому и цены что на ebay, что на территории Украины практически одинаковая. Для интереса зашел и проверил, разница в 1-3 дол. там дешевле. Но добавить еще сюда доставку, выйдет может еще и дороже чем покупать в Украине. Посилання на коментар Поділитися на інших сайтах More sharing options...
vshtark Опубліковано: 20 вересня 2016 Поділитись Опубліковано: 20 вересня 2016 Не могу согласится по поводу разницы в цене, в 2-3 раза. Это могло быть лет 5 назад такое, когда например Hunter ввозили в Украину 2 компании, сейчас конкуренция намного больше. Поэтому и цены что на ebay, что на территории Украины практически одинаковая. Для интереса зашел и проверил, разница в 1-3 дол. там дешевле. Но добавить еще сюда доставку, выйдет может еще и дороже чем покупать в Украине. В моем предложении было Клапан Hunter IBV-101G-B-FS - 5 875 грн Реально купил его за $120 с бесплатной доставкой по США. Корневой полив RZWS 3625CV - 1 429 грн Реально купил за $30 за штуку и т.д. Посилання на коментар Поділитися на інших сайтах More sharing options...
gobiosoma Опубліковано: 26 вересня 2016 Поділитись Опубліковано: 26 вересня 2016 В моем предложении было Клапан Hunter IBV-101G-B-FS - 5 875 грн Реально купил его за $120 с бесплатной доставкой по США. Корневой полив RZWS 3625CV - 1 429 грн Реально купил за $30 за штуку и т.д. Подтверждаю сейчас цены почти как там просто такая цена у тех кто занимается профессионально поливом.У остальных скидки меньше 1 Посилання на коментар Поділитися на інших сайтах More sharing options...
sergeydnepr Опубліковано: 30 вересня 2016 Поділитись Опубліковано: 30 вересня 2016 Правильно ли вместо четырехканального блока управления взять шестиканальный, с расчетом на перспективу. Разница в цене небольшая, два канала будут в запас, на возможные будущие доделки. Посилання на коментар Поділитися на інших сайтах More sharing options...
vshtark Опубліковано: 30 вересня 2016 Поділитись Опубліковано: 30 вересня 2016 Правильно ли вместо четырехканального блока управления взять шестиканальный, с расчетом на перспективу. Разница в цене небольшая, два канала будут в запас, на возможные будущие доделки. Я так и сделал. Посилання на коментар Поділитися на інших сайтах More sharing options...
gobiosoma Опубліковано: 2 жовтня 2016 Поділитись Опубліковано: 2 жовтня 2016 Правильно ли вместо четырехканального блока управления взять шестиканальный, с расчетом на перспективу. Разница в цене небольшая, два канала будут в запас, на возможные будущие доделки. Конечно с запасом лучше. Посилання на коментар Поділитися на інших сайтах More sharing options...
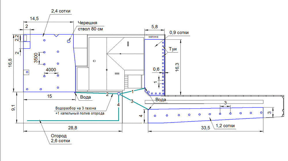
silver8848 Опубліковано: 18 жовтня 2016 Поділитись Опубліковано: 18 жовтня 2016 Помогите разобраться и самостоятельно смонтировать автоматический полив газона. Есть три зоны 0,9; 1,2; 2,4 сотки. К углу каждого участка подведена труба ПЭ 25 мм. К зоне 2 (2,4 сотки) можно будет провести еще одну трубу, если потребуется разделить участок на две зоны полива. Вода водопроводная давление низкое (до 2 атм.) Буду ставить насосную станцию Pedrollo 4CPm 80/24 CL (m.ua/desc/pedrollo-4cpm-80-24-cl/), 4,2 м.куб./час. Не могу разобраться со схемой установки распылителей. Я набросал примерную схему исходя из принципа побюджетнее. Так же не разберусь с оборудованием. Скорее всего будут стоять МР ротаторы- это как я понял просто распыляющие головки которые маркируються MP1000, MP2000, MP3000 или роторные дождеватели PGPADJ. Они должны вставляться в веерный дождеватель который маркируется ECO-ROTATOR Далее гибкая подводка или сразу накручивается на тройник магистрали. Дайте совет по схеме и оборудованию. Посилання на коментар Поділитися на інших сайтах More sharing options...
alfa77 Опубліковано: 18 жовтня 2016 Поділитись Опубліковано: 18 жовтня 2016 Помогите разобраться и самостоятельно смонтировать автоматический полив газона. Вопрос объемный, но если кратко то: 1. Насос слабоват 2. Труба ф25мм на 11 форсунок( зона 3) - мало 3. Зона 1 - расставьте распылители в шахматном порядке, так же как в зоне 3. 4. Контура должны быть замкнуты. 5. Монтаж форсунка-труба как правило выполняется через гибкую составляющую, добавляет манеренности при установке дождевателя. Можно конечно и без нее, но с ней намного проще. 1 Посилання на коментар Поділитися на інших сайтах More sharing options...
silver8848 Опубліковано: 19 жовтня 2016 Поділитись Опубліковано: 19 жовтня 2016 Вопрос объемный, но если кратко то: 1. Насос слабоват 2. Труба ф25мм на 11 форсунок( зона 3) - мало 3. Зона 1 - расставьте распылители в шахматном порядке, так же как в зоне 3. 4. Контура должны быть замкнуты. 5. Монтаж форсунка-труба как правило выполняется через гибкую составляющую, добавляет манеренности при установке дождевателя. Можно конечно и без нее, но с ней намного проще. 1. Почему насос слабый, он выдает до 8 атм, но автоматика по умолчанию настроена вроде бы 2,4-3,6 атм (точно не помню), можно поднять до 4,5-5,0 атм. Это поможет? Если нет, то какой насос посоветуете? 2. Зона 3 можно разделить на 2 контура-левый и правый. Вообще была мысль расположить форсунки по середине участка как на Зоне 1 3. Почему в шахматном порядке, в чем недостаток такой схемы? Зона 1 освещается солнцем только утром и вечером, весь день в тени дома (северная сторона). Обильного полива там не нужно. Если делать в шахматном порядке, туи будут сильно препятствовать нормальному поливу. 4. Что значит замкнутый контур? Как его реализовать? Посилання на коментар Поділитися на інших сайтах More sharing options...
Рекомендовані повідомлення
Створіть акаунт або увійдіть у нього для коментування
Ви маєте бути користувачем, щоб залишити коментар
Створити акаунт
Зареєструйтеся для отримання акаунта. Це просто!
Зареєструвати акаунтУвійти
Вже зареєстровані? Увійдіть тут.
Увійти зараз