yoojin Опубліковано: 19 лютого 2011 Автор Поділитись Опубліковано: 19 лютого 2011 Главное не забыть такие тройники и обратную линию заложить Все будет полипропиленом. Посилання на коментар Поділитися на інших сайтах More sharing options...
B.S.V. Опубліковано: 19 лютого 2011 Поділитись Опубліковано: 19 лютого 2011 Главное не забыть такие тройники и обратную линию заложить А вот такие тройники и другие фитинги на скрутках, не рекомендую использовать, особенно в стяжку и штукатурку. Посилання на коментар Поділитися на інших сайтах More sharing options...
Сергей_84 Опубліковано: 19 лютого 2011 Поділитись Опубліковано: 19 лютого 2011 А вот такие тройники и другие фитинги на скрутках, не рекомендую использовать, особенно в стяжку и штукатурку. поддерживаю Посилання на коментар Поділитися на інших сайтах More sharing options...
bampo Опубліковано: 19 лютого 2011 Поділитись Опубліковано: 19 лютого 2011 Все будет полипропиленом. материал по вашему желанию, главное не забыть, сам сейчас раздолбил стену в санузле, всёж-таки некомфортно без рециркуляции... Посилання на коментар Поділитися на інших сайтах More sharing options...
yoojin Опубліковано: 20 лютого 2011 Автор Поділитись Опубліковано: 20 лютого 2011 Сегодня, несмотря на мороз, заехал на несколько часов на стройку. Поставил вентили почти на все радиаторы, прикинул один радиатор на стенку в санузле. Паять не решился - довольно прохладно. Возникло пару вопросов: - вентили садить только на штатную американку? Я, например, все-таки наматывал пакли еще на нее. - белые заглушки, я так понимаю, декоративные. Незанятое отверстие глушить металлической заглушкой? Ее и кран Маевского садить на резиновую прокладку? Посилання на коментар Поділитися на інших сайтах More sharing options...
B.S.V. Опубліковано: 20 лютого 2011 Поділитись Опубліковано: 20 лютого 2011 Сегодня, несмотря на мороз, заехал на несколько часов на стройку. Поставил вентили почти на все радиаторы, прикинул один радиатор на стенку в санузле. Паять не решился - довольно прохладно. Возникло пару вопросов: - вентили садить только на штатную американку? Я, например, все-таки наматывал пакли еще на нее. - белые заглушки, я так понимаю, декоративные. Незанятое отверстие глушить металлической заглушкой? Ее и кран Маевского садить на резиновую прокладку? 1. Если американка с конусной резинкой, можете садить без пакли. 2. Правильно понимаете. Закручивать заглушку и кран маевского можно на имеющиеся на них прокладки. Паять ниже +10 не рекомендую. При +10 делайте поправку на +1 на 20 +1,5 на 25 диаметрах. Помните, что чем ниже температура монтажа тем больше разница температур, при которых система монтировалась и будет эксплуатироваться. Не забывайте о компенсаторах на длинных участках. Если не хватает литературы-подкину. Посилання на коментар Поділитися на інших сайтах More sharing options...
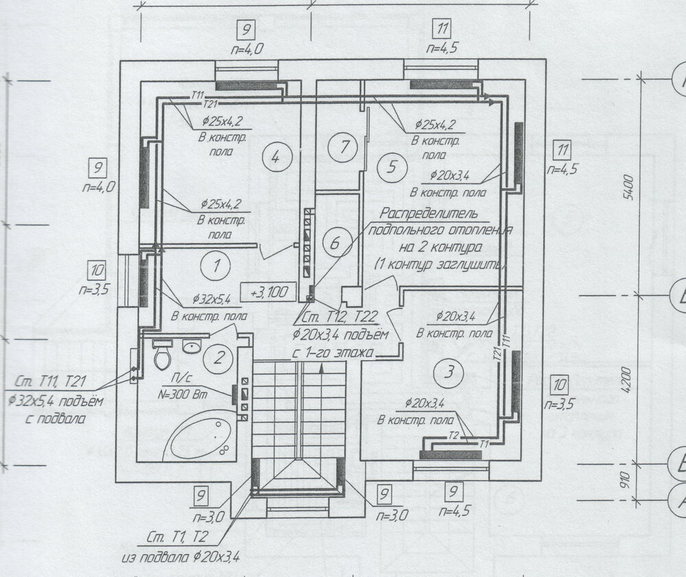
yoojin Опубліковано: 20 лютого 2011 Автор Поділитись Опубліковано: 20 лютого 2011 Вот по плану второго этажа, например. Есть довольно длинные прямые участки (радиаторы будут только под окнами) - 8-9 метров. Какие здесь нужны компенсаторы? Посилання на коментар Поділитися на інших сайтах More sharing options...
B.S.V. Опубліковано: 20 лютого 2011 Поділитись Опубліковано: 20 лютого 2011 По плану, между радиаторами не такие большие расстояния, а тройники-Своего рода компенсаторы. Но я бы перестраховался, тем более низкая температура монтажа и поставил бы 35 см компенсаторы в помещении 7 и 5 ( ближе к нижней стене) Посилання на коментар Поділитися на інших сайтах More sharing options...
yoojin Опубліковано: 20 лютого 2011 Автор Поділитись Опубліковано: 20 лютого 2011 По плану, между радиаторами не такие большие расстояния, а тройники-Своего рода компенсаторы. Но я бы перестраховался, тем более низкая температура монтажа и поставил бы 35 см компенсаторы в помещении 7 и 5 ( ближе к нижней стене) Чего же не такие большие расстояния? В помещениях 5 и 3 радиаторы только под окнами, то есть получается прямой участок 9.6 метра между уголками. Ну там получается две муфты соединительных, так этого хватит? Посилання на коментар Поділитися на інших сайтах More sharing options...
Сергей_84 Опубліковано: 21 лютого 2011 Поділитись Опубліковано: 21 лютого 2011 По плану, между радиаторами не такие большие расстояния, а тройники-Своего рода компенсаторы. ) а каким образом тройники компенсируют удлиннение труб при нагревании? Посилання на коментар Поділитися на інших сайтах More sharing options...
yoojin Опубліковано: 7 березня 2011 Автор Поділитись Опубліковано: 7 березня 2011 Вопрос немного не по теме: на работе назрел ремонт туалета, решили поменять унитаз на чашу Генуя. Подскажите, как правильно ее установить? Посилання на коментар Поділитися на інших сайтах More sharing options...
Сергей 31 Опубліковано: 7 березня 2011 Поділитись Опубліковано: 7 березня 2011 Долго долбить, переделать канализацию, поставить, подключить. Дальше общестроительные работы. Посилання на коментар Поділитися на інших сайтах More sharing options...
B.S.V. Опубліковано: 7 березня 2011 Поділитись Опубліковано: 7 березня 2011 Серега правильно сказал, гемор редкий, а если нет уровня каналии, то бесполезный, или с подиумом. Посилання на коментар Поділитися на інших сайтах More sharing options...
yoojin Опубліковано: 12 березня 2011 Автор Поділитись Опубліковано: 12 березня 2011 Серега правильно сказал, гемор редкий, а если нет уровня каналии, то бесполезный, или с подиумом. Гемор это точно. Подиум придется делать в любом случае. Пока работы на доме не ведутся, выложу пару фоток с ремонта на работе, все делаем своими руками.Никогда не думал, что из помещения 2х3 метра можно вынести 70 мешков строительного мусора... Чугунину меняем на пластик, я паяю ППР на ХВС и выход с бойлера Штаби. Проблемы, конечно, возникают, но пытаемся с ними бороться. В частности мешает труба отопления, идущая посередине помещения, придется зашивать ГК. Посилання на коментар Поділитися на інших сайтах More sharing options...
Сергей_84 Опубліковано: 12 березня 2011 Поділитись Опубліковано: 12 березня 2011 Гемор это точно. Подиум придется делать в любом случае. Пока работы на доме не ведутся, выложу пару фоток с ремонта на работе, все делаем своими руками.Никогда не думал, что из помещения 2х3 метра можно вынести 70 мешков строительного мусора... Чугунину меняем на пластик, я паяю ППР на ХВС и выход с бойлера Штаби. Проблемы, конечно, возникают, но пытаемся с ними бороться. В частности мешает труба отопления, идущая посередине помещения, придется зашивать ГК. вы там поосторожней, а то понравится и перейдете в сантехники:D Посилання на коментар Поділитися на інших сайтах More sharing options...
B.S.V. Опубліковано: 12 березня 2011 Поділитись Опубліковано: 12 березня 2011 А он решил потренироваться на работе, чтобы дома приступить с уже *набитой рукой*. Посилання на коментар Поділитися на інших сайтах More sharing options...
yoojin Опубліковано: 12 березня 2011 Автор Поділитись Опубліковано: 12 березня 2011 вы там поосторожней, а то понравится и перейдете в сантехники:D Если уволят, то придется подаваться в сантехники по-любому Вроде ничего так получается. Сегодня провел воду, пока ветки заглушил ППР заглушками, на смес повесил кран для подводки воды. Посилання на коментар Поділитися на інших сайтах More sharing options...
Korni Опубліковано: 12 березня 2011 Поділитись Опубліковано: 12 березня 2011 ... Чугунину меняем на пластик.... А почему на каналии сплошные 90*градусные отводы?! Посилання на коментар Поділитися на інших сайтах More sharing options...
yoojin Опубліковано: 12 березня 2011 Автор Поділитись Опубліковано: 12 березня 2011 А почему на каналии сплошные 90*градусные отводы?! Почему сплошные? Тройник косой не получается по причине отсутствия места. Колено 90 параллельно тройнику, возле стены, в принципе, по той же причине Это помещение еще надо будет делить пополам, во второй половине будет душевая кабина. То есть если все сместить, сидящий правой булкой будет натирать плитку до блеска. Посилання на коментар Поділитися на інших сайтах More sharing options...
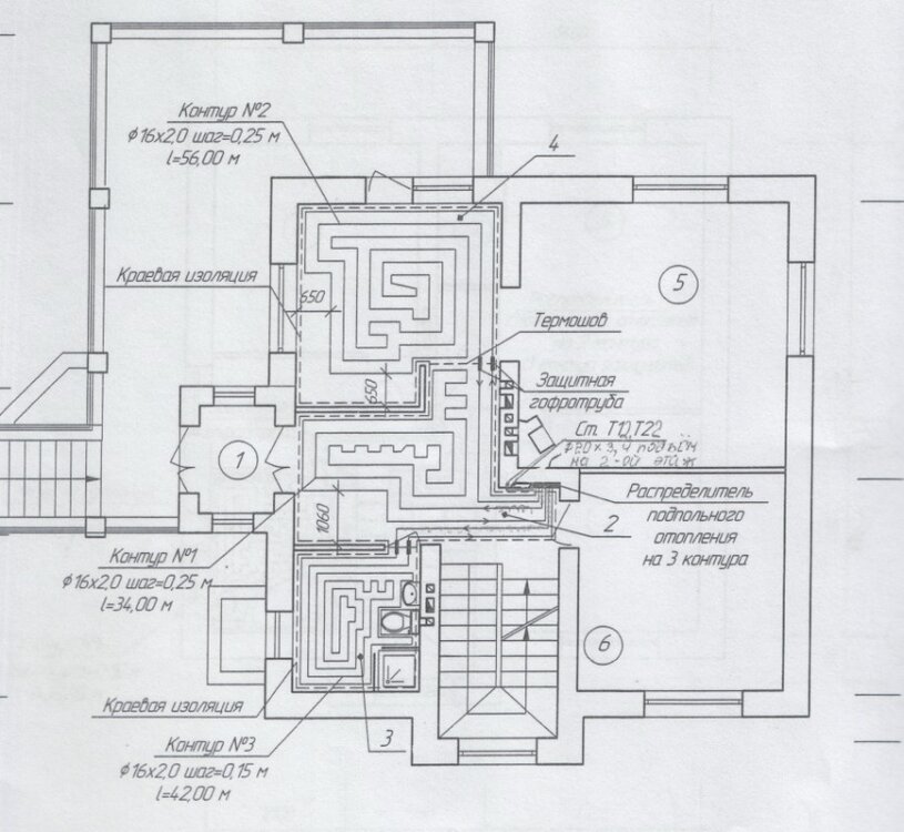
yoojin Опубліковано: 13 березня 2011 Автор Поділитись Опубліковано: 13 березня 2011 Теперь о доме: пора закупать материал на теплые полы. По проекту реализация будет следующая: смесительный узел находится в топочной в цоколе, стояк ТП на 1 и 2-й этажи из ППР 32. Схема смесительного узла и схема теплых полов 1-го этажа ниже. Ориентируюсь на трубу PE-RT KAN с дифзащитой, но боюсь хрен ее погну для шага 15 см в с\у. Какие еще есть варианты для эффективной, но в то же время бюджетной, реализации ТП? Лучше брать коллекторы в сборе или собирать отдельно? Нужны ли расходомеры? Посилання на коментар Поділитися на інших сайтах More sharing options...
Сергей 31 Опубліковано: 13 березня 2011 Поділитись Опубліковано: 13 березня 2011 Смесительный узел собирайте сами. Трубу берите ТИСИ. Посилання на коментар Поділитися на інших сайтах More sharing options...
murava Опубліковано: 13 березня 2011 Поділитись Опубліковано: 13 березня 2011 Смесительный узел собирайте сами. Трубу берите ТИСИ. Просто тисишное лобби какое-то в этих ваших столицах Посилання на коментар Поділитися на інших сайтах More sharing options...
Сергей 31 Опубліковано: 13 березня 2011 Поділитись Опубліковано: 13 березня 2011 Просто тисишное лобби какое-то в этих ваших столицах Так присоединяйся. Чего от хорошего бегать? Посилання на коментар Поділитися на інших сайтах More sharing options...
murava Опубліковано: 13 березня 2011 Поділитись Опубліковано: 13 березня 2011 на трубу PE-RT KAN с ....Лучше брать коллекторы в сборе или собирать отдельно? Нужны ли расходомеры? А сколько эта труба стоит-то денежек? Коллекторы лучше брать заводские, с расходомерами - будет проще запускаться и контролировать процесс... 1 Посилання на коментар Поділитися на інших сайтах More sharing options...
Сергей_84 Опубліковано: 13 березня 2011 Поділитись Опубліковано: 13 березня 2011 Коллекторы лучше брать заводские, ... Андрюха , перестань, можно чудесно его собрать самому этот смеситель и чудесно будет работать... Посилання на коментар Поділитися на інших сайтах More sharing options...
Рекомендовані повідомлення
Створіть акаунт або увійдіть у нього для коментування
Ви маєте бути користувачем, щоб залишити коментар
Створити акаунт
Зареєструйтеся для отримання акаунта. Це просто!
Зареєструвати акаунтУвійти
Вже зареєстровані? Увійдіть тут.
Увійти зараз