Head Опубліковано: 9 березня 2012 Поділитись Опубліковано: 9 березня 2012 Имеет ли право на жизнь такое решение? Деревянные пояса и стойки, стальные раскосы. Узлы на шпильках. www.stroimdom.com.ua/forum/showthread.php?t=90650 Посилання на коментар Поділитися на інших сайтах More sharing options...
silver8848 Опубліковано: 11 березня 2012 Поділитись Опубліковано: 11 березня 2012 Здравствуйте. Вопрос к конструктору Буду строить дом из кирпича, конструкция наружных стен: снаружи 120 мм кирпич-130 мм перлит вспученный-250мм кирпич (внутри). Во внутренней стене (250мм) по углам и по середине будут монолитные сердечники 250*250 мм, по середине дома несущая стена 380 мм. Дом одноэтажный, фундамент монолитный ленточный 1,2м*0,5м. Чердак будет эксплуатируемый, возможно 2 комнаты сделаю. Перекрытия чердака-деревянные балки 100*200, пролет 4 м, шаг 0,9м по осям. Комплексный вопрос: под балки перекрытия монолитный пояс нужен или можно ложить балки перекрытия с опиранием 200 мм без него? Высота стены выше балок перекрытия на 0,5 м. потом мауэрлат. Где делать монолитный пояс с шпильками под мауэрлат-под балками или под мауэрлатом??? Делать два пояса неохота. Посилання на коментар Поділитися на інших сайтах More sharing options...
Александр Ш Опубліковано: 12 березня 2012 Автор Поділитись Опубліковано: 12 березня 2012 Подскажите как рассчитать именно толщину плиты для разных домов. Как считать площадь основания фундамента масса примеров, а как рассчитать толщину я чета не пойму. какой она должна быть 10см, 15 см, 55 см. Глубину заложения пока отбрасываем. пс чуть не забыл и какая армировка при этом необходима! Я так понимаю речь идёт о фундаментной плите, если да, тогда расчёт ведётся плиты на упругом основании. Из моего опыта плита на на упругом основании применяеется при очень плохих геологических условиях, и то, нужно смотреть геологию, иногда свайный фундамент выходит дешевле подушки. Толщина фундаментной плиты будет зависеть от расчётной схемы, тоисть от конфигурации дома расположения несущих стен и нагрузок на фундамент. Толщина фундаментной плиты может колебатся от 250 до 600 мм. Обычно по армированию Вам коректно никто без расчёта не скажет какой диаметр и в каких местах нужно укладывать, конечно можна сказать ложите две ветки диаметром 20-22мм в двух направления и он у Вас выдержит всё что угодно, но это будет как минимум некоректно, и уж очень затратно для Вас. Добавлено через 12 минут Здраствуйте, начинаю стройку - первый этаж из шлакоблока пустотелый и облицовка клинкерный кирпич половинка, мансарда из ЛСТК. Вопрос: выдержит ли несущая стена шлакаблок пустотелый или поднимать из полнотелого, дом 240кв.м. вместе с мансардой. а вообще вопрос всем - как вы относитесь к шлакаблоку. еще вопрос над фундаментным блоком вместо армопояса можно ли использовать кирпич если да то какой. Заранее всем спасибо! Здравствуйте Магзум, по поводу выдержит ли шлакоблок или нет возможно ответить только зная нагрузку на стену, тоисть: материал перекрытия, пролёт между несущими стенами, нагрузна на перекрытие, нагрузка от стен 2-го этажа, нагрузка от кровли и снега. Собрав все нагрузки можно посмотреть выдержит ли шлакоблок. Но по своему назначению шлакоблок это материал ограждающих конструкций, и применяэтся в самонесущих стенах без дополнитеотных нагрузок. Хотя я знаю что некоторые производители делают пустотелые стеновые блоки из тяжолого бетона маркой, если не ошибаюсь М75 или М100, что впринцыпе делает возможным применять их в несущих конструкциях. По поводу замены армопояса на кирпичную кладку то я бы Вам не советовал, так как у них совершенно разные принцыты работы. Добавлено через 28 минут Вставлю і свої питання делитанта до Александра мучают мене різні дилеми на тему армопояса наразі вибудовано перший поверх стіна в 1.5 цегли завезені з/б панелі от зараз і думаю який саме армопояс зробити 1 заармувати два ряда цегли армосіткою і чи буде цього достатньо 2 залити армопояс висотою15 шириною 20см 3 поставити панелі на стіну і залити кругом панелей армопояс Буду вдячний за коментарі до кожного пункту Ще додам в одній із стін є розрив 2 метри під двері вихід на терасу зі сходової не знаю як обійти його Вітаю Gribll, армопояс під плитами перекриття в нормах за радянських часів називавсі сейсмопоясом, та застосовувався в районах з сейсмічністю вище 6 балів. Так що влаштування армопоясу не є обовязковим за нормами, достатньо буде проармувати 2-3 ряди цегляної кладки під плитами перекриття сіткою 4 Вр 50х50 та класти на них прити з опиранням мін. 150мм. З приводу дверного отвору, так його необхідно перекривати перетинками (перемычками) тому що Вам необхідно укласти плити перекриття та зводити стіну. 3 Посилання на коментар Поділитися на інших сайтах More sharing options...
Магзум Опубліковано: 12 березня 2012 Поділитись Опубліковано: 12 березня 2012 Здравствуйте Магзум, по поводу выдержит ли шлакоблок или нет возможно ответить только зная нагрузку на стену, тоисть: материал перекрытия, пролёт между несущими стенами, нагрузна на перекрытие, нагрузка от стен 2-го этажа, нагрузка от кровли и снега. Собрав все нагрузки можно посмотреть выдержит ли шлакоблок. Но по своему назначению шлакоблок это материал ограждающих конструкций, и применяэтся в самонесущих стенах без дополнитеотных нагрузок. Хотя я знаю что некоторые производители делают пустотелые стеновые блоки из тяжолого бетона маркой, если не ошибаюсь М75 или М100, что впринцыпе делает возможным применять их в несущих конструкциях. По поводу замены армопояса на кирпичную кладку то я бы Вам не советовал, так как у них совершенно разные принцыты работы. вот план 1 этажа, 2 этаж мансарда из ЛСТК Перекрытие деревянные балки или из ЛСТК полностью кровля битумная черепица нагрузка от снега когда как, может вообще завалит снегом, может и всю зиму быть без снега производства шлакаблока - у меня станок шлакаблочный. Заранее спасибо! Посилання на коментар Поділитися на інших сайтах More sharing options...
Александр Ш Опубліковано: 12 березня 2012 Автор Поділитись Опубліковано: 12 березня 2012 Имеет ли право на жизнь такое решение? [ATTACH]170761[/ATTACH][ATTACH]170762[/ATTACH] Деревянные пояса и стойки, стальные раскосы. Узлы на шпильках. www.stroimdom.com.ua/forum/showthread.php?t=90650 Здравствуйте Head, я так понимаю красным выделены балки вертикальных связей, если это так, тогда Вам необходимо для обеспечения правильной работы связей соеденить крайний левый вехний угол стены с крайним правым нижним углом, и крайний правый вехний угол стены с крайним левый нижним углом. Тогда у вас будет обеспечена правильная работа вертикальной связи, и небудет догружатся горизонтальная балка перекрытия. Сечение вертикальной связи должно быть расчётным. P.S. Подскажите как вставить рисунок, тогда будет нагляднее. Добавлено через 23 минуты Здравствуйте. Вопрос к конструктору Буду строить дом из кирпича, конструкция наружных стен: снаружи 120 мм кирпич-130 мм перлит вспученный-250мм кирпич (внутри). Во внутренней стене (250мм) по углам и по середине будут монолитные сердечники 250*250 мм, по середине дома несущая стена 380 мм. Дом одноэтажный, фундамент монолитный ленточный 1,2м*0,5м. Чердак будет эксплуатируемый, возможно 2 комнаты сделаю. Перекрытия чердака-деревянные балки 100*200, пролет 4 м, шаг 0,9м по осям. Комплексный вопрос: под балки перекрытия монолитный пояс нужен или можно ложить балки перекрытия с опиранием 200 мм без него? Высота стены выше балок перекрытия на 0,5 м. потом мауэрлат. Где делать монолитный пояс с шпильками под мауэрлат-под балками или под мауэрлатом??? Делать два пояса неохота. Здравствуйте silver8848, позволю предположить, если у Вас перекрытие деревяное, тогда и пролёты между несущими станами небольшие +/- 5метров, ели так, тогда внешние несущие стены сильно незагружены, и толщины в 250 мм вполне достаточно для обеспечения несущей способности. По поводу монолытных ж/б столбов, то я бы Вам несоветовал их делать поскольку работать с кирпичной кладкой в Вашем случаи они будут поразному, и в местах стыка будут возникать трещины, еслы Вы конечно не будете завязывать их с монолытным поясом под перекрытием. Если да тогда у Вас будет несущий ж/б каркас с заполнением кирпичной кладкой, что требует грамотного расположения колон и расчёта сечения и армирокания ж/б каркаса. По поводу второй части вопроса относительно монолитного пояса, то без ж/б каркаса, я бы рекомендовал Вам делать его только под мауерлатом, по периметру всего дома. 1 Посилання на коментар Поділитися на інших сайтах More sharing options...
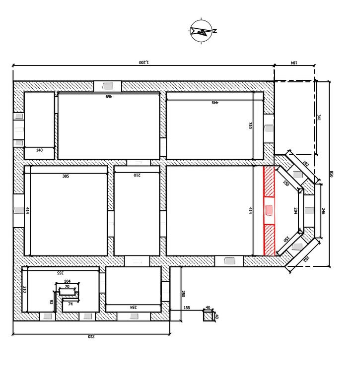
silver8848 Опубліковано: 12 березня 2012 Поділитись Опубліковано: 12 березня 2012 Здравствуйте silver8848, позволю предположить, если у Вас перекрытие деревяное...... По поводу второй части вопроса относительно монолитного пояса, то без ж/б каркаса, я бы рекомендовал Вам делать его только под мауерлатом, по периметру всего дома. Повторю еще раз вопрос подробнее. Монолитные сердечники (МС) 250*250 нужны, так как несущая стена всего 250 мм, сейсмозона 6(7) баллов, г. Черновцы. МС завязаны с фундаментом и поясом. Пролет между стенами 4 м, балка 100*200 мм. Но "мой" конструктор заложил монолитный пояс под балками перекрытия, а под мауэрлатом нет, при этом стропильную систему предложил распорную. От монолитного пояса до мауэрлата по высоте получается 600 мм, боюсь, что стропила выдавят стену с мауэрлатом наружу, а шпильки для мауэрлата вообще погнет как спички. Вот я и хочу перенести пояс из под балок перекрытия под мауэрлат. Обеспечить жесткость конструкции: мауэрлат-распорная стропильная система. Связать МС с фундаментом и поясом. До монолитно-каркасной конструкции не дотягивает, там должны быть колоны 400*400 мм, у меня только 250*250мм. Грамотно будет ложить деревянные балки перекрытия прямо на кирпичные стены (опирание на стены 200 мм) без дополнительных упрочняющих мероприятий???? Добавлю пару сканов. Посилання на коментар Поділитися на інших сайтах More sharing options...
silver8848 Опубліковано: 12 березня 2012 Поділитись Опубліковано: 12 березня 2012 повторю картинки Посилання на коментар Поділитися на інших сайтах More sharing options...
Владимир Донецк Опубліковано: 12 березня 2012 Поділитись Опубліковано: 12 березня 2012 Александр Ш, Вопрос может уже обсуждался если да. Дайте ссылку. Нет. Может поможет другим. Что дешевле с сохранение теплотехнических и конструкционных параметров плоская крыша или скатная крыша. Не рассматривая в скатной материал шифер черепица еврорубероид и так далее. Посилання на коментар Поділитися на інших сайтах More sharing options...
ahomin Опубліковано: 12 березня 2012 Поділитись Опубліковано: 12 березня 2012 Александр Ш, а моє запитання було недостойним відповіді? Посилання на коментар Поділитися на інших сайтах More sharing options...
Александр Ш Опубліковано: 14 березня 2012 Автор Поділитись Опубліковано: 14 березня 2012 повторю картинки Здравствуйте silver8848. При наличии чертежей мы ужэ можем говорить на одном языке У Вас колоны действительно связаны горизонтальными балками, что составляет некий каркас. Второй пояс под балки перекрытия выполняет несовсем понятную для меня функцию, если это для местного продавливания то там достаточно и кирпичной кладки. Так что я бы Вам советовал поднять пояс из под балок перекрытия под мауерлат. Добавлено через 9 минут Александр Ш, а моє запитання було недостойним відповіді? Здравствуйте ahomin К сожалению по даной информации любой уважающий себя специалист достойного ответа не даст, так как в условиях реконструкции ситуалию нужно оценивать только на площадке, и примерно окончательное решение можно сказать только после обследования здания, и даже после этого будут вносится коректировки после начала работ. Так что мой Вам совет пригласите специалистов пускай сделают обследования и после этого дадут рекомендации. 2 Посилання на коментар Поділитися на інших сайтах More sharing options...
Vlana Опубліковано: 24 березня 2012 Поділитись Опубліковано: 24 березня 2012 Доброго времени суток! Планируем реконструкцию дома и достройку мансарды.Хотим сделать эркер и залить общий армопояс Дом кирпичный,высота потолков 3м. Подскажите,реально ли сделать проем в наружной стене и расширить гостинную.Красным указана существующая стена. Вот наброски того,что хотелось бы получить в итоге. Под старым домом фундамент бутовый - глубина 1,2м, думаем укреплять. Эркер из газоблоков,стены мансарды поднимаем на 1,2м-1,4м. Нужен совет для того,чтобы знать в каком направлении дальше двигаться. Посилання на коментар Поділитися на інших сайтах More sharing options...
Владимир Донецк Опубліковано: 25 березня 2012 Поділитись Опубліковано: 25 березня 2012 Доброго времени суток! Планируем реконструкцию дома и достройку мансарды.Хотим сделать эркер и залить общий армопояс [ATTACH]174474[/ATTACH] Дом кирпичный,высота потолков 3м. Подскажите,реально ли сделать проем в наружной стене и расширить гостинную.Красным указана существующая стена. Вот наброски того,что хотелось бы получить в итоге. [ATTACH]174475[/ATTACH] [ATTACH]174476[/ATTACH] Под старым домом фундамент бутовый - глубина 1,2м, думаем укреплять. Эркер из газоблоков,стены мансарды поднимаем на 1,2м-1,4м. Нужен совет для того,чтобы знать в каком направлении дальше двигаться. В идеале. Разбираете кладку стены на ширину будущего проема плюс по 20 см с каждой стороны. На уровень 2,8-2,6 метра. Закладываете арматурный каркас. Желательно 16 мм арматура. Ставите опалубку и заливаете бетоном. После застывания перемычки. Вырезаете стену на нужную ширину оставляя под юалкой по 200 мм стен с каждой стороны. Что до стен масарды. 1,4 метра это не удобно. удобно 1,8-2,0 метра и сразу же стропильная система. Все изложенное не более чем моем мнение. Решать вам.:beer::beer:: 1 Посилання на коментар Поділитися на інших сайтах More sharing options...
Privet Опубліковано: 31 березня 2012 Поділитись Опубліковано: 31 березня 2012 Уважаемые конструктора, есть вопрос по фундаменту. www.stroimdom.com.ua/forum/showthread.php?p=1509204#post1509204 И вопрос по ДБН. www.stroimdom.com.ua/forum/showthread.php?t=93139 Если не трудно, отпишите в тех темах. Посилання на коментар Поділитися на інших сайтах More sharing options...
kaniv.info Опубліковано: 16 квітня 2012 Поділитись Опубліковано: 16 квітня 2012 По строительным нормам для малоэтажного строительства - для грунтов с близким уровнем грунтовых вод - подскажите !? www.stroimdom.com.ua/forum/showpost.php?p=1539100&postcount=3 Посилання на коментар Поділитися на інших сайтах More sharing options...
silver8848 Опубліковано: 17 квітня 2012 Поділитись Опубліковано: 17 квітня 2012 Добрый день! Подскажите как правильно крепить деревянные балки перекрытия к несущим стенам (перекрытие мансарды). Стены кирпичные, балки 100*200 мм. Посилання на коментар Поділитися на інших сайтах More sharing options...
Tarras Опубліковано: 18 квітня 2012 Поділитись Опубліковано: 18 квітня 2012 Прошу вибачення у колеги "Александр Ш" що вліз не в свою пісочницю! Просто питання висвітилось і у моїй аналогічній вітці Добрый день! Подскажите как правильно крепить деревянные балки перекрытия к несущим стенам (перекрытие мансарды). Стены кирпичные, балки 100*200 мм. Добрий день. Як варіант: Також потрібно їх зєднувати скобою на внутрішніх стінах, там де вони пересікаються. В місцях примикання балки до балки, рекомендую викоритовувати цвяхові пластини, вони мають непогану несучу здатність: 1 Посилання на коментар Поділитися на інших сайтах More sharing options...
sh7 Опубліковано: 26 травня 2012 Поділитись Опубліковано: 26 травня 2012 Уважаемый Александр, Посоветуйте как правильно залить фундамент для террасы. В доме есть внутренний угол одна стена 3.90, вторая 3.25. Террасу планируем разместить в этом углу размеры 3.90*4.15. Хотим поднять уровень террасы до уровня пола в доме, это где-то 0.5 метра до земли. Фундамент дома залит в 2008 году. Но прошлым летом прорыли траншею для воды, которая проходит с внутренего угла террасы до внешнего. На месте траншеи грунт просел и боюсь, что просядет еще. Грунт - чернозем переходящий в суглинок. Заранее благодарю, Посилання на коментар Поділитися на інших сайтах More sharing options...
Al_Capone Опубліковано: 1 червня 2012 Поділитись Опубліковано: 1 червня 2012 Александр, здравствуйте. Нуждаюсь в Вашем совете www.stroimdom.com.ua/forum/showthread.php?t=98962 заранее спасибо . Посилання на коментар Поділитися на інших сайтах More sharing options...
sagitron Опубліковано: 10 червня 2012 Поділитись Опубліковано: 10 червня 2012 Дом планируется из УШП, а вход в дом там где вынесены 2 колоны(застекленный тамбур) ввиду высоких концентрированных нагрузок будет установлен на заглубленный фундамент, вопрос не сместиться (треснет) в дальнейшем уровень 2 этажа. Посилання на коментар Поділитися на інших сайтах More sharing options...
AlexDn Опубліковано: 10 червня 2012 Поділитись Опубліковано: 10 червня 2012 Интересно, этот пискун АлександрШ практикой когда нибудь сам занимался..? Посилання на коментар Поділитися на інших сайтах More sharing options...
Tarras Опубліковано: 11 червня 2012 Поділитись Опубліковано: 11 червня 2012 Уважаемый Александр, Посоветуйте как правильно залить фундамент для террасы. В доме есть внутренний угол одна стена 3.90, вторая 3.25. Террасу планируем разместить в этом углу размеры 3.90*4.15. Хотим поднять уровень террасы до уровня пола в доме, это где-то 0.5 метра до земли. Фундамент дома залит в 2008 году. Но прошлым летом прорыли траншею для воды, которая проходит с внутренего угла террасы до внешнего. На месте траншеи грунт просел и боюсь, что просядет еще. Грунт - чернозем переходящий в суглинок. Заранее благодарю, Добрий день, відповім замість колеги. У Вашому випадку можна виконати терасу по технології ТИСЭ Можна по периметру тераси поставити палі тисе, а по них влаштувати ростверк висотою 300мм. і шириною 250-300мм. Заармуйте його 4-ма стержнями 12-ї арматури і хомути зробіть з арматурид.6мм з кроком 200-300мм. Потім засипте все піском з пошаровою трамбовкою і по піску виконайте армовану стяжку товщиною 120-150мм. Піском Ви можете регулювати висоту рівня підлоги. Моя аналогічна вітка. Добавлено через 4 минуты Дом планируется из УШП, а вход в дом там где вынесены 2 колоны(застекленный тамбур) ввиду высоких концентрированных нагрузок будет установлен на заглубленный фундамент, вопрос не сместиться (треснет) в дальнейшем уровень 2 этажа. На мою думку, дану інформацію тільки розрахунок покаже. Можна звичайно перестрахуватись, і виконати уширення підошви заглибленого фундаменту, або привязати його до плити(УШП) 1 Посилання на коментар Поділитися на інших сайтах More sharing options...
Александр Ш Опубліковано: 12 червня 2012 Автор Поділитись Опубліковано: 12 червня 2012 (змінено) Интересно, этот пискун АлександрШ практикой когда нибудь сам занимался..? Проектирование и стороительство производственых предприятий, с запуском и наладкой, проектирование и сопровождение строительства жилых зданий высотой до 24-х этажей, офысных центров и торговых зданий площядью от 2 до 10 тыс кв м, индивидуальное строительство до 5-ти обектов в сезон, и на последок строительстов собственного дома, этого достаточно или ещё мало будет? Или всё это пыль по сравнению с вершиной строительного мастерстава, ПРОДАЖЕЙ ВАГОНКИ? р.s. нестоит неуважительно высказыватся о незнакомых людях, иначе можна оказатся в таком де...ме что потом вовек неотмоешся. Змінено 12 червня 2012 користувачем Александр Ш 3 Посилання на коментар Поділитися на інших сайтах More sharing options...
roma556 Опубліковано: 12 червня 2012 Поділитись Опубліковано: 12 червня 2012 Здравствуйте, ответьте пожалуйста мне на такой вопрос : какую нагрузку может выдержать двутавровая балка №30 длиной 6 м. в жилом помещении при условии что весь груз будет находится посредине? Посилання на коментар Поділитися на інших сайтах More sharing options...
Александр Ш Опубліковано: 13 червня 2012 Автор Поділитись Опубліковано: 13 червня 2012 Здравствуйте, ответьте пожалуйста мне на такой вопрос : какую нагрузку может выдержать двутавровая балка №30 длиной 6 м. в жилом помещении при условии что весь груз будет находится посредине? Если балка шарнирно опиранется на опоры и у неё нет второстепеных балок которые раскрепляют её, то такая балка при нагрузке 3т приложеной к центру по прочности будет использоватся на 45% а по местрой устойчивости на 94%, а если есть раскрепления, хотябы в одном месте её пересекает второстепенная балка, топри нагрузке 6т приложеной к центру балки по прочности она будет использоватся на 83% а по местрой устойчивости на 60%. При проценте использования более 100% идёт разрушение. Посилання на коментар Поділитися на інших сайтах More sharing options...
roma556 Опубліковано: 13 червня 2012 Поділитись Опубліковано: 13 червня 2012 Александр Ш, Большое спасибо за ответ. Посилання на коментар Поділитися на інших сайтах More sharing options...
Рекомендовані повідомлення
Створіть акаунт або увійдіть у нього для коментування
Ви маєте бути користувачем, щоб залишити коментар
Створити акаунт
Зареєструйтеся для отримання акаунта. Це просто!
Зареєструвати акаунтУвійти
Вже зареєстровані? Увійдіть тут.
Увійти зараз