романо Опубліковано: 13 червня 2012 Поділитись Опубліковано: 13 червня 2012 Добрый день Александр Ш. нужна Ваша помощь вот в каком вопросе- имеется дом из белого кирпича, толщина стены 1.5 кирпича. Решили домик утеплить пенопластом 100 мм и немного облагородить облицовочным кирпичём, а цоколь выложить бутом. По окончании работ должна получится следующая конструкция бут 250 мм, и выше облицовочный кирпич 120мм+ пенопласт 100 мм. Для этого вокруг дома залили новый фудамент ленту толщиной 400 мм. После того как отстоялся фундамент, пригласил каменщика и мастера, который будет класть бут, посмотреть на фронт работы и тут между ними возникла дискуссия по поводу прочности новой облицовки. Каменщик ни в какую не хочет класть кирпич на бут мотивируя это тем что облицовочный кирпич с максимальной высотой в коньке 8.5 м "поплывёт" и никакие связки с уже существующей стеной не помогут, и вообще бут используется только как облицовка никакой нагрузки он не может нести, на все мои возражения что бут используется в фундаментах и вокруг много домов с цоколем из бута его не переубедили. Подскажите имеет ли право на существование такая кострукция? Если да, то стоит ли класть облицовочный кирпич с воздушной прослойкой или класть вплотную к пенопласту? Посилання на коментар Поділитися на інших сайтах More sharing options...
OldJek Опубліковано: 1 липня 2012 Поділитись Опубліковано: 1 липня 2012 Александр Ш, Добрый день! Выскажите, плз, Ваше мнение о таком материале для постройки дома beton.kovalska.com/ua/catalogs/block/ Посилання на коментар Поділитися на інших сайтах More sharing options...
Александр Ш Опубліковано: 3 липня 2012 Автор Поділитись Опубліковано: 3 липня 2012 (змінено) Добрый день Александр Ш. нужна Ваша помощь вот в каком вопросе- имеется дом из белого кирпича, толщина стены 1.5 кирпича. Решили домик утеплить пенопластом 100 мм и немного облагородить облицовочным кирпичём, а цоколь выложить бутом. По окончании работ должна получится следующая конструкция бут 250 мм, и выше облицовочный кирпич 120мм+ пенопласт 100 мм. Для этого вокруг дома залили новый фудамент ленту толщиной 400 мм. После того как отстоялся фундамент, пригласил каменщика и мастера, который будет класть бут, посмотреть на фронт работы и тут между ними возникла дискуссия по поводу прочности новой облицовки. Каменщик ни в какую не хочет класть кирпич на бут мотивируя это тем что облицовочный кирпич с максимальной высотой в коньке 8.5 м "поплывёт" и никакие связки с уже существующей стеной не помогут, и вообще бут используется только как облицовка никакой нагрузки он не может нести, на все мои возражения что бут используется в фундаментах и вокруг много домов с цоколем из бута его не переубедили. Подскажите имеет ли право на существование такая кострукция? Если да, то стоит ли класть облицовочный кирпич с воздушной прослойкой или класть вплотную к пенопласту? Добрый день романо бут действительно используется как несущий материал для устройства фундамента. Толщина в 250 мм бутовой кладки по несущей способности достаточно для устройства облицовки, единственное тот фундамент который Вы залили по периметру дома Вы завязали его с существующим фундаментом, и на какой отметке он залит? если Вы свяжете бутовую кладку с существующим фундаментом, выложите бут с максимальным заполнением бутом а не раствором то опасатся того что у Вас поплывёт облицовка оснований небудет, но нужно чтобы у мастера руки росли с правильного места . По поводу воздушной прослойки это на Ваше усмотрение, так как конструктивно оно никакой роли неиграет, единственное что так это рекомендации по утеплению пенопластом там если я не ошибаюсь этот материал нужно полностью закрывать от воздействия окружающей среды. Добавлено через 25 минут Александр Ш, Добрый день! Выскажите, плз, Ваше мнение о таком материале для постройки дома beton.kovalska.com/ua/catalogs/block/ Эти блоки масово применяют при строительстве многоэтажных домов с монолитным каркасом, по поводу применения их в индивидуальном строительстве то на моей памяти кажись был один обект, но сейчас точно не вспомню. По прочности для несущих стен предлагаются бетонные блоки, для ограждающих конструкций керамзитобетонные, по геометрии они на 95% идут в заявленых размерах, единственное при укладке нужно тщательно заделывать швы а укладываются они на клей. Но это всётаки это бетонные блоки, хотья по теплопроводности с утеплителем 100 мм ваты они удовлетворяют нормативным требованиям. Эти блоки идут как альтернатива кирпичу, также как газобетон и пенобетон. Лично моё мнение то это только керамический кирпич, а тут вам решать, этот вариан имеет право на жизнь как и любой другой. Так что решайте, если надумаете то могу помочь со скидкой на Ковальской, будет немного интереснее. Змінено 3 липня 2012 користувачем Александр Ш 1 Посилання на коментар Поділитися на інших сайтах More sharing options...
OldJek Опубліковано: 5 липня 2012 Поділитись Опубліковано: 5 липня 2012 Александр Ш, спасибо за информацию! Но, все же, интересует Ваше мнение. Эти блоки масово применяют при строительстве многоэтажных домов с монолитным каркасом, ... По прочности для несущих стен предлагаются бетонные блоки, для ограждающих конструкций керамзитобетонные, по геометрии они на 95% идут в заявленых размерах, единственное при укладке нужно тщательно заделывать швы а укладываются они на клей. Но это всётаки это бетонные блоки, хотья по теплопроводности с утеплителем 100 мм ваты они удовлетворяют нормативным требованиям. Толщина стены из этих блоков 250 мм, т.е. как в один кирпич. Но они с пустотами. Неужели стена будет значительно холоднее кирпичной? Про клей на сайте ничего не сказано, вроде как кладут на обычный раствор. Хочу построить сарай 4х8м с туалетом и душем, чтобы в начале (до строительства дома) в нем можно было временно жить. В последующем использовать для хранения инвентаря и мини мастерской. Будет ли выигрыш в цене строительства по сравнению с кирпичом? Посилання на коментар Поділитися на інших сайтах More sharing options...
haiku Опубліковано: 6 липня 2012 Поділитись Опубліковано: 6 липня 2012 Доброго всем времени суток. Вот наткнулся в просторах интернета на этот форум, и поскольку сам являюсь застройщиком (строим себе дом) и конструктором (работаю главным конструктором проектов в пректном подразделении одной из крупнейших строительных компаний Украины), то решил помочь форумчанам советом, а если нужно то и делом, в решении наболевших вопросов в сфере строительства. Так что спрашивайте, буду рад помочь славному братству застройщиков. Что скажете, касаемо идеи использования стеклофибробетона, в качестве кровельной и стеновой самонесущей оболочки купольного коттеджа, фундаментной сендвич-плиты/по типу СИП панелей, разумеется с ребрами/доп армированием материал безусловно довольно дорогой, но выдающийся все-ж вы КОНСТРУКТОР - "ВНУШАЕТЪ" доверия Посилання на коментар Поділитися на інших сайтах More sharing options...
silver8848 Опубліковано: 22 липня 2012 Поділитись Опубліковано: 22 липня 2012 Александр добрый день! Оцените стропилку и выберите лучший для меня вариант. Дом одноэтажый, стены кирпичные из полуторного кирпича (250 мм внутренняя несущая-130 мм утеплитель-120 мм наружная стена), планирую в будущем оборудовать жилую мансарду, поэтому хотелось бы иметь открытое пространство, без опор под коньковый прогон с наслонной стропильной системой. Поэтому отказался от нее. Предлагаю висячую систему, и есть ряд вопросов: 1. Общая схема стропилки выдержит эксплуатационные нагрузки (ветровая нагрузка 50-60 кг, снеговая 250-300 кг.)? 2. Сечения пиломатериалов выдержат нагрузки (90% уже закуплено)? 3. Затяжка (ригель) не слишком ли высоко находится? 4. Для обеспечения свеса крыши за фронтон 750 мм планирую вынести мауэрлат, боковые прогоны, стропила и затяжку за наружную стену. 5. Диаметр шпилек М16 и шаг для крепления мауэрлата 1м достаточно/больше/меньше? 6. Для крепления кобылок на стропило гвоздей 150-ки хватает? Шаг, количество? Нахлест кобылки и стропила 650 мм достаточно для вылета 1300 мм? 7. Мауэрлат ложить сразу на гидроизоляцию монолитного пояса или на шпильки одеть доску 30 мм и потом мауэрлат обеспечив под мауэрлатом зазор 30 мм для вентиляции? Можно рулонную гидроизоляцию заменить на обмазочную (например битумную мастику) 8. Какой вариант предпочтительнее применить Рис.1 или Рис.2. отличие в том, что в рис.1 скользящая схема опоры стропила, а в рис.2 с опорным бруском или врезным зубом. Соответственно безраспорная и распорная схема 9. Затяжка (ригель) накладывается на стропило или врезается на 1/4 толщины? 10. Что предпочтительнее на рис.3 металлическая пластина или деревянная доска (хватит толщины 30 мм или нужно 50 мм)? 11. Рис.3.1 или 3.2 в комбинации с рис.1 или рис. 2 Извините за такое количество вопросов, надеюсь на развернутый ответ по пунктам. Спасибо. Посилання на коментар Поділитися на інших сайтах More sharing options...
IWannaTalk Опубліковано: 25 серпня 2012 Поділитись Опубліковано: 25 серпня 2012 доброго дня, Олександре! чи не могли б Ви, за наявності вільної хвилинки, додати трохи критики стосовно ось цього розрахунку фундамента? www.stroimdom.com.ua/forum/showthread.php?t=106596 Посилання на коментар Поділитися на інших сайтах More sharing options...
AnnaMaltseva Опубліковано: 12 вересня 2012 Поділитись Опубліковано: 12 вересня 2012 Помогите!!! Просел фундамент. Кратко: купили дом 2 года назад, в начале августа демонтировали старую крышу, деревянное перекрытие оставили и по нему смонтировали каркас под мансарду, крыша двускатная ломаная, покрываем МЧ. Отмостки нет. Сегодня обнаружили трещины в фундаменте (на цоколе): с одной стороны 5мм, с другой - 2мм, со стороны одного фронтона - вертикальная трещина посредине 1-2мм. Дом на склоне. Цоколь выступает со стороны верхнего фронтона на 300мм, а со стороны фронтона, где теперь трещина - на 700мм (я так понимаю, эта стена и просела). Сразу извиняюсь за дилетантство. Дом, стройка-перестройка все это для нас впервые. Ребята, которые монтировали нам крышу, кстати, сбежали, не закончив монтаж МЧ. Кроем теперь сами. Подскажите, что нужно предпринять, как скоро и справимся ли мы своими силами? Помогите, пожалуйста, советами!!! Посилання на коментар Поділитися на інших сайтах More sharing options...
Al_Capone Опубліковано: 14 вересня 2012 Поділитись Опубліковано: 14 вересня 2012 Помогите!!! Просел фундамент. Сколько лет дому?, я так понимаю, что он не новый. Тогда не понятно почему фундамент просел именно сейчас. Существенной нагрузки на него не добавилось. Может Вы не заметили трещины с самого начала? Посилання на коментар Поділитися на інших сайтах More sharing options...
AnnaMaltseva Опубліковано: 19 вересня 2012 Поділитись Опубліковано: 19 вересня 2012 Сколько лет дому?, я так понимаю, что он не новый. Тогда не понятно почему фундамент просел именно сейчас. Существенной нагрузки на него не добавилось. Может Вы не заметили трещины с самого начала? Дому уже более 10 лет, но в нем никто не жил. Трещины появились после замены крыши. Отмостки нет, земля влажная вокруг фундамента. Водосточку, дренаж, отмостку будем делать. Но сначала нужно укрепить фундамент. Только как?... Посилання на коментар Поділитися на інших сайтах More sharing options...
AnnaMaltseva Опубліковано: 24 вересня 2012 Поділитись Опубліковано: 24 вересня 2012 Сколько лет дому?, я так понимаю, что он не новый. Тогда не понятно почему фундамент просел именно сейчас. Существенной нагрузки на него не добавилось. Может Вы не заметили трещины с самого начала? Добрый день. Спасибо за внимание к моему вопросу. Трещин до надстройки мансарды не было. Поставили маячки из бумаги, две недели стоят - без подвижек. По поводу фундамента добавлю: когда мы купили дом (8*12), его часть (8*3,5) была отведена под веранду, на общем фундаменте; мы достроили стены из шлакоблока (буквой П). НО! веранда была накрыта старым шифером и эту пристройку изнутри заливало осадками 2 года, а, поскольку дом на склоне и изначально фундамент был сделан не правильно, не по горизонту (это мы только теперь обнаружили), вода стояла у стены, фундамент постоянно подмокал. Это может быть причиной усадки или дело все-таки в мансарде? Когда начинали достройку, по незнанию совершили несколько ошибок: 1.стену из шлакоблока (буквой П) не связали со стенами дома и 2. не изолировали стену от фундамента. Отмостки нет, будем делать, как и водосточку. Прокомментируйте, пожалуйста, подскажите: 1.что делать с самими трещинами, 2.как укрепить фундамент, 3.когда делать отмостку и утеплять ли фундамент, 5. как связать стены пристройки со стенами дома....... Добавлю еще: Собираемся делать веранду на столбчатом фундаменте со стороны той стены, что проседает. Могут ли столбы под веранду возле стены выполнить роль опор при укреплении фундамента? Большое спасибо заранее за внимание и любой совет. Посилання на коментар Поділитися на інших сайтах More sharing options...
Al_Capone Опубліковано: 25 вересня 2012 Поділитись Опубліковано: 25 вересня 2012 Это может быть причиной усадки или дело все-таки в мансарде? Основная причина кроется в фундаменте, непонятно сколько там арматуры, как она положена или есть она там вообще. Судя по тому, что трещат углы, они заармированы неправильно. Возможно еще и низ фундамента залит не по горизонтали. Грамотно отлитый фундамент не дал бы трещин из-за усадки. Хотя если бы Вы защитили фундамент отмосткой, если бы крыша не текла, то он и в этом случае мог бы не дать трещин. Мансарда вряд ли оказала такое давление, что повлекло появление трещин. Основная причина - усадка из-за наличия воды и возможно из-за того что 10 лет одна часть была нагружена, а вторая нет, и когда возвели стены на веранде - появились трещины. 1.что делать с самими трещинами, Пока понаблюдать до весны. 3.когда делать отмостку и утеплять ли фундамент Омостку чем раньше, тем лучше. Утеплять не обязательно, все зависит от конструкции пола. 5. как связать стены пристройки со стенами дома.. Даже не знаю, разбирать как-то не хочется, а с трещиной смотрится не очень. Можно загерметизировать шов и обшить сайдингом. Посилання на коментар Поділитися на інших сайтах More sharing options...
Максімич Опубліковано: 29 вересня 2012 Поділитись Опубліковано: 29 вересня 2012 Шановний Олександре, Будь-ласка, підскажіть, чи можна на такому грунті (прикріплений файл) робити УШП? Яка мінімальна глибина має бути для УШП (чомусь не хочеться копати котлован до точки промерзання 1.2 м)? Будинок має бути 2-поверховий (не каркасний). Посилання на коментар Поділитися на інших сайтах More sharing options...
Строительница Опубліковано: 5 жовтня 2012 Поділитись Опубліковано: 5 жовтня 2012 добрый день, у нас в ходе стройки воздникла проблемка. есть еркер (там будет лестница на мансардный этаж). стену на эркере сделали дугообразной. окно на 2 этажа. при облицовке дома воздник вопрос как сделать перекрытие над окном для облицовки. стены трехслойные: газобетон-кам.вата-клинкер. Посилання на коментар Поділитися на інших сайтах More sharing options...
mila_bog@list.ru Опубліковано: 8 жовтня 2012 Поділитись Опубліковано: 8 жовтня 2012 Добрый вечер. Интересует совет конструктора, требуется ли ригель при перекрытии дома плитами 8 метровой длины? Строится думаем по проекту www.archon.com.ua/proekt_doma/WISTERIE/m4e26aaa2a0c7d?cat_id=1 , только без гаража, комнаты на мансарде и уменьшив ванну наверху. если можете предложите варианты перекрытия. Дом планируем строить из газобетона шириной 375 или 400. Посилання на коментар Поділитися на інших сайтах More sharing options...
MIRAA Опубліковано: 11 жовтня 2012 Поділитись Опубліковано: 11 жовтня 2012 Простите , что к вам обращаюся )) Вопрос следующий необходимо расположить стенку из ракушняка М25 в два камня (0.8 м ) на фундаменте из ФБС 0.4 м , межэтажные перекрытия плиты ПК . Крыша металлочерепица . Для расширения основания под стенку планируется отлить армопояс шириной 0.8 м , перед заливкой армопояса под нависающей частью армапояса планируется возвести подпорные столбы в 1.5 камня. Вопрос через какое расстояние ставить столбы ? Эскизы прилагаются: В своих расчетах руководствовался книгой Масловский АВ - "Таблицы для определения несущей способности кирпичных стен и столбов" , но все же хочется уточнить у специалиста. Посилання на коментар Поділитися на інших сайтах More sharing options...
alekzendr Опубліковано: 24 листопада 2012 Поділитись Опубліковано: 24 листопада 2012 Александр, добрый вечер. Помогите пожалуйста советом в этой теме www.stroimdom.com.ua/forum/showthread.php?t=114696 Благодарю. Посилання на коментар Поділитися на інших сайтах More sharing options...
Капитан Смоллетт Опубліковано: 25 грудня 2012 Поділитись Опубліковано: 25 грудня 2012 Добрый день, Александр! нужен совет, а также профессиональные услуги опытного конструктора. Планируется перестройка дачного домика, с превращением оного в полноценный жилой. "Челлендж" проекта заключается в том, чтобы расширить существующий фундамент, достроить второй этаж. Есть эскизы плана реконструкции, поэтажные планы, эскизы фасадов будущего дома. Проблемы: отходящий угол дома (с нюансами), который нужно либо перекладывать, либо укреплять - должен решить профессионал. Очень боюсь отходящих пристроек и т п, поэтому без одобрения инженера строиться не буду. Прошу Вас ответить в ЛС, интересно ли Вам заниматься реконструкциями. Если да - хотелось бы лично встретиться и обсудить детали (возможности, сроки, уровень цен) Спасибо Посилання на коментар Поділитися на інших сайтах More sharing options...
dafi Опубліковано: 4 січня 2013 Поділитись Опубліковано: 4 січня 2013 Добрый день. Весной планирую начать стройку. Стот вопрос с балконом Вот хочу, чтоб не было опор до уровня земли. Возможно ли упоры закрепить как-то в газобеонную стенку? Размеры балкона 3000 х 1500 (1300) Посилання на коментар Поділитися на інших сайтах More sharing options...
sagitron Опубліковано: 26 квітня 2013 Поділитись Опубліковано: 26 квітня 2013 Вопрос, можно отливать ж/б 6метровые колоны (6шт 300*300) с горизонтальными ж/б балками 300*300 перевязанные на отметке 3 и 6 м, одним заходом, нижняя часть будет предельно нагружена столбом бетона , не поразрывало бы, опалубку? В горизонте пролеты по 17м. Технологию отливки отработал на бумаге. Посилання на коментар Поділитися на інших сайтах More sharing options...
kostiantun88 Опубліковано: 27 квітня 2013 Поділитись Опубліковано: 27 квітня 2013 Нужна критика! Дом 2-х этажный, 9х11 Посилання на коментар Поділитися на інших сайтах More sharing options...
talker Опубліковано: 8 травня 2013 Поділитись Опубліковано: 8 травня 2013 Нужна критика! Дом 2-х этажный, 9х11 Не хватает сеток вертикальных в части фундамента высотой 850 мм. Подбетонка пола толщиной 50 мм маловата. 100 мм как по мне в самый раз. Добавлено через 7 минут Вопрос, можно отливать ж/б 6метровые колоны (6шт 300*300) с горизонтальными ж/б балками 300*300 перевязанные на отметке 3 и 6 м, одним заходом, нижняя часть будет предельно нагружена столбом бетона , не поразрывало бы, опалубку? В горизонте пролеты по 17м. Технологию отливки отработал на бумаге. Нет. Нельзя. В процессе заливки необходимо производить вибрирование свежеуложенной бетонной смеси. Визуально контролировать заполнение опалубки и качества вибрирования. Каким образом вы будете это делать в балках на отм. 3 метра? Каким образом вы подадите смесь в колонну высотой 6 метров и проконтролируете ее качественное заполнение. У вас по длине колонны примыкание 2х балок по высоте. А значит, концентрация арматуры в этих местах. Смесь может и не пролезть. Возьмете подвижность П4? Можете получить расслоение пока будет падать с такой высоты. А провибрировать как всю эту высоту? Поставить вибратор на арматурный каркас или обалубку? Расслоение смеси гарантировано. Посилання на коментар Поділитися на інших сайтах More sharing options...
natisk Опубліковано: 15 травня 2013 Поділитись Опубліковано: 15 травня 2013 Добрый день подскажите как правильно сделать ленточный фундамент под пеноблок Посилання на коментар Поділитися на інших сайтах More sharing options...
talker Опубліковано: 15 травня 2013 Поділитись Опубліковано: 15 травня 2013 Добрый день подскажите как правильно сделать ленточный фундамент под пеноблок Пеноблок или газоблок. Если все же пеноблок, то первый мой совет это отказаться от его использования. Лучше газоблок. Теперь по существу вопроса. Ленточный, как впрочем и любой фундамент необходимо рассчитывать. В основе расчета лежит нахождение равновесия между действующими нагрузками от конструкций здания и возможностями основания на которое опирается фундамент. Если со зданием можно разобраться, то с основанием без геологии разобраться достоверно не представляется возможным. Грунты всегда разные и характеристики их определяются только опытным путем. По этому, посоветовать что-то внятное на ваш вопрос я не могу. Надо больше информации. Планы здания, перекрытия и пр. конструкции, геология. Посилання на коментар Поділитися на інших сайтах More sharing options...
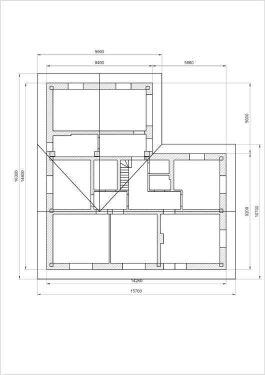
natisk Опубліковано: 15 травня 2013 Поділитись Опубліковано: 15 травня 2013 Спасибо за развернутый ответ, от газоблока отговаривают специалисты по баням (натягивает влагу), советуют либо каркасник либо пенобетон. примерный план во вложении, перекрытие балки, высота потолка 3 м первого этажа, 2,50 второго, перекрытие балки. Посилання на коментар Поділитися на інших сайтах More sharing options...
Рекомендовані повідомлення
Створіть акаунт або увійдіть у нього для коментування
Ви маєте бути користувачем, щоб залишити коментар
Створити акаунт
Зареєструйтеся для отримання акаунта. Це просто!
Зареєструвати акаунтУвійти
Вже зареєстровані? Увійдіть тут.
Увійти зараз