grushabrat Опубліковано: 18 лютого 2013 Поділитись Опубліковано: 18 лютого 2013 www.galeriadomow.pl/projekty-domow/projekt-dom-przy-przyjemnej-2.html#box1 3 Посилання на коментар Поділитися на інших сайтах More sharing options...
akvilonpro Опубліковано: 22 лютого 2013 Поділитись Опубліковано: 22 лютого 2013 Вот от нас несколько популярных: akvilonpro.com.ua/ua/docs/proektu-domov/do-100-m2/proekt-kotedzha-klen-2-82-m2.html akvilonpro.com.ua/ua/docs/proektu-domov/100-150-m2/proekt-kotedzha-apelsin-122-m2.html akvilonpro.com.ua/ua/docs/proektu-domov/150-200-m2/proekt-kotedzha-malva-178-m2.html 1 Посилання на коментар Поділитися на інших сайтах More sharing options...
vickov Опубліковано: 22 лютого 2013 Поділитись Опубліковано: 22 лютого 2013 Вот от нас несколько популярных: akvilonpro.com.ua/ua/docs/proektu-domov/do-100-m2/proekt-kotedzha-klen-2-82-m2.html Если в этом проекте повернуть планировку на 90 градусов и отзеркалить, то моя планировка поинтересней при похожих размерах. Причем, кому не нужно 3 спальни, может на месте средней спальни сделать гардеробную, а спальни увеличить. Посилання на коментар Поділитися на інших сайтах More sharing options...
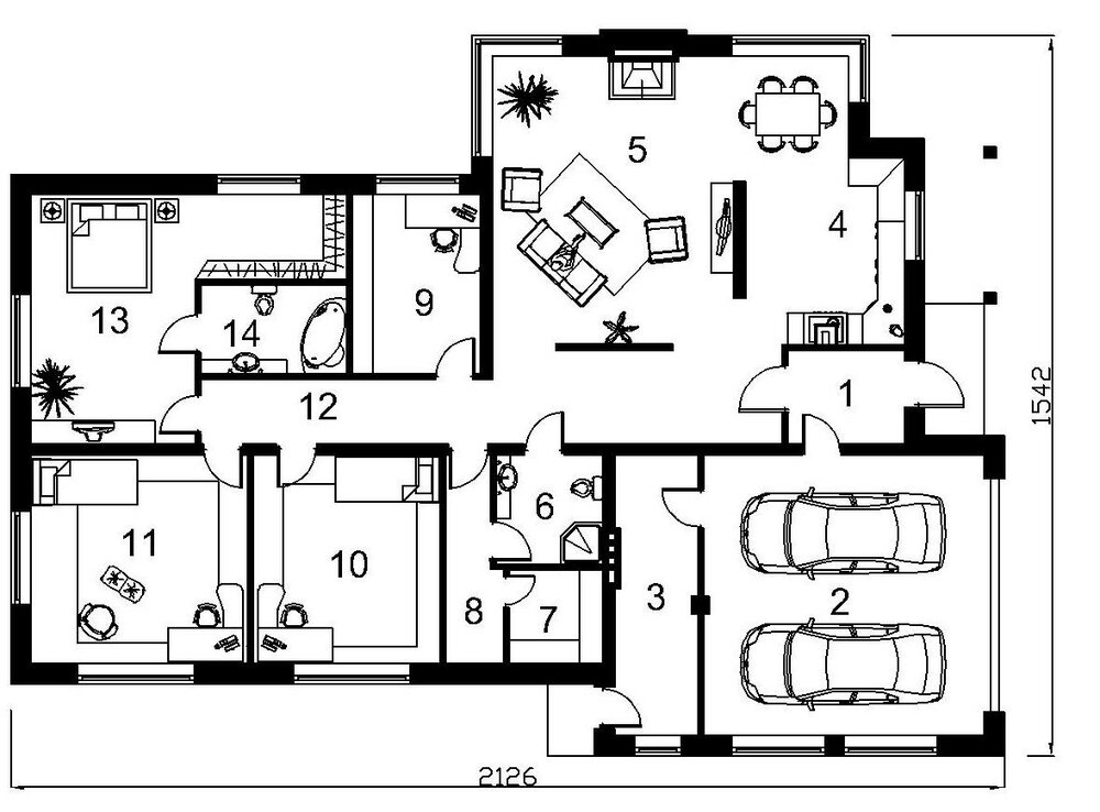
Федорович Опубліковано: 22 лютого 2013 Поділитись Опубліковано: 22 лютого 2013 Если в этом проекте повернуть планировку на 90 градусов и отзеркалить, то моя планировка поинтересней при похожих размерах. Причем, кому не нужно 3 спальни, может на месте средней спальни сделать гардеробную, а спальни увеличить. Действительно неплохая планировочка.А справа от входа это гардеробная после котельной? Посилання на коментар Поділитися на інших сайтах More sharing options...
ZIZU Опубліковано: 22 лютого 2013 Поділитись Опубліковано: 22 лютого 2013 Действительно неплохая планировочка.А справа от входа это гардеробная после котельной? на кой в гардеробной окно ? Посилання на коментар Поділитися на інших сайтах More sharing options...
Федорович Опубліковано: 23 лютого 2013 Поділитись Опубліковано: 23 лютого 2013 на кой в гардеробной окно ? А где ты видишь справа от входа после котельной (как и было написано) в помещении окно? Посилання на коментар Поділитися на інших сайтах More sharing options...
vickov Опубліковано: 23 лютого 2013 Поділитись Опубліковано: 23 лютого 2013 Действительно неплохая планировочка.А справа от входа это гардеробная после котельной? Ванная комната. В ней окно, чтобы было светлее. А вот, можно ли его делать открывающимся в помещение котельной, не знаю. Посилання на коментар Поділитися на інших сайтах More sharing options...
Drosselbeere Опубліковано: 23 лютого 2013 Поділитись Опубліковано: 23 лютого 2013 А вот, можно ли его делать открывающимся в помещение котельной, не знаю. должно быть открывающимся, а точнее топочная с газовым котлом должна быть оборудована окном определенной площад. остекления и наличие форточки Посилання на коментар Поділитися на інших сайтах More sharing options...
ZIZU Опубліковано: 23 лютого 2013 Поділитись Опубліковано: 23 лютого 2013 А где ты видишь справа от входа после котельной (как и было написано) в помещении окно? я так понял по средине это гардеробная а не ванная комната... если я правильно умею читать чертеж ? - то там окно в котельную... Посилання на коментар Поділитися на інших сайтах More sharing options...
vickov Опубліковано: 23 лютого 2013 Поділитись Опубліковано: 23 лютого 2013 должно быть открывающимся, а точнее топочная с газовым котлом должна быть оборудована окном определенной площад. остекления и наличие форточки В котельной есть окно, которое открывается. И в ванной окно в котельную. Но можно ли делать его открывающимся, не знаю. Добавлено через 3 минуты на кой в гардеробной окно ? С котельной граничит ванная комната. Гардеробная на планировке может быть между двумя спальнями, но у меня это маленькая спальня. Посилання на коментар Поділитися на інших сайтах More sharing options...
Drosselbeere Опубліковано: 23 лютого 2013 Поділитись Опубліковано: 23 лютого 2013 И в ванной окно в котельную. не вижу смысла окна как такового, да и если газовый котел, то могут газовики не принять, но точно не скажу, так как эти ребята руководствуются своими собственными нормами ))) Посилання на коментар Поділитися на інших сайтах More sharing options...
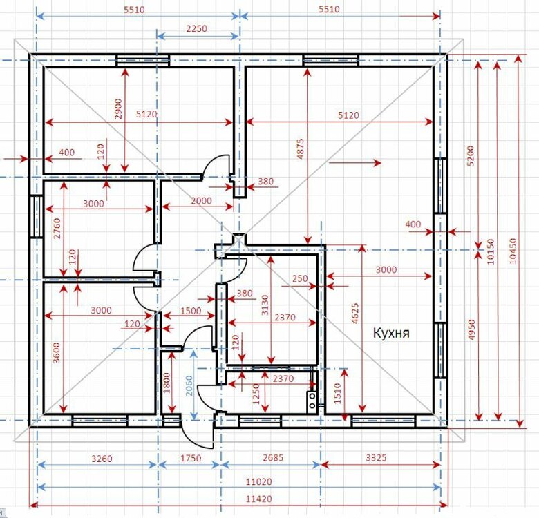
Кременчужанин.UA Опубліковано: 23 лютого 2013 Поділитись Опубліковано: 23 лютого 2013 Для себя родил вот такой вариант одноэтажного дома. Эркер смотрит на юго-восток. Посилання на коментар Поділитися на інших сайтах More sharing options...
Федорович Опубліковано: 23 лютого 2013 Поділитись Опубліковано: 23 лютого 2013 не вижу смысла окна как такового, да и если газовый котел, то могут газовики не принять, но точно не скажу, так как эти ребята руководствуются своими собственными нормами ))) Честно говоря я бы заложил это окошко (увиденное таки мною,просто даже не мог подумать зачем оно там,пардон) между ванной и котельной.Ничего страшного что освещение будет искусственное.Зато сэкономите на пространствах вдоль стен в двух помещениях.я бы конечно для себя поменял бы местами гардеробную с ванной даже невзирая на потери по газу и трубам.Но вообще проект нравится. Добавлено через 2 минуты я так понял по средине это гардеробная а не ванная комната... если я правильно умею читать чертеж ? - то там окно в котельную... Сори, окна в котельную просто не увидел. Посилання на коментар Поділитися на інших сайтах More sharing options...
vickov Опубліковано: 23 лютого 2013 Поділитись Опубліковано: 23 лютого 2013 Честно говоря я бы заложил это окошко (увиденное таки мною,просто даже не мог подумать зачем оно там,пардон) между ванной и котельной.Ничего страшного что освещение будет искусственное.Зато сэкономите на пространствах вдоль стен в двух помещениях.я бы конечно для себя поменял бы местами гардеробную с ванной даже невзирая на потери по газу и трубам.Но вообще проект нравится. Добавлено через 2 минуты Сори, окна в котельную просто не увидел. Окно в ванной останется. Глухое, или открывающееся, зависит от того, можно или нет... Возвожно, не окно, а несколько рядов стеклоблоков. Под окном, перпендикулярно стене будет горшок и ванная. Если впишется по размерам, то еще и биде - между ванной и унитазом. Так, что пространство на стене не очень интересует. Менять ванную и гардеробную у меня не получится, так как у меня будет не гардеробная, а маленькая спальня, которая, возможно, в будущем, станет гардеробной. Посилання на коментар Поділитися на інших сайтах More sharing options...
termOS Опубліковано: 6 березня 2013 Поділитись Опубліковано: 6 березня 2013 должно быть открывающимся, а точнее топочная с газовым котлом должна быть оборудована окном определенной площад. остекления и наличие форточки Требования к помещению (топочной), предназначенному для монтажа газовых котлов: Высота потолков — никак не ниже 2,5 м. Площадь — никак не менее 4 кв. м на один котел. Наружная дверь — шириной никак не менее 80 см. Окно естественного освещения (на каждые 10 куб. м здания — 0,3 кв. м окна). Отверстие для притока внешнего воздуха — никак не наименее 8 кв. см на 1 кВт номинальной мощности котла, либо 30 кв. см на 1 кВт — в случае притока воздуха внутри строения. ...никаких "СПЕЦ-ФОРТОЧЕК",в требованиях... Посилання на коментар Поділитися на інших сайтах More sharing options...
Drosselbeere Опубліковано: 6 березня 2013 Поділитись Опубліковано: 6 березня 2013 termOS, вы сами пишете о притоке воздуха, читайте внимательно Посилання на коментар Поділитися на інших сайтах More sharing options...
termOS Опубліковано: 6 березня 2013 Поділитись Опубліковано: 6 березня 2013 termOS, вы сами пишете о притоке воздуха, читайте внимательно ...приток воздуха в топочную-через форточку? СНБ 4.03.01-98 ( изменение №3) п.9.38 абз.1,3,4 Кухни и топочные должны иметь вытяжной вентиляционный канал. Для подачи воздуха на горение, а также для возмещения воздуха, удаляемого через вытяжной вентиляционный канал, необходимо обеспечить приток требуемого объема воздуха как за счет поступления наружного воздуха, так и за счет перетекания воздуха из жилых помещений данной квартиры. В кухнях и топочных в нижней части двери или стены, выходящей в смежное помещение, следует предусматривать отверстия с решеткой или зазор между дверью и полом живым сечением не менее 0,02м2. Посилання на коментар Поділитися на інших сайтах More sharing options...
Drosselbeere Опубліковано: 6 березня 2013 Поділитись Опубліковано: 6 березня 2013 termOS, что вы хотите доказать или опровергнуть? Чисто флуд разводите сами написали выдержки из СНиП и начинаете умничать. В помещении топочной необходим вытяжной канал, приток воздуха так же миним площадь окна, высота помещения, обьем помещения в зависимости от котла и тд - прчтите внимательно внимательно свой же пост, про принок наружного воздуха , а это открываемое окно или форточка... просто нет слов Посилання на коментар Поділитися на інших сайтах More sharing options...
termOS Опубліковано: 6 березня 2013 Поділитись Опубліковано: 6 березня 2013 про принок наружного воздуха , а это открываемое окно или форточка... просто нет слов ...если,...просто нет слов..,приведите пример из СНиП,о притоке воздуха в топочную,(...только)через открываемое окно или форточку!Тогда станет понятно-кто умничает! ...прочитал внимательно- внимательно свой пост,и не нашел -притока воздуха в топочную-через окно(форточку).. Посилання на коментар Поділитися на інших сайтах More sharing options...
Drosselbeere Опубліковано: 6 березня 2013 Поділитись Опубліковано: 6 березня 2013 termOS,специально для вас поднял ДБН, хотя это не моя специализация, но стараюсь знать некоторые вещи Посилання на коментар Поділитися на інших сайтах More sharing options...
Ольга В Опубліковано: 6 березня 2013 Поділитись Опубліковано: 6 березня 2013 termOS,специально для вас поднял ДБН, хотя это не моя специализация, но стараюсь знать некоторые вещи При всем уважении, полно старых квартир, где нет горячей воды и газовая колонка стоит в совмещенном санузле. И эти колонки ставились еще при советской власти. Посилання на коментар Поділитися на інших сайтах More sharing options...
Drosselbeere Опубліковано: 6 березня 2013 Поділитись Опубліковано: 6 березня 2013 Ольга В, как то вы не в тему, при царе вообще дровами топили. Вопрос стоял где в нормах написано, что не хватает? PS.я когда то обследовал квартиру так там посреди совмещенного санузла стоял здоровенный ТТ котел, так что не вижу нечего странного Посилання на коментар Поділитися на інших сайтах More sharing options...
eam Опубліковано: 7 березня 2013 Поділитись Опубліковано: 7 березня 2013 При всем уважении, полно старых квартир, где нет горячей воды и газовая колонка стоит в совмещенном санузле. И эти колонки ставились еще при советской власти. Все просто. К старым, эти нормы, естественно, не относятся. А вот новое построить не по нормам будет уже тяжелее. Это как с бытовым газом в многоэтажках. Сейчас есть старые панельки 12-ти и 16-ти этажные с бытовым газом. А вот по новым нормам бытовой газ в домах выше 10-ти этажей запрещен и поэтому в высоких новостроях его нету. Посилання на коментар Поділитися на інших сайтах More sharing options...
Федорович Опубліковано: 7 березня 2013 Поділитись Опубліковано: 7 березня 2013 Предлагаю вспомнить как называется тема,сюда вообще то люди заходят по другому поводу. 1 Посилання на коментар Поділитися на інших сайтах More sharing options...
Mitka Опубліковано: 14 березня 2013 Поділитись Опубліковано: 14 березня 2013 Понравился вот этот проект (очень специфическая планировка участка, идеально подходит): www.budnik.ua/catalog/proekti_domov/odnoetazhnyie_doma/proekt_doma_h-216/ Не подскажете, кто автор? Маловероятно, что это самостоятельная разработка конторы, на чьем сайте я его нашел. Я уже для себя много правок внёс, но хотелось бы услышать краткую (если в этой теме нельзя, создам отдельную) критику откровенно слабых мест. Посилання на коментар Поділитися на інших сайтах More sharing options...
Рекомендовані повідомлення
Створіть акаунт або увійдіть у нього для коментування
Ви маєте бути користувачем, щоб залишити коментар
Створити акаунт
Зареєструйтеся для отримання акаунта. Це просто!
Зареєструвати акаунтУвійти
Вже зареєстровані? Увійдіть тут.
Увійти зараз