КОРН Опубліковано: 23 березня 2011 Поділитись Опубліковано: 23 березня 2011 Итак, форумчане, в этом году я хочу построить дом, частично своими силами. Уже пару лет втихаря почитываю форум. Пока оформляются документы, хотелось бы определиться с проектом. Сейчас будет немного длинный опус что я уже надумал, а потом и посмеемся... Планируется пристроить вплотную к половине старого дома двухэтажную независимую пристройку 4х6.2 В помещении планируется сделать кухню+санузел на первом этаже, спальню+гардеробную на втором Грунты удачные - белый песок на глубине 20-30 см, старый сарай стоит без фундамента, дом на кирпичном, трещин пока нет, УГВ 1.8 м Собираюсь строить так: -из газоблока аерок 375 д400 без последующего утепления -фудамент+цоколь армированный монолит В15 П3 М200, высота 800-900 (500-600 под землю/300 цоколь), ширина 400, заливка миксером, арматура 12д по три прута внизу и вверху, поперечная и вертикальная (хомуты) из 6д - на цоколь и часть фундамента приклеить ЭППС на дисперсионную мастику - перекрытие деревянные 100х200 с шагом 750, лестница деревянная - крыша двухскатная 30-40 гр, металлочерепица, наслонные стропила - первый этаж пол по грунту с водяным отоплением - утепление крыши либо по чердачному перекрытию, либо скаты - городской канализации нет, буду зарывать пластиковую емкость 3000л, рядом колодец, - есть городская вода, электричество, газ надо будет тянуть от старого дома - поверх каждого этажа армопояс 200х250+ снаружи утепление ЭППС или ГБ 100+ ЭППС Сейчас идут подготовительные (читай демонтажные) работы на участке. Мешают сараи и веранда. Старый дом постройки 1940х. Дед дарит часть дома и 3 сотки. На сегодняшний день меня волнует армопояс первого этажа. Я начитался про то, что нельзя связывать новую и старую части зданий, что необходимо делать ДШ. Вопрос такой: Если армопояс ложить одновременно на четвертую стенку пристройки и стенку 1/2 кирпича старой части, чем это чревато? Это с целью связать здание и сэкономить 17Х530=0.9 м2 Второй вопрос по цоколю: газоблок лучше ложить с нависанием (западающий цоколь) или по середине ленты? Спасибо за советы. Прошу темку не удалять и не переносить. Скоро здесь будет появляться детальный отчет. В первую очередь - ДЕМОНтаж 1 Посилання на коментар Поділитися на інших сайтах More sharing options...
AНДРЮША Опубліковано: 23 березня 2011 Поділитись Опубліковано: 23 березня 2011 У меня очень похожий домик по размерам и первоначальным вводным. Так же сперва планировал пристраивать к старому дому буквой П. Однако передумал и сделал новый полностью отдельным, между домами получился проход около 0.5м. Не понял на чем вы там хотели сэкономить. Блоки укладывать на цоколь лучше с нависанием на толщину отделки (плитка, камень, штукатурка и т.д.). Тогда не будет уступа, где может собираться вода. Посилання на коментар Поділитися на інших сайтах More sharing options...
ТРУДОГОЛИК-КАРЬЕРИСТ Опубліковано: 23 березня 2011 Поділитись Опубліковано: 23 березня 2011 смелости и терпения,земляк. 1 Посилання на коментар Поділитися на інших сайтах More sharing options...
КОРН Опубліковано: 24 березня 2011 Автор Поділитись Опубліковано: 24 березня 2011 У меня очень похожий домик по размерам и первоначальным вводным. Так же сперва планировал пристраивать к старому дому буквой П. Однако передумал и сделал новый полностью отдельным, между домами получился проход около 0.5м. Не понял на чем вы там хотели сэкономить. Блоки укладывать на цоколь лучше с нависанием на толщину отделки (плитка, камень, штукатурка и т.д.). Тогда не будет уступа, где может собираться вода. Да, буду изучать вашу тему. У меня ширина участка 10 м От старого до забора - 5.3 м, поэтому вплотную 4 м ширины Если нельзя соединять, то внутреннюю стенку первого этажа сделаю из 300 ГБ, а второй - из 375 с нависанием над старой крышей (двускатная, перпендикулярно стене пристройки, в процессе хочу заменить на такую же из новых материалов) Старая часть дома будет служить гостинной-прихожей, через стенку соседи. Спасибо за цоколь, помогли определиться. Посилання на коментар Поділитися на інших сайтах More sharing options...
КОРН Опубліковано: 24 березня 2011 Автор Поділитись Опубліковано: 24 березня 2011 Вот он план нарисованный за 5 минут в пэйнте. Посилання на коментар Поділитися на інших сайтах More sharing options...
КОРН Опубліковано: 24 березня 2011 Автор Поділитись Опубліковано: 24 березня 2011 Меня волнует больше всего примыкание нового дома к старому. Есть такие аспекты: - фундамент старого дома - одно название, в один кирпич, цемента похоже ваще нет! Шов песочный, разбирается руками. - стена старого дома двухслойная. Что-то типа деревянного каркаса с заполнением бревнами, шашель поработал + в пол кипича красного-желтого снаружи на своем отдельном фундаменте. Между кирпичем и деревом зазор 5+ см - Стропила и перекрытие опираются на верхний венец дреревянных стен, кирпич не нагружен Что можно сделать? 1. Усилить фундамент кирпичных стен перед заливкой нового, оставить кирпич 2. Убрать наружную стенку в 1/2 кирпича везде, новый дом пристроить через ДШ к деревянной стене старого, а торцевые стены утеплить по каркасу базальтовой ватой и обшить сайдингом 3.? 4. Если в будущем захочется избавиться от деревянной части изъеденной жучком, можно ли построить дом снаружи, а потом разобрать старый? Будет ли стоять деревянный каркас без кирпичной облицовки? С одной торцевой стены облицовки нет и не было, там была веранда Бюджет стройки минимальный!!!!!!!!!! Да, я оптимист Посилання на коментар Поділитися на інших сайтах More sharing options...
AНДРЮША Опубліковано: 24 березня 2011 Поділитись Опубліковано: 24 березня 2011 У меня примерно так же свес крыши нового дома нависает над старым. На фото видна серая стена старого дома и начало кладки. На втором фото, как оно выглидит сейчас: Посилання на коментар Поділитися на інших сайтах More sharing options...
melena Опубліковано: 24 березня 2011 Поділитись Опубліковано: 24 березня 2011 Удачного строительства!!! Буду с огромным интересом следить за Вашей темой, так как у меня практически аналогичные исходные данные и схожие с Вашими планы. Так что если можно, побольше подробных описаний и фотоотчётов Посилання на коментар Поділитися на інших сайтах More sharing options...
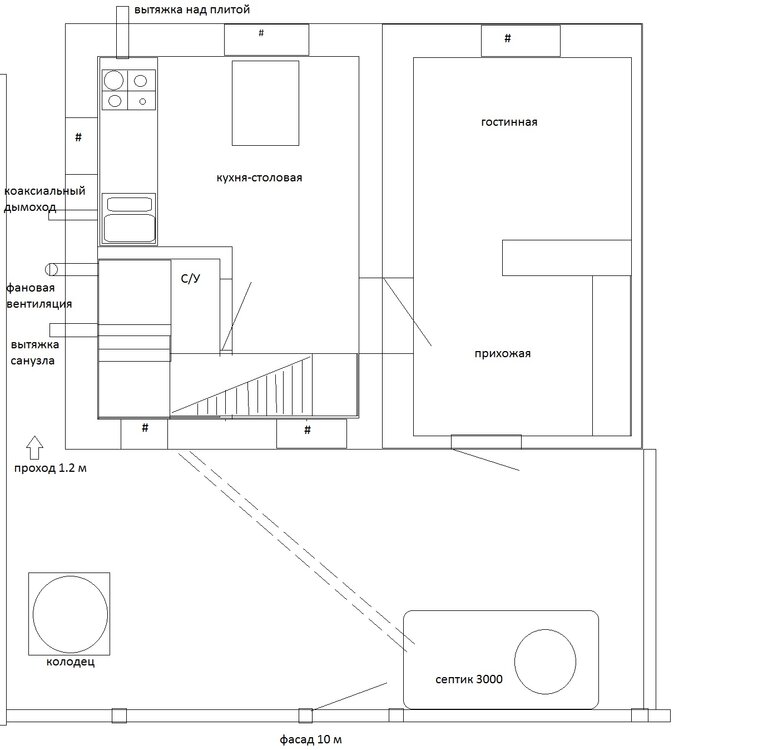
КОРН Опубліковано: 25 березня 2011 Автор Поділитись Опубліковано: 25 березня 2011 И это только начало!!!;) На очереди два сарая. На фото видно в каком состоянии старый дом. Сначала пристройка планировалась меньших размеров на месте разрушенной веранды. Но в процессе демонтажа, с крыши, стало видно, что это была не самая лучшая идея. Пока не поздно решили поменять планы и строится не самостроем, а по правилам и с проектом. На месте окна сбоку хотим сделать проход, который соединяет старый и новый дом, а окно переставить в другое место. Сейчас еще, пока не обратились к архитектору, продумываем планировку. А пока Делать вход в дом через старую или новую часть? Делать тамбур или не делать? Как расположить лестницу? Сколько окон сделать в кухне? Нужно ли пробивать окно в деревянной стене, если это будет прихожая? От этих вопросов в голове закипает башка... Сейчас нарисую поэтажный план, как я его вижу. Посилання на коментар Поділитися на інших сайтах More sharing options...
КОРН Опубліковано: 25 березня 2011 Автор Поділитись Опубліковано: 25 березня 2011 Вот8-) Подскажите, плз, как вставлять картинки в сообщение так, чтоб их сразу было видно всем, не переходя по ссылке? Сам вижу несколько слабых мест этого плана. Больше всего смущает лестница, проход на чердак и окно в кухне над рабочей столешницей. Может можно сделать лестницу одномаршевой на 3.25 м длины с площадкой наверху и косыми ступеньками внизу? Может лучше сделать проход на чердак из спальни, чтобы не терять 70 см на корридор? Как-то жирно для него. Не будет ли окно над столешницей лишним? Оно занимает полезное место на стене в маленькой кухне, стоит денег, его сложнее мыть, чем стену. Можно ли прорезать стенку из газоблока, чтобы установить в нем окно? Единственное направление, в которм этот дом еще может расти, - в огород. В таком случае кухня станет проходной и закроется южное окно. Может сразу закладывать юго-восточное над рабочей поверхностью? Немного лирики Ирпень - город пристроек. Люблю просто ходить по улицам с частными домами и глазеть на сумасшедшие формы крыш и стен, отсутствие прямых линий границ участков и непараллельность им домов. Можно найти дома, в которых есть нарушения абсолютно всех вселенных СНИПов, отсутствие пожарных разрывов, нарушение красной линии и т.д. и т.п. Я еще слишком мало живу. Кто-то мне объяснит как это у них получается. Это ж сколько сил и фантазии нужно вкладывать в борьбу с законом и собственной безопасностью, при этом потокая коррупции. 3/4 домов пристраивались как минимум раз 2/3 - как минимум два 1/2 - так им вообще нравится это дело... Дом в котором мы живем пристраивался 3 раза. Сейчас будет четвертый. Поэтому я не исключаю возможность и пятой пристройки. это скорее по причине бедности, чем глупости. Кто-то меня поправит, что бедность - та же самая глупость. Согласен. 2 Посилання на коментар Поділитися на інших сайтах More sharing options...
Алекар Опубліковано: 25 березня 2011 Поділитись Опубліковано: 25 березня 2011 приветствую! Почти по соседски сирашиваю (Буча) - оформление пристройки и т.п можете расписать? У самого тема стройка на дачном участке(под садоводство). Заранее спасибо Посилання на коментар Поділитися на інших сайтах More sharing options...
КОРН Опубліковано: 25 березня 2011 Автор Поділитись Опубліковано: 25 березня 2011 Вот, собственно, и сами с женой разбираемся. Но хотим сделать все очень быстро. Нам еще нужно перед началом строительства оформить дарственную, а пока ДЕМОНТАЖ! Я ж прально понял, имеется в виду документы-разрешения? Посилання на коментар Поділитися на інших сайтах More sharing options...
Алекар Опубліковано: 25 березня 2011 Поділитись Опубліковано: 25 березня 2011 Именно! У меня тоже задержка с переделкой акта на землю уже 7й месяц жду. В августе подали документы и вот только сказали что отдали в печать. Посилання на коментар Поділитися на інших сайтах More sharing options...
Белая Рысь Опубліковано: 26 березня 2011 Поділитись Опубліковано: 26 березня 2011 Мой Вам совет: пристройка 4х6 -- крайне мала! Ведь Вам там жить много лет придется! Я поняла, пристройка будет автономной, с отдельным входом? То есть блок-хаус? Не делайте 4 метра! Сделайте хотя бы 6х6! А еще лучше -- 6х8. Это оптимальный вариант. Будете строить на год больше, но иметь нормальное помещение. На первом не может быть только кухня, нужно еще и гостиную, и санузел. А где котел будет? А тамбур и холл? А проем под лестницу? Мало у вас по метрам! Если увеличите немного, посмотрю проект. Я сама пробовала минимальные размеры, но это не получается. Некомфортно. Посилання на коментар Поділитися на інших сайтах More sharing options...
КОРН Опубліковано: 26 березня 2011 Автор Поділитись Опубліковано: 26 березня 2011 Мой Вам совет: пристройка 4х6 -- крайне мала! Ведь Вам там жить много лет придется! Я поняла, пристройка будет автономной, с отдельным входом? То есть блок-хаус? Не делайте 4 метра! Сделайте хотя бы 6х6! А еще лучше -- 6х8. Это оптимальный вариант. Будете строить на год больше, но иметь нормальное помещение. На первом не может быть только кухня, нужно еще и гостиную, и санузел. А где котел будет? А тамбур и холл? А проем под лестницу? Мало у вас по метрам! Если увеличите немного, посмотрю проект. Я сама пробовала минимальные размеры, но это не получается. Некомфортно. Здрасьте, Рысь! Я перечитал всю тему Андрюши и тут мне хочется сказать вам то же, что и он. Вы не внимательно читаете. У нас ширина участка для пристройки 5.3 м. На первом этаже также будет прихожая, гостинная и тамбур в старой части дома. Старая и новая части будут соединятся через дверной проем. Автономность пристройки обусловлена замкнутостью фундаментной ленты, стен и отдельной крышей. План обещаю нарисовать, переработанный и дополненный, ту би континуид... Посилання на коментар Поділитися на інших сайтах More sharing options...
Владимир В. Опубліковано: 26 березня 2011 Поділитись Опубліковано: 26 березня 2011 Вот8-) Можно найти дома, в которых есть нарушения абсолютно всех вселенных СНИПов, отсутствие пожарных разрывов, нарушение красной линии и т.д. и т.п. Я еще слишком мало живу. Кто-то мне объяснит как это у них получается. Это ж сколько сил и фантазии нужно вкладывать в борьбу с законом и собственной безопасностью... Это скорее по причине бедности, чем глупости. Кто-то меня поправит, что бедность - та же самая глупость. Согласен. Вначале всё строилось по проектам, а потом выросли дети и.....началось А причины: строились глядя друг на друга и никто не думал, что будет дальше!!! Тоже самое и сейчас: пройдёт время и увидите новые пристройки и перестройки уже на новых домах...Ответ один: все так делают, стадный инстинкт, оданко :D!!! По Вашей теме... Обратите внимание на дом по ул. Садовой (стрелка на карте)...Почти четверть века назад строился второй этаж над старым домом, фундамент под ним был "как у всех": траншея - кирпичная щебёнка - жидкий цементный раствор...В те годы началось масовое строительство двухэтажных домов и все обращали внимание на реконструкцию именнно этого дома...Может и у Вас появятся какие то идеи по своей стройке... Удачи Вам !!! 1 Посилання на коментар Поділитися на інших сайтах More sharing options...
Белая Рысь Опубліковано: 26 березня 2011 Поділитись Опубліковано: 26 березня 2011 Да, плохо... действительно, надо соседний участок присоединять... А купить его нельзя? Посилання на коментар Поділитися на інших сайтах More sharing options...
КОРН Опубліковано: 27 березня 2011 Автор Поділитись Опубліковано: 27 березня 2011 Вначале всё строилось по проектам, а потом выросли дети и.....началось А причины: строились глядя друг на друга и никто не думал, что будет дальше!!! Тоже самое и сейчас: пройдёт время и увидите новые пристройки и перестройки уже на новых домах...Ответ один: все так делают, стадный инстинкт, оданко :D!!! По Вашей теме... Обратите внимание на дом по ул. Садовой (стрелка на карте)...Почти четверть века назад строился второй этаж над старым домом, фундамент под ним был "как у всех": траншея - кирпичная щебёнка - жидкий цементный раствор...В те годы началось масовое строительство двухэтажных домов и все обращали внимание на реконструкцию именнно этого дома...Может и у Вас появятся какие то идеи по своей стройке... Удачи Вам !!! Хочу описать этот дом по ул. Центральной 83 (на перекрестке с Садовой) для тех, кто не в Ирпене и откликнулся на эту тему в связи с подобной ситуацией. Сначала был одноэтажный дом обложенный кирпичем (или кирпичный?) судя по всему на кирпичном фундаменте. Затем по углам и середине каждой стены обложили в полкирпича колонны (см схему), поверх залили армопояс, и на нем выгнали мансарду с кирпичными фронтонами. С хозяевами знакомиться постеснялся, поэтому не знаю связывались старые и новые стены, и армопояс ложился на обе стены или только на новые - ЭТО ПРИНЦИПИАЛЬНО! Еще там есть пристройка с боку и неизвестно, она строилась до или после второго этажа. Посилання на коментар Поділитися на інших сайтах More sharing options...
КОРН Опубліковано: 28 березня 2011 Автор Поділитись Опубліковано: 28 березня 2011 Я пересмотрел план пристройки, но остаются неопределенными еще несколько моментов. Я так понимаю, чтобы получить разрешение на пристройку нужно иметь проект(изготовленный фирмой, которая имеет лицензию). Что в этом проекте должно учитываться? - материалы? - площади? - высота помещений? - конструкция фундамента? - размеры окон? - расположение газового котла? - вентканалы? - этажность? Или достаточно просить разрешения на пятно застройки 6х4 в таком-то месте? Решили делать вход через старую часть здания. Это комната 3.6х5.3. Перед ней выстроить неотапливаемый тамбур 2х1.5. Дополнительных окон в старой деревянной стене пробивать не решились, хотя оччень просится. В новой части убрали два окна: окно на 2 этаже над лестницей и второе окно на кухне. Пересмотрели высоту потолков: вместо 2.8/2.8 думаем сделать 2.6/2.4 Решил отказаться от одного армопояса: под межэтажным перекрытием просто армировать последний ряд блоков двумя прутьями 12д. Перемычки над окнами и дверьми делать ЖБ, а не уголками. Для этого изготовить из стандартных блоков опалубку ("У"-образные). Для верхнего армопояса пожалуй возьму в опалубку с внешней стороны стены проложу газоблок 100 мм. В верхнем ряду блоков насверлю пазы для бетона в шахматном порядке или просто штробы. Фундамент - монолит, глубина заложения до 50 см. Цоколь - не более 30 см. Может получится меньше. Крыша двускатная, но с ориентацией скатов-фронтонов пока не определился. Если конек по длинной стороне, то при том же угле скатов дом получается ниже, меньше по площади фронтоны, длиннее водосточка, нет возможности свесом крыши прикрыть от косого дождя окно на втором этаже, можно изготовить люкарны на фасаде дома и выштробить и выложить кирпичем дату постройки на фасадном фронтоне, возможно лавинообразное схождение снега на старую крышу Если конек по узкой стороне, можно на фронтонные стентки уложить коньковый брус и таким образом облегчить установку стропил в одиночку, при стандартной длине стропил 4.5 м нельзя сделать длинные свесы крыши, больше блоков (или столько же?) уйдет на фронтоны, сложнее вносить изменения по длине пристройки Пока не знаю какие по длине сделать выносы крыши. Что они дают в случе двухэтажной постройки? Пока не посчитал лестницу. Форму уже прикинул, а с материалом еще можно подумать. Дерево - метал/дерево - бетон/дерево - бетон/плитка. Лестница - одномаршевая, внизу и вверху площадки с косыми ступеньками, угол подъема 45 градусов. Высота ступеньки 20 см, ширина - тоже 20, но хотелось бы больше. Может расширить за счет утопленых подступеней? Не знаю нужно ли делать гравитационную вентиляцию, если есть вытяжка в ванной, над плитой, котел-колонка с коаксиальным дымоходом. Но газовщики вроде требуют... да и комфорта это добавляет. Возможно, за счет экономии, сделаем пристройку 4х7, а не 4х6, хотя кардинально в планировке это ничего не меняет, но холодильнику, а может и морозильнику, будет легче найти свое место на кухне, или стиралку забрать из с/у. Но сколько будет стоить этот "метр"? Контур утепления снизу вверх: 1. Фундаментную ленту - ЭППС 50 мм снаружи 2. Пол по грунту - ЭППС 50 мм- водяной теплый пол. 3. Стены - газобетон 375 - без доп утепления 4. Перемычки - газобетон+бетон - без доп утепления 5. Наружные оконные откосы - ЭППС 30 мм 6. Перекрытие первого этажа - деревянное, без звуко- теплоизоляции 7. Перекрытие второго - чердачное - 150+50 мм минвата 8. Кровельный пирог - МЧ-обрешетка-контробрешетка-антиконденсат-стропила. Во фронтонах вентиляционные окошки, прикрытые сеткой. Отделку фасада хотел скопировать с Андрюшиного дома. Такой вопрос: можно ли использовать силиконовую краску для фасада из ГБ? По идее таким образом он перестает дышать. Есть ли более рациональные альтернативы? Наверно столькими вопросами задаются только те, кто еще не начал и есть соблазн все предусмотреть и что-то изменить. А потом... Посилання на коментар Поділитися на інших сайтах More sharing options...
AНДРЮША Опубліковано: 28 березня 2011 Поділитись Опубліковано: 28 березня 2011 Отделку фасада хотел скопировать с Андрюшиного дома. Такой вопрос: можно ли использовать силиконовую краску для фасада из ГБ? По идее таким образом он перестает дышать. Есть ли более рациональные альтернативы? Посмотрите характеристики производителей - силиконовая краска (не путайте с силиконовыми сиськами) самая лучшая по паропропусканию, поэтому именно ее и выбирал для газобетона. Для удобства хождения по лестнице лучше ступень делать пошире, даже в ущерб высоте подъема. В идеале ширина просвета ступени должен быть не меньше длинны вашей ступни. В противном случае при спуске вы будете идти боком. Свесы (выносы) крыши лучше делать пошире, так как они защищают стены от дождя. Кроме того закрывают окна второго этажа от высокого летнего солнца. 1 Посилання на коментар Поділитися на інших сайтах More sharing options...
КОРН Опубліковано: 6 квітня 2011 Автор Поділитись Опубліковано: 6 квітня 2011 демонтаж-x:evil: Галопом идут демонтажные работы... Хотел выложить сразу с фото и моими комментами, но это немного опосля. А сейчас несколько замечаний по этому весьма приятному и очень не легкому делу. В нашем случае надо было снести старый сарай из самана и кирпича, сарай из дерева, веранду из дерева обложенную кирпичем. Все постройки довольно ветхие и легко падающие. Весь процесс выполнял своими силами при помощи лома 13 кг 160 см, кувалды, молотка, зубила каменщика, лома-гвоздодера, ножовки, лопаты, тачки, больших мусорных пакетов 160 л, перчаток с пупырышками и прорезиненых перчаток (маслостойких?). Цель была сделать демонтаж бюджетно, не привлекая посторонней рабочей силы и механизмов. Еще больше повышается бюджетность за счет аккуратности разборки кирпичной кладки, крыши, полов. Эти материалы планируется повторно использовать в будущем. Также более бюджетно сортировать материалы сразу по ходу разборки, чтобы меньше пришлось вывозить строймусора. Образовались такие группы материалов: - стекловата в мусорных пакетах - на самовывоз соседям - доска короткая (до 1.5 м), доска длинная (до 5 м), брус, доска пола. Всего 2 +- куба для реюза и 2+- куба в костер - шифер 30 кв.м. целый, 6 кв.м. битый - кирпич глиняный м-100 (м-75) целый - 2000 шт с "+" - огнеупорный кирпич (бывшая печка или дымоход)- 200 с "+" - кирпич битый - кирпич-сырец (саман) - много рваного рубероида и битума - высохшие трупы крыс... и пару котов Сейчас думаю, что из этого добра где и как можно использовать. Кирпич целый можно на перегородки санузла для теплоемкости, для постройки сарая-бани по "Советам Максимыча", фундаментов забора, заборных столбиков, может для дымохода. Огнеупорный кирпич для постройки мангала и обложить каминную топку, когда она появится - неизвестно. Битый кирпич можно использовать как фильтр-дренаж в фильтрующем колодце для стоков от ванной, умывальника и бани, водосточки с крыш. Битый кирпич можно засыпать под пол по грунту вместо щебня (или нельзя?) и в качестве заполнителя для бетонной подушки под септиком и бетонной площадки для машины. Может еще под отмостку. Доску и брус - для опалубки(силовой элемент) и лесов, лестниц, временных ограждений, ограждений для сыпучих, навесов Шифер пока для навесов над стройматериалами, а там посмотрим. Остается саман, остатки стекловаты, рубероид, битум и прочий мелкий мусор. Все, кроме самана, в полном объеме на вывоз спецтехникой. Саман, может, частично найдет себе применение. Посилання на коментар Поділитися на інших сайтах More sharing options...
КОРН Опубліковано: 26 квітня 2011 Автор Поділитись Опубліковано: 26 квітня 2011 Демонтаж закончился, по крайней мере как отдельный этап. Ура! Строймусора на вывоз получилось два камаза 13 тонника. Глину вывезли полностью, но если б было место на участке, то может быть половину оставили бы. Беру перекур. Посилання на коментар Поділитися на інших сайтах More sharing options...
КОРН Опубліковано: 17 травня 2011 Автор Поділитись Опубліковано: 17 травня 2011 Работы по-немногу идут, а вопросов ни у кого нет... По-видимому я разговариваю сам с собой. За последнее время: - начал реконструкцию и усиление фундамента старого дома. Начинал от угла. Армировал набиванием кладочной сетки на старый фундамент. - с другом сделал пропитку дерева методом погружения. На относительно ровной площадке положил два листа ОСБ по уровню (очень желательно), на них по периметру будущей ванны кирпич - это стенки. Ванну застелил клеенкой. Между клеенкой и кирпичем проложил доску. на дно ванной (клеенку) положил мусорные пакеты, чтобы не пробить его деревом (можно любую даже дырявую клеенку). В ванну плотно укладывали штабелем брус, лучше вровень с бортами ванной.От трцов бруса до клеенки лучше оставить по 5 см. Заливали это все антисептиком для дерева и оставляли на некоторое время. Часть антисептика впиталась, часть, после выемки бруса, осталась. Следующая партия бруса укладывалась в ванну с остатками антисептика на ребро и не плотно, периодически перекладывая на другое ребро. 1.3 куба полусухой (атмосферная сушка) сосны впитали 70 л пропитки. Потерь нет. Сосна сейчас уже не та, что раньше... Лес сейчас на пилорамах почти всегда молодой, смолы мало. Повезет еще если можно выбрать доску из заболони, а не ядровой древесины. Жучок такое дерево за одну ночь съест, если не защитить! Пропитка валиком-кисточкой - очень поверхностна! Отработкой - очень горюче! Шашель, короед, древоточец, ЖУЧОК - они у нас, а не в Африке, и жуют баобабы на завтраки!... 2 Посилання на коментар Поділитися на інших сайтах More sharing options...
КОРН Опубліковано: 7 червня 2011 Автор Поділитись Опубліковано: 7 червня 2011 Всем привет, кто еще с нами! В прошедшее воскресенье залили фундамент. Если кому интересно, то просьба как-то реагировать на мои сообщения, а то я не буду писать. Только читать - это эгоистично. Особенно, если я напишу какую-то фигню. Старожилы, представляете если мои ошибки кто-нибудь будет повторять? Посилання на коментар Поділитися на інших сайтах More sharing options...
КОРН Опубліковано: 7 червня 2011 Автор Поділитись Опубліковано: 7 червня 2011 Итак, как мы делали: 1. Расчистили участок 2. Поставили обноску из доски. Вбивать колышки, разбивать оси, чертить на бедной земельке линии по отвесу оказалось выше моих сил. Поэтому взял ровные толстые доски и собрал из них прямоугольник, внутренний прямоугольник которого будет внешним периметром цоколя. Постарался поставить обноску по уровню. Сразу стало видно перепады высот. Опирал обноску на столбики из кирпича. Выбрал брусок нужной длины (50 см) - шаблон ширины траншеи. И доску нужной длины (80 см) - шаблон глубины траншеи. 3. Рытье траншеи. Почти всю землю (песок с примесями) кидал в центр будущего дома. 4. Посыпал траншею отсевом, где больше, где меньше - выровнял уровень дна траншеи. Стенки траншеи держались, поэтому оставил их вертикальными. 5. Поливал и трамбовал дно траншеи. С помощью того же бруска 50 см положенного на дно ударяя по нему бруском потяжелее. Посилання на коментар Поділитися на інших сайтах More sharing options...
Рекомендовані повідомлення
Створіть акаунт або увійдіть у нього для коментування
Ви маєте бути користувачем, щоб залишити коментар
Створити акаунт
Зареєструйтеся для отримання акаунта. Це просто!
Зареєструвати акаунтУвійти
Вже зареєстровані? Увійдіть тут.
Увійти зараз