Sharade Опубліковано: 12 квітня 2011 Поділитись Опубліковано: 12 квітня 2011 Устав от шумного и загазованного мегаполиса, мы с мужем долго искали тихое, спокойное, не слишком густонаселенное место для строительства маленького домика, - как в любимой песне Макаревича: Годы летят стрелою, Скоро и мы с тобою Разом из города уйдем. Где-то в лесу дремучем Или на горной круче, Сами себе построим дом. А вокруг такая тишина, Что вовек не снилась нам, И за этой тишиной, как за стеной, Хватит места нам с тобой. ;) Участок в с.Червона Гірка Макаровского р-на мы приобрели еще в 2008-м, до кризиса, на пике цен. Местность нам очень нравится: тихо, уютно, рядом лес и пруд; и не в центре села, а в новом небольшом массиве. Единственный недостаток — действительно «вдали от шумного города» - около 50км , в прошлом году рассматривали варианты поближе к Киеву, но достойной альтернативы так и не нашли. Конечно, мы не привыкли тратить столько времени на дорогу к работе (сейчас это 5 км), но у меня гибкий рабочий график, - 2-3 раза в неделю можно послушать jazz в дороге. И, как говорится, бешеной собаке семь верст — не крюк...была бы цель. 2 Посилання на коментар Поділитися на інших сайтах More sharing options...
Sharade Опубліковано: 12 квітня 2011 Автор Поділитись Опубліковано: 12 квітня 2011 Итак, поехали: сделали проект, получили строительный паспорт; провели электричество, пробурили скважину, грейдером проложили дорогу, скосили-убрали бурьян. Пока мы в поле одни, никто из 30 потенциальных соседей пока не отважился на стройку, - так и замечательно: просторно, никто не мешает, - только аисты да косули бродят вокруг, да любопытный рыжий пёсик из деревни прибегает поиграть... Посилання на коментар Поділитися на інших сайтах More sharing options...
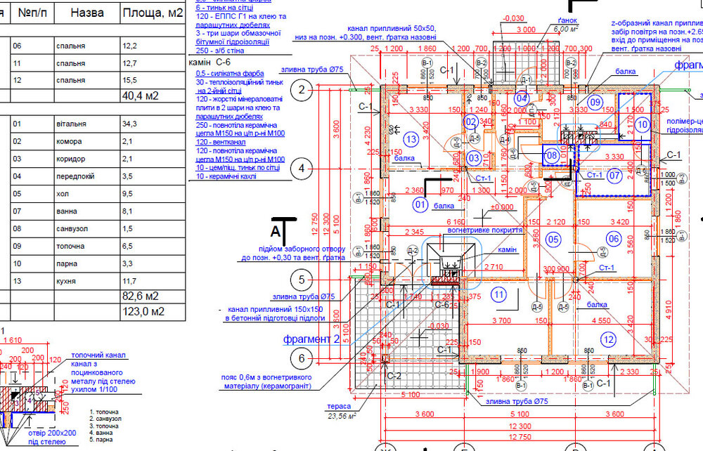
Sharade Опубліковано: 12 квітня 2011 Автор Поділитись Опубліковано: 12 квітня 2011 Дом у нас будет небольшой, одноэтажный — 13х13м , без подвала, с нежилым чердаком; полезная площадь около 130кв.м - для постоянного проживания 2-х человек вполне достаточно (взрослая дочь будет приезжать в гости, иногда). Стены — газобетон, крыша — безасбестовый крашеный шифер. В этом году планируем сделать: коробку дома с крышей, фундамент под гараж, септик; посадить деревья осенью. Отделочные и внутренние работы — через год. 4 Посилання на коментар Поділитися на інших сайтах More sharing options...
Sharade Опубліковано: 12 квітня 2011 Автор Поділитись Опубліковано: 12 квітня 2011 Неделю назад заехали строители на участок (прораб Сергей, по рекомендации форумчанина webema): сделали временный забор, вырыли траншеи под фундамент экскаватором. Дальше будет: выемка грунта вручную под фундамент ж/б столбов, подсыпка и трамбовка песка с гравием, установка опалубки, вязка арматуры и проч. Посилання на коментар Поділитися на інших сайтах More sharing options...
Lesiya Опубліковано: 13 квітня 2011 Поділитись Опубліковано: 13 квітня 2011 Поздравляю, с началом !!! 1 Посилання на коментар Поділитися на інших сайтах More sharing options...
Vasiliev Опубліковано: 13 квітня 2011 Поділитись Опубліковано: 13 квітня 2011 Поздравляем с началом... Песня Машины Времени у самого, признаться, крутилась в голове. Как с газом? Что-то мне подсказывает, что в чистом поле не очень... Как много грунтовой дороги? Боюсь, пару месяцев в году она будет не проездной, а если она длинной с полкилометра, то сделать ее нормальной будет дорого для вас одних. Садите побыстрее деревья - вам от ветра защищаться надо. Еще есть немного времени - пока почки не стали открываться. 1 Посилання на коментар Поділитися на інших сайтах More sharing options...
YUKS Опубліковано: 13 квітня 2011 Поділитись Опубліковано: 13 квітня 2011 Поздравляю с началом строительства. Мы тоже в поле, но пока не можем начать из-за отсутствия электричества. Ищем пока соседей. У меня вопрос по вашему фундаменту. Рекомендуют снимать плодородный слой, а вы этого не делаете. Судя по широким ямам после экскаватора, вы будете ставить сборную опалубку для фундаментной ленты. На сколько это дороже чем просто лить бетон в землю? 1 Посилання на коментар Поділитися на інших сайтах More sharing options...
Sharade Опубліковано: 13 квітня 2011 Автор Поділитись Опубліковано: 13 квітня 2011 Как с газом? ... Как много грунтовой дороги? Садите побыстрее деревья... Спасибо за живой интерес к моей теме! Вопрос с коммуникациями, конечно, больной, особенно для моего мужа. Дело в том, когда выбирали участок в этом массиве, можно было взять крайний на центральной сельской линии - прямо у асфальта, со светом и газом. Но меня в то время напугали перспективы "урбанизации", разрисованные местными властями, и я уперлась: "центральная дорога - источник шума", - потом, конечно 1000 раз об этом пожалела... но... уже ничего нельзя вернуть. Зато есть маааленький плюсик - подальше от крестьянских хозяйств с курятниками и т.п. По генеральному плану наш участок был угловой, т.е. от главной улицы до нас - 70м грунтовки, НО...когда вынесли границы участка в натуру, выяснилось, что эта дорога превратилась в часть чьего-то подворья с огородом. Голова сільради признал факт аннексии, но развел руками и не советовал "связываться с этой язвой" (хозяйкой участка - кстати, киевлянкой-дачницей, а не коренной жительницей, - местные селяне оказались более интеллигентные, доброжелательные и цивилизованные, чем... !). Наши попытки договориться с этой дамой никаких положительных результатов не дали, в итоге коммуникации протянули через квартал... Свет есть - своя линия, грунт песчаный, и в принципе, для легковушки достаточно твердая дорога получилась (даже в распутицу по такой ездят), но строй-мазы-кразы ее, конечно, подразобьют. Обязательно будем улучшать дорожное покрытие, но после стройки. Вопрос с газом для нас пока не актуален, будет решаться в следующем году, - а нужен ли он в принципе? - при современных технологиях можно обойтись и без него.;) Маленькие сосенки растут по всему полю, просто их за бурьном не видно. Когда мы косили-убирали, то пересадили несколько деревец из пятна застройки на другой край участка, но первая же машина с песком высыпала свой груз прямо на них, а потом туда-же отправился и гравий...Так что сажать что-то можно будет только после окончания строительных работ. Да и местность не ветреная - со всех сторон окружена лесом, но деревья по всему периметру участка - моя мечта, и я хочу много-много разных декоративных растений... Посилання на коментар Поділитися на інших сайтах More sharing options...
Damiani Опубліковано: 13 квітня 2011 Поділитись Опубліковано: 13 квітня 2011 С открытием ветки и с началом стройки! +1 к посадке сада. А участок у вас сколько соток? И еще было бы интересно посмотреть визуалку самого дома, если она у вас есть;) 1 Посилання на коментар Поділитися на інших сайтах More sharing options...
Sharade Опубліковано: 13 квітня 2011 Автор Поділитись Опубліковано: 13 квітня 2011 У меня вопрос по вашему фундаменту. Рекомендуют снимать плодородный слой, а вы этого не делаете. Судя по широким ямам после экскаватора, вы будете ставить сборную опалубку для фундаментной ленты. На сколько это дороже чем просто лить бетон в землю? Да, и геолог, и архитектор строго рекомендовали снять 30см плодородного слоя полностью под домом. Я тоже хотела, чтобы экскаватор перво-наперво снял этот слой, но экскаваторщик сказал, что это будет кучка травы практически без грунта, в общем мусор (так и правильно, - по-моему, тем более этой траве нечего делать под пирогом пола...). На мои возражения о "плавающем поле" прораб ответил, что он очень-очень тщательно будет утрамбовывать грунт перед песчано-гравийной подсыпкой. По проекту у нас фундаментная стена опирается на более широкую ж/б подошву-ленту, поэтому нужна сложная конструкция опалубки - в 2 этапа: опалубка, заливка ленты; затем опалубка, заливка стены (с цоколем). Хоть с опалубкой и дороже чем сразу в грунт, но: во-первых - действительно, какая-то экономия бетона есть, хотя она съедается ценой опалубки; во-вторых - специалисты говорят, что это повышает жесткость фунд-та на десятки%, ведь бетон не просачивается в грунт и хорошо трамбуется. Посилання на коментар Поділитися на інших сайтах More sharing options...
Sharade Опубліковано: 13 квітня 2011 Автор Поділитись Опубліковано: 13 квітня 2011 А участок у вас сколько соток? И еще было бы интересно посмотреть визуалку самого дома, если она у вас есть;) участок около 24 соток, но вытянутый вдоль фасада - 80м, дом строится в более широкой-глубокой части (где 30м), а там где идет сужение до 27м - будет сад, беседка, банька, бассейн, корт... если доживем, конечно. Есть план участка и эскизы фасадов, но я хочу внести небольшие изменения - переделать крыльцо. Дом квадратный с 4-хскатной крышей уклоном 20грд. Мне нравятся лаконичные архитектурные решения, - я вижу красоту в простоте формы, а своеобразный неповторимый образ дома можно создать при помощи цветов фасада (стены, цоколя), кровли, ставен, колонн и перил крыльца и т.д. Архитектор визуалку в 3-d не делал, но кое-что делал муж, - надо поискать, доделать... Посилання на коментар Поділитися на інших сайтах More sharing options...
Николаевич Опубліковано: 13 квітня 2011 Поділитись Опубліковано: 13 квітня 2011 Я хотел бы тоже добавить несколько слов. На всякий случай скажу, что Сергей, который строит нам дом, "живет" на этом форуме под ником "Строим". Сегодня на площадку завезли сборную опалубку и арматуру для фундаментов. Пока не знаем, где будем заказывать бетон. Приемлемый по цене нашли в Копылове. В селе есть пилорама. Познакомился с ее владельцем. Сегодня заказал у него всю столярку. Со следующей недели начнет пилить и завозить постепенно на участок. Владимир. Посилання на коментар Поділитися на інших сайтах More sharing options...
Sharade Опубліковано: 17 квітня 2011 Автор Поділитись Опубліковано: 17 квітня 2011 Вчера утром мы были на участке (пока там двое строителей, с понедельника будет четверо): там уже сделали песчано-гравийную подушку под фунд.ленту дома и гаража и заливают ее тощим бетоном. Сегодня-завтра должны сделать армокаркас, затем - монтаж опалубки. Обещают залить фундамент на этой неделе, до пасхи. Посилання на коментар Поділитися на інших сайтах More sharing options...
Vasiliev Опубліковано: 17 квітня 2011 Поділитись Опубліковано: 17 квітня 2011 Вчера утром мы были на участке (пока там двое строителей, с понедельника будет четверо): там уже сделали песчано-гравийную подушку под фунд.ленту дома и гаража и заливают ее тощим бетоном. Сегодня-завтра должны сделать армокаркас, затем - монтаж опалубки. Обещают залить фундамент на этой неделе, до пасхи. Дом (на первой фотографии) не сильно близко к дороге? Пылить будет... Посилання на коментар Поділитися на інших сайтах More sharing options...
Sharade Опубліковано: 17 квітня 2011 Автор Поділитись Опубліковано: 17 квітня 2011 Дом (на первой фотографии) не сильно близко к дороге? Пылить будет... На первом фото - будущий гараж, а дом - дальше. Посилання на коментар Поділитися на інших сайтах More sharing options...
Nat Опубліковано: 17 квітня 2011 Поділитись Опубліковано: 17 квітня 2011 Желаем Вам удачи, классных специалистов, и главное -- терпения ! 1 Посилання на коментар Поділитися на інших сайтах More sharing options...
Sharade Опубліковано: 18 квітня 2011 Автор Поділитись Опубліковано: 18 квітня 2011 Желаем Вам удачи, классных специалистов, и главное -- терпения ! Спасибо, Nat! Мне очень нравится Ваш дом, особенно крыша. 1 Посилання на коментар Поділитися на інших сайтах More sharing options...
plus Опубліковано: 19 квітня 2011 Поділитись Опубліковано: 19 квітня 2011 Интересная планировка домика. Похоже на мураторский "Обдуманный", только без гаража. Перекрытие какое планируете у дома, деревянное или подвесное? Под что-то более тяжелое не увидел в планировке несущих стен. Посилання на коментар Поділитися на інших сайтах More sharing options...
genofond Опубліковано: 19 квітня 2011 Поділитись Опубліковано: 19 квітня 2011 Меня на этом форуме восхищают такие люди как Вы, которые засучив рукава начинают стройку в чистом поле ... Удачи Вам и порядочных строителей! 1 Посилання на коментар Поділитися на інших сайтах More sharing options...
YUKS Опубліковано: 19 квітня 2011 Поділитись Опубліковано: 19 квітня 2011 Нам бы найти таких же активных соседей как вы !! У нас тоже "поле" и лес рядом, только в Бобрице- 15км от окружной, вот и ищем соседей чтобы вместе хотя бы поставить трансформатор и потом начать. А тут еще вижу и горные лыжи у вас на автарке, то можно было бы и отпуска вместе проводить. Успехов вам ! Посилання на коментар Поділитися на інших сайтах More sharing options...
Sharade Опубліковано: 19 квітня 2011 Автор Поділитись Опубліковано: 19 квітня 2011 Нам бы найти таких же активных соседей как вы !! У нас тоже "поле" и лес рядом, только в Бобрице- 15км от окружной, вот и ищем соседей чтобы вместе хотя бы поставить трансформатор и потом начать. А тут еще вижу и горные лыжи у вас на автарке, то можно было бы и отпуска вместе проводить. Успехов вам ! Трансформатор мы бы тоже сами не потянули А насчет лыж - предложение заманчивое Посилання на коментар Поділитися на інших сайтах More sharing options...
Sharade Опубліковано: 19 квітня 2011 Автор Поділитись Опубліковано: 19 квітня 2011 Интересная планировка домика. Похоже на мураторский "Обдуманный", только без гаража. Перекрытие какое планируете у дома, деревянное или подвесное? Под что-то более тяжелое не увидел в планировке несущих стен. Вы не ошиблись, это действительно "Обдуманный", просто мы убрали гараж - он будет отдельно стоящим. Внутри дома вместо несущих стен - 4 ж/б столба, на которые кладутся балки перекрытий. Посилання на коментар Поділитися на інших сайтах More sharing options...
Николаевич Опубліковано: 20 квітня 2011 Поділитись Опубліковано: 20 квітня 2011 Хочу возвратиться немного в прошлое (декабрь минувшего года) и показать линию электропередач, которую мы построили. Общая длина 340 м. 150 м идут совместным подвесом по существующей линии 10 кВ. Затем переходят на наши столбы. Поставили 5 штук. Линия 3-х фазная, 380 В. Кабель САПТ 4х25. Если соседи захотят подключится, пару домов можем "посадить" на нее. При условии, что РЭС даст добро на подключение к существующему сельскому трансформатору. 1 Посилання на коментар Поділитися на інших сайтах More sharing options...
Sharade Опубліковано: 22 квітня 2011 Автор Поділитись Опубліковано: 22 квітня 2011 Меня на этом форуме восхищают такие люди как Вы, которые засучив рукава начинают стройку в чистом поле ... Удачи Вам и порядочных строителей! Тут в соседней ветке www.stroimdom.com.ua/forum/showthread.php?t=58223 народ удивляется, как вообще можно строиться в наше время... А жить ведь надо здесь и сейчас, и не смотря ни на что быть счастливыми! Вам тоже желаю удачи в строительстве дома Вашей мечты! Посилання на коментар Поділитися на інших сайтах More sharing options...
Sharade Опубліковано: 22 квітня 2011 Автор Поділитись Опубліковано: 22 квітня 2011 Вчера наконец-то залили фундаментную ленту. На счастье были заложены монетки по всем углам дома и гаража: Посилання на коментар Поділитися на інших сайтах More sharing options...
Рекомендовані повідомлення
Створіть акаунт або увійдіть у нього для коментування
Ви маєте бути користувачем, щоб залишити коментар
Створити акаунт
Зареєструйтеся для отримання акаунта. Це просто!
Зареєструвати акаунтУвійти
Вже зареєстровані? Увійдіть тут.
Увійти зараз