**iya** Опубліковано: 28 травня 2013 Поділитись Опубліковано: 28 травня 2013 Ruslan R, Вы мне ответили в посте 253. Уточню, высота 5 м, ширина 2,40 м. И разделить на три части хотели 5 м. Яло, Вы правы, все рекомендуют закаленное. Триплекс муж хотел для безопасности. Так понимаю, что энергосохранение даже не рассматривается, вопрос вообще можно ли такое установить, дорого и редко заказываемое. Посилання на коментар Поділитися на інших сайтах More sharing options...
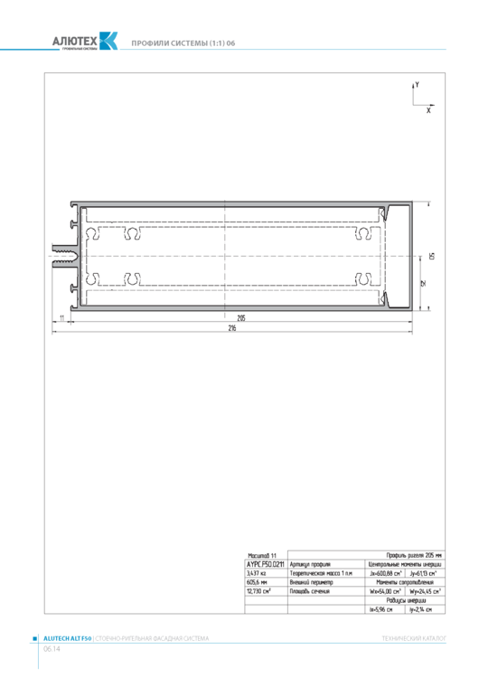
Ruslan R Опубліковано: 28 травня 2013 Поділитись Опубліковано: 28 травня 2013 Уточню, высота 5 м, ширина 2,40 м. И разделить на три части хотели 5 м. Вот так (см. вложенный файл). Это возможно сделать только из алюминиевой фасадной системы. По статическому расчету ригеля (горизонтального профиля) от веса заполнения (стеклопакет ESG6-18Ar-4.4.1LE, размер 2400х1667мм, вес 140кг) получается ригель 205мм, с моментом инерции профиля не менее 58,0см4 (см. ниже страницу из каталога, там ригель с моментом инерции 61,13см4). Тут даже не каждая фасадная система может себе позволить такое сечение профиля. Если использовать 2-х камерный стеклопакет, то вес стеклопакета будет 200кг, тогда ригель необходим с моментом инерции не менее 82,0см4. Т.е. в ригель нужно будет еще дополнительно алюминиевый усилитель устанавливать, а это удорожание профиля в 2 раза. P.S. Допустимый прогиб ригеля 3мм, так как снизу также стеклопакет и при большем прогибе, ригель ляжет на торец нижнего стеклопакета и стеклопакет треснет. Если снизу проем, т.е. нет стеклопакета, то возможно использовать стеклопакет любого размера, так как под ригель можно установить опорную подкладку.Статический расчет ригеля от веса заполнения.rar 1 Посилання на коментар Поділитися на інших сайтах More sharing options...
Алік Опубліковано: 28 травня 2013 Поділитись Опубліковано: 28 травня 2013 Вот так (см. вложенный файл). Это возможно сделать только из алюминиевой фасадной системы Или из ПВХ фасадки типа Политек.;) 1 Посилання на коментар Поділитися на інших сайтах More sharing options...
ko&ko Опубліковано: 28 травня 2013 Поділитись Опубліковано: 28 травня 2013 Так понимаю, что энергосохранение даже не рассматривается, вопрос вообще можно ли такое установить, дорого и редко заказываемое. Кто сказал не рассматривается энергосбережение? И никого не слушайте, это не дорого и часто заказываемое. См. вариант, о котором написал Ruslan R выше, и еще вариант 2. 1 Посилання на коментар Поділитися на інших сайтах More sharing options...
ko&ko Опубліковано: 28 травня 2013 Поділитись Опубліковано: 28 травня 2013 Или из ПВХ фасадки типа Политек.;) А можете показать ригель(горизонтальный соединитель) Политек, с моментом инерции? И как крепиться горизонтально. Посилання на коментар Поділитися на інших сайтах More sharing options...
Алік Опубліковано: 28 травня 2013 Поділитись Опубліковано: 28 травня 2013 Я в ЛС дам ссылочки дабы не пиарить фирму. 1 Посилання на коментар Поділитися на інших сайтах More sharing options...
Ruslan R Опубліковано: 28 травня 2013 Поділитись Опубліковано: 28 травня 2013 См. вариант, о котором написал Ruslan R выше, и еще вариант 2. В варианте 2 особо экономии на профиле не будет (будет но не существенно). По статическому расчету стойки (вертикального профиля) от ветровой нагрузки, требуемый момент инерции профиля должен быть не менее 357.0 см4 (см. ниже страницу из каталога, там стойка 170мм с моментом инерции Jx=487,6см4).Статический расчет стойки от ветровой нагрузки.rar Посилання на коментар Поділитися на інших сайтах More sharing options...
Ruslan R Опубліковано: 28 травня 2013 Поділитись Опубліковано: 28 травня 2013 А можете показать ригель(горизонтальный соединитель) Политек, с моментом инерции? И как крепиться горизонтально. Там в качестве несущих элементов используются стальные трубы (см. ниже страницу из каталога). Моменты инерции там нужно умножать на 3 (модуль упругости у стали в 3 раза больше, чем у алюминия). Ригеля крепятся с помощью вкладышей (см. ниже страницу из каталога). P.S. Не знаю по стоимости как сейчас эта система, но раньше была раза в 2 дороже Reynaers. Сейчас может используют стальные трубы нашего производства (на металлобазе ржавые покупают) для удешевления, с немецкими оцинкованными трубами дешевле не будет точно. Посилання на коментар Поділитися на інших сайтах More sharing options...
mgerbut Опубліковано: 28 травня 2013 Поділитись Опубліковано: 28 травня 2013 Уточню, высота 5 м, ширина 2,40 м. . Такое окно можно делать одним стеклопакетом. Однокамерным с двумя каленными 10 мм энергосберегающими стёклами. Цена такого стеклопакета примерно 50 тыс гривен. Плюс рама, доставка, монтаж. Это может быть еще 20-30 тыс. К сожалению, присоска на манипулятор, способная вращать такой пакет (он изготавливается и транспортируется в горизонтальном положении) пока только одна в Украине. Думаю, скоро увидимся ;) Посилання на коментар Поділитися на інших сайтах More sharing options...
Ruslan R Опубліковано: 28 травня 2013 Поділитись Опубліковано: 28 травня 2013 Такое окно можно делать одним стеклопакетом. Однокамерным с двумя каленными 10 мм энергосберегающими стёклами. Поддерживаю, такое возможно Цена такого стеклопакета примерно 50 тыс гривен. Плюс рама, доставка, монтаж. Это может быть еще 20-30 тыс. Из Белоруссии везти нужно. А если вдруг треснет при транспортировке или монтаже? P.S. Помню (2010г.) когда везли стеклопакеты из Белоруссии (самые большие были 3160х4460мм - 2шт.), то их стоимость была более 100тыс грн./за 1шт. + страховка в случае разбития. Ну там заказчику по барабану была стоимость, домик у него был почти 1000м.кв., свой причал и т.д. К сожалению, присоска на манипулятор, способная вращать такой пакет (он изготавливается и транспортируется в горизонтальном положении) пока только одна в Украине. Плохо владеете информацией, их больше (две так точно знаю в Киеве). Посилання на коментар Поділитися на інших сайтах More sharing options...
Яло Опубліковано: 29 травня 2013 Поділитись Опубліковано: 29 травня 2013 Из Белоруссии везти нужно. А если вдруг треснет при транспортировке или монтаже? Зачем же из Белоруссии? 1 Посилання на коментар Поділитися на інших сайтах More sharing options...
Валерий Валентинович Опубліковано: 29 травня 2013 Поділитись Опубліковано: 29 травня 2013 К сожалению, присоска на манипулятор - только одна в Украине. Выкупил? :D Из Белоруссии везти нужно. А-та-та. Обращайся, если чё. ;) Посилання на коментар Поділитися на інших сайтах More sharing options...
mgerbut Опубліковано: 29 травня 2013 Поділитись Опубліковано: 29 травня 2013 Плохо владеете информацией, их больше (две так точно знаю в Киеве). вес этого пакета - почти тонна. у кого еще такая присоска есть? А-та-та. Обращайся, если чё. ;) 5х2,4 в украине? кто? Добавлено через 17 минут Выкупил? :D согласен, надо исправить "к сожалению" на "к счастью" :D Посилання на коментар Поділитися на інших сайтах More sharing options...
Ruslan R Опубліковано: 29 травня 2013 Поділитись Опубліковано: 29 травня 2013 А-та-та. Обращайся, если чё. ;) А забыл. Паритет же может 3000х6000мм закалить. вес этого пакета - почти тонна. С математикой плохо? Однокамерный стеклопакет из 2-х 10мм стекол 5000х2400мм. Сколько вес будет? Правильно 600кг. Посилання на коментар Поділитися на інших сайтах More sharing options...
ko&ko Опубліковано: 29 травня 2013 Поділитись Опубліковано: 29 травня 2013 вес этого пакета - почти тонна. у кого еще такая присоска есть? 5х2,4 в украине? кто? До 750кг, обращайтесь если чего. За не дорого выручу. Добавлено через 30 минут Выкупил? :D А-та-та. Обращайся, если чё. ;) Кстати, а есть уже фотки пакетов из новой Одесской печки? Посилання на коментар Поділитися на інших сайтах More sharing options...
Ruslan R Опубліковано: 29 травня 2013 Поділитись Опубліковано: 29 травня 2013 До 750кг, обращайтесь если чего. За не дорого выручу. Вот, уже три "присоски" знаю Посилання на коментар Поділитися на інших сайтах More sharing options...
mgerbut Опубліковано: 29 травня 2013 Поділитись Опубліковано: 29 травня 2013 До 750кг, обращайтесь если чего. За не дорого выручу. Все отписавшиеся за присоски точно имеют ввиду присоску, способную ВРАЩАТЬ такие пакеты? Все помним, что линия и стекловозы имеют пять метров в длинну, а не высоту? Может я отстал от жизни, но 5000х3200 в украине не способен изготовить никто. Если нет, "имя, сестра, имя!" (с) Посилання на коментар Поділитися на інших сайтах More sharing options...
Ruslan R Опубліковано: 29 травня 2013 Поділитись Опубліковано: 29 травня 2013 Может я отстал от жизни, но 5000х3200 в украине не способен изготовить никто. А откуда уже размер 3200мм взялся? Посилання на коментар Поділитися на інших сайтах More sharing options...
mgerbut Опубліковано: 29 травня 2013 Поділитись Опубліковано: 29 травня 2013 А откуда уже размер 3200мм взялся? Мне домой надо очень. А везти из поляндии или латвии- влом. Посилання на коментар Поділитися на інших сайтах More sharing options...
star_a Опубліковано: 30 травня 2013 Поділитись Опубліковано: 30 травня 2013 На Украине врядле((((. Оптимальный вариант Польша. Посилання на коментар Поділитися на інших сайтах More sharing options...
ko&ko Опубліковано: 30 травня 2013 Поділитись Опубліковано: 30 травня 2013 Мне домой надо очень. А везти из поляндии или латвии- влом. Можно обойти данный вопрос: Вариант 1. Заложить проем. Вариант 2. Поделить конструкцию. Вариант 3. Не мечтать. Если вам влом заниматься поставкой из Польши или Латвии: Вариант 1. Отдайте деньги например мне, организую поставку. Вариант 2. Не делайте таких заказов. Вариант 3. Мечтайте о чем то другом. 1 Посилання на коментар Поділитися на інших сайтах More sharing options...
Stepashka Опубліковано: 6 червня 2013 Поділитись Опубліковано: 6 червня 2013 Здравствуйте, уважаемые специалисты. Подскажите пожалуйста по вот такому вопросу: в доме есть два проёма под большие окна (хочется побольше природного света), на первом этаже размер 3500х2400 (ширина-высота), на втором 2600х2400, это уже с учётом уровня пола. Из всего того что я прочитала, пришла к выводу что нужны двухкамерные, закалённое стекло, с газом. Возможно стоит сделать из алюминия? Также хочется чтоб конструкция была раздвижной. И ещё, есть идея сделать веранду застеклённой (возможность укрыться когда дождь или снег), так как сверху балкон второго этажа, но сделать её в виде гармошки и из двух частей, так как на углу будет колонна. Тут уже конструкция побольше получается: 5920х3150 (ш,в) и 2020х3150. Как она будет выглядеть ещё даже не думала, но почитав форум поняла что просто с ней точно не будет Вобщем ко всему своему многословию добавляю картинки (немного кривоватые, но как уж смогла нарисовать ) P.S.: собираемся на днях уже выбирать окна и хотелось бы владеть информацией, чтоб лапши не навешали. Заранее всем большое спасибо Посилання на коментар Поділитися на інших сайтах More sharing options...
Ruslan R Опубліковано: 6 червня 2013 Поділитись Опубліковано: 6 червня 2013 Здравствуйте, уважаемые специалисты. Подскажите пожалуйста по вот такому вопросу: в доме есть два проёма под большие окна (хочется побольше природного света), на первом этаже размер 3500х2400 (ширина-высота), на втором 2600х2400, это уже с учётом уровня пола. Из всего того что я прочитала, пришла к выводу что нужны двухкамерные, закалённое стекло, с газом. Возможно стоит сделать из алюминия? Также хочется чтоб конструкция была раздвижной. Если из алюминия, то из подъемно-раздвижной системы делайте. Например Reynaers CP155LS. Только очень дорогая эта система. P.S. Скорее всего предложат сейчас портал из ПВХ... он будет в несколько раз дешевле... Господа "пластмасники" без обид И ещё, есть идея сделать веранду застеклённой (возможность укрыться когда дождь или снег), так как сверху балкон второго этажа, но сделать её в виде гармошки и из двух частей, так как на углу будет колонна. Тут уже конструкция побольше получается: 5920х3150 (ш,в) и 2020х3150. Как она будет выглядеть ещё даже не думала, но почитав форум поняла что просто с ней точно не будет Тут высота большая. Даже из алюминия такое не сделать. Максимальная высота гармошки возможна 3000мм, также в очень дорогой системе Reynaers CF77. 1 Посилання на коментар Поділитися на інших сайтах More sharing options...
Алік Опубліковано: 6 червня 2013 Поділитись Опубліковано: 6 червня 2013 С высотой 2400 проблем больших не будет, а вот с 3150 что-то нужно делать, как-то делить и/или уменьшать. П.С. Ну, в общем - обращайтесь. Лапшу вешать точно не буду. Добавлено через 5 минут Господа "пластмасники" без обид Мы не "пластмасники", мы - специалисты по ПВХ (и не только)!:D Какие обиды? 2 Посилання на коментар Поділитися на інших сайтах More sharing options...
Ruslan R Опубліковано: 6 червня 2013 Поділитись Опубліковано: 6 червня 2013 Мы не "пластмасники", мы - специалисты по ПВХ (и не только)!:D Какие обиды? я буду теперь вас "пласмастниками" называть, так лучше звучит Посилання на коментар Поділитися на інших сайтах More sharing options...
Рекомендовані повідомлення
Створіть акаунт або увійдіть у нього для коментування
Ви маєте бути користувачем, щоб залишити коментар
Створити акаунт
Зареєструйтеся для отримання акаунта. Це просто!
Зареєструвати акаунтУвійти
Вже зареєстровані? Увійдіть тут.
Увійти зараз