Pasha Опубліковано: 2 липня 2008 Поділитись Опубліковано: 2 липня 2008 (змінено) Этап «Идея» Идея о необходимости постройки своего дома пришла практически сразу после свадьбы. Еще, будучи в свадебном путешествии, мы с женой начали обговаривать различные варианты. С одной стороны можно снимать квартиру, с другой стороны можно втянуться в пожизненный кредит и взять 1-2х комнатную квартирку где-то на окраине спального района. *После долгих взвешиваний разных вариантов, ничего лучше и привлекательнее, чем постройка своего дома не приходило в голову. *Итак, после кооперации с родственниками, решили строить одним большой раздельных двух семейных дом. Главные критерии: свой участок, где будут спокойно гулять дети, чистый воздух, отсутствие давящих и не хватающих квадратных метров на каждого члена семьи, свой сад. Не буду говорить о минусах городской жизни, так как сам являюсь коренным Киевлянином, но мы твердо понимаем что работать надо в городе, а жить за городом в своем доме. Этап «Участок» Место для этого выбрали в 30км от метро и в 20-ти минутах езды по Одесской трассе. Село Большая Солтановка. С одной стороны, быть может и далековато, а с другой стороны 20 минут по качественной, скоростной дороге иногда лучше 10-ти минут по однополоске с пожизненными пробками. Покупали до кризиса, с чувством «завтра будет дорожать». Покупали дорого и многое тогда еще не знали. Самое главное не были пуганы про коммуникации, а именно про электричество. *Участок был в поле – электричество там не было вообще никакого. Ближайшие столбы 10кВ на расстоянии 1км. Этап «Вынос в натуру» В июне 2008 года, с помощью фирмы Геотест, вынесли участок в натуру. Так как участок был в поле, с чистой совестью вбили колышки и начали процесс стройки. Только потом оказалось, что участок смещен на ~10 метров в сторону. В итоге, всё-таки доказали свою правоту и то, что вынос GPSом нужно делать а не дальномером. После этого все участки на нашем массиве уже выносились правильно, через GPS и «плясали» с нашими координатами. Слава Богу, что так все конечно закончилось, но волосы седые на этом этапе появились. Этап «Проект» Был разработан проект у архитектора Гречуха) который потом был успешно согласован в ГАСКе. Получено разрешение в сельсовете, пожарке, сэс и др. инстанциях. Этап «Фундамент» Июнь 2009 года, положили фундамент. Заложили все трубы для будущих коммуникаций. Фундамент делали монолитный, с хорошим заглублением. Еще сделали под гаражем погреб, как говорится «для картоплі» Этап «Стены» Дом строим из газоблока UDK «под клей» с армированием и монолитным перекрытием. *Считаю что это один из оптимальных материалов на сегодня. Знаете, дом перезимовал без крыши и я видел, как в доме было по колено воды после того, как растаял зимний снег. Приехав через неделю в дом, тот стоял уже сухой и даже следа от воды или зимы не было заметно на блоках. Этап «Электричество» В метрах 70 от моей стройки проходит линия 10кВ, хотя, когда я покупал участок ее вообще не было. Можно сказать, что она практически единственная линия в столь близком расстоянии. Очень спасает, что нас уже собралось 9 застройщиков и мы дружно начали эту эпопею с электрификацией. Ставили ТП и тянули линию, воспользовавшись услугами фирмы Энкор с нашего форума. Скажу сразу, одному это делать нереально. И когда я начинал строить фундамент этой линии еще не было. Как я ошибался когда думал что электричество просто. Итого на выходе я имею 3 фазы по 50А автоматы. Цена под ключ ТП+0,4+документы – 12000$. (См. пост №55 – 76) Этап «Крыша» В 2012 году делаем крышу из немецкой металлочерепицы Тиссонгрупп, в профиле Monterey. Основной критерий – качество металла. 0,5 толщина, мат, PEMA. Ушло около 40 кубов леса и 600 кв.м. металла. Стропильная часть заняла ровно месяц от общего времени. (пост №79 – 107) Крыша была подшита пластиком. Особое внимание было уделено сопутствующим материалам таким как евробарьер и другие кровельные пленки. Мансардные окна - однозначно только Rotto Гаражные ворота, входные двери, окна Устанавливал входные бронедвери воспользовавшись услугами диллера Максима. Ворота Ryterna, двери "Страж стабелит". Металлопластиковые окна заказывал у форумчанки Марии Доброе_утро. Нашел эти варианты оптимальными по соотношению цена/качество. Ну а время, покажет. Внутренняя разводка электрики по дому. Делали сами. Очень помог тесть. Он у нас электрик, поэтому очень выручил. Объемы просто шокирующие. На дом ушло несколько км провода. На УЗО и автоматах не жалел. Покупал только Hager в специализированном магазине Струмок. У них есть сертификаты на все устройства. Базарам не доверяю. Змінено 28 листопада 2012 користувачем Pasha Просьба ТС 5 Посилання на коментар Поділитися на інших сайтах More sharing options...
Pasha Опубліковано: 2 липня 2008 Автор Поділитись Опубліковано: 2 липня 2008 (змінено) Кажется придумал оригинальный способ ответить на вопрос многих "сколько стоит дом построить" Размещаю в своей ветке рисунок, который лежит у меня на хостинге, который я буду постоянно обновлять в процессе стройки. Змінено 15 березня 2013 користувачем InSAn По просьбе автора 2 Посилання на коментар Поділитися на інших сайтах More sharing options...
Pasha Опубліковано: 2 липня 2008 Автор Поділитись Опубліковано: 2 липня 2008 Проведено Расход 22.05.2008 Проект "Стройка в Солтановке" 200,00 UAH 1 не представился Основной счет перевозка опалубка 22.05.2008 17:17:19 Проведено Расход 22.05.2008 Проект "Стройка в Солтановке" 1 400,00 UAH 1 не представился Основной счет машина щебеня для фундамента 22.05.2008 17:19:07 Проведено Расход 22.05.2008 Проект "Стройка в Солтановке" 44,00 UAH 1 не представился Основной счет проволка для связки арматуры 22.05.2008 17:50:52 Проведено Расход 22.05.2008 Проект "Стройка в Солтановке" 35,00 UAH 1 не представился Основной счет гвозди для опалубков 22.05.2008 17:55:30 Проведено Расход 22.05.2008 Проект "Стройка в Солтановке" 169,40 UAH 1 не представился Основной счет трубы для воды (диам 25мм) 22.05.2008 17:55:53 Проведено Расход 22.05.2008 Проект "Стройка в Солтановке" 4 292,00 UAH 1 не представился Основной счет опалубки (1242грн брус, 3000грн достка, 50грн погрузка) 22.05.2008 17:56:47 Проведено Расход 23.05.2008 Проект "Стройка в Солтановке" 10 189,00 UAH 1 не представился Основной счет арматура 23.05.2008 12:53:37 Проведено Расход 28.05.2008 Проект "Стройка в Солтановке" 39 600,00 UAH 1 не представился Основной счет 11 миксеров с бетоном по 6кубов, 3600грн за миксер 28.05.2008 18:18:13 Проведено Расход 28.05.2008 Проект "Стройка в Солтановке" 10 800,00 UAH 1 не представился Основной счет 3 миксера (6кубов)х3600грн 28.05.2008 18:20:30 Проведено Расход 30.05.2008 Проект "Стройка в Солтановке" 200,00 UAH 1 не представился Основной счет доставка арматуры 30.05.2008 17:14:17 Проведено Расход 30.05.2008 Проект "Стройка в Солтановке" 38,00 UAH 1 не представился Основной счет вязальная проволка 3кг 30.05.2008 17:15:44 Проведено Расход 30.05.2008 Проект "Стройка в Солтановке" 20,00 UAH 1 не представился Основной счет за использование света соседнего участка 30.05.2008 17:16:02 Проведено Расход 30.05.2008 Проект "Стройка в Солтановке" 210,00 UAH 1 не представился Основной счет проволка для опалубки 30.05.2008 17:16:29 Проведено Расход 30.05.2008 Проект "Стройка в Солтановке" 70,00 UAH 1 не представился Основной счет вязальная проволка 30.05.2008 17:16:44 Проведено Расход 30.05.2008 Проект "Стройка в Солтановке" 55,00 UAH 1 не представился Основной счет гвозди 30.05.2008 17:16:54 Проведено Расход 30.05.2008 Проект "Стройка в Солтановке" 231,00 UAH 1 не представился Основной счет уголки для гаража 30.05.2008 17:17:10 Проведено Расход 30.05.2008 Проект "Стройка в Солтановке" 24,00 UAH 1 не представился Основной счет резка уголка 30.05.2008 17:17:25 Проведено Расход 30.05.2008 Проект "Стройка в Солтановке" 8 400,00 UAH 1 не представился Основной счет 2 миксера по 7 кубов 30.05.2008 17:17:50 Проведено Расход 30.05.2008 Проект "Стройка в Солтановке" 1 500,00 UAH 1 не представился Основной счет день работы экскаватора 30.05.2008 19:50:39 Проведено Расход 30.06.2008 Проект "Стройка в Солтановке" 5 000,00 USD 4,7326 не представился Основной счет оплата рабочим за стройку фундамента 30.06.2008 22:56:39 -ИТОГО.= 101 053,90 UAH Посилання на коментар Поділитися на інших сайтах More sharing options...
Pasha Опубліковано: 2 липня 2008 Автор Поділитись Опубліковано: 2 липня 2008 Вынос в натуру. Фирма ГеоТест. Всем очень советую делать именно у них. stroimdom.com.ua/forum/showthread.php?t=4772 Посилання на коментар Поділитися на інших сайтах More sharing options...
Leslie Опубліковано: 23 липня 2008 Поділитись Опубліковано: 23 липня 2008 Паша, участок какого размера? Посилання на коментар Поділитися на інших сайтах More sharing options...
Pasha Опубліковано: 23 липня 2008 Автор Поділитись Опубліковано: 23 липня 2008 Паша, участок какого размера? 27x56 (27 по фасаду) Посилання на коментар Поділитися на інших сайтах More sharing options...
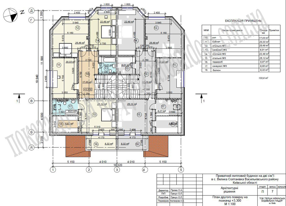
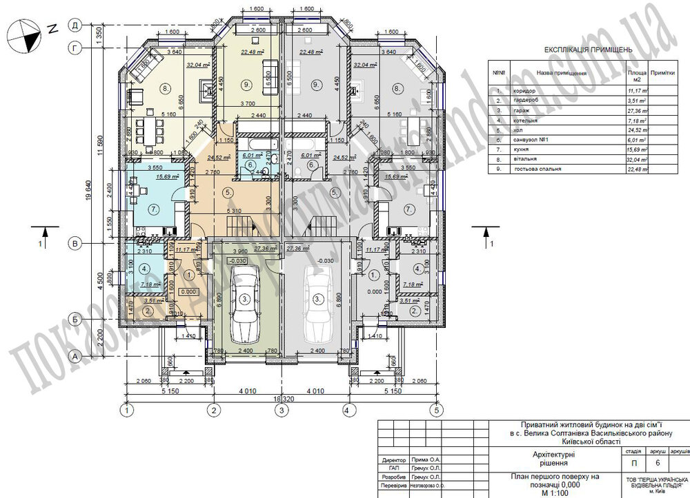
Pasha Опубліковано: 6 серпня 2009 Автор Поділитись Опубліковано: 6 серпня 2009 итак прошел год.... продолжаю ветку. За это время был создал проект и получены все дозволы на строительство. Отдельное спасибо архитектору Олегу Гречуху ( stroimdom.com.ua/forum/member.php?u=3540 ) за создание проекта который я смог официально утвердить. Хочу отметить что когда я подавал "папку" в последнюю инстанцию ГАСК, мне сделали комплимент за хорошо оформленный проект и за присутствие всех нужных документов. Отдельно все самое положительное о сотрудничестве с Олегом я напишу в БС - stroimdom.com.ua/forum/showthread.php?t=14928 Посилання на коментар Поділитися на інших сайтах More sharing options...
Pasha Опубліковано: 6 серпня 2009 Автор Поділитись Опубліковано: 6 серпня 2009 вот так это будет выглядеть.... Посилання на коментар Поділитися на інших сайтах More sharing options...
Pasha Опубліковано: 6 серпня 2009 Автор Поділитись Опубліковано: 6 серпня 2009 Еще осенью посадил фруктовые деревья и виноград. Думаю пока стройка будет идти, пусть себе садик растет ;) 1 Посилання на коментар Поділитися на інших сайтах More sharing options...
Pasha Опубліковано: 6 серпня 2009 Автор Поділитись Опубліковано: 6 серпня 2009 весной 2009 было сделано: - прокладка канализационных труб - заливка фундамента под ноль песок 1 маш 1000 арматура штучно 8000 бетон 30куб 15000 работа 6000 щебень 2маш 2200 трубы 1500 +др ИТОГО: ~35000 грн (приблизительно) * май 2009г. Посилання на коментар Поділитися на інших сайтах More sharing options...
Chuk Опубліковано: 7 серпня 2009 Поділитись Опубліковано: 7 серпня 2009 ИТОГО: ~35000 грн (приблизительно) * май 2009г. Это у Вас затраты на весь дом или на половину? Просто мы тоже строим с мая 2008-го дом на две семьи и расходы по фундаменту почти одинаковые, но наш дом гАраздо меньше. Посилання на коментар Поділитися на інших сайтах More sharing options...
Pasha Опубліковано: 7 серпня 2009 Автор Поділитись Опубліковано: 7 серпня 2009 (змінено) Это у Вас затраты на весь дом или на половину? Просто мы тоже строим с мая 2008-го дом на две семьи и расходы по фундаменту почти одинаковые, но наш дом гАраздо меньше. на весь дом. только это заливка чернового пола. начало фундамента смотрите в начале топика. итого около 140000 грн фуднамент вышел. Змінено 7 серпня 2009 користувачем Pasha Посилання на коментар Поділитися на інших сайтах More sharing options...
Chuk Опубліковано: 7 серпня 2009 Поділитись Опубліковано: 7 серпня 2009 на весь дом. только это заливка чернового пола. начало фундамента смотрите в начале топика. итого около 140000 грн фуднамент вышел. Да, я так и понял, что 101+35 за весь. Всё равно отличный результат! У нас вышло немногим меньше 100 при размерах 15х9 за аналогичный фронт работ. Судя по фото у вас ещё присутствеут подвал, или это погреб под гаражом? Если не секрет - кто хозяин второй половины: родственник, друг? и почему выбор в пользу один дом на две семьи, а не два отдельных? место ведь позволяет, насколько я понял у вас 15 соток!? Посилання на коментар Поділитися на інших сайтах More sharing options...
Pasha Опубліковано: 7 серпня 2009 Автор Поділитись Опубліковано: 7 серпня 2009 Да, я так и понял, что 101+35 за весь. Всё равно отличный результат! У нас вышло немногим меньше 100 при размерах 15х9 за аналогичный фронт работ. Спасибо! Судя по фото у вас ещё присутствеут подвал, или это погреб под гаражом? Да, под гаражем полноценный подвал на всех двух половинах. Если не секрет - кто хозяин второй половины: родственник, друг? и почему выбор в пользу один дом на две семьи, а не два отдельных? место ведь позволяет, насколько я понял у вас 15 соток!? Да собственно не секрет - наши очень близкие родственники. Фактически будет просто большая семья ;) Напротив моего дома человек тоже строит двухсемейный дом. Наверное решение пользуется популярностью и эконмически обосновано ;) Посилання на коментар Поділитися на інших сайтах More sharing options...
Gubin Опубліковано: 7 серпня 2009 Поділитись Опубліковано: 7 серпня 2009 Извините что вставляю свои 5 копеек, тоже строю дом на две семьи с младшим братом, думаю что удачное решение , главное не пересориться за период стройки. Посилання на коментар Поділитися на інших сайтах More sharing options...
Chuk Опубліковано: 7 серпня 2009 Поділитись Опубліковано: 7 серпня 2009 Извините что вставляю свои 5 копеек, тоже строю дом на две семьи с младшим братом, думаю что удачное решение , главное не пересориться за период стройки. +1 Строюсь со старшим братом - главное изначально решить кто командует процессом! это касательно общестроительных вопросов, то что внутри каждый сам себе хозяин-барин! Желаю успехов топикстартеру в его стройке и больше не буду захламлять ветку. Посилання на коментар Поділитися на інших сайтах More sharing options...
Pasha Опубліковано: 31 липня 2010 Автор Поділитись Опубліковано: 31 липня 2010 Прошел год. Продолжаю записи в ветке. За это время было сделано: - выкопан колодец (11 метров) - посажен виноград, фруктовые деревья - залит черновой пол. Посилання на коментар Поділитися на інших сайтах More sharing options...
Pasha Опубліковано: 31 липня 2010 Автор Поділитись Опубліковано: 31 липня 2010 Июль 2010. Привез 60 кубов газоблоков ЮДК. Для разгрузки был нанят кран. Посилання на коментар Поділитися на інших сайтах More sharing options...
Pasha Опубліковано: 31 липня 2010 Автор Поділитись Опубліковано: 31 липня 2010 (змінено) Для гидроизоляции между фундаментом и кладкой выбрал "евроруберойд" 2,5мм Змінено 31 липня 2010 користувачем Pasha Посилання на коментар Поділитися на інших сайтах More sharing options...
Pasha Опубліковано: 31 липня 2010 Автор Поділитись Опубліковано: 31 липня 2010 заказал машину песка 13 тонн, 700 грн. Песок привезли очень хорошего качества. Строители сказали что на "отлично" Посилання на коментар Поділитися на інших сайтах More sharing options...
Pasha Опубліковано: 31 липня 2010 Автор Поділитись Опубліковано: 31 липня 2010 Кладка первого блока. Первый ряд кладем на раствор. (цемент 500 марки) Каждый блок тщательно проверяется "уровнем" Посилання на коментар Поділитися на інших сайтах More sharing options...
Pasha Опубліковано: 31 липня 2010 Автор Поділитись Опубліковано: 31 липня 2010 Заказал 2400 рядового кирпича для кладки дымоходов и др. Цена 1,15 грн /шт Кирпич привезли очень хорошего качества. Когда зил высыпал, боя практически не было. 2 Посилання на коментар Поділитися на інших сайтах More sharing options...
Pasha Опубліковано: 31 липня 2010 Автор Поділитись Опубліковано: 31 липня 2010 Ура. Появляется первый ряд домика 1 Посилання на коментар Поділитися на інших сайтах More sharing options...
syrik_81 Опубліковано: 31 липня 2010 Поділитись Опубліковано: 31 липня 2010 Ура. Появляется первый ряд домика Поздровляю с начатием. 2 Посилання на коментар Поділитися на інших сайтах More sharing options...
Pasha Опубліковано: 2 серпня 2010 Автор Поділитись Опубліковано: 2 серпня 2010 первый ряд газоблоков, армирую арматурой д-8, в два ряда. Посилання на коментар Поділитися на інших сайтах More sharing options...
Рекомендовані повідомлення
Створіть акаунт або увійдіть у нього для коментування
Ви маєте бути користувачем, щоб залишити коментар
Створити акаунт
Зареєструйтеся для отримання акаунта. Це просто!
Зареєструвати акаунтУвійти
Вже зареєстровані? Увійдіть тут.
Увійти зараз