likee Опубліковано: 11 березня 2013 Автор Поділитись Опубліковано: 11 березня 2013 likee,а надо ли??? Я планирую поставить вытяжной контур (кухня, котельная, санузлы) - а приток будет происходить путем естественной приточки - при открытиях дверей например. Кондиционеры не решат проблему вентиляции - только обогрев\охлаждение (в этом контесте кстати советую посмотреть на инвентроные ТН воздух\воздух - весьма интересная тема - и за разумные деньги). Не вижу смысла делать разводку вентиляции. Да и по деньгам веьсма накладно получается... Вытяжки у меня также будут Меня интересует охлаждение летом прежде всего и плюс к отоплению зимой Посилання на коментар Поділитися на інших сайтах More sharing options...
_LE_ Опубліковано: 11 березня 2013 Поділитись Опубліковано: 11 березня 2013 likee, Так тогда вопрос не в вентканалах - по моему скромному мнению для небольшого дома это избыточное решение ... А в инвенторном кондиционеое ( суть тн воздух- воздух), способном работать до минус 15-20. Даст и холод и тепло. Посилання на коментар Поділитися на інших сайтах More sharing options...
likee Опубліковано: 12 березня 2013 Автор Поділитись Опубліковано: 12 березня 2013 likee, Так тогда вопрос не в вентканалах - по моему скромному мнению для небольшого дома это избыточное решение ... А в инвенторном кондиционеое ( суть тн воздух- воздух), способном работать до минус 15-20. Даст и холод и тепло. а где можно почитать про такие кондиционеры? Посилання на коментар Поділитися на інших сайтах More sharing options...
_LE_ Опубліковано: 12 березня 2013 Поділитись Опубліковано: 12 березня 2013 likee,в разделе Альтернативніе источники єнергии и тепла, темі "Раскажите про хваленій Мицубиши Зубадан и ТН воздух-воздух.Новинки. Для себя решил следующее - зубадан конечно потрясающий аппарат, но и стоит не мало. А вот Купер и Хантер нордика (с подогревом поддона) до минус 10 должен давать СОР на уровне 3 - что меня вполне устраивает. И цена относительно адекватна - то есть есть смысл попробовать. Сугубо ИМХО Посилання на коментар Поділитися на інших сайтах More sharing options...
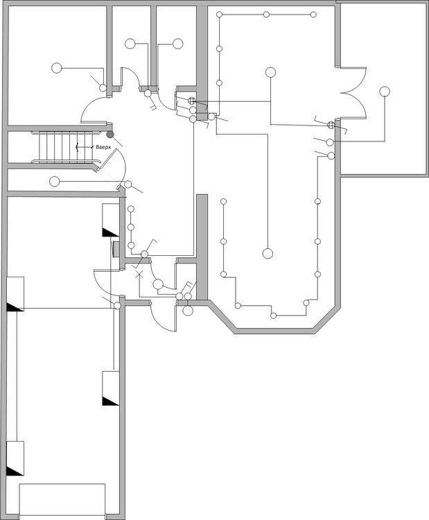
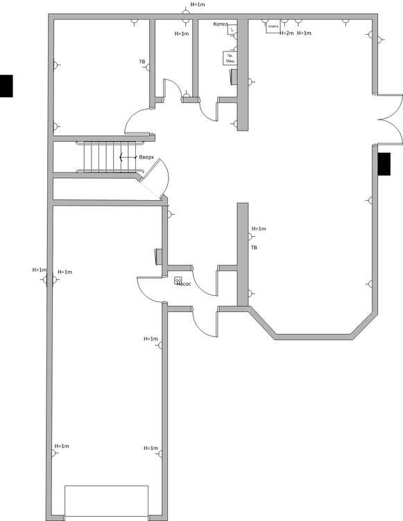
likee Опубліковано: 20 березня 2013 Автор Поділитись Опубліковано: 20 березня 2013 А вот так предварительно выглядит размещение электрики в домесвет 1.pdfсвет 2.pdf Посилання на коментар Поділитися на інших сайтах More sharing options...
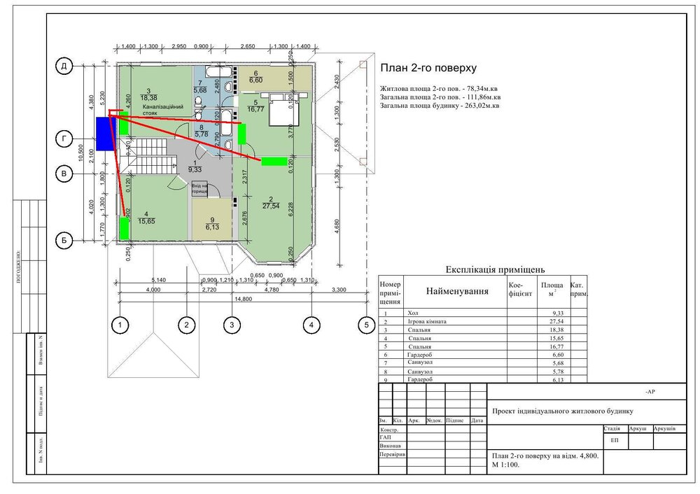
likee Опубліковано: 20 березня 2013 Автор Поділитись Опубліковано: 20 березня 2013 а так размещение кондиционеров Как по мне это самый лучший вариант, по соотношению цены качества. Сразу конечно на 2 этаже я не буду ставить 4 внутренних блока, но инженерию пож них заложу, а потом по мере роста семьи доустанавливать Посилання на коментар Поділитися на інших сайтах More sharing options...
likee Опубліковано: 21 березня 2013 Автор Поділитись Опубліковано: 21 березня 2013 А вот собственно уже финальный вариант по розеткам и по освещению Что скажете господа ? я думаю, что не многие прибегают к решению с двумя щитками? Посилання на коментар Поділитися на інших сайтах More sharing options...
bgt Опубліковано: 24 березня 2013 Поділитись Опубліковано: 24 березня 2013 я думаю, что не многие прибегают к решению с двумя щитками? У меня получилось три силовых и один слаботочки... Причем на каждый силовой разделили вводы. Есть основная группа от ввода в дом и есть потребители с возможностью запитки от генератора... Посилання на коментар Поділитися на інших сайтах More sharing options...
likee Опубліковано: 25 березня 2013 Автор Поділитись Опубліковано: 25 березня 2013 Кстати, есть два вопроса: 1. слаботочка, нужна зачем? чтобы выделать для нее отдельный щиток? ее так много? 2. как предусмотреть подключение генератора? Посилання на коментар Поділитися на інших сайтах More sharing options...
bgt Опубліковано: 25 березня 2013 Поділитись Опубліковано: 25 березня 2013 Кстати, есть два вопроса: 1. слаботочка, нужна зачем? чтобы выделать для нее отдельный щиток? ее так много? 2. как предусмотреть подключение генератора? У меня слаботочка подразумевает, ТВ, интернет, телефон, видео наблюдение, сигнализация. Поэтому выделил отдельный щиток. Генератор,в моем случае будет стоять автоматика, на которую приходит вводной кабель. При отключении ввода (или при падении напряжения) автоматически будет запускаться гена, но при этом духовка, стиралка, посудомойка, кондеры будут отключатся. Посилання на коментар Поділитися на інших сайтах More sharing options...
likee Опубліковано: 17 квітня 2013 Автор Поділитись Опубліковано: 17 квітня 2013 Кстати. продаю участок земли. Вот здесь описание : www.stroimdom.com.ua/forum/showthread.php?t=125307 так что если кому нужно, пишите Посилання на коментар Поділитися на інших сайтах More sharing options...
likee Опубліковано: 25 квітня 2013 Автор Поділитись Опубліковано: 25 квітня 2013 А мы начали делать электрику Посилання на коментар Поділитися на інших сайтах More sharing options...
_LE_ Опубліковано: 25 квітня 2013 Поділитись Опубліковано: 25 квітня 2013 likee,ну так фотки в студию !!! Посилання на коментар Поділитися на інших сайтах More sharing options...
likee Опубліковано: 2 травня 2013 Автор Поділитись Опубліковано: 2 травня 2013 разводку проводов закончили также под шумок сделал разводку всех комуникаций под кондиционеры ) чтобы потм не долбать следующий шаг это внутренние работы, фасад и куча всего другого ) а еще забыл, еще нужно окончательно утвердить смету по канализации и отоплению от теплых полов решили отказаться Посилання на коментар Поділитися на інших сайтах More sharing options...
Maris Опубліковано: 2 травня 2013 Поділитись Опубліковано: 2 травня 2013 разводку проводов закончили также под шумок сделал разводку всех комуникаций под кондиционеры ) чтобы потм не долбать следующий шаг это внутренние работы, фасад и куча всего другого ) а еще забыл, еще нужно окончательно утвердить смету по канализации и отоплению от теплых полов решили отказаться еще бы фото посмотреть;) а теплые почему решили не делать? Посилання на коментар Поділитися на інших сайтах More sharing options...
likee Опубліковано: 17 травня 2013 Автор Поділитись Опубліковано: 17 травня 2013 Сегодня заехала основная бригада строителей так что сезон можно считать окончательно открытым. Правда куда-то пропал Саша, который должен был делать мне все что связано с отоплением, водоснабжением и канализацией. На телефон не отвечает, надеюсь у него все в порядке и ничего страшного не случилось . В соответствующей ветке открываю снова тендер на вышеперечисленные виды работ. Так что милости просим поучавствовать Добавлено через 18 минут вот ссылка на тендер я туда по мере поступления буду добавлять информацию уточненную www.stroimdom.com.ua/forum/showthread.php?p=2252001#post2252001 Посилання на коментар Поділитися на інших сайтах More sharing options...
likee Опубліковано: 20 травня 2013 Автор Поділитись Опубліковано: 20 травня 2013 Стройка в самом разгаре ))) прокомментируйте, пожалуйста, мои цены на работы как дешево? дорого? очень интересно послушаьт комментарии Посилання на коментар Поділитися на інших сайтах More sharing options...
so-rec Опубліковано: 20 травня 2013 Поділитись Опубліковано: 20 травня 2013 Строители у вас грамотнІе Посилання на коментар Поділитися на інших сайтах More sharing options...
Maris Опубліковано: 20 травня 2013 Поділитись Опубліковано: 20 травня 2013 Стройка в самом разгаре ))) прокомментируйте, пожалуйста, мои цены на работы как дешево? дорого? очень интересно послушать комментарии Как то не понятно штукатурка. как 50+40+30=70:) Уточните по фасаду мож чо забыли еще. Посилання на коментар Поділитися на інших сайтах More sharing options...
likee Опубліковано: 21 травня 2013 Автор Поділитись Опубліковано: 21 травня 2013 Штукатурка плюс шпаклевка 70 грн гипсокартонные работы отдельно 50 грн Добавлено через 1 минуту Строители у вас грамотнІе да тут на форуме много грамотных строителей, которые лупят цены капец главное чтобы строить умели а не были грамотными ) 1 Посилання на коментар Поділитися на інших сайтах More sharing options...
so-rec Опубліковано: 21 травня 2013 Поділитись Опубліковано: 21 травня 2013 да тут на форуме много грамотных строителей, которые лупят цены капец главное чтобы строить умели а не были грамотными ) Согласен . Просто с приходом "тренда" азіровщины такой стиль писанины, стал все чаще улыбать. Хотя тут в общем-то плакать нужно. Посилання на коментар Поділитися на інших сайтах More sharing options...
Татьяна5 Опубліковано: 21 травня 2013 Поділитись Опубліковано: 21 травня 2013 главное чтобы строить умели а не были грамотными ) нормальные цены, даже дешевые Посилання на коментар Поділитися на інших сайтах More sharing options...
likee Опубліковано: 21 травня 2013 Автор Поділитись Опубліковано: 21 травня 2013 Сейчас нужно закупить очень много материалов, обьявляю общий тендер, чтобы получить максимальные скидки. Так что жду предложений по цене Посилання на коментар Поділитися на інших сайтах More sharing options...
likee Опубліковано: 21 травня 2013 Автор Поділитись Опубліковано: 21 травня 2013 вот сам список материаловМатериалы1.xls Посилання на коментар Поділитися на інших сайтах More sharing options...
vale3 Опубліковано: 21 травня 2013 Поділитись Опубліковано: 21 травня 2013 Стройка в самом разгаре ))) прокомментируйте, пожалуйста, мои цены на работы как дешево? дорого? очень интересно послушаьт комментарии Извините вот ту подпись слева я видел у себя в блокноте и делал ее некий ВАНЯ мадьар, он не у вас случайно? Если это он выгоните его в шею он хрыч просто бросит вам все недоделанное и был таков, с грамматикой у него еще у меня были проблемы Посилання на коментар Поділитися на інших сайтах More sharing options...
Рекомендовані повідомлення
Створіть акаунт або увійдіть у нього для коментування
Ви маєте бути користувачем, щоб залишити коментар
Створити акаунт
Зареєструйтеся для отримання акаунта. Це просто!
Зареєструвати акаунтУвійти
Вже зареєстровані? Увійдіть тут.
Увійти зараз