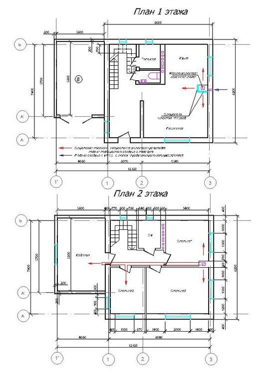
KrotikMC Опубліковано: 20 липня 2012 Поділитись Опубліковано: 20 липня 2012 Здравствуйте, уважаемые форумчане! Хотела бы получить совет по поводу воплощения идеи отопления от камина. Газа нету, трехзонного тарифа пока тоже...НО уже есть каминная топка Nordpeis NI-36V (купленая с помощью одного форумчанина)))..хочется её не просто для красоты поставить - а по возможности и использовать как резервный источник тепла. На данный момент в доме стяжка, штукатурка, разводим коммуникации. Фундамент под камин имеется. Дымоход выше крыши предусмотрен, отверстие в самой крыше проделано. В скором времени хотим приступать к монтажу камина. Что хочется: Раздавать подогретый камином воздух по комнатам 1-го и 2-го этажа. Или хотя бы с помощью решеток в смежные комнаты с камином. Главный вопрос: Как конструктивно это выполнить??? Из чего строить дымоход камина? Шамотный кирпич, или гипсокартонная конструкция, чем утеплять??. Сам дымоход предполагается из нержавейки (какой толщины и марки брать??)...с каких пор его делать утепленным? Как отбирать тепло у выходящих газов? Нужен ли какой-то теплообменник на трубу?? Вентилятор? Сможет ли теплый воздух доходить в дальние комнаты второго этажа? Какой трубой выполнять подачу воздуха с улицы? Может у кого есть схемы такой системы? Или опыт воплощения в жизнь таких проектов? Буду благодарна за любую информацию по теме!! Планы дома прилагаю, фото топки тоже. Посилання на коментар Поділитися на інших сайтах More sharing options...
Прохожий Опубліковано: 20 липня 2012 Поділитись Опубліковано: 20 липня 2012 У меня предусмотрена система воздушного отопления как основная. Камин брался в этом году отопительный - йотул 570 с возможностью подключения разводки воздуха по помещениям. Дымоход керамический Шидель УНИ. Зайдите в ветку по йотулам и почитайте... Посилання на коментар Поділитися на інших сайтах More sharing options...
KrotikMC Опубліковано: 20 липня 2012 Автор Поділитись Опубліковано: 20 липня 2012 (змінено) То есть на практике ваш камин ещё не грел дом в холода?? Спасибо....тем по Ютулам много)...периодически перечитываю...ну а про Нордпис кто-то что -то может сказать? Могу расчитывать на неё как источник отопления...не уточнила - отапливаемая площадь дома 120 м2. Я тему создала, чтоб в моем конкретном случае понять из чего строить дымоход и саму конструкцию камина? Кирпич, гибсокартон или ещё из чего-то?? на месте для камина пока только фундамент, сделаный на всякий случай... Змінено 20 липня 2012 користувачем KrotikMC Посилання на коментар Поділитися на інших сайтах More sharing options...
AndyAntonov Опубліковано: 20 липня 2012 Поділитись Опубліковано: 20 липня 2012 Отапливаемая площадь заявлена до 140 кв. м, мощность 2–10 кВт. Разумеется, в сильные морозы при такой площади её придётся топить непрерывно. Посилання на коментар Поділитися на інших сайтах More sharing options...
KrotikMC Опубліковано: 20 липня 2012 Автор Поділитись Опубліковано: 20 липня 2012 )) Спасибо...эти все данные я читала. Данная топка не будет единственным источником отопления в доме, просто с помощью неё хочу экономить немного электричества... то есть - водяную систему отопления ставлю на поддержание какого то допустимого минимума температуры, а дотапливаю топкой до комфорта. Ну или обогрев в межсезонье. В моем городе нету специалистов по такого рода каминам, поэтому хочется самой разобраться как его устроить. Для этого хотелось бы определить порядок выполнения работ: 1) Установить топку на подготовленый фундамент (ставить на кирпичи или прям на стяжку? ) 2) Подвести воздух снаружи. Теплоизоляция нужна? 3) наружную стену отсечь минераловатным теплоизолятором с фольгой 4) Собрать дымоход из нержавеки. (какая марка и толщина? с каких пор он должен быть утеплен??), устанавливать ли оребренный радиатор? Ставить ли прочистку и капельник, если дымоход полностью прямой?? 5) Сделать пробную протопку. 6) "Обложить" топку с дымоходом шамотным кирпичем или зашивать гипсокартоном с изоляцией??? Что выбрать? Что лучше? 7) В процессе "обкладывания" или обшивания сделать систему распределения теплого воздуха по комнатам - по этому пункту вопросов больше всего) - она может быть эффективна без вентилятора? - Камера от которой отводятся воздуховоды - она изготавливается на заказ или где-то покупается? Я так поняла - это обязательный элемент?? 1 Посилання на коментар Поділитися на інших сайтах More sharing options...
Прохожий Опубліковано: 20 липня 2012 Поділитись Опубліковано: 20 липня 2012 1) Установить топку на подготовленый фундамент (ставить на кирпичи или прям на стяжку? ) 2) Подвести воздух снаружи. Теплоизоляция нужна? 3) наружную стену отсечь минераловатным теплоизолятором с фольгой 4) Собрать дымоход из нержавеки. (какая марка и толщина? с каких пор он должен быть утеплен??), устанавливать ли оребренный радиатор? Ставить ли прочистку и капельник, если дымоход полностью прямой?? 5) Сделать пробную протопку. 6) "Обложить" топку с дымоходом шамотным кирпичем или зашивать гипсокартоном с изоляцией??? Что выбрать? Что лучше? 7) В процессе "обкладывания" или обшивания сделать систему распределения теплого воздуха по комнатам - по этому пункту вопросов больше всего) - она может быть эффективна без вентилятора? - Камера от которой отводятся воздуховоды - она изготавливается на заказ или где-то покупается? Я так поняла - это обязательный элемент?? 1. На стяжку. Уровень камина занижать не очень хорошо исходя из эстетики. 2. Желательна. Чтобы труба подвода не "плакала" 3. Да. Есть специальные плиты. Посмотрите в эпицентре. 4. Если есть возможность - откажитесь от нержавейки. Срок службы значительно меньше чем керамики. Если всё же нержавейка, то утепленная (она уже такая и есть - двухслойная с ватой внутри) и капельники и ревизии обязательно. Это облегчит жизнь в дальнейшем. 5. Ну так Вы для этого и делаете систему... Как же без этого... 6. Лучше гипсом и теми же плитами что я говорил про Эпицентр 7.Да. Система эффективна без вентилятора. Только на конвекции при длине каналов до 15-20 метров ( по крайней мере по Йотулу проскакивала информация) У Йотула "рубашка" камина и камера заказные каталожные элементы. В Вашем случае сказать ничего не могу. Изготовить в принципе сможет любой грамотный жестянщик ( если знает что нужно сделать). 1 Посилання на коментар Поділитися на інших сайтах More sharing options...
KrotikMC Опубліковано: 22 липня 2012 Автор Поділитись Опубліковано: 22 липня 2012 К сожалению, керамика - это дороговато. Так что остается нержавейка...я так и не поняла с каких пор трубу брать утепленную?? Должна ли она быть двухслойная в изоляции в пределах дома?? И ещё в Эпицентре есть черная труба для дымоходов - она хуже нержавейки или нет?? Насчет того, чем обложить или из чего строить саму конструкцию камина - не совсем поняла: что имеется ввиду под гипсом? Чем плох шамотный кирпич? И что за плиты из Эпицентра?? Приложу фото конструкции камина из эпицентра...вы эти плиты имели ввиду?? Насчет рубашки камина и камеры...а если не вести подогретый воздух в дальние комнаты (как я показала на плане в 1-м сообщени), а просто раздать через решетки кухне и гостиной (между которыми и будет находится камин), а на втором этаже двум спальням, через которые будет проходить дымовая труба --- тогда можно без рубашки, камеры и воздуховодов?? Просто 4 решетки по которым воздух будет поступать в помещение?? Но тогда дымоход в пределах второго этажа должен быть не изолирован...так можно сделать???...и нужен ли радиатор как во вложеном файле?? Посилання на коментар Поділитися на інших сайтах More sharing options...
silver8848 Опубліковано: 22 липня 2012 Поділитись Опубліковано: 22 липня 2012 Подпишусь на вашу тему, сам хочу так сделать. Пока только фундамент есть и подвод воздуха снаружи. Дымоход в некоторых источниках рекомендуют вообще не гильзовать, достаточно оштукатурить внутри и применить обычный полнотелый красный кирпич. Посилання на коментар Поділитися на інших сайтах More sharing options...
KrotikMC Опубліковано: 22 липня 2012 Автор Поділитись Опубліковано: 22 липня 2012 Я попыталась графически изобразить упрощенный вариант желаемой системы: Хотелось бы услышать ответы на такие вопросы: 1) работоспособна ли такая конструкция?? 2) Предложите конкретный материал из чего возводить конструкцию?? 3) Вся конструкция делается по ширине топки или шире?? 2) Высота установки радиатора?? 3) Какой брать 0,5 м или 1,0 м?? 4) Высота установки решеток на 1-м и на 2-м этажах?? 5) Нужны ли ещё какие то решетки?? (для подачи воздуха в канал?? И где их предусматривать?) 6) Можно ли не изолировать дымоход в пределах второго этажа??? 7) Есть ли какой то стандартный узел изоляции в районе перекрытия? Или просто взять 0,5 м. двухстенной изолированной трубы?? 8) На что ещё следует обратить внимание?? Посилання на коментар Поділитися на інших сайтах More sharing options...
KrotikMC Опубліковано: 22 липня 2012 Автор Поділитись Опубліковано: 22 липня 2012 Подпишусь на вашу тему, сам хочу так сделать. Пока только фундамент есть и подвод воздуха снаружи. Дымоход в некоторых источниках рекомендуют вообще не гильзовать, достаточно оштукатурить внутри и применить обычный полнотелый красный кирпич. Ок подписывайтесь))...меня тоже этот вопрос волнует с момента возведения фундамента))...а сейчас уже полностью надо определиться как замысел воплотить в жизнь. Насчет гильзования - пока дымоход для ТТ котла загильзовала наслушалась много за и против..теперь вот с камином решить надо) Посилання на коментар Поділитися на інших сайтах More sharing options...
KrotikMC Опубліковано: 23 липня 2012 Автор Поділитись Опубліковано: 23 липня 2012 ну что, никто так и не подскажет про жизнеспособность такой системы?? Посилання на коментар Поділитися на інших сайтах More sharing options...
fitisi Опубліковано: 23 липня 2012 Поділитись Опубліковано: 23 липня 2012 Я сделал такую систему.Использую в зимнее время как дополнение к газу.После топки в течении 3-4 часов температура на 2 этаже (через него проходит стальной дымоход) повышается на 2 градуса.Только я делал в стенке короба дымохода 2 отверстия - снизу и сверху ,чтобы улучшить конвекцию.Причём топка у меня одна из самых простых - В1.Делал сам ,так как считал правильным, ошибки наверняка есть, но система работает. 1 Посилання на коментар Поділитися на інших сайтах More sharing options...
KrotikMC Опубліковано: 27 серпня 2012 Автор Поділитись Опубліковано: 27 серпня 2012 Может кто ответит на вопрос по конструктиву дымохода: как видно на фото камина есть отверстие для подключения дымохода "вверх" и "в бок". Как лучше сделать? Если подключить дымоход просто вверх - но тогда зола будет падать прям в топку! Ведь так?? А если в бок - то будет сопротивление на пути дымовых газов.. думаю подключить вверх, потом колено на 45 град, потом тройник на 45, вниз чистка, вверх - основная часть дымохода...что скажете, это будет правильно? Посилання на коментар Поділитися на інших сайтах More sharing options...
Юрий ТЛТ Опубліковано: 29 серпня 2012 Поділитись Опубліковано: 29 серпня 2012 KrotikMC, Почти верно, только зала сыпаться сама не будет. Сыпаться начнется при чистки дымохода, а чистить придется т.к. Вы будете использовать топку довольно интенсивно. Колено 45 гр. меньше сопротивление тяги, но и конденсат возможно будет попадать в топку. Во многих инструкция по монтажу топок рекомендуют использовать колено 90 гр. Мне кажется это оправдано. К чистке должен быть доступ. Добавлено через 23 минуты KrotikMC, ну что, никто так и не подскажет про жизнеспособность такой системы?? Система хорошая, только реализовать с Вашей топкой будет проблематично. Сама топка очень хорошая, но для отопления не лучший вариант. 2 стекла - это большое излучение . Топка стальная. Номинал - 7 кВт на Ваши 120 кв. м. явно маловато. Без конвекционного кожуха нормально разводку не сделаете. Самому городить тоже не факт что будет работать, а деньги и материалы потрачены.... 1 Посилання на коментар Поділитися на інших сайтах More sharing options...
Olegus Опубліковано: 29 серпня 2012 Поділитись Опубліковано: 29 серпня 2012 Здравствуйте. Есть 2 вопроса 1. Горячий воздух над топкой 1-го этажа поднимается в распредкоробку, установленную на уровне перекрытия межэтажного(у меня оно с деревянными балками). Если я потом попытаюсь часть воздуха опустить вниз в другие комнаты первого этажа сработает? По идее без вентилятора горячий воздух вниз не пойдет. 2. Какие элементы использовать. Допустим распредкоробку можно купить по каталогу. Вход на 110 или 130 и несколько выходов на те же 110 или 50. А камими трубами соединять? Полиэтилен расплавиться, есть алюминевая гофра, но цена и размер? Продавцы нержавейки шепчут, бери из самой тонкой нержавейки 0.5, мы тебе еще и скидку забабахаем, это на века. А что еще остались неспившиеся жестянщики в нашей стране где только купи-продаю учат? По всем пунктам у меня такое же видение как у топикстартера. Единственное что, модную трубу-рефлектор за 1500 гривен в ЭЦ покупать не буду. Из кусков оцинкованного железа коего у меня немало сам рефлектор "изображу" обвязав вокруг обыкновенной нержавеющей трубы. 7.Да. Система эффективна без вентилятора. Только на конвекции при длине каналов до 15-20 метров ( по крайней мере по Йотулу проскакивала информация) У Йотула "рубашка" камина и камера заказные каталожные элементы. В Вашем случае сказать ничего не могу. Изготовить в принципе сможет любой грамотный жестянщик ( если знает что нужно сделать). Посилання на коментар Поділитися на інших сайтах More sharing options...
Юрий ТЛТ Опубліковано: 30 серпня 2012 Поділитись Опубліковано: 30 серпня 2012 Olegus, Какая топка у Вас? Посилання на коментар Поділитися на інших сайтах More sharing options...
KrotikMC Опубліковано: 30 серпня 2012 Автор Поділитись Опубліковано: 30 серпня 2012 Юрий ТЛТ, спасибо за ответ...у меня есть вариант конструкции без разводки воздуховодов (схема в сообщении 9 этой темы). Таким образом отапливаемая площадь уменьшится до 70 метров. И будут отпаливаться комнаты смежные с конструкцией камина на первом и втором этажах. - вероятнее всего будем в жизнь воплощать такой вариант. Из специалистов по каминам у себя в городе получалось найти либо тех, кто из кирпича выложет камин с открытым огнем, либо гибсокартонщиков, которые готовы облицевать что угодно)) поэтому выход 1: разобраться самим и сделать рабочую систему. То Olegus: кроме гофрированого алюминия есть гофрированая нержавейка. Называются АЛЮВЕНТ(алюминий) и ТЕРМОВЕНт(нержа) (есть в Эпицентрах). Алю - до +250, термо до +800. Термо - гнется гораздо хуже. В моем видении решетки для выпуска теплого воздуха на первом этаже, надо делать не очень высоко...а то действительно потолок греться будет..себе думаю около 1,5 м. от пола Посилання на коментар Поділитися на інших сайтах More sharing options...
Андрей1106 Опубліковано: 30 серпня 2012 Поділитись Опубліковано: 30 серпня 2012 Я попыталась графически изобразить упрощенный вариант желаемой системы: Хотелось бы услышать ответы на такие вопросы: 1) работоспособна ли такая конструкция?? 2) Предложите конкретный материал из чего возводить конструкцию?? 3) Вся конструкция делается по ширине топки или шире?? 2) Высота установки радиатора?? 3) Какой брать 0,5 м или 1,0 м?? 4) Высота установки решеток на 1-м и на 2-м этажах?? 5) Нужны ли ещё какие то решетки?? (для подачи воздуха в канал?? И где их предусматривать?) 6) Можно ли не изолировать дымоход в пределах второго этажа??? 7) Есть ли какой то стандартный узел изоляции в районе перекрытия? Или просто взять 0,5 м. двухстенной изолированной трубы?? 8) На что ещё следует обратить внимание?? Схема неправильная. Потому как согласно ей вы в спальни тепло подаете, а куда оно девается оттуда? 2. Никакой конструкции не надо. Она бесполезна. 3. Никаких решеток по моему не надо. 4. Дымоход категорически надо теплоизолировать, по всей длинне, в перекрытиях в том числе. Там что инструкции нет? Это повысит КПД камина, увеличит тягу и если есть там дожиг газов, то он будет. Вы меня простите, жена нашла этот замечательный форум и я честно говоря в ужасе. Что бы было понятно я изобрел и выпускаю 14 й год теплогенераторы Бизон. Уже больше 4000 штук. Всё знаю по отоплению домов любой площади. Любой этажности. Очень просто и недорого. Знания форумчан на форуме удручают, не примите за обиду. Времени к сожалению катастрофически не хватает, но я готов помочь. Задавайте, если хотите вопросы, я постараюсь понятно ответить. Посилання на коментар Поділитися на інших сайтах More sharing options...
Mentor Опубліковано: 30 серпня 2012 Поділитись Опубліковано: 30 серпня 2012 4. Дымоход категорически надо теплоизолировать, по всей длинне, в перекрытиях в том числе. Там что инструкции нет? Это повысит КПД камина, увеличит тягу и если есть там дожиг газов, то он будет. Эта фраза заставляет задуматься о вашем "всезнайстве" в сфере отопления.....Уж извините.... КПД зависит от термоизоляции дымохода????? Рииииали? И тягу увеличит???? А каким боком дожиг газов зависит от утепления трубы????? Посилання на коментар Поділитися на інших сайтах More sharing options...
Андрей1106 Опубліковано: 30 серпня 2012 Поділитись Опубліковано: 30 серпня 2012 Эта фраза заставляет задуматься о вашем "всезнайстве" в сфере отопления.....Уж извините.... КПД зависит от термоизоляции дымохода????? Рииииали? И тягу увеличит???? А каким боком дожиг газов зависит от утепления трубы????? Вы нашли с кем спорить. Вам рассказать процесс пиролиза? Я уже писал, что уровень знаний в средствах отопления домов с помощью дров очень низок. Если вы не понимаете фундаментальных вещей, то я так уж и быть вас просвящу. Если вы поставите любую пиролизную, либо просто эффективную печь, то у вас возникнет ситуация, когда отбор тепла в помещение превысит определенную величину и температура дымовых газов упадет. Упадет до такой степени, что температура самой трубы опуститься ниже чем 60 градусов, особенно в перекрытиях и на улице. Что это дает? Это дает появление внутри трубы карель воды - росы. А это что дает? Это дает две крайне неприятные вещи: 1. Вода соеденяясь с дымом образует крайне агрессивные химические соединения. В теплотехнике они называются царской водкой - смесь азотной, серной, и других кислот - все это сжирает материал трубы. Если это не кислотостойкая нержавеющая сталь. 2. Вода на поверхности трубы, соединяясь с дымом образует смолистые отложения на поверхности трубы и труба как бы изолируется изнутри и не может прогреться, а если она не может прогреться - нет тяги и тогда надо греть печь из которой внутрь помещения прет дым и тогда, тяга появится. Если труба не цельная, то в щели лезет деготь. Всё это, умник ты наш, пропадает после теплоизоляции дымовой трубы. Мне нечего доказывать- я знаю как должно быть и на такие фортеля внимания не обращаю. Зайдите на мой сайт и сравните наши знания. Посилання на коментар Поділитися на інших сайтах More sharing options...
Misha_k Опубліковано: 30 серпня 2012 Поділитись Опубліковано: 30 серпня 2012 (змінено) Зайдите на мой сайт и сравните наши знания. Пацталом!!))Прямо як тут)) www.youtube.com/watch?v=X_Bo_BISFqc&feature=related Змінено 30 серпня 2012 користувачем Misha_k 3 Посилання на коментар Поділитися на інших сайтах More sharing options...
Юрий ТЛТ Опубліковано: 30 серпня 2012 Поділитись Опубліковано: 30 серпня 2012 Андрей1106, Андрей!Вам наверно и дальше лучше заниматься Бизонами и больше отдыхать. По все видимости Вы сильно переутомляетесь и то что Вы здесь советуете попахивает бредом. Остановитесь...здоровье дороже! Посилання на коментар Поділитися на інших сайтах More sharing options...
Mentor Опубліковано: 30 серпня 2012 Поділитись Опубліковано: 30 серпня 2012 Нда....., сколько их ....джедаев ходит вокруг нас.... А этот даже свой световой меч не прячет....:D:lol:. Под столом..... Посилання на коментар Поділитися на інших сайтах More sharing options...
Андрей1106 Опубліковано: 30 серпня 2012 Поділитись Опубліковано: 30 серпня 2012 Андрей1106, Андрей!Вам наверно и дальше лучше заниматься Бизонами и больше отдыхать. По все видимости Вы сильно переутомляетесь и то что Вы здесь советуете попахивает бредом. Остановитесь...здоровье дороже! Никакого бреда нет и в помине. Я не переутомляюсь и пусть мое здоровье вас не волнует. Пока я на этом форуме ничего умного в ответах не повстречал, к сожалению. Одни советы странного свойства. Как бы при строительстве дома побольше забодаться. Но не все такие как вы. Умные тут тоже есть. Изложите, если в состоянии, какой бред я написал. А то по сути ничего, а какие то фразы к делу не относящиеся. Посилання на коментар Поділитися на інших сайтах More sharing options...
REYDER Опубліковано: 30 серпня 2012 Поділитись Опубліковано: 30 серпня 2012 Нда....., сколько их ....джедаев ходит вокруг нас.... а вы сомневались? Андрей1106, вы бы на своем сайте хоть конструкцию котла выложили)), а то пирамидки одни. Прикольно было бы увидеть наших умных конструкторов с лучшими ноу-хау... а то чет мне, как не просвещенному ваш "Бизон" булерьян напомнил. Посилання на коментар Поділитися на інших сайтах More sharing options...
Рекомендовані повідомлення
Створіть акаунт або увійдіть у нього для коментування
Ви маєте бути користувачем, щоб залишити коментар
Створити акаунт
Зареєструйтеся для отримання акаунта. Це просто!
Зареєструвати акаунтУвійти
Вже зареєстровані? Увійдіть тут.
Увійти зараз