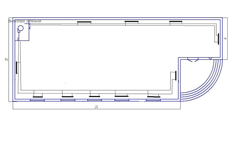
Максон Опубліковано: 12 серпня 2012 Поділитись Опубліковано: 12 серпня 2012 Не можем определиться с диаметром магистрали. Система у нас с двумя ветками, двухтрубная. Радиаторы бимиталлические. Мощность системы отопления около 30 кВт. Размеры здания на картинке. Подскажите пожалуйста диаметры по своему опыту. Посилання на коментар Поділитися на інших сайтах More sharing options...
naupv Опубліковано: 12 серпня 2012 Поділитись Опубліковано: 12 серпня 2012 25-26 мм.. И лучше эту систему закольцевать, тогда не будет тупиковых радиаторов. Посилання на коментар Поділитися на інших сайтах More sharing options...
tanya77 Опубліковано: 12 серпня 2012 Поділитись Опубліковано: 12 серпня 2012 Предлагаю разводку в полу 20 и 16 трубой и коллектор на 6 выходов. ПРИМЕР РАЗВОДКИ www.imageup.ru/img224/1016415/x_05fb26c3.jpg.html Посилання на коментар Поділитися на інших сайтах More sharing options...
Сергей 31 Опубліковано: 12 серпня 2012 Поділитись Опубліковано: 12 серпня 2012 Одна ветка = 15 кВт. или 645 л/час (литров в час). Диаметры при удалении к тупиковым радиаторам уменьшаеются. Начальный диаметр каждой ветки 22 мм. (внутренний диаметр). При тупиковой двухтрубке не рекомендуется превышать 8 кВт. на ветке. Посилання на коментар Поділитися на інших сайтах More sharing options...
Максон Опубліковано: 13 серпня 2012 Автор Поділитись Опубліковано: 13 серпня 2012 в полу разводку делать уже поздно - кафель положен. в общем спасибо всем за диаметры! Каким образом закольцевать 2 ветки и что это даст? Посилання на коментар Поділитися на інших сайтах More sharing options...
troll_9000 Опубліковано: 13 серпня 2012 Поділитись Опубліковано: 13 серпня 2012 Каким образом закольцевать 2 ветки и что это даст? Да ничего это не даст, это миф Посилання на коментар Поділитися на інших сайтах More sharing options...
master-joda Опубліковано: 13 серпня 2012 Поділитись Опубліковано: 13 серпня 2012 Тоже очень интересно услышать версию,нафига закольцовывать два встречных потока,разводки справа и слева, вместе,я так понимаю??? И выходит два встречных сопротивления... Скажите умники проще:с котла выход-20й,таким диаметром и разводите, в паспорте на котел есть рекомендация по разводке диаметра трубы,а кранами балансируете от 1го радиатора, до последнего. Посилання на коментар Поділитися на інших сайтах More sharing options...
B.S.V. Опубліковано: 13 серпня 2012 Поділитись Опубліковано: 13 серпня 2012 "Закольцевать" , думаю имелось ввиду "попутка". Посилання на коментар Поділитися на інших сайтах More sharing options...
Сергей 31 Опубліковано: 13 серпня 2012 Поділитись Опубліковано: 13 серпня 2012 Да ничего это не даст, это миф Че-то да даст. Как минимум можно обойтись без краников для балансировки и еще пару приятностей. Поиском наберите: попутка - петля Тихельмана. Посилання на коментар Поділитися на інших сайтах More sharing options...
master-joda Опубліковано: 13 серпня 2012 Поділитись Опубліковано: 13 серпня 2012 Применима только для для горизонтальной разводки и обратка в противоположную сторону... Посилання на коментар Поділитися на інших сайтах More sharing options...
SON Опубліковано: 13 серпня 2012 Поділитись Опубліковано: 13 серпня 2012 Применима только для для горизонтальной разводки и обратка в противоположную сторону... Ну и какой тайный смысл сих малюнков? Посилання на коментар Поділитися на інших сайтах More sharing options...
ts3 Опубліковано: 13 серпня 2012 Поділитись Опубліковано: 13 серпня 2012 Применима только для для горизонтальной разводки и обратка в противоположную сторону... joda, было б из-за чего копья ломать.. Уже тыщу раз об этом споры велись, а каждый по прежнему остается адептом своей религии. Если закольцевать - система все равно будет работать. Так пусть кольцуют. Что жалко что ли? Посилання на коментар Поділитися на інших сайтах More sharing options...
troll_9000 Опубліковано: 14 серпня 2012 Поділитись Опубліковано: 14 серпня 2012 (змінено) Поиском наберите: попутка - петля Тихельмана ИМХО, в данном случае - интернет зло пользуюсь первоисточниками - "Справочник проектировщика" 1967г, Сканави учебник по отоплению книжки приятно в руки взять Да и не пойму, почему сравнивают попутку и закольцовывание тупиковой разводки... Это же разные вещи. ИМХО, закольцовывать тупиковую разводку - это как поплевать на червяка при ловле рыбы. И мало кто помнит, что при попутке радиаторы должны быть почти одинакового размера (это к вопросу о балансировке) Максон, а еще лучше - на рисунке помимо расположения радиаторов, укажите их мощность. Это даст возможность просчитать диаметры труб Змінено 14 серпня 2012 користувачем troll_9000 Посилання на коментар Поділитися на інших сайтах More sharing options...
Сергей 31 Опубліковано: 14 серпня 2012 Поділитись Опубліковано: 14 серпня 2012 Да и не пойму, почему сравнивают попутку и закольцовывание тупиковой разводки. Это же разные вещи. От недостатка знаний. А если копнуть глубже и попросить монтажника объяснить почему он делает так, а не по другому. То окажется, что 98 % монтажников просто не понимают, что делают. Лупят по шаблону и все, так привыкли их так такой же монтажник научил. А если от жадности, или по какой другой причине взялись за работу которая не подпадает под их шаблон. Вот тут засада, получаются темы на формует « караул не работает система отопления». Посилання на коментар Поділитися на інших сайтах More sharing options...
murava Опубліковано: 14 серпня 2012 Поділитись Опубліковано: 14 серпня 2012 .... И мало кто помнит, что при попутке радиаторы должны быть почти одинакового размера (это к вопросу о балансировке) Это не догма, это от лени Можно посчитать почти любую балансировку нагрузочных веток попутки, при желании даже вручную Кстати, не все программулины автоматического расчета умеют считать попутку в отоплении и кольцевые ветки в водоснабжении Посилання на коментар Поділитися на інших сайтах More sharing options...
naupv Опубліковано: 14 серпня 2012 Поділитись Опубліковано: 14 серпня 2012 Да ничего это не даст, это миф Про это уже много раз писали, не буду повторяться, попробуйте раз (при таком расположении радиаторов, особенно когда их до хрена), тогда увидите разницу, коротко-все радиаторы греют одинаково и не требуют балансировки. Посилання на коментар Поділитися на інших сайтах More sharing options...
Максон Опубліковано: 23 серпня 2012 Автор Поділитись Опубліковано: 23 серпня 2012 А вообще, я грамотно выбрал систему отопления? Или можно сделать с попутным движением или однотрубную (в чём сам сомневаюсь). Может есть какой то другой, лучший вариант кроме лучевой разводки? Радиаторы у нас бимиталлические. Посилання на коментар Поділитися на інших сайтах More sharing options...
naupv Опубліковано: 24 серпня 2012 Поділитись Опубліковано: 24 серпня 2012 Или можно сделать с попутным движением Вот это более подходящее. При лучевой, трудно накосячить, но дороже. Посилання на коментар Поділитися на інших сайтах More sharing options...
Максон Опубліковано: 25 серпня 2012 Автор Поділитись Опубліковано: 25 серпня 2012 фактически master-joda показал на рисунке как раз таки систему с попутным движением? если делать с попутным, то так же оставить две ветки или заменить одним кольцом? Посилання на коментар Поділитися на інших сайтах More sharing options...
naupv Опубліковано: 26 серпня 2012 Поділитись Опубліковано: 26 серпня 2012 оставить две ветки или заменить одним кольцом? Легче закольцевать, чем завернуть обратку и фактически вести 3 трубы у каждой ветки. Посилання на коментар Поділитися на інших сайтах More sharing options...
Максон Опубліковано: 27 серпня 2012 Автор Поділитись Опубліковано: 27 серпня 2012 Диаметр магистралей при этом увеличить, ведь в 2 раза увеличится их длина? Посилання на коментар Поділитися на інших сайтах More sharing options...
ts3 Опубліковано: 27 серпня 2012 Поділитись Опубліковано: 27 серпня 2012 Диаметр магистралей при этом увеличить, ведь в 2 раза увеличится их длина? Не совсем верно. С увеличением длины трубопроводов действительно увеличивается их гидравлическое сопротивление. Но эта величина(при скорости теплоносителя до 1.5м/с) в масштабах частного строительства - ничтожна. Поэтому на диаметры труб практически не влияет 1 Посилання на коментар Поділитися на інших сайтах More sharing options...
Максон Опубліковано: 13 вересня 2012 Автор Поділитись Опубліковано: 13 вересня 2012 Начали делать отопление. Выбрали двухтрубную с двумя ветками. Они подцепляют нам низ - низ. Я сказал, что бы делали по диагонали сверху вниз, они говорят, что т.к. радиаторы короткие, то большого смысла в этом нет, якобы они замеряли тепловизором в других местах для сравнения. Так ли это, или настоять на диагональном подключении? Посилання на коментар Поділитися на інших сайтах More sharing options...
ts3 Опубліковано: 13 вересня 2012 Поділитись Опубліковано: 13 вересня 2012 Начали делать отопление. Выбрали двухтрубную с двумя ветками. Они подцепляют нам низ - низ. или настоять на диагональном подключении? Это действительно так. При коротких радиаторах способ подключения практически не влияет на теплоотдачу 1 Посилання на коментар Поділитися на інших сайтах More sharing options...
reestraror826792452 Опубліковано: 13 вересня 2012 Поділитись Опубліковано: 13 вересня 2012 короткие батареи это до какой длины ? Посилання на коментар Поділитися на інших сайтах More sharing options...
Рекомендовані повідомлення
Створіть акаунт або увійдіть у нього для коментування
Ви маєте бути користувачем, щоб залишити коментар
Створити акаунт
Зареєструйтеся для отримання акаунта. Це просто!
Зареєструвати акаунтУвійти
Вже зареєстровані? Увійдіть тут.
Увійти зараз