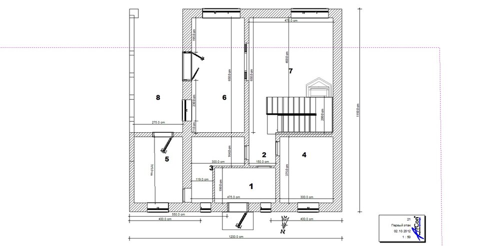
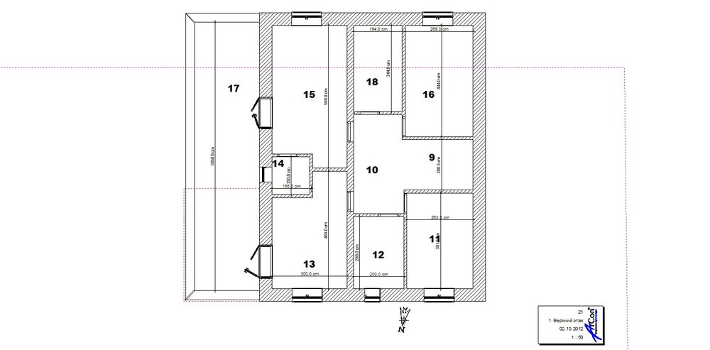
heaven Опубліковано: 2 жовтня 2012 Поділитись Опубліковано: 2 жовтня 2012 (змінено) Всем добрый день. Выкладываю эскиз проекта сделанный мной в Арконе. За основу взят проект z500.pl/projekt/Zx24.html . Внешние стены планируются газобетона 400 мм или из керамблока "Русиния" 38 или 45.Внутренние стены или из керамблока "Русиния" 12 или из кирпича.Отопление двухконтурный турбированый газовый котел с АТ + каминная печка с водяным контуром. Водные теплые полы в помещениях с номером 1 и 3, электрические 12 и 14. Помещения : 1.Прихожая 2.Коридор 3.Санузел+постирочная 4.Гостевая спальня 5.Котельная+хоз.помещение 6.Кухня 7.Гостиная 8.Терраса 9.Лестница 10.Коридор 11.Спальня 12.Санузел 13.Спальня 14.Санузел 15.Спальня 16.Спальня 17.Балкон 18.Гардероб Эскиз предварительный, поэтому размеры будут незначительно меняться.Толщина внешних стен на эскизе 50 см, внутренних несущих 25, остальных 12. Дом в два этажа с холодным чердаком.Первый этаж 2.85,второй 2.55. Крыша четырехскатная с углом 22"-25".Перекрытия первого этажа - жб плиты.Второго - деревянные балки. Участок для дома размером 42(фасадная часть) на 22 метра, так что с ориентацией дома на участке проблем не будет. Через пару недель эскиз буден передан архитектору для составления на основе его проекта, а пока я буду очень благодарен всем за конструктивную и любую другую критику, а также советы по доработке эскиза. С уважением, Владимир. Змінено 2 жовтня 2012 користувачем heaven Посилання на коментар Поділитися на інших сайтах More sharing options...
wipe Опубліковано: 2 жовтня 2012 Поділитись Опубліковано: 2 жовтня 2012 Не понятные коридоры, одна стена совсем без окон, темный коридор на втором этаже, чует сердце это очередная безликая коробка. Посилання на коментар Поділитися на інших сайтах More sharing options...
heaven Опубліковано: 2 жовтня 2012 Автор Поділитись Опубліковано: 2 жовтня 2012 А зачем нужны коридоры? Вы бы удосужились посмотреть проект по ссылке и понять что стена без окон абсолютно не делает дом безликим. Непонятные коридоры, одна стена совсем без окон, темный коридор на втором этаже, чует сердце это очередная безликая коробка. Посилання на коментар Поділитися на інших сайтах More sharing options...
wipe Опубліковано: 3 жовтня 2012 Поділитись Опубліковано: 3 жовтня 2012 Проект посмотреть удосужился, вид стены без окон еще больше меня удручил. эта стена вам нравится ? подымаясь по лестнице в потемках ? почему нге сделать окно ?вытянутые комнаты ? Я же не спорю, вам нравится стройте. 2 Посилання на коментар Поділитися на інших сайтах More sharing options...
SergijKo Опубліковано: 3 жовтня 2012 Поділитись Опубліковано: 3 жовтня 2012 Если это северная сторона, так вроде нормально? Посилання на коментар Поділитися на інших сайтах More sharing options...
OlegArh Опубліковано: 3 жовтня 2012 Поділитись Опубліковано: 3 жовтня 2012 Ну, и проход в гараж ч/з кухню..... Посилання на коментар Поділитися на інших сайтах More sharing options...
Artyomovets Опубліковано: 3 жовтня 2012 Поділитись Опубліковано: 3 жовтня 2012 Ну, и проход в гараж ч/з кухню..... это не гараж, а терраса Посилання на коментар Поділитися на інших сайтах More sharing options...
OlegArh Опубліковано: 3 жовтня 2012 Поділитись Опубліковано: 3 жовтня 2012 это не гараж, а террасаой...:roll: а что на "террасе" делает авто и котел со стенами ?;) Посилання на коментар Поділитися на інших сайтах More sharing options...
Artyomovets Опубліковано: 3 жовтня 2012 Поділитись Опубліковано: 3 жовтня 2012 ой...:roll: а что на "террасе" делает авто и котел со стенами ?;) так ТС переработал проект. смотрите эскизы в первом сообщении Посилання на коментар Поділитися на інших сайтах More sharing options...
OlegArh Опубліковано: 3 жовтня 2012 Поділитись Опубліковано: 3 жовтня 2012 так ТС переработал проект. смотрите эскизы в первом сообщенииуп-с, и впрямь... только получилось это как-то........хреновастенько. ИМХО Посилання на коментар Поділитися на інших сайтах More sharing options...
loader Опубліковано: 3 жовтня 2012 Поділитись Опубліковано: 3 жовтня 2012 а что общего в переработаном и оригинальном? многовато изменений чтобы называть тему zx74... Посилання на коментар Поділитися на інших сайтах More sharing options...
heaven Опубліковано: 3 жовтня 2012 Автор Поділитись Опубліковано: 3 жовтня 2012 между 7 и 2 достаточно большая разница. окно на лестнице будет; комнату шириной 3 метра сложно назвать узкой. количество "конструктива" "радует" неимоверно Посилання на коментар Поділитися на інших сайтах More sharing options...
seyvalter Опубліковано: 3 жовтня 2012 Поділитись Опубліковано: 3 жовтня 2012 Забавно, популярний проект.... Я за останній місяць двічі його розробляв в різних варіаціях і під різні матеріали. Маю сказати - виходило покраще ніж у ТС, та все справа смаку.... Посилання на коментар Поділитися на інших сайтах More sharing options...
Artyomovets Опубліковано: 3 жовтня 2012 Поділитись Опубліковано: 3 жовтня 2012 между 7 и 2 достаточно большая разница. окно на лестнице будет; комнату шириной 3 метра сложно назвать узкой. количество "конструктива" "радует" неимоверно у меня такое ощущение, что почти все, кто выкладывает свое решение чего бы то ни было на обсуждение, нисколько не ждет советов, а просто ждет ответов в стиле "очень хорошо", "правильно придумали" и пр. Посилання на коментар Поділитися на інших сайтах More sharing options...
heaven Опубліковано: 3 жовтня 2012 Автор Поділитись Опубліковано: 3 жовтня 2012 Забавно, популярний проект.... Я за останній місяць двічі його розробляв в різних варіаціях і під різні матеріали. Маю сказати - виходило покраще ніж у ТС, та все справа смаку.... Будь ласка, поділіться з громадськістю. І конкретно поясніть - *чим краще.* Крім одного зауваження про відсутність вікна на сходах, я нічого крім пустих слів "не подобається" не побачив. у меня такое ощущение, что почти все, кто выкладывает свое решение чего бы то ни было на обсуждение, нисколько не ждет советов, а просто ждет ответов в стиле "очень хорошо", "правильно придумали" и пр. Добавлено через 4 минуты Отнюдь. Я действительно хочу услышать конкретные замечания от людей, которые понимают в этом гораздо больше чем я( а таких на этом форуме очень много).Но замечаний-то нет.Есть просто общий негатив без конкретики. Про дверь из кухни в гараж - это вообще Пока что-то конкретное написал только wipe. Посилання на коментар Поділитися на інших сайтах More sharing options...
seyvalter Опубліковано: 3 жовтня 2012 Поділитись Опубліковано: 3 жовтня 2012 З громадськістю ділитись не буду, ви вже вибачайте - замовники думаю будуть проти того щоб тут наліво і направо роздавалось те за що вони ПЛАТИЛИ, крім того - думаю їм булоб неприємно щоб туту почалося обговорення ЇХНІХ будинків без їх на те згоди. А якщо бажаєте суто для ознайомлення глянути як люди роблять - можу показати виключно маркіровочні плани (без розмірів) і в часному порядку (не на форумі). Думаю концепцію ви вловите - а там - Бог у поміч. Якщо цікаво - пишіть у лічку або на почту. Посилання на коментар Поділитися на інших сайтах More sharing options...
Artyomovets Опубліковано: 3 жовтня 2012 Поділитись Опубліковано: 3 жовтня 2012 1. балкон. вы уверенны, что он в таких размерах нужен? 2. камин. к чему вы его пристроили? дым по лестнице пустите? 3. где вентканалы кухни и санузлов? 4. у вас все водяные коммуникации достаточно разбросаны 5. в топочную выход только с террасы? зимой как? 6. в тамбуре я бы поменял местами дверь и окно, чтоб получить "закуток" для обувно-вещевой зоны 7. вытянутые формы для спален - весьма дискомфортные. это из личного опыта можно еще продолжать. но, пока вам есть куда подумать, ИМХО 3 Посилання на коментар Поділитися на інших сайтах More sharing options...
heaven Опубліковано: 3 жовтня 2012 Автор Поділитись Опубліковано: 3 жовтня 2012 З громадськістю ділитись не буду, ви вже вибачайте - замовники думаю будуть проти того щоб тут наліво і направо роздавалось те за що вони ПЛАТИЛИ, крім того - думаю їм булоб неприємно щоб туту почалося обговорення ЇХНІХ будинків без їх на те згоди. А якщо бажаєте суто для ознайомлення глянути як люди роблять - можу показати виключно маркіровочні плани (без розмірів) і в часному порядку (не на форумі). Думаю концепцію ви вловите - а там - Бог у поміч. Якщо цікаво - пишіть у лічку або на почту. Я не прошу вас викладати на форумі ескізи які оплатили ваши замовники, просто напишіть,що, на вашу думку, неправильно (нераціонально) у ескізі який виклав я. Буду вам дуже вдячний. в лс.напишу. Добавлено через 10 минут 1. балкон. вы уверенны, что он в таких размерах нужен? 2. камин. к чему вы его пристроили? дым по лестнице пустите? 3. где вентканалы кухни и санузлов? 4. у вас все водяные коммуникации достаточно разбросаны 5. в топочную выход только с террасы? зимой как? 6. в тамбуре я бы поменял местами дверь и окно, чтоб получить "закуток" для обувно-вещевой зоны 7. вытянутые формы для спален - весьма дискомфортные. это из личного опыта можно еще продолжать. но, пока вам есть куда подумать, ИМХО 1.сделать его меньших размеров я не вижу возможности. 2.камин на эскизе показан схематично, т.е. я хочу , чтобы он был в гостиной, а конкретное место подскажет архитектор. 3. это эскиз, здесь нет вентканалов. 4. все водяные коммуникации находятся рядом : на первом этаже у санузла и кухни общая стенка (топочная совсем рядом), на втором этаже один санузел как раз над рабочей поверхностью кухни, а второй чуть в стороне, но тоже не очень далеко. 5. В топочную есть дверь из помещения 3 , из зоны , в которой планируется сушить белье. 6. я в табмуре двери и окна уже много раз переставлял , так что с вашей мыслью согласен и очень вероятно в окончательном варианте размещение будет другим. 7. а мой опыт показывает, что это очень удобно.Как раз в квадратных спальнях много неиспользуемого места, а вытянутые позволяют рационально использовать всю площадь. Огромное спасибо за ваш ответ. Посилання на коментар Поділитися на інших сайтах More sharing options...
OlegArh Опубліковано: 3 жовтня 2012 Поділитись Опубліковано: 3 жовтня 2012 Я действительно хочу услышать конкретные замечания... Про дверь из кухни в гараж - это вообще Простите, а что можно сказать конструктивного? вы вдь и впрямь не слушаете...Что бы "говорить конкретику", поробуйте сначала сами расставить мебель. Вот к примеру: - попробуйте разместить санфаянс в нарисованном Вами помещении № 3 (с/узел + постирочная)... Или переступаешь ч/з горшок, или обходиш нагромождения стиралок, сушилок, раковин и пр. Да на той же кухне... Кстати, вход в кухню обычно планируют поближе ко входу... - Лестницу не желательно "вытаскивать" за стену (помещение 4). или будут постоянно разбитые носы (кстати в темном коридоре) - каминная труба будет "торчать" в комнате второго этажа - с/узел 2-го этажа висит домокловым мечем над тамбуром...а канальин стояк куда приткнете? - основная масса комнат - трамвайно-колодезного типа, притом, что гардероб (№ 18) на втором этаже будет либо невостребован, либо превратится в хламушник...а ведь он ДОЛЖЕН присутствровать в спальной, а не в коридоре. вот, примерно так... P.S. Поищите что-то более подходящее себе...Ну не архитектор Вы, но ведь это и не страшно... 1 Посилання на коментар Поділитися на інших сайтах More sharing options...
seyvalter Опубліковано: 3 жовтня 2012 Поділитись Опубліковано: 3 жовтня 2012 Особисто мені страшно не подобається прохідний санвузол першого поверху - він і так як носок довгий і кривий - так ще й слугує коридором. У вас на будинку буде мінімум три комина (кухня, котельна, камін) - а можна зробити на два.... Вихід з гаража прямо в кімнату (кухня якщо не помляюсь?, та не важливо...) ? Прямо так? Взутим, з торбами і т.д.? Загалом довго описувати - краще напишіть мені на почту - взавтра вранці скину подивитись два нормальні варіанти без подібних "перлів". Зміни - внесете самі. моя почта seyvalter@yandex.ru Посилання на коментар Поділитися на інших сайтах More sharing options...
Музей Опубліковано: 3 жовтня 2012 Поділитись Опубліковано: 3 жовтня 2012 ТС, Вы не обижайтесь на критику. Вам пишут очень правильные люди на этом форуме. Комнатки узкие по 3 метра - совдэп. Расставьте мебель, оборудование и еще расставьте человечков, и Вы увидите, что в Вашем проекте только "узкие" места. Неудачная планировка. Посилання на коментар Поділитися на інших сайтах More sharing options...
gospel Опубліковано: 3 жовтня 2012 Поділитись Опубліковано: 3 жовтня 2012 Я не прошу вас викладати на форумі ескізи які оплатили ваши замовники, просто напишіть,що, на вашу думку, неправильно (нераціонально) у ескізі який виклав я. Буду вам дуже вдячний. в лс.напишу. Поймите, что любая планировка ограничена в первую очередь коммуникациями. Вентканалами, стояками канализации, гребенками отопления, дымоходами, электроразводкой и пр. Если Вам повезет с архитектором, то он будет последовательно и аргументированно, доказывать свою правоту. Если не повезет то с нарисует все как вы хотите, по принципу клиент всегда прав. А проблемы начнутся когда придут электрики 1 Посилання на коментар Поділитися на інших сайтах More sharing options...
heaven Опубліковано: 3 жовтня 2012 Автор Поділитись Опубліковано: 3 жовтня 2012 - попробуйте разместить санфаянс в нарисованном Вами помещении № 3 (с/узел + постирочная)... Или переступаешь ч/з горшок, или обходиш нагромождения стиралок, сушилок, раковин и пр. Да на той же кухне... - в санузле номер 3 - верхняя стенка слева направо - душевая кабина, унитаз, умывальник - 3м на 1.6 м должно вполне хватить. Стиралка будет в топочной. нижняя часть кухни - рабочая поверхность, верхняя - большой кухонный уголок. напротив окна "остров". - Лестницу не желательно "вытаскивать" за стену (помещение 4). или будут постоянно разбитые носы (кстати в темном коридоре) . - лестница и помещение №4 полностью взяты из проекта zx24, если я неправильно разместил лестницу в арконе - не обращайте внимания. - каминная труба будет "торчать" в комнате второго этажа - с/узел 2-го этажа висит домокловым мечем над тамбуром...а канальин стояк куда приткнете? - основная масса комнат - трамвайно-колодезного типа, притом, что гардероб (№ 18) на втором этаже будет либо невостребован, либо превратится в хламушник...а ведь он ДОЛЖЕН присутствровать в спальной, а не в коридоре. вот, примерно так... P.S. Поищите что-то более подходящее себе...Ну не архитектор Вы, но ведь это и не страшно... почему торчать??? эта комната планируется под кабинет, трубу же можно и замаскировать. санузел второго этажа размещен так же, как и в проекте доноре, я думаю архитекторы что-то думали когда его там размещали. дверь в гардероб второго этажа сразу у двери большой спальни - куда же уже ближе???? я и не говорю, что я архитектор, скорее наоборот - проект будет разрабатывать архитектор, одним глазом посматривая на мой эскиз. Посилання на коментар Поділитися на інших сайтах More sharing options...
Artyomovets Опубліковано: 3 жовтня 2012 Поділитись Опубліковано: 3 жовтня 2012 санузел второго этажа размещен так же, как и в проекте доноре, я думаю архитекторы что-то думали когда его там размещали. поляки мало думают под наши реалии. это я понял после пересмотра 100500 польских проектов Посилання на коментар Поділитися на інших сайтах More sharing options...
heaven Опубліковано: 3 жовтня 2012 Автор Поділитись Опубліковано: 3 жовтня 2012 Особисто мені страшно не подобається прохідний санвузол першого поверху - він і так як носок довгий і кривий - так ще й слугує коридором. У вас на будинку буде мінімум три комина (кухня, котельна, камін) - а можна зробити на два.... Вихід з гаража прямо в кімнату (кухня якщо не помляюсь?, та не важливо...) ? Прямо так? Взутим, з торбами і т.д.? Загалом довго описувати - краще напишіть мені на почту - взавтра вранці скину подивитись два нормальні варіанти без подібних "перлів". Зміни - внесете самі. моя почта seyvalter@yandex.ru Був варіант з іншим плануванням (див. вкладення) . ГАРАЖА в домі нема!!!!! Посилання на коментар Поділитися на інших сайтах More sharing options...
Рекомендовані повідомлення
Створіть акаунт або увійдіть у нього для коментування
Ви маєте бути користувачем, щоб залишити коментар
Створити акаунт
Зареєструйтеся для отримання акаунта. Це просто!
Зареєструвати акаунтУвійти
Вже зареєстровані? Увійдіть тут.
Увійти зараз