V.K.L Опубліковано: 27 травня 2014 Поділитись Опубліковано: 27 травня 2014 К вечеру выложу фотки и размеры. Посилання на коментар Поділитися на інших сайтах More sharing options...
V.K.L Опубліковано: 27 травня 2014 Поділитись Опубліковано: 27 травня 2014 Простите сегодня не получилось с фоткать, завтра обязательно выложу. Скажите пожалуйста, мне знакомым тоже нужен спец по лестницам, у них есть немного денег хотят деревянную, у кого в Одессе есть спецы по деревянным лестницам, дуб ясень. Какая ориентировачно стоимость или лестницы или ступени? Около 18 ступенек. Посилання на коментар Поділитися на інших сайтах More sharing options...
dorado_2820 Опубліковано: 28 травня 2014 Поділитись Опубліковано: 28 травня 2014 Кто подскажет чем можно надежно закрепить балясину к косоуру бетонной лестницы? Как на изовбражении: Посилання на коментар Поділитися на інших сайтах More sharing options...
V.K.L Опубліковано: 28 травня 2014 Поділитись Опубліковано: 28 травня 2014 На фото видна заглушка, значит она скрывает крепежный элемент. Думаю это шуруп или что то похожее. Суть в следующем, сверлим отверстие с лестнице(бетоне) забиваем дюбель пластиковый, затем балясину прижимаем шурупом. Как-то так)) 1 Посилання на коментар Поділитися на інших сайтах More sharing options...
НикВас Опубліковано: 29 травня 2014 Поділитись Опубліковано: 29 травня 2014 Как-то так))Только так! Плюс вторым к ступени! Посилання на коментар Поділитися на інших сайтах More sharing options...
V.K.L Опубліковано: 29 травня 2014 Поділитись Опубліковано: 29 травня 2014 Вот сделал фотки, отверстие 2200х2000мм заходим по стенке как белыми стрелками обозначено.Высота на сегодня 3200, но пол теплый - 8-10 см и плюс на втором этаже стяжка 5 см, значит грубо в чистом виде будет 3150 мм. Посилання на коментар Поділитися на інших сайтах More sharing options...
Игорь&Ира Опубліковано: 29 травня 2014 Поділитись Опубліковано: 29 травня 2014 Вот сделал фотки, отверстие 2200х2000мм заходим по стенке как белыми стрелками обозначено.Высота на сегодня 3200, но пол теплый - 8-10 см и плюс на втором этаже стяжка 5 см, значит грубо в чистом виде будет 3150 мм. Ваш выбор - винтовая или винтообразная. Посилання на коментар Поділитися на інших сайтах More sharing options...
НикВас Опубліковано: 29 травня 2014 Поділитись Опубліковано: 29 травня 2014 Ваш выбор - винтовая или винтообразная. С чего это???? Посилання на коментар Поділитися на інших сайтах More sharing options...
Игорь&Ира Опубліковано: 29 травня 2014 Поділитись Опубліковано: 29 травня 2014 С чего это???? Имеется колодязь 220х200 см. Ставим по центру опору - с каждой стороны остаётся по 90-100 см. Минусуем перила - итого в чистоте 80-90 см. Как раз проход. Прямой марш некуда и тыкнуть. Посилання на коментар Поділитися на інших сайтах More sharing options...
НикВас Опубліковано: 29 травня 2014 Поділитись Опубліковано: 29 травня 2014 Прямой марш некуда и тыкнуть. Обыкновенная П-обр., можно и по центру опору Посилання на коментар Поділитися на інших сайтах More sharing options...
Игорь&Ира Опубліковано: 29 травня 2014 Поділитись Опубліковано: 29 травня 2014 Обыкновенная П-обр. Почти все забежные ступени. Для предметного разговора нужны: план, желаемые и возможные направления подхода и отхода, высота проёма на нижнем этаже. Посилання на коментар Поділитися на інших сайтах More sharing options...
V.K.L Опубліковано: 29 травня 2014 Поділитись Опубліковано: 29 травня 2014 Высота проема 3,20см Подъем по стене, там вариантов нет, заходимс правой стороны стоя лицом к лестнице и на второй этаж поднимаемся на лево. Только п образная. Посилання на коментар Поділитися на інших сайтах More sharing options...
Игорь&Ира Опубліковано: 29 травня 2014 Поділитись Опубліковано: 29 травня 2014 Высота проема 3,20см Справа балка ограничивает высоту проёма из смежного помещения приблизительно на 300 см. При нормативе 220 см над ступенями это позволяет втиснуть 4-5 ступеней в смежном помещении до проекции балки. Но в смежном помещении виден проём, который может ограничить старт ступеней из смежного помещения. Нужны планы двух этажей в районе лестницы. Подъем по стене, там вариантов нет, заходимс правой стороны стоя лицом к лестнице и на второй этаж поднимаемся на лево. Только п образная. 320 см по высоте - это 20 ступеней по 16 см. Считаем. Правая сторона: 8-9 прямых ступеней и 3 забежные ступени. Левая сторона: 3 забежные ступени и 5 прямых ступеней. Итого: 13-14 прямых ступеней и 6 забежных ступеней или 19-20 ступеней. Посилання на коментар Поділитися на інших сайтах More sharing options...
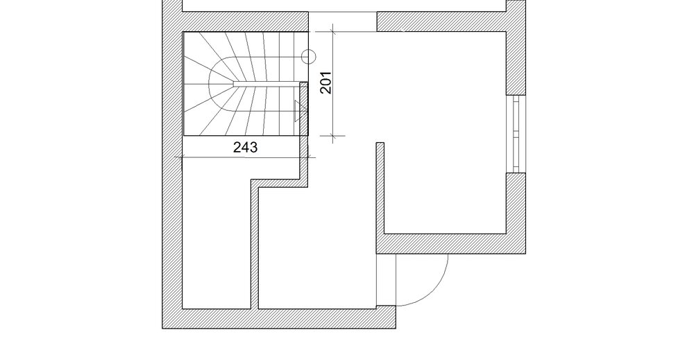
V.K.L Опубліковано: 29 травня 2014 Поділитись Опубліковано: 29 травня 2014 1-рисунок 1 этаж 2-рисунок 2 этаж Посилання на коментар Поділитися на інших сайтах More sharing options...
Игорь&Ира Опубліковано: 29 травня 2014 Поділитись Опубліковано: 29 травня 2014 Ребята а может кто то поможет нарисовать толковую лестницу, хочу сделать самостоятельно, думаю каркас железный а затем его тоже обшить. Если что дам точные размеры 1-рисунок 1 этаж 2-рисунок 2 этаж И как это называется? Знаю, умею, но спрошу? Посилання на коментар Поділитися на інших сайтах More sharing options...
V.K.L Опубліковано: 29 травня 2014 Поділитись Опубліковано: 29 травня 2014 И как это называется? Знаю, умею, но спрошу? Спрашивать, нужно всегда, тем более есть возможность. Жаль нет фотки лестницы у моих знакомых, которым пришли и сделали каркас, а теперь всю лестницу переделывают, они не спрашивали((( Я просто хочу понять, что практичней бетон, дерево, метал. Программа рисует, на основе данных заложенных человеком, на этом этапе и могут быть ошибки. Поэтому я спросил у спецов, которые умеют опыт в данной теме. Посилання на коментар Поділитися на інших сайтах More sharing options...
valerazaz Опубліковано: 29 травня 2014 Поділитись Опубліковано: 29 травня 2014 исполнения метал дерево хорошо в том случаи если делает 1 мастер а не одни варат другие обшывают. Добавлено через 7 минут реально чтобы всё стиковать красиво,и по уму метал с деревом нужно попотеть, и пару раз переделать если не профи что тянет лишние затраты пригласите спецов которые варят каркас и обшывают но тоже может быть прокол,приходилось выдеть эти каркасы Посилання на коментар Поділитися на інших сайтах More sharing options...
Игорь&Ира Опубліковано: 30 травня 2014 Поділитись Опубліковано: 30 травня 2014 Я просто хочу понять, что практичней бетон, дерево, метал. А вариант металлического каркаса и деревянных ступеней (без подступенков и обшивки) Вы не рассматриваете? Посилання на коментар Поділитися на інших сайтах More sharing options...
Сельдь(и)рейка Опубліковано: 30 травня 2014 Поділитись Опубліковано: 30 травня 2014 Вот сделал фотки Фото проема под лестницу со 2-го этажа нет? При Вашей высоте этажа, наиболее комфортные параметры лестницы получатся если выход на 2-й этаж организовать с площадки расположенной над началом лестницы. А приходим к этой площадке повернув на 270 град.после прямого марша в начале лестницы. Параметры Вашей лестницы: -Проступь - 255 мм -Высота подъёма ступени - 175,0 мм -Ширина марша -1000 мм (условно) -Угол наклона - 34,5 град. -Число подъёмов - 18 -Количество ступеней - 17 (18) -Над головой - 2235 мм -Фэн-шуй + в зависимости от оформления площадки 1 Посилання на коментар Поділитися на інших сайтах More sharing options...
V.K.L Опубліковано: 30 травня 2014 Поділитись Опубліковано: 30 травня 2014 Спасибо, за труды Но я думаю лестница получается слишком закрученная. Есть два варианта. Бетонная Металлический каркас Оба варианта я смогу сделать самостоятельно, хотя наверно есть нюансы, о которых я могу не догадываться. Бетонную мне кажется проще отделать, чем метал. Металлическую, проще сделать, но потом танцы с бубном. Вообще меня в лестнице интересует из практики, только забежные ступеньки. Они должны иметь форму треугольную, или как четырехугольные и как бы смещены от центральной балки, как то так. Посилання на коментар Поділитися на інших сайтах More sharing options...
Сельдь(и)рейка Опубліковано: 30 травня 2014 Поділитись Опубліковано: 30 травня 2014 Есть два варианта На самом деле вариантов больше. Из чего у Вас стены? Когда хотите делать лестницу? Посилання на коментар Поділитися на інших сайтах More sharing options...
dorado_2820 Опубліковано: 30 травня 2014 Поділитись Опубліковано: 30 травня 2014 Спасибо, за труды Но я думаю лестница получается слишком закрученная. Есть два варианта. Бетонная Металлический каркас Оба варианта я смогу сделать самостоятельно, хотя наверно есть нюансы, о которых я могу не догадываться. Бетонную мне кажется проще отделать, чем метал. Металлическую, проще сделать, но потом танцы с бубном. Вообще меня в лестнице интересует из практики, только забежные ступеньки. Они должны иметь форму треугольную, или как четырехугольные и как бы смещены от центральной балки, как то так. Ну танцы с бубном это зависит от качества монтажа и облицовки ступенями. Да и потом если что-то будет скрепеть или звенеть с металл каркаса легче снять ступень чем с бетонного. Посилання на коментар Поділитися на інших сайтах More sharing options...
rul.32 Опубліковано: 30 травня 2014 Поділитись Опубліковано: 30 травня 2014 Спасибо, за труды Но я думаю лестница получается слишком закрученная. Есть два варианта. Бетонная Металлический каркас Оба варианта я смогу сделать самостоятельно, хотя наверно есть нюансы, о которых я могу не догадываться. Бетонную мне кажется проще отделать, чем метал. Металлическую, проще сделать, но потом танцы с бубном. Вообще меня в лестнице интересует из практики, только забежные ступеньки. Они должны иметь форму треугольную, или как четырехугольные и как бы смещены от центральной балки, как то так. Форму трапеции. Посилання на коментар Поділитися на інших сайтах More sharing options...
V.K.L Опубліковано: 30 травня 2014 Поділитись Опубліковано: 30 травня 2014 Форму трапеции. Хотел написать, но подумал вдруг не так))Значит как на плане идут ступени это правильно? На самом деле вариантов больше. Из чего у Вас стены? Когда хотите делать лестницу? Стены ракушняк. Сейчас штукатурят. Посилання на коментар Поділитися на інших сайтах More sharing options...
Игорь&Ира Опубліковано: 30 травня 2014 Поділитись Опубліковано: 30 травня 2014 Значит как на плане идут ступени это правильно? У Вас правильно. Солнечные лучи - это неправильно. 1 Посилання на коментар Поділитися на інших сайтах More sharing options...
Рекомендовані повідомлення
Створіть акаунт або увійдіть у нього для коментування
Ви маєте бути користувачем, щоб залишити коментар
Створити акаунт
Зареєструйтеся для отримання акаунта. Це просто!
Зареєструвати акаунтУвійти
Вже зареєстровані? Увійдіть тут.
Увійти зараз