Ego Опубліковано: 4 грудня 2012 Поділитись Опубліковано: 4 грудня 2012 (змінено) Прошу помощи в решении проблем с дизайном кухни - гостиной. возникают по ходу приобретения техники, а также распределение пространства. В связи с покупкой холодильника "очень хотелось большой" Side-by-Side. Проблема с вписыванием данного холодильника в в кухню Габарити з ручкою: (Д x В x Ш) мм 890 x 1830 x 781 ссылка: (ссылка устарела) помещение www.stroimdom.com.ua/forum/picture.php?albumid=472&pictureid=31834 указана только часть: www.stroimdom.com.ua/forum/album.php?albumid=472&pictureid=48895 Фотографии выложу чуть позже Змінено 4 грудня 2012 користувачем Ego уточнение Посилання на коментар Поділитися на інших сайтах More sharing options...
FashionFace Опубліковано: 4 грудня 2012 Автор Поділитись Опубліковано: 4 грудня 2012 Был вариант углового камина, но мы его почему-то отрезали из соображений коридорности. Получается что вход в гостиную будет через кухню - это не есть хорошо (наверное) Мы вот больше склонялись к замене местами камина и телевизора - просто в интернете нашли очень похожие красивые визуализации похожего варианта. После Ваших комментариев - мы в смятении Спасибо за совет. Красивой панорамы со стороны балкона нет. Там просто улица. Балкон я могу обосновать только двумя пунктами: 1. Если вместо балкона на втором этаже будет помещение, то пол в том месте будет холодным, и теплоизоляция сильно не поможет, т.к. снизу такой дизайн крыльца (нам нравится ). 2. Балкон также сделан с целью эстетики фасада (ну и можно выйти посмотреть кто приехал или вошел в двор, не спускаясь ) На самом деле этот балкон получится более менее бюджетным по моим подсчетам, ну и дом выиграет в эстетике. Логично? Камин угловой в другую сторону( точнее открытый в три стороны)! - и в сторону кухни! Вы ведь судя по всему современный человек ( судя по планировке вот и подбирайте такой камин) По балкону впросов нет если он такой конструкции и участвует в композиции фасадов. Добавлено через 3 минуты FashionFace! Спасибо за терпение () и конкретную помощь! Значит "верх" и "низ" мебели лучше делать из одного декора? А как все-таки быть с торцами? Столешницу искать максимально светлую, почти белую? И еще... Как Вам вариант скрытых ручек (в виде профиля внутри)? Или это тоже для масштабных вариантов... Просто, по-моему, обилие ручек и ручечек уменьшает объем еще больше... Да фасады в таких габаритах лучше одинкавовые не забывайте контрастные вставки, ручки встроенные -почему бы и нет) Столешницу светлую- светлее чем фасады ( на несколько тонов) ;) 2 Посилання на коментар Поділитися на інших сайтах More sharing options...
Saturn Опубліковано: 4 грудня 2012 Поділитись Опубліковано: 4 грудня 2012 Виктория, видела выбранный Вами фасад в салоне! Смотрится очень красиво! Очень интересная текстура. Сразу и не отличишь от натурального дерева. Посилання на коментар Поділитися на інших сайтах More sharing options...
FashionFace Опубліковано: 4 грудня 2012 Автор Поділитись Опубліковано: 4 грудня 2012 (ссылка устарела) и мне подскажите по организации простарнства плиз а то никак не могу слепить картинку. стоит ли в такой планировке выделить кухню или делать ее общей с гостинной? хотелось бы две стены выделить контрастным цветом или кирпичом - которя возле дивана и на которой имитация камина и телевизор. не много будет? Если Вы еще не в процессе строительства нарисуйте схему дома на участке, в целом расположение и мебели и зон не очень удачное, Обеденный стол на проходе лестница и спальня из кухни- это все очень не практично, Кухня должна быть тупиковым помещением или зоной через нее нельзя никуда проходить. Но есть и плюсы у Вас практически нет коридоров это рационально! Сбросьте схему участка с домом и сторонами света более предметно помогу в планировании дома. Добавлено через 7 минут Прошу помощи в решении проблем с дизайном кухни - гостиной. возникают по ходу приобретения техники, а также распределение пространства. В связи с покупкой холодильника "очень хотелось большой" Side-by-Side. Проблема с вписыванием данного холодильника в в кухню Габарити з ручкою: (Д x В x Ш) мм 890 x 1830 x 781 ссылка: http://www.sharp.ua/cps/rde/xchg/ua/hs.xsl/-/html/product-details.htm?product=SJF78PEBE&cat=21500 помещение www.stroimdom.com.ua/forum/picture.php?albumid=472&pictureid=31834 указана только часть: www.stroimdom.com.ua/forum/album.php?albumid=472&pictureid=48895 Фотографии выложу чуть позже Постарайтесь более конкретно сформулировать свой вопрос, в чем именно проблема в выборе стилистики, оттенков , расстановке мебели, или сочетании техники с другими предмтами. Посилання на коментар Поділитися на інших сайтах More sharing options...
VW2010 Опубліковано: 4 грудня 2012 Поділитись Опубліковано: 4 грудня 2012 Приветствую. В самом начале стройки решили делать кухню и гостинную раздельными. Имеем две одинаковые комнаты 3.65 на 4.65. В каждой два окна, дверной проём в кухне и арка в гостинной. Сейчас всё чаще посещают мысли - а не совместить ли эти две комнаты? Исходя из вышесказаного, вопрос - если это будет одно пространство, что сделать с дверным проёмом в кухню? Оставить его на своём месте или заложить и ходить в зону кухни через зону гостинной? Для большей ясности пару снимков того, что есть и того, что хотелось бы Посилання на коментар Поділитися на інших сайтах More sharing options...
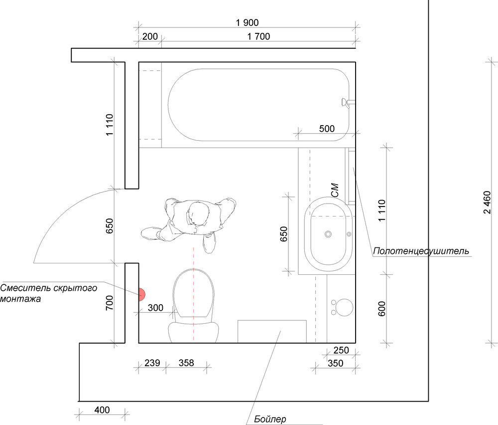
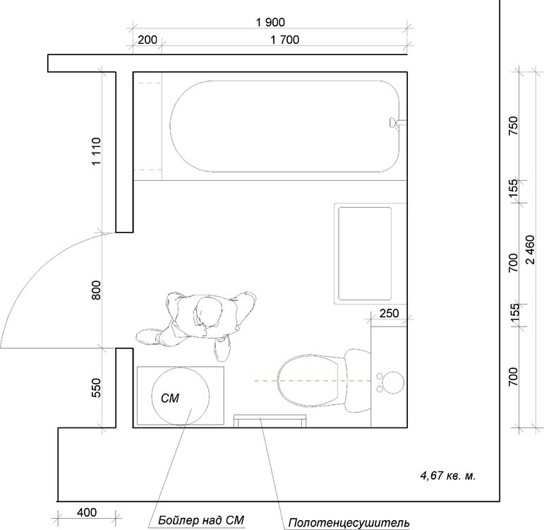
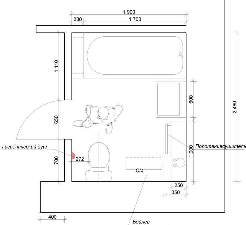
Valeruanka Опубліковано: 4 грудня 2012 Поділитись Опубліковано: 4 грудня 2012 Доброго времени суток! Нужен совет по грамотному размещению сантехприборов в совмещенном санузле. Вкладываю план, который имеется: Санузел уже совмещен, все коммуникации (+счетчики, фильтры) необходимо спрятать в короб с доступом в виде лючка, как я понимаю, добавить нужно стиральную машинку (СМ) и полотенцесушитель (ПС). Не очень понятно, какого размера короб будет в результате. Если не менять ничего в помещении, добавить СМ и ПС, то при таком расположении кажется, что коленки сидящего на унитазе будут упираться в СМ. Если унитаз перевернуть, то имеем такой вариант. Забыла сказать, что возле унитаза рассматриваю наличие гигиенического душа. Далее Вообщем, не оч понятно, что логичнее, грамотнее, удобнее и менее затратно (+ тянуть все канализации и воду). Спасибо. Посилання на коментар Поділитися на інших сайтах More sharing options...
Julla Опубліковано: 5 грудня 2012 Поділитись Опубліковано: 5 грудня 2012 Поставте угловой унитаз Посилання на коментар Поділитися на інших сайтах More sharing options...
Teverde Опубліковано: 5 грудня 2012 Поділитись Опубліковано: 5 грудня 2012 Если Вы еще не в процессе строительства нарисуйте схему дома на участке, в целом расположение и мебели и зон не очень удачное, Обеденный стол на проходе лестница и спальня из кухни- это все очень не практично, Кухня должна быть тупиковым помещением или зоной через нее нельзя никуда проходить. Но есть и плюсы у Вас практически нет коридоров это рационально! Сбросьте схему участка с домом и сторонами света более предметно помогу в планировании дома. . Спасибо, дом уже построен, внутренние работы не сделаны (только электрика). Спальня эта гостевая, т.е она не будет использоваться часто, наши спальни все на 2-м этаже. Внутренние стенки еще можно добавить (из гипсокартона). Стена где 2 больших окна - восток, окно на кухне юг, гараж, с/у - север там где запланирована кухня - уже подведены газовые трубы (осталось от старого дома), сделан вывод канализации еще отдельно вход/прихожая, я не рисовала ее в 3д вот так выглядит сейчас, там где салатовая стенка и окно - предполагается кухня Добавлено через 26 минут а стол можно просто подвинуть Посилання на коментар Поділитися на інших сайтах More sharing options...
FashionFace Опубліковано: 5 грудня 2012 Автор Поділитись Опубліковано: 5 грудня 2012 Приветствую. В самом начале стройки решили делать кухню и гостинную раздельными. Имеем две одинаковые комнаты 3.65 на 4.65. В каждой два окна, дверной проём в кухне и арка в гостинной. Сейчас всё чаще посещают мысли - а не совместить ли эти две комнаты? Исходя из вышесказаного, вопрос - если это будет одно пространство, что сделать с дверным проёмом в кухню? Оставить его на своём месте или заложить и ходить в зону кухни через зону гостинной? Для большей ясности пару снимков того, что есть и того, что хотелось бы Если совместите два помещение проем правильнее заложить- это связано и со сквозняками- распространением запахов, влажности и для решения этого - кухня должна быть изолированой зоной- если гостиная и кухня одно помещение, она должна быть в тупиковой а не проходной зоне, она может быть выделена понижением потолка, выделением ее барной стойкой и т.д. 1 Посилання на коментар Поділитися на інших сайтах More sharing options...
Teverde Опубліковано: 5 грудня 2012 Поділитись Опубліковано: 5 грудня 2012 кухня должна быть изолированой зоной- если гостиная и кухня одно помещение, она должна быть в тупиковой а не проходной зоне, она может быть выделена понижением потолка, выделением ее барной стойкой и т.д. Предложите и мне, плиз, что сделать с моей кухней? так по-моему тоже нехорошо, то что пропадет ощущение пространства - это точно, но зато можно будет кухню сделать П-образную, больше влезет Посилання на коментар Поділитися на інших сайтах More sharing options...
FashionFace Опубліковано: 5 грудня 2012 Автор Поділитись Опубліковано: 5 грудня 2012 Доброго времени суток! Нужен совет по грамотному размещению сантехприборов в совмещенном санузле. Вкладываю план, который имеется: [ATTACH]233436[/ATTACH] Санузел уже совмещен, все коммуникации (+счетчики, фильтры) необходимо спрятать в короб с доступом в виде лючка, как я понимаю, добавить нужно стиральную машинку (СМ) и полотенцесушитель (ПС). Не очень понятно, какого размера короб будет в результате. [ATTACH]233439[/ATTACH] Если не менять ничего в помещении, добавить СМ и ПС, то при таком расположении кажется, что коленки сидящего на унитазе будут упираться в СМ. Если унитаз перевернуть, то [ATTACH]233446[/ATTACH] имеем такой вариант. Забыла сказать, что возле унитаза рассматриваю наличие гигиенического душа. Далее [ATTACH]233443[/ATTACH] [ATTACH]233445[/ATTACH] Вообщем, не оч понятно, что логичнее, грамотнее, удобнее и менее затратно (+ тянуть все канализации и воду). Спасибо. Наиболее правильный вариант тот в котором унитаз стоит около канализационного стояка на стене справа от входной двери, (то есть перый который Вы выложили), по крайней мере я бы делал так же, короб для коммуникакаций- по факту в зависимости от диаметра труб и их расположения, но от них (от коммуникаций) до зашивки короба должно быть не менее 50мм, люк- ревизионный делается на магнитах спросите комплект в крупных гипермаркетах. Добавлено через 33 минуты Спасибо, дом уже построен, внутренние работы не сделаны (только электрика). Спальня эта гостевая, т.е она не будет использоваться часто, наши спальни все на 2-м этаже. Внутренние стенки еще можно добавить (из гипсокартона). Стена где 2 больших окна - восток, окно на кухне юг, гараж, с/у - север там где запланирована кухня - уже подведены газовые трубы (осталось от старого дома), сделан вывод канализации еще отдельно вход/прихожая, я не рисовала ее в 3д вот так выглядит сейчас, там где салатовая стенка и окно - предполагается кухня Добавлено через 26 минут а стол можно просто подвинуть Если есть возможность повернуть лестницу в сторону ТВ сделайте это - а холодильник нужно все таки в зону кухни, Вы же все таки дом строете интересуетесь дизайном- а такое размещение зоолдильника напоминает общежитие. Еще уюта добавит если вход в гостиную будет между гостиной и кухней там где ТВ, а тв с перегородкой ко входу сместите. По дизайну сложно что то советовать не зная предпочтения заказчика, его образа жизни, состава семьи. В данном формате могу отвечать только на конкретные вопросы. Если планируете дом как семейное гнездышко хотите чтобы там было уютно и комфортно и все было сделано под Ваши предпочтения, обратитесь за комплексной помощью к профессионалам, Teverde Вы ведь планируете затраты на отделку, потратьте немного на то чтобы это было красиво и правильно. Вам может будет достаточно не целого проекта а парочки эскизов, так как у Вас уже много решено и разведена электрика. 1 Посилання на коментар Поділитися на інших сайтах More sharing options...
Teverde Опубліковано: 5 грудня 2012 Поділитись Опубліковано: 5 грудня 2012 Если есть возможность повернуть лестницу в сторону ТВ сделайте это - а холодильник нужно все таки в зону кухни, Вы же все таки дом строете интересуетесь дизайном- а такое размещение зоолдильника напоминает общежитие. На кухне он не помещался Еще уюта добавит если вход в гостиную будет между гостиной и кухней там где ТВ, а тв с перегородкой ко входу сместите. Там напротив дверь в с/у и эту стену уже не получится перенести По дизайну сложно что то советовать не зная предпочтения заказчика, его образа жизни, состава семьи. В данном формате могу отвечать только на конкретные вопросы. Если планируете дом как семейное гнездышко хотите чтобы там было уютно и комфортно и все было сделано под Ваши предпочтения, обратитесь за комплексной помощью к профессионалам, Teverde Вы ведь планируете затраты на отделку, потратьте немного на то чтобы это было красиво и правильно. Вам может будет достаточно не целого проекта а парочки эскизов, так как у Вас уже много решено и разведена электрика. Да я не против профессионалов, а только за, может кто-то возьмется? Посилання на коментар Поділитися на інших сайтах More sharing options...
FashionFace Опубліковано: 5 грудня 2012 Автор Поділитись Опубліковано: 5 грудня 2012 А где находиться дом? Посилання на коментар Поділитися на інших сайтах More sharing options...
Teverde Опубліковано: 5 грудня 2012 Поділитись Опубліковано: 5 грудня 2012 А где находиться дом? житомирская трасса, перед Гореничами Посилання на коментар Поділитися на інших сайтах More sharing options...
FashionFace Опубліковано: 6 грудня 2012 Автор Поділитись Опубліковано: 6 грудня 2012 На самом деле этот балкон получится более менее бюджетным по моим подсчетам, ну и дом выиграет в эстетике. Логично? Еше слово о балконе, когда балкон выполняет еще и роль навеса -это функционально- недостаток только в том, что Вы делаете уступ на углу дома- теряете полезную площадь, при тех же фундаментах, площади наружных стен, площади кровли- можно если не делать уступ, получить дополнительно метров 6-7 площади Посилання на коментар Поділитися на інших сайтах More sharing options...
Leon Опубліковано: 7 грудня 2012 Поділитись Опубліковано: 7 грудня 2012 FashionFace, доброго дня! Я прийшов на запрошення з іншої теми Я в процесі розробки плану, чесно кажучи, я навіть не знаю, які питання задати професіоналу. Тому, якщо буде що сказати, скажіть Питання: як покращити? Це план будинку Це вхід в будинок і я хочу, щоб він мав саме таку конфігурацію.. Не знаю, чи можна це назвати стилем, але мені хочеться що він виглядав саме так, або дуже близько до того.. Зрозуміло, що треба буде якось виділити кути, буде цоколь і сходинки три-чотири.. Посилання на коментар Поділитися на інших сайтах More sharing options...
FashionFace Опубліковано: 7 грудня 2012 Автор Поділитись Опубліковано: 7 грудня 2012 План уверен что вы этот план продумывали и делали так как Вам было бы удобнее. Но у меня такая планировка вызывает недоумение. Практически все комнаты неправильной формы. Огромной площади как для этого дома коридор- мне понятен мотив его осветить естественным освещением. Но поверьте оно того не стоит-куда проще избавиться от него вообще! Можно сделать прямоугольный холл из которого можно попасть в спальни и в гостиную- Вы ее так не уверено пытаетесь отделить от коридора- а зачем не понятно. Зачем эти перегородки? они "едят" Вашу площадь дома-разграничивая общее на более мелкие пространства. разделите дом условно на три части- правую, левую и центральную прямыми линиями и эти части должны поделиться на комнаты. 1 Посилання на коментар Поділитися на інших сайтах More sharing options...
alexob Опубліковано: 7 грудня 2012 Поділитись Опубліковано: 7 грудня 2012 Камин угловой в другую сторону( точнее открытый в три стороны)! - и в сторону кухни! Вы ведь судя по всему современный человек ( судя по планировке вот и подбирайте такой камин) По балкону впросов нет если он такой конструкции и участвует в композиции фасадов. Спасибо за советы Посилання на коментар Поділитися на інших сайтах More sharing options...
Leon Опубліковано: 7 грудня 2012 Поділитись Опубліковано: 7 грудня 2012 План уверен что вы этот план продумывали и делали так как Вам было бы удобнее. Но у меня такая планировка вызывает недоумение. Практически все комнаты неправильной формы. Огромной площади как для этого дома коридор- мне понятен мотив его осветить естественным освещением. Но поверьте оно того не стоит-куда проще избавиться от него вообще! Дякую за пораду. Я не дизайнер і не архітектор. Але я пробую зрозуміти все що мені кажуть. Мені кричали в моїй темі про темні коридори, тому я пробував добавити світла, але після Ваших слів зрозумів, що дійсно від того вікна в коридорі світла не стане більше. Я зробив деякі зміни, гляньте будь-ласка і скажіть, чи правильно я Вас зрозумів, і що мені ще слід врахувати. Не бійтесь повторювати. Я не тупий, але не в "темі" Посилання на коментар Поділитися на інших сайтах More sharing options...
alexob Опубліковано: 7 грудня 2012 Поділитись Опубліковано: 7 грудня 2012 Leon, в какой программе рисуете? Посилання на коментар Поділитися на інших сайтах More sharing options...
Leon Опубліковано: 7 грудня 2012 Поділитись Опубліковано: 7 грудня 2012 Leon, в какой программе рисуете? Архікад 15. Витягнув якусь порубану версію з інету. Кривовата + малюю в ньому другий тиждень, коли є вільний час. Тому прошу не плювати в мене за якість, я пробую передати своє бачення, концепцію, так би мовити FashionFace, прошу вибачення за офф. Посилання на коментар Поділитися на інших сайтах More sharing options...
FashionFace Опубліковано: 7 грудня 2012 Автор Поділитись Опубліковано: 7 грудня 2012 Дякую за пораду. Я не дизайнер і не архітектор. Але я пробую зрозуміти все що мені кажуть. Мені кричали в моїй темі про темні коридори, тому я пробував добавити світла, але після Ваших слів зрозумів, що дійсно від того вікна в коридорі світла не стане більше. Я зробив деякі зміни, гляньте будь-ласка і скажіть, чи правильно я Вас зрозумів, і що мені ще слід врахувати. Не бійтесь повторювати. Я не тупий, але не в "темі" Планировка стала лучше. Однако смущает углубление в фасаде (потеря полезной площади, при тех же строительных объемах стен и кровли)- я понимаю что это в угоду навесу на входом- но навес не столь затратное мероприятие чтобы жертвовать спальнями. Коридор в правое его части можно уменьшить переместив вход в спальню и в ванную 1 Посилання на коментар Поділитися на інших сайтах More sharing options...
Leon Опубліковано: 8 грудня 2012 Поділитись Опубліковано: 8 грудня 2012 смущает углубление в фасаде (потеря полезной площади, при тех же строительных объемах стен и кровли)- я понимаю что это в угоду навесу на входом- но навес не столь затратное мероприятие чтобы жертвовать спальнями. Дякую за поради! Але я не знаю, як змінити фасад, так щоб будинок не став коробочкою. Я там вище давав візуалізацію фасаду, а якщо я вирівняю фасадну стіну, то вийде прямокутник, і відповідно завсім простий 2- або 4-скатний дах. А хочеться ж щоб і зовні будинок мав вигляд будинку, а не сараю.. Посилання на коментар Поділитися на інших сайтах More sharing options...
FashionFace Опубліковано: 9 грудня 2012 Автор Поділитись Опубліковано: 9 грудня 2012 Красота архитектуры заключается в пропорциях. Поэтому даже при аскетичной форме дома- добиться высокой эстетики можно членениями фасада ( отделкой различными материалами), формой и пропорциями остекления, цветом фасада- добиваться эффекта монументальности или легкости, статичности или динамичности композиции. Так что даже двухскатная крыша на прямоугольнике может смотреться интересно вот пример подобной композиции, не берусь утверждать что это пример для подражания, но один из вариантов (ссылка устарела) Посилання на коментар Поділитися на інших сайтах More sharing options...
Leesleer Опубліковано: 9 грудня 2012 Поділитись Опубліковано: 9 грудня 2012 Дом на стадии готового фундамента. Пока точно не решили каким сделать крыльцо и терассу сзади, а также как лучше поставить перегородки на первом этаже в коридоре и на втором в ванной. Может чем подскажите по этому поводу ? Посилання на коментар Поділитися на інших сайтах More sharing options...
Рекомендовані повідомлення
Створіть акаунт або увійдіть у нього для коментування
Ви маєте бути користувачем, щоб залишити коментар
Створити акаунт
Зареєструйтеся для отримання акаунта. Це просто!
Зареєструвати акаунтУвійти
Вже зареєстровані? Увійдіть тут.
Увійти зараз