Докторица Опубліковано: 5 січня 2013 Поділитись Опубліковано: 5 січня 2013 Если рассматриваете эклектику- однозначно, декоративная перегородка с Тв параллельно дивану, с обратной ее стороны можно разместить обеденную зону. Перегородку я бы рекомендовал выполнить от пола до потолка. Чтобы зонирование было выразительным и логичным - можно его усилить и зонированием потолка. В правом верхнем углу это выход в сад? Да выход в сад за короткой частью дивана ( на стене где два окна) Посилання на коментар Поділитися на інших сайтах More sharing options...
FashionFace Опубліковано: 5 січня 2013 Автор Поділитись Опубліковано: 5 січня 2013 Да выход в сад за короткой частью дивана ( на стене где два окна) Если диван задвинуть в угол он мешает выходу? Посилання на коментар Поділитися на інших сайтах More sharing options...
Докторица Опубліковано: 5 січня 2013 Поділитись Опубліковано: 5 січня 2013 Если диван задвинуть в угол он мешает выходу? Да. Вот нарисовала дверь. Поэтому диван не вплотную к углу. И ещё немного сдвинула стену телевизором. А делать барную стойку не хочу. Может Вы видите другое расположение телевизора. Посилання на коментар Поділитися на інших сайтах More sharing options...
Высотник Опубліковано: 5 січня 2013 Поділитись Опубліковано: 5 січня 2013 Да. Вот нарисовала дверь. Поэтому диван не вплотную к углу. И ещё немного сдвинула стену телевизором. А делать барную стойку не хочу. Может Вы видите другое расположение телевизора. Скажите, а за диваном в углу ничего не будет? Просто у нас такая же планировка один в один и даже метраж совпадает и мебель мы так же расставили, только телевизор будет там, где Вы планировали изначально. А вот угол за диваном какой то "необжитый" что ли или так только кажется? Посилання на коментар Поділитися на інших сайтах More sharing options...
FashionFace Опубліковано: 5 січня 2013 Автор Поділитись Опубліковано: 5 січня 2013 Пару мыслей в слух В файле "1" думаю более выигрышная ситуация для Докторица, а вот Вам Высотник на счет расположения могу посоветовать тоже попробовать по вращать диван. Мысль следующая- диван должен ориентирован на сад и тв соответственно должен быть в этом же направлении. 1 Посилання на коментар Поділитися на інших сайтах More sharing options...
FashionFace Опубліковано: 5 січня 2013 Автор Поділитись Опубліковано: 5 січня 2013 вот файл, с расстановкой 1 Посилання на коментар Поділитися на інших сайтах More sharing options...
Докторица Опубліковано: 5 січня 2013 Поділитись Опубліковано: 5 січня 2013 Скажите, а за диваном в углу ничего не будет? Просто у нас такая же планировка один в один и даже метраж совпадает и мебель мы так же расставили, только телевизор будет там, где Вы планировали изначально. А вот угол за диваном какой то "необжитый" что ли или так только кажется? А я люблю, когда можно свободно подойти к окнам, тем более там дверь в сад, а в самый угол можно поставить например большое растение (у меня есть 2-х метровый кактус:wink:) Если у Вас нет там выхода, то можно поставить маленький столик со стульчиками ( ТЭТ-а-ТЭТ). Посилання на коментар Поділитися на інших сайтах More sharing options...
FashionFace Опубліковано: 5 січня 2013 Автор Поділитись Опубліковано: 5 січня 2013 А я люблю, когда можно свободно подойти к окнам, тем более там дверь в сад, а в самый угол можно поставить например большое растение (у меня есть 2-х метровый кактус:wink:) Если у Вас нет там выхода, то можно поставить маленький столик со стульчиками ( ТЭТ-а-ТЭТ). Что думаете на счет ориентации дивана на сад? Посилання на коментар Поділитися на інших сайтах More sharing options...
Высотник Опубліковано: 6 січня 2013 Поділитись Опубліковано: 6 січня 2013 Пару мыслей в слух В файле "1" думаю более выигрышная ситуация для Докторица, а вот Вам Высотник на счет расположения могу посоветовать тоже попробовать по вращать диван. Мысль следующая- диван должен ориентирован на сад и тв соответственно должен быть в этом же направлении. В таком варианте кухни как то мало остаётся... Добавлено через 2 минуты вот файл, с расстановкой А в этом варианте теливизор напротив окон (дверей) - будет плохо видно изображение... На первый взгляд такая большая площадь гостинной+кухни, а мебель вписать трудно... Посилання на коментар Поділитися на інших сайтах More sharing options...
Высотник Опубліковано: 6 січня 2013 Поділитись Опубліковано: 6 січня 2013 FashionFace, можно ещё у Вас спросить? Мы занялись расстановкой мебели для того, что бы сорентироваться, где у нас будут окна и двери, так вот может быть изменить расположение дверного проёма (ну и оконного) для более удачного расположения мебели. Только вот кухонные столы останутся на своём месте - там будут стояки и вентиляции. Посилання на коментар Поділитися на інших сайтах More sharing options...
FashionFace Опубліковано: 6 січня 2013 Автор Поділитись Опубліковано: 6 січня 2013 А в этом варианте теливизор напротив окон (дверей) - будет плохо видно изображение... На первый взгляд такая большая площадь гостинной+кухни, а мебель вписать трудно... Да Вы правы не очень удачные пропорции- для каждой из зон нужна пропорция 3х5 или 4х5 и плюс к этому еще и транзит по средине (из коридора в сад) если у Вас есть возможность передвинуть проемы- передвиньте и оставьте место для дивана в углу. Либо второй вариант диваном разделить гостиную на две зоны, диван ориентирован на ТВ, а за ним место для столовой возле выхода в сад. Кстати выход в сад правильнее делать со тсороны кухни- для удобства переноса готовых блюд и посуды на улицу. Посилання на коментар Поділитися на інших сайтах More sharing options...
Высотник Опубліковано: 6 січня 2013 Поділитись Опубліковано: 6 січня 2013 (змінено) FashionFace, спасибо за подсказки, кое-что начинает проясняться. А не могли бы Вы сделать набросок расположения двери и окна выхода на веранду и соответственно расставленой мебели (предметы интерьера всё те же - кухонная мебель, обеденный стол, мягкий уголок, телевизор, ну и если поместится креселки/пуфики/журнальный столик...). Сначала планировали дверь выхода на веранду двойную стеклянную, хотелось бы оставить этот вариант. План первого этажа.pdf Дом на два хозяина, поэтому расположение рабочей поверхности кухонной мебели привязано к определённой стене - стояки, вытяжки... Змінено 6 січня 2013 користувачем Высотник Посилання на коментар Поділитися на інших сайтах More sharing options...
Докторица Опубліковано: 7 січня 2013 Поділитись Опубліковано: 7 січня 2013 Скажите, а за диваном в углу ничего не будет? Просто у нас такая же планировка один в один и даже метраж совпадает и мебель мы так же расставили, только телевизор будет там, где Вы планировали изначально. А вот угол за диваном какой то "необжитый" что ли или так только кажется? Нашла идею, как заполнить угол pinterest.com/pin/287878601150819735/ Посилання на коментар Поділитися на інших сайтах More sharing options...
Высотник Опубліковано: 7 січня 2013 Поділитись Опубліковано: 7 січня 2013 Нашла идею, как заполнить угол pinterest.com/pin/287878601150819735/ :D:good: Посилання на коментар Поділитися на інших сайтах More sharing options...
FashionFace Опубліковано: 8 січня 2013 Автор Поділитись Опубліковано: 8 січня 2013 FashionFace, спасибо за подсказки, кое-что начинает проясняться. А не могли бы Вы сделать набросок расположения двери и окна выхода на веранду и соответственно расставленой мебели (предметы интерьера всё те же - кухонная мебель, обеденный стол, мягкий уголок, телевизор, ну и если поместится креселки/пуфики/журнальный столик...). Сначала планировали дверь выхода на веранду двойную стеклянную, хотелось бы оставить этот вариант. [ATTACH]240360[/ATTACH] Дом на два хозяина, поэтому расположение рабочей поверхности кухонной мебели привязано к определённой стене - стояки, вытяжки... Угол лучше не занимать остеклением, если есть возможность перенести проемы то я бы рекомендовал Вам это сделать. выход в сад я так понял Вы хотите делать двойную (то есть штульповую)?- тоже не советую, такие двери имеют очень плохую герметичность, ни один металлопластиковый профиль качественно притягиваться уже через год не будет. Если хотите такую дверь заказывайте из алюминия. Свое видение прилагаю0-0.pdf Посилання на коментар Поділитися на інших сайтах More sharing options...
FashionFace Опубліковано: 8 січня 2013 Автор Поділитись Опубліковано: 8 січня 2013 и еще один вариант- мне он импонирует больше. больше пространства. Для дизайнерских решений большое поле, и большое количество вариантов отделки. Кстати к Докторица он тоже может быть применим.0-1.pdf 1 Посилання на коментар Поділитися на інших сайтах More sharing options...
Докторица Опубліковано: 9 січня 2013 Поділитись Опубліковано: 9 січня 2013 и еще один вариант- мне он импонирует больше. больше пространства. Для дизайнерских решений большое поле, и большое количество вариантов отделки. Кстати к Докторица он тоже может быть применим. Спасибо, но у нас уже готова облицовонная коробка дома, стоят окна. Скорей всего оставим вариант со стеной для телевизора. Посилання на коментар Поділитися на інших сайтах More sharing options...
FashionFace Опубліковано: 9 січня 2013 Автор Поділитись Опубліковано: 9 січня 2013 Спасибо, но у нас уже готова облицовонная коробка дома, стоят окна. Скорей всего оставим вариант со стеной для телевизора. Ну я бы Вам все равно рекомендовал разместить эту перегородку перпендикулярно наружной стене в сад. Посилання на коментар Поділитися на інших сайтах More sharing options...
olimpiya Опубліковано: 9 січня 2013 Поділитись Опубліковано: 9 січня 2013 я совсем не дизайнер, но в одной передачи видела. Перегородку можно сделать вращающуюся. Тогда телевизор можно смотреть и на кухне и в гостинной Посилання на коментар Поділитися на інших сайтах More sharing options...
FashionFace Опубліковано: 9 січня 2013 Автор Поділитись Опубліковано: 9 січня 2013 я совсем не дизайнер, но в одной передачи видела. Перегородку можно сделать вращающуюся. Тогда телевизор можно смотреть и на кухне и в гостиной Да есть такое решение, но в данном случае эта перегородка формирует интерьер гостиной, в оформлении она должна являться его неотъемлемой частью- это ведь не малогабаритная квартира а полноценный жилой дом. Лучше разориться на маленькую тв панель для кухни. Посилання на коментар Поділитися на інших сайтах More sharing options...
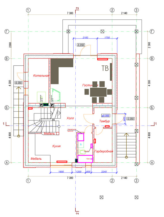
olimpiya Опубліковано: 9 січня 2013 Поділитись Опубліковано: 9 січня 2013 FashionFace, можно и я вам задам вопрос. Вот план первого этажа. (красными прямоугольниками - батареи) Как интересно можно расположить мебель в кухне и гостиной1.pdf Посилання на коментар Поділитися на інших сайтах More sharing options...
FashionFace Опубліковано: 13 січня 2013 Автор Поділитись Опубліковано: 13 січня 2013 Приношу извинения за задержку. Крутился вокруг нескольких вариантов остановился на этом. Хотя тоже кое что смущает. Нарушение интимности в зоне дивана- тем что он обращен на входную зону. Но с другой стороны размещение его рядом с камином более логичное чем стола. В данной планировке гостиная, я считаю, имеет четкое деление на зоны что очень хорошо и эти зоны не пересекаются функционально ( накрывая стол не проходите мимо ТВ или сидящих на диване и т.д.) Посилання на коментар Поділитися на інших сайтах More sharing options...
olimpiya Опубліковано: 14 січня 2013 Поділитись Опубліковано: 14 січня 2013 FashionFace, ого , какой поворот событий Спасибо. Нужно было вводные дать. Большой стол нам не нужно. Только журнальный. Кушать будем на кухне и в теплое время на террасе. И уже есть розетки на стене для телевизора. (Стена между гостиной и котельной). Хотя ваш вариант нравится. А при такой площади гостинной, можно диван (не уголок допустим) разместить посередине? Посилання на коментар Поділитися на інших сайтах More sharing options...
Король Опубліковано: 14 січня 2013 Поділитись Опубліковано: 14 січня 2013 Здравствуйте, помогите мне пожалуйста. Сейчас как раз занимаюсь ремонтом и осталось только сделать последнюю комнату - зал. Это у нас и как зал и как гостинная. Комната очень большая но темная, мало света. Посоветуйте как сделать дизан. чтобы комната стала светлее, но не потеряла статуса гостинной( до этого были обои голубого цвета, нам советовали, ч тобы комната светлее стала и визуально больше, но толку мало было...) Посилання на коментар Поділитися на інших сайтах More sharing options...
FashionFace Опубліковано: 14 січня 2013 Автор Поділитись Опубліковано: 14 січня 2013 FashionFace, ого , какой поворот событий Спасибо. Нужно было вводные дать. Большой стол нам не нужно. Только журнальный. Кушать будем на кухне и в теплое время на террасе. И уже есть розетки на стене для телевизора. (Стена между гостиной и котельной). Хотя ваш вариант нравится. А при такой площади гостинной, можно диван (не уголок допустим) разместить посередине? Ну в таком случае вариантов вообще не много- действительно диван посредине, возможно еще кресла. Только не подбирайте массивные -нужны компактные, которые можно подвигать поближе к камину. Добавлено через 7 минут Здравствуйте, помогите мне пожалуйста. Сейчас как раз занимаюсь ремонтом и осталось только сделать последнюю комнату - зал. Это у нас и как зал и как гостинная. Комната очень большая но темная, мало света. Посоветуйте как сделать дизан. чтобы комната стала светлее, но не потеряла статуса гостинной( до этого были обои голубого цвета, нам советовали, ч тобы комната светлее стала и визуально больше, но толку мало было...) Любой дизайн начинается с правильной планировки и расстановки мебели- не видя схемы комнаты и ее внутреннего наполнения сложно что то советовать. Темная и свтелая комната понятия субъективные и зависят от Вашего личного восприятия нежели от каких то конкретных факторов. Основным фактором являются источники света- их должно быть несколько. Необходимо придумать несколько сценариев освещения ( это могут быть потолочная люстра + точечные светильники, подсветка светодиодной лентой, бра, подсветка направленными источниками света) - это придаст гостиной и уюта и дополнительного удобства, так как управляя светом вы сможете изменять интерьер. А вообще загрузите хотя бы какую нибудь схему- тогда более предметно смогу что то сказать. 1 Посилання на коментар Поділитися на інших сайтах More sharing options...
Рекомендовані повідомлення
Створіть акаунт або увійдіть у нього для коментування
Ви маєте бути користувачем, щоб залишити коментар
Створити акаунт
Зареєструйтеся для отримання акаунта. Це просто!
Зареєструвати акаунтУвійти
Вже зареєстровані? Увійдіть тут.
Увійти зараз