avtul Опубліковано: 18 березня 2013 Поділитись Опубліковано: 18 березня 2013 Отличный отчет!!! 1 Посилання на коментар Поділитися на інших сайтах More sharing options...
Halvis Опубліковано: 19 березня 2013 Поділитись Опубліковано: 19 березня 2013 Чим більше думаю про початок будівництва УШП, тим більше виникає питань по технології її спорудження. Допоможіть , будь-ласка, в наступних питаннях: 1) Чи можна для дренажної канави використати геотекстиль меншої щільності ніж під плиту? (на Вашу думку) 2) Яка приблизно ширина геотекстилю, який застелений в дренажній канаві? 3) Дренажна труба має діаметр 100мм? 4) Який діаметр труби оглядових дренажних колодязів, і що там на дні? 5) Дренажні канави і труба мають уклони до оглядових колодязів чи до основного дренажного колодязя? Дякую. Посилання на коментар Поділитися на інших сайтах More sharing options...
julian7705 Опубліковано: 19 березня 2013 Поділитись Опубліковано: 19 березня 2013 добавлю, и можно плиз схематично нарисовать схему этих 4-х колодцев, а то я так и не понял чем они вверху завершаются и на какой высоте. по фоткам не видно. плииииз Посилання на коментар Поділитися на інших сайтах More sharing options...
Dmode Опубліковано: 19 березня 2013 Автор Поділитись Опубліковано: 19 березня 2013 1) Чи можна для дренажної канави використати геотекстиль меншої щільності ніж під плиту? (на Вашу думку) на мою думку можна, і я так і робив. В дренажній системі найважливіше зберегти добре водопропускання і водовідведенні, значна міцність на розрив за межами плити не потрібна. Коли візьмете в руки голкопробивний геотекстиль та TYPAR, та прольєте воду на них, одразу наглядно стане ясно що тайпар пропускає воду краще, ризик замулення при глинистих грунтах в нього меньший. Тому я взяв 32 тайпар для обертання дренажних труб. На дні та стінках дренажної канави може бути і голкопробивний. 2) Яка приблизно ширина геотекстилю, який застелений в дренажній канаві? якщо не помиляюсь в мене було близько 1.2м. Залежить від глибини та ширини канави, в мене ширина була 30см. Глибина різна і залежить від ухилу та габаритів будинку. 3) Дренажна труба має діаметр 100мм? так, 110мм 4) Який діаметр труби оглядових дренажних колодязів, і що там на дні? 315мм. Взагалі для колодців є купа різних частин, типу дна, кришок, гумових вставок. Ціни на них починаються з 200-300грн Кришок яку я поки не ставлю бо вкрадуть. На решті складових я зекономив (оскільки колодців в мене 4 і на кожен купити дно по 350 грн в мене бажання не було), дна не робив зробивши таку конструкцію з геотекстилю, шнурка або вязального дроту. Отвори сверлив насадкою для дрелі з епіцентру, десь 70грн за 5різних штук. 5) Дренажні канави і труба мають уклони до оглядових колодязів чи до основного дренажного колодязя? Дякую. мають. я робив ухил приблизно 1см на 1м. Всі труби мають ухил від найвищої точки до найнижчої. Схема приблизно така: Оглядові колодці можна не робити на кожному повороті, я зробив бо так хотів. Достатньо колодця в найвищій точці (куті будинку) та в найнижчій. 13 Посилання на коментар Поділитися на інших сайтах More sharing options...
Dmode Опубліковано: 19 березня 2013 Автор Поділитись Опубліковано: 19 березня 2013 добавлю, и можно плиз схематично нарисовать схему этих 4-х колодцев, а то я так и не понял чем они вверху завершаются и на какой высоте. по фоткам не видно. плииииз ось так приблизно. Після влаштування благоустрою, коли знаєте вже кінцевий рівень поверхні, відрізаєте трубу і закриваєте кришкою (%D1%81%D1%81%D1%8B%D0%BB%D0%BA%D0%B0%20%D0%BD%D0%B0%20%D0%B8%D0%B7%D0%BE%D0%B1%D1%80%D0%B0%D0%B6%D0%B5%D0%BD%D0%B8%D0%B5%20%D1%83%D1%81%D1%82%D0%B0%D1%80%D0%B5%D0%BB%D0%B0) 4 Посилання на коментар Поділитися на інших сайтах More sharing options...
Vikctor Опубліковано: 19 березня 2013 Поділитись Опубліковано: 19 березня 2013 На решті складових я зекономив (оскільки колодців в мене 4 і на кожен купити дно по 350 грн в мене бажання не було), дна не робив зробивши таку конструкцію з геотекстилю, шнурка або вязального дроту.[/quote А что в таком случае помешает жидкости, собираемой дренажными трубами, не излиться вниз смотровых колодцев ,где вместо герметичного дна у Вас водопрозрачный геотекстиль? Чим більше думаю про початок будівництва УШП, тим більше виникає питань по технології її спорудження. Все нужные ответы есть в соответствующем разделе на www.forumhouse.ru. Все темы по УШП читать вовсе не обязательно, но FAQ изучить очень полезно. В прикреплённом файле застройщик собрал для себя неплохую инструкцию по строительству УШП. Такой себе краткий ликбез. Прошу прощения у ТС за флуд в теме. Упс, видимо большой размер, не грузится. 1 Посилання на коментар Поділитися на інших сайтах More sharing options...
Dmode Опубліковано: 19 березня 2013 Автор Поділитись Опубліковано: 19 березня 2013 А что в таком случае помешает жидкости, собираемой дренажными трубами, не излиться вниз смотровых колодцев ,где вместо герметичного дна у Вас водопрозрачный геотекстиль? а что ей мешает изливаться по всему периметру дренажной канавы на дне которой тот же геотекстиль? Посилання на коментар Поділитися на інших сайтах More sharing options...
Vikctor Опубліковано: 19 березня 2013 Поділитись Опубліковано: 19 березня 2013 а что ей мешает изливаться по всему периметру дренажной канавы на дне которой тот же геотекстиль Простите, я наверное туплю. Не очень заморачивался этим вопросом—у меня грунты песчаные и дренажная система не необходима. Если я правильно понял суть, то нижний полукруг(в разрезе) дренажных труб не имеет перфорации. Таким образом грунтовые воды/верховодка/чудом прорвавшиеся воды после осадков и т.п. поступают через верхний полукруг(как раз таки перфорированный) дренажных труб и далее по герметичной нижней части дренажной системы стекают к нижней точке уклонов в ров/канаву/приёмник ливнёвки/колодец из щебня,отрытый до водопрозрачного слоя грунта и т.п. Ошибаюсь? 1 Посилання на коментар Поділитися на інших сайтах More sharing options...
Golos Опубліковано: 19 березня 2013 Поділитись Опубліковано: 19 березня 2013 Ошибаюсь? Не ошибаетесь. Вариант дешевле - сделать пропилы в обычных канализационных трубах самому. Правда, это если сравнивать с немцами и поляками, может и у нас делают. 2 Посилання на коментар Поділитися на інших сайтах More sharing options...
Dmode Опубліковано: 19 березня 2013 Автор Поділитись Опубліковано: 19 березня 2013 и далее по герметичной нижней части дренажной системы стекают к нижней точке уклонов в ров/канаву/приёмник ливнёвки/колодец из щебня,отрытый до водопрозрачного слоя грунта и т.п. Ошибаюсь? дренажная (желтая) труба имеет отверстия по всему диаметру. судя по схемам дренажа, труба служит для ускорения отвода избытка воды, тоесть для того чтобы она попала в трубу, вода должна заполнить канаву со щебнем до уровня трубы 5 Посилання на коментар Поділитися на інших сайтах More sharing options...
Golos Опубліковано: 19 березня 2013 Поділитись Опубліковано: 19 березня 2013 Мне кажется правильным вариант трубы с "дном". Посилання на коментар Поділитися на інших сайтах More sharing options...
Dmode Опубліковано: 19 березня 2013 Автор Поділитись Опубліковано: 19 березня 2013 Мне кажется правильным вариант трубы с "дном". есть такие трубы и с отверстиями сверху, и с отверстиями снизу, вот они в сравнении со стандартными перфорированными, но у нас в продаже таких не видел 4 Посилання на коментар Поділитися на інших сайтах More sharing options...
dvk Опубліковано: 22 березня 2013 Поділитись Опубліковано: 22 березня 2013 есть такие трубы и с отверстиями сверху, и с отверстиями снизу, вот они в сравнении со стандартными перфорированными, но у нас в продаже таких не видел Полчаса делов Посилання на коментар Поділитися на інших сайтах More sharing options...
dvk Опубліковано: 22 березня 2013 Поділитись Опубліковано: 22 березня 2013 Блин, с планшета картинки пропадают ... Посилання на коментар Поділитися на інших сайтах More sharing options...
dvk Опубліковано: 22 березня 2013 Поділитись Опубліковано: 22 березня 2013 А это вид изнутри Посилання на коментар Поділитися на інших сайтах More sharing options...
Dmode Опубліковано: 22 березня 2013 Автор Поділитись Опубліковано: 22 березня 2013 Вполне вариант, только насколько я понимаю дороже чем желтая труба как по цене так и по трудозатратам Посилання на коментар Поділитися на інших сайтах More sharing options...
dvk Опубліковано: 22 березня 2013 Поділитись Опубліковано: 22 березня 2013 Вполне вариант, только насколько я понимаю дороже чем желтая труба как по цене так и по трудозатратам Не знаю насчет цены дренажных труб, я так ни одной и не купил Все сделал из красных канашек, т.к. что-то много лишних купил Цена такой трубы 70грн за три метра. Зато она прочная, ее можно смело нагружать грунтом или щебнем. По дренаже - не знаю, сколько у нее прочность. Посилання на коментар Поділитися на інших сайтах More sharing options...
Dmode Опубліковано: 22 березня 2013 Автор Поділитись Опубліковано: 22 березня 2013 Желтую брал за 10 грн, но она конечно менее прочная чем канализационная Посилання на коментар Поділитися на інших сайтах More sharing options...
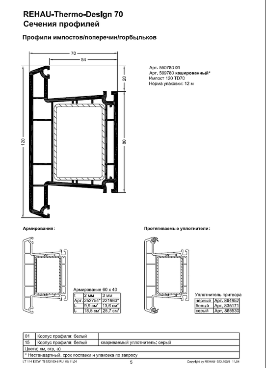
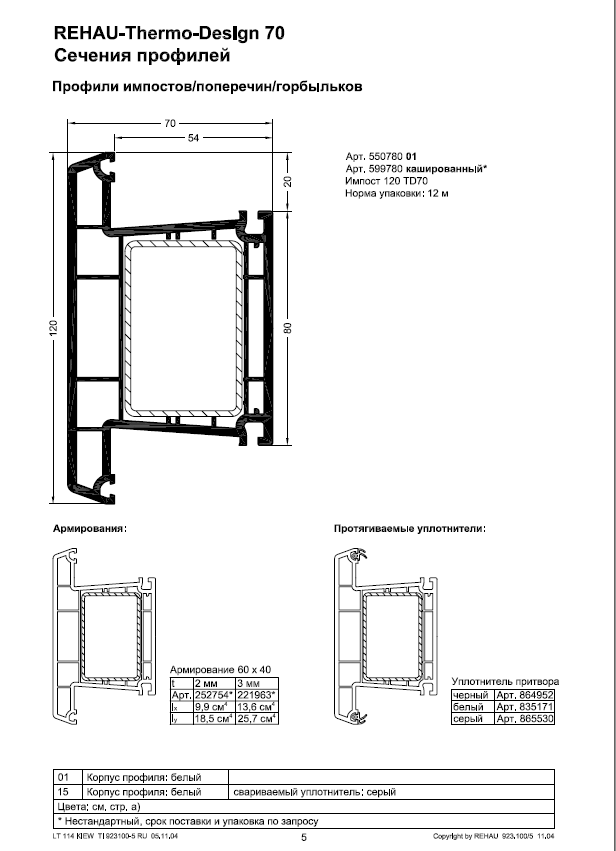
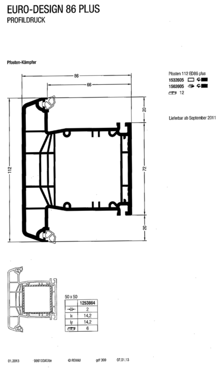
Dmode Опубліковано: 22 березня 2013 Автор Поділитись Опубліковано: 22 березня 2013 Вопросы появились, когда понял что мои проемы не совсем стандартные и в результате чего многие просто отказывались браться за такой заказ. Пришлось разбираться самому , читая рекомендации производителей профиля, считая моменты инерции и подбирая армирование. Началось все с того что сосед увидев мои проемы (2.1мх2.4м 2.8мх2.4м) решительно начал меня отговаривать от пластиковых окон, пугая что пластиковые при таких проемах будут болтаться как тряпки. В результате проверил также варианты деревянных окон и алюминиевых. Деревянные – минусы - требуют ухода, рама 70мм имеет U-value: 1,5W/m²K – как дешёвый мп профиль, плюсы – вроде как экологично, по стоимости как из профиля Euro70, то есть не заоблачно дорого (тернопольские) Алюминиевые – минусы – цена в два раза дороже хорошего пластика, в основном посредственный U-value около 1,5W/m²K, хотя есть и теплые профиля с U-value около 0,9W/m²K но цена все портит, плюсы – высокая прочность, возможность остеклять большие проемы. Металлопластик – плюсы – доступная цена по сравнению с алюминием, не требуют ухода как деревянные, на рынке есть енергоефективные профиля с U-value ниже 1. Но в металлопластике столкнулся с ограничениями производителей. Из всех компаний куда обращался, за мои проемы взялись только Газда (Rehau), Евровикнобуд(Schuko), Корса(Rehau), и Визаж(Trocal). Все бодро просчитывали заказ, хотя никто из них не выдал на руки расчета статики и ветра (кроме Евровикнобуда который указал что подобрал импост по моменту инерции). Остальные просто отказывались браться за «нестандарт», или говорили что сделаем все что захочешь и заминались когда просил подтвердить слова расчетами. В результате сел за расчет момента сам, сначала на сайте окна.ua, потом подтвердил расчет по формуле из манула Рехау Окна.ua показали для Киеве момент импоста Ix = 10,1, формула рехау 12.4 см4 Начал проверять какие профиля имеют импост с армированием соответствующим lx>12.4 Оказалось что у Rehau Еuro70 такого оконного импоста нет, есть дверной 120 импост с 3мм армированием с lx=13,6, но после просчета оказалось что выходит дороже чем профиль следующего ценового диапазона, да и его трехкамерность сулила высокие теплопотери U1.5, на уровне самого дешевого профиля. Rehau Euro86 имеет 5-ти камерный 112мм импост с 2мм армированием с lx=14,2, но его не было в наличии, и производитель как-то вяло брался за его просчет (надо было дополнительно узнавать у рехау сколько он будет стоить). Rehau Geneo - имеет 5-ти камерный(почти 6-ти камерный) 126mm импост с 4мм армированием, с lx=13,7, этот просчитали более живо, плюсом оказались U1.1 W/m²K (со стальным армированием), три контура уплотнения, фиброармрование в пластике. Trocal – хоть и предлагали сделать конструкцию, в каталоге системы профиля не оказалось импоста с необходимым моментом инерции, соответсвенно, система не рассматривалась Schuko – производителем окон было предложено делать из профиля 70мм, при том что максимальный импост 110мм имел lx=11.71см4, а также Schuko имеет неожиданное ограничение по площади конструкции в 5м2, что мне не подходило. Еще нашел импост VEKA Alphaline 119 mm c моментом 13,4см4, но не нашел у кого эту Веку можно было бы заказать, не хотелось обращаться к «нонейм» прозводителю. KBE тоже имел необходимый импост в но не имел ламинирования в массе и тоже был отброшен. В результате остановился на варианте больших конструкций в Rehau Geneo и стандартных в Rehau 86. Сейчас дополировую заказ и пытаюсь вникнуть в договор с производителем. 11 Посилання на коментар Поділитися на інших сайтах More sharing options...
turbik78 Опубліковано: 23 березня 2013 Поділитись Опубліковано: 23 березня 2013 ну а теперь вопрос - какая поворотно-откидная фурнитура будет держать дверь 2.40х1.0 со скорей всего двухкамерным пакетом? желательны фрамуги "игра импоста" лечится поперечными импостами или костями (вдоль или поперек). окна надо оптимизировать или делать в дереве (хотя даже в дереве скорей всего потребуют оптимизации) Посилання на коментар Поділитися на інших сайтах More sharing options...
Luko Опубліковано: 23 березня 2013 Поділитись Опубліковано: 23 березня 2013 по Веке пообщайтесь с Андреем (ник Канталь), он начальник производства Кантали если надо, скину контакты в личку 1 Посилання на коментар Поділитися на інших сайтах More sharing options...
-enjoy- Опубліковано: 24 березня 2013 Поділитись Опубліковано: 24 березня 2013 Началось все с того что сосед увидев мои проемы (2.1мх2.4м 2.8мх2.4м) решительно начал меня отговаривать от пластиковых окон. у архитектора посмотрите www.stroimdom.com.ua/forum/showpost.php?p=446067&postcount=149 2 Посилання на коментар Поділитися на інших сайтах More sharing options...
lndigo Опубліковано: 24 березня 2013 Поділитись Опубліковано: 24 березня 2013 Необязательно использовать широкий импост с нестандартным армированием. Можно применить профиль усиления импоста в комбинации с 86м импостом, что позволит расширить световой проем. Расчет статики по каталогу Рехау производится по DIN, там более жесткие требования, чем у нашего СНиПа "Нагрузки и воздействия", который используется при расчете на окнах.уа Добавлено через 2 минуты "игра импоста" лечится поперечными импостами или костями (вдоль или поперек) Поперечные импосты не воспринимают ветровую нагрузку. Кости (так называется гибрид соединительного и термокомпенсирующего профиля в дешевых системах) используются для соединения рам, а не для усиления импостов. 1 Посилання на коментар Поділитися на інших сайтах More sharing options...
turbik78 Опубліковано: 24 березня 2013 Поділитись Опубліковано: 24 березня 2013 Кости (так называется гибрид соединительного и термокомпенсирующего профиля в дешевых системах) используются для соединения рам, а не для усиления импостов.для соединения рам служит обычная полоска или аш-молдинг, а кости кроме соединения служат и для придания жесткости. Посилання на коментар Поділитися на інших сайтах More sharing options...
Dmode Опубліковано: 24 березня 2013 Автор Поділитись Опубліковано: 24 березня 2013 (змінено) уточняю, что размеры указанные в файле конфигурации окон - это размеры проемов. ну а теперь вопрос - какая поворотно-откидная фурнитура будет держать дверь 2.40х1.0 со скорей всего двухкамерным пакетом? желательны фрамуги не хочу фрамуг. Смотрел такие окна в живую со створкой 2.4*0.9 в доме который проектирует кум, без фрамуг, вполне работоспособный вариант. Хотя себе планирую 2 створки (которые будут открываться чаще), сделать только поворотными на 4 петлях. Одна буде поворотно-откидная (которая чаще будет проветриваться чем открываться). Если верить производителям фурнитуры, то имеем следующие данные по допустимому весу и возможным размерам створки по фальцу: Maco Multi-Trend ширина FFB: минимум 280 мм, максимум 1650 мм высота FFH: минимум 295 мм, максимум 2350 мм максимальный вес створки – 130 кг Гарантия: 10 лет/40 000 циклов открывания." Siegenia Favorit ширина: min 290 мм - max 1560 мм высота: min 365 мм - max 2360 мм Гарантия: 10 лет / 40 000 циклов открывания. В стандартной исполнении система FAVORIT Si-Line рассчитана на вес оконной створки до 100 кг. При варианте фурнитуры с усиленными опорами петель допустимый вес створки может достигать 130 кг. Fornax ширина FFB: минимум 289мм, максимум 1200мм высота FFH: минимум 290мм, максимум 2400мм максимальный вес створки - 130кг" Gretsch-Unitas Несущая способность до 130 кг; При моих размерах створки по фальцу: высота будет будет около 227,4см (243см высота проема - (2см монтажный шов + 5,8 см от рамы до фальца)х2=243-14.6см) (ссылка на изображение устарела) ширина будет около 88,3см (99см размер в осях-5.8см рама -4.9см импост) (ссылка на изображение устарела) По таблице ограничения по размеру створки по профилю Rehau Geneo при моих размерах необходимо армирование 2мм при массе стеклопакета до 80кг: (ссылка на изображение устарела) Считаем вес створки: Масса 2 камерного стеклопакета со стеклом 4мм при размере 220см*81см равна 52кг < 80кг. Масса армирования по периметру при весе погонного метра 1.53кг составит (2.274*2+0.883*2)*1.53 = 9.7кг (ссылка на изображение устарела) Точную массу м.п. профиля генео пока не нашел, может подскажете? По аналогии www.extrusion.by/ru/tools/win/ 70мм профиль весит около 1.5кг/м.п., 86мм Geneo будет весить гдето на 10% больше, итого масса профиля (2.274*2+0.883*2)*1.65 = 10.4кг Итого масса створки: стеклопакет 52кг пластиковый профиль 10.4кг армирование 2мм 9.7кг = 72.1кг, добавляем 10% на фурнитуру и остальные детали = 80кг Суммируя по ограничениям производителей: Рехау на вес створки (без технологии вклеивания) - 100кг - запас 20% Рехау на вес стеклопакета в створке 80кг - запас 35% Мако на вес поворотно-откидной створки - 130кг - запас 38% по максимальной высоте створки в 2350мм - запас 3% Змінено 26 березня 2013 користувачем BrotherSam 1 Посилання на коментар Поділитися на інших сайтах More sharing options...
Рекомендовані повідомлення
Створіть акаунт або увійдіть у нього для коментування
Ви маєте бути користувачем, щоб залишити коментар
Створити акаунт
Зареєструйтеся для отримання акаунта. Це просто!
Зареєструвати акаунтУвійти
Вже зареєстровані? Увійдіть тут.
Увійти зараз