helium Опубліковано: 20 травня 2013 Автор Поділитись Опубліковано: 20 травня 2013 Причем коробка простая и без изысков. так и у нас без изысков )) двускатная крыша, даже без мансарды, никаких подвалов и только 2й свет из "наворотов" насчет мечтов за 300К - согласны на 100%, можно тогда фантазировать уже даже про домик в Испании, например, а не на наших болотах ))))) Посилання на коментар Поділитися на інших сайтах More sharing options...
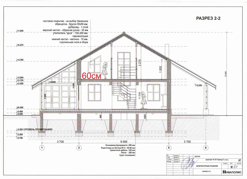
helium Опубліковано: 12 квітня 2014 Автор Поділитись Опубліковано: 12 квітня 2014 Здравствуйте, ув. форумчане! Дабы не плодить новых тем, спрошу в старой, т.к. вопрос по проектной части, все-таки. Дошли мы до возведения стен мансарды и тут насторожила высота подоконников окон на 2 эт, ни разу раньше внимания не обращал а именно - 60см от грязного пола (!), т.е. от чистого будет вообще 52-55см! Возможно, кто-то из присутствующих делал себе похожие низкие окна и имеет опыт эксплуатации? Посоветуйте, есть ли смысл поднимать на 20см (1 блок), пока еще можно? Посилання на коментар Поділитися на інших сайтах More sharing options...
Zak Опубліковано: 12 квітня 2014 Поділитись Опубліковано: 12 квітня 2014 Здравствуйте, ув. форумчане! Дабы не плодить новых тем, спрошу в старой, т.к. вопрос по проектной части, все-таки. Дошли мы до возведения стен мансарды и тут насторожила высота подоконников окон на 2 эт, ни разу раньше внимания не обращал а именно - 60см от грязного пола (!), т.е. от чистого будет вообще 52-55см! Возможно, кто-то из присутствующих делал себе похожие низкие окна и имеет опыт эксплуатации? Посоветуйте, есть ли смысл поднимать на 20см (1 блок), пока еще можно? Опыта эксплуатации пока нет, но этим вопрсом тоже задавался, форумчане дали добро www.stroimdom.com.ua/forum/showthread.php?t=93631&p=2336450 1 Посилання на коментар Поділитися на інших сайтах More sharing options...
loader Опубліковано: 12 квітня 2014 Поділитись Опубліковано: 12 квітня 2014 Дошли мы до возведения стен мансарды и тут насторожила высота подоконников окон на 2 эт, ни разу раньше внимания не обращал а именно - 60см от грязного пола (!), т.е. от чистого будет вообще 52-55см! Возможно, кто-то из присутствующих делал себе похожие низкие окна и имеет опыт эксплуатации? Посоветуйте, есть ли смысл поднимать на 20см (1 блок), пока еще можно? у меня на втором почти все до пола, а одно гдето также 55см, снаружи сделаем по типу перил чтобы не выпасть, идея этого окна широкий подоконник на котором можно сидеть. 1 Посилання на коментар Поділитися на інших сайтах More sharing options...
helium Опубліковано: 12 квітня 2014 Автор Поділитись Опубліковано: 12 квітня 2014 почитал, спасибо! наверное, так и поступим, оставим как есть ) Добавлено через 1 час 9 минут Кстати, раз уж о высотах.... Посоветуете мнение о высоте аттиковой стены 1,9м? (Чистой высоты будет около 1,80) Просто хорошо получается как раз 9 блоков положить и нас отговаривают ложить еще "десятку"-блок плашмя, чтобы выйти на проектные 1,93м высоты от чистого пола уже. Посилання на коментар Поділитися на інших сайтах More sharing options...
loader Опубліковано: 13 квітня 2014 Поділитись Опубліковано: 13 квітня 2014 почитал, спасибо! наверное, так и поступим, оставим как есть ) Добавлено через 1 час 9 минут Кстати, раз уж о высотах.... Посоветуете мнение о высоте аттиковой стены 1,9м? (Чистой высоты будет около 1,80) Просто хорошо получается как раз 9 блоков положить и нас отговаривают ложить еще "десятку"-блок плашмя, чтобы выйти на проектные 1,93м высоты от чистого пола уже. на стройке я любые советы пропускаю через проект, 3д модель и моделирование проживания, чтобы не выпустить из виду чегото важного. строители как правило невидят полной картины. так что думайте, смотрите. Посилання на коментар Поділитися на інших сайтах More sharing options...
Archist Опубліковано: 13 квітня 2014 Поділитись Опубліковано: 13 квітня 2014 Действительно, одна сложность только в подборе радиаторов. В вашем случае высота приборов должна быть 25-30 см. Рассмотрев ваш разрез (я так понимаю, что строитесь вы по Эскизному проекту), хочу посоветовать вам определиться с материалом кровли до начала устройства кровельного пирога. Ибо есть отличия в конструкции пирога для каждого типа кровли. Посилання на коментар Поділитися на інших сайтах More sharing options...
Koskos Опубліковано: 13 квітня 2014 Поділитись Опубліковано: 13 квітня 2014 У меня в 2-х местах дома окна на 50 см от пола начинаются. использовал узкие длинные стальные радиаторы в тех местах 1 Посилання на коментар Поділитися на інших сайтах More sharing options...
helium Опубліковано: 14 квітня 2014 Автор Поділитись Опубліковано: 14 квітня 2014 Действительно, одна сложность только в подборе радиаторов. В вашем случае высота приборов должна быть 25-30 см. Рассмотрев ваш разрез (я так понимаю, что строитесь вы по Эскизному проекту), хочу посоветовать вам определиться с материалом кровли до начала устройства кровельного пирога. Ибо есть отличия в конструкции пирога для каждого типа кровли. нет, строимся по полному проекту, из эскизного просто сканы приводил, как более наглядные... по "определиться по кровле" уже на финишной прямой, практически, да и не строимся пока, блоки закончились, а их никто не продает сейчас в нашем городе, оказывается ))) так что вынужденный простой используем для штудирования форума и более обоснованного, и взвешенного выбора крышной оболочки Посилання на коментар Поділитися на інших сайтах More sharing options...
Vlposs Опубліковано: 11 червня 2014 Поділитись Опубліковано: 11 червня 2014 Добрый день, очень нравятся варианты со вторым светом и, наконец, я увидел Ваш вариант! Сейчас как раз ищем проект. На какой стадии Вы сейчас? Вы покупали проект здесь www.invapolis.ru/pasport/doma_s_mansardoj/svetlij_150/? Если не секрет, какая стоимость проекта и какие разделы в него входят (можно в личку)? Вы дорабатывали проект? Очень нравится, но я бы внес некие коррективы. С ув, Владлен Посилання на коментар Поділитися на інших сайтах More sharing options...
helium Опубліковано: 16 червня 2014 Автор Поділитись Опубліковано: 16 червня 2014 Добрый день, очень нравятся варианты со вторым светом и, наконец, я увидел Ваш вариант! Сейчас как раз ищем проект. На какой стадии Вы сейчас? Вы покупали проект здесь www.invapolis.ru/pasport/doma_s_mansardoj/svetlij_150/? Если не секрет, какая стоимость проекта и какие разделы в него входят (можно в личку)? Вы дорабатывали проект? Очень нравится, но я бы внес некие коррективы. С ув, Владлен Здравствуйте, Владлен! знач, по порядку: - Этап - накрыли коробку, заводим в дом коммуникации. - Проект дорабатывали под монолитные перекрытия этажей. - Если правильно помню, вместе с доработками платили что-то около 1400USD. - они присылают 2 раздела - эскизный (14 листов) и СКР (строительно-конструктивные решения, 48 листов) С уважением, Александр Посилання на коментар Поділитися на інших сайтах More sharing options...
helium Опубліковано: 21 березня 2016 Автор Поділитись Опубліковано: 21 березня 2016 Ну все, вроде закончили Можем продать проект, если кому понравится ))) Готовы предоставить любые консультации по конструктиву и по каждому этапу возведения, т.к. сами реально по нему построились и живем. Дом получился действительно светлым и удобным, внешний вид напоминает европейские коттеджные застройки, интересно выделяется из общей массы новостроев. Цена - 1000грн. вопросы по теме - (095) 464 39 90 www.stroimdom.com.ua/forum/showthread.php?t=195832 Посилання на коментар Поділитися на інших сайтах More sharing options...
abelor Опубліковано: 21 березня 2016 Поділитись Опубліковано: 21 березня 2016 Я бы за проект с двухсветной гостиной, с бесконечным эхом в этой гостиной и вековой паутиной на потолке этой гостиной и 100 гривен не дала бы.;) Ну все, вроде закончили Можем продать проект, если кому понравится ))) Готовы предоставить любые консультации по конструктиву и по каждому этапу возведения, т.к. сами реально по нему построились и живем. Дом получился действительно светлым и удобным, внешний вид напоминает европейские коттеджные застройки, интересно выделяется из общей массы новостроев. Цена - 1000грн. вопросы по теме - (095) 464 39 90 www.stroimdom.com.ua/forum/showthread.php?t=195832 Посилання на коментар Поділитися на інших сайтах More sharing options...
goodme Опубліковано: 21 березня 2016 Поділитись Опубліковано: 21 березня 2016 Если не секрет, в бюджет свой вложились? Посилання на коментар Поділитися на інших сайтах More sharing options...
helium Опубліковано: 22 березня 2016 Автор Поділитись Опубліковано: 22 березня 2016 Если не секрет, в бюджет свой вложились? не секрет, еще даже с профицитом вышли немного )) Посилання на коментар Поділитися на інших сайтах More sharing options...
ARCH INNOVATION Опубліковано: 22 березня 2016 Поділитись Опубліковано: 22 березня 2016 Один из немногих проектов на этом форуме, который действительно мне нравится. 1 Посилання на коментар Поділитися на інших сайтах More sharing options...
helium Опубліковано: 24 березня 2016 Автор Поділитись Опубліковано: 24 березня 2016 Кому интересны подобные проекты, задавайте вопросы сюда или в личку - с радостью поделимся строительным опытом Посилання на коментар Поділитися на інших сайтах More sharing options...
Рекомендовані повідомлення
Створіть акаунт або увійдіть у нього для коментування
Ви маєте бути користувачем, щоб залишити коментар
Створити акаунт
Зареєструйтеся для отримання акаунта. Це просто!
Зареєструвати акаунтУвійти
Вже зареєстровані? Увійдіть тут.
Увійти зараз