Vikctor Опубліковано: 14 грудня 2020 Поділитись Опубліковано: 14 грудня 2020 Не держит клапан слива, да меняется просто если знать где взять запчасть, там по сути резиновое колечко нужно заменить, в каталоге геберита я таких запчастей не вижу, да и сливные клапаны только для наружных бачков. Еще б понимать что это за модель. Шеф готов целиком клапан заменить. ТС этой ветки точно менял сливные механизмы у подвесных унитазов и упоминал, что заказать их не сложно. Вообще у вас странный шеф. Даже если отчаялся, то куда дешевле купить новую инсталляцию и забрать из неё сливной механизм на замену, чем рушить стену/пол и ставить напольный унитаз... Посилання на коментар Поділитися на інших сайтах More sharing options...
Vit3f Опубліковано: 14 грудня 2020 Поділитись Опубліковано: 14 грудня 2020 ТС этой ветки точно менял сливные механизмы у подвесных унитазов и упоминал, что заказать их не сложно. Вообще у вас странный шеф. Даже если отчаялся, то куда дешевле купить новую инсталляцию и забрать из неё сливной механизм на замену, чем рушить стену/пол и ставить напольный унитаз... Спасибо и на этом, я тоже за поменять. Буду завтра поставщиков торбить. Мне б с моделькой прояснить. Посилання на коментар Поділитися на інших сайтах More sharing options...
Vikctor Опубліковано: 14 грудня 2020 Поділитись Опубліковано: 14 грудня 2020 Спасибо и на этом, я тоже за поменять. Буду завтра поставщиков торбить. Мне б с моделькой прояснить. Так может самый простой вариант - снять сливной механизм и отвезти официалам... 1 Посилання на коментар Поділитися на інших сайтах More sharing options...
Vit3f Опубліковано: 14 грудня 2020 Поділитись Опубліковано: 14 грудня 2020 Так может самый простой вариант - снять сливной механизм и отвезти официалам... Так и собираюсь действовать, если до утра тут спецы не подскажут. Посилання на коментар Поділитися на інших сайтах More sharing options...
B.S.V. Опубліковано: 14 грудня 2020 Автор Поділитись Опубліковано: 14 грудня 2020 У шефа текут скрытые инсталяции унитазов, монтировалось все это в 2008 году, говорит что Геберит, но на деталях маркировки нет. Может по фото кто опознает. И второй вопрос, у того ж геберита я не вижу ремкомплектов и запчастей, есть ли смысл заморачиваться поиском ремкоплекта или прийдется бить мрамор, и как говорит шеф к хеRам их скрытые приколы, ставим обычные унитазы. Мда, а я дочке в квартире такое чудо поставил, и себе думал делать ремонт и ставить скрытую инсталяцию, теперь вот сомневаюсь в этой красоте. С пневмокнопкой, кажется, в те времена шли Грое. На Грое, как и на геберит, с комплектующими проблем нет. Первое, что нужно определить- почему течет. Заливной клапан: мембрана; не ходит поплавок из-за грязи или какой-то поломки. Решается просто, покупкой заливного клапана на обычный унитаз. Я беру Алкапластовские с латунной резьбой на 3/8*. У них узкий поплавок и не цепляет за стенки инсталяции. Подходит практически ко всем инсталяциям.Цена вопроса 200 грн. Сливной механизм: низко перелив, износилась резинка, загрязнен щток, поломка деталей. Решается заменой на аналогичный или просто перевернуть резинку. Там внизу есть еще одна деталь, которая вынимается поворотом против часовой стрелки. Кстати, внутри инсталяции, обычно, есть артикульный номер. 6 Посилання на коментар Поділитися на інших сайтах More sharing options...
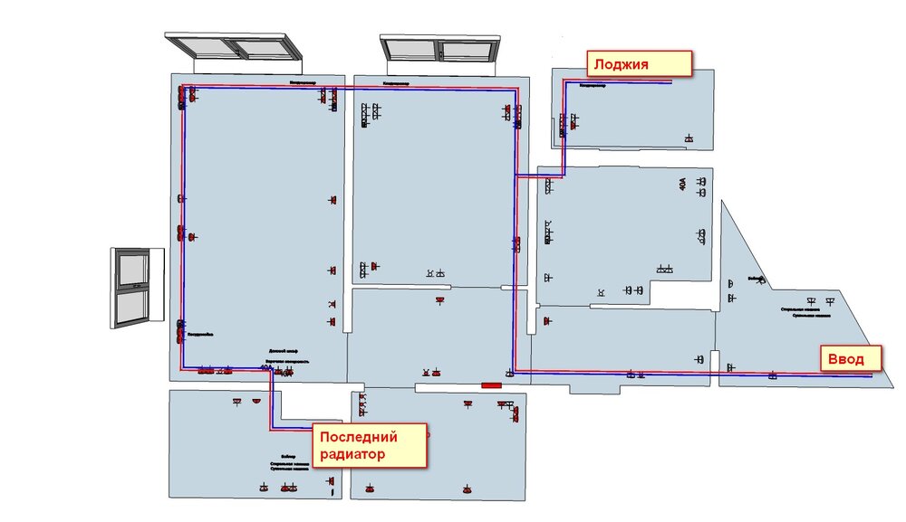
DrFrog Опубліковано: 15 грудня 2020 Поділитись Опубліковано: 15 грудня 2020 Добрый день. Прошу помощи по разводке отопления в квартире. Есть схема и разводка от застройщика. Необходимо её изменить либо просто заменить трубы. Радиаторы стоят под каждым окном и один в санузе. Сами трубы уложены в каналы по периметру помещений. 1) Возник следующий вопрос какого диаметра трубы необходимо использовать и на каких участках? Застройщиком на вводе и до тройника идёт 20-я, потом 16-я. 2) Чем и как правильно подключать последний радиатор, Г-образной трубкой или Т-образной + заглушка. Посилання на коментар Поділитися на інших сайтах More sharing options...
Vit3f Опубліковано: 15 грудня 2020 Поділитись Опубліковано: 15 грудня 2020 Добрый день. Прошу помощи по разводке отопления в квартире. Есть схема и разводка от застройщика. Необходимо её изменить либо просто заменить трубы. Радиаторы стоят под каждым окном и один в санузе. Сами трубы уложены в каналы по периметру помещений. [ATTACH]708229[/ATTACH] 1) Возник следующий вопрос какого диаметра трубы необходимо использовать и на каких участках? Застройщиком на вводе и до тройника идёт 20-я, потом 16-я. 2) Чем и как правильно подключать последний радиатор, Г-образной трубкой или Т-образной + заглушка. А что Вас не устраивает, все там правильно. Последний г - образкой, зачем там лишнее соединение на тройнике. Посилання на коментар Поділитися на інших сайтах More sharing options...
DrFrog Опубліковано: 15 грудня 2020 Поділитись Опубліковано: 15 грудня 2020 А что Вас не устраивает, все там правильно. Последний г - образкой, зачем там лишнее соединение на тройнике. Насчёт Г возник вопрос, т.к. трубы подходят к радиатору сбоку и правильно зафиксировать данные трубки не получается или я ошибаюсь? Посилання на коментар Поділитися на інших сайтах More sharing options...
B.S.V. Опубліковано: 15 грудня 2020 Автор Поділитись Опубліковано: 15 грудня 2020 Насчёт Г возник вопрос, т.к. трубы подходят к радиатору сбоку и правильно зафиксировать данные трубки не получается или я ошибаюсь? На г- образные трубки ставятся : блок нижнего подключения или в случае радиаторов с боковым подключением- верхний термоклапан под термоголовку и нижний балансировочный кран. Кстати, у Вас очень неудачная трассировка трубопроводов. Посилання на коментар Поділитися на інших сайтах More sharing options...
DrFrog Опубліковано: 15 грудня 2020 Поділитись Опубліковано: 15 грудня 2020 На г- образные трубки ставятся : блок нижнего подключения или в случае радиаторов с боковым подключением- верхний термоклапан под термоголовку и нижний балансировочный кран. Кстати, у Вас очень неудачная трассировка трубопроводов. Подвод как раз нижний, но как я писал, он сбоку, т.е. идеально туда становится только Т-образная трубка, но с заглушкой (заглушек на такое не видел). Вопрос как мне закрепить в таком случае трубки? А в чём проблема с трассировкой? Как было бы лучше сделать (т.к. почти всё буду переделывать)? Посилання на коментар Поділитися на інших сайтах More sharing options...
B.S.V. Опубліковано: 15 грудня 2020 Автор Поділитись Опубліковано: 15 грудня 2020 Подвод как раз нижний, но как я писал, он сбоку, т.е. идеально туда становится только Т-образная трубка, но с заглушкой (заглушек на такое не видел). Вопрос как мне закрепить в таком случае трубки? А в чём проблема с трассировкой? Как было бы лучше сделать (т.к. почти всё буду переделывать)? Не совсем понял идеи, но если будет иметь место выход "из пола" то такой вариант имеет право на жизнь. Как правило большинство заказчиков переделывают "из пола" на "из стены". 2. Там где у Вас трубы повернули направо в сторону лоджии ставите тройник 20х16х16 и на лоджию и два радиатора идет одна ветка, а на два радиатора левой части и прямо, идет другая ветка. Система будет более сбалансирована. Посилання на коментар Поділитися на інших сайтах More sharing options...
DrFrog Опубліковано: 15 грудня 2020 Поділитись Опубліковано: 15 грудня 2020 Не совсем понял идеи, но если будет иметь место выход "из пола" то такой вариант имеет право на жизнь. Как правило большинство заказчиков переделывают "из пола" на "из стены". 2. Там где у Вас трубы повернули направо в сторону лоджии ставите тройник 20х16х16 и на лоджию и два радиатора идет одна ветка, а на два радиатора левой части и прямо, идет другая ветка. Система будет более сбалансирована. По разводке понял, спасибо. А по поводу выхода из пола - это единственный вариант, из стены не получится, т.к радиатор расположен на бетонном вентканале, толщиной 65мм., т.е. туда вмуровывать некуда. На сейчас, когда трубки не закреплены должным образом есть проблема "вырывания" и течи изпод гаек. Как правильно закрепить в таком случае ума не приложу. Посилання на коментар Поділитися на інших сайтах More sharing options...
B.S.V. Опубліковано: 15 грудня 2020 Автор Поділитись Опубліковано: 15 грудня 2020 По разводке понял, спасибо. А по поводу выхода из пола - это единственный вариант, из стены не получится, т.к радиатор расположен на бетонном вентканале, толщиной 65мм., т.е. туда вмуровывать некуда. На сейчас, когда трубки не закреплены должным образом есть проблема "вырывания" и течи изпод гаек. Как правильно закрепить в таком случае ума не приложу. Радиаторы монтируються на оштукатуренную стену. К "биноклям" (кранам нижнего подключения) подводятся г-образные трубки и зажимаются, в строгой соостности, гайками. Трубки замоноличиваются. После отвердевании стяжки, радиаторы можно снять. Крепеж радиаторов снимать нельзя, может нарушиться соостность и будете иметь ту же головную боль, что сейчас. А лучше, сразу наймите специалиста. 2 Посилання на коментар Поділитися на інших сайтах More sharing options...
igorrius Опубліковано: 18 грудня 2020 Поділитись Опубліковано: 18 грудня 2020 подскажите пожалуйста, есть ли такие герметики, в которых грибок ( черный нигер ) не заводится ? начало протекать между стеной и ванной- загерметезировали герметиком, чтобы не топить соседей- так через пару месяцев прозрачные швы герметика превратились в черные от грибка. Может есть какие то антигрибковые варианты решения этой задачи ? Посилання на коментар Поділитися на інших сайтах More sharing options...
Vit3f Опубліковано: 18 грудня 2020 Поділитись Опубліковано: 18 грудня 2020 (змінено) подскажите пожалуйста, есть ли такие герметики, в которых грибок ( черный нигер ) не заводится ? начало протекать между стеной и ванной- загерметезировали герметиком, чтобы не топить соседей- так через пару месяцев прозрачные швы герметика превратились в черные от грибка. Может есть какие то антигрибковые варианты решения этой задачи ? Не бывает таких , сам замучился на душевой кабинке, стабильно раз в пол года приходиться выдирать тот силикон и по новому, всякие перепробовал, кроме аквариумного. РС говорят, что аквариумный не подвержен, но что то мало верю РРС вентиляция и тепло - это мешает плесени размножаться Змінено 18 грудня 2020 користувачем Vit3f 1 Посилання на коментар Поділитися на інших сайтах More sharing options...
Vikctor Опубліковано: 18 грудня 2020 Поділитись Опубліковано: 18 грудня 2020 подскажите пожалуйста, есть ли такие герметики, в которых грибок ( черный нигер ) не заводится ? начало протекать между стеной и ванной- загерметезировали герметиком, чтобы не топить соседей- так через пару месяцев прозрачные швы герметика превратились в черные от грибка. Может есть какие то антигрибковые варианты решения этой задачи ? Так на герметиках и пишут - санитарный, антигрибковый и т.п. Так быстро точно не почернеют... Посилання на коментар Поділитися на інших сайтах More sharing options...
naupv Опубліковано: 18 грудня 2020 Поділитись Опубліковано: 18 грудня 2020 подскажите пожалуйста, есть ли такие герметики, в которых грибок ( черный нигер ) не заводится ? начало протекать между стеной и ванной- загерметезировали герметиком, чтобы не топить соседей- так через пару месяцев прозрачные швы герметика превратились в черные от грибка. Может есть какие то антигрибковые варианты решения этой задачи ? Купите планку на поддон и не будете ничего отдирать и перемазывать долгие годы. aqua.tt.ua/ravak-xb461100001?gclid=EAIaIQobChMI7uHnwq3X7QIVE28YCh3XFwyiEAYYASABEgJ2e_D_BwE Посилання на коментар Поділитися на інших сайтах More sharing options...
Antrate Опубліковано: 18 грудня 2020 Поділитись Опубліковано: 18 грудня 2020 По герметику, себе шві промазівал таким epicentrk.ua/shop/germetik-soudal-silikonovyy-neytralnyy-sanitarnyy-belyy-280-ml.html пока что вс' нормально. 1 Посилання на коментар Поділитися на інших сайтах More sharing options...
vodinoy Опубліковано: 18 грудня 2020 Поділитись Опубліковано: 18 грудня 2020 подскажите пожалуйста, есть ли такие герметики, в которых грибок ( черный нигер ) не заводится ? важно не только какой герметик, но и правильно его наносить 2 Посилання на коментар Поділитися на інших сайтах More sharing options...
igor_d70 Опубліковано: 18 грудня 2020 Поділитись Опубліковано: 18 грудня 2020 Не знаю. Я почерневшие швы промазал силиконом. Силикон отшелушился через несколько месяцев вместе с чернотой , но главное что с тех пор в затирке чернота не появляется. Силикон из тех что шибают в нос уксусом 1 Посилання на коментар Поділитися на інших сайтах More sharing options...
yur43 Опубліковано: 18 грудня 2020 Поділитись Опубліковано: 18 грудня 2020 Таке питання. Чи буде нормально текти вода ГВС по трубі 16" (для теплої підлоги) 150 метрів ? Споживач - змішувач для ванної Посилання на коментар Поділитися на інших сайтах More sharing options...
Сергей 31 Опубліковано: 18 грудня 2020 Поділитись Опубліковано: 18 грудня 2020 Таке питання. Чи буде нормально текти вода ГВС по трубі 16" Что значит нормально? Посилання на коментар Поділитися на інших сайтах More sharing options...
igor_d70 Опубліковано: 18 грудня 2020 Поділитись Опубліковано: 18 грудня 2020 Таке питання. Чи буде нормально текти вода ГВС по трубі 16" (для теплої підлоги) 150 метрів ? Споживач - змішувач для ванної Что значит 16", 16 дюймов? Посилання на коментар Поділитися на інших сайтах More sharing options...
yur43 Опубліковано: 18 грудня 2020 Поділитись Опубліковано: 18 грудня 2020 @Сергей 31, нормально коли невелику ванну можна набрати за 15 хв . Тиск буде 3 атм. Добавлено через 47 секунд @igor_d70, труба для теплої підлоги Посилання на коментар Поділитися на інших сайтах More sharing options...
Сергей 31 Опубліковано: 18 грудня 2020 Поділитись Опубліковано: 18 грудня 2020 Давление поднимайте 4-5 атм. 1 Посилання на коментар Поділитися на інших сайтах More sharing options...
Рекомендовані повідомлення
Створіть акаунт або увійдіть у нього для коментування
Ви маєте бути користувачем, щоб залишити коментар
Створити акаунт
Зареєструйтеся для отримання акаунта. Це просто!
Зареєструвати акаунтУвійти
Вже зареєстровані? Увійдіть тут.
Увійти зараз