Игорь&Ира Опубліковано: 5 листопада 2015 Поділитись Опубліковано: 5 листопада 2015 Также есть 3 варианта крепления отлива: Вариант №1 (без вырезов в стальной пластине и в арт. 561892): чтобы задняя часть отлива прилегала к подставочному профилю в отливе необходимо сделать вырез вокруг арт. 561892; обвод отлива вокруг арт. 561892 необходимо заделать УФ-стойким силиконом. Вариант №2 (без выреза в стальной пластине, но с вырезом в арт. 561892): чтобы задняя часть отлива прилегала к подставочному профилю в отливе необходимо сделать вырезы вокруг стальной пластины, а также необходимо подрезать арт. 561892 по верхнему уровню подставочного профиля; обвод отлива вокруг стальной пластины необходимо заделать силиконом. Вариант №3 (с вырезами в стальной пластине и в арт. 561892): чтобы задняя часть отлива прилегала к подставочному профилю необходимо подрезать стальную пластину и арт. 561892 по верхнему уровню подставочного профиля. Как по мне, вариант №2 оптимальный. Посилання на коментар Поділитися на інших сайтах More sharing options...
Игорь&Ира Опубліковано: 5 листопада 2015 Поділитись Опубліковано: 5 листопада 2015 Насколько будет корректным проверить выполнение монтажниками требований технологической карты Rehau при монтаже соединителей по применению силикона и прокладки из вспененного ПВХ? Посилання на коментар Поділитися на інших сайтах More sharing options...
-Naum- Опубліковано: 6 листопада 2015 Поділитись Опубліковано: 6 листопада 2015 может вместо пвх лучше и проще пеной? Посилання на коментар Поділитися на інших сайтах More sharing options...
Алік Опубліковано: 6 листопада 2015 Поділитись Опубліковано: 6 листопада 2015 Или использовать шнур забутовочный - вспененый пенопропилен, по сути тот же ПСУЛ-поролон. А вообще, тут есть смысл предоставить право выбора варианта непосредственному исполнителю. На месте виднее. 1 Посилання на коментар Поділитися на інших сайтах More sharing options...
Игорь&Ира Опубліковано: 6 листопада 2015 Поділитись Опубліковано: 6 листопада 2015 может вместо пвх лучше и проще пеной? Ну, у меня было 2 вопроса: 1. Вообще, туда дают хоть что-то? 2. Что посоветуете? Лично я не знаю, что "лучше и проще"? Я только прочитал, что "правильно" (см. рисунок выше). Добавлено через 2 минуты Или использовать шнур забутовочный - вспененый пенопропилен, по сути тот же ПСУЛ-поролон.На месте виднее. Они в доборники довозят забутовочный шнур уже вторую неделю. А вообще, тут есть смысл предоставить право выбора варианта непосредственному исполнителю. На месте виднее. Не вопрос. На форуме спрашиваю, чтобы точно определиться с возможными правильными вариантами, а то эти отступы от технологии чреваты утеплением даже скомканными газетами. Посилання на коментар Поділитися на інших сайтах More sharing options...
Игорь&Ира Опубліковано: 7 листопада 2015 Поділитись Опубліковано: 7 листопада 2015 Пока суть да дело, решил задать ещё один вопрос: родители жалуются на сильный химический запах из комнаты, где складированы конструкции, комплектующие и пр. Что это может быть? Есть вероятность сохранения запаха в смонтированной конструкции? Посилання на коментар Поділитися на інших сайтах More sharing options...
Игорь&Ира Опубліковано: 9 листопада 2015 Поділитись Опубліковано: 9 листопада 2015 Завтра - третий подход. Посилання на коментар Поділитися на інших сайтах More sharing options...
-Naum- Опубліковано: 9 листопада 2015 Поділитись Опубліковано: 9 листопада 2015 Пока суть да дело, решил задать ещё один вопрос: родители жалуются на сильный химический запах из комнаты, где складированы конструкции, комплектующие и пр. Что это может быть? Есть вероятность сохранения запаха в смонтированной конструкции? этот специфический запах вскоре выветриться 1 Посилання на коментар Поділитися на інших сайтах More sharing options...
Игорь&Ира Опубліковано: 10 листопада 2015 Поділитись Опубліковано: 10 листопада 2015 Или использовать шнур забутовочный - вспененый пенопропилен, по сути тот же ПСУЛ-поролон. Привезли забутовочный шнур. Добавлено через 1 час 9 минут Рассматриваю 2 варианта крепления козырька (вертикальная часть указана синим цветом): Вариант №1 (без вырезов в стальной пластине и в арт. 561892): вертикальная часть козырька будет прилегать к ребру арт. 561892 и отстоять от лицевой стороны профиля и добора на глубину арт. 561892. Вариант №2 (с вырезами в стальной пластине и в арт. 561892): вертикальная часть козырька будет прилегать к лицевой стороне профиля и добора. Будет вариант #2. Добавлено через 1 минуту Также есть 3 варианта крепления отлива: Вариант №1 (без вырезов в стальной пластине и в арт. 561892): чтобы задняя часть отлива прилегала к подставочному профилю в отливе необходимо сделать вырез вокруг арт. 561892; обвод отлива вокруг арт. 561892 необходимо заделать УФ-стойким силиконом. Вариант №2 (без выреза в стальной пластине, но с вырезом в арт. 561892): чтобы задняя часть отлива прилегала к подставочному профилю в отливе необходимо сделать вырезы вокруг стальной пластины, а также необходимо подрезать арт. 561892 по верхнему уровню подставочного профиля; обвод отлива вокруг стальной пластины необходимо заделать силиконом. Вариант №3 (с вырезами в стальной пластине и в арт. 561892): чтобы задняя часть отлива прилегала к подставочному профилю необходимо подрезать стальную пластину и арт. 561892 по верхнему уровню подставочного профиля. Как по мне, вариант №2 оптимальный. Будет вариант #3. Посилання на коментар Поділитися на інших сайтах More sharing options...
Игорь&Ира Опубліковано: 10 листопада 2015 Поділитись Опубліковано: 10 листопада 2015 Химия для монтажа: Посилання на коментар Поділитися на інших сайтах More sharing options...
Игорь&Ира Опубліковано: 10 листопада 2015 Поділитись Опубліковано: 10 листопада 2015 (змінено) Забутовочный шнур в конструкции (в профиле с трубой не закладывают?): Змінено 10 листопада 2015 користувачем Игорь&Ира Посилання на коментар Поділитися на інших сайтах More sharing options...
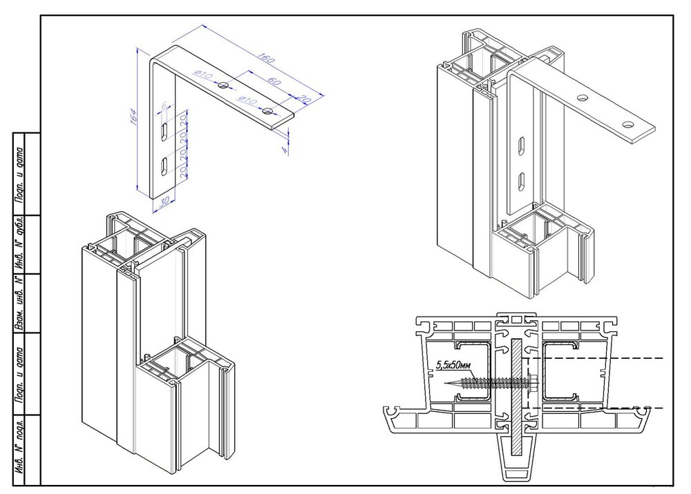
Игорь&Ира Опубліковано: 10 листопада 2015 Поділитись Опубліковано: 10 листопада 2015 (змінено) Как быть, если монтажный проем 288 см, а один металлический сердечник поворотного профиля длиной 284 см? На фото: 1. Консоль. 2. Крепеж консоли к бетонной плите (внизу на фото). 3. Крепеж консоли к усилителям и металлическим сердечникам поворотных профилей (вверху на фото, один из двух на выбор). Разве этого будет достаточно с учётом того, что будет только один шуруп, хотя в каталоге Rehau указаны 2 отверстия и шурупы 5,5х50 мм? Змінено 10 листопада 2015 користувачем Игорь&Ира Посилання на коментар Поділитися на інших сайтах More sharing options...
Игорь&Ира Опубліковано: 10 листопада 2015 Поділитись Опубліковано: 10 листопада 2015 В 16.00 с чуством глубокого удовлетворения бойцы отбыли на малую родину. Итого: 4 часа чистого рабочего времени (начало в 11.30, обед 30 минут). Интересно, они на ставке, проценте или согласно калькуляции в заказе? Посилання на коментар Поділитися на інших сайтах More sharing options...
Игорь&Ира Опубліковано: 10 листопада 2015 Поділитись Опубліковано: 10 листопада 2015 Начали готовиться к монтажу и столкнулись с новой проблемой: все ли элементы конструкции довезены согласно уточнённым/исправленным данным? Первоначальный комплект: 1. Профиль поворотный 90 (284 см) – 1 шт. 2. Профиль поворотный 90 (281 см) – 1 шт. 3. Профиль усилителя 100х6 (281 см) – 2 шт. 4. Профиль Н-2 (281 см) – 2 шт. 5. Армирование 70*6 (281 см) – 2 шт. 6. Все конструкции 271 см. 7. Профиль подставочный – 3 см. 8. Профиль доборный снизу – 6 см (4 см + 2 см). 9. Профиль доборный сверху – 4 см. Довоз: 1. Полоса стальная 70*6 (288 см) – 2 шт. 2. Арт. 561892 (288 см) – 2 шт. 3. Арт. 560700 (288 см) – 2 шт. 4. Сердечник к профилю поворотному 90 (288 см) – 1 шт. В качестве исходных данных имеем просвет для монтажа (высота между балконными плитами) 288 см. Т.е., на данный момент вызывают сомнения такие позиции из первоначального завоза (не были заменены при довозе, не хватает на всю высоту просвета для монтажа): 1. Сердечник к профилю поворотному 90 (284 см) – 1 шт. 2. Сердечник к профилю поворотному 90 (281 см) – 1 шт. 3. Пластик к профилю поворотному 90 (284 см) – 1 шт. 4. Пластик к профилю поворотному 90 (281 см) – 1 шт. Из позиций 1 и 2 для монтажа требуется только один элемент. Пока что имеется несколько конкретных вопросов: 1. Как быть, что второй сердечник к поворотному профилю (284 см) на 4 см короче монтажного проёма? (Смущает крепление сердечника к бетонной плите через консоль при таком зазоре при том, что в еонсоле только одно отверстие 10 мм на расстоянии 25 мм центра от края: фотографии и чертежи в предыдущих сообщениях). 2. Насколько критичен зазор сверху в 4 см между металлопластиковой конструкцией и бетонной плитой, в котором будет только козырёк и пена? 3. Козырёк должен быть прижат к бетонной плите (пена между ним и металлопластиковой конструкцией) или к металлопластиковой конструкции (пена между ним и бетонной плитой)? 4. Как быть, что пластики к поворотным профилям (281 см и 284 см) на 4 см и 7 см короче монтажного проёма? (Смущает, что со стороны улицы сердечники будут прикрыты только козырьком и отливом). 5. Как быть, что на одном поворотном профиле (281 см) снизу на высоту в 3 см будет только металлический сердечник без пластика и не будет подставочного профиля? (Смущает крепление отлива в критичной зоне: внешний угол балкона). 6. Может ли поворотный профиль упираться в нижнюю бетонную плиту без отлива? Набросал схему: Посилання на коментар Поділитися на інших сайтах More sharing options...
Пий Опубліковано: 10 листопада 2015 Поділитись Опубліковано: 10 листопада 2015 Основательно к делу подходите Благодаря Вашей методичной долбежке технологий узнал много интересного для себя-этап окон не за горами,а доверять "опытному" замерщику нет никакого желания. Киньте ссылку кто нибудь на какой-то ФАК по оконным азам-как правильно выполняется ПСУЛ-монтаж,какие окна выбрать оптимальные цена/качество-а то полазил по темам-букв много,а толку мало-какие то доли процента разницы в тепло-шумоизоляции,исследования ученых на 160 листах,фаллометрия производителей-голова пухнет. В результате всунут мне какой-то Алюпласт,как и всем в Днепре. Добавлено через 2 минуты 2. Насколько критичен зазор сверху в 4 см между металлопластиковой конструкцией и бетонной плитой, в котором будет только козырёк и пена? Сколько видел разварок-у всех зазор,и немалый. Почему-неведомо.А ведь можно впритык,и расширитель,не? 1 Посилання на коментар Поділитися на інших сайтах More sharing options...
Игорь&Ира Опубліковано: 10 листопада 2015 Поділитись Опубліковано: 10 листопада 2015 Основательно к делу подходите Благодаря Вашей методичной долбежке технологий узнал много интересного для себя Вы мне льстите. Но кроме главной "шкурной" задачи, действительно, хочется также дать путеводитель другим страждущим. Сколько видел разварок-у всех зазор,и немалый. Почему-неведомо.А ведь можно впритык,и расширитель,не? Замерщики, блин, перестраховываются: лучше набухать пены, чем точно померять. Ещё 20 мм доборного профиля потянули бы на 320 грн. - согласен был взять грех на душу. Посилання на коментар Поділитися на інших сайтах More sharing options...
Алік Опубліковано: 10 листопада 2015 Поділитись Опубліковано: 10 листопада 2015 Пока что имеется несколько конкретных вопросов: 1. Как быть, что второй сердечник к поворотному профилю (284 см) на 4 см короче монтажного проёма? (Смущает крепление сердечника к бетонной плите через консоль при таком зазоре при том, что в еонсоле только одно отверстие 10 мм на расстоянии 25 мм центра от края: фотографии и чертежи в предыдущих сообщениях). 2. Насколько критичен зазор сверху в 4 см между металлопластиковой конструкцией и бетонной плитой, в котором будет только козырёк и пена? 3. Козырёк должен быть прижат к бетонной плите (пена между ним и металлопластиковой конструкцией) или к металлопластиковой конструкции (пена между ним и бетонной плитой)? 4. Как быть, что пластики к поворотным профилям (281 см и 284 см) на 4 см и 7 см короче монтажного проёма? (Смущает, что со стороны улицы сердечники будут прикрыты только козырьком и отливом). 5. Как быть, что на одном поворотном профиле (281 см) снизу на высоту в 3 см будет только металлический сердечник без пластика и не будет подставочного профиля? (Смущает крепление отлива в критичной зоне: внешний угол балкона). 6. Может ли поворотный профиль упираться в нижнюю бетонную плиту без отлива? Сложно комментировать заочно да ещё и своих партнёров, но попробую. 1. Конструкция будет выставлятся по уровню и какое-то пространство займут опорные колодки, также можно подогнуть консоль. 2. Не факт, что он таким будет, очень вероятно уменьшится на 10-15 мм. 3. Оба способа имеют право на жизнь. На месте лучше видно, какому отдать предпочтение. 4. Самому не понятно почему так. А что говорят монтажники? 5. Я так понимаю это пространство будет запенено. 6. Да, но сразу возникают сложности с организацией узла примыкания. Впрочем, вполне разрешимые. 1 Посилання на коментар Поділитися на інших сайтах More sharing options...
Игорь&Ира Опубліковано: 10 листопада 2015 Поділитись Опубліковано: 10 листопада 2015 1. Конструкция будет выставлятся по уровню и какое-то пространство займут опорные колодки, также можно подогнуть консоль. Почему Корса полку консоли для крепления к усилителям делает с одним отверстием, хотя Rehau рекомендует с двумя? Экономим на чёрном металле? 4. Самому не понятно почему так. А что говорят монтажники? Замерщик, видать, рассчитывал, что поворотный профиль на углу балкона будет опираться на подставочный профиль, а возле шкафа - на бетонную плиту. Потом пошли по рекомендациям Rehau и заменили металлический сердечник, забыв о пластике. 6. Да, но сразу возникают сложности с организацией узла примыкания. Впрочем, вполне разрешимые. Каким образом? Посилання на коментар Поділитися на інших сайтах More sharing options...
Алік Опубліковано: 10 листопада 2015 Поділитись Опубліковано: 10 листопада 2015 С рекомендациями Вы наверное перепутали консоли с анкерными пластинами. Нужно или обходить отливом угловой профили, или без отлива аккуратно всё загерметизировать. 1 Посилання на коментар Поділитися на інших сайтах More sharing options...
Игорь&Ира Опубліковано: 11 листопада 2015 Поділитись Опубліковано: 11 листопада 2015 С рекомендациями Вы наверное перепутали консоли с анкерными пластинами. Может я перепутал терминологию, а не сами детали? Разве это не оно? Посилання на коментар Поділитися на інших сайтах More sharing options...
Игорь&Ира Опубліковано: 11 листопада 2015 Поділитись Опубліковано: 11 листопада 2015 (змінено) Ещё интересный вопрос: как при периметре балкона 280+110 см получилась такая спецификация заказа: 1. 4814 Отлив раннила 100 - 1,2 м 2. 4814 Отлив раннила 100 - 1,55 м 3. 4814 Отлив раннила 100 - 1,55 м 4. 4816 Отлив раннила 150 - 2,9 м 5. 4814 Отлив раннила 100 - 2,9 м Последние две позиции на объекте отсутствуют. Змінено 11 листопада 2015 користувачем Игорь&Ира Посилання на коментар Поділитися на інших сайтах More sharing options...
Алік Опубліковано: 11 листопада 2015 Поділитись Опубліковано: 11 листопада 2015 Чертёж не из каталога Рехау. Посилання на коментар Поділитися на інших сайтах More sharing options...
-Naum- Опубліковано: 11 листопада 2015 Поділитись Опубліковано: 11 листопада 2015 вы пишите что размер между плитами 288 мм это имеется в виду там где необходимо закрепить усилители? Так как редко встретишь проемы постоянного размера - как правило по углам одна высота, в центре другая и отличия могут быть не в мм а в см Посилання на коментар Поділитися на інших сайтах More sharing options...
Игорь&Ира Опубліковано: 11 листопада 2015 Поділитись Опубліковано: 11 листопада 2015 (змінено) Чертёж не из каталога Рехау. Виноват, запутался: я ведь еще и работаю. Претензия снимается. Можете дать узел от Rehau? Добавлено через 9 минут вы пишите что размер между плитами 288 мм это имеется в виду там где необходимо закрепить усилители? Так как редко встретишь проемы постоянного размера - как правило по углам одна высота, в центре другая и отличия могут быть не в мм а в см 2880 мм - это тот размер, которым оперировал замерщик при работе. Проверка показала, что на местах усилителей и поворотных профилей размеры те же. Понимаю, что в процессе монтажа могут быть другие размеры в других местах. Но конструкция ставится не как единое целое, а по частям, так что 2880 мм на усилителях никуда не уйдут. Кстати, дом строили на совесть по спецпроекту - ляпов быть не должно. Идет подготовка конструкции: Змінено 11 листопада 2015 користувачем Игорь&Ира Посилання на коментар Поділитися на інших сайтах More sharing options...
Игорь&Ира Опубліковано: 11 листопада 2015 Поділитись Опубліковано: 11 листопада 2015 [/b]o:Ещё интересный вопрос: как при периметре балкона 280+110 см получилась такая спецификация заказа: 1. 4814 Отлив раннила 100 - 1,2 м 2. 4814 Отлив раннила 100 - 1,55 м 3. 4814 Отлив раннила 100 - 1,55 м 4. 4816 Отлив раннила 150 - 2,9 м 5. 4814 Отлив раннила 100 - 2,9 м Последние две позиции на объекте отсутствуют. Пояснение от фирмы: последние две позиции - это нащельники (просто слово длиннее). Пошел второй день монтажа. В офисе приняли решение: 1. На углу поворотный профиль с трубой 2880 мм и пластиком 2810 мм: снизу пластик ровняется по верху подставочного профиля и под него заводится отлив впритык к трубе, к которой прикрепится саморезами; открытые части трубы снизу 30 мм и сверху 40 мм аккуратно запенятся по внешнему периметру. 2. Возле шкафа полноценный поворотный профиль 2840 мм. Согласились на: 1. Документирование процесса монтажа. 2. Соответствующую запись в акте прийомки-передачи. 3. Консультацию/экспертизу от Rehau. Уважаю. Посилання на коментар Поділитися на інших сайтах More sharing options...
Рекомендовані повідомлення
Створіть акаунт або увійдіть у нього для коментування
Ви маєте бути користувачем, щоб залишити коментар
Створити акаунт
Зареєструйтеся для отримання акаунта. Це просто!
Зареєструвати акаунтУвійти
Вже зареєстровані? Увійдіть тут.
Увійти зараз