MVar Опубліковано: 15 лютого 2014 Поділитись Опубліковано: 15 лютого 2014 Добрый день. Помогите, пожалуйста, определить минимально-возможную ширину ленточного фундамента для пирога стены толщиной 700 мм. Описание фундамента: - ленточный, железобетонный (арматурный каркас вяжется из стержневой арматуры вязальной проволокой) - глубина фундамента под землей = 1200 мм - высота цоколя (тоже железобетонный) единого с фундаментом = 400 мм - пол в доме бетонный, на грунте. Цель - если закладывать ширину фундамента (цоколя) близкую к ширине стен (например 660 мм чтобы получился западающий цоколь), получается очень большой расход бетона - дорого. Чувствую что я чего то важного не знаю о соотношениях ширины внешних стен - фундамента и цоколя... Буду благодарен практическому ответу с фактами, цифрами и ссылками на технические документы регламентирующие мой вопрос. Посилання на коментар Поділитися на інших сайтах More sharing options...
wipe Опубліковано: 15 лютого 2014 Поділитись Опубліковано: 15 лютого 2014 Буду благодарен практическому ответу с фактами, цифрами и ссылками на технические документы регламентирующие мой вопрос. По вот этому, складывается впечатление, что вам хочется все сделать правильно, но на мой взгляд ответ тут только один, вам к архитектору и конструктору. Посилання на коментар Поділитися на інших сайтах More sharing options...
MVar Опубліковано: 15 лютого 2014 Автор Поділитись Опубліковано: 15 лютого 2014 По вот этому, складывается впечатление, что вам хочется все сделать правильно, но на мой взгляд ответ тут только один, вам к архитектору и конструктору. Премного благодарен за Ваш взгляд. Но я не ставил в теме вопрос куда мне "к архитектору или к конструктору". Посему, убедительно прошу, делиться информацией по теме. Заранее благодарен. Посилання на коментар Поділитися на інших сайтах More sharing options...
prazdnikof Опубліковано: 15 лютого 2014 Поділитись Опубліковано: 15 лютого 2014 Я себе сделал так - лента 800, стена подвала 400(стены дома будут 570) Вам лучше сделать расчёт, но ленты 400 из ФБС или монолита хватит, армопоясом выйти на нужный размер. 1 Посилання на коментар Поділитися на інших сайтах More sharing options...
Stroyitel Опубліковано: 16 лютого 2014 Поділитись Опубліковано: 16 лютого 2014 а можно узнать пирог стены? 2 Посилання на коментар Поділитися на інших сайтах More sharing options...
Игореха Опубліковано: 16 лютого 2014 Поділитись Опубліковано: 16 лютого 2014 О! Привет землякам с Оймякона! Токаж там у нас вечная мерзлота.... кто посоветовал делать ленточный фундамент? Сваи - наше все! 1 Посилання на коментар Поділитися на інших сайтах More sharing options...
MVar Опубліковано: 16 лютого 2014 Автор Поділитись Опубліковано: 16 лютого 2014 Я себе сделал так - лента 800, стена подвала 400(стены дома будут 570) Вам лучше сделать расчёт, но ленты 400 из ФБС или монолита хватит, армопоясом выйти на нужный размер. Спасибо. У меня подвала не будет. Но Ваш рисунок как раз подтверждает мою идею: Сделать ширину подземного фундамента 400 мм (глубина 1200 мм), а цоколь залить шириной 660 мм (высота 400 мм). Сделать Букву Т - но не перевернутую (без нижней подушки). Вот и получиться западающий цоколь (на 40 мм) и стена на него ляжет шириной 700 мм. Конечно цоколь и фундамент будут объединены единой системой армирования. Только я в инете и в справочниках такого решения не находил, вот и терзают сомнения. Добавлено через 4 минуты а можно узнать пирог стены? Согласен, пирог не указал, а это важно (добавил инфо в первом запросе). Пирог стены: - внешний слой: кладка красного кирпича толщиной в 1 кирпич (250 мм) - далее воздушный зазор = 50 мм - внутренний слой: кладка из саманных блоков толщиной в 1 камень (400 мм) Для справки: 1) внешняя штукатурка - короед без утеплителя сразу на кирпич. 2) Внутренняя штукатурка - глина с опилками. Посилання на коментар Поділитися на інших сайтах More sharing options...
Музей Опубліковано: 16 лютого 2014 Поділитись Опубліковано: 16 лютого 2014 Вы крепость строите? Если не секрет, где? 1 Посилання на коментар Поділитися на інших сайтах More sharing options...
MVar Опубліковано: 16 лютого 2014 Автор Поділитись Опубліковано: 16 лютого 2014 Вы крепость строите? Если не секрет, где? В восточной Украине. Стена толстовата, но с таким пирогом и без искусственных утеплителей (минвата, пенопласт, ЭППС) тоньше стену никак не сделать - будет холодной. Есть соображения по главному вопросу? Посилання на коментар Поділитися на інших сайтах More sharing options...
Музей Опубліковано: 16 лютого 2014 Поділитись Опубліковано: 16 лютого 2014 В восточной Украине. Стена толстовата, но с таким пирогом и без искусственных утеплителей (минвата, пенопласт, ЭППС) тоньше стену никак не сделать - будет холодной. Есть соображения по главному вопросу? Зайдите в ветку к Игорехе. Лучшего пирога стен без искусственных материалов пока не придумали. Для Вашего региона прослойка будет на несколько мм толще. Для реализации Вашего пирога понадобиться столько бетона, что можно построить еще один дом. Пересмотрите пирог стен. 1 Посилання на коментар Поділитися на інших сайтах More sharing options...
MVar Опубліковано: 16 лютого 2014 Автор Поділитись Опубліковано: 16 лютого 2014 Зайдите в ветку к Игорехе. Лучшего пирога стен без искусственных материалов пока не придумали. Для Вашего региона прослойка будет на несколько мм толще. Для реализации Вашего пирога понадобиться столько бетона, что можно построить еще один дом. Пересмотрите пирог стен. Спасибо. Пирог стен вопрос решенный. Помогите с изначальным вопросом разобраться - минимально-необходимая толщина фундамента под вышеописанные условия. Посилання на коментар Поділитися на інших сайтах More sharing options...
Drosselbeere Опубліковано: 16 лютого 2014 Поділитись Опубліковано: 16 лютого 2014 минимально-необходимая толщина фундамента определяется расчетом, но для меня не понятно почему такая конструкция стены и почему глубина заложения фундамента 1200 мм. не могу точно утверждать как бы сделал, но расмотрел бы вариант ленточного фундамента под кирпичные стены, а саман бы опирал на бетонное основание пола, если он используется в роли утеплителя 1 Посилання на коментар Поділитися на інших сайтах More sharing options...
romalex4 Опубліковано: 16 лютого 2014 Поділитись Опубліковано: 16 лютого 2014 - далее воздушный зазор = 50 мм зазор вентилируемый? есть подозрение образования конденсата в этом зазоре, рекомендую изменить пирог стены. 1 Посилання на коментар Поділитися на інших сайтах More sharing options...
MVar Опубліковано: 16 лютого 2014 Автор Поділитись Опубліковано: 16 лютого 2014 определяется расчетом, но для меня не понятно почему такая конструкция стены и почему глубина заложения фундамента 1200 мм. не могу точно утверждать как бы сделал, но расмотрел бы вариант ленточного фундамента под кирпичные стены, а саман бы опирал на бетонное основание пола, если он используется в роли утеплителя Мысль такая была. Отказался от нее по следующим причинам: - саманные блоки сами по себе очень тяжелые, порядка 15 кг. Стена будет толщиной в один блок (40 см) высота стен 3 метра, в одном квадратном метре кладки 25 блоков. При 3-х метрах стен нагрузка на 1 квадратный метр пола = 1125 кг - под это нужен фундамент. - саманные стены будут связаны с внешней кирпичной кладкой кирпичами заходящими в саман в "тычок". Так что у них будет и несущая функция. - вверху у саманной и кирпичной кладок будет общий армопояс для стропильной системы крыши. Пришел к выводу, что нужен общий монолитный ЖБ фундамент. Глубина закладки фундамента на 1200 мм выбрана из нормативов по Харьковской области, руководствовался глубиной промерзания в 1000 мм. Добавлено через 18 минут зазор вентилируемый? есть подозрение образования конденсата в этом зазоре, рекомендую изменить пирог стены. Спасибо за расчет. Зазор не вентилируемый. К зазору в своем пироге пришел изучив много рекомендаций в интернете. (зачастую из сомнительных источников, так как саман сейчас относят к забытым и непопулярным технологиям строительства) Вот цитата из одного источника: Облицовка саманных стен с организацией воздушных зазоров не только защищает стены от воздействия наружной влаги, но и уменьшает их продуваемость и делает более теплыми, потому что воздух, находящийся в зазоре, хороший теплоизолятор. Заметим также, что хотя внизу, над цоколем, подход для воздуха наглухо закрыт, все же в воздухе, проникающем в зазор через поры в стенах, создаются слабые вертикальные потоки, то есть идет вентиляция. Так что влага, попавшая в зазор через щели и неплотности в стенке из облицовочных кирпичей во время косых дождей и снежных заносов, не осаждается на саманной стене, а испаряется и выводится воздушным потоком наружу. Таким образом, благодаря воздушному зазору саманная стена всегда остается сухой, а значит и теплой. Иногда саманную стену облицовывают обожженным кирпичом без воздушного зазора или заполняют зазор утеплителем, например, керамзитовым гравием. Ссылка: www.tversilikat.ru/articles/342 Что думаете об этой информации? Какие изменения в моем пироге могут помочь, на Ваш взгляд? Посилання на коментар Поділитися на інших сайтах More sharing options...
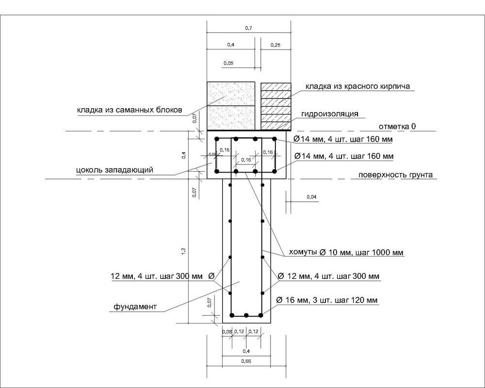
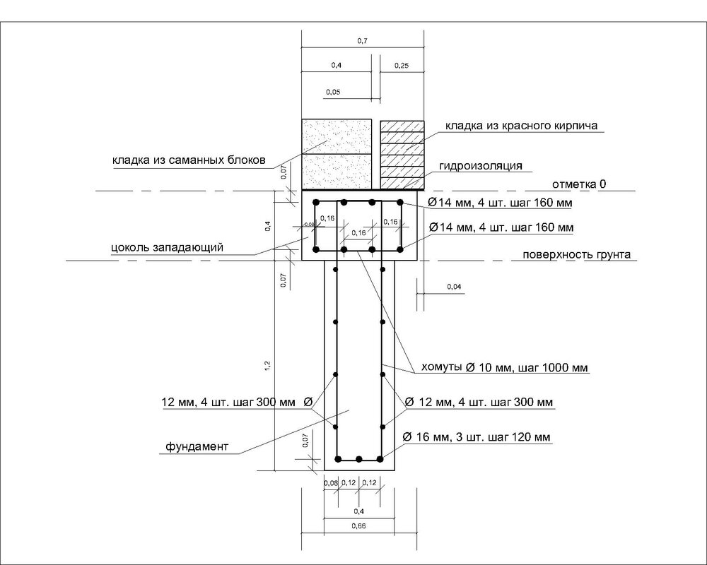
MVar Опубліковано: 16 лютого 2014 Автор Поділитись Опубліковано: 16 лютого 2014 (змінено) Нарисовал разрез фундамента для внешней стены, который хочу использовать для строительства своего дома. Вот картинка: Если Вы конструктор-строитель, подскажите надежный ли это вариант, при следующих условиях: 1. пирог стены изнутри-наружу: - глиняно-стружечная штукатурка (30 мм), - саманный блоки (вес одного блока 15 кг, в одном квадратном метре кладки 25 блоков (400х200х200)) (400 мм) - воздушный зазор (50 мм), - красный полнотелый кирпич без лица (250 мм). - штукатурка короед (30 мм) Итого толщина = 700 мм без штукатурки и 760 мм со штукатуркой 2. Дом одноэтажный 3. Высота наружных стен 3000 мм 4. Площадь внешних стен за вычетом проемов = 110 кв м 5. Оконные и дверные проемы, площадью = 30 кв м 6. Чердачное перекрытие - дерево 7. Кровля - битумная черепица 8. Утепление крыши - глина с опилками Если что-то упустил, подскажите, допишу... Змінено 16 лютого 2014 користувачем MVar Посилання на коментар Поділитися на інших сайтах More sharing options...
romalex4 Опубліковано: 17 лютого 2014 Поділитись Опубліковано: 17 лютого 2014 Спасибо за расчет. Зазор не вентилируемый. Если вы еще раз обратите внимание на расчет, то увидите, что паропроницаемость пирога снижается изнутри - наружу (в цифирках буква мю), по всем нормативам и рекомендациям - должно быть наоборот, вот если вы вывернете пирог наизнанку - будет хорошо, да и повесить на эту стену проще будет 1 Посилання на коментар Поділитися на інших сайтах More sharing options...
Игореха Опубліковано: 17 лютого 2014 Поділитись Опубліковано: 17 лютого 2014 И все же не пойму... Это попытка пойти на принцип со своими финансами? Стена широченная. Гемора немеряно. Веса тоже. И это все для того, чтобы получить R=1,6 да еще с зоной вероятного интенсивного водонакопления? ПС Беру свои слова обратно. В Оймяконе в таком доме можно околеть. Ну или разориться в конце... нет, в середине отопительного сезона. Посилання на коментар Поділитися на інших сайтах More sharing options...
MVar Опубліковано: 17 лютого 2014 Автор Поділитись Опубліковано: 17 лютого 2014 Если вы еще раз обратите внимание на расчет, то увидите, что паропроницаемость пирога снижается изнутри - наружу (в цифирках буква мю), по всем нормативам и рекомендациям - должно быть наоборот, вот если вы вывернете пирог наизнанку - будет хорошо, да и повесить на эту стену проще будет Добрый вечер, В том то и беда что все нормативы рассчитаны на современные материалы. Насколько я понял глина стоит в их ряду на отдельном месте. При повышении влажности в помещении глина будет ее впитывать, а при понижении отдавать (некий саморегулятор). Поэтому саман и хочу внутри своего дома. А кирпич даст защиту глины от внешних воздействий. Насколько я понял из теории воздушный зазор зазор в 50 мм как раз решает проблему снижения паропроницаемости пирога изнутри - наружу. (источник конечно сомнительный, но логика в статье прослеживается www.tversilikat.ru/articles/342) Хорошо высушенный саманный блок не разбивается при падении с высоты 2-х метров и довольно хорошо удерживает даже забитый гвоздь - так что по поводу навески на стену надеюсь что проблем не будет. Посилання на коментар Поділитися на інших сайтах More sharing options...
Игореха Опубліковано: 17 лютого 2014 Поділитись Опубліковано: 17 лютого 2014 А из каких соображений выбран именно саман, кроме как регулятор влажности? ПС Надеюсь, на штукатурке изнутри будет что-то типа побелки? Посилання на коментар Поділитися на інших сайтах More sharing options...
MVar Опубліковано: 17 лютого 2014 Автор Поділитись Опубліковано: 17 лютого 2014 И все же не пойму... Это попытка пойти на принцип со своими финансами? Стена широченная. Гемора немеряно. Веса тоже. И это все для того, чтобы получить R=1,6 да еще с зоной вероятного интенсивного водонакопления? ПС Беру свои слова обратно. В Оймяконе в таком доме можно околеть. Ну или разориться в конце... нет, в середине отопительного сезона. По финансам как раз все выходит замечательно. Строюсь я в Восточной Украине. Глина стоит очень недорого, песок и солома (полно фермеров вокруг) тоже цену имеют привлекательную. По сравнению со стоимостью других стройматериалов это намного дешевле. Другие плюсы самана я уже перечислял в теме. И вот, чтобы не идти на принцип с финансами я и хочу залить минимальный но достаточный для своего дома объем фундамента. R = 1,6 относительно, если добавить в саманные блоки больше соломы то можно R повысить до 2-х. Теплопроводность соломы = 0,05 - 0,065 Вт/м.С. А что воздушный зазор зазор разве не спасет от проблемы водонакопления? У Вас есть реальный опыт строительства из саманных блоков, или может литература какая? Я чувствую себя как крот под землей, рою наощупь. По саману литературы нет, все какие то статьи то хвалебные то ругательные. А вот рекомендаций по пирогу нет. Единственное что нашел, то и принял: саман - воздушный зазор - кирпич. Поделитесь если есть конкретные данные - помогите пролить свет на это темное дело... Добавлено через 8 минут А из каких соображений выбран именно саман, кроме как регулятор влажности? ПС Надеюсь, на штукатурке изнутри будет что-то типа побелки? Саман: 1. Душевный выбор - знаете как эта притча, когда человек просил разных себе вещей у создателя, женщину, зверей, деревья а он все это вылеплял ему из глины, а под конец человек попросил себе счастья, создатель долго думал и после раздумий молча отдал ему оставшийся кусок глины. Леплю себе счастье в виде дома с минимальным содержанием последних достижений современной химической индустрии. 2. Экологичность 3. Глина - регулятор влажности 4. Стоимость материала - немаловажный фактор Покрывать глину буду известковой краской (это типа побелки и есть). А что по моему рисунку разреза фундамента, есть соображения или замечания? Посилання на коментар Поділитися на інших сайтах More sharing options...
Игореха Опубліковано: 17 лютого 2014 Поділитись Опубліковано: 17 лютого 2014 С саманом знаком исключительно по опыту прошлых поколений. Вы же не сами саманные блоки будете делать? А сколько, если не секрет, стоит куб готовых саманных блоков в ваших краях? Добавлено через 2 минуты 1. Душевный выбор Тогда все остальное можно уже не упоминать Выбор материала стен - вопрос религии (это я всегда так говорил) :D Если для вас - тоже, то остальные аргументы не имеют веса. Посилання на коментар Поділитися на інших сайтах More sharing options...
MVar Опубліковано: 17 лютого 2014 Автор Поділитись Опубліковано: 17 лютого 2014 С саманом знаком исключительно по опыту прошлых поколений. Вы же не сами саманные блоки будете делать? А сколько, если не секрет, стоит куб готовых саманных блоков в ваших краях? Вы не поверите буду делать сам, точнее с бригадой строителей. Стоимость буду оговаривать после того как сделаю рабочий проект дома. Само собой это будет дешевле чем стена из современных материалов. Посилання на коментар Поділитися на інших сайтах More sharing options...
Игореха Опубліковано: 17 лютого 2014 Поділитись Опубліковано: 17 лютого 2014 А что по моему рисунку разреза фундамента, есть соображения или замечания? По тому что нарисовано - особых замечаний нет. Ну разве что сечение арматуры проверить. А вот основание фундамента вызывает вопросы. Дом будет явно не из легких. Какие грунты? Сбор нагрузок производили? Все эти вопросы поднимались в аналогичных темах за последние 2 недели, и разбирались по косточкам. Не хочу заниматься копипастом сообщений своих и других. Не сложно найти эти темы на последних 2х страницах. Добавлено через 57 секунд Вы не поверите буду делать сам, точнее с бригадой строителей. Стоимость буду оговаривать после того как сделаю рабочий проект дома. Само собой это будет дешевле чем стена из современных материалов. Героический подвиг будет Ну хоть куб глины сколько стоит? Посилання на коментар Поділитися на інших сайтах More sharing options...
MVar Опубліковано: 17 лютого 2014 Автор Поділитись Опубліковано: 17 лютого 2014 Тогда все остальное можно уже не упоминать Выбор материала стен - вопрос религии (это я всегда так говорил) :D Если для вас тоже, остальные аргументы - не имеют веса. Да нет я не сильно религиозная личность. Это сложная тема не будем ее развивать. Мне бы с фундаментом разобраться - что по рисунку можете сказать? Надежный вариант, или все не правильно? Посилання на коментар Поділитися на інших сайтах More sharing options...
Drosselbeere Опубліковано: 17 лютого 2014 Поділитись Опубліковано: 17 лютого 2014 А что по моему рисунку разреза фундамента, есть соображения или замечания? армирование лишнее и местами не оправданное, разве если делать ТИСЭ, а не ленточный фундамент. 1 Посилання на коментар Поділитися на інших сайтах More sharing options...
Рекомендовані повідомлення
Створіть акаунт або увійдіть у нього для коментування
Ви маєте бути користувачем, щоб залишити коментар
Створити акаунт
Зареєструйтеся для отримання акаунта. Це просто!
Зареєструвати акаунтУвійти
Вже зареєстровані? Увійдіть тут.
Увійти зараз