Marusya-Anna Опубліковано: 9 листопада 2015 Поділитись Опубліковано: 9 листопада 2015 Раньше жизнь кипела на стройке, а сейчас деда и того выселили домой�� Поскорее бы весна�� да, грустненько стало как то. Вроде и можно чтото делать еще, но пока напялишь на себя кучу одежек, как капуста ходишь, сильно не поработаешь. Папа уже приступил к подсчету недель до весеннего заезда на стройку. В прошлом году мы его раньше выселили в квартиру и он чтото около 25 недель до весны насчитал. Сейчас не знаю что он там придумает Посилання на коментар Поділитися на інших сайтах More sharing options...
medovik Опубліковано: 9 листопада 2015 Поділитись Опубліковано: 9 листопада 2015 да, грустненько стало как то Да что грустного? Есть время набраться сил, обмозговать дальнейшие действия на семейном совете, заслушав выступления всех членов, провести голосование по спорным вопросам. Не заметите, как весна придет:D:beer: 6 Посилання на коментар Поділитися на інших сайтах More sharing options...
POZITIFF Опубліковано: 10 листопада 2015 Поділитись Опубліковано: 10 листопада 2015 А зачем в мастерской бочка на пол-куба? Посилання на коментар Поділитися на інших сайтах More sharing options...
Marusya-Anna Опубліковано: 10 листопада 2015 Поділитись Опубліковано: 10 листопада 2015 А зачем в мастерской бочка на пол-куба? да и сами не знаем, бочка дворовая, предыдущие 2 сезона таскали ее к соседям на зиму прятали, у нас некуда было деть. Теперь появился гараж-занесли на зимовку, но поставили в районе мастерской и забыли. Каменщики пришли перестенки ставить и хорошо что спросили куда мы ее планируем ставить потом, выносить или оставить по месту? Прикольно было бы если б забыли в мастерской, через двери ее можно только частыми вынести, да и в окно никак не пролезет Посилання на коментар Поділитися на інших сайтах More sharing options...
БеLка Опубліковано: 10 листопада 2015 Поділитись Опубліковано: 10 листопада 2015 да и сами не знаем, бочка дворовая, предыдущие 2 сезона таскали ее к соседям на зиму прятали, у нас некуда было деть. Теперь появился гараж-занесли на зимовку, но поставили в районе мастерской и забыли. Каменщики пришли перестенки ставить и хорошо что спросили куда мы ее планируем ставить потом, выносить или оставить по месту? Прикольно было бы если б забыли в мастерской, через двери ее можно только частыми вынести, да и в окно никак не пролезет Будете капусту квасить. Посилання на коментар Поділитися на інших сайтах More sharing options...
Marusya-Anna Опубліковано: 10 листопада 2015 Поділитись Опубліковано: 10 листопада 2015 Будете капусту квасить. кто ж ее слопает столько? да и места для выращивания такого количества капусты нету. А гуру агрономии (POSITIFF) все никак не откроет тему как на ограниченном пространстве вырастить все что хочется. У меня пока никак не размещается на моих 7 с кусочком сотках (минус дом, хозблок, веранда, дворик) все что нужно (не говоря про "хочется"). В следующем году планирую немного прихватить земли за забором. У меня от забора до дороги хороших несколько метров есть, думаю там в рядок деревца посадить , которые внутри не помещаются. Пока раздумываю, что там пристроить чтобы и мне оставалось после обноса мимопроходящими 1 Посилання на коментар Поділитися на інших сайтах More sharing options...
medovik Опубліковано: 10 листопада 2015 Поділитись Опубліковано: 10 листопада 2015 А гуру агрономии (POSITIFF) все никак не откроет тему как на ограниченном пространстве вырастить все что хочется. Да, да, просим, просим!;). Полезная и читаемая тема будет! Посилання на коментар Поділитися на інших сайтах More sharing options...
БеLка Опубліковано: 10 листопада 2015 Поділитись Опубліковано: 10 листопада 2015 кто ж ее слопает столько? да и места для выращивания такого количества капусты нету. А гуру агрономии (POSITIFF) все никак не откроет тему как на ограниченном пространстве вырастить все что хочется. У меня пока никак не размещается на моих 7 с кусочком сотках (минус дом, хозблок, веранда, дворик) все что нужно (не говоря про "хочется"). В следующем году планирую немного прихватить земли за забором. У меня от забора до дороги хороших несколько метров есть, думаю там в рядок деревца посадить , которые внутри не помещаются. Пока раздумываю, что там пристроить чтобы и мне оставалось после обноса мимопроходящими Посадите картошку, если там машины не ездят. Будут корешки, авось останутся целы. А капуста, вещь хорошая и не только как закуска. В квашеной капусте большое количество витамина С. 1 Посилання на коментар Поділитися на інших сайтах More sharing options...
POZITIFF Опубліковано: 10 листопада 2015 Поділитись Опубліковано: 10 листопада 2015 У меня пока никак не размещается на моих 7 с кусочком сотках (минус дом, хозблок, веранда, дворик) все что нужно (не говоря про "хочется"). С ума сойти скока земли *облизывается*:D У меня только 0,9 сотки под грядками Вот есть у Вас где развернутся 2 Посилання на коментар Поділитися на інших сайтах More sharing options...
Marusya-Anna Опубліковано: 10 листопада 2015 Поділитись Опубліковано: 10 листопада 2015 С ума сойти скока земли *облизывается* У меня только 0,9 сотки под грядками Вот есть у Вас где развернутся а дерева где сажать? у меня дом с постройками уйму места занимает. За домом 2 сотки сад (ну типа молодой еще, только в том году посадила), куча места занимается всякими отходами стройки, которые выбросить никак низя пока что. Еще кусочек занят клубникой и кустами всякими. Цветники пока только в проекте, их место там, где сейчас свалки мусора. Между свалками все равно умудрилась вырастить перец, в этом году прям загляденье 7 Посилання на коментар Поділитися на інших сайтах More sharing options...
Marusya-Anna Опубліковано: 14 листопада 2015 Поділитись Опубліковано: 14 листопада 2015 Работы продолжаются. По сравнению с прошлым годом мы что-то разошлись не на шутку. В прошлом в это время уже на печке валялись и смотрели на белых мух. Сегодня мужчины (Олег с батей) занимались вентиляцией хозблока, что-то там сверлили, стучали, носились с трубами. С утра пригрузили бордюрами край рубероида, до весны будет стоять так. Вид прикольный получился Мы с бабушкой занимались садово-парковыми работами, уже упаковали на зиму виноград и розы Трехлетние кусты удалось прикопать без потерь, маленькие кусты пострадали, один вообще сломался у основания. В этом году очень сильно были заняты стройкой и потому вся растительность страдала от недостатка внимания. Потом перетаскали кучу мусора к хозблоку, там планируется подпорная стенка и немного будет подыматься уровень возле фундамента Под соседской постройкой где была свалка обнаружились дикорастущие пни , один выкорчевали, на втором выдохлись, оставили на завтра. Очень стремно копать под соседской летней кухней, боюсь что завалится от дуновения ветра. Мы там планируем поставить теплицу, надеюсь что фундамент нашей теплицы подопрет эту трескающуюся стенку. Да, самое интересное, остался безхозным кирпич В прошлом году купили с расчетом на перестенки второго этажа и хозблок, в итоге перестенок несущий на втором этаже из термоблоков сделали, в хозблоке кирпичный, ну и использовали кирпич куда не попадя (даже яму со счетчиком выложили из него довольно большую), все равно остался.Теперь ломаем голову-куда деть? Пока на зиму запакуем от дождя. 7 Посилання на коментар Поділитися на інших сайтах More sharing options...
Linelka Опубліковано: 15 листопада 2015 Поділитись Опубліковано: 15 листопада 2015 Ваши темпы впечатляют.:) Так держать! 2 Посилання на коментар Поділитися на інших сайтах More sharing options...
Marusya-Anna Опубліковано: 15 листопада 2015 Поділитись Опубліковано: 15 листопада 2015 Ваши темпы впечатляют. Так держать! спасибо, стараемся как можем. Зима наступает на пятки, хотим еще многое успеть, ну а погода покажет что успеем. Сегодня закончили вентиляцию хозблока, я даже успела замазать вокруг труб раствором. Еще сегодня отмыла обе лестницы от смолы, драила соляркой. Лестницы чистые, зато я теперь не могу избавиться от запаха соляры, комбинезоны стирала два раза при 90 градусах, воняют капец. Руки уже чем только не мыла, все равно запах есть. Завтра на работе сотрудники обалдеют. Вычитала в инете что вещи можно в растворе кальцинированной соды замочить, а потом постирать с ополаскивателем. Замачиваю, жду результат. Для отмывания рук пришлось устроить ручную стирку, перед этим руки в подсолнечном масле вымачивала. Пока результата мало... 3 Посилання на коментар Поділитися на інших сайтах More sharing options...
Катерина Ш Опубліковано: 15 листопада 2015 Поділитись Опубліковано: 15 листопада 2015 Ваши темпы впечатляют.:) Так держать! 100% Вот трудоголики)))) И все так легко делается. КЛАСС! 3 Посилання на коментар Поділитися на інших сайтах More sharing options...
Marusya-Anna Опубліковано: 16 листопада 2015 Поділитись Опубліковано: 16 листопада 2015 И все так легко делается. КЛАСС! Катя, я от описания Вашей стройки несколько лет заряжалась энергией. Чего стоит описание заливки фундамента. Почитаю-у вас все получается, ну думаю я что, не смогу так же? Как Олег любит говорить-глаза боятся, а руки делают. Только как же от этого "легко" руки болят. Вчера вроде ничего особого не делала, просто монотонно терла лестницы и костюмы, сегодня руки просто отпадают. Олег еще подкалывает- а ты еще штукатурить сама хотела. Ничего, к моменту штукатурки натренируюсь. Вычитала в инете что вещи можно в растворе кальцинированной соды замочить, а потом постирать с ополаскивателем. Замачиваю, жду результат. Вещи замочены в кальц.соде, потом выстираны в стиралке с 4 полосканиями и ополаскивателем-пахучкой в конце. Результат нормальный. Запах есть , но совсем чуточку. Комбезы вывесили на балкон, пусть выветрятся еще. 3 Посилання на коментар Поділитися на інших сайтах More sharing options...
Катерина Ш Опубліковано: 19 листопада 2015 Поділитись Опубліковано: 19 листопада 2015 Катя, я от описания Вашей стройки несколько лет заряжалась энергией. Чего стоит описание заливки фундамента. Спасибо А ту заливку фундамента я и сама хорошо помню, как вчера было))))) .... А теперь я Вашей стройкой подпитываюсь;) 2 Посилання на коментар Поділитися на інших сайтах More sharing options...
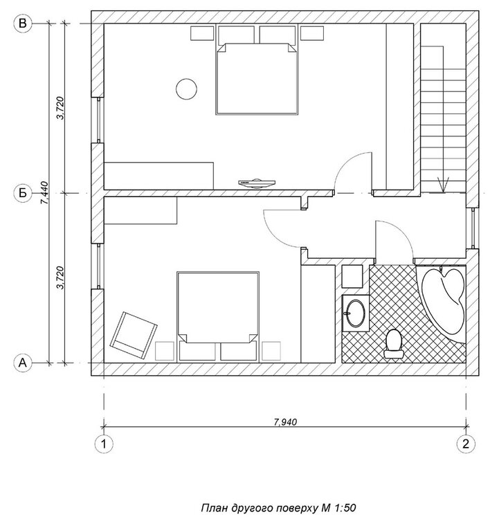
Marusya-Anna Опубліковано: 19 листопада 2015 Поділитись Опубліковано: 19 листопада 2015 Замечено, что стройка вызывает двояике чувства. С одной стороны уже устали, ждем холодов чтобы устроить элементарный выходной и просто поваляться целый день на диване. С другой стороны вижу по прогнозу погоды на выходные +15 (и это во второй половине ноября) и начинаю машинально планировать работы. А с накрытием крышей работ поприбавилось. В прошлом году выходные хоть в дождь были, а сейчас находим что делать внутри. Когда сухо и тепло, то я еще пытаюсь что то в огородике-садике делать. Пока помню-вопрос к знатокам. Спорю с Олегом за отопление второго этажа, вернее мансарды. Обязательно ли батареи ставить под мансардными окнами? Мне же захотелось окно над кроватью, сделали. Теперь Олег требует батарею под окном, а она получается прямо в изголовье кровати. Мы то конечно ее спрятаем за какой то панелью, но меня смущает тепло от нее. Не люблю когда ночью очень жарко, а тем более если греть будет голову Посилання на коментар Поділитися на інших сайтах More sharing options...
Катерина Ш Опубліковано: 19 листопада 2015 Поділитись Опубліковано: 19 листопада 2015 Замечено, что стройка вызывает двояике чувства. С одной стороны уже устали, ждем холодов чтобы устроить элементарный выходной и просто поваляться целый день на диване. С другой стороны вижу по прогнозу погоды на выходные +15 (и это во второй половине ноября) и начинаю машинально планировать работы. А с накрытием крышей работ поприбавилось. В прошлом году выходные хоть в дождь были, а сейчас находим что делать внутри. Когда сухо и тепло, то я еще пытаюсь что то в огородике-садике делать. Пока помню-вопрос к знатокам. Спорю с Олегом за отопление второго этажа, вернее мансарды. Обязательно ли батареи ставить под мансардными окнами? Мне же захотелось окно над кроватью, сделали. Теперь Олег требует батарею под окном, а она получается прямо в изголовье кровати. Мы то конечно ее спрятаем за какой то панелью, но меня смущает тепло от нее. Не люблю когда ночью очень жарко, а тем более если греть будет голову Ну, вообще-то батарею положено под окном ставить, но не над головой)))) Размер окна какой? и еще лучше покажи на плане расположение, на какой высоте окна, попробую подсказать А еще, чьи окна мансардные? P.S. У меня под мансардным окном нет батареи)))) Посилання на коментар Поділитися на інших сайтах More sharing options...
blacktigra Опубліковано: 19 листопада 2015 Поділитись Опубліковано: 19 листопада 2015 Теперь Олег требует батарею под окном Хотелось бы услышать начальника транспортного цеха зачем ему батарея под окном. 2 Посилання на коментар Поділитися на інших сайтах More sharing options...
loader Опубліковано: 19 листопада 2015 Поділитись Опубліковано: 19 листопада 2015 Обязательно ли батареи ставить под мансардными окнами? ну у меня например мансардное в коридоре, освещает лесницу, высоко очень, да и батареи в коридорах я не ставлю вообще. на счет спальни сложно сказать, все таки жилое помещение, но за изголовьем я бы точно не ставил, либо кровать сместил. 3 Посилання на коментар Поділитися на інших сайтах More sharing options...
Marusya-Anna Опубліковано: 19 листопада 2015 Поділитись Опубліковано: 19 листопада 2015 Хотелось бы услышать начальника транспортного цеха зачем ему батарея под окном. на счет спальни сложно сказать, все таки жилое помещение, но за изголовьем я бы точно не ставил, либо кровать сместил. В том то и дело, что кровать хотелось с видом на небо. Если очень нужно будет то конечно сместю, но не хотелось бы. Планы сейчас Олега попрошу чтобы выложил Посилання на коментар Поділитися на інших сайтах More sharing options...
S1LENCE Опубліковано: 19 листопада 2015 Поділитись Опубліковано: 19 листопада 2015 Я часто чую думку людей, які проживають в будинку, що якщо перший поверх нормально опалюється, то на другому і так тепло. Як мене, батарею потрібно зміщувати. Посилання на коментар Поділитися на інших сайтах More sharing options...
Автоматчик Опубліковано: 19 листопада 2015 Автор Поділитись Опубліковано: 19 листопада 2015 Высота стен под окном - 1,2 метра. 2 Посилання на коментар Поділитися на інших сайтах More sharing options...
Marusya-Anna Опубліковано: 19 листопада 2015 Поділитись Опубліковано: 19 листопада 2015 Я часто чую думку людей, які проживають в будинку, що якщо перший поверх нормально опалюється, то на другому і так тепло. я тоже по всем темам читаю, многие пишут что отключают батареи на втором если первый с ТП и хорошо отапливается. Но Олегу нужны более серьезные аргументы. Мое "не хочу батарею за головой" пока не действует. Уже хожу на второй этаж проверяю где там конденсат. Нету его пока, видно холодно в доме и соответственно конденсат не выпадает. До отопления далеко еще, а зимой планируем делать разводку труб. Боюсь что нашарашим где надо и не надо Посилання на коментар Поділитися на інших сайтах More sharing options...
sov1178 Опубліковано: 19 листопада 2015 Поділитись Опубліковано: 19 листопада 2015 Я часто чую думку людей, які проживають в будинку, що якщо перший поверх нормально опалюється, то на другому і так тепло. Брехня, тобто дуже холодно на другому поверсі звісно не буде, але й так комфортно як на першому теж не буде. В мене спочатку другий поверх був зовсім без опалення, потім під'єднав одну батарею, зараз у двох кімнатах є обігрів. Так у ціх кімнатах зовсім інший комфорт . Щодо об'єктивних показників, то у кімнатах з опаленням десь на 1С тепліше ніж у тих де опалення ще не під'єднане. Marusya-Anna, если так и не придете к решению, то поставьте две батареи Тогда даже если отключите батарею около окна, то не замерзнете ;) 5 Посилання на коментар Поділитися на інших сайтах More sharing options...
Рекомендовані повідомлення
Створіть акаунт або увійдіть у нього для коментування
Ви маєте бути користувачем, щоб залишити коментар
Створити акаунт
Зареєструйтеся для отримання акаунта. Це просто!
Зареєструвати акаунтУвійти
Вже зареєстровані? Увійдіть тут.
Увійти зараз