tansss Опубліковано: 26 липня 2014 Поділитись Опубліковано: 26 липня 2014 Так, открываю геологию... Грунтовые воды 1,4-1,5м +\- 0,8м. 2 категория сложности инженерно-геологических условий. Средняя глубина промерзания 70 см. Нормативная - 1,08. Грунты сверху-вниз: суглинок, супесок, песок. По потенциальной подтапливаемости 3 тип. Рекомендованы фундаменты неглубокого залегания (ленточные, столбчатые, плиты и т.п.). Очмонити! Угв 1.4 + 0.8 в итоге 0,6 м Добро пожаловать .... И с почином вас..... Разводилово начинается по стандартной схеме..,.. А домик действительно легенький..... Инженерный термин! Посилання на коментар Поділитися на інших сайтах More sharing options...
Communica Опубліковано: 26 липня 2014 Автор Поділитись Опубліковано: 26 липня 2014 tanss, расшифруйте, пожалуйста, что Вы имеете в виду под "разводилово"? На работах по обратной засыпке и песке, как мы подозреваем? Как же теперь разрулить это все? Посилання на коментар Поділитися на інших сайтах More sharing options...
alex_aqua Опубліковано: 26 липня 2014 Поділитись Опубліковано: 26 липня 2014 tanss, расшифруйте, пожалуйста, что Вы имеете в виду под "разводилово"? На работах по обратной засыпке и песке, как мы подозреваем? Как же теперь разрулить это все? Вам какой бюджет озвучили за фундамент, если не секрет? У меня была схожая ситуация, 1.8 УГВ. Грунт пучинистый, поэтому заглубление просчитали 1.2м, это стена 90 см в высоту и 30 см толщина пятки. Это до уровня грунта. + над ним еще 60 см. Не дешево, я Вам скажу, он обошелся, а размер немного поменьше Вашего. Посилання на коментар Поділитися на інших сайтах More sharing options...
Drosselbeere Опубліковано: 26 липня 2014 Поділитись Опубліковано: 26 липня 2014 (змінено) tanss, расшифруйте, пожалуйста, что Вы имеете в виду под "разводилово"? На работах по обратной засыпке и песке, как мы подозреваем? Как же теперь разрулить это все? Тут нечего расшифровывать. Танс вам намекает, что не правильно выбран тип фундамента... не более того. На данный момент у вас лишние затраты, на устройство котлована, обратная засыпка, а по факту у вас лента на глубину промерзания, типовое решение для галпроекта. думаю, что геологию даже не смотрели и не анализировали, а спроектировали как всегда. Змінено 26 липня 2014 користувачем Drosselbeere Посилання на коментар Поділитися на інших сайтах More sharing options...
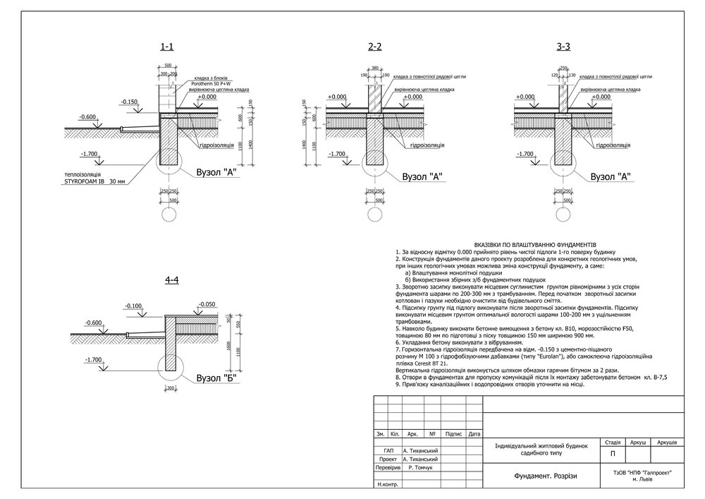
Communica Опубліковано: 27 липня 2014 Автор Поділитись Опубліковано: 27 липня 2014 Вам какой бюджет озвучили за фундамент, если не секрет? У меня была схожая ситуация, 1.8 УГВ. Грунт пучинистый, поэтому заглубление просчитали 1.2м, это стена 90 см в высоту и 30 см толщина пятки. Это до уровня грунта. + над ним еще 60 см. Не дешево, я Вам скажу, он обошелся, а размер немного поменьше Вашего. У нас грун НЕ пучинистый! Геологи сказали - грунт хороший, можно и высотку гнать! Глубина фундамента по проекту у нас 1,70 если не ошибаюсь (картинку прилагаю). Пятку архитектор не делал, сказал, что нет необходимости. Но у меня муж - за постройки на века, поэтому по согласованию с прорабом решили делать пятку 35см толщиной и 25см в каждую сторону (т.е. будет метр). Вместо выравнивающей кирпичной кладки решили делать дополнительно верхнее армирование, в проекте только нижнее, насколько мне объяснили. Бюджет не секрет: - Разбивка дома и вынос осей 500 грн - Копка ленты фундамента ( экскаватор 1 смена) 2700 грн (по факту получилось + еще 1800 грн за второй день, за копку котлована, но за счет бригады, прораб сам так сказал, т.к. котлован со мной не согласовали) - Доработка грунта в ручную,изготовление,монтаж,демонтаж опалубки,вязка армокаркасса,заливка бетона - 54.4 м3 по 350 грн м3 19040 грн ( в эту сумму входит разводка коммуникаций в фундаменте) - Обратная засыпка грунта с трамбованием (виброплита) подсыпка щебнем, заливка черновой стяжки - 117,2 м2 по 70 грн м2 8204 грн - Обмазочная гидроизоляция и утепление внешних стен фундамента 76.8 м2 по 35 грн м2 2688 грн Это было не самое дешевое предложение, которое мы получили, остановились на нем, т.к. прораб показался самым адекватным из всех). Объемы работ теперь нужно пересчитывать, как я понимаю... Добавлено через 1 минуту Тут нечего расшифровывать. Танс вам намекает, что не правильно выбран тип фундамента... не более того. На данный момент у вас лишние затраты, на устройство котлована, обратная засыпка, а по факту у вас лента на глубину промерзания, типовое решение для галпроекта. думаю, что геологию даже не смотрели и не анализировали, а спроектировали как всегда. Почему неправильно выбран тип? Выбран ленточный. Просто тако-ой котлован - не предполагался. И такой объем обратной засыпки. Уважаемые конструкторы, вы видите конкретные ошибки или просто так придираетесь? Вот не пойму этот форум... Посилання на коментар Поділитися на інших сайтах More sharing options...
Татьяна5 Опубліковано: 27 липня 2014 Поділитись Опубліковано: 27 липня 2014 1) Если задача выкопать траншеи под фундамент, JCB - не самый самый правильный выбор, имхо. Для таких размеров и таких тонких задач берут малышей-экскаваторов и они четко копают как надо, не проваливая под собою основание. 2) Грунт из котлована явно продан, в смете у Вас нет вывоза грунта. Зачем? вопрос открытый. Что сделано, то сделано. Теперь важно что бы прораб не убежал раньше, чем выполнит свои обязательства, ибо грунтовых работ добавилось на пару тыс уе. Добавлено через 2 минуты Обмазочная гидроизоляция если у Вас нет подвала, никакого смысла в этом действе нет, ровно как и нет смысла закладывать фундамент на 1,70 метра глубины при отсутствии рельефа на участке Глубина фундамента по проекту у нас 1,70 2 Посилання на коментар Поділитися на інших сайтах More sharing options...
Communica Опубліковано: 27 липня 2014 Автор Поділитись Опубліковано: 27 липня 2014 если у Вас нет подвала, никакого смысла в этом действе нет, ровно как и нет смысла закладывать фундамент на 1,70 метра глубины при отсутствии рельефа на участке Простите, ошиблась. 1,70 - это с полом. В землю 1,10. Посилання на коментар Поділитися на інших сайтах More sharing options...
Drosselbeere Опубліковано: 27 липня 2014 Поділитись Опубліковано: 27 липня 2014 Уважаемые конструкторы, вы видите конкретные ошибки или просто так придираетесь? Вот не пойму этот форум...что бы указывать на ошибки, надо видеть геологию и проектное решение. я не придирался, а констатировал факт произошедшего, не более того. что касается непосредственно самого типа фундамента и подхода к строительству, вам намекал tansss, как прораб, основываясь на свой опыт, то же самае писала и Татьяна5, но более сдержано У нас грун НЕ пучинистый!Грунты сверху-вниз: суглинок, супесок, песок. По потенциальной подтапливаемости 3 тип. Рекомендованы фундаменты неглубокого залегания (ленточные, столбчатые, плиты и т.п.).- суглинок пучинистый грунт, вопрос только, на сколько.... - рекомендации геологов одни, а проектное решение на оборот, лента ниже глубины промерзания, опять вопрос - самое интересное, в проекте п.2: 1. к каким именно геологическим условиям привязан фундамент? 2. если же появляться другие неизвестные гео условия, то может быть заменен тип фундамента, но при этом есть геология 3. про армирование вообще молчу так прозвучала фраза относительно многоэтажных домов. это не сравнимо с малаэтажным строительством, так как например силы морозного пучения, можно игнорировать за ведома, так как вес многоэтажки не сравним с одноэтажным домом, а вот "легкий дом" как раз и подвержен деформациям от сил морозного пучения, на что и намекал tansss, при том что уровень грунтовых вод довольно высокий. 1 Посилання на коментар Поділитися на інших сайтах More sharing options...
tansss Опубліковано: 27 липня 2014 Поділитись Опубліковано: 27 липня 2014 Касательно котлована.... Поскоку заявлено что строим ТИПА "для себя":) то слой чернозёма и др плодородного грунта ЖЕЛАТЕЛЬНО из под дома убирать... да и при ширине пятки как вы сами добавили 1м + подход для выставления опалубки с двух сторон - вот уже и котлован образовался..Так шо если и не целились то влучили как надо То, шо тип фундамента не совсем тот коллега Drosselbeere отметил! но.... шо выросло то выросло! Кроме всего встал вопросик! А зачем в проекте два ряда " вирівнюючей цегли":lol::lol: Шо низя залить бетон ровно? и как архитектор узнал что "стройка для себя" и монолитчики ЗАВЕДОМО криворукие:lol: Посилання на коментар Поділитися на інших сайтах More sharing options...
sashkaa Опубліковано: 27 липня 2014 Поділитись Опубліковано: 27 липня 2014 1. к каким именно геологическим условиям привязан фундамент? 2. если же появляться другие неизвестные гео условия, то может быть заменен тип фундамента, но при этом есть геология 3. про армирование вообще молчу . Ни к каким, стандартное примечание. В любом типовом проекте к примеру Сельпроекта есть примечание: фундамент запроектирован для таких то грунтов с такими то характеристиками. После получения геологии выполнить проект фундамента. Посилання на коментар Поділитися на інших сайтах More sharing options...
Drosselbeere Опубліковано: 27 липня 2014 Поділитись Опубліковано: 27 липня 2014 Ни к каким, стандартное примечание. В любом типовом проекте к примеру Сельпроекта есть примечание: фундамент запроектирован для таких то грунтов с такими то характеристиками. После получения геологии выполнить проект фундамента. К чему ваш комент, лишь бы написать. Если уж вы заговорили о типовом проекте, то и в нем укзывают для каких условий разработан фундамент, какой грунт принят в основании ф и какое расчатное сопротивлени грунта принято, тот же типовый проект Сельпроект как пример. У тс есть геология и разработан индивидуальный проект, а каком типовом решении говорим. Посилання на коментар Поділитися на інших сайтах More sharing options...
sashkaa Опубліковано: 27 липня 2014 Поділитись Опубліковано: 27 липня 2014 К чему ваш комент, лишь бы написать. Если уж вы заговорили о типовом проекте, то и в нем укзывают для каких условий разработан фундамент, какой грунт принят в основании ф и какое расчатное сопротивлени грунта принято, тот же типовый проект Сельпроект как пример. У тс есть геология и разработан индивидуальный проект, а каком типовом решении говорим. А я разве чето другое написал. Если есть геология и есть проект пусть строят по нему и все. А вот они уже отступили внеся в проект фундамента изменения. Если че то вылезет в будущем Галпроект типа и не при делах, если тут действительно инд. проект При этом у меня кстати к проекту у меня то же мнение, что и у вас. Посилання на коментар Поділитися на інших сайтах More sharing options...
Communica Опубліковано: 28 липня 2014 Автор Поділитись Опубліковано: 28 липня 2014 То, шо тип фундамента не совсем тот коллега Drosselbeere отметил! А вы с коллегой Drosselbeere какой тип фундамента тут бы выбрали? Монолитный, что ли? Так на нем разориться можно Добавлено через 1 минуту Кроме всего встал вопросик! А зачем в проекте два ряда " вирівнюючей цегли":lol::lol: Шо низя залить бетон ровно? и как архитектор узнал что "стройка для себя" и монолитчики ЗАВЕДОМО криворукие:lol: А архитектор, наверное, уже по опыту знает, какие нынче бригады. Вот и перестраховывается :D Но нам бригада поклялась залить бетон не просто ровно, а ровнехонько! Кстати, уже есть потери: - экскаватор погнул мне забор, когда ссыпал чернозем и загружал его на камаз. Ремонт так навскидку обойдется в тыщ 5 грн. - закатал вщент мою клубничную и виноградную плантацию, хоть места для маневров было более чем достаточно и его просили аккуратно! А еще просил требовал полтинник "на чай", как "все нормальные хозяева дают". Мало он на моем черноземе заработал! Выделывался, шумахер! Я так на своем паркетнике по полигонам не гоняю, как он носился на тракторе по моему участку (да и по соседскому тоже - еще предстоит разговор с соседом, очевидно). Терпеть не могу таких "нарциссов". Не рекомендую, в общем. Имя не помню, но на фото видно его рожу. Посилання на коментар Поділитися на інших сайтах More sharing options...
alex_aqua Опубліковано: 28 липня 2014 Поділитись Опубліковано: 28 липня 2014 А еще просил требовал полтинник "на чай", как "все нормальные хозяева дают". Мало он на моем черноземе заработал! Не переживайте так. Это лишь начало и разные неожиданности будут вылезать постоянно. Кстати, подобные "непредвиденные" траты и являются частью 30% сверх сметы. Примите изначально, что они будут, так будет легче все переживать. Welcome to the club ))) 1 Посилання на коментар Поділитися на інших сайтах More sharing options...
Drosselbeere Опубліковано: 28 липня 2014 Поділитись Опубліковано: 28 липня 2014 А вы с коллегой Drosselbeere какой тип фундамента тут бы выбрали? Монолитный, что ли? Так на нем разориться можно зря вы так. я хотел обратить ваше внимание, не более того, а воспринимаете все в штыки. мы с tansss колеги-строители, только он работает прорабом, а я проектант(инженер-конструктор ПГС) и каждый в отдельности высказали свое мнение. не хотите воспринимать информацию, ваше право. буду теперь молча наблюдать за стройкой, уж очень название темы понравилось, а вот наполнение местами "печалька". удачи вам в строительстве и по меньше граблей. 1 Посилання на коментар Поділитися на інших сайтах More sharing options...
tansss Опубліковано: 28 липня 2014 Поділитись Опубліковано: 28 липня 2014 А вы с коллегой Drosselbeere какой тип фундамента тут бы выбрали? Монолитный, что ли? Так на нем разориться можно Добавлено через 1 минуту А архитектор, наверное, уже по опыту знает, какие нынче бригады. Вот и перестраховывается :D Но нам бригада поклялась залить бетон не просто ровно, а ровнехонько! Кстати, уже есть потери: - экскаватор погнул мне забор, когда ссыпал чернозем и загружал его на камаз. Ремонт так навскидку обойдется в тыщ 5 грн. - закатал вщент мою клубничную и виноградную плантацию, хоть места для маневров было более чем достаточно и его просили аккуратно! А еще просил требовал полтинник "на чай", как "все нормальные хозяева дают". Мало он на моем черноземе заработал! Выделывался, шумахер! Я так на своем паркетнике по полигонам не гоняю, как он носился на тракторе по моему участку (да и по соседскому тоже - еще предстоит разговор с соседом, очевидно). Терпеть не могу таких "нарциссов". Не рекомендую, в общем. Имя не помню, но на фото видно его рожу. Ну насчёт стоимости разных типов фундаментов тут немало копей поломано и погнуто. Не буду разубеждать! А по поводу цегли - перл достойный цитаты дня! Посилання на коментар Поділитися на інших сайтах More sharing options...
Communica Опубліковано: 28 липня 2014 Автор Поділитись Опубліковано: 28 липня 2014 зря вы так. я хотел обратить ваше внимание, не более того, а воспринимаете все в штыки. мы с tansss колеги-строители, только он работает прорабом, а я проектант(инженер-конструктор ПГС) и каждый в отдельности высказали свое мнение. не хотите воспринимать информацию, ваше право. буду теперь молча наблюдать за стройкой, уж очень название темы понравилось, а вот наполнение местами "печалька". удачи вам в строительстве и по меньше граблей. зря вы так. я хотел обратить ваше внимание, не более того, а воспринимаете все в штыки. мы с tansss колеги-строители, только он работает прорабом, а я проектант(инженер-конструктор ПГС) и каждый в отдельности высказали свое мнение. не хотите воспринимать информацию, ваше право. буду теперь молча наблюдать за стройкой, уж очень название темы понравилось, а вот наполнение местами "печалька". удачи вам в строительстве и по меньше граблей. Drosselbeere, я Вас и tanss очень уважаю, знаю кто такие, и не "в штыки", а это была грустная попытка пошутить, т.к. мне совсем не весело. Я как раз всегда приветствую конструктивную критику! А монолитный фундамент в моем понимании - это огромная купа денег. Осенью, когда мы хотели строить не дом, а деревянный дом-баньку на 40м2, мне архитектор нарисовал в проекте монолитный фундамент (геологии не было, и он типа с запасом). Так вот залить такой фундамент "под ключ" мне просчитали в 100-120 тыс. грн. Я представляю, сколько стоит монолит под 118м!!! Просто прошу учитывать, что вы разговариваете в этой ветке с "чайником" в строительстве и по-возможности пишите попроще, чтобы было понятно. Посилання на коментар Поділитися на інших сайтах More sharing options...
tansss Опубліковано: 28 липня 2014 Поділитись Опубліковано: 28 липня 2014 Я сейчас строю по своему проекту одноэтажник 119м2 на разнозубой монолитной плитки знаю точно что фундамент раза в полтора дешевле ленты с полами как у вас! 1 Посилання на коментар Поділитися на інших сайтах More sharing options...
Communica Опубліковано: 28 липня 2014 Автор Поділитись Опубліковано: 28 липня 2014 Я сейчас строю по своему проекту одноэтажник 119м2 на разнозубой монолитной плитки знаю точно что фундамент раза в полтора дешевле ленты с полами как у вас! Шо ж вы молчали!!! Эх, скока денег в землю закопаю зазря. Пару вопросов только: а там грунт какой, УГВ тоже высокий? Ну в смысле на моем грунте такой фундамент в принципе возможен? И можете поподробнее или дать ссылочку на этот тип фундамента? Для общего развития, так сказать. Мне ж еще конюшню строить. Хоть там столько постараюсь не закапывать. Кстати, я решила на конюшню тоже заказывать проект. Изначально думала сэкономить:D Не-е, проект, делаю вывод - последнее, на чем стоит экономить на стройке! Наоброт, хороший проект поможет заказчику сэкономить и нормально построить. Как это люди строятся вообще без проектов?! Посилання на коментар Поділитися на інших сайтах More sharing options...
tansss Опубліковано: 28 липня 2014 Поділитись Опубліковано: 28 липня 2014 Я не молчал.... У меня в подписи все написано! Возможно вы не прочли или не придали значения. Мы с вамине не сошлись во взглядах на жизнь. У меня в профиле есть фотки таких плит...и мне почти все равно где ее делать.,.хоть в болоте. Вечером доберусь до компа - выложу пару свежих фоток.... Хотя для конюшни может и не нужно такое Посилання на коментар Поділитися на інших сайтах More sharing options...
tansss Опубліковано: 28 липня 2014 Поділитись Опубліковано: 28 липня 2014 как обещал............ 3 Посилання на коментар Поділитися на інших сайтах More sharing options...
Communica Опубліковано: 28 липня 2014 Автор Поділитись Опубліковано: 28 липня 2014 Приехали сегодня принимать работы по ровности траншей. Тракторец-немолодец оставил немало работы. На вид, правда, более-менее ровно? Колышки забиты, ниточки натянуты. Спросили, были ли перекопы? Нет, ничего такого. А тема эта с прорабом неоднократно обсуждалась ранее. Думали уже уезжать, сделали несколько фото на память. И тут самый младший технадзоровец захотел побегать по дну котлована. За ним спустился и старший. И, под его весом в 80 кг грунт начал проседать. Старший - за лопату, он человек дотошный;) Откуда на этой глубине чернозем? И почему ноги проваливаются? Так перекопов не было? Для контроля копнул там, где ноги не проваливались. Там чернозема не обнаружено. Все иллюстрирую фотографиями. Уважаемые читатели ветки, кто что думает по этому поводу? Это вопрос для спецов. А для таких же чайников, как я, вот несколько ссылок из инета и цитат: Одна из самых распространенных ошибок — перекоп грунта. Обычно траншею или котлован роют экскаватором, а последние 10-20 см до проектной глубины для точности вынимают лопатами. Бывает, что неопытный экскаваторщик “увлекается”, и тогда котлован получается глубже, чем надо. Чем это чревато? Чтобы скрыть прокол, строители зачастую просто подсыпают в яму земли, песка или щебня и делают вид, будто так оно и было. Но песок и щебень не самая прочная подушка для фундамента, даже если их тщательно утрамбовать. Со временем фундамент “поведет”, и в стенах дома появятся трещины. А если “подсыпку” вдобавок подмоют грунтовые воды, это произойдет и вовсе очень скоро… blog.mechtaevo.ru/post_505 Обычно грунт под фундамент вынимают экскаватором. Траншею или котлован роют под проект*ную отметку. Случается, по неопытности экскаваторщика или недосмотру прораба, ковш экскаватора уходит ниже проектной отметки, т.е. получается перекоп. Что обычно делают? Подвозят машину песка, засыпают запоротый участок, потом песок трамбуют, делают вид, что «так и было». И монтируют фундамент. Не знаю, что там происходит с песком, грунты - ло*шадка темная. Твердо знаю, здание в этом месте лопнет. В моей практике таких слу*чаев было два. В первом случае здание спасти удалось, во втором - не успели, стена вывалилась. Песок считается самоуплотняющимся грунтом. Зная это, многие поступают ана*логично на дачах. Роют траншею, засы*пают 30-40 см песка, на него ставят фун*дамент. А после еще и хвастают: «Я сделал плавающий фундамент. Наступит зима грунт вспучит, он подожмет песок, а дом останется на месте!» Смею уверить, вспу*чит и подожмет, а весной оттает и про*сядет. Просядет вместе с домом. В бре*венчатом доме перекосятся полы, кир*пичный - затрещит. www.mirpodelki.ru/index.php?id=196 Ошибка № 1 – перекоп Траншею под фундамент обычно копают экскаватором. Если сняли лишнего – засыпают туда машину песка. В этом случае фундамент стоит уже не на естественном грунте, а на песке. Здание лопнет в этом месте. Песок можно подсыпать лишь в том случае, если перекоп небольшой – не более метра. В остальных случаях нужно подсыпать бетон невысокой марки. Если перекоп очень большой, нужно положить лишний ряд блоков. active-building.ru/base/123-samye-rasprostranyonnye-oshibki-pri-vozvedenii.html Перекоп ликвидирован засыпкой песка Последствия. Хозяин дома может даже не узнать, что случился перекоп. Но после возведения стен подсыпанный участок начинает проседать, стены дома деформируются. Устранение. Если перекоп небольшой, состояние стабилизируется. Как правильно. Если перекоп получился длиной до 1 метра и глубиной до 20 см, то можно подсыпать песок и хорошо его утрамбовать. Более длинный перекоп можно выровнять бетоном невысокой марки, но надежнее все-таки углубить до его уровня всю траншею (цоколь здания при этом необходимо вывести на проектную отметку). superdom.ua/view/5199-glavnye-oshibki-pri-ustrojstve-fundamenta.html 3 Посилання на коментар Поділитися на інших сайтах More sharing options...
Татьяна5 Опубліковано: 28 липня 2014 Поділитись Опубліковано: 28 липня 2014 Откуда на этой глубине чернозем? Уважаемые читатели ветки, кто что думает по этому поводу? Называется это "заливной луг", вероятно, эту местность испокон веков топило при разливе Десны Добавлено через 1 минуту В этом случае фундамент стоит уже не на естественном грунте, а на песке. Здание лопнет в этом месте. ну, как бы не правда Посилання на коментар Поділитися на інших сайтах More sharing options...
tansss Опубліковано: 28 липня 2014 Поділитись Опубліковано: 28 липня 2014 На первый взгляд ...по четвёртой фотке... если снять ещё см 20 то будет полный веригуд. Посилання на коментар Поділитися на інших сайтах More sharing options...
Communica Опубліковано: 28 липня 2014 Автор Поділитись Опубліковано: 28 липня 2014 Называется это "заливной луг", вероятно, эту местность испокон веков топило при разливе Десны Это правда! Местные старожилы нам рассказывали, что в 70-е годы тут на лодках плавали Татьяна5, так Вы верите, что на такой глубине чернозем и рыхлый грунт сам по себе образовался, а не был перекоп и присыпан земелькой строителями? Как вообще решаете проблему с перекопами на своих объектах? Никто ж не застрахован... Посилання на коментар Поділитися на інших сайтах More sharing options...
Рекомендовані повідомлення
Створіть акаунт або увійдіть у нього для коментування
Ви маєте бути користувачем, щоб залишити коментар
Створити акаунт
Зареєструйтеся для отримання акаунта. Це просто!
Зареєструвати акаунтУвійти
Вже зареєстровані? Увійдіть тут.
Увійти зараз