AНДРЮША Опубліковано: 13 листопада 2014 Поділитись Опубліковано: 13 листопада 2014 Один домик на 50м, второй на 80 www.forumhouse.ru/threads/126038/, www.forumhouse.ru/threads/181150/ 1 Посилання на коментар Поділитися на інших сайтах More sharing options...
mikhailoff71 Опубліковано: 13 листопада 2014 Поділитись Опубліковано: 13 листопада 2014 Один домик на 50м, второй на 80 www.forumhouse.ru/threads/126038/, www.forumhouse.ru/threads/181150/ Темы в стиле - "делай раз", "делай два", "делай три...", и, бла, бла, бла... Но, с другой стороны, подтверждение того, что дом до 100м2 можно построить по наброску с тетрадного листика. Посилання на коментар Поділитися на інших сайтах More sharing options...
Andrei constructor Опубліковано: 14 листопада 2014 Поділитись Опубліковано: 14 листопада 2014 Но, с другой стороны, подтверждение того, что дом до 100м2 можно построить по наброску с тетрадного листика. Каждый выбирает для себя приемлемый риск. Много раз был свидетелем просто выкинутых денег (более стоимости инженерных услуг), времени и усилий. Бывали конечно и случаи удачной и продуманной реализации. 1 Посилання на коментар Поділитися на інших сайтах More sharing options...
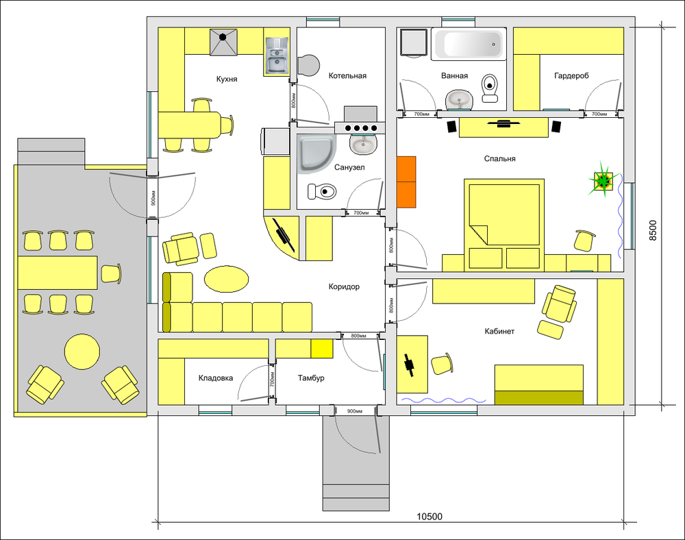
EarnestUA Опубліковано: 9 лютого 2015 Поділитись Опубліковано: 9 лютого 2015 Подниму тему, надеюсь ТС и автор проекта будут не в обиде. Привет завсегдатаям! Больше месяца читаю форум и только сейчас наткнулся на эту тему. И что меня поразило: проект, который тут рассматривается, практически один в один похож на плод моих стараний, над планировкой которого я корпел уже довольно давно. Текущий вариант восемнадцатый. Я даже тему хотел создать с названием: "Домик для двоих, покритикуйте планировку". Но теперь понимаю - не стоит... Просто попрошу автора оригинального проекта глянуть на мой вариант планировки и указать на недостатки и прочие глупости. И вообще, жду критику от всех. Только прошу учесть исходные. Домик только для двоих. Не слишком молодого меня и моей вечно молодой жены. Желания женщины не обсуждаются, поэтому отдельная ванная и гардеробная хоть маленькая, а должна быть. Желтым показаны места возможной расстановки мебели, но не факт что она там будет... Вот... Посилання на коментар Поділитися на інших сайтах More sharing options...
vadimv Опубліковано: 9 лютого 2015 Поділитись Опубліковано: 9 лютого 2015 жду критику от всехДверь из тамбура в коридор перекрывает проем двери в кабинет. 1 Посилання на коментар Поділитися на інших сайтах More sharing options...
mikhailoff71 Опубліковано: 9 лютого 2015 Поділитись Опубліковано: 9 лютого 2015 Вот... Вы лишили себя просторной гостинной. 1 Посилання на коментар Поділитися на інших сайтах More sharing options...
EarnestUA Опубліковано: 9 лютого 2015 Поділитись Опубліковано: 9 лютого 2015 (змінено) Спасибо за ответ. Дверь из тамбура в коридор перекрывает проем двери в кабинет. Ну, это как бы "вечно закрытая дверь" и особо мешать она не должна. Максимум, жена входя в дом, даст мне по лбу дверью, когда я буду выходить из кабинета... Но, в принципе, можно сделать ее открывающейся вовнутрь. Добавлено через 1 минуту Вы лишили себя просторной гостинной. Да, гостиной нет. Есть кухня, спальня и кабинет. Змінено 9 лютого 2015 користувачем EarnestUA добавил картинку Посилання на коментар Поділитися на інших сайтах More sharing options...
Andrei constructor Опубліковано: 15 лютого 2015 Поділитись Опубліковано: 15 лютого 2015 Подниму тему, надеюсь ТС и автор проекта будут не в обиде. Нет возражений. Какой котел будет для системы отопления? 1 Посилання на коментар Поділитися на інших сайтах More sharing options...
EarnestUA Опубліковано: 15 лютого 2015 Поділитись Опубліковано: 15 лютого 2015 Спасибо. Какой котел будет для системы отопления? Газовый, вероятнее всего. Но на тему отопления я еще не думал. Пока определяюсь с концепцией жилья... Посилання на коментар Поділитися на інших сайтах More sharing options...
Andrei constructor Опубліковано: 16 лютого 2015 Поділитись Опубліковано: 16 лютого 2015 Газовый, вероятнее всего. Но на тему отопления я еще не думал. Пока определяюсь с концепцией жилья... Если будет газовый котел, то на такое жилье достаточно установить турбированный котел в кухне (можно двухконтурный) и при этом не делать котельную. Тем более вход в котельную допустимо выполнять непосредственно из тамбура, прихожей и коридора. Вентканалов недостаточно: санузлы - 2 шт., кухня - 2 шт., гардеробная - 1 шт. Вентканалы лучше разместить в теле средней несущей стены. 1 Посилання на коментар Поділитися на інших сайтах More sharing options...
EarnestUA Опубліковано: 16 лютого 2015 Поділитись Опубліковано: 16 лютого 2015 Спасибо, Андрей. Ну, я полагал кроме котла разместить там электрический бойлер, коллектор теплого пола ну и прочие причандалы, про которые я пока еще не знаю. Поэтому отказываться от отдельной комнаты для котла не хотелось бы... И еще вопрос, если можно. Когда я размещаю вентканалы в центральной несущей стене, труба как раз упрется в конек крыши. Как ее тогда выводить? Посилання на коментар Поділитися на інших сайтах More sharing options...
loader Опубліковано: 16 лютого 2015 Поділитись Опубліковано: 16 лютого 2015 Когда я размещаю вентканалы в центральной несущей стене, труба как раз упрется в конек крыши. Как ее тогда выводить? В коньке и выводить - считается наиболее оптимальным местом. 1 Посилання на коментар Поділитися на інших сайтах More sharing options...
EarnestUA Опубліковано: 16 лютого 2015 Поділитись Опубліковано: 16 лютого 2015 В коньке и выводить - считается наиболее оптимальным местом. Спасибо за совет. А не подскажете как это решается конструктивно? Я со своей чайниковской точки зрения представляю, что над внутренней несущей стеной лежит коньковый брус, на который опираются стропила. Концы бруса лежат на фронтонах, середина через стойку опирается на стену. И тут строго по оси вылазит труба и портит всю экибану... Что делать? Посилання на коментар Поділитися на інших сайтах More sharing options...
Andrei constructor Опубліковано: 16 лютого 2015 Поділитись Опубліковано: 16 лютого 2015 Спасибо за совет. А не подскажете как это решается конструктивно? Я со своей чайниковской точки зрения представляю, что над внутренней несущей стеной лежит коньковый брус, на который опираются стропила. Концы бруса лежат на фронтонах, середина через стойку опирается на стену. И тут строго по оси вылазит труба и портит всю экибану... Что делать? Прервите коньковый брус в месте пропуска каналов. Будет у Вас вместо одной опорной рамы две опорные рамы Добавлено через 3 минуты Ну, я полагал кроме котла разместить там электрический бойлер, коллектор теплого пола ну и прочие причандалы, про которые я пока еще не знаю. Поэтому отказываться от отдельной комнаты для котла не хотелось бы... Тогда котельной место там, где расположена у вас кладовка. 1 Посилання на коментар Поділитися на інших сайтах More sharing options...
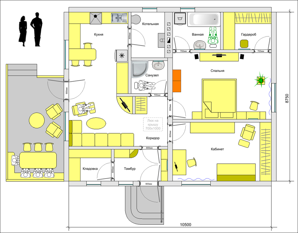
loader Опубліковано: 16 лютого 2015 Поділитись Опубліковано: 16 лютого 2015 Концы бруса лежат на фронтонах, середина через стойку опирается на стену. И тут строго по оси вылазит труба и портит всю экибану... Что делать? как по мне ничего не портит, у меня вышло так: 1 Посилання на коментар Поділитися на інших сайтах More sharing options...
EarnestUA Опубліковано: 17 лютого 2015 Поділитись Опубліковано: 17 лютого 2015 как по мне ничего не портит, у меня вышло так: Спасибо. Как говорится, лучше один раз увидеть... Добавлено через 7 минут Тогда котельной место там, где расположена у вас кладовка. Спасибо за ответ. Я бесконечно уважаю ваше мнение как профессионала, но не могли бы вы обосновать эту рекомендацию. Мне самому не очень нравится вход в котельную из кухни, но там она граничит и с санузлом, и с ванной и с кухней. Трубы получаются короткие и горячую воду ждать не долго. Поэтому я и размещаю котельную именно там. А вот ставить котельную на месте кладовки резонов я не вижу. Возможно чего-то не учитываю. Посилання на коментар Поділитися на інших сайтах More sharing options...
vasso Опубліковано: 18 лютого 2015 Поділитись Опубліковано: 18 лютого 2015 Возможно чего-то не учитываю котельная "грязное" помещение и иногда Вы будете растаскивать грязь по дому, удобнее когда она сразу на входе и в случае чего инструментик в ней нужный взять и домашней животине лапы помыть.. Кладовку же наоборот лучше иметь рядом с кухней, что бы далеко не бегать 1 Посилання на коментар Поділитися на інших сайтах More sharing options...
EarnestUA Опубліковано: 18 лютого 2015 Поділитись Опубліковано: 18 лютого 2015 котельная "грязное" помещение и иногда Вы будете растаскивать грязь по дому, удобнее когда она сразу на входе и в случае чего инструментик в ней нужный взять и домашней животине лапы помыть.. Кладовку же наоборот лучше иметь рядом с кухней, что бы далеко не бегать Спасибо за ответ. Ну, если в котельную таскать уголек, а оттуда шлак - то да, пыль, грязь будет. Согласен. А если котел газовый?.. Откуда грязь? Посилання на коментар Поділитися на інших сайтах More sharing options...
mikhailoff71 Опубліковано: 19 лютого 2015 Поділитись Опубліковано: 19 лютого 2015 А если котел газовый?.. Откуда грязь? С подорожанием газа на сегодня в 2 раза, и далее, неизвестно во сколько... Возможно, придется топить дровами, углем, пеллетами и т.д. То котельная все же лучше ближе ко входу, или как у Вас, но с отдельным выходом на улицу. 1 Посилання на коментар Поділитися на інших сайтах More sharing options...
Andrei constructor Опубліковано: 20 лютого 2015 Поділитись Опубліковано: 20 лютого 2015 Мне самому не очень нравится вход в котельную из кухни, но там она граничит и с санузлом, и с ванной и с кухней. Трубы получаются короткие и горячую воду ждать не долго. Поэтому я и размещаю котельную именно там. А вот ставить котельную на месте кладовки резонов я не вижу. Возможно чего-то не учитываю. Если будет котел на твердом топливе то носить дрова (уголь, пеллеты) через гостиную и кухню не очень удобно. Также неудобен выносить шлак и золу после чистки. 1 Посилання на коментар Поділитися на інших сайтах More sharing options...
EarnestUA Опубліковано: 21 лютого 2015 Поділитись Опубліковано: 21 лютого 2015 Если будет котел на твердом топливе то носить дрова (уголь, пеллеты) через гостиную и кухню не очень удобно. Также неудобен выносить шлак и золу после чистки. Ясно, спасибо. Надо делать или дверь наружу прямо из топочной, или полностью менять планировку. Буду думать дальше. Ну а в остальном, что, никаких замечаний? Ведь не бывает так, что все безукоризненно. Вот, смотрю по темам - иные планировки весело разбивают в пух и прах, а с моей все как-то вяленько... Посилання на коментар Поділитися на інших сайтах More sharing options...
Marselle Опубліковано: 21 лютого 2015 Поділитись Опубліковано: 21 лютого 2015 как-то вяленько...OK, дверца холодильника при открывании будет упираться в спинку стула и бить по затылку сидящему там. 1 Посилання на коментар Поділитися на інших сайтах More sharing options...
EarnestUA Опубліковано: 21 лютого 2015 Поділитись Опубліковано: 21 лютого 2015 OK, дверца холодильника при открывании будет упираться в спинку стула и бить по затылку сидящему там. Принято, стул с торца убираем. ;) Посилання на коментар Поділитися на інших сайтах More sharing options...
vasso Опубліковано: 23 лютого 2015 Поділитись Опубліковано: 23 лютого 2015 А участок у Вас уже есть? а то проект без участка ну никак.... Ширину террасы делайте не менее 3-3,5м, у меня 2,5 мало Чердачную лестницу лучше взять 1200х700 Проект для двоих у вас выходит совсем не бюджетный.... Посилання на коментар Поділитися на інших сайтах More sharing options...
EarnestUA Опубліковано: 24 лютого 2015 Поділитись Опубліковано: 24 лютого 2015 Спасибо за ответ. а то проект без участка ну никак.... Это понятно. Ширину террасы делайте не менее 3-3,5м, у меня 2,5 мало На моем плане терраса 3м Проект для двоих у вас выходит совсем не бюджетный.... А что по вашему мнению необходимо изменить в проекте для снижения стоимости? Вроде я и так ужимался как мог... Посилання на коментар Поділитися на інших сайтах More sharing options...
Рекомендовані повідомлення
Створіть акаунт або увійдіть у нього для коментування
Ви маєте бути користувачем, щоб залишити коментар
Створити акаунт
Зареєструйтеся для отримання акаунта. Це просто!
Зареєструвати акаунтУвійти
Вже зареєстровані? Увійдіть тут.
Увійти зараз