Luko Опубліковано: 30 листопада 2014 Поділитись Опубліковано: 30 листопада 2014 Виктор,поправлю,всё с точностью до наоборот:D В фановой воздух тяжёлый,он опускается,поэтому окончание вент трубы должен быть выше выхода фановой. а чем так тяжел воздух из фановой? Посилання на коментар Поділитися на інших сайтах More sharing options...
Крышник Опубліковано: 1 грудня 2014 Поділитись Опубліковано: 1 грудня 2014 Перекрытие межэтажное. Первый проем - 3500 на 7000. Посчитала, что подходит 100 на 200 с шагом 1000. Это гостиная, хочу оставить балки видимыми наполовину, поэтому шаг метр. Второй проем. 4500 на 7000. 100 на 200 с шагом 600 мм. Запаса на прогиб 1,3 достаточно? При нагрузке 300 кг/м2 и относительном прогибе 1 к 250. А утеплитель в межэтажное перекрытие на всю высоту кладется? Зачем мне 20 см ваты между этажами? Если в первом проёме из за декора можно оставить толщину балки 100мм,то во втором случае лучше толщину сделать не 100,а сращенные 2х50мм,что даст меньше прогиба. Утеплитель в межэтажном перекрытии важен по двум причинам,что бы меньше тепла уходило на второй уровень,и от массы утеплителя зависит звукоизоляция помещений. а чем так тяжел воздух из фановой? Тем,что там влажные испарения,в отличии от обычного воздуха вентиляции,и соответственно больше масса,которая стремится вниз...в фановой находится тёплая вода,соответственно вверх выходит пар. 1 Посилання на коментар Поділитися на інших сайтах More sharing options...
namisha Опубліковано: 1 грудня 2014 Автор Поділитись Опубліковано: 1 грудня 2014 Если в первом проёме из за декора можно оставить толщину балки 100мм,то во втором случае лучше толщину сделать не 100,а сращенные 2х50мм,что даст меньше прогиба. Утеплитель в межэтажном перекрытии важен по двум причинам,что бы меньше тепла уходило на второй уровень,и от массы утеплителя зависит звукоизоляция помещений. Ок, сделаем срощенные (это просто сбить гвоздями или нужно склеивать?) Я понимаю, что утеплитель нужен, но неужели 20 см?? Посилання на коментар Поділитися на інших сайтах More sharing options...
Крышник Опубліковано: 1 грудня 2014 Поділитись Опубліковано: 1 грудня 2014 Ок, сделаем срощенные (это просто сбить гвоздями или нужно склеивать?) Я понимаю, что утеплитель нужен, но неужели 20 см?? В идеале склеить и поскручивать болтами Ф10-12мм через метр-полтора,вариант "лайт"-посбивать 120-ми гвоздями с загибом. Кста,сращенные балки практически не крутит,а цельную иногда может.. Толщину ваты смотрите сами-это Ваша звукоизоляция:D Посилання на коментар Поділитися на інших сайтах More sharing options...
Luko Опубліковано: 1 грудня 2014 Поділитись Опубліковано: 1 грудня 2014 Тем,что там влажные испарения,в отличии от обычного воздуха вентиляции,и соответственно больше масса,которая стремится вниз...в фановой находится тёплая вода,соответственно вверх выходит пар. А запах что имеет - пар или метан, который легче воздуха? Посилання на коментар Поділитися на інших сайтах More sharing options...
namisha Опубліковано: 2 грудня 2014 Автор Поділитись Опубліковано: 2 грудня 2014 А запах что имеет - пар или метан, который легче воздуха? Метан и сероводород, один легче, другой тяжелее воздуха. Но опаснее все же метан, поэтому фановую лучше выше Посилання на коментар Поділитися на інших сайтах More sharing options...
sov1178 Опубліковано: 17 грудня 2014 Поділитись Опубліковано: 17 грудня 2014 namisha, я смотрю у Вас много вопросов по каркасникам. Очень советую скачать книжку Graphics Guide to Frame Construction - это подборка эскизов разных узлов каркасников. Даже если не знаете английский она будет очень полезна для Вас. Еще СП31-105-2002 российский можете почитать. Если не найдете, пришлите почту в ЛС постараюсь отправить, или выложить куда-нибудь. Удачи! 1 Посилання на коментар Поділитися на інших сайтах More sharing options...
namisha Опубліковано: 17 грудня 2014 Автор Поділитись Опубліковано: 17 грудня 2014 namisha, я смотрю у Вас много вопросов по каркасникам. Очень советую скачать книжку Graphics Guide to Frame Construction - это подборка эскизов разных узлов каркасников. Даже если не знаете английский она будет очень полезна для Вас. Еще СП31-105-2002 российский можете почитать. Если не найдете, пришлите почту в ЛС постараюсь отправить, или выложить куда-нибудь. Удачи! Спасибо большое Поищу. Потихоньку рисую каркас Погода теплая, склоняю мужа залиться в субботу (ростверк и стены септика) Посилання на коментар Поділитися на інших сайтах More sharing options...
Надежда Опубліковано: 17 грудня 2014 Поділитись Опубліковано: 17 грудня 2014 Погода теплая, склоняю мужа залиться в субботу (ростверк и стены септика) Почва подтаяла, миксер сядет намертво, едва съехав с дороги. 1 Посилання на коментар Поділитися на інших сайтах More sharing options...
namisha Опубліковано: 17 грудня 2014 Автор Поділитись Опубліковано: 17 грудня 2014 Почва подтаяла, миксер сядет намертво, едва съехав с дороги. Вот блин Спасибо, тогда снова ждем заморозков :D Посилання на коментар Поділитися на інших сайтах More sharing options...
namisha Опубліковано: 25 березня 2015 Автор Поділитись Опубліковано: 25 березня 2015 Ура, весна Пробурили скважину, 44 метра, 125-я труба. Уже куплен насос водолей и другие мелочи для оборудования приямка, но к приямку еще не приступали. Привезли вчера чернозема 10 тонн, будем делать теплые грядки. Посадила несколько кустиков малины и смородины. Довязываем арматуру ростверка (осталось часть поперечных рамочек прикрепить к продольным прутам). Потом выставим опалубку из пенопласта со стяжками и снаружи закрепим доской - так муж решил Боится только в пенопласт заливать. Посилання на коментар Поділитися на інших сайтах More sharing options...
Incantoss Опубліковано: 25 березня 2015 Поділитись Опубліковано: 25 березня 2015 Ура, весна Пробурили скважину, 44 метра, 125-я труба. Уже куплен насос водолей и другие мелочи для оборудования приямка, но к приямку еще не приступали. Привезли вчера чернозема 10 тонн, будем делать теплые грядки. Посадила несколько кустиков малины и смородины. Довязываем арматуру ростверка (осталось часть поперечных рамочек прикрепить к продольным прутам). Потом выставим опалубку из пенопласта со стяжками и снаружи закрепим доской - так муж решил Боится только в пенопласт заливать. ура! 1 Посилання на коментар Поділитися на інших сайтах More sharing options...
namisha Опубліковано: 25 березня 2015 Автор Поділитись Опубліковано: 25 березня 2015 ура! а от скайпа ты пароль потеряла? Посилання на коментар Поділитися на інших сайтах More sharing options...
Incantoss Опубліковано: 25 березня 2015 Поділитись Опубліковано: 25 березня 2015 а от скайпа ты пароль потеряла? иду Посилання на коментар Поділитися на інших сайтах More sharing options...
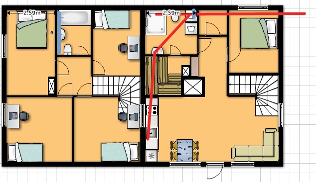
namisha Опубліковано: 25 березня 2015 Автор Поділитись Опубліковано: 25 березня 2015 Тут у меня за зиму новый планчик нарисовался с учетом многих замечаний, но и моих пожеланий в одной из спаленок на мансарде только мансардное окно (комната в правом верхом углу) да, спаленки маленькие, но мне больше не нужно ни в формате дома для постоянного проживания, ни в формате дачи (гостевые комнаты) одна из "стиралок" на схеме - не стиралка, это будет закуток с гидроаккумулятором, фильтрами и бойлером, доступ к которому будет из предбанника из ванной - дверь стеклянная, чтобы был выход из сауны на улицу и заодно естественно освещение под лестницей скорее всего чуланчик, решили, что отдельный туалет нам не нужен печь отопительная рядом с каменкой бани, чтобы вывести дымоход каменки в кирпичный дымоход печи рядом с печкой в коридоре скорее не шкаф, а открытая вешалка для сезонной верхней одежды и полка для обуви лестница - какая была в программе в действительности будет 6 забежных ступеней, по три с каждой стороны стены Посилання на коментар Поділитися на інших сайтах More sharing options...
Татьяна5 Опубліковано: 25 березня 2015 Поділитись Опубліковано: 25 березня 2015 ммм габарит дай гостиной, не оч понимаю как там перекрытие пойдет и куда крыша опираться будет (слишком широкий пролет) Посилання на коментар Поділитися на інших сайтах More sharing options...
namisha Опубліковано: 25 березня 2015 Автор Поділитись Опубліковано: 25 березня 2015 как ты быстро ))) 3.5 на 7 метров посередине несущая стена, крыша, как обсуждали ранее, наслонная 3.5 на 7 метров это по центрам стен, само помещение соответственно меньше, вторая часть дома (верхняя) 4.5 на 7. почему так - не спрашивай ))) планы менялись по ходу пьесы ) Добавлено через 7 минут Я же могу сделать проемы в несущей стене под проем лестницы и под вход в комнату с печью? лестница с тремя ступенями вроде бы помещается под перекрытие, если нет, то можно в гостиной сделать две ступени. там дальше длина позволяет еще проем под вход и печь 190-200 см Посилання на коментар Поділитися на інших сайтах More sharing options...
namisha Опубліковано: 16 квітня 2015 Автор Поділитись Опубліковано: 16 квітня 2015 Опалубка выставлена. Завтра заливаем ростверк и септик. А у меня вопрос... Если у меня жилая мансарда, то сколько утеплителя мне нужно в межэтажное перекрытие? Как насчет 50 мм песочка для звукоизоляции, а поверх 100 мм ваты? Посилання на коментар Поділитися на інших сайтах More sharing options...
namisha Опубліковано: 19 квітня 2015 Автор Поділитись Опубліковано: 19 квітня 2015 Ростверк, фундамент под печь, септик и крышку на приямок залили Фото чуть позже. Сейчас начнем подготовку к полам по грунту. Оставлю тут схемки, чтобы не потерять. Общая схема канализации: В деталях: Воду в дом будем вводить 32 трубой, обмотанной полевым кабелем связи (для экстренной разморозки, если вдруг что) и внутри канализационной трубы 110 наружной (чтобы можно было поменять при необходимости). в этой же канализационной трубе пойдет кабель к насосу. Посилання на коментар Поділитися на інших сайтах More sharing options...
ws4 Опубліковано: 19 квітня 2015 Поділитись Опубліковано: 19 квітня 2015 А смысл кабель к какашкам бросать? На фоне копки траншей, приямков итд лишний десяток метров дешевой водопроводной ПЭ трубы для того чтоб пробросить кабель отдельно имхо погоду не сделают Посилання на коментар Поділитися на інших сайтах More sharing options...
namisha Опубліковано: 19 квітня 2015 Автор Поділитись Опубліковано: 19 квітня 2015 А смысл кабель к какашкам бросать? На фоне копки траншей, приямков итд лишний десяток метров дешевой водопроводной ПЭ трубы для того чтоб пробросить кабель отдельно имхо погоду не сделают кабель к какашкам не собираюсь собираюсь провести к приямку канализационную наружную трубу исключительно в качестве защиты трубы и провода в ней пойдет труба п/э водопроводная и кабеля Добавлено через 13 минут Вот так Посилання на коментар Поділитися на інших сайтах More sharing options...
ws4 Опубліковано: 19 квітня 2015 Поділитись Опубліковано: 19 квітня 2015 А, понял, сорри ) Я бы так не заморачивался, но думаю что хуже от этого не будет Посилання на коментар Поділитися на інших сайтах More sharing options...
namisha Опубліковано: 19 квітня 2015 Автор Поділитись Опубліковано: 19 квітня 2015 А, понял, сорри ) Я бы так не заморачивался, но думаю что хуже от этого не будет я тоже не собиралась заморачиваться, но уговорили ))) да и недорого трубу на олкс из остатков взяла пусть будет Добавлено через 1 минуту да и труба пройдет под домом 8 метров ... место ввода в дом с противоположной стороны Добавлено через 59 секунд я только никак не пойму чего мне с водопроводными уже от гидроаккумулятора (он в доме) и бойлера делать. в стяжку их? Посилання на коментар Поділитися на інших сайтах More sharing options...
ws4 Опубліковано: 19 квітня 2015 Поділитись Опубліковано: 19 квітня 2015 Да у меня та же картина, скважина на противоположном конце от санузла и кухни ) Гидроаккумулятор бытовых размеров, где бы он не стоял, в любом случае подключается через гибкий шланг. Бойлер скорее всего будет висеть на стене, поэтому без труб в стене врядли получится обойтись. На мой взгляд если с утеплением все ок и пол не уедет от стен - можно разводить и в стяжке пола, лично я разводил по стенам, но у меня газобетон, в случае с каркасниками возможно есть какие-то нюансы. Если водопровод будете сами делать а на мой взгляд по сравнению с печкой - ничего сложного ) Советую учитывать то что разные трубы в зависимости от материала по разному удлиняются при нагреве, в некоторых случаях нужно будет устраивать компенсаторы Посилання на коментар Поділитися на інших сайтах More sharing options...
sov1178 Опубліковано: 19 квітня 2015 Поділитись Опубліковано: 19 квітня 2015 (змінено) обмотанной полевым кабелем связи Это какое-то ноу-хау - как Вы собираетесь полевкой трубы размораживать? Я так понял речь идет о П274 или подобном? Обычно для этих целей используют нагревательные кабели в том числе специальные саморегулирующиеся, иногда такие, которые внутри трубы устанавливаются. в любом случае подключается через гибкий шланг. А зачем? На форуме полно примеров подключения без гибких шлангов (я когда последний раз увидел цену на них немного офигел). в случае с каркасниками возможно есть какие-то нюансы. У меня все в полу разведено, без стяжки - в каркасниках обычно достаточно пустот для прокладки коммуникаций. я только никак не пойму чего мне с водопроводными уже от гидроаккумулятора (он в доме) и бойлера делать. в стяжку их? Это нужно решать конкретно по особенностям конструкции Вашего дома. Делают везде - и в стенах, и в полу, и в подполье, и в стяжке. Единственно, не рекомендую делать это в наружных стенах (хотя и здесь есть варианты - в некоторых случаях это не представляет дополнительных трудностей). О! Увидел, что у Вас полы по грунту, тогда по идее в стыжке сделать, как это традиционно делается и все. Змінено 19 квітня 2015 користувачем sov1178 Дописал Посилання на коментар Поділитися на інших сайтах More sharing options...
Рекомендовані повідомлення
Створіть акаунт або увійдіть у нього для коментування
Ви маєте бути користувачем, щоб залишити коментар
Створити акаунт
Зареєструйтеся для отримання акаунта. Це просто!
Зареєструвати акаунтУвійти
Вже зареєстровані? Увійдіть тут.
Увійти зараз