S1LENCE Опубліковано: 1 березня 2015 Поділитись Опубліковано: 1 березня 2015 Доброго вечора, шановні! Хочу розповісти Вам про те, що у мене забирає майже весь вільний час починаючи з минулої весни. Ще рік потому я навіть не знав, що таке мауерлат, анкер, які бувають труби каналізації, як копається криниця і т.п. Але життя змінилось і я вважаю, що на краще. По-перше, хочу представитись – мене звати Іван, мені на сьогодні 24 роки. Я попав у велике місто з малого в свої 17 років, бо завжди вважав, що у великому є багато можливостей для мене, яких мені не вистачало в моєму рідному Южноукраїнську (наприклад театр, великий футбольний стадіон). Але після декількох років я зрозумів, що жити в такому великому місті не приносить задоволення та й якось завжди в село мене тягнуло. В дитинстві, коли влітку був у бабусі завжди мріяв мати гарну роботу в місті і жити в селі. З гарною роботою склалось, залишилось життя в селі. 25 Посилання на коментар Поділитися на інших сайтах More sharing options...
S1LENCE Опубліковано: 1 березня 2015 Автор Поділитись Опубліковано: 1 березня 2015 Восени 2013 року почав читати інтернетні статті про те, як «правильно» знайти ділянку. Єдине, до чого я одразу прив’язався, так це до електрички (думаю з теперішніми цінами на транспорт це точно буде актуально). Спочатку мене потягнуло на варшавський напрямок, але нормальні ціни ділянок знайшов а ж у Немішаєво, якось було далеко… Тієї ж осені мені на роботі показали цей форум, а конкретно найкращу тему 2013 року «Хатинка в Осинках». Ото я був зачитався, що за раз все і прочитав і так надихнувся власним будівництвом. З весни 2014 року потягнуло на фастівський напрямок, я його вже добре знав, так як на цьому напрямі жила моя дівчина. Також почав активно користуватись форумом. І так сталось, що з форумом вже мене багато що пов’язує: - Ділянка була знайдена через форум (брокер Микола svochtoch – рекомендую) - Тут я начитався, що потрібно знати перед покупкою і що перевіряти (але в житті вийшло не все так, як в теорії – я не перевірив, що попередній власник ділянки 4 роки не платив податок на землю, добре що це всього 160грн вийшло) Отже, в кінці березня до душі припала сама перша ділянка, яку ми дивились в Глевасі – так її на День народження дівчини я і придбав. Ділянка така: З двох сторін дороги (одна асфальтована основна, по другій ніхто не їздить), з третьої сторони посадки 80м і залізниця. З четвертої сторони сусід, який хоче за ділянку чомусь багато грошей, тому, певно, нормального сусіда, який побудується, там буде не скоро. Ой, щось я записався, хоча по звітам розумію, що люди більше люблять фото і ціни на матеріали, ніж просто текст, але це було вступне слово – без нього ніяк Далі буде більше фото. 3 Посилання на коментар Поділитися на інших сайтах More sharing options...
S1LENCE Опубліковано: 1 березня 2015 Автор Поділитись Опубліковано: 1 березня 2015 20км до Києва, 37хв електричкою до залізничного вокзалу або Святошино, перша велика власність в житті і щастю немає меж. Якщо не рахувати потяги, то доволі тихе місце. Як виявилось потім – в мене дуже гарні сусіди, сподіваюсь наші відношення такі будуть завжди! Допомогли за минулий рік дуже багато. Жити я звик по закону (який би він і не логічний в нашій країні був), тому всі дозволи вирішив одразу оформлювати. Почав, звісно, з будівельного паспорту. Мені казали, що цей папір обійдеться в 1000-1500грн, хоча по закону і безкоштовний. На щастя виявилось, що все робиться по закону і взагалі жінки у Васильківський архітектурі дуже привітні і консультують навіть по простим запитанням. Перший раз до них поїхав за всіма роз’ясненнями, другий раз завіз документи, третій раз (вже через місяць) поїхав трохи підправив на місці і забрав паспорт. Тепер про назву теми. Побудувати в майбутньому ми плануємо так, як подавали в "ескізах намірів забудуви": Вирішили почали з малих будівель і закінчити найбільшою - відповідно з №3 до №1 будемо йти. 4 Посилання на коментар Поділитися на інших сайтах More sharing options...
addinol Опубліковано: 1 березня 2015 Поділитись Опубліковано: 1 березня 2015 Подпишусь .Старт положен. 1 Посилання на коментар Поділитися на інших сайтах More sharing options...
S1LENCE Опубліковано: 1 березня 2015 Автор Поділитись Опубліковано: 1 березня 2015 Далі в сільраді дізнався, що можна отримати поштову адресу. Як раз встиг перед виконкомом подати заяву і за 2 тижні отримав свої дві цифри. Ще перед покупкою зробив «виніс меж в натуру». 1000грн і я впевнений, що ділянка саме та, що потрібна. Геологію не робив, бо знав, що будемо копати криницю, там і буде видно, що під ділянкою. Зверху одразу видно, що ґрунти глинясті, чорнозему немає. Настали травневі вихідні і вдалось дешево дістати шальовку, з якої зробили тимчасовий паркан і туалет. На все пішло 2 дні і десь 700грн. Так він досі і стоїть… Будуємо вдвох – я і батько, який приїжджає за 350км. У нього за плечима досвід, у мене багато прочитаної теорії. Так разом і досягаємо результату. 12 Посилання на коментар Поділитися на інших сайтах More sharing options...
S1LENCE Опубліковано: 2 березня 2015 Автор Поділитись Опубліковано: 2 березня 2015 Далі я на місяць поїхав у відрядження, потім дощі були, тому десь 1.5 місяці на ділянці не був. Приїхав - побачив отаке: Прийшлось освоювати нову професію і скосити всю траву. Після оформлення будпаспорту потрібно було подати повідомлення про початок будівництва. Вирішив все зробити через пошту (жаль, що через інтернет поки не можна..). Ніби все було добре, але в ДАБІ на Лесі Українки таки прийшось поїхати, так як не було підписів на всіх сторінках. І десь через 2 місяці я таки побачив свій реєстраційний номер на сайті ДАБІ. В кінці червня завезли щебінь 20-40 і пісок кар'єрний. В теорії мало бути по 20 тонн: Пісок по 60грн/т. Щебінь по 125грн/т. 1 Посилання на коментар Поділитися на інших сайтах More sharing options...
Lukreciya Опубліковано: 2 березня 2015 Поділитись Опубліковано: 2 березня 2015 с почином! а в чем цимес названия темы??)) 1 Посилання на коментар Поділитися на інших сайтах More sharing options...
S1LENCE Опубліковано: 2 березня 2015 Автор Поділитись Опубліковано: 2 березня 2015 с почином! а в чем цимес названия темы??)) Дякую. Назва теми - будівництво хати для батьків, все просто 1 Посилання на коментар Поділитися на інших сайтах More sharing options...
@@Yurii@@ Опубліковано: 2 березня 2015 Поділитись Опубліковано: 2 березня 2015 удачи в стройке. 1 Посилання на коментар Поділитися на інших сайтах More sharing options...
Владислав Ч. Опубліковано: 2 березня 2015 Поділитись Опубліковано: 2 березня 2015 Удачи вам в вашей стройке. Будем следить за вашей темой. 1 Посилання на коментар Поділитися на інших сайтах More sharing options...
S1LENCE Опубліковано: 2 березня 2015 Автор Поділитись Опубліковано: 2 березня 2015 З перших ресурсів, яким ми змогли користуватись, стала вода. Довго думали криниця чи свердловина. Не буду зациклюватись на плюсах і мінусах обох конструкцій, вибрали криницю. Через знайомих знайшли трьох хлопців, які копають криниці, з Мотовилівки. Домовились за ціну (480грн за одне кільце) і через пару днів вони почали копати. Так за день і справились – 10 кілець, 3.5 з них води. Цей рівень тримається і досі. Пару місяців покачавши почали її пити, вода смачна, в майбутньому зроблю аналіз. Навколо криниці зробили також замок із глини і соломи: Пізніше також обсипали глиною десь до 1м навколо криниці. Далі почали думати над тим, як криницю накрити. Зробили як могли: Матеріали обійшлись в 450грн. Певно так пару років і постоїть, мрію про дерев’яний будинок навколо криниці. 1 Посилання на коментар Поділитися на інших сайтах More sharing options...
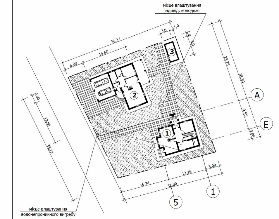
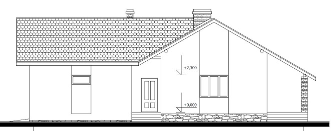
S1LENCE Опубліковано: 3 березня 2015 Автор Поділитись Опубліковано: 3 березня 2015 Батьківська хата має мати таке планування: Фасади. Лице: З середини ділянки: Зі сторони посадки: Зі сторони паркану: P.S. На даний момент готовність на рівні фундаменту. За пару днів доведу тему до реального стану. Не спішу, бо погода не дає, що ж тоді мені писати? 8 Посилання на коментар Поділитися на інших сайтах More sharing options...
Владислав Ч. Опубліковано: 3 березня 2015 Поділитись Опубліковано: 3 березня 2015 Может нужно добавить еще одну спальню в место кухни ,а там где гостинная в 30 квадратных метрах разместить кухню студию! или если стройку еще не начали вместо гаража сделать второй этаж. 1 Посилання на коментар Поділитися на інших сайтах More sharing options...
AНДРЮША Опубліковано: 3 березня 2015 Поділитись Опубліковано: 3 березня 2015 Может нужно добавить еще одну спальню в место кухни . Только хотел сказать, что в таком варианте - очень мой план напоминает, даже по внешним размерам. 1 Посилання на коментар Поділитися на інших сайтах More sharing options...
S1LENCE Опубліковано: 3 березня 2015 Автор Поділитись Опубліковано: 3 березня 2015 Як Ви вже прочитали - фундамент стоїть, тому вже план зафіксований. Проживати буде 2 людини, однієї спальні вистачить, а вітальня буде для гостей. Посилання на коментар Поділитися на інших сайтах More sharing options...
addinol Опубліковано: 3 березня 2015 Поділитись Опубліковано: 3 березня 2015 А детки в будущем? Посилання на коментар Поділитися на інших сайтах More sharing options...
S1LENCE Опубліковано: 3 березня 2015 Автор Поділитись Опубліковано: 3 березня 2015 Потім по плану інший будинок. Той, що №1 на плані. Двоповерховий. Але то вже буде інша історія. Зараз лише батьківська хата. 1 Посилання на коментар Поділитися на інших сайтах More sharing options...
Владислав Ч. Опубліковано: 3 березня 2015 Поділитись Опубліковано: 3 березня 2015 Потім по плану інший будинок. Той, що №1 на плані. Двоповерховий. Але то вже буде інша історія. Зараз лише батьківська хата. Не обижайтесь я так понимаю у вас деньги из карманов не сыпятся. А построить коробку это быстро а как дойдет дело до отделки до полного идеала пока дойдет пройдет не один год. Пока руки дойдут до второго дома ... А машина может и под навесом постоять . На месте гаража сделайте спальни или оставьте это место и будующем просто сделаете навес , а дом стройте в два этажа. Поверте сегодня вам 24 не успеете оглянуться будет 30. Потом лучше баню построете , а сейчас стройте полноценный дом. 5 Посилання на коментар Поділитися на інших сайтах More sharing options...
Vikctor Опубліковано: 3 березня 2015 Поділитись Опубліковано: 3 березня 2015 Проживати буде 2 людини, однієї спальні вистачить, а вітальня буде для гостей. Во-первых поздравляю со стартом и попутного ветра! Во-вторых я было подумал что планируется мансарда ещё на пару спален. Ещё удивился - чего это планов мансарды нет... Как-то действительно слегка необычно - дом с одной спальней и гаражом на 2 авто...По крайней мере я такого до сих пор не видел. В общем и целом компановка нравится, да и то что большинство окон на посадку направлены - тоже. Учитывайте опыт других форумчан, которые сначала решали выстроить летнюю кухню/гостевой дом/баню с помещениями на втором этаже, и так застряли на подобных постройках, что до основного дома так и не дошли... Неосновные постройки обычно обходятся ненамного дешевле. Впрочем вы молоды и лучше других знаете потребности своей семьи. Удачи! 2 Посилання на коментар Поділитися на інших сайтах More sharing options...
S1LENCE Опубліковано: 3 березня 2015 Автор Поділитись Опубліковано: 3 березня 2015 Досвід інших - це дуже важливо. Але я все таки ризикну, і піду від меншого до більшого. Розраховую на те, що коли буде будуватись більший, то 1) в мене буде досвід, як будувати. 2) я буду жити на будівництві постійно. По внутрішньому оздобленню до ідеала доводити не будемо, аби можна було на початку жити. Гараж - це просто коробка, його оздоблення точно не одразу буде. Думаю в кінці літа буде видно, чи був оправданий ризик... 1 Посилання на коментар Поділитися на інших сайтах More sharing options...
mancur Опубліковано: 3 березня 2015 Поділитись Опубліковано: 3 березня 2015 С началом стройки и удачи 1 Посилання на коментар Поділитися на інших сайтах More sharing options...
S1LENCE Опубліковано: 3 березня 2015 Автор Поділитись Опубліковано: 3 березня 2015 (змінено) Опишу інструмент, без якого було нереально щось почати: Глубинний вібратор. Рік назад не знав, що таке існує. Наш Енергомаш за 690грн відпрацював вже 60 кубів і я ним нереально задоволений. Бетонозмішувач Дніпро-М своє відпрацьовує. 2100грн Тачка "Монстр" 100кг я возив, але можна було б трошки меншу брати. 770грн Електричка пилка Makita UC4020A, або як ми її називаємо - Микита - прискорила влаштування опалубки серйозно. 1650грн Молотки, лопати (особливо "американка" сподобалась)... Дивився недавно ціни в магазинах, де придбав інструмент, зараз би все обійшлось на 8000грн більше (за 10 основних інструментів, в середньому ціна кожного 1500грн). Будемо сподіватись, що курс так різко вже не стрибатиме. Ціна даху суттєво підніметься.... Можливо хтось підкаже, чим замінити ЕППС для утеплення підлоги? Змінено 3 березня 2015 користувачем S1LENCE 2 Посилання на коментар Поділитися на інших сайтах More sharing options...
addinol Опубліковано: 3 березня 2015 Поділитись Опубліковано: 3 березня 2015 Себе положил 8см пенопласта 25плотности(под черновую стягу.) Посилання на коментар Поділитися на інших сайтах More sharing options...
S1LENCE Опубліковано: 4 березня 2015 Автор Поділитись Опубліковано: 4 березня 2015 Себе положил 8см пенопласта 25плотности(под черновую стягу.) А пінопласт в якомусь поліетилені? Як захиститись від вологи і гризунів? Посилання на коментар Поділитися на інших сайтах More sharing options...
Vikctor Опубліковано: 4 березня 2015 Поділитись Опубліковано: 4 березня 2015 А пінопласт в якомусь поліетилені? Як захиститись від вологи і гризунів? Вы сначала новые цены на пенопласт узнайте - там разница с ЭППСом уже невелика. Вот недавно темка попалась (техноплекс - это ЭППС.) 1 Посилання на коментар Поділитися на інших сайтах More sharing options...
Рекомендовані повідомлення
Створіть акаунт або увійдіть у нього для коментування
Ви маєте бути користувачем, щоб залишити коментар
Створити акаунт
Зареєструйтеся для отримання акаунта. Це просто!
Зареєструвати акаунтУвійти
Вже зареєстровані? Увійдіть тут.
Увійти зараз