S.Andrey Опубліковано: 13 січня 2016 Автор Поділитись Опубліковано: 13 січня 2016 Прошло порядка 2-3 недель и наш бетон окреп достаточно для того чтобы продолжать работу. Пришло время монтировать блоки ФБС. Ранее были завезены на участок блоки разных размеров 2400, 1200, 900мм длиной и шириной 400мм. Часть из них была еще советского производства (реально лучше качества чем теперешние) Два не полных рабочих дня и все готово. Посилання на коментар Поділитися на інших сайтах More sharing options...
alex_aqua Опубліковано: 14 січня 2016 Поділитись Опубліковано: 14 січня 2016 1. Угол наклона крыши сделали как в проекте (20 °)? Какое сечение стропил? дело в том что в проекте используются стропила сечениям 70Х180, но так как крыша достаточно пологая мучают сомнения не прогнется ли крыша при сильном снеге? Да, угол 20°. Изменение угла приведет к изменению внешнего вида, что я не хотел делать. По сечению стропил скажу завтра, уже точно не помню, завтра померяю. 2.Какая у вас длина свеса крыши?60 см 3.Хотелось бы взглянуть на дом с других ракурсов. Завтра днем сфотографирую и выложу. Посилання на коментар Поділитися на інших сайтах More sharing options...
S.Andrey Опубліковано: 14 січня 2016 Автор Поділитись Опубліковано: 14 січня 2016 Изменение угла приведет к изменению внешнего вида, что я не хотел делать. Согласен, внешний вид как по мне супер, тоже не хочется ничего менять. Единственное что немного с окнами поколдую, хочу все панорамные окна поднять на 30 см. от пола и возможно добавить шпрос. Кстати, что думаете делать с колонной на которую опирается балкон? По проекту она гораздо толще, что как по мне тоже очень влияет на внешний вид. Добавлено через 10 минут Завтра днем сфотографирую и выложу. Ну если будете фотографировать, то не стесняетесь, делайте побольше фоток) внутри, снаружи, очень уж любопытно взглянуть Посилання на коментар Поділитися на інших сайтах More sharing options...
Grineko Опубліковано: 14 січня 2016 Поділитись Опубліковано: 14 січня 2016 У меня похожая ситуация с перемычками. Вышло не всюду 5 см, а самое главное этого не достаточно, чтобы избавиться от мостиков холода. От мостиков холода можно избавиться только в том случае,если вы будете делать кладку на теплом клею-растворе и перемычки другие,как на этом фото...тогда вы добьетесь хорошего тепло-сопротивления "стены" и+хорошей теплопередачи... 2 Посилання на коментар Поділитися на інших сайтах More sharing options...
alex_aqua Опубліковано: 14 січня 2016 Поділитись Опубліковано: 14 січня 2016 Кстати, что думаете делать с колонной на которую опирается балкон? Пилон буду делать нужной толщины - как в проекте. Его массивность оправдана, визуально из-за этого дом становится компактнее. Сейчас у меня сделан его костяк - на фундаменте, залитом одновременно с основным. Затем буду по нужной ширине делать короб из гипсокартона. хочу все панорамные окна поднять на 30 см. от пола и возможно добавить шпрос. Я наоборот мечтал о панораме без каких либо перемычек - у меня участок выходит на маленькую речку и очень красивый вид. Высота окон и дверей балконных (выходы на террасу) 235 см. С фотками засада, приехал на дачу без фотоаппарата, а мой телефон искажает пропорции. Попробую завтра на телефон супруги сделать, у нее лучше фотографии выходят. Кстати, посмотрел стропила: 60х150 мм 1 Посилання на коментар Поділитися на інших сайтах More sharing options...
Музей Опубліковано: 14 січня 2016 Поділитись Опубліковано: 14 січня 2016 Высота окон и дверей балконных (выходы на террасу) 235 см. +180 на утеплитель и стяжку? Посилання на коментар Поділитися на інших сайтах More sharing options...
alex_aqua Опубліковано: 14 січня 2016 Поділитись Опубліковано: 14 січня 2016 +180 на утеплитель и стяжку?200. У меня ноль - верх первого ряда газобетона. Я буду делать теплые полы по плите перекрытия. 10 см ЭППС остальное стяжка и плитка Посилання на коментар Поділитися на інших сайтах More sharing options...
S.Andrey Опубліковано: 14 січня 2016 Автор Поділитись Опубліковано: 14 січня 2016 200. У меня ноль - верх первого ряда газобетона А зачем так много? Посилання на коментар Поділитися на інших сайтах More sharing options...
alex_aqua Опубліковано: 14 січня 2016 Поділитись Опубліковано: 14 січня 2016 А зачем так много? 10 см - ЭППС, 6 см стяжка, 1-1.5 см плитка, 0,7 см клей = 18,2 см. Остальное на кривизну панелей заложил - там перепад может быть большим. 1 Посилання на коментар Поділитися на інших сайтах More sharing options...
Igor_M Опубліковано: 14 січня 2016 Поділитись Опубліковано: 14 січня 2016 Армопояса и перемычки (все) утоплены на 5 см, их я закрою эппс перед штукатуркой. Такой подход прораба мне показался разумным, так как 5 см эппс теплее 10 см газоблока (если использовать U-блок). При этом у меня армопояс получился сечением 200х350 мм, что очень надежно и для плит перекрытия, ну и для крыши тоже. Только я по неопытности (а прораб по недосмотру) не учли, что утопив перемычки на 5 см, на эппс осталось в лучшем случае 4 см, так как слой клея и неровности опалубки +/- 5-7 мм. У меня похожая ситуация с перемычками. Вышло не всюду 5 см, а самое главное этого не достаточно, чтобы избавиться от мостиков холода. У меня получилось ровно 5см ЭППС. Просто я его укладывал в опалубку перед заливкой бетона. Причем снаружи ставил вначале блок на ребро (100мм), потом ЭППС 50мм, а потом уже арматурный каркас. Вот в этом посте есть фотки - www.stroimdom.com.ua/forum/showpost.php?p=375266&postcount=811 Ну еще вот фото вблизи (арка) - www.stroimdom.com.ua/forum/attachment.php?attachmentid=32791&d=1258402079 При этом снаружи у меня однородная поверхность - только газобетон... Вообще-то по логике работы армопояс должен иметь высоту больше, чем ширину... Что сделано, то сделано. Я бы сейчас делал бы по другому. Но тешу себя тем, что такой вариант в любом случае теплее окон, которых в нашем проекте огромное количество - 35 м. кв. только первый этаж. Так что мостик холода от перемычек на таком фоне выглядит бледненько Вообще перемычки делал по тому же принципу - www.stroimdom.com.ua/forum/showthread.php?p=360482&highlight=%EF%E5%F0%E5%EC%FB%F7%EA%E0#post360482 Меня там сразу же попросили "технологию" в деталях изложить... Что и было сделано впоследствии: www.stroimdom.com.ua/forum/showthread.php?p=367915&highlight=%EF%E5%F0%E5%EC%FB%F7%EA%E0#post367915 .................... Так что "если долго мучиться - что-нибудь получится"...:D По результатам теплоаудита дома можно сделать вывод, что таки получилось... ВСЕМ УДАЧИ!!! 1 Посилання на коментар Поділитися на інших сайтах More sharing options...
alex_aqua Опубліковано: 14 січня 2016 Поділитись Опубліковано: 14 січня 2016 Причем снаружи ставил вначале блок на ребро (100мм), потом ЭППС 50мм, а потом уже арматурный каркас. Я Вашу тему читал - бестселлер Сам бы так делал, но уже как есть. Что касается армопояса, то у нас есть нюанс - второй этаж одного угла висит на бетонном столбе 200х200 мм. Плюс там оконный пролет очень большой (мы даже двутавр в него залили). Если лить монолитные перекрытия, то проблем нет. А вот если плиты перекрытия, то армопояс мы побоялись делать 200х200 (хотя честно признаюсь, конструктор говорил, что выдержит). В любом случае, сейчас я бы делал так, как сделали Вы. Но поезд у меня ушел, а вот ТС советую так сделать. Посилання на коментар Поділитися на інших сайтах More sharing options...
S.Andrey Опубліковано: 14 січня 2016 Автор Поділитись Опубліковано: 14 січня 2016 Следующий этап заливка колон. Посилання на коментар Поділитися на інших сайтах More sharing options...
S.Andrey Опубліковано: 14 січня 2016 Автор Поділитись Опубліковано: 14 січня 2016 Делаем опалубку для армопояса и лестницы в подвал. 1 Посилання на коментар Поділитися на інших сайтах More sharing options...
S.Andrey Опубліковано: 14 січня 2016 Автор Поділитись Опубліковано: 14 січня 2016 подвал К стати пару слов о подвале. Как я уже писал выше, подвала в проекте не было, но в связи с тем что фундамент пришлось делать глубоким, не хотелось чтоб лишние метры пропадали, тем более он в хозяйстве всегда пригодиться. Так как в большом подвале нет необходимости, было решено делать подвал не под всем домом, а только под его частью (Котельный и гараж) рис1. Позже решил оставить и эти помещения. рис2. Посилання на коментар Поділитися на інших сайтах More sharing options...
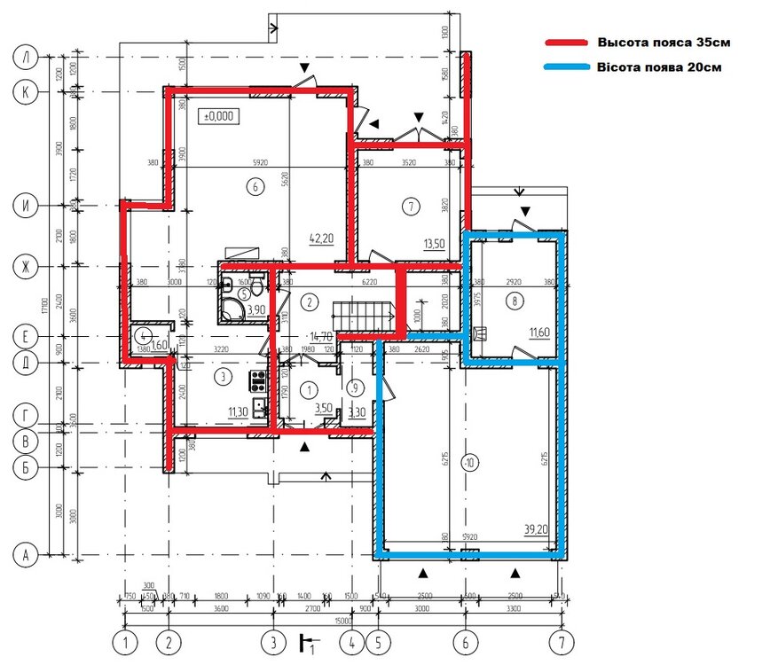
S.Andrey Опубліковано: 17 січня 2016 Автор Поділитись Опубліковано: 17 січня 2016 Армопояс залилт высотой 35 см. а над подвалом 20 см. так как над ним будет монолитное перекрытие 15 см и таким образом выедем на уровень пояса. Посилання на коментар Поділитися на інших сайтах More sharing options...
S.Andrey Опубліковано: 17 січня 2016 Автор Поділитись Опубліковано: 17 січня 2016 Теперь есть одна маленькая проблема, и хотелось бы выслушать мнений опытных людей , как решить данный вопрос. Суть проблемы такова: Так как дополнительные помещения для подвала(рис 1) я решил оставить после того как залил пояс (рис 2), теперь думаю, как сделать над ним перекрытие чтоб оно было вровень с поясом, так как пояс у меня нуль. Мои варианты решения: 1. залить колоны по углам и опереть на них 2. за сверлить арматуру по периметру пояса, но не знаю будет ли этого достаточно! Короче если есть что посоветовать, пишите... Посилання на коментар Поділитися на інших сайтах More sharing options...
alex_aqua Опубліковано: 17 січня 2016 Поділитись Опубліковано: 17 січня 2016 Скажите, а под основание лестницы с 1 на 2 этаж фундамент залит? Я не вижу его. У меня в проекте он есть. И под вентшахты не забудьте, их у Вас 3 Посилання на коментар Поділитися на інших сайтах More sharing options...
Vikctor Опубліковано: 17 січня 2016 Поділитись Опубліковано: 17 січня 2016 1. залить колоны по углам и опереть на них Так не получится. Под колоны понадобится свои общий фундамент. Его тоже нужно как-то связать с существующим. Затем сверху колон нужен ригель по периметру. И уже затем по ригелю перекрытие. 2. за сверлить арматуру по периметру пояса, но не знаю будет ли этого достаточно! Подобного ни когда не видел. В общем нужно Вам к конструктору. Но точно гарантирую, что построить отдельный подвал выйдет заметно дешевле. Ну или изменить ноль. 1 Посилання на коментар Поділитися на інших сайтах More sharing options...
Drosselbeere Опубліковано: 17 січня 2016 Поділитись Опубліковано: 17 січня 2016 В общем нужно Вам к конструктору. так вроде есть же автор проекта Ну или изменить ноль. самая простая схема ПС. меня вот смущает толщина монолитного перекрытия над подвалом. S.Andrey вы сами решили 150 мм или это у вас в проекте? Посилання на коментар Поділитися на інших сайтах More sharing options...
alex_aqua Опубліковано: 17 січня 2016 Поділитись Опубліковано: 17 січня 2016 Цитата: Ну если будете фотографировать, то не стесняетесь, делайте побольше фоток) внутри, снаружи, очень уж любопытно взглянуть Не сильно удачно выходит телефоном. Особенно с ракурсов, где у меня низко участок. Выкладываю, как есть. Внутри против окон телефоном вообще не выходит. Так что их чуть позже выложу. 1 Посилання на коментар Поділитися на інших сайтах More sharing options...
S.Andrey Опубліковано: 18 січня 2016 Автор Поділитись Опубліковано: 18 січня 2016 Скажите, а под основание лестницы с 1 на 2 этаж фундамент залит? Я не вижу его. У меня в проекте он есть. И под вентшахты не забудьте, их у Вас 3 Фундаментом под лестницу и вентшахты будет монолитное перекрытие. Добавлено через 1 час 13 минут Ну или изменить ноль. Вы правы, таки подниму ноль на 150мм, так будет проще и надежнее. ПС. меня вот смущает толщина монолитного перекрытия над подвалом. S.Andrey вы сами решили 150 мм или это у вас в проекте? А над подвалом залью 200мм. так как меня тоже смущает такая толщина перекрытия, все таки в гараже будут стоять два авто. Добавлено через 9 минут Не сильно удачно выходит телефоном. Особенно с ракурсов, где у меня низко участок. Выкладываю, как есть. Внутри против окон телефоном вообще не выходит. Так что их чуть позже выложу. Домик супер получается С нетерпением буду ждать еще фотки, и не забудьте похвастаться вашим видом из окна 1 Посилання на коментар Поділитися на інших сайтах More sharing options...
alex_aqua Опубліковано: 18 січня 2016 Поділитись Опубліковано: 18 січня 2016 Фундаментом под лестницу и вентшахты будет монолитное перекрытие. У меня по проекту тоже монолит вроде, но фундаменты были дополнительные. Не знаю, как в Вашей разновидности, а у меня величина основной шахты 1930х610 мм и высота 8,5 метра. Это огромная нагрузка. Уточните у своего конструктора. Посилання на коментар Поділитися на інших сайтах More sharing options...
S.Andrey Опубліковано: 18 січня 2016 Автор Поділитись Опубліковано: 18 січня 2016 У меня по проекту тоже монолит вроде, но фундаменты были дополнительные. Не знаю, как в Вашей разновидности, а у меня величина основной шахты 1930х610 мм и высота 8,5 метра. Это огромная нагрузка. Уточните у своего конструктора. Спасибо за замечание, буду уточнять. Посилання на коментар Поділитися на інших сайтах More sharing options...
alex_aqua Опубліковано: 18 січня 2016 Поділитись Опубліковано: 18 січня 2016 Домик супер получается Да, нам с женой тоже нравится Но сколько компромиссов, Вы бы знали )) Ниже эскизы. Должен был быть с коричневыми окнами. Но кризис внес коррективы и 25% за коричневую ламинацию я пожлобился платить. Пришлось адаптировать екстерьер. Теперь дом на "зефирку" похож Посилання на коментар Поділитися на інших сайтах More sharing options...
S.Andrey Опубліковано: 18 січня 2016 Автор Поділитись Опубліковано: 18 січня 2016 у меня величина основной шахты 1930х610 мм и высота 8,5 метра просветите неопытного что такое основная шахта? Добавлено через 1 минуту Но сколько компромиссов, Вы бы знали )) Например??? хотелось бы знать что меня ждет. Посилання на коментар Поділитися на інших сайтах More sharing options...
Рекомендовані повідомлення
Створіть акаунт або увійдіть у нього для коментування
Ви маєте бути користувачем, щоб залишити коментар
Створити акаунт
Зареєструйтеся для отримання акаунта. Це просто!
Зареєструвати акаунтУвійти
Вже зареєстровані? Увійдіть тут.
Увійти зараз