ЮрийМ Опубліковано: 2 серпня 2017 Поділитись Опубліковано: 2 серпня 2017 Фото до монтажу в землю Можливо дійсно його монтують просто в бетон, а ми будемо якось проштовхувати бетон під нього Сварили каркас, установили по уровню, зафиксировали. Начали заливать бетон, как залить бетон, а потом установить - не представляю. С швеллером решили вопрос залитием немного выше уровня, и рукой заполняли пустоту в швеллере. Возможно заполнение не 100%, но лучше чем никак. 1 Посилання на коментар Поділитися на інших сайтах More sharing options...
StNick Опубліковано: 2 серпня 2017 Поділитись Опубліковано: 2 серпня 2017 а зачем швеллер? 1 Посилання на коментар Поділитися на інших сайтах More sharing options...
ЮрийМ Опубліковано: 2 серпня 2017 Поділитись Опубліковано: 2 серпня 2017 а зачем швеллер? Скорее всего для установки откатных работ, по крайней мере у меня так. 1 Посилання на коментар Поділитися на інших сайтах More sharing options...
-electron- Опубліковано: 2 серпня 2017 Поділитись Опубліковано: 2 серпня 2017 Стопчики кутові+ворота+калітка з цегли. Між стовпчиками також цегла 5 рядів. Вище профнастил як по бокам. Можливо з буту - але не впевнений, що знайду людей і бут... Те саме що і в мене. Зберегти Добавлено через 1 минуту Привіт, Юра! Я вирішив все цільне робити - як на мене, має бути міцніше, коли все зв'язане. Як раз спочатку по рівень землі залили, далі з опалубкою і всі труби під комунікації залишу Чому одразу не лили? Правда є трішки цурису опалубку виставляти. Треба стовпчики бити на відстані. А потім розкосами підпирати опалубку. Але так можна було все за один захід залити. Шкода що розібрав свої сходи, щоб показати на фото як воно виглядає. Зберегти 1 Посилання на коментар Поділитися на інших сайтах More sharing options...
StNick Опубліковано: 2 серпня 2017 Поділитись Опубліковано: 2 серпня 2017 Скорее всего для установки откатных работ, по крайней мере у меня так. так а швеллер зачем? Посилання на коментар Поділитися на інших сайтах More sharing options...
-electron- Опубліковано: 2 серпня 2017 Поділитись Опубліковано: 2 серпня 2017 Фото до монтажу в землю Можливо дійсно його монтують просто в бетон, а ми будемо якось проштовхувати бетон під нього Так забийте під нього бетону до середини, потім пару каменюк (аналог анкерів) каменюки підберіть так щоб впирались в нижній бетон і в швелер. Потім знову бетон і знову забутовка. Каменюки не всядуться як бетон і будуть тримати всю конструкцію. Зберегти Добавлено через 1 минуту так а швеллер зачем? www.stroimdom.com.ua/forum/showpost.php?p=3914736&postcount=39 Зберегти Зберегти Зберегти 1 Посилання на коментар Поділитися на інших сайтах More sharing options...
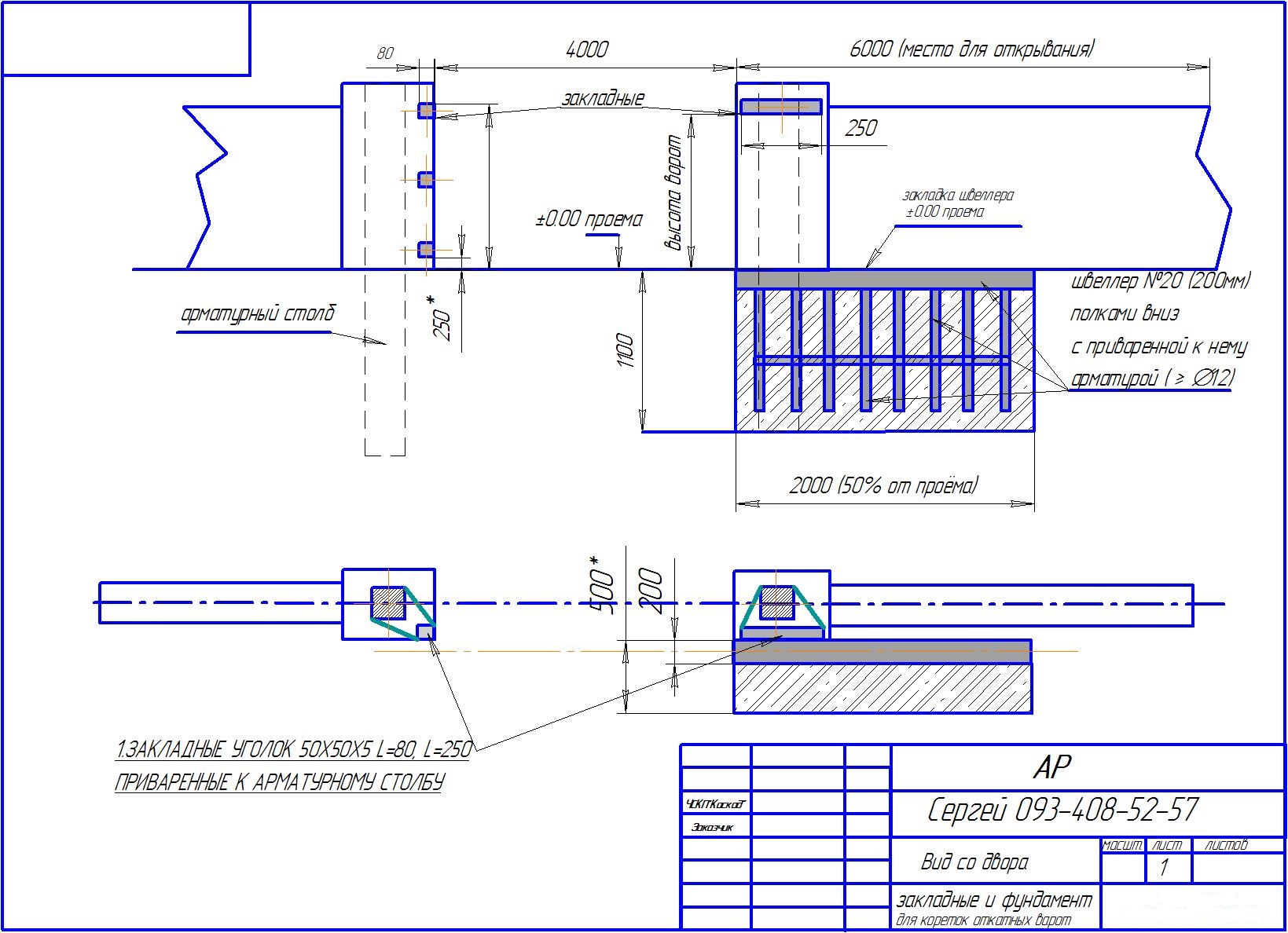
S1LENCE Опубліковано: 2 серпня 2017 Автор Поділитись Опубліковано: 2 серпня 2017 так а швеллер зачем? для монтажу роликів і двигуна Посилання на коментар Поділитися на інших сайтах More sharing options...
ЮрийМ Опубліковано: 2 серпня 2017 Поділитись Опубліковано: 2 серпня 2017 так а швеллер зачем? Уже ответили (ролики, двигатель), добавлю с картинками. 1 Посилання на коментар Поділитися на інших сайтах More sharing options...
StNick Опубліковано: 2 серпня 2017 Поділитись Опубліковано: 2 серпня 2017 Уже ответили (ролики, двигатель), добавлю с картинками. хотья убей не пойму для чего именно швеллер Посилання на коментар Поділитися на інших сайтах More sharing options...
S1LENCE Опубліковано: 2 серпня 2017 Автор Поділитись Опубліковано: 2 серпня 2017 хотья убей не пойму для чего именно швеллер Для зварка з металевими елементами воріт. Ваш варіант? Посилання на коментар Поділитися на інших сайтах More sharing options...
StNick Опубліковано: 2 серпня 2017 Поділитись Опубліковано: 2 серпня 2017 Для зварка з металевими елементами воріт. Ваш варіант? бетон(ровно залитый по горизонтали, с вибрированием) + закладные пластины Посилання на коментар Поділитися на інших сайтах More sharing options...
Gitan Опубліковано: 2 серпня 2017 Поділитись Опубліковано: 2 серпня 2017 хотья убей не пойму для чего именно швеллер Толстый металл на швеллере. Проще и надежнее приваривать арматуру каркаса с полке швеллера. 1 Посилання на коментар Поділитися на інших сайтах More sharing options...
S1LENCE Опубліковано: 2 серпня 2017 Автор Поділитись Опубліковано: 2 серпня 2017 бетон(ровно залитый по горизонтали, с вибрированием) + закладные пластины швелер дозволяє завжди тримати горизонталь між роликами, двигуном. а у Вашому випадку одна пластина зміститься (пучіння, перенавантаження, ще щось), і що тоді? Посилання на коментар Поділитися на інших сайтах More sharing options...
blin09 Опубліковано: 2 серпня 2017 Поділитись Опубліковано: 2 серпня 2017 Теж свого часу заливав під відкатні ворота швелер. Робив так яма під стовпець(в мене цегляний) і рядом під швелер, тобто яма формою Г. Під швелер просто трамбуванням запихав розчин, бетон злив під рівень швелера, ніякий критичних тріщин на має. Потім шкодував, що не давав гидроізол. добавки в бетон. Вже років 4 все ок, бетону нічого не сталось хоч він нічим не накритий. Єдине вра***те розмір ролика(саме ролика, а не його пластини) при встановленні швелера. В мене розмір швелера був без запасу 1,8м(брама 3,6), але через те що перед швелера вистав в рівні зі стовпцем, тому відстань між роликами вийшла 1,5м десь. Перший ролик потрібно ставити трохи далі від краю стовпця, якщо хочете,щоб брама заїхала за стовпець. Ось малюнок пояснить ситуацію. 1 Посилання на коментар Поділитися на інших сайтах More sharing options...
Juvchik Опубліковано: 3 серпня 2017 Поділитись Опубліковано: 3 серпня 2017 Після монтажу вікон був етап штукатурки. Все почалось з пошуку бригади. Спочатку хотів ручну, потім зрозумів, що це буде дуже довго, площа не маленька і вирішив шукати машинну штукатурку. Виявилась цікава деталь, що існує така собі "профспілка шахраїв штукатурів". Звісно задача цієї "профспілки" тримати ціну на певному рівні і майже однакові для всіх. Як на мене, ціну має ринок диктувати, а не домовленність певних людей. Тому шукав людей, які не в цій профспілці, і ціна вже виявляється нормальна... Матеріал думав сам привозити. Почали рахувати і вийшло майже 7,5т! Заїхали штукатури - перші люди, що в цьому будинку жили. За день утеплили відкоси і виставили більшість маяків: А за наступні 3 дні взяли і поштукатурили 400м2 Якістю задоволений, все пройшло чудово, хлопці поїхали на наступний об"єкт. Важливо також розповісти про воду. Одного дня хлопці використали 1.8м3 води. Звісно для нашої криниці це перебор, дощову воду використали на полив (дощів тоді не було)... Спасла сусідська скважина. Тому, кому це важливо, не забувайте. Вань, а не поделитесь контактами штукатуров ? если не секрет, какая для Вас цена была за м2? Посилання на коментар Поділитися на інших сайтах More sharing options...
БеLка Опубліковано: 3 серпня 2017 Поділитись Опубліковано: 3 серпня 2017 vasheteplo.com.ua/ телефони : 097 5092572, 095 3818431 Говорит что работает, только по предоплате. S1LENCE, вижу у Вас во дворе стоят блоки Аэрок Энержи. Ими будете утепляться? 1 Посилання на коментар Поділитися на інших сайтах More sharing options...
S1LENCE Опубліковано: 3 серпня 2017 Автор Поділитись Опубліковано: 3 серпня 2017 Говорит что работает, только по предоплате. S1LENCE, вижу у Вас во дворе стоят блоки Аэрок Энержи. Ими будете утепляться? Я б теж в іншу область машину без переплати не відправляв Я платив - проблем ніяких. Так, по плану утеплитись ним восени. Пам"ятаю Ви теж ним утеплені. Розкажіть про нюанси. Як клали? У Вас гб до гб? Як проклєювали між ними? Посилання на коментар Поділитися на інших сайтах More sharing options...
БеLка Опубліковано: 3 серпня 2017 Поділитись Опубліковано: 3 серпня 2017 Я б теж в іншу область машину без переплати не відправляв Я платив - проблем ніяких. Так, по плану утеплитись ним восени. Пам"ятаю Ви теж ним утеплені. Розкажіть про нюанси. Як клали? У Вас гб до гб? Як проклєювали між ними? Дрова нужны родственникам, боюсь рисковать. Приклеивали клеем Аэрок и дюбеля. Мы на тот момент, столкнулись с проблемой, штукатурки Аэрок не оказалось и нужно было в срочном порядке думать о замене. Выбор пал на Силтек, думаю что недооцененный материал на нашем рынке. Стеночка после Силтека беленька- белусенькая. 4 Посилання на коментар Поділитися на інших сайтах More sharing options...
S1LENCE Опубліковано: 4 серпня 2017 Автор Поділитись Опубліковано: 4 серпня 2017 Дрова нужны родственникам, боюсь рисковать. Приклеивали клеем Аэрок и дюбеля. Мы на тот момент, столкнулись с проблемой, штукатурки Аэрок не оказалось и нужно было в срочном порядке думать о замене. Выбор пал на Силтек, думаю что недооцененный материал на нашем рынке. Стеночка после Силтека беленька- белусенькая. Головне в штукатурці по газоблоку: максимум паропроникненості і мінімум товщини шару. А на бокову частини енерджі наносили 3 полоски, як у їхньому відео? Посилання на коментар Поділитися на інших сайтах More sharing options...
S1LENCE Опубліковано: 4 серпня 2017 Автор Поділитись Опубліковано: 4 серпня 2017 Сантехнічне мистецтво 5 Посилання на коментар Поділитися на інших сайтах More sharing options...
S1LENCE Опубліковано: 9 серпня 2017 Автор Поділитись Опубліковано: 9 серпня 2017 Штукатурка сохне доволі довго, і це в таку жару... Вже третій тиждень пройшов, але на цеглі гіпс в деяких місцях ще так і не висох. Але час є. Після штукатурки змонтували підрозетники: І зібрали щиток. Поки без паливної - буду додавати по ходу монтажу сантехніки: 3 Посилання на коментар Поділитися на інших сайтах More sharing options...
-electron- Опубліковано: 9 серпня 2017 Поділитись Опубліковано: 9 серпня 2017 Штукатурка сохне доволі довго, і це в таку жару... Вже третій тиждень пройшов, але на цеглі гіпс в деяких місцях ще так і не висох. Але час є. Після штукатурки змонтували підрозетники: І зібрали щиток. Поки без паливної - буду додавати по ходу монтажу сантехніки: Я в себе навпаки спочатку монтую весь щиток, а потім вже його монтую. На коліні ;) легше то все монтувати, ніж коли воно закріплено. Зберу все і тоді повішу в ящик і почну підєднувати лінії. Задумався як їх маркувати? Я про нулі і землі. В мене 5 УЗО тому в випадку чого треба знайти нуль і землю швидко. Можна зробити схему шин і кинути всередину, але хотілось би пару способів, щоб в разі чого мати запас. Треба пошукати колись бачив кліпси різнокольорові на кабель. Може є поштучно. Або з термоусадками гратись ставлячи шматочки в різній послідовності. Зберегти 2 Посилання на коментар Поділитися на інших сайтах More sharing options...
S1LENCE Опубліковано: 9 серпня 2017 Автор Поділитись Опубліковано: 9 серпня 2017 Я в себе навпаки спочатку монтую весь щиток, а потім вже його монтую. На коліні ;) легше то все монтувати, ніж коли воно закріплено. Зберу все і тоді повішу в ящик і почну підєднувати лінії. Задумався як їх маркувати? Я про нулі і землі. В мене 5 УЗО тому в випадку чого треба знайти нуль і землю швидко. Можна зробити схему шин і кинути всередину, але хотілось би пару способів, щоб в разі чого мати запас. Треба пошукати колись бачив кліпси різнокольорові на кабель. Може є поштучно. Або з термоусадками гратись ставлячи шматочки в різній послідовності. На кожному кабелі термоусадка з написом. З землями проблем не повинно бути - всі фізично з"єднані. Дивився на кліпси, але, здається вони дорогі. Та й все ж таки це все - раз зібрав і забув 1 Посилання на коментар Поділитися на інших сайтах More sharing options...
-electron- Опубліковано: 9 серпня 2017 Поділитись Опубліковано: 9 серпня 2017 На кожному кабелі термоусадка з написом. З землями проблем не повинно бути - всі фізично з"єднані. Дивився на кліпси, але, здається вони дорогі. Та й все ж таки це все - раз зібрав і забув Звісно земля з'єднана. Але в разі спрацювання узо на якому пара ліній, буває потреба відключити всі жили кабелю. Тому і хочу промаркувати. Чи зроблю надпис на проводі 2.5 маю сумніви. Але варто спробувати. 1 Посилання на коментар Поділитися на інших сайтах More sharing options...
S1LENCE Опубліковано: 9 серпня 2017 Автор Поділитись Опубліковано: 9 серпня 2017 Чи зроблю надпис на проводі 2.5 маю сумніви. Але варто спробувати. Термоусадку більшого діаметру і нехай бовтається ) Посилання на коментар Поділитися на інших сайтах More sharing options...
Рекомендовані повідомлення
Створіть акаунт або увійдіть у нього для коментування
Ви маєте бути користувачем, щоб залишити коментар
Створити акаунт
Зареєструйтеся для отримання акаунта. Це просто!
Зареєструвати акаунтУвійти
Вже зареєстровані? Увійдіть тут.
Увійти зараз