standov Опубліковано: 9 грудня 2016 Поділитись Опубліковано: 9 грудня 2016 Будем строить доработанный проект zx50 (выбросили гараж, подняли окна на первом этаже), вроде как учел все что смог по переделкам, жизни в доме опыта практически нет, с-но хочется по планировкам мнения опытных получить. Второй свет не обсуждается ) это гвоздь в голове который моя доля и пересмотру не подлежит ) Ну и проект куплен, вопрос именно по планировкам помещений и переносу "тонких" стен Посилання на коментар Поділитися на інших сайтах More sharing options...
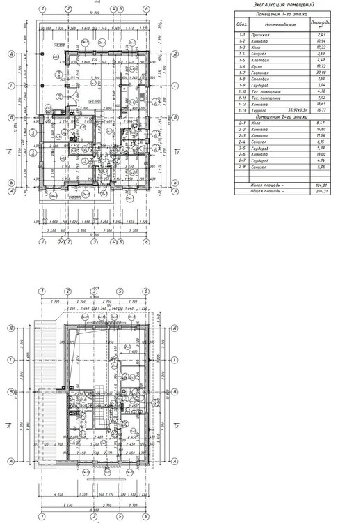
vadimv Опубліковано: 9 грудня 2016 Поділитись Опубліковано: 9 грудня 2016 вопрос именно по планировкам помещений и переносу "тонких" стенА какое назначение комнаты 2-3? Посилання на коментар Поділитися на інших сайтах More sharing options...
standov Опубліковано: 9 грудня 2016 Автор Поділитись Опубліковано: 9 грудня 2016 А какое назначение комнаты 2-3? одна из двух детских Добавлено через 24 минуты А какое назначение комнаты 2-3? А что, есть замечание какое? ) Окно в одной выходит на восток, во второй на запад, в хозяйской спальне восток и мансардное небольшое на юг. На север во всем доме 1 узкое окно на кухне. На самом деле 2 детские спальни это пока запас, сразу будем по очевидной причине одну юзать (посмотрим какая будет удобнее) а вторая типа запас на планы ближайшие. Внизу 1 комната гостевая которая потенциально будет родителям если будет необходимость Посилання на коментар Поділитися на інших сайтах More sharing options...
vadimv Опубліковано: 10 грудня 2016 Поділитись Опубліковано: 10 грудня 2016 А что, есть замечание какое? )Да как-бы ширина 2,45 - не айс. Узкий длинный вагончик. Посилання на коментар Поділитися на інших сайтах More sharing options...
Технология Строительства Опубліковано: 10 грудня 2016 Поділитись Опубліковано: 10 грудня 2016 Второй свет не обсуждается ) это гвоздь в голове который моя доля и пересмотру не подлежит ) Ну и проект куплен, вопрос именно по планировкам помещений и переносу "тонких" стен Пытался, что то найди. Все нормально. Можно сказать только, что: 1. столовая,кухня, гостиная - как 1 комплекс довольно большая площадь, но опять же на любителя + финансовые возможности; 2. как сказали выше комната 2-3 шириной 2.45 не пойдет - может кладовую сделать и расширить соседние комнаты; 3. Вообще коробка дома довольно дорого получится исходя что тут точно монолитное перекрытия и скорее всего монолитный фундамент зная z500; 4. Скиньте план вентиляции этажей! А то пугают сомнения, что есть не во всех помещения вентиляция. А это уже реальная проблема. 1 Посилання на коментар Поділитися на інших сайтах More sharing options...
standov Опубліковано: 10 грудня 2016 Автор Поділитись Опубліковано: 10 грудня 2016 Да как-бы ширина 2,45 - не айс. Узкий длинный вагончик. Да, про ширину пытались думать но ничего не придумали, решили что пусть хоть такая будет чем никакой, не готовы отказываться от одной спальни на втором. Будем как-то мебелья играться Добавлено через 8 минут Пытался, что то найди. Все нормально. Можно сказать только, что: 1. столовая,кухня, гостиная - как 1 комплекс довольно большая площадь, но опять же на любителя + финансовые возможности; 2. как сказали выше комната 2-3 шириной 2.45 не пойдет - может кладовую сделать и расширить соседние комнаты; 3. Вообще коробка дома довольно дорого получится исходя что тут точно монолитное перекрытия и скорее всего монолитный фундамент зная z500; 4. Скиньте план вентиляции этажей! А то пугают сомнения, что есть не во всех помещения вентиляция. А это уже реальная проблема. Вентиляция только в помещениях которые примыкают к каналам, по факту это сан-узлы и главный холл. А в чем проблема может быть? В квартире то вообще 1 точка вентиляции - туалет? В целом инженерку буду в принципе переделывать - та что есть то для галочки. По цене коробки да, влетит в копейку, смирился ) По комнате ответил выше, понимание проблемы есть но что делать не понятно, спален на третьем нужно три, двигать перекрытие влево очень дорого и как начал думать так вообще все ломается, походил с рулеткой по квартире, вроде жить можно ребенку Посилання на коментар Поділитися на інших сайтах More sharing options...
Технология Строительства Опубліковано: 10 грудня 2016 Поділитись Опубліковано: 10 грудня 2016 В квартире то вообще 1 точка вентиляции - туалет? Когда Ваш дом строился скорее всего тогда еще были нормы СНиПы. Да и качество окон было в 10 раз хуже. Для дома из газобетона обязательно сделать вентиляцию и желательно всех помещений, что бы Вы могли комфортно жить и дышать свежим воздухом. В доме обязательно должна быть циркуляция воздуха. Добавлено через 53 секунды По цене коробки да, влетит в копейку, смирился ) Лучше перепроектировать некоторые решения. Это сэкономит Вам сумму в несколько раз точно от стоимости проектных робот, может даже и в 10 раз больше=). Посилання на коментар Поділитися на інших сайтах More sharing options...
standov Опубліковано: 10 грудня 2016 Автор Поділитись Опубліковано: 10 грудня 2016 Когда Ваш дом строился скорее всего тогда еще были нормы СНиПы. Да и качество окон было в 10 раз хуже. Для дома из газобетона обязательно сделать вентиляцию и желательно всех помещений, что бы Вы могли комфортно жить и дышать свежим воздухом. В доме обязательно должна быть циркуляция воздуха. Добавлено через 53 секунды Лучше перепроектировать некоторые решения. Это сэкономит Вам сумму в несколько раз точно от стоимости проектных робот, может даже и в 10 раз больше=). ну у меня нет необходимости построить как можно дешевле, второй свет это хотелка которая должна быть обязательно и она с-но за собой паровозом тянет кучу всего, от перекрытий до отопления, это все расплата за хотелку. Безусловно вопрос экономии без снижения потребительских качеств актуален, но я даже не знаю на чем еще можно тут Посилання на коментар Поділитися на інших сайтах More sharing options...
Технология Строительства Опубліковано: 11 грудня 2016 Поділитись Опубліковано: 11 грудня 2016 ну у меня нет необходимости построить как можно дешевле, второй свет это хотелка которая должна быть обязательно и она с-но за собой паровозом тянет кучу всего, от перекрытий до отопления, это все расплата за хотелку. Безусловно вопрос экономии без снижения потребительских качеств актуален, но я даже не знаю на чем еще можно тут C монолитного перекрытия перейти на сборное перекрытия; С монолитного ленточного фундамента перейти на сборно-монолитный ленточный фундамент. Качества потребительские не снижаются, зато быстрее и дешевле. Посилання на коментар Поділитися на інших сайтах More sharing options...
standov Опубліковано: 11 грудня 2016 Автор Поділитись Опубліковано: 11 грудня 2016 C монолитного перекрытия перейти на сборное перекрытия; С монолитного ленточного фундамента перейти на сборно-монолитный ленточный фундамент. Качества потребительские не снижаются, зато быстрее и дешевле. у меня перекрытие консолью - длинной стороной висит в воздухе (на колоннах) из-за второго света, я не уверен что сборное перекрытие подходит ) фундамент и так сборно-монолитный по проекту с пятаками под эти самые колонны-опоры Посилання на коментар Поділитися на інших сайтах More sharing options...
Технология Строительства Опубліковано: 12 грудня 2016 Поділитись Опубліковано: 12 грудня 2016 у меня перекрытие консолью - длинной стороной висит в воздухе (на колоннах) из-за второго света, я не уверен что сборное перекрытие подходит ) фундамент и так сборно-монолитный по проекту с пятаками под эти самые колонны-опоры Если сделать ригель между колонами, спокойно можно сделать с 1 монолитным участком на углу. Посилання на коментар Поділитися на інших сайтах More sharing options...
standov Опубліковано: 14 грудня 2016 Автор Поділитись Опубліковано: 14 грудня 2016 Если сделать ригель между колонами, спокойно можно сделать с 1 монолитным участком на углу. Ригель нет, там и так плоскостей и граней в избытке, слишком уже будет внешне ) я бы и колонну одну убрал но слишком сложно )) Посилання на коментар Поділитися на інших сайтах More sharing options...
Музей Опубліковано: 26 червня 2017 Поділитись Опубліковано: 26 червня 2017 Заметила Ваш топик о начале строительства и прошла по ссылке на это обсуждение. Несмотря на то, что Вы уже в процессе стройки, всё же выскажусь по проекту. Самая большая ошибка - эти комнатки по 2, 45м, да еще и с мансардыми потолками. Вы будете сожалеть о таком решении. И с каждым годом всё более и более. Я понимаю желание реализовать "хотелки". Но, реализовывать "хочу" стоит лишь после реализации всёх "надо". А эргономичные размеры помещений это "надо". В доме со вторым светом и двумя гаражами строить детские по 2,45м - это отсутствие здравого смысла. Я сейчас даже не стану обсуждать фасады этого дома. Это вопрос из категории "фломастеров". Но, стройка не бюджетная. Это не "крыша над головой", а дом более высокого качественного уровня. Дом для комфортного проживания должен обеспечивать хозяевам комфортное проживание в первую очередь. Если не обеспечены эти критерии, то все хотелки будут выглядеть... мягко выражаясь нелепо. подумайте еще раз над поэтажными планами. 2 Посилання на коментар Поділитися на інших сайтах More sharing options...
gid_8462 Опубліковано: 28 червня 2017 Поділитись Опубліковано: 28 червня 2017 Ширині кімнати 2,45м можна зарадити, якщо сходи зробити прямими (без проміжного майданчика з поворотом). Приміщення 2-6 матиме ширину аналогічно приміщенню 2-3. _____________________________ Наші практики: 51305-ua.all.biz 1 Посилання на коментар Поділитися на інших сайтах More sharing options...
standov Опубліковано: 5 липня 2017 Автор Поділитись Опубліковано: 5 липня 2017 Ширині кімнати 2,45м можна зарадити, якщо сходи зробити прямими (без проміжного майданчика з поворотом). Приміщення 2-6 матиме ширину аналогічно приміщенню 2-3. _____________________________ Наші практики: 51305-ua.all.biz Не понял как это? а как ходить в 2-6? Двигать плиту на 1м была версия но тогда половину дома надо переделывать, начиная от проемов окон на восточной и западной сторонах и до фундамента Добавлено через 1 час 2 минуты Заметила Ваш топик о начале строительства и прошла по ссылке на это обсуждение. Несмотря на то, что Вы уже в процессе стройки, всё же выскажусь по проекту. Самая большая ошибка - эти комнатки по 2, 45м, да еще и с мансардыми потолками. Вы будете сожалеть о таком решении. И с каждым годом всё более и более. Я понимаю желание реализовать "хотелки". Но, реализовывать "хочу" стоит лишь после реализации всёх "надо". А эргономичные размеры помещений это "надо". В доме со вторым светом и двумя гаражами строить детские по 2,45м - это отсутствие здравого смысла. Я сейчас даже не стану обсуждать фасады этого дома. Это вопрос из категории "фломастеров". Но, стройка не бюджетная. Это не "крыша над головой", а дом более высокого качественного уровня. Дом для комфортного проживания должен обеспечивать хозяевам комфортное проживание в первую очередь. Если не обеспечены эти критерии, то все хотелки будут выглядеть... мягко выражаясь нелепо. подумайте еще раз над поэтажными планами. Такое ощущение что вы какой-то другой проект смотрели ;) Нету у меня гаражей, ни одного, вы пишете про "два гаража". Пишете "комнатЫ по 2.45" у меня такая комната 1 штука из 5, она практически не мансардная, севрная сторона дома там скос по высокому уровню. Да я понимаю что 2.45 это маловато мягко скажем, но опять-же это такая 1 комната из 5, я-бы с удовольствием и ее сделал шире но не понятно как не переделывая проект, комната пока будет использоваться больше как "ясли", думаю в таком применении как минимум норм, вторая детская абсолютно полноценная, как и полноценная "запасная" комната. Посилання на коментар Поділитися на інших сайтах More sharing options...
gid_8462 Опубліковано: 7 липня 2017 Поділитись Опубліковано: 7 липня 2017 Малось на увазі наступне рішення: Добавлено через 3 минуты [/img][/img] Посилання на коментар Поділитися на інших сайтах More sharing options...
standov Опубліковано: 17 липня 2017 Автор Поділитись Опубліковано: 17 липня 2017 Малось на увазі наступне рішення: Добавлено через 3 минуты [/img][/img] уж объяснили так объяснили )) Посилання на коментар Поділитися на інших сайтах More sharing options...
gid_8462 Опубліковано: 17 липня 2017 Поділитись Опубліковано: 17 липня 2017 Перепрошую за глюк. ________________________ Наші практики : house-design-gid.all.biz Посилання на коментар Поділитися на інших сайтах More sharing options...
standov Опубліковано: 26 липня 2017 Автор Поділитись Опубліковано: 26 липня 2017 Перепрошую за глюк. ________________________ Наші практики : house-design-gid.all.biz Мысль понял, вариант конечно но после проживания в частном доме я уже четко понимаю что наклон лестницы это очень важно )) там и так на грани комфорта ( Но в целом подумаю 1 Посилання на коментар Поділитися на інших сайтах More sharing options...
gid_8462 Опубліковано: 27 липня 2017 Поділитись Опубліковано: 27 липня 2017 наклон лестницы это очень важно Нахил сходів можна не міняти, а вийти далі у вітальню. Виступ сходів стане "знахідкою" при зонуванні вітальні. ___________________________________________ Наші практики: house-design-gid.all.biz Посилання на коментар Поділитися на інших сайтах More sharing options...
Рекомендовані повідомлення
Створіть акаунт або увійдіть у нього для коментування
Ви маєте бути користувачем, щоб залишити коментар
Створити акаунт
Зареєструйтеся для отримання акаунта. Це просто!
Зареєструвати акаунтУвійти
Вже зареєстровані? Увійдіть тут.
Увійти зараз