livemotion Опубліковано: 13 грудня 2017 Поділитись Опубліковано: 13 грудня 2017 Добрый день. Квартира на втором этаже, угловая, общая площадь 62 кв.м.. Стены из пустотелого, полнотелого, облицовочного кирпича с прослойками пенопласта (весь пирог 700мм) Двухкамерные стеклопакеты как на балконе, так и в комнатах. Радиаторы стальные (Mastas), мощности указаны на схеме. Отопление и ГВС индивидуальное, двухконтурный котёл Ferolli Domina F24N (24кВт) Сначала думал делать двухтрубную систему отопления пексом в стяжке - 20 магистраль, 16 к радиаторам, но сейчас понимаю, что не очень хочу хоронить тройники отводов к радиаторам. СтОит ли делать коллекторную разводку при таком количестве радиаторов и площадях помещений? Может ли коллекторная разводка повлиять на частоту включений/выключений котла для подогрева носителя в контуре отопления или это только термостатом регулируется? Посилання на коментар Поділитися на інших сайтах More sharing options...
naupv Опубліковано: 13 грудня 2017 Поділитись Опубліковано: 13 грудня 2017 Современные пресс тройники и придуманы для захоронения в стяжку и штукатурку. Коллекторная выходит дороже. Вопрос, а водорозетки вы тоже "хоронить" не собираетесь? 2 Посилання на коментар Поділитися на інших сайтах More sharing options...
livemotion Опубліковано: 13 грудня 2017 Автор Поділитись Опубліковано: 13 грудня 2017 В интернетах ужасы пишут и показывают именно про уголки и тройники, которые в стяжке )) коллекторная не сильно дороже выходит из-за разницы цены трубы 20 и 16, к тому же в угловой комнате два радиатора можно (наверное) объединить в один контур. а вот про водорозетки вопрос очень хороший (( в ванной их "не хоронить" не получится Посилання на коментар Поділитися на інших сайтах More sharing options...
naupv Опубліковано: 13 грудня 2017 Поділитись Опубліковано: 13 грудня 2017 Вы меньше видео работ криворуких сантехников смотрите Если все собрать по технологии производителя и с применением необходимого инструмента, ничего никогда не течет. 2 Посилання на коментар Поділитися на інших сайтах More sharing options...
DaniMax Опубліковано: 13 грудня 2017 Поділитись Опубліковано: 13 грудня 2017 Двухкамерные стеклопакеты как на балконе, так и в комнатах. Радиаторы стальные (Mastas), мощности указаны на схеме. Двухкамерный стеклопакет это я так понимаю с одним стеклом. Однозначно окна менять на пятикамерные с тремя стёклами. Радиаторы слабенькие. По паспорту мощность у них заявлена 90/70/20ºС. Чтобы 90 выжать - нужен твердотоп в квартире и балкон забитый антрацитом. Но шутки шутками,радиаторы продать и взять нормальные. И смело делайте коллекторную разводку 16_ой трубой. 1 Посилання на коментар Поділитися на інших сайтах More sharing options...
4587derek Опубліковано: 13 грудня 2017 Поділитись Опубліковано: 13 грудня 2017 Двухкамерный стеклопакет это я так понимаю с одним стеклом.как стеклопакет может быть из одного стекла? Однозначно окна менять на пятикамерныепятикамерные - это 6 стёкол. 1 Посилання на коментар Поділитися на інших сайтах More sharing options...
livemotion Опубліковано: 13 грудня 2017 Автор Поділитись Опубліковано: 13 грудня 2017 Двухкамерный стеклопакет это я так понимаю с одним стеклом. Однозначно окна менять на пятикамерные с тремя стёклами. Радиаторы слабенькие. По паспорту мощность у них заявлена 90/70/20ºС. Чтобы 90 выжать - нужен твердотоп в квартире и балкон забитый антрацитом. Но шутки шутками,радиаторы продать и взять нормальные. И смело делайте коллекторную разводку 16_ой трубой. Не, двухкамерный - это с тремя стёклами и с газом внутри ) А какие радиаторы из недорогих можно взять, если температура в контуре отопления планируется не выше 70гр ? И по-моему у меня оверкил по мощности котла - может его тоже поменять на что-то менее мощное? Или тогда пострадает ГВС? Посилання на коментар Поділитися на інших сайтах More sharing options...
naupv Опубліковано: 13 грудня 2017 Поділитись Опубліковано: 13 грудня 2017 Однозначно окна менять на пятикамерные с тремя стёклами. О, мы уже Гренландию и Исландию скоро переплюнем с перестраховками Добавлено через 57 секунд А какие радиаторы из недорогих можно взять, Стальные пнельные. Или тогда пострадает ГВС? Пострадает. 1 Посилання на коментар Поділитися на інших сайтах More sharing options...
livemotion Опубліковано: 13 грудня 2017 Автор Поділитись Опубліковано: 13 грудня 2017 Стальные пнельные. так у меня и так стальные панельные Mastas 22 или 11, фиг поймёшь по серии. С боковым подключением Посилання на коментар Поділитися на інших сайтах More sharing options...
4587derek Опубліковано: 13 грудня 2017 Поділитись Опубліковано: 13 грудня 2017 если и ГВС от котла, то меньше 20 квт никак. Радиаторы надо подбирать по значениям 70/50/20, и увеличивать размер на 15-20% процентов. Тогда будет более низкотемпературная система. И не зажимать диаметры. 1 Посилання на коментар Поділитися на інших сайтах More sharing options...
yoojin Опубліковано: 13 грудня 2017 Поділитись Опубліковано: 13 грудня 2017 Блин, вы систему отопления на фабрике проектируете (по степени заморочек) или стандартный вариант от застройщика планируете использовать? Тройниковую систему отопления (в вашем случае ТЕСЕ) замечательно можно использовать, если сильно страшно, можно коллекторную. Только трубы надо сразу подключать к радиаторной арматуре, чтобы не было никаких соединений в стене. Водорозетки тоже только снаружи. Котёл можно поменять например на Будерус 172i - 14 КВт, у него на ГВС 24 КВт, а не мучаться всю жизнь с этим китайцем. Радиаторы необходимо пересчитать в соответствии с теплопотерями, до ватта. И застраховать все это. 1 Посилання на коментар Поділитися на інших сайтах More sharing options...
livemotion Опубліковано: 13 грудня 2017 Автор Поділитись Опубліковано: 13 грудня 2017 всё сложно (( По радиаторам понятно - нужно считать. По котлу - нужно смотреть, но будерус точно не потяну. то есть принципиальной разницы между коллекторной системой и двухтрубной в моём случае нет, если не учитывать мои параноидальные взгляды на тройники в стяжке? Посилання на коментар Поділитися на інших сайтах More sharing options...
Vadimchik Опубліковано: 13 грудня 2017 Поділитись Опубліковано: 13 грудня 2017 так у меня и так стальные панельные Mastas 22 или 11, фиг поймёшь по серии. С боковым подключением Назовите тип и размеры радиаторов, можно сказать мощность при параметрах например 70/50/20 (или других). 1 Посилання на коментар Поділитися на інших сайтах More sharing options...
akineo Опубліковано: 13 грудня 2017 Поділитись Опубліковано: 13 грудня 2017 Советую заменить котел на такой, что поддерживает функцию нагрева воды в бойлере косвенного нагрева. Это продлит жизнь котлу и его насосу, не будет лишних не нужных включений, меньше шума (турбированные котлы, это нормально). Советую как обладатель двухконтурного котла 3.5 года. 1 Посилання на коментар Поділитися на інших сайтах More sharing options...
livemotion Опубліковано: 13 грудня 2017 Автор Поділитись Опубліковано: 13 грудня 2017 Назовите тип и размеры радиаторов, можно сказать мощность при параметрах например 70/50/20 (или других). В кухне - 500*500 22 Комната - 600*500 22 и 1100*500 22 Комната - 800*500 22 Добавлено через 1 минуту Советую заменить котел на такой, что поддерживает функцию нагрева воды в бойлере косвенного нагрева. Это продлит жизнь котлу и его насосу, не будет лишних не нужных включений, меньше шума (турбированные котлы, это нормально). Советую как обладатель двухконтурного котла 3.5 года. бойлер вообще некуда примостить. Не в комнату же его вешать)) Посилання на коментар Поділитися на інших сайтах More sharing options...
Vadimchik Опубліковано: 13 грудня 2017 Поділитись Опубліковано: 13 грудня 2017 В кухне - 500*500 22 Комната - 600*500 22 и 1100*500 22 Комната - 800*500 22 Подача/ обратка/ внутренняя температура в помещении. 1 Посилання на коментар Поділитися на інших сайтах More sharing options...
Energon Опубліковано: 14 грудня 2017 Поділитись Опубліковано: 14 грудня 2017 У меня по двухтрубной системе отопление сдаланно металопластиком ТЕСЕ. Греет очень хорошо, квартира прогревается отлично. Делал Сергей B.S.V. Жалею только одно. У меня два балкона с теплыми полами водяными. Один накатали, второй возможно будет накатан позже. Их вот я бы сделал по колекторной системе. И только из-за того что сейчас никаких работ проводить не буду. То краны бы перекрыл на ТП и воду бы из системы сливать не приходилось. В квартире всегда даже в лютые морозы было +8+10 градусов. Но на это уже не хватало финансов)). Из минусов котел от застройщика Нова Флорида. Который в двушке кушает от 150 до 200 кубов газа в месяц. Я его тоже планирую со временем заменить, на более что то удачное. Он 24кВт, сказали что такую мощность нужно что бы прогревать воду когда принимаешь душ. Меньше кВт не греют как нужно. Но я вписал в систему бойлер, то принимать душ можно от бойлера. А котел купить мощностью меньше, добавить программатор и екомить)). В принципе двухтрубная система неплохая, все качественно оппресовано. Монтажники хорошие. Система проверена, думаю служить будет)) 1 Посилання на коментар Поділитися на інших сайтах More sharing options...
akineo Опубліковано: 14 грудня 2017 Поділитись Опубліковано: 14 грудня 2017 А кто сказал что 150-200 м3 для двушки это много? убавьте мощность на отопление в настройках, утеплите квартиру, поставьте програматор. На балконе теплый пол, а под полом утеплителя сколько? 20мм? ну-ну. Добавлено через 1 минуту Добавлено через 1 минуту бойлер вообще некуда примостить. Не в комнату же его вешать)) когда будет всё сделано, через год-два сразу найдется место и желание куда его ставить. В ванной\туалете повесьте\поставьте 1 Посилання на коментар Поділитися на інших сайтах More sharing options...
naupv Опубліковано: 14 грудня 2017 Поділитись Опубліковано: 14 грудня 2017 Подсказка. Самый не дорогой из настенных котлов со встроенным БОЙЛЕРОМ, у Ферроли. В квартире у вас все сделано, не парьтесь. 1 Посилання на коментар Поділитися на інших сайтах More sharing options...
Energon Опубліковано: 14 грудня 2017 Поділитись Опубліковано: 14 грудня 2017 А кто сказал что 150-200 м3 для двушки это много? убавьте мощность на отопление в настройках, утеплите квартиру, поставьте програматор. На балконе теплый пол, а под полом утеплителя сколько? 20мм? ну-ну. Это такой рассход у людей которые живут уже. Там стены в полтора блока 2НФ СБК, утепленные пенопластом 100мм. И расход уже с програматорами. Себе я под ТП купил ЭППС 50мм. Летом буду утеплять снизу балкон. Если по теме то я бы бойлер по советовал куда то впихнуть. в Буче просто с водой постоянные проблемы, бывает такое что и котел запускатся не хочет потому что давления нету. 1 Посилання на коментар Поділитися на інших сайтах More sharing options...
naupv Опубліковано: 14 грудня 2017 Поділитись Опубліковано: 14 грудня 2017 Это такой рассход у людей которые живут уже. Там стены в полтора блока 2НФ СБК, утепленные пенопластом 100мм. И расход уже с програматорами. Себе я под ТП купил ЭППС 50мм. Летом буду утеплять снизу балкон. Если по теме то я бы бойлер по советовал куда то впихнуть. в Буче просто с водой постоянные проблемы, бывает такое что и котел запускатся не хочет потому что давления нету. Если нет воды, бойлер никакой не поможет:D Посилання на коментар Поділитися на інших сайтах More sharing options...
livemotion Опубліковано: 14 грудня 2017 Автор Поділитись Опубліковано: 14 грудня 2017 Energon, так ото ж, сам жил в БК, помню эту Флориду на 24кВт в однушке с двумя радиаторами + полотенчик и счета за газ )) В Ирпене обещали на 18кВт котёл, но видимо что-то не срослось, поэтому снова 24кВт. Поищу место для накопительного водонагревателя в санузел литров на 30-50 для ванной/умывальника, а то от них до котла почти 2.5 литра воды )) 1 Посилання на коментар Поділитися на інших сайтах More sharing options...
Energon Опубліковано: 14 грудня 2017 Поділитись Опубліковано: 14 грудня 2017 У меня дома в панельке, правда утеплили пенопластом 50мм. Стоит котел старенький Вайлант, который 2003 умные немцы выбросили, а умные украинцы подобрали. Так расход газа 80-120 кубов это в трешке)) когда родители уходят газ вырубают, приходят только тогда включают. Бойлера нету)) Добавлено через 4 минуты Energon, так ото ж, сам жил в БК, помню эту Флориду на 24кВт в однушке с двумя радиаторами + полотенчик и счета за газ )) В Ирпене обещали на 18кВт котёл А соседи есть которые живут? Походите поспрашивайте у них как. Если нормально сделать то все можно хоронить. Но я у себя тройники зарисую если там вдруг чего:D Посилання на коментар Поділитися на інших сайтах More sharing options...
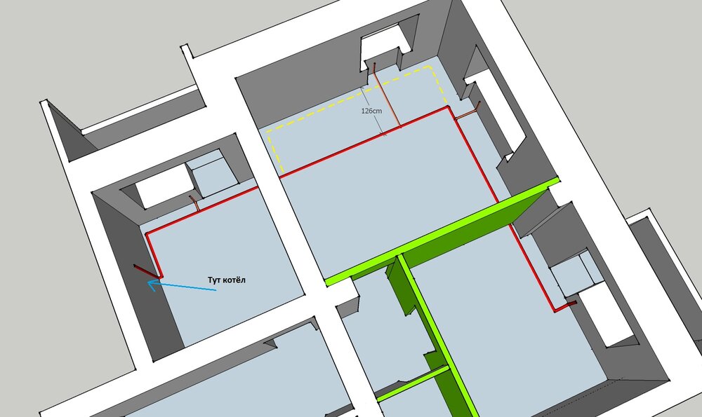
livemotion Опубліковано: 14 грудня 2017 Автор Поділитись Опубліковано: 14 грудня 2017 Господа специалисты, нарисовал схему для двухтрубной системы (правда только одну трубу, вторая аналогично). Есть момент - вести как нарисовано красным или в комнате пускать по контуру, как выделено жёлтым пунктиром? С одной стороны это лишних 2 поворота на 90гр, чуть длиннее трасса, а если без них - один из радиаторов будет на метр дальше от трассы. Посилання на коментар Поділитися на інших сайтах More sharing options...
Рекомендовані повідомлення
Створіть акаунт або увійдіть у нього для коментування
Ви маєте бути користувачем, щоб залишити коментар
Створити акаунт
Зареєструйтеся для отримання акаунта. Це просто!
Зареєструвати акаунтУвійти
Вже зареєстровані? Увійдіть тут.
Увійти зараз