Татьяна5 Опубліковано: 2 лютого 2018 Поділитись Опубліковано: 2 лютого 2018 Моя логика - лучше перебдеть. Не известно, кто будет в доме жить через 20 лет. Да и уследить за всеми отделочниками невозможно. именно в проеме за ними и можно уследить )) правило простое - проем не трогать, и всем все понятно 1 Посилання на коментар Поділитися на інших сайтах More sharing options...
shneider_vova Опубліковано: 2 лютого 2018 Автор Поділитись Опубліковано: 2 лютого 2018 Сами себе добавляете головной боли. От потопа поможет нормальная для с\у разуклонка + трап. Очень полезная вещь. А чтобы вентрешетки в двери не мастить - просто не нужно дверь плотно закрывать(когда там никого нет). У меня в квартире обе двери в с\у чуть приоткрыты. Именно так я заливаю абсолютно все стяжки заказчикам,пороги-каменный век,да и потоп они задержат аж на минутку другую,а вот аварийный трап и разуклонки на сегодня стандарт для санузлов и котелен. Лично у себя дома сделал так же,в прошлом году потоп пережил без последствий,по водомеру за ночь ушло 3 куба воды в трап-сильно бы Вам помог порог? Добавлено через 2 минуты Ребят, спасибо, но не циклитесь на этом пункте. Объясню, откуда он возник: В каком то из видео, которые смотрел по теплым полам, мастер говорил, что в дверном проеме он на трубы (может, это даже были не трубы теплого пола, а ХВС) сверху клал тонкий лист металла, чтобы отделочники при возможном сверлении точно поняли, что тут сверлить не нужно. Это Мурава так любит перестраховатся,но не в дверных проёмах,а под направлящими душкабин и шкафов купе.Бо устал после монтажников трубы ремонтировать. Трапы запланировал разместить в санузлах и котельной. Пороги - не окончательное решение, просто в проекте было написано, я еще подумаю, мне самому не нравится. Защита теплого пола под шкафами-купе - тоже думал, надо не забыть. Душ кабины нет. Посилання на коментар Поділитися на інших сайтах More sharing options...
Татьяна5 Опубліковано: 2 лютого 2018 Поділитись Опубліковано: 2 лютого 2018 Защита теплого пола под шкафами-купе - тоже думал, надо не забыть. Душ кабины нет. Я не делаю ТП под шкафами купе. Раньше делала - всегда попадали )) 3 Посилання на коментар Поділитися на інших сайтах More sharing options...
shneider_vova Опубліковано: 2 лютого 2018 Автор Поділитись Опубліковано: 2 лютого 2018 П.С.: Вы там в личке о моём насосе спрашивали. У меня ведь есть прямой контур, помимо контура ТП. Поэтому котловый насос работает только на загрузку прямого контура и доставку острой воды к термоклапану смесительного узла. В смесительном узле установлен свой насос шестёрка. На фото под спойлером показания расходомеров при включении насоса на максимальной третьей скорости и длины контуров. На второй скорости на самых длинных ветках насос выдаёт чуть меньше 3л/мин. Если правильно помню. Но точно выше 2,5л/мин.да, я уже знаю что гостиная пишется с одной н... Я спросил и потом сразу вспомнил, что есть смесительный узел. Но это тоже полезно. Получается, что на максимальной скорости объем прокачиваемой воды: 6 (контуров)*4 (л/мин)*60 (мин) = 1440 л/час. При этом контура длинные (по 120 метров) - таблица от Рехау показывает падение давления в трубе 17*2 при расходе 0.066 л/с - 300 Па/м, то есть на максимальный контур - 300*120 = 36 кПА. Плюс 10 кПа примерно (наверное) будет падение на самом коллекторе. Итого до 50 кПа. Какой у Вас насос? Потому что Скат не потянет такое напрямую Посилання на коментар Поділитися на інших сайтах More sharing options...
Vikctor Опубліковано: 2 лютого 2018 Поділитись Опубліковано: 2 лютого 2018 ...Какой у Вас насос? Потому что Скат не потянет такое напрямую Насос от штатного в Скате отличается только тем, что кроме неизменной частоты вращения ротора он умеет поддерживать переменный напор. Максимальный напор - 6,2м. Максимальный расход - 3,3м3/ч.[/img] Посилання на коментар Поділитися на інших сайтах More sharing options...
shneider_vova Опубліковано: 2 лютого 2018 Автор Поділитись Опубліковано: 2 лютого 2018 Насос от штатного в Скате отличается только тем, что кроме неизменной частоты вращения ротора он умеет поддерживать переменный напор. Максимальный напор - 6,2м. Максимальный расход - 3,3м3/ч.[/img] Не-не, он принципиально отличается напором и расходом. Например, при потере давления 40 кПа ваш на 2 скорости дает 1 м3/час, а на 3 скорости -1.8 м3/час. А скат на минимальной скорости не запустится, а на максимальной будет расход 0.8 м3/час. 1 Посилання на коментар Поділитися на інших сайтах More sharing options...
semengv Опубліковано: 2 лютого 2018 Поділитись Опубліковано: 2 лютого 2018 Я не делаю ТП под шкафами купе. Раньше делала - всегда попадали Совсем? А под кухонными тумбами нижними? У меня все это хозяйство будет возле внутренних стен и очень хочется на этом немного уменьшить длину веток. А так вы мне прямо камень с души сняли. Посилання на коментар Поділитися на інших сайтах More sharing options...
shneider_vova Опубліковано: 2 лютого 2018 Автор Поділитись Опубліковано: 2 лютого 2018 Совсем? А под кухонными тумбами нижними? У меня все это хозяйство будет возле внутренних стен и очень хочется на этом немного уменьшить длину веток. А так вы мне прямо камень с души сняли. а смысл уменьшения веток? экономия? или гидравлика? Если вдоль внутренних, то думаю, можно и без. Но рекомендации были на форуме - делать везде. Посилання на коментар Поділитися на інших сайтах More sharing options...
semengv Опубліковано: 3 лютого 2018 Поділитись Опубліковано: 3 лютого 2018 а смысл уменьшения веток? экономия? или гидравлика? вСЕ ВМЕСТЕ. Добавлено через 1 минуту Если вдоль внутренних, то думаю, можно и без. Но рекомендации были на форуме - делать везде. Ну так и я о чем! Поэтому и переспрашиваю Татьяну5 - у нее опыта поболе будет. Посилання на коментар Поділитися на інших сайтах More sharing options...
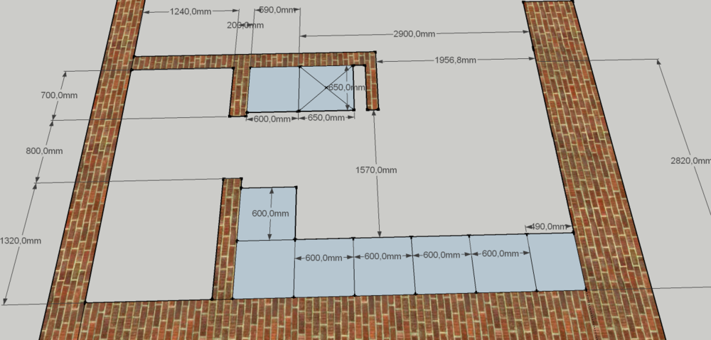
shneider_vova Опубліковано: 3 лютого 2018 Автор Поділитись Опубліковано: 3 лютого 2018 Был на участке сегодня, разметил перестенки. На полу как всегда лед-вода, немного откачал, но толку мало - с крыши течет. Кухня-гостиная, у окна будет кухонный гарнитур с заворотом налево, справа помещение кладовой, выступ перестенка - под размещение холодильника - я окончательно не определился, но исходя из того, что я рисовал себе по кухонной мебели - на стенке холодильник не помещается. Вид из коридора (от начала лестницы) на прихожую (справа) и малый санузел (слева). В прихожей слева будет встроенный шкаф (там глубина 700 мм в черноте), справа - просто крючки и полки под обувь. Думал, будет совсем критично по ширине - но вроде ничего, можно развернуться. Вид на топочную. На месте поддона вход, справа пустота - начало лестницы. Родительская спальня: Большой санузел. Основной промах на текущий момент - размер душевой кабинки - 900*900 - реально очень мало. Надо что то делать. Можно сдвинуть перестенок в сторону спальни, но не более 100-150 мм. Посоветуйте что-то хорошее : Две детские, на месте поддона с кирпичами - дверь Посилання на коментар Поділитися на інших сайтах More sharing options...
Dendnepr Опубліковано: 3 лютого 2018 Поділитись Опубліковано: 3 лютого 2018 Вода это плохо. Надо хоть снег почистить с перекрытия. Посилання на коментар Поділитися на інших сайтах More sharing options...
shneider_vova Опубліковано: 3 лютого 2018 Автор Поділитись Опубліковано: 3 лютого 2018 Вода это плохо. Надо хоть снег почистить с перекрытия. На перекрытии корка льда 2 см на пленке. Если ее отдирать - пленке совсем хана. Так что остаётся терпеть. Пока вода на полу не глобально, с одной комнаты откачал, с остальных не успел да и дел там, а не чистая вода Посилання на коментар Поділитися на інших сайтах More sharing options...
semengv Опубліковано: 3 лютого 2018 Поділитись Опубліковано: 3 лютого 2018 Кухня-гостиная, у окна будет кухонный гарнитур с заворотом налево, справа помещение кладовой, выступ перестенка - под размещение холодильника - я окончательно не определился, но исходя из того, что я рисовал себе по кухонной мебели - на стенке холодильник не помещаетс Вот там где вы проем выложили для кладовки - убираете его, - перемещаете на край перестенка и в левый угол ставите холодильник. Короче размеры дайте - я набросаю. Посилання на коментар Поділитися на інших сайтах More sharing options...
shneider_vova Опубліковано: 3 лютого 2018 Автор Поділитись Опубліковано: 3 лютого 2018 Вот там где вы проем выложили для кладовки - убираете его, - перемещаете на край перестенка и в левый угол ставите холодильник. Короче размеры дайте - я набросаю. Спасибо, вечером доберусь до компа - сброшу чертеж Посилання на коментар Поділитися на інших сайтах More sharing options...
semengv Опубліковано: 3 лютого 2018 Поділитись Опубліковано: 3 лютого 2018 В прихожей слева будет встроенный шкаф (там глубина 700 мм в черноте), справа - просто крючки и полки под обувь. Думал, будет совсем критично по ширине - но вроде ничего, можно развернуться Сколько остается? Посилання на коментар Поділитися на інших сайтах More sharing options...
shneider_vova Опубліковано: 3 лютого 2018 Автор Поділитись Опубліковано: 3 лютого 2018 Сколько остается? Общая ширина 2030, ниша под шкаф 700, проем под дверь 900 и 430 остаётся до стены (вешалка, обувь или что там поместится ) 1 Посилання на коментар Поділитися на інших сайтах More sharing options...
shneider_vova Опубліковано: 3 лютого 2018 Автор Поділитись Опубліковано: 3 лютого 2018 Выкладываю схему внутренних стен с размерами и оригинальный план-схему с расстановкой мебелиМ45 49.pdf 1 Посилання на коментар Поділитися на інших сайтах More sharing options...
Татьяна5 Опубліковано: 3 лютого 2018 Поділитись Опубліковано: 3 лютого 2018 Совсем? А под кухонными тумбами нижними? У меня все это хозяйство будет возле внутренних стен и очень хочется на этом немного уменьшить длину веток. А так вы мне прямо камень с души сняли. не делаю ТП под местами, где будет встроенная мебель (кухня встроенной не является по факту, то есть ТП ему не помеха) 3 Посилання на коментар Поділитися на інших сайтах More sharing options...
semengv Опубліковано: 3 лютого 2018 Поділитись Опубліковано: 3 лютого 2018 Все там помещается. Только нужна ли там та кладовка? У меня похоже получается - только окно на другой стене. Я кладовку не делала. Посилання на коментар Поділитися на інших сайтах More sharing options...
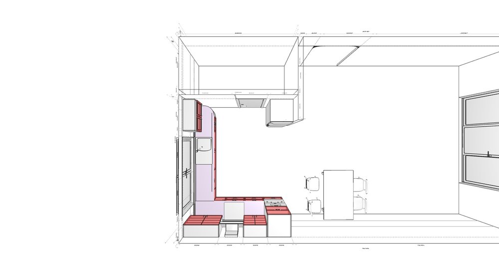
shneider_vova Опубліковано: 3 лютого 2018 Автор Поділитись Опубліковано: 3 лютого 2018 У меня получалась вот такая кухня (фасады и цвета не смотрите - выбирал именно компоновку): semengv, Вашу идею не очень понял. Холодильник и у меня получался, просто не очень мне кажется, удобное для него место - он оторван от основной кухонной стенки. Вариант с разворотом кухни не смотрел, в этом что-то есть, надо думать. Кладовка - думаю, пригодится, тут вообще в проекте мест хранения как бы немного. С учетом, конечно, моего второго этажа и нескорого его ввода в эксплуатацию - там 120 м2 кладовки есть - может, и уберем. сегодня как раз обсуждали с женой. Завтра поедем смотреть вдвоем, буду получать, что такой корявый проект выбрал 1 Посилання на коментар Поділитися на інших сайтах More sharing options...
omozhyn Опубліковано: 4 лютого 2018 Поділитись Опубліковано: 4 лютого 2018 А если вход в кладовку сделать не из кухни, а сразу возле входа в гостиную? Тогда на кухне будет еще одна свободная стена, и холодильник можно ближе поставить, шкаф какой нибудь... 2 Посилання на коментар Поділитися на інших сайтах More sharing options...
shneider_vova Опубліковано: 4 лютого 2018 Автор Поділитись Опубліковано: 4 лютого 2018 А если вход в кладовку сделать не из кухни, а сразу возле входа в гостиную? Тогда на кухне будет еще одна свободная стена, и холодильник можно ближе поставить, шкаф какой нибудь... Сейчас запланирована сдвижная дверь, при варианте входа с торца нужна будет обычная, которая будет съедать место. Плюс вроде как нелогично обходить для доступа в кладовку. Но мысль рабочая, буду думать Посилання на коментар Поділитися на інших сайтах More sharing options...
semengv Опубліковано: 4 лютого 2018 Поділитись Опубліковано: 4 лютого 2018 Вашу идею не очень понял В Вашей компоновке вся грязная часть кухни на виду - просматривается с зала. Еще и окно уменьшает варианты расположения. Вы подумайте что хранить в кладовке будете - все встанет на свои места. Если ее не делать - добавится много шкафов - кухня в той части будет П-образная. Как по мне будет лучше. Тогда все можно разместить по эргономике. И стол нормально влезет. 3 Посилання на коментар Поділитися на інших сайтах More sharing options...
shneider_vova Опубліковано: 4 лютого 2018 Автор Поділитись Опубліковано: 4 лютого 2018 Вчерашний ночной дождь и температура +7-8 последние сутки привели к бассейну: Уровень воды 3-4 см. Поставил насос - думаю, до утра будут уже лужи. Не люблю оставлять работающую технику без присмотра, но делать нечего. После беглого (холодно было плавать) просмотра с женой выводы следующие: 1) прихожая - есть мысль убрать стенку между прихожей и коридором Так конечно, добавляется много места и "свободы", но с точки зрения теплопотерь - большой минус. По крайней мере, можно не делать встроенный шкаф в прихожей - чтобы было больше места для "стояния". 2) Душ-кабинка - будет пробывать сдвигать стенку спальни влево: Можно добавить 10-15 см к кабинке и получить там 90*105 см. Радикальнее - это стесать на внешней газобетонной стене 5 см - но это дальше мысли у меня не оформилось пока - конструктивно совсем не нравится 3) по кладовой и кухне - про "отмену" кладовки и разворот рабочей зоны кухни - идея неплохая, требует развития, постараюсь в ближайшие дни прорисовать. Остальное вроде все ок. Конечно, бассейн мало способствовал вдумчивому созерцанию, так что окончательные решения отодвигаются на неделю-другую. 2 Посилання на коментар Поділитися на інших сайтах More sharing options...
omozhyn Опубліковано: 4 лютого 2018 Поділитись Опубліковано: 4 лютого 2018 Плюс вроде как нелогично обходить для доступа в кладовку. Но мысль рабочая, буду думать с одной стороны - вроде как и не сильно удобно, согласен. Но в этом случае можно добавить шкафов, в которые будет удобный доступ - для того, что надо каждый день. А в кладовку складывать то, что надо раз в неделю и реже. Все таки, это даже не в подвал лезть - 2 шага обойти. Все сугубо ИМХО) ЗЫ я для себя вообще из проекта кладовку убрал в пользу бОльшего размера кухни. А вообще, мысль не моя, а подсмотрено у Земскова (хоть и пафосный, но концепции здравые у него), просто адаптировал из спальня-гардероб к кухня-кладовая. 4 Посилання на коментар Поділитися на інших сайтах More sharing options...
Рекомендовані повідомлення
Створіть акаунт або увійдіть у нього для коментування
Ви маєте бути користувачем, щоб залишити коментар
Створити акаунт
Зареєструйтеся для отримання акаунта. Це просто!
Зареєструвати акаунтУвійти
Вже зареєстровані? Увійдіть тут.
Увійти зараз