Перейти до публікації
Пошук в
  • Додатково...
Шукати результати, які містять...
Шукати результати в...

Одноэтажный Z98 с возможностью 2 этажа, в Днепре

shneider_vova

Рекомендовані повідомлення

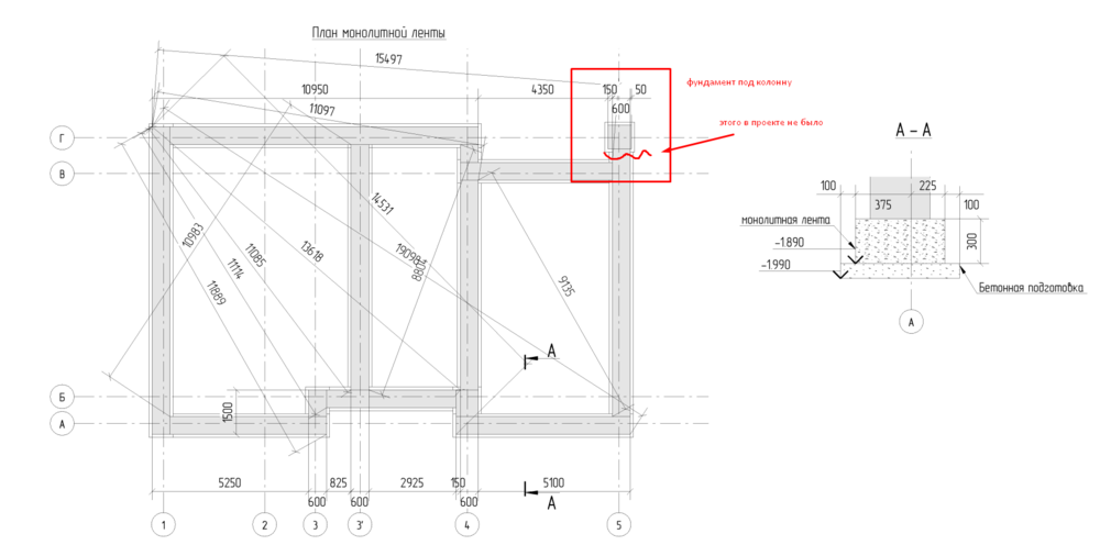
В зоне террасы есть монолитная несущая колонна, на которую приходят монолитные балки. Под нее должен выполняться отдельный фундамент, пятку которого было решено объединить с лентой основного фундамента.

Под колонной должно было быть расширение ленты до 800*800. Я сделал чертеж и заранее передал его на площадку. Однако когда я за час до заливки ленты приехал принимать армирование, то увидел, что никто чертежи не смотрел, и никакого расширения и нужного армирования, выпусков вверх там нет.Пришлось срочно убрать одну стенку опалубки (чтобы лить бетон вплотную к стенке траншеи -расширять ее уже не было времени), и доложить горизонтальное армирование. Выпуски вертикальные решили не делать - их надо было выставить точно, а не это уже не хватало времени:

 

IMG_20170909_162232.thumb.jpg.33b3081fa9c981a1cce02ae47d978d4c.jpg

 

Заливка началась в 18-00 и была завершена к 19-00, бетон не укрывали. Погода была жаркая, и я не позаботился самостоятельно об уходе за бетоном - решил, что строителям виднее. Было это в субботу 9 сентября, как раз на день города. Заехал я на участок на следующий день где то к 11-00 - бетон уже высох, и проявились небольшие усадочные трещинки, в основном, в поворотах ленты. При поливании фундамента он вбирал воду в течении 20 минут. За 2 часа полил 3-4 раза и уехал. На следующий день строители нанесли битумную мастику на вертикальные поверхности ленты - готовились к установке ФБС :

IMG_20170911_163959.thumb.jpg.c225b91db1de6333be27955c96132527.jpg

IMG_20170911_164023.thumb.jpg.16eb151058eca03e459c622ec879e75d.jpg

IMG_20170911_164113.thumb.jpg.2542256c733bbf0386222008692bfe50.jpg

 

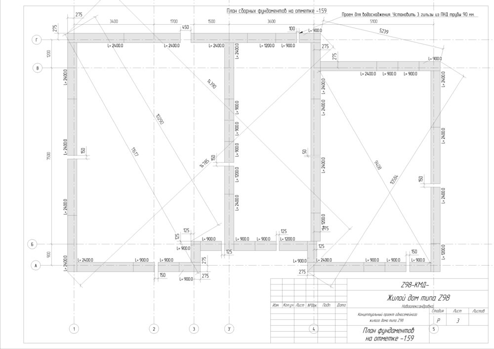
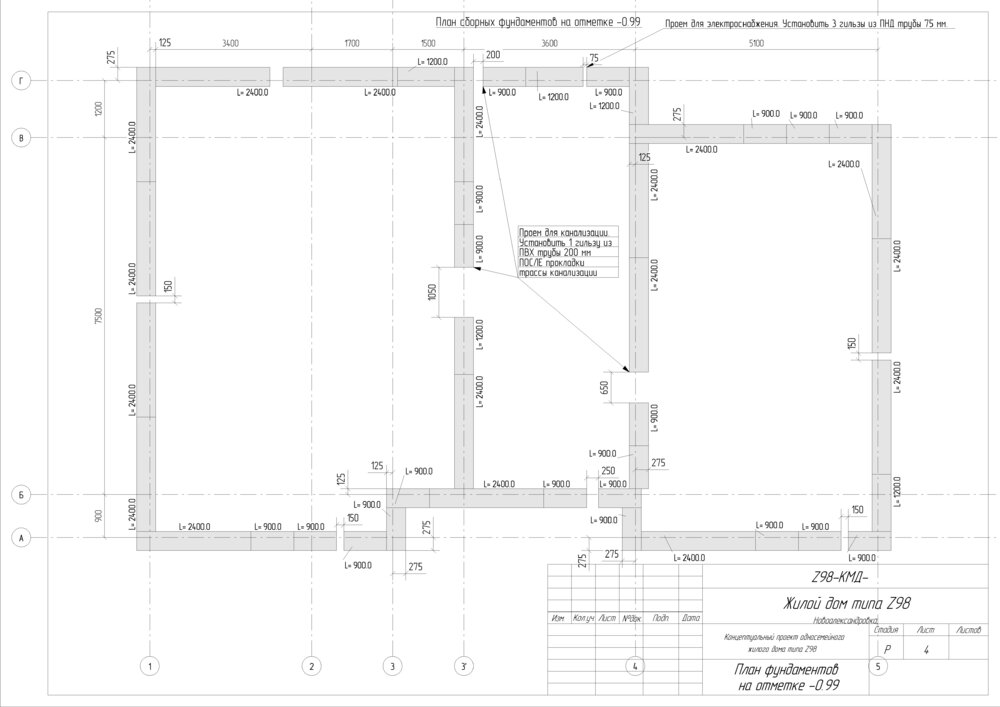
В проекте раскладка блоков была выполнена, я немного оптимизировал ее - для пропуска трассы канализации через внутренние стенки, а также для установки гильз для ввода электричества и воды и вывода канализации наружу:

М3 8.pdf

М4 9.pdf

618685004_49.thumb.jpg.9e2d251f81a3462ad09e99cb50d70134.jpg

2107787051_38.thumb.jpg.d484b04be107c12e49ccdb5656fbda77.jpg

 

Запланировали с прорабом - 1 день - 1 ряд. Я заказал машину с блоками на нижний ряд, приехал на начало разгрузки, убедился, что блоки пришли, и поехал на работу. Вечером меня ожидал сюрприз:

IMG_20170913_173854.thumb.jpg.2837840027d73b92a4268ce43fa5f14e.jpg

IMG_20170913_173916.thumb.jpg.bae49f05fc51fcf8594edb89604c9824.jpg

IMG_20170913_174012.thumb.jpg.70cfc3a8d10c9f723d7ba6249198cd74.jpg

 

Строители не захотели переставлять кран для монтажа полностью первого ряда, поэтому смонтировали в ДВА ряда блоки там, где было им удобно. Естественно, что за раскладку, сделанную мной, уже никто не вспоминал, и проемы под гильзы не были выполнены верно - в частности, проема под ввод электричества не было.

Кроме того, поскольку для выведения геометрии надо было сначала выставить угловые блоки, а не гнать одну стенки, геометрия ленты сильно ушла от проекта - до 5 сантиметров, что потом еще мне аукнется.

На следующий день лента была готова (заполнение пустот будет позже):

IMG_20170915_134007.thumb.jpg.e888fd0d531766f2c3e7026db300e672.jpg

IMG_20170915_134010.thumb.jpg.7a190f5de1f30f17ea60e792831bb852.jpg

IMG_20170915_134033.thumb.jpg.1a21cb361849fd6de9645de0ef883be5.jpg

IMG_20170915_134037.thumb.jpg.75ec125034e030cab210bff4bf2fe673.jpg

  • Лайк 3
Посилання на коментар
Поділитися на інших сайтах

В полку Днепрян на СД прибыло! :D

Шо за апендикс на последней фотке?

 

attachment.php?attachmentid=598509&d=1516007801

 

Это как раз под колонну:

Screenshot_36.thumb.png.3b21c899094da6202ffe2412d3fca45e.png

 

Там был зазор в 300-400 мм между лентой под ФБС и фундаментом колонны, решил завязать, чтобы колонна не "уплыла" в сторону.

  • Лайк 1
Посилання на коментар
Поділитися на інших сайтах

Это как раз под колонну:

Все равно не понял, к чему там колона на таком маленьком расстоянии от стены...

Ну да ладно, потом посмотрим :)

Посилання на коментар
Поділитися на інших сайтах

Сами придумали? Сомневаюсь что такое могли запроектировать:)

 

Screenshot_38.thumb.png.78463b7e8df18a89964648c9d55636df.png

 

Обижаете...

 

А как тут по другому выполнить? Там приличная нагрузка на эти монолитные балки, консольно они висеть не смогут

  • Лайк 1
Посилання на коментар
Поділитися на інших сайтах

Обижаете...

Не, на меня не стоит, думаю привыкните! :D :beer:

 

Добавлено через 51 секунду

А как тут по другому выполнить? Там приличная нагрузка на эти монолитные балки, консольно они висеть не смогут

Я не о реализации, я о задумке :rolleyes:

Посилання на коментар
Поділитися на інших сайтах

Не, на меня не стоит, думаю привыкните! :D :beer:

 

Добавлено через 51 секунду

 

Я не о реализации, я о задумке :rolleyes:

 

Там еще дальше стойка от кровли, еще веселее будет:

Screenshot_39.thumb.png.f553b0b2635aecf6fec5029381acad17.png

 

Согласен, что не очень красиво и удобно, но как есть. Думаю, переживу. У меня эстетика и максимальный комфорт - не является приоритетом в стройке

  • Лайк 1
Посилання на коментар
Поділитися на інших сайтах

Там еще дальше стойка от кровли, еще веселее будет:

[ATTACH]598557[/ATTACH]

 

Согласен, что не очень красиво и удобно, но как есть. Думаю, переживу. У меня эстетика и максимальный комфорт - не является приоритетом в стройке

К вам претензий нету, я б такого архитектора на кол посадил, что бы хоть немного думал и о технической стороне вопроса! :D

Посилання на коментар
Поділитися на інших сайтах

К вам претензий нету, я б такого архитектора на кол посадил, что бы хоть немного думал и о технической стороне вопроса! :D

 

Я тут, честно, не вижу больших проблем с реализацией в техническом плане, кроме того, что остающийся зазор между облицовкой стены и облицовкой колонны всего 600 мм - то есть вряд ли там можно будет ходить.

Проект типовой, много требовать от него нельзя.

Посилання на коментар
Поділитися на інших сайтах

Я тут, честно, не вижу больших проблем с реализацией в техническом плане, кроме того, что остающийся зазор между облицовкой стены и облицовкой колонны всего 600 мм - то есть вряд ли там можно будет ходить.

Проект типовой, много требовать от него нельзя.

Это не колона - это угол дома, он должен быть крепким и на общем фундаменте. Вот тот внутренний апендицит уже можно было реализовать внутри, любых размеров на облегченном фундаменте.

Ну это лирика, мне просто резануло, не зацикливаемся идем дальше. ;)

Посилання на коментар
Поділитися на інших сайтах

После выполнения ленты подошел черед пола. Однако сначала надо было завести все коммуникации внутрь фундамента. Для этого была выполнена обратная засыпка фундамента ранее вынутым грунтом, попутно блоки обмазали снаружи битумной мастикой:

[ATTACH]598559[/ATTACH]

[ATTACH]598560[/ATTACH]

[ATTACH]598561[/ATTACH]

 

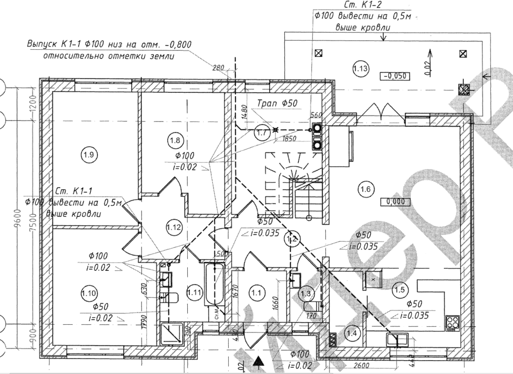
Канализация по проекту разводится под плитой пола (иначе не получится - в слое утеплителя выдержать нужные уклоны невозможно). Поскольку весь грунт я не заменял, и кроме того, грунты у меня просадочные - я очень беспокоился за трубы и надежность соединений. Кроме того, я понимал, что шансов их заменить или отремонтировать не будет. Поэтому решил брать трубу максимальной прочности. Поиски привели к серии KG 2000 от Ostendorf. Согласно проекта, трассы проходят так:

Screenshot_40.thumb.png.60395fcdc5df9ca1a96fd372dace8ae3.png

 

Первые предложенные прорабом сантехники предложили провести трассы вдоль лент фундамента с креплением хомутами к ним. И посчитали спецификацию самостоятельно - получилось в 2 раза больше труб, чем по проекту + хомуты + работы. Обосновать расход труб не захотели - "я так вижу". Трубу предложили польскую - мол, немецкий Остендроф в Украину никто не возит. Отказался с ними работать. Второй сантехник согласовал проектную трассу.

Решил трубу искать самостоятельно. Заказал ее в Santechmagnit - сначала образцы:

IMG_20170914_082332.thumb.jpg.206df4529ad3de3713357bc1d88a2b28.jpg

IMG_20170914_082412.thumb.jpg.8e21f473adb401b61d6e001cfdbb8b76.jpg

IMG_20170914_082452.thumb.jpg.797d79721addda567c5fd54306310102.jpg

IMG_20170920_095500.thumb.jpg.db640b4a70eab29f5d33b9631f46aaa3.jpg

 

а затем и всю трубу. С доставкой на участок пришлось повозиться - 2 трубы взял длиной 5 метров. В итоге взял Sprinter за 300 грн:

IMG_20170920_095500.thumb.jpg.db640b4a70eab29f5d33b9631f46aaa3.jpg

 

На фотографии видны и ПНД трубы - взял их в качестве гильз для ввода воды и электричества (90 и 75 мм) - идея оказалась плохая - слишком жесткие - согнуть под 90 градусов оказалось невозможно. В итого пришлось их выкапывать назад и менять на гибкую канализационную трубу.

 

Канализацию укладывали в выкопанные траншеи, подсыпанные песком, затем засыпали тоже песком (не вынутым ранее черноземом, а завезенным чистым песком). При проходке через фундамент использовалась гильза из 160 трубы канализационной, в которой проходила 110 труба в утеплителе. Планировал ставить 200 трубу (так положено), но прораб молча привез 160, и в ней уже собрали трассу. Не захотел заставлять все разбирать...

IMG_20170928_175643.thumb.jpg.eb531315d9e8c588759146f44f2c456a.jpg

IMG_20170914_082438.thumb.jpg.87bb95a5a6d465b7746d2d8d58149bde.jpg

  • Лайк 5
Посилання на коментар
Поділитися на інших сайтах

Это не колона - это угол дома, он должен быть крепким и на общем фундаменте. Вот тот внутренний апендицит уже можно было реализовать внутри, любых размеров на облегченном фундаменте.

Ну это лирика, мне просто резануло, не зацикливаемся идем дальше. ;)

 

Я и выполнил в итоге на общем фундаменте. По проекту - согласен, логичнее было бы уже и там так нарисовать

  • Лайк 1
Посилання на коментар
Поділитися на інших сайтах

Посредник кормил сказками, достучаться через горячую линию невозможно, ехать ругаться лично не хотелось (документы на супругу, а она дома с 2 маленькими детьми - не лучшие спутники для выяснения отношений в общественных местах).

 

Очень рекомендую сделать доверенность от жены на представление ее интересов в коммунальных предприятиях, ГАСКах, ЦНАПах и т.д. и т.п. Стоит совсем недорого (300-500 грн на несколько лет).

Посилання на коментар
Поділитися на інших сайтах

Еще забыл момент написать. По генплану участка септик у меня достаточно далеко - на пониженной части участка ставить его особо негде - слишком близко к дому получается. А на повышенной части участка есть колодец - поэтому пришлось максимально от него уходить. Итого расстояние от дома до входа в септик будет порядка 15-20 метров, кроме того, надо будет повернуть - а на такой длине трассы, да и с поворотом - надо ставить поворотный колодец. Сантехники предлагали поставить обычное бетонное кольцо - но прикинув по деньгам, остановился на пластиковом. Хотел взять Ostendrof 400 мм, но его не нашел, взял аналог от Magnaplast в Universyst - на сайте заявлен остендорф, но по факту его нет. Низ колодца на отметке примерно 600-700 мм от земли, поэтому диаметра достаточно для прочистки. Трасса от выхода из фундамента до входа в колодец утеплена ППС скорлупой 50 мм (на всякий случай).

 

Ввод электрического кабеля (и интернета) выполнял в раздельных ПНД трубах 40 мм. С кабелем была история. Решил брать на запас ВВГнг 4*10 (на мощность 20 кВт это с 2 кратным запасом). Заказал в tdok.com.ua. По расчету мне надо было 45-50 м кабеля, они нашли остаток в 43 метра. Не хотел ждать и искать еще, заказал. Кабель пришел в большой бухте (вес кабеля под 30 кг), маркировки на нем нет. Решил, что для такого большого кабеля и не делают маркировку. Привез электрикам на площадку и оставил. Днем звонят - мы почти закончили, принимайте работу, но только кабель какой-то странный. А что странного? А у него по одной жиле с одной стороны изоляция синего цвета, а с другой - белого...

И это означает, что скорее всего он где то ремонтировался, и жила сшита.

 

При этом кабель лежит уже в траншее внутри ПНД трубы - посмотреть места возможной сшивки невозможно. Лезу на сайт смотреть, а что же мне продали - неужели Одескабель до такого докатился - и вижу, что возле моего кабеля стоит производитель - "Украина", а не "Одескабель". Менеджер по телефону морозится и рассказывает, что такого быть не может и кабель точно от "Одескабеля". У меня вариантов мало - или выбросить 4500 грн за кабель и 2000 грн за укладку и покупать новый кабель - а это откладывает дальнейшие работы по фундаменту, или закапывать этот.

 

Пошел к заводскому электрику - поехали с мегоометром измерять сопротивление изоляции. На 1 кВ прокрутили прибором - пробоя нет - сопротивление больше 1000 МоМ по каждой фазе. На 2.5 кВ стало пробивать на уровне 200 МоМ. Решили, что с изоляцией все ок, и при закатке жилы на заводе закончился краситель. Ну, по крайней мере так себя утешил, и закопал. Внутри фундамента на 2 арматуринах, вбитых в землю, был установлен временный щит:

IMG_20171006_141731.thumb.jpg.a916a352d47c0d47c846173c39d991a7.jpg

 

Воду завели трубой 32 мм Rehau, в утеплителе (в качестве защиты), понадобилось 15 метров. Трасса водопровода и кабелей проходила после водопроводного колодца в одном месте, поэтому сначала уложили воду на глубине 1300 мм, затем засыпали на 500 мм и уложили кабеля. К сожалению, сигнальную ленту не положили, надеюсь, пнд труба спасет в случае чего.

На этой фотографии видны выполненные гильзы для ввода:

IMG_20171004_174013.thumb.jpg.8a5be33c686976eccddc58c1f357d155.jpg

Делал 3 гильзы на воду - городская вода, возможный ввод от колодца с участка, выход на полив

3 гильзы для света - ввод электричества, ввод интернета, выход на участок. По выводу из дома кабелей будут еще вопросы - мне же много надо вывести - и свет по участку, и беседка, и насос на колодец, и домофон, и ворота и т.п. - или пучок протаскивать, или еще что-то...

 

Поскольку место прохода через фундамент получилось одно (из-за неправильной расстановки ФБС), то решил разводить уже концы гильз - налево пошла вода, направо свет.

  • Лайк 4
Посилання на коментар
Поділитися на інших сайтах

Очень рекомендую сделать доверенность от жены на представление ее интересов в коммунальных предприятиях, ГАСКах, ЦНАПах и т.д. и т.п. Стоит совсем недорого (300-500 грн на несколько лет).

 

Когда-то пытался поговорить с нотариусом - она сказала, что без проблем сделает, только надо конкретно сказать, какие именно интересы и где будут переписаны на меня. Универсальной доверенности нет. Так как у нас все часто меняется - часть услуг переходит в ЦНАП, меняются юрлица у поставщиков коммуникаций - пока решил не заморачиваться.

Посилання на коментар
Поділитися на інших сайтах

Оплатив 14 тысяч и подписав договор на подключение (со сроком в 3 месяца), стал ждать работ.

 

Эти 14 тысяч за что? За подключение от магистральной трубы до узла учета? А трубопровод по участку и дому отдельные деньги?

Посилання на коментар
Поділитися на інших сайтах

Эти 14 тысяч за что? За подключение от магистральной трубы до узла учета? А трубопровод по участку и дому отдельные деньги?

 

Именно. Называли 35 тыс под ключ за все про все, со сдачей. Думаю, это много и можно дешевле. Просто 14 тыс - фиксированный, утвержденный НКРЕ платеж. А дальше как договоришься. Мне там остается до 15 метров трубы по воздуху кинуть, ну не могу понять, как они потянут 20 тыс. Но увидим, сейчас вообще думаю о том, чтобы газ дальше не подключать, а электричеством пока греться.

Посилання на коментар
Поділитися на інших сайтах

Именно. Называли 35 тыс под ключ за все про все, со сдачей. Думаю, это много и можно дешевле. Просто 14 тыс - фиксированный, утвержденный НКРЕ платеж. А дальше как договоришься. Мне там остается до 15 метров трубы по воздуху кинуть, ну не могу понять, как они потянут 20 тыс.

легко. у отца по договору 2016 года это потянуло на 12-14 тыс по участку от счетчика.

Посилання на коментар
Поділитися на інших сайтах

Тщательно отфотографировал место распололожения выходов гильз для того, чтобы потом было легче найти:

IMG_20171006_141800.thumb.jpg.97a75acc3b3382416962bf9b9aa60925.jpg

IMG_20171006_142044.thumb.jpg.2f3144630a6c824a857f785996f8fc60.jpg

IMG_20171006_142229.thumb.jpg.1207701f591a49abc7dbcdd9c4c3af38.jpg

IMG_20171006_142240.thumb.jpg.659457a5055e49b7f84694a23574f0be.jpg

 

Выходы из гильз запенили - знаю, что надо было специальным образом гидроизолировать, но не было времени бегать искать материалы и способы, грунты песчаные, УГВ далеко, сверху отмостка будет - решил забить.

 

Вызвал электриков на опламбировку щита:

IMG_20171006_142614.thumb.jpg.5b6ec97e1021026233aac7de6e0346de.jpg

 

Заведено 4 жилы, нейтральная жила не коммутирована, заземления щитка нет. Поэтому буду делать в доме систему заземления ТТ

 

на фотографии ниже - оформленный выход канализации из дома

IMG_20171006_144254.thumb.jpg.38ef5c804981c43ac94665704a62e15a.jpg

  • Лайк 1
Посилання на коментар
Поділитися на інших сайтах

Наконец можно было приступать к плите пола. К моменту ввода коммуникаций была растелена гидроизоляция в виде пленки (на внутренних лентах ФБС пленка не постелена для сцепления плиты с лентой), и уложена нижняя сетка арматуры (12*200*200):

IMG_20171004_173953.thumb.jpg.2d04eab6ee89feeece3924f42b6005f3.jpg

 

Затем выставлялась опалубка на высоту +-250 мм (толщина плиты 200 мм), на "жабках" собирался верхний слой арматуры (12*200*200 с локальными усилениями):

IMG_20171010_140155.thumb.jpg.03835b759e5a32910d4d1a54cb9c2c87.jpg

IMG_20171010_140157.thumb.jpg.657688b85a1ffaa8c0e11306d25e6616.jpg

IMG_20171010_140159.thumb.jpg.729cce3cc774f45712b9cdb0564be2e7.jpg

IMG_20171010_140325.thumb.jpg.f04c7544f0f42f0684205b4078c724e4.jpg

IMG_20171011_143805.thumb.jpg.e72ecba794fd80c4a4fdc0d04ef04968.jpg

 

Нижняя сетка на фиксаторах, арматура связывалась между собой через 1 пересечение. Опалубка снаружи уперта просто в землю, на одной стороне ее при заливке выдавило, так что стоит обращать на это особое внимание, как и на запенивание щелей между блоками и опалубкой - это надо делать на за 30 минут до того, как приедет миксер, а заранее.

 

Заливали опять в субботу, начали в 15-00, закончили в 18-00 - 33 м3, 4 миксера. Опять с насосом, вибрацией, рейкой. Пытались уровень проверять по лазерному нивелиру (чтобы не бить направляющие или еще что-то) - в итоге получилось не очень - до 15 мм перепад по плите:

IMG_20171011_145420.thumb.jpg.2a6b1e26ba080320dc9607ac7994d123.jpg

IMG_20171011_151120.thumb.jpg.6d962aad09c17886350d114e6a22eaba.jpg

IMG_20171011_165246.thumb.jpg.1a3dcde8c3a6df18e89a3955485baa04.jpg

IMG_20171011_173939.thumb.jpg.4938998ba1c9afe50fa3863fbe9ffb04.jpg

IMG_20171012_094058.thumb.jpg.342eaf7bc032bb945c67ffa51444db41.jpg

 

 

Было уже достаточно прохладно (ночью меньше +10), поэтому не укрывали. Утром прошел дождь, так что состоянии плиты на утро было такое:

IMG_20171012_094103.thumb.jpg.830e34518f6d22c445bbb9b42df7e827.jpg

 

В течении нескольких дней перед работой и после заезжал и поливал плиту по максимуму - так, чтобы стояли лужи. Опалубку сняли через 5 дней:

 

IMG_20171017_084810.thumb.jpg.9be45570ae044b370d6c04d62e1a522c.jpg

 

Видно результаты плохо выставленной опалубки - сопли по краям плиты. Проблема решилась болгаркой с алмазным кругом

  • Лайк 8
Посилання на коментар
Поділитися на інших сайтах

Блин, а так все начиналось, думал все по бедненькому, бюджетнинько будет... А тут серьезный размах, по-богатому конечено! Ж-)
Посилання на коментар
Поділитися на інших сайтах

Блин, а так все начиналось, думал все по бедненькому, бюджетнинько будет... А тут серьезный размах, по-богатому конечено! Ж-)

 

Да я тоже хотел по бедненькому , но как то не выходит :-(

  • Лайк 2
Посилання на коментар
Поділитися на інших сайтах

Вызвал электриков на опламбировку щита:

[ATTACH]598597[/ATTACH]

Добрый день! и что ABB (ввод) опломбируют??
Посилання на коментар
Поділитися на інших сайтах

Створіть акаунт або увійдіть у нього для коментування

Ви маєте бути користувачем, щоб залишити коментар

Створити акаунт

Зареєструйтеся для отримання акаунта. Це просто!

Зареєструвати акаунт

Увійти

Вже зареєстровані? Увійдіть тут.

Увійти зараз
×
×
  • Створити...