teonit Опубліковано: 17 лютого 2018 Поділитись Опубліковано: 17 лютого 2018 Половина 2017-го для меня прошла в активных поисках участка для будущей жизни. Это должно быть тихое место, с удобными подъездными путями, недалеко от города, и чтобы до Винницы можно было легко добраться общественным транспортом. Выбор пал на южное направление Винницы по правому берегу Буга. И вот, в сентябре 2017-го, был приобретен участок в Шкуринцах, который подошел мне по всем параметрам, кроме размера (хотел ширину по фасаду 25м) и ориентации по сторонам въезда. Итак, что мы имеем: участок площадью 8 соток, размером 20 на 40 метров, перепад высот по фасаду 0.7м, вход с северо-востока. Далее начался выбор одноэтажного проекта, подходящего для комфортного проживания семьи из 4 человек, временами до 6. Выходим на дом с тремя спальными и 100-120м2 жилой площади. Кухня и гостиная - раздельные, для наших условий жизни это безальтернативный вариант. На тот момент у меня уже было на примете около 30 отобранных проектов, но ни один из них не подходил. А причины следующие: сосед слева уже построился, и он отступил всего лишь 1.5м от забора. Таким образом, мне нужно отступить слева минимум 6м, справа - 1.5м, и у меня остается 11.5 метров по фасаду. При этом правая стена упирается в забор и я бы не хотел, чтобы там были расположены окна жилых помещений. В результате, остановился на проекте Муратор М93 “Осенние листья”. За разработкой проекта обратился к форумчанину apxitektop.s, и на данный момент уже готов эскизный проект. Ждем оформления строительного паспорта и продолжим работу над рабочим проектом. 8 Посилання на коментар Поділитися на інших сайтах More sharing options...
teonit Опубліковано: 17 лютого 2018 Автор Поділитись Опубліковано: 17 лютого 2018 Предварительно, выбраны следующие технологии и материалы: Наружные стены: газоблок Aeroc D300 400мм Внутренние несущие стены и перегородки: полнотелый кирпич Перекрытие: Ж/Б плиты Крыша: ЦПЧ Ондо Grafito Отопление: водяной теплый (комфортный) пол + радиаторы, электрический котёл с возможностью установки теплового насоса вода-вода Камин: для души и как резервный источник тепла в случае блэкаута 1 Посилання на коментар Поділитися на інших сайтах More sharing options...
korund Опубліковано: 17 лютого 2018 Поділитись Опубліковано: 17 лютого 2018 Перекрытие: Ж/Б плиты Отопление: + радиаторы, электрический котёл с возможностью установки теплового насоса вода-вода Камин: для души и как резервный источник тепла в случае блэкаута Поздравляю! А то моему товарищу там скучновато - он уже заселился, а вокруг только все строятся. Позволю себе возразить по некоторым пунктам, я их выделил выше: Почему ЖБ плиты? - дом-то одноэтажный? и судя по крыше, мансарды и не предвидится? Зачем к ТП еще и радиаторы? Правильно слеланая СО на ТП самодостаточна - этому есть куча примеров Тепловой насос вода-вода будет из скважины? Тгда надо его сразу ставить, т.к. потом буровую на участок будет проблематично загнать или жалко ландшафт-дизайн станет. Если планируете открытый камин, то он в основном "для души" - как источник тепла во времена БП он не годится. Подумайте над закрытой топкой или что-то вроде печи-камина из чугуна. Удачи! 1 Посилання на коментар Поділитися на інших сайтах More sharing options...
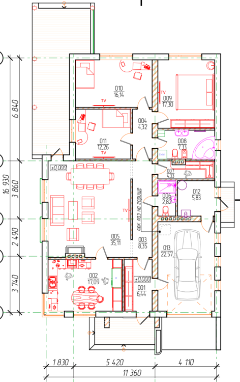
xPavelx Опубліковано: 17 лютого 2018 Поділитись Опубліковано: 17 лютого 2018 Половина 2017-го для меня прошла в активных поисках участка для будущей жизни. Это должно быть тихое место, с удобными подъездными путями, недалеко от города, и чтобы до Винницы можно было легко добраться общественным транспортом. Выбор пал на южное направление Винницы по правому берегу Буга. И вот, в сентябре 2017-го, был приобретен участок в Шкуринцах, который подошел мне по всем параметрам, кроме размера (хотел ширину по фасаду 25м) и ориентации по сторонам въезда. Итак, что мы имеем: участок площадью 8 соток, размером 20 на 40 метров, перепад высот по фасаду 0.7м, вход с северо-востока. Далее начался выбор одноэтажного проекта, подходящего для комфортного проживания семьи из 4 человек, временами до 6. Выходим на дом с тремя спальными и 100-120м2 жилой площади. Кухня и гостиная - раздельные, для наших условий жизни это безальтернативный вариант. На тот момент у меня уже было на примете около 30 отобранных проектов, но ни один из них не подходил. А причины следующие: сосед слева уже построился, и он отступил всего лишь 1.5м от забора. Таким образом, мне нужно отступить слева минимум 6м, справа - 1.5м, и у меня остается 11.5 метров по фасаду. При этом правая стена упирается в забор и я бы не хотел, чтобы там были расположены окна жилых помещений. В результате, остановился на проекте Муратор М93 “Осенние листья”. За разработкой проекта обратился к форумчанину apxitektop.s, и на данный момент уже готов эскизный проект. Ждем оформления строительного паспорта и продолжим работу над рабочим проектом. Имхо у вас получилось два узких шлюза-отсека с кучей дверей. Какая там чистовая ширина будет ? Посилання на коментар Поділитися на інших сайтах More sharing options...
vadimv Опубліковано: 17 лютого 2018 Поділитись Опубліковано: 17 лютого 2018 Почему ЖБ плиты? - дом-то одноэтажный?Там в гостиной пролет около 7 метров. 1 Посилання на коментар Поділитися на інших сайтах More sharing options...
teonit Опубліковано: 17 лютого 2018 Автор Поділитись Опубліковано: 17 лютого 2018 Почему ЖБ плиты? - дом-то одноэтажный? Выше уже подсказали: большой пролет над гостиной. Зачем к ТП еще и радиаторы? Все покажет расчет теплопотерь. В маленькой спальной одним ТП точно не обойтись. И вообще - не хочу сильно греть пол. Я люблю ходить дома босиком. Тепловой насос вода-вода будет из скважины? Тогда надо его сразу ставить, т.к. потом буровую на участок будет проблематично загнать или жалко ландшафт-дизайн станет. Все покажет расчет теплопотерь, на сколько ТП будет экономически выгоден. В любом случае, этот вопрос будет решаться в следующем году. Пока же, нужно не забыть о возможности ТП и заранее предусмотреть закладные в фундаменте. Если планируете открытый камин Закрытая топка, без вариантов. Добавлено через 4 минуты Имхо у вас получилось два узких шлюза-отсека с кучей дверей. Какая там чистовая ширина будет ? Я нашел не так много проектов одноэтажных домов шириной до 12м, и это - один из самых удобных (на мой взгляд). Много дверей - это хорошо. Две двери от гостиной до спальной - это тишина и спокойствие. Посилання на коментар Поділитися на інших сайтах More sharing options...
vadimv Опубліковано: 17 лютого 2018 Поділитись Опубліковано: 17 лютого 2018 Я нашел не так много проектов одноэтажных домов шириной до 12м, и это - один из самых удобных (на мой взгляд).Одна из немногих планировок, которая бы идеально поместилась на моем участке. Интересно будет посмотреть на реализацию. 1 Посилання на коментар Поділитися на інших сайтах More sharing options...
korund Опубліковано: 18 лютого 2018 Поділитись Опубліковано: 18 лютого 2018 Там в гостиной пролет около 7 метров. Видел Ферма, можно металл, или даже дерево подойдет. Прячется в толщине перекрытия и немного будет выступать на чердак - это если ее с запасом 3х-кратным сделать. По расчету теплопотерь - нужны ли радиаторы - скажу сразу: с Д300 400мм - НЕ НУЖНЫ. Удачи! 3 Посилання на коментар Поділитися на інших сайтах More sharing options...
teonit Опубліковано: 18 лютого 2018 Автор Поділитись Опубліковано: 18 лютого 2018 Ферма, можно металл, или даже дерево подойдет. Прячется в толщине перекрытия и немного будет выступать на чердак - это если ее с запасом 3х-кратным сделать. Фермы тоже считать нужно, а потом и качественно сделать в "домашних" условиях. Или есть вероятность получить крышу внутри гостиной. А можно просто перекрыть плитами, заделать дыры, пустить электрические кабеля по потолку и закрыть натяжным потолком. И какое из этих двух решений будет менее затратным, более долговечным и идиотоустойчивым? 2 Посилання на коментар Поділитися на інших сайтах More sharing options...
Drosselbeere Опубліковано: 18 лютого 2018 Поділитись Опубліковано: 18 лютого 2018 И какое из этих двух решений будет менее затратным, более долговечным и идиотоустойчивым? плиты долговечный и идиутоустойчевы, хоте деревянное перекрытие проще если утеплять ватой. Единствено, что бы я сделал так это немного поменял конструктивную схему. не очень удачное решение продольной несущей стены в вашем случаи 1 Посилання на коментар Поділитися на інших сайтах More sharing options...
JohnnyD Опубліковано: 18 лютого 2018 Поділитись Опубліковано: 18 лютого 2018 Я бы не делал гараж, а только навес - он там идеально вписывается 1 Посилання на коментар Поділитися на інших сайтах More sharing options...
teonit Опубліковано: 18 лютого 2018 Автор Поділитись Опубліковано: 18 лютого 2018 Я бы не делал гараж, а только навес - он там идеально вписывается Это вечный холивар Да, я полностью понимаю, что гараж в доме - это дорого. Но я еще относительно молод, успею попользоваться. Авто, скорее всего, будет стоять в гараже только во время сильных морозов или когда вся семья будет в отъезде. Или когда в семье появится второй автомобиль. Или вообще не знаю когда - у меня нет опыта жизни в своем доме. А еще я хочу мастерскую, где можно будет шуметь, сверлить, паять и никто не будет мешаться под ногами. Тем более, х/з как придется зарабатывать себе на жизнь через 20 лет. Посилання на коментар Поділитися на інших сайтах More sharing options...
korund Опубліковано: 18 лютого 2018 Поділитись Опубліковано: 18 лютого 2018 И какое из этих двух решений будет менее затратным, Ферма более долговечным на наш век и того и другого хватит и идиотоустойчивым Я бы не доверял строительство своего дома идиотам Мало того, при ЖБИ перекрытии вы (я уверен на 99%) получите мостики холода в местах опирания крыши (мауэрлатах и стойках). Я еще не видел правильно утепленных перекрытий по плитам или монолиту под скатными кровлями. ... есть вероятность получить крышу внутри гостиной. а вариант землетрясения Вы не рассматривали? ;) Шутка Удачи! 2 Посилання на коментар Поділитися на інших сайтах More sharing options...
Alex.leng Опубліковано: 18 лютого 2018 Поділитись Опубліковано: 18 лютого 2018 якщо не секрет, де саме будуетесь в шкуринцях, ми теж тут, вул.Лірницька.... Посилання на коментар Поділитися на інших сайтах More sharing options...
teonit Опубліковано: 18 лютого 2018 Автор Поділитись Опубліковано: 18 лютого 2018 якщо не секрет, де саме будуетесь в шкуринцях, ми теж тут, вул.Лірницька.... Вулиця Дачна, неподалік від кінцевої 5а Посилання на коментар Поділитися на інших сайтах More sharing options...
teonit Опубліковано: 23 лютого 2018 Автор Поділитись Опубліковано: 23 лютого 2018 Вот и строительный паспорт на руках. Затраты: 4 недели времени и 350 грн. Шаг первый: получение выкопировки в архитектуре района на Соборной 72 Идем в архитектуру, захватив с собой эскизный проект и документы на участок (с ксерокопиямим) Сначала заходим к архитектору района, он смотрит эскиз, дает свое добро Идем в соседний кабинет подавать документы на выкопировку В 105-м кабинете дают квитанцию на оплату Идем в банк напротив и оплачиваем 350 грн Приносим квитанцию в 105-й кабинет, показываем и идем домой Затраты по времени: 30 минут (очередей нет). Через 2 недели приходим и забираем выкопировку (5 минут времени). Шаг второй: оформление строительного паспорта Берем с собой паспорт, выписку из ДРЗК, эскиз и едем в прозорый офис на Замостянську 50 Берем с собой копии всех документов, что есть. По 2 экземпляра На входе подходим к ресепшену, получаем талончик в электронную очередь и сразу же идем на прием, т.к. очередей нет Отдаем документы и идем домой Затраты по времени: 10 - 15 минут Через 2 недели позвонили и предложили прийти за готовым паспортом. Совет: если идете что-то оформлять - берите с собой паспорт, ИНН и все документы, которые есть по участку. А также по две ксерокопии каждого документа. Не помешает. Т.к. я слоупок, то ездил по два раза. Хорошо, что очередей нет, и все недалеко от работы. На следующей неделе поеду оформлять электроэнергию. Пока все идет поразительно гладко 3 Посилання на коментар Поділитися на інших сайтах More sharing options...
Yuriy_M Опубліковано: 28 лютого 2018 Поділитись Опубліковано: 28 лютого 2018 Вместо биде в сан узле мне мой архитектор советовал гигиенический душ. Штука удобная 1 Посилання на коментар Поділитися на інших сайтах More sharing options...
korund Опубліковано: 28 лютого 2018 Поділитись Опубліковано: 28 лютого 2018 На следующей неделе поеду оформлять электроэнергию. Пока все идет поразительно гладко Возьмите туда плюс к документам, еще и валидол,- там, в районных ЭС - редкостные.... Или пистолет. Посилання на коментар Поділитися на інших сайтах More sharing options...
teonit Опубліковано: 1 березня 2018 Автор Поділитись Опубліковано: 1 березня 2018 Возьмите туда плюс к документам, еще и валидол,- там, в районных ЭС - редкостные.... Или пистолет. А я уже везде побывал Для подачи документов в энергосеть осталось заказать выкопировку 1:2000. Сегодня озвучили 2500грн за это дело. И знаете как получается? Из кабинетов, откуда передо мной люди выходят со злыми лицами, я выхожу с легкой улыбкой налице. Лет 15-20 назад я бы тоже выходил с кислой миной. Но долгая работа в ИТ (в т.ч. на руководящих постах) не проходит без следа Добавлено через 1 минуту Вместо биде в сан узле мне мой архитектор советовал гигиенический душ. Штука удобная В арендованной квартире как-то видел, но не пробовал. Правда, я и биде не пробовал. Х/з как оно зайдет. С другой стороны, если есть место в ваннои - почему бы не поставить биде? По деньгам не сильно дорого (если без фанатизма). И все же, как же тяжело готовиться к строительству своего первого дома. На половину вопросов, которые меня сейчас волнуют, у меня только один ответ: "Не знаю - не пробовал". В голове куча интересных идей, но половину сразу отбрасываю, потому что "не зайдет". А вторая половина - может понравится, может нет... и приходится заранее перестраховываться. К таким вопросам относятся: биде или гигиенический душ теплый пол или комфортный пол а нужен ли камин? тепловой насос сейчас - 100% не выгоден, а через 5-10 лет? и какого типа? гелиосистемы сейчас - 100% не выгодны, а через 5-10 лет? Зато проще в плане современных технологий. Хоть сам и из сферы ИТ, и люблю все новое, но умный дом и прочие плюшки делать не буду. Потому что это все прикольно, но любую систему нужно обслуживать. И здесь чем меньше наворотов - тем проще. 1 Посилання на коментар Поділитися на інших сайтах More sharing options...
korund Опубліковано: 1 березня 2018 Поділитись Опубліковано: 1 березня 2018 биде или гигиенический душ теплый пол или комфортный пол а нужен ли камин? тепловой насос сейчас - 100% не выгоден, а через 5-10 лет? и какого типа? гелиосистемы сейчас - 100% не выгодны, а через 5-10 лет? Все мое ИМХО: (ну, по опыту полсотни построенных домов) - душ - ТП везде, совсем везде, не только на 2м этаже, а и в кладовках и т.п. - на батарех не сэкономите от слова ВООБЩЕ - камин как средство отопления бесполезен - только релакс, - для резервного отопления или каминопечь, или а-ля буржуйка, или печь-щиток - тепловой насос сейчас - 100% не выгоден .... правда?! уже вижу, что калькулятор не включали, - спорить пока не буду - гелиосистемы сейчас - 100% не выгодны см выше Удачи 1 Посилання на коментар Поділитися на інших сайтах More sharing options...
БеLка Опубліковано: 1 березня 2018 Поділитись Опубліковано: 1 березня 2018 И здесь чем меньше наворотов - тем проще. Золотые слова! Добавлено через 4 минуты гигиенический душ Душ, жена потом спасибо скажет. Добавлено через 50 секунд а нужен ли камин? Каминофен, буржуйка и т.д. Добавлено через 1 минуту тепловой насос сейчас - 100% не выгоден, а через 5-10 лет? и какого типа? Пока, не выгоден. 1 Посилання на коментар Поділитися на інших сайтах More sharing options...
Gitan Опубліковано: 1 березня 2018 Поділитись Опубліковано: 1 березня 2018 ... Пока, не выгоден. Выгода определятся сроком окупаемости. Себе считал ТН. Окупаемость 10 лет. Решил повременить. 1 Посилання на коментар Поділитися на інших сайтах More sharing options...
БеLка Опубліковано: 1 березня 2018 Поділитись Опубліковано: 1 березня 2018 Выгода определятся сроком окупаемости. Себе считал ТН. Окупаемость 10 лет. Решил повременить. Вы когда просчитывали окупаемость, какую цену на газ брали? А какая цена будет через 2-3 года? Десять лет назад про утепление не кто не думал, газ копеечный был. 2 Посилання на коментар Поділитися на інших сайтах More sharing options...
Gitan Опубліковано: 1 березня 2018 Поділитись Опубліковано: 1 березня 2018 Вы когда просчитывали окупаемость, какую цену на газ брали? А какая цена будет через 2-3 года? Десять лет назад про утепление не кто не думал, газ копеечный был. Считал по расходу в эту зиму. Отопление электрокотлом на электротарифе (который пока не получил). Экономия при СОР 3 в среднем и дала окупаемость в 10 лет. Тн считался Виссман. Посилання на коментар Поділитися на інших сайтах More sharing options...
Gonchik Опубліковано: 2 березня 2018 Поділитись Опубліковано: 2 березня 2018 (змінено) Вы когда просчитывали окупаемость, какую цену на газ брали? А какая цена будет через 2-3 года? Десять лет назад про утепление не кто не думал, газ копеечный был. Это мягко говоря неправда. Строил с 2003 по 2006 утеплял пенопластом стены, ватой мансарду. Гелиосистемы планирую, ТП пока нет. Закрытым камином отапливаю как минимум в межсезонье. Каминофен лучше только тем, что дешевле, в остальном проигывает закрытой топке. Гараж хорош еще тем, что свежевымытое авто после первой же ночи на улице не покрывается слоем пыли. Зимой (-10 и ниже) это минус литр расхода. Неоднократно замерял. У меня сейчас конкуренция с женой за гараж. В следующем доме будет на 2 авто. Прихожая будет меганеудобной, двоим не разминуться. Сейчас у меня примерно такая, 8 кв.м. Шкаф на всю длину не самое удобное решение. Сейчас у меня участок с Вашими вводными (сосед слева построил в 1,5 м от межи, вход с северо-востока, длинный))). Пришел к такому же расположению по сторонам света. На терассе заходящее солнце будет слепить. Нужно чем-то отгородиться. Змінено 2 березня 2018 користувачем Gonchik 1 Посилання на коментар Поділитися на інших сайтах More sharing options...
Рекомендовані повідомлення
Створіть акаунт або увійдіть у нього для коментування
Ви маєте бути користувачем, щоб залишити коментар
Створити акаунт
Зареєструйтеся для отримання акаунта. Це просто!
Зареєструвати акаунтУвійти
Вже зареєстровані? Увійдіть тут.
Увійти зараз