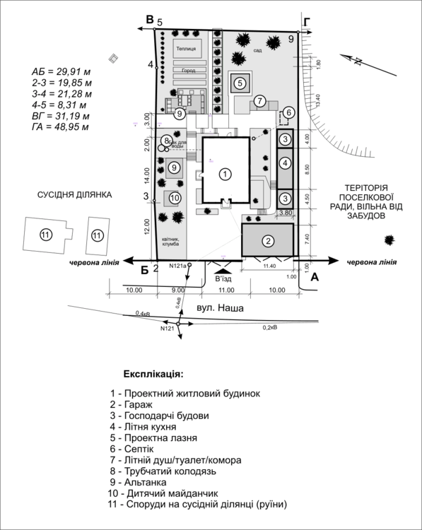
Alisa_N Опубліковано: 24 лютого 2018 Поділитись Опубліковано: 24 лютого 2018 Всем добрый день. Жили в городе, в своей двухкомнатной квартире на четвертом этаже. О своем доме не думали, пока у нас не образовалась стайка из четырех собачек: сперва участвовали в выставках собак, потом потеряли к этому делу интерес. Собачки некрупные - китайские хохлатые (все мальчики). В квартире они не особо напрягали (настоящие собаки-компаньоны), но наводили на мысль, что в своем доме и дворе им будет комфортнее. Да и мы с возрастом стали посматривать в сторону частных домов недалеко от Харькова. После многочисленных поездок и мук выбора нашли искомое: старый, но еще крепкий дом на участке в 15 соток. Плюс еще 18 соток старого сада в торце участка. Справа - овраг, слева - заброшенный участок (хозяева живут в другом месте). Вроде как некая изолированность и наши собаки никому не мешают. Электричество - 3 фазы, 12 кВ. Газ подводить не планируем. Двухэтажный дом очень не хотела, но участок со склоном диктует свои условия. Вот получился такой проект. Первый этаж (цокольный) - технический, основная жизнь планируется на втором этаже. Первый этаж - монолитный ж/б, перекрытия - плиты ж/б, второй этаж - газобетон 400 D400, перекрытия второго - по деревянным балкам. Крышу муж хочет полувальмовую, я бы ограничилась двускатной. Грунт - плотная глина разных цветов. Уровень грунтовых вод - низкий (более 6 метров.) Направление склона - с запада на восток - как бы по диагонали участка. Основное проживание - два взрослых человека и четыре собачки. В гости приезжают два женатых сына и двое внуков. На месте нового дома сейчас стоит старый. Поэтому планируем сперва построить летнюю кухню с сараями. А потом строить основной дом. Пока есть время окончательно скорректировать планировку. З.Ы. Балконы не предлагать. Посилання на коментар Поділитися на інших сайтах More sharing options...
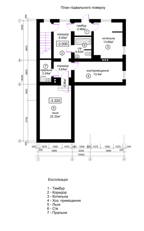
Технология Строительства Опубліковано: 25 лютого 2018 Поділитись Опубліковано: 25 лютого 2018 На месте нового дома сейчас стоит старый. Поэтому планируем сперва построить летнюю кухню с сараями. А потом строить основной дом. Пока есть время окончательно скорректировать планировку. 1. Много очень стен=) Как то корректировать нужно, стараться уложится по меньше; 2. Помещения 2, 2.03, 1.72, 6 м2 много помещений который не функциональны вообще; 3. Коридор 14.55 м2 - бесполезная огромная площадь, по сравнения с каютами в пункте №2; 4. Лестница прямая - много несущих стен параллельно лестницы, хотя из-за нее Вам надо, что бы несущие стены были перпендикулярные, тогда плиты будут укладывать легче намного, если для деревянного от оси 4 до оси 2 - 6.9 м - для дерева желательно пролеты до 6 м, придется делать 2 несущую стену вдоль коридора. - опять же удорожание; 5. Кровля китайский стиль. Если нравится, оставляйте. Все ровно вальмовая смотрелась бы красивее=), или плоская и переходить на стиль хай тек; 6. Без обид=). Вообще, что по экономики и по несущих конструкций не продуманно! + каюты по 2 м2...... Предлагаю начинать все сначала! Дорогой и нерациональный проект получится. Хотя прикол дома на склоне с подвалом идея хорошая и правильная! 7. Вопросы вентиляции - много помещений закрытых, в которых обязательно необходимая вентиляция! 4 Посилання на коментар Поділитися на інших сайтах More sharing options...
teonit Опубліковано: 25 лютого 2018 Поділитись Опубліковано: 25 лютого 2018 Все зависит от образа жизни, но я не представляю как это - идти в гостинную и кухню мимо спален. Спальни вообще должны быть от гостинной подальше - интимная зона, как-никак. 1 Посилання на коментар Поділитися на інших сайтах More sharing options...
doberR Опубліковано: 25 лютого 2018 Поділитись Опубліковано: 25 лютого 2018 идти в гостинную и кухню мимо спале верное замечание! кухню хочется ближе к входу и с окном на калитку/вход. Еще - нет желания объединить в один блок летнюю кухню, уличный душ и баню? А как Вы планируете обслуживать септик? в глубине участка? пысы. шепните на ушко - каков сакральный смысл именно ЛЕТНЕЙ кухни? или это помещение с дровяной печкой, мангалом, барбекю - вариант гостевого дома? Посилання на коментар Поділитися на інших сайтах More sharing options...
lorien Опубліковано: 25 лютого 2018 Поділитись Опубліковано: 25 лютого 2018 сделайте нормальные санузлы. Или они для хохлатых предназначены? Дом на склоне это супер. Ландшафт, бассейн можно прикольно оформить. У вас нет ничего((. А планируовку участка делал закоренелый квартирный житель? Посилання на коментар Поділитися на інших сайтах More sharing options...
архітектор Опубліковано: 25 лютого 2018 Поділитись Опубліковано: 25 лютого 2018 эскиз застройки наводит ассоциации даже не с квартирным проектировщиком, а с хаотичной сельской застройкой, которую перенесли на бумагу, как обмерщики из БТИ. Ни технической, ни эстетической составляющей нет. Возможно, так стояла задача изначально, но не видно пока здесь красивого дома. Посилання на коментар Поділитися на інших сайтах More sharing options...
irina1969 Опубліковано: 25 лютого 2018 Поділитись Опубліковано: 25 лютого 2018 у меня дом на ( в ) склоне и ваша мотивация мне понятна, но если у Вас на первом (цокольном) этаже нет жилых помещений, то зачем Вам там ванная комната с полноценной ванной ? 1 Посилання на коментар Поділитися на інших сайтах More sharing options...
Alisa_N Опубліковано: 25 лютого 2018 Автор Поділитись Опубліковано: 25 лютого 2018 Расположение строений на плане продумано и для нас удобно. То, что сейчас просто размечено на плане не говорит о том, что там не будет эстетики. Старый сад довольно близко подходит к дому, некоторые деревья планируем убирать по мере необходимости. Крыши остальных строений односкатные, поэтому я тоже рассматривала возможность односкатной крыши основного дома. Чтобы было все в одном стиле. Еще думаю. Основной вход (для гостей) планируется тот, что с левой стороны. Обилие собак в доме предусматривает их постоянный выгул. Поскольку бесконтрольный выгул нежелателен, то будет отведена специальная зона (скорее всего крытая), с возможностью легкой уборки. Для собак отведена также "рабочая комната" справа, где можно закрыть собак на время отъездов и в присутствии гостей, ну и стрижка, бритье, расчесывание и другая обработка. Верхнюю часть комнаты займут зеленые растения, нижнюю - собаки (ага, зоопарк). Вход рядом с "собачьей" и будет служить для быстрого выгула и обработки собак после прогулки. Поскольку за компьютерами мы проводим гораздо больше времени, чем на кухне, то и лицезреть входные ворота удобнее из рабочей комнаты. Ну и с видеокамер. Летняя кухня только так называется. Сперва будет вместо основного жилья, потом перейдет в разряд гостевого дома. Септик может обслуживаться как со стороны оврага (есть возможность подогнать машину довольно близко), так и есть второй проезд со стороны соседей. Предусмотрены две беседки: одна, небольшая, рядом с детской площадкой, вторая - побольше (возможно, частично застекленная) - барбекю, шашлыки - за домом. Баня еще под вопросом - мы не особые любители, дети просят. Небольшой бассейн возможно будет перед баней. Сейчас там пока растут старые деревья - яблоня и абрикос. Даже если нижний этаж не жилой, почему там не может быть дополнительный с/у? Ванну любит сын, мы предпочитаем душ. 1 Посилання на коментар Поділитися на інших сайтах More sharing options...
мастерок Опубліковано: 25 лютого 2018 Поділитись Опубліковано: 25 лютого 2018 Ваши условия и Ваш дом очень похожи на мои, у меня перепад высоты под пятном дома 2,5 метра и точно такой же цоколь с окнами.Со всем можно смирится и жить,но единственное за что меня до сих пор пиляет жена,что я сделал точно как и у Вас кухню в конце всего дома проходя через зал с видом во двор.А должна она быть там где у Вас помещение № 8.И спустя 10 лет жизни в доме мне пришлось делать ещё одну кухню в цоколе,у Вас это котельня,это аналог Вашей летней кухни,и я таки чувствую что жена меня доканает и я перенесу основную кухню в комнату № 8. Кстати,в цоколе у меня душ,так за 13 лет им не пользовались ни разу,лишь очень редко унитазом и рукомойником. 3 Посилання на коментар Поділитися на інших сайтах More sharing options...
Технология Строительства Опубліковано: 25 лютого 2018 Поділитись Опубліковано: 25 лютого 2018 Расположение строений на плане продумано и для нас удобно. То, что сейчас просто размечено на плане не говорит о том, что там не будет эстетики. Старый сад довольно близко подходит к дому, некоторые деревья планируем убирать по мере необходимости. Крыши остальных строений односкатные, поэтому я тоже рассматривала возможность односкатной крыши основного дома. Чтобы было все в одном стиле. Еще думаю. Основной вход (для гостей) планируется тот, что с левой стороны. Обилие собак в доме предусматривает их постоянный выгул. Поскольку бесконтрольный выгул нежелателен, то будет отведена специальная зона (скорее всего крытая), с возможностью легкой уборки. Для собак отведена также "рабочая комната" справа, где можно закрыть собак на время отъездов и в присутствии гостей, ну и стрижка, бритье, расчесывание и другая обработка. Верхнюю часть комнаты займут зеленые растения, нижнюю - собаки (ага, зоопарк). Вход рядом с "собачьей" и будет служить для быстрого выгула и обработки собак после прогулки. Поскольку за компьютерами мы проводим гораздо больше времени, чем на кухне, то и лицезреть входные ворота удобнее из рабочей комнаты. Ну и с видеокамер. Летняя кухня только так называется. Сперва будет вместо основного жилья, потом перейдет в разряд гостевого дома. Септик может обслуживаться как со стороны оврага (есть возможность подогнать машину довольно близко), так и есть второй проезд со стороны соседей. Предусмотрены две беседки: одна, небольшая, рядом с детской площадкой, вторая - побольше (возможно, частично застекленная) - барбекю, шашлыки - за домом. Баня еще под вопросом - мы не особые любители, дети просят. Небольшой бассейн возможно будет перед баней. Сейчас там пока растут старые деревья - яблоня и абрикос. Даже если нижний этаж не жилой, почему там не может быть дополнительный с/у? Ванну любит сын, мы предпочитаем душ. Зачем Вы написали на форуме? К критике и слушать советы Вы не готовы, потому что не хотите=( Посилання на коментар Поділитися на інших сайтах More sharing options...
lorien Опубліковано: 25 лютого 2018 Поділитись Опубліковано: 25 лютого 2018 Если Вас все устраивает зачем тема? Уберите 7 вглубь или соедините с 3. Зачем эти минискворечники? Из какой точки у вас будет карсивый обзор? Из кухни? Нет. Из беседки? Нет. Посилання на коментар Поділитися на інших сайтах More sharing options...
Alisa_N Опубліковано: 25 лютого 2018 Автор Поділитись Опубліковано: 25 лютого 2018 от оси 4 до оси 2 - 6.9 м - для дерева желательно пролеты до 6 м От оси 2 до оси 4 - около 6 метров 3. Коридор 14.55 м2 - бесполезная огромная площадь, по сравнения с каютами в пункте №2; Где еще поиграть в догонялки стае веселых энергичных собак? На кухне, в гостиной или в спальне? 7. Вопросы вентиляции - много помещений закрытых, в которых обязательно необходимая вентиляция! Система вентиляции-кондиционирования предусмотрена. Добавлено через 4 минуты Уберите 7 вглубь или соедините с 3. Зачем эти минискворечники? 7 уже давно построена. Если даже ее перенести вглубь, то обслуживание - только вычерпывание ведром или с вертолета, подъезд там невозможен из-за перепада высот. Посилання на коментар Поділитися на інших сайтах More sharing options...
lorien Опубліковано: 25 лютого 2018 Поділитись Опубліковано: 25 лютого 2018 7 уже давно построена. Если даже ее перенести вглубь, то обслуживание - только вычерпывание ведром или с вертолета, подъезд там невозможен из-за перепада высот. по секрету расскажу. Раз в три-четыре года возьмете дренажный насос за 1000 грн и перекачаете в основную яму если машина не достанет. Посилання на коментар Поділитися на інших сайтах More sharing options...
Alisa_N Опубліковано: 25 лютого 2018 Автор Поділитись Опубліковано: 25 лютого 2018 Зачем Вы написали на форуме? К критике и слушать советы Вы не готовы, потому что не хотите=( Хм, я просто отвечаю на возникающие вопросы. Пытаюсь объяснить мотивы. Если это запрещено на форуме, сорри. Всем спасибо за ваши мнения. Посилання на коментар Поділитися на інших сайтах More sharing options...
lorien Опубліковано: 25 лютого 2018 Поділитись Опубліковано: 25 лютого 2018 Всем спасибо за ваши мнения. Пожалуйста Посилання на коментар Поділитися на інших сайтах More sharing options...
Технология Строительства Опубліковано: 25 лютого 2018 Поділитись Опубліковано: 25 лютого 2018 От оси 2 до оси 4 - около 6 метров Да, сор, недосмотрел=) Где еще поиграть в догонялки стае веселых энергичных собак? На кухне, в гостиной или в спальне? Во дворе мб?=) Посилання на коментар Поділитися на інших сайтах More sharing options...
Alisa_N Опубліковано: 26 лютого 2018 Автор Поділитись Опубліковано: 26 лютого 2018 Да, сор, недосмотрел=) Во дворе мб?=) Может быть, только собаки голые, изнеженные. Зимой гулять выходят на 2-3 мин. Даже в комбезах. Посилання на коментар Поділитися на інших сайтах More sharing options...
lorien Опубліковано: 26 лютого 2018 Поділитись Опубліковано: 26 лютого 2018 что нарешали? Посилання на коментар Поділитися на інших сайтах More sharing options...
ПГС-Проект Опубліковано: 27 лютого 2018 Поділитись Опубліковано: 27 лютого 2018 перепад высоты под пятном дома 2,5 метра Старый город? Посилання на коментар Поділитися на інших сайтах More sharing options...
vladimir_arch Опубліковано: 27 лютого 2018 Поділитись Опубліковано: 27 лютого 2018 Пока есть время окончательно скорректировать планировку. Этаж, который назван подвальным – на самом деле цокольный. И дело тут не в имени, а в возможностях – там вполне может быть жильё, если не сегодня, то завтра. Для этого надо то помещение, котрое названо хозяйственным, занять топочной, а площадь топочной использовать сегодня – как заблагорассудится, а завтра - …. Оборудование топочной потом перенести будет сложнее, чем вынести стеллажи или др. хоз. Оборудование. Хотя, возможно, я не всё понял из показанного материала, и есть некие замыслы и намерения, требующие уже сегодня именно такого расклада. Посилання на коментар Поділитися на інших сайтах More sharing options...
Alisa_N Опубліковано: 28 лютого 2018 Автор Поділитись Опубліковано: 28 лютого 2018 Мы не планируем подключать газ, поэтому топочную разместили рядом со входом, чтобы облегчить доставку топлива. Планируется пиролизный котел с термоаккумулятором. Назначение хозкомнаты - типа кладовая, хотя думала там разместить топчанчик, на предмет размещения большого количества гостей (летом). Сын хочет там тренажер, сестра предлагает разместить сауну. ))) Цокольный этаж планируется отапливаемым, но с регулируемыми батареями, чтобы поддерживать приемлемую температуру. Посилання на коментар Поділитися на інших сайтах More sharing options...
jcb-19 Опубліковано: 7 березня 2018 Поділитись Опубліковано: 7 березня 2018 Скажите, вы же себе окончательно решили что ничего переделывать не будете? Правильно? Т.е. советы давать бессмысленно Посилання на коментар Поділитися на інших сайтах More sharing options...
Andrei constructor Опубліковано: 7 березня 2018 Поділитись Опубліковано: 7 березня 2018 Одномаршевая лестница с большим количеством ступеней в доме будет очень неудобным элементом. Основное проживание в доме планируется на первом этаже, тогда как основной санузел с ванной вынесен в цокольный этаж. Внешне дом с полувальмовой кровлей выглядит не гармонично. Часто кровлю домов на склоне делают плоской-совмещенной. Этот вариант сэкономит вам бюджет и такую кровлю можно эксплуатировать (терраса или площадка для солнечных батарей/конвекторов). 1 Посилання на коментар Поділитися на інших сайтах More sharing options...
Рекомендовані повідомлення
Створіть акаунт або увійдіть у нього для коментування
Ви маєте бути користувачем, щоб залишити коментар
Створити акаунт
Зареєструйтеся для отримання акаунта. Це просто!
Зареєструвати акаунтУвійти
Вже зареєстровані? Увійдіть тут.
Увійти зараз