t-projekt Опубліковано: 3 березня 2018 Поділитись Опубліковано: 3 березня 2018 Здравствуйте, Форумчане. Вашему вниманию предлагается на обозрение воплощение проекта интересного дома в Английском стиле с современными акцентами. Краткая предыстория. Заказчики обратились к нам уже с готовым дизайнерским решением экстерьера фасада с задачей разработки рабочего проекта и воплощения его в жизнь. В процессе разработки рабочей документации и согласования основных моментов с Заказчиком, было решено отказаться от строительства бассейна в здании в пользу его открытого уличного варианта. Основные характеристики проекта следующие: Площадь участка - 0,013 га Площадь дома - 300 м2 Этажность - один полноценный этаж + мансардный Фундамент – сборно-монолитный Пол 1-го этажа - плита по грунту Стены – красный кирпич 380мм и 120мм Перекрытие – сборные железобетонные плиты Конструкция крыши – комбинированная деревянно-металлическая стропильная система Кровельное покрытие - битумная черепица Утепление стен – минеральная вата 120мм Облицовка фасада – декоративная плитка, декоративные линейные элементы, декоративная штукатурка. Строительство начато 13.08.2016 года. Фото буду выкладывать поэтапно по мере возможности. 4 Посилання на коментар Поділитися на інших сайтах More sharing options...
t-projekt Опубліковано: 3 березня 2018 Автор Поділитись Опубліковано: 3 березня 2018 Подготовительные работы. Расчистка участка. Земляные работы 13.08.2016 Посилання на коментар Поділитися на інших сайтах More sharing options...
mastervovik Опубліковано: 3 березня 2018 Поділитись Опубліковано: 3 березня 2018 Вашему вниманию предлагается на обозрение воплощение проекта интересного дома в Английском стиле с современными акцентами. А чего в нем английского? :D Ну а вообще симпатично, понаблюдаю Посилання на коментар Поділитися на інших сайтах More sharing options...
vadimv Опубліковано: 3 березня 2018 Поділитись Опубліковано: 3 березня 2018 А чего в нем английского? :DRange Rover 14 Посилання на коментар Поділитися на інших сайтах More sharing options...
anabioz Опубліковано: 3 березня 2018 Поділитись Опубліковано: 3 березня 2018 Площадь участка - 0,013 га Площадь дома - 300 м2 Может все-таки 0,13 ? И даже на 13-ти сотках, в таком окружении, как на фото - возникает мысль, люди, Вы серьезно (дом с бассейном открытого уличного варианта в Английском стиле) ???? 9 Посилання на коментар Поділитися на інших сайтах More sharing options...
lastandr Опубліковано: 3 березня 2018 Поділитись Опубліковано: 3 березня 2018 Подготовительные работы. Расчистка участка. Земляные работы 13.08.2016 Оч информативно и познавательно...:D Посилання на коментар Поділитися на інших сайтах More sharing options...
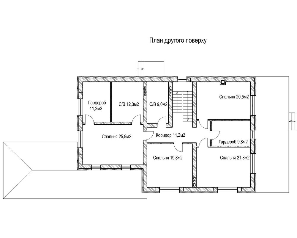
t-projekt Опубліковано: 4 березня 2018 Автор Поділитись Опубліковано: 4 березня 2018 Планировки дома, может кому-то будет интересно. 2 Посилання на коментар Поділитися на інших сайтах More sharing options...
t-projekt Опубліковано: 4 березня 2018 Автор Поділитись Опубліковано: 4 березня 2018 Заканчиваем вязку арматуры фундаментной пятки и принимаем бетон -25.08.2016 1 Посилання на коментар Поділитися на інших сайтах More sharing options...
lastandr Опубліковано: 4 березня 2018 Поділитись Опубліковано: 4 березня 2018 А не мелковато для таких грунтов фундамент заложили ? 1 Посилання на коментар Поділитися на інших сайтах More sharing options...
Музей Опубліковано: 4 березня 2018 Поділитись Опубліковано: 4 березня 2018 Радует, что люди строят такие дома. Я лишь не могу понять, почему планируя бассейн, отказались от счастливой возможности иметь вид на єтот бассейн с террасы и из окон гостиной. Более того, в зоне видимости бассейна я вижу глухие стены, как первого, так и второго этажей. Очень интересно увидеть план участка с хозпостройками и будущими садами, газонами. 2 Посилання на коментар Поділитися на інших сайтах More sharing options...
tarick Опубліковано: 4 березня 2018 Поділитись Опубліковано: 4 березня 2018 Радует, что люди строят такие дома. Я лишь не могу понять, почему планируя бассейн, отказались от счастливой возможности иметь вид на єтот бассейн с террасы и из окон гостиной. Как я понял - бассейн это вот та пристройка справа на рендерах. Посилання на коментар Поділитися на інших сайтах More sharing options...
lastandr Опубліковано: 4 березня 2018 Поділитись Опубліковано: 4 березня 2018 На представленных планах бассейна вообще-то нэту, он воде как присутствует только на картинке фасада ... 2 Посилання на коментар Поділитися на інших сайтах More sharing options...
t-projekt Опубліковано: 5 березня 2018 Автор Поділитись Опубліковано: 5 березня 2018 А не мелковато для таких грунтов фундамент заложили ? От существующего уровня земли фундамент заложен на 90+ см, учитывая небольшие перепады. По проекты заложение фундамента минимум 120см от будущего уровня планировки участка. Участок планируется немного подниматься. Прикрепил конструкцию фундаментного узла для наглядности. По геологии глубина промерзания грунтов 100 см. 1 Посилання на коментар Поділитися на інших сайтах More sharing options...
t-projekt Опубліковано: 5 березня 2018 Автор Поділитись Опубліковано: 5 березня 2018 Радует, что люди строят такие дома. Я лишь не могу понять, почему планируя бассейн, отказались от счастливой возможности иметь вид на єтот бассейн с террасы и из окон гостиной. Более того, в зоне видимости бассейна я вижу глухие стены, как первого, так и второго этажей. Очень интересно увидеть план участка с хозпостройками и будущими садами, газонами. Никто не отказался от вида на бассейн, все наоборот. Изначально бассейн был в здании, но в процессе проектирования и согласований, Заказчик отказался от крытого бассейна в пользу открытого. Это позволило освободить больше места на участке и открыть вид из гостиной и террасы на бассейн. 1 Посилання на коментар Поділитися на інших сайтах More sharing options...
t-projekt Опубліковано: 5 березня 2018 Автор Поділитись Опубліковано: 5 березня 2018 Как я понял - бассейн это вот та пристройка справа на рендерах. Да, так планировалось. Но после изменений (в пользу открытого бассейна) рендеры не переделывались. Посилання на коментар Поділитися на інших сайтах More sharing options...
lorien Опубліковано: 5 березня 2018 Поділитись Опубліковано: 5 березня 2018 Я лишь не могу понять, почему планируя бассейн, отказались от счастливой возможности иметь вид на єтот бассейн с террасы и из окон гостиной. это абсолютно не нужно. только в американских фильмах 1 Посилання на коментар Поділитися на інших сайтах More sharing options...
tansss Опубліковано: 5 березня 2018 Поділитись Опубліковано: 5 березня 2018 От существующего уровня земли фундамент заложен на 90+ см, учитывая небольшие перепады. По проекты заложение фундамента минимум 120см от будущего уровня планировки участка. Участок планируется немного подниматься. Прикрепил конструкцию фундаментного узла для наглядности. По геологии глубина промерзания грунтов 100 см. А что будет служить основанием для перегородок, как решается это в предложенном сечении? или они будут и ГКЛ или др? Посилання на коментар Поділитися на інших сайтах More sharing options...
teonit Опубліковано: 5 березня 2018 Поділитись Опубліковано: 5 березня 2018 это абсолютно не нужно. только в американских фильмах Т.е. у нас не принято присматривать за детьми, которые играют в бассейне? Посилання на коментар Поділитися на інших сайтах More sharing options...
t-projekt Опубліковано: 5 березня 2018 Автор Поділитись Опубліковано: 5 березня 2018 (змінено) А что будет служить основанием для перегородок, как решается это в предложенном сечении? или они будут и ГКЛ или др? Перегородки кирпичные 120мм. Под перегородки предусмотрены фундаментные балки неглубокого заложения. Змінено 5 березня 2018 користувачем t-projekt Посилання на коментар Поділитися на інших сайтах More sharing options...
t-projekt Опубліковано: 5 березня 2018 Автор Поділитись Опубліковано: 5 березня 2018 Разгрузка и монтаж фундаментных блоков 27-31.08.2016 1 Посилання на коментар Поділитися на інших сайтах More sharing options...
lorien Опубліковано: 5 березня 2018 Поділитись Опубліковано: 5 березня 2018 Т.е. у нас не принято присматривать за детьми, которые играют в бассейне? у Вас есть бассейн? Обычно, летом, бассейн и гостинная не совместимы. Зимой эти вещи не совместимы по другим причинам. что касается балкона и бассейна, то это вообще....Большую часть времени года бассейн не используется Посилання на коментар Поділитися на інших сайтах More sharing options...
teonit Опубліковано: 5 березня 2018 Поділитись Опубліковано: 5 березня 2018 ...бассейн и гостинная не совместимы... что касается балкона и бассейна, то это вообще....Большую часть времени года бассейн не используется Речь шла о терассе. И не важно как часто используется бассейн - если он есть, и если в нем могут находиться люди, требующие внимания (дети, взрослые почтенного возраста, взрослые с повышенными физическими потребностями) - нужно предусмотреть площадку для наблюдателя. И терасса в этом случае будет очень удобна. Посилання на коментар Поділитися на інших сайтах More sharing options...
Скромный прораб Опубліковано: 5 березня 2018 Поділитись Опубліковано: 5 березня 2018 Перегородки кирпичные 120мм. Под перегородки предусмотрены фундаментные балки неглубокого заложения. А так все хорошо начиналось. И вдруг перегородки в полкирпича, в плане звукоизоляции более чем странное решение(((. Ну ладно на втором этаже, там особых проблем не возникнет, но на первом - спальня, кабинет, санузел, коридор... Чем вызвано, неужели экономией? Посилання на коментар Поділитися на інших сайтах More sharing options...
t-projekt Опубліковано: 5 березня 2018 Автор Поділитись Опубліковано: 5 березня 2018 А так все хорошо начиналось. И вдруг перегородки в полкирпича, в плане звукоизоляции более чем странное решение(((. Ну ладно на втором этаже, там особых проблем не возникнет, но на первом - спальня, кабинет, санузел, коридор... Чем вызвано, неужели экономией? Вполне адекватное решение. Звукоизоляция это понятие субъективное - каждому своё, кому-то и 380 мм стены будет недостаточно. В конце концов это не общага и за стеной не чекнутые соседи живут, да и перегородки не из газоблока десятки. Первый этаж здесь не спальная зона, а спальня на первом этаже гостевая ( по крайней мере так задумывалось). 1 Посилання на коментар Поділитися на інших сайтах More sharing options...
tansss Опубліковано: 5 березня 2018 Поділитись Опубліковано: 5 березня 2018 (змінено) Звукоизоляция это понятие субъективное - каждому своё Это заблуждение, звукоизоляция - значение нормативное, для перегородок 52дБ. Пол кирпича - не соответствуют норме! Змінено 5 березня 2018 користувачем tansss 1 Посилання на коментар Поділитися на інших сайтах More sharing options...
Рекомендовані повідомлення
Створіть акаунт або увійдіть у нього для коментування
Ви маєте бути користувачем, щоб залишити коментар
Створити акаунт
Зареєструйтеся для отримання акаунта. Це просто!
Зареєструвати акаунтУвійти
Вже зареєстровані? Увійдіть тут.
Увійти зараз