dushes86 Опубліковано: 9 березня 2018 Поділитись Опубліковано: 9 березня 2018 Прожив в родительском доме около шести лет, отремонтировав его и благоустроив, мы с женой, не сговариваясь друг с другом, пришли к выводу, что для нас он по-прежнему "родительский", а не наш. Признавшись в этом друг другу, мы приняли решение: искать участок и строить свой дом. В этой ветке я планирую вести некий дневник строительства в надежде получить немало дельных советов от более опытных форумчан, а также вернуть им некий долг за их труд по написанию историй их строек, которыми я без стеснения наслаждаюсь вот уже целый год 19 Посилання на коментар Поділитися на інших сайтах More sharing options...
dushes86 Опубліковано: 9 березня 2018 Автор Поділитись Опубліковано: 9 березня 2018 В качестве анонса. Что строим: Кирпичный дом 160м2, 2 этажа. Стилистика взаимствована у американского архитектора Ф.Л. Райта. Что имеем: участок 15 квадратных соток в Харькове. Немного предварительных рендеров фасадов: 6 Посилання на коментар Поділитися на інших сайтах More sharing options...
dushes86 Опубліковано: 9 березня 2018 Автор Поділитись Опубліковано: 9 березня 2018 Немного лирики про участок, точнее, его поиски. Поиски начались год назад, зимой. Критерии - город, доступность городского транспорта, наличие инфраструктуры. Изначально искали ветхие дома под снос по адекватной цене в удобных районах. Сайты типа ОЛХ мониторились каждый день на предмет новых предложений несколько месяцев подряд. Было просмотрено несколько участков, которые в той или иной степени подходили под наши требования. Но, к сожаленью, ни один из них не удовлятворял наши пожелалия на столько, сколько это было бы нужно для покупки. То узкий, то длинный, то на насыпи над оврагом, то далеко до дороги, то грязно, и т.д. и т.п. В итоге, спустя полгода, в начале лета попалось объявление: участок в городе, 15 соток. Цена великовата по нашему бюджету, но смотреть все же решили. Посмотрели. Оказалось оно. Встретились с хозяином, дедулей. Поторговались. Дали задаток. Начали ждать оформления. Поехали в отпуск. По возвращении новость: дедуля, владелец, умер. Варианта два - или отказаться от покупки, в надежде, что может быть, через какое-то время, наследники вернут задаток, и приступать к новым поискам, или ждать вступления в наследства супруги покойного и купить у нее. И то, и то - рисковое решение. Посоветовавшись с женой, взвесив за и против, приняли решение: второй вариант, т.е. ждать полгода. Как показала жизнь, решение оказалось верным: сделка благополучно состоялась, спустя полгода, этой зимой. Пару фоток участка летом и зимой: Далі буде... 8 Посилання на коментар Поділитися на інших сайтах More sharing options...
ARCH INNOVATION Опубліковано: 9 березня 2018 Поділитись Опубліковано: 9 березня 2018 Как бы всё норм. Но вопрос, не высоковата ли линия навеса для авто? Посилання на коментар Поділитися на інших сайтах More sharing options...
dushes86 Опубліковано: 9 березня 2018 Автор Поділитись Опубліковано: 9 березня 2018 Как бы всё норм. Но вопрос, не высоковата ли линия навеса для авто? Меня и самого немного смущал этот момент - 3.5м высоты. Но поскольку он совмещен с навесом над парадным входом, к которому ведут ступении, другого варианта я не увидел, и посчитал, что это приемлемо. 1 Посилання на коментар Поділитися на інших сайтах More sharing options...
Музей Опубліковано: 9 березня 2018 Поділитись Опубліковано: 9 березня 2018 Меня и самого немного смущал этот момент - 3.5м высоты. Но поскольку он совмещен с навесом над парадным входом, к которому ведут ступении, другого варианта я не увидел, и посчитал, что это приемлемо. Высоко. Мне кажется, если опустить навес, то будет только лучше. У Райта многоуровневые кровли. А вот, вопросы с премыканиями и прочие технические детали могут возникнуть. 2 Посилання на коментар Поділитися на інших сайтах More sharing options...
AudioFil Опубліковано: 9 березня 2018 Поділитись Опубліковано: 9 березня 2018 А что если опустить уровень навеса, перенести гараж с левой части участка на правую и объединить их под одной крышей? 3 Посилання на коментар Поділитися на інших сайтах More sharing options...
Музей Опубліковано: 9 березня 2018 Поділитись Опубліковано: 9 березня 2018 А что если опустить уровень навеса, перенести гараж с левой части участка на правую и объединить их под одной крышей? Поддержу. Дома Райта стремятся вширь. За счет гаража архитектура будет интересней. 3 Посилання на коментар Поділитися на інших сайтах More sharing options...
dushes86 Опубліковано: 9 березня 2018 Автор Поділитись Опубліковано: 9 березня 2018 Поддержу. Дома Райта стремятся вширь. За счет гаража архитектура будет интересней. Так нельзя сделать по пожарным нормам, учитывая расположение дома соседа справа. Либо пришлось бы двигать весь дом влево на ширину гаража, но при таком варианте получился бы затененный участок. Посилання на коментар Поділитися на інших сайтах More sharing options...
ARCH INNOVATION Опубліковано: 10 березня 2018 Поділитись Опубліковано: 10 березня 2018 Момент 2: рис 3. Что то мне не совсем нравится, как оборвали крышу (торец) над верандой. 2 Посилання на коментар Поділитися на інших сайтах More sharing options...
dushes86 Опубліковано: 10 березня 2018 Автор Поділитись Опубліковано: 10 березня 2018 Момент 2: рис 3. Что то мне не совсем нравится, как оборвали крышу (торец) над верандой. Соглашусь. Можете что-то посоветовать, чтобы избежать "среза" в торце? План кровли (вид сверху): Если есть идеи, как понихить крышу навеса для авто, буд рад услышать Посилання на коментар Поділитися на інших сайтах More sharing options...
ARCH INNOVATION Опубліковано: 10 березня 2018 Поділитись Опубліковано: 10 березня 2018 Соглашусь. Можете что-то посоветовать, чтобы избежать "среза" в торце? План кровли (вид сверху): [ATTACH]607009[/ATTACH] Если есть идеи, как понихить крышу навеса для авто, буд рад услышать Конечно есть, и для первого и второго случая. Основная концепция ясна и к ней притензий практически нет. Но есть куча мелочей из которых складывается восприятие композиции. А вот к ним оооочень много притензий. 1 Посилання на коментар Поділитися на інших сайтах More sharing options...
dushes86 Опубліковано: 10 березня 2018 Автор Поділитись Опубліковано: 10 березня 2018 Конечно есть, и для первого и второго случая. Основная концепция ясна и к ней притензий практически нет. Но есть куча мелочей из которых складывается восприятие композиции. А вот к ним оооочень много притензий. Если это не коммерческая тайна, поделитесь своими соображениями, как их можно подкорректировать. Посилання на коментар Поділитися на інших сайтах More sharing options...
ARCH INNOVATION Опубліковано: 10 березня 2018 Поділитись Опубліковано: 10 березня 2018 Если это не коммерческая тайна, поделитесь своими соображениями, как их можно подкорректировать. Так просто всего не описать, нужно с конкретными примерами и изображениями, что бы донести мысль. Но вы вряд ли захотите к нам приехать. Посилання на коментар Поділитися на інших сайтах More sharing options...
dushes86 Опубліковано: 10 березня 2018 Автор Поділитись Опубліковано: 10 березня 2018 Так просто всего не описать, нужно с конкретными примерами и изображениями, что бы донести мысль. Но вы вряд ли захотите к нам приехать. Давайте проще и более прямо. Если Вы можете подкрепить толковые замечания еще и дельным советом на форумских началах - дайте в этой ветке, будет полезно не только мне одному. Если Вы можете/хотите предложить коммерческие услуги по доводке моего проекта - напишите, пожалуйста в личку с ориентиром по стоимости такой услуги. 2 Посилання на коментар Поділитися на інших сайтах More sharing options...
Тюня Опубліковано: 10 березня 2018 Поділитись Опубліковано: 10 березня 2018 Вас не пугает длина ступенек на террасе - это каждую отделать - стоит немало Посилання на коментар Поділитися на інших сайтах More sharing options...
vadimv Опубліковано: 10 березня 2018 Поділитись Опубліковано: 10 березня 2018 Немного предварительных рендеров фасадов: [ATTACH]606968[/ATTACH] [ATTACH]606969[/ATTACH] [ATTACH]606970[/ATTACH] [ATTACH]606971[/ATTACH]А где планы? ИМХО, такой высокий навес над машиной нефункционален, он не будет защищать ни от солнца, ни от дождя. 2 Посилання на коментар Поділитися на інших сайтах More sharing options...
dushes86 Опубліковано: 10 березня 2018 Автор Поділитись Опубліковано: 10 березня 2018 Вас не пугает длина ступенек на террасе - это каждую отделать - стоит немало Их будет значительно меньше. Кроме того, во внешнем углу на террасе будет размещен очаг, что тоже не вошло в рендер. Добиться такой детализации от архитектора я не смог. Добавлено через 2 минуты А где планы? ИМХО, такой высокий навес над машиной нефункционален, он не будет защищать ни от солнца, ни от дождя. Вадим, планы будут, выложу вечером,не удивлен, что этот вопрос задали именно Вы По навесу, если есть предложения - давайте. С солнцем я планировал боротьсятширокими свесами кровли. Посилання на коментар Поділитися на інших сайтах More sharing options...
korsar_ Опубліковано: 10 березня 2018 Поділитись Опубліковано: 10 березня 2018 Ну наконец-то, покупка участка это большое дело, поздравляю, желаю безпроблемной стройки. Какой район города если не секрет? 1 Посилання на коментар Поділитися на інших сайтах More sharing options...
lorien Опубліковано: 10 березня 2018 Поділитись Опубліковано: 10 березня 2018 о пожарных нормах. 1. Да куча домов стоит с нарушениями 2. Эти нормы наверняка разрабатывались хх лет назад. И тогда была одна степень огнестойости, одни материалы, одни тепловые потоки. Сейчас иначе. Посилання на коментар Поділитися на інших сайтах More sharing options...
dushes86 Опубліковано: 10 березня 2018 Автор Поділитись Опубліковано: 10 березня 2018 Ну наконец-то, покупка участка это большое дело, поздравляю, желаю безпроблемной стройки. Какой район города если не секрет? Не секрет, район медкомплекса на 602м. Кулиничи Добавлено через 3 минуты о пожарных нормах. 1. Да куча домов стоит с нарушениями 2. Эти нормы наверняка разрабатывались хх лет назад. И тогда была одна степень огнестойости, одни материалы, одни тепловые потоки. Сейчас иначе. Возможно и так. Тем не менее они по-прежнему действуют. И давать взятки за то, чтобы кто-то потом закрыл глаза, не очень хочется. 1 Посилання на коментар Поділитися на інших сайтах More sharing options...
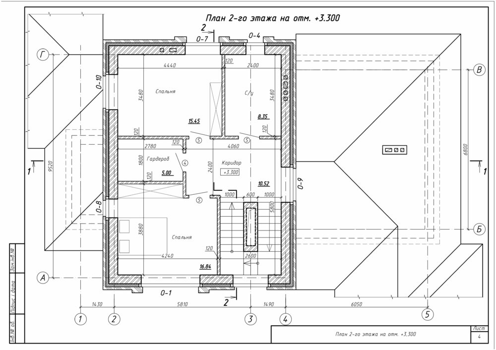
dushes86 Опубліковано: 10 березня 2018 Автор Поділитись Опубліковано: 10 березня 2018 Планировка: 2 Посилання на коментар Поділитися на інших сайтах More sharing options...
Тюня Опубліковано: 10 березня 2018 Поділитись Опубліковано: 10 березня 2018 Планировка: Очень здорово, все оптимизировано Мелкие вопросы есть Во многих местах неправильное , с моей точки зрения, открывание дверей Камина не будет? Расстановка мебели могла бы прояснить (дополнить) сюжет В главной спальне (где кровать) второе маленькое окно кажется лишним При входе можно было бы заменить комбинированную дверь на просто дверь и маленькое окно слева В вашем варианте двери стекло будет матовым скорее всего и света в коридоре будет мало, а окно помогло бы его осветить, и при покупке двери было бы проще / дешевле Напротив лестницы непонятный шкаф, я бы уже слева сделала фальшстеночку с той же глубиной и воткнула туда что-то более полноценное 1 Посилання на коментар Поділитися на інших сайтах More sharing options...
dushes86 Опубліковано: 10 березня 2018 Автор Поділитись Опубліковано: 10 березня 2018 (змінено) Очень здорово, все оптимизировано Мелкие вопросы есть Во многих местах неправильное , с моей точки зрения, открывание дверей Камина не будет? Расстановка мебели могла бы прояснить (дополнить) сюжет В главной спальне (где кровать) второе маленькое окно кажется лишним При входе можно было бы заменить комбинированную дверь на просто дверь и маленькое окно слева В вашем варианте двери стекло будет матовым скорее всего и света в коридоре будет мало, а окно помогло бы его осветить, и при покупке двери было бы проще / дешевле Напротив лестницы непонятный шкаф, я бы уже слева сделала фальшстеночку с той же глубиной и воткнула туда что-то более полноценное Да, двери будут правиться. Камин будет обязательно, для нас без него дом - не дом. Он будет размещаться в гостинной под лестницей. В напротив лестницы планируются открытые полки для вещиц, на которые приятно смотреть каждый день и которые не стыдно показать гостям На счет входной двери есть вопросы. В архитектуре развернули проект, требуя тамбур глубиной 1.4м. Пририсовал его как зря и переподал с тамбуром. Сейчас склоняюсь к двойной стеклянной двери - и света много, и тамбура избежать удастся. Расстановка мебели есть, но не окончательная. Выложу в скором времени, может кто-то что-то посоветует в смысле правок. Змінено 10 березня 2018 користувачем dushes86 Посилання на коментар Поділитися на інших сайтах More sharing options...
Тюня Опубліковано: 10 березня 2018 Поділитись Опубліковано: 10 березня 2018 Касин будет обязательно, для нас без него дом - не дом. Он будет размещаться в гостинной под лестницей. Смотрите, чтобы это не превратилось в какой-то очень сложный конструктив Дымоход гильзовать и он будет внутри лестницы? Посилання на коментар Поділитися на інших сайтах More sharing options...
Рекомендовані повідомлення
Створіть акаунт або увійдіть у нього для коментування
Ви маєте бути користувачем, щоб залишити коментар
Створити акаунт
Зареєструйтеся для отримання акаунта. Це просто!
Зареєструвати акаунтУвійти
Вже зареєстровані? Увійдіть тут.
Увійти зараз