STONEAGE Опубліковано: 11 липня 2018 Поділитись Опубліковано: 11 липня 2018 В качестве анонса. Что строим: Кирпичный дом 160м2, 2 этажа. Стилистика взаимствована у американского архитектора Ф.Л. Райта. Что имеем: участок 15 квадратных соток в Харькове. Немного предварительных рендеров фасадов: [ATTACH]606968[/ATTACH] [ATTACH]606969[/ATTACH] [ATTACH]606970[/ATTACH] [ATTACH]606971[/ATTACH] Вот начнём с начала, потом продолжу)) Скажи пожалуйста, уровень снеговой нагрузки в прериях и в Харькове одинаков? Ладно я понимаю плоский монолит - а-ля арабиан. Но, нафига эти 4%?!!!! Их всё одно ниХто не увидит, а деревянная стропилка не выдержит. Это чудо конструктива придётся ваять из 30-го двутавра (бабла немерянно!). Вот картинка то красивая - №1. Но БЕССМЫСЛЕННАЯ(((( Этот архитектурный ансамбль будет на краю села и на него будут смотреть в кирзовых сапогах стоя на пахоте? Или ширина улицы метров 20-ть?! Посилання на коментар Поділитися на інших сайтах More sharing options...
ARCH INNOVATION Опубліковано: 11 липня 2018 Поділитись Опубліковано: 11 липня 2018 Вот начнём с начала, потом продолжу)) Скажи пожалуйста, уровень снеговой нагрузки в прериях и в Харькове одинаков? Ладно я понимаю плоский монолит - а-ля арабиан. Но, нафига эти 4%?!!!! Их всё одно ниХто не увидит, а деревянная стропилка не выдержит. Это чудо конструктива придётся ваять из 30-го двутавра (бабла немерянно!). Вот картинка то красивая - №1. Но БЕССМЫСЛЕННАЯ(((( Этот архитектурный ансамбль будет на краю села и на него будут смотреть в кирзовых сапогах стоя на пахоте? Или ширина улицы метров 20-ть?! :lol: Нет, та 32-й швеллер сваренный двойной коробкой и залитый бетоном. 2 Посилання на коментар Поділитися на інших сайтах More sharing options...
dushes86 Опубліковано: 11 липня 2018 Автор Поділитись Опубліковано: 11 липня 2018 Вот начнём с начала, потом продолжу)) Скажи пожалуйста, уровень снеговой нагрузки в прериях и в Харькове одинаков? Ладно я понимаю плоский монолит - а-ля арабиан. Но, нафига эти 4%?!!!! Их всё одно ниХто не увидит, а деревянная стропилка не выдержит. Это чудо конструктива придётся ваять из 30-го двутавра (бабла немерянно!). Вот картинка то красивая - №1. Но БЕССМЫСЛЕННАЯ(((( Этот архитектурный ансамбль будет на краю села и на него будут смотреть в кирзовых сапогах стоя на пахоте? Или ширина улицы метров 20-ть?! Что такое 4% - не понял. Если это о наклоне скатов, то будет 15 градусов. С шириной улицы ты угадал, как раз 20 метров. ЗЫ: более правильная картинка глубже в ветке. Там arcinnovation постарался. Посилання на коментар Поділитися на інших сайтах More sharing options...
dushes86 Опубліковано: 12 липня 2018 Автор Поділитись Опубліковано: 12 липня 2018 К перемычкам и плитам готовы. Параллельно запускаем и воду/канализацию - завтра должны стартонуть. 4 Посилання на коментар Поділитися на інших сайтах More sharing options...
dushes86 Опубліковано: 15 липня 2018 Автор Поділитись Опубліковано: 15 липня 2018 Есть вопрос. На неделе планируем приступить к возведению сарая параллельно с домом. На нем облицовка пойдет сразу с черновым (полкирпича + полкирпича с перевязкой кладочной сеткой). Соответственно нужно определиться с цветом кладочного шва. Готовые смеси отбрасываю по причине их стоимости - на моих суммарно ~300м2 облицовки цена выходит как полстоимости самого клинкера. Потому остается два варианта - красить или оттенком коричневого, или оттенком черного (строительной сажей). Внимание вопрос: как угадать с пропорцией и как ее соблюдать на протяжении всей облицовки? И сажа - она вся одинаковая или есть нюансы? Посилання на коментар Поділитися на інших сайтах More sharing options...
digor_ua Опубліковано: 15 липня 2018 Поділитись Опубліковано: 15 липня 2018 Есть вопрос. На неделе планируем приступить к возведению сарая параллельно с домом. На нем облицовка пойдет сразу с черновым (полкирпича + полкирпича с перевязкой кладочной сеткой). Соответственно нужно определиться с цветом кладочного шва. Готовые смеси отбрасываю по причине их стоимости - на моих суммарно ~300м2 облицовки цена выходит как полстоимости самого клинкера. Потому остается два варианта - красить или оттенком коричневого, или оттенком черного (строительной сажей). Внимание вопрос: как угадать с пропорцией и как ее соблюдать на протяжении всей облицовки? И сажа - она вся одинаковая или есть нюансы? перетолченные угли для мангала еще вроде можно там в пределах одной пачки вопросов с одиновостью уже не будет точно Посилання на коментар Поділитися на інших сайтах More sharing options...
dushes86 Опубліковано: 16 липня 2018 Автор Поділитись Опубліковано: 16 липня 2018 Перекрылись. За один день успели смонтировать несущие балки, перемычки, плиты, накидать палеты с кирпичем и даже на выезде вложить кольца в канализационный колодец. Вышло 9 часов крана. Последний лень отпуска удался Зы: на второй фотке прокол под дорогой. На сам прокол у ребят ушло пару часов. 6 Посилання на коментар Поділитися на інших сайтах More sharing options...
Скромный прораб Опубліковано: 16 липня 2018 Поділитись Опубліковано: 16 липня 2018 Окошки не хилые выходят. Я помню, у меня в первом доме, на первом этаже по 1.85м были, тяжеловатые створки получились. У Вас 2+ метра высотой, под самый потолок. Ой, ой... Посилання на коментар Поділитися на інших сайтах More sharing options...
dushes86 Опубліковано: 16 липня 2018 Автор Поділитись Опубліковано: 16 липня 2018 Окошки не хилые выходят. Я помню, у меня в первом доме, на первом этаже по 1.85м были, тяжеловатые створки получились. У Вас 2+ метра высотой, под самый потолок. Ой, ой... Угу. Каменщики жалуются, что откосов много Само окно планируем с верхним глухарем делать. У нас в квартире окна 2.1м, створка соответстветственно около 2х. Собраны на рехау60. Одно окно как часы, другое притирает. Думаю, на профиле по-мощнее будет ок. Посилання на коментар Поділитися на інших сайтах More sharing options...
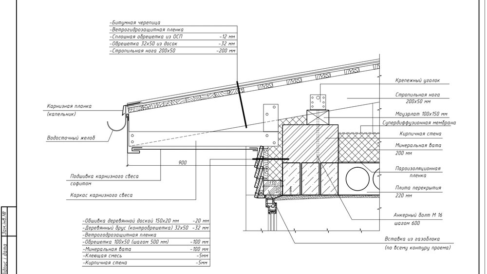
dushes86 Опубліковано: 17 липня 2018 Автор Поділитись Опубліковано: 17 липня 2018 Поиски бригады кровельщиков продолжаются. Возникают вопросы по пирогу кровли. В проекте нарисована такая последовательность, в порядке из помещения в сторону улицы: -1.Плиты перекрытия 2.пароизоляционная пленка 3.утеплитель 4.супердиф.мембрана 5.холодный чердак 6.стропила 7.обрешетка 8.осб 9.подкладочный ковер 10.битумная черепица Есть мнения, что: А. Пароизоляционную пленку#1 нужно монтировать ПОД перекрытием, А НЕ НАД. Б. Между стропилами и обрешеткой нужно добавить слой гидроизоляции с контрбрешеткой, при этом используя спец. скотч по стропилам В. Вентилировать и подкровельное пространство, и чердак через конек. При этом вентиляция фасада будет выходить или через чердак, или через подкровельное пространство. Прошу помощи/комментариев знающих людей по данным вопросам. Также прошу совета по пленкам/мембранам/скотчам, которые бы подходили под данный пирог кровли. Посилання на коментар Поділитися на інших сайтах More sharing options...
shneider_vova Опубліковано: 17 липня 2018 Поділитись Опубліковано: 17 липня 2018 как по мне, в проекте все верно. 1) зачем пленка ниже плит - они что, боятся пара? удобно будет расстелить по плитам пленку. 2) гидроизоляция мембраной при битумной кровле делается, кажется, только для мансард. Там и так 2 слоя непромокающего материала. 3) чердак надо вентилировать через фронтоны. Конек, боюсь, все не пропустит. 3 Посилання на коментар Поділитися на інших сайтах More sharing options...
dushes86 Опубліковано: 17 липня 2018 Автор Поділитись Опубліковано: 17 липня 2018 как по мне, в проекте все верно. 1) зачем пленка ниже плит - они что, боятся пара? удобно будет расстелить по плитам пленку. 2) гидроизоляция мембраной при битумной кровле делается, кажется, только для мансард. Там и так 2 слоя непромокающего материала. 3) чердак надо вентилировать через фронтоны. Конек, боюсь, все не пропустит. 1.Не будет ли между плитой и пленкой скапливаться влага, если пленка лежит сверху плиты? 2. Не будет ли образовываться конденсант, который стоит отводить по пленке за контур дома по капельнику в желоб водосточки? 3. Фронтонов нет, кровля вальмовая. Предлагают делать самодельный конек с большей пропускной способностью, и/или аэраторы. Посилання на коментар Поділитися на інших сайтах More sharing options...
shneider_vova Опубліковано: 17 липня 2018 Поділитись Опубліковано: 17 липня 2018 1.Не будет ли между плитой и пленкой скапливаться влага, если пленка лежит сверху плиты? 2. Не будет ли образовываться конденсант, который стоит отводить по пленке за контур дома по капельнику в желоб водосточки? 3. Фронтонов нет, кровля вальмовая. Предлагают делать самодельный конек с большей пропускной способностью, и/или аэраторы. 1) Там нет вообще условия для образования конденсата. Там обычная температура и влажность, как в комнате. 2) при холодном чердаке - по моему, нет 3) тогда да - самодельный конек - неплохое решение. 2 Посилання на коментар Поділитися на інших сайтах More sharing options...
dushes86 Опубліковано: 17 липня 2018 Автор Поділитись Опубліковано: 17 липня 2018 Спасибо за мнение. Может в мою ветку еще кто заглянет, кто в этой кровельной теме специалист, да подскажет чего... 1 Посилання на коментар Поділитися на інших сайтах More sharing options...
digor_ua Опубліковано: 17 липня 2018 Поділитись Опубліковано: 17 липня 2018 Поиски бригады кровельщиков продолжаются. Возникают вопросы по пирогу кровли. В проекте нарисована такая последовательность, в порядке из помещения в сторону улицы: -1.Плиты перекрытия 2.пароизоляционная пленка 3.утеплитель 4.супердиф.мембрана 5.холодный чердак 6.стропила 7.обрешетка 8.осб 9.подкладочный ковер 10.битумная черепица Есть мнения, что: А. Пароизоляционную пленку#1 нужно монтировать ПОД перекрытием, А НЕ НАД. Б. Между стропилами и обрешеткой нужно добавить слой гидроизоляции с контрбрешеткой, при этом используя спец. скотч по стропилам В. Вентилировать и подкровельное пространство, и чердак через конек. При этом вентиляция фасада будет выходить или через чердак, или через подкровельное пространство. Прошу помощи/комментариев знающих людей по данным вопросам. Также прошу совета по пленкам/мембранам/скотчам, которые бы подходили под данный пирог кровли. пункт а не знаю пункт б пои холодном чердаке у многих производителей опционален, но я бы сделал даже если бы у меня был холодный чердак. пункт в обязателен 1 Посилання на коментар Поділитися на інших сайтах More sharing options...
shneider_vova Опубліковано: 17 липня 2018 Поділитись Опубліковано: 17 липня 2018 Спасибо за мнение. Может в мою ветку еще кто заглянет, кто в этой кровельной теме специалист, да подскажет чего... Постучитесь к snitsar или roofinspector, они не откажут в консультации . И есть ветка "вопросы по кровле, не требующие отдельных тем", там повторите вопрос, там много кровельщиков Посилання на коментар Поділитися на інших сайтах More sharing options...
dushes86 Опубліковано: 17 липня 2018 Автор Поділитись Опубліковано: 17 липня 2018 Постучитесь к snitsar или roofinspector, они не откажут в консультации . И есть ветка "вопросы по кровле, не требующие отдельных тем", там повторите вопрос, там много кровельщиков К сожаленью, roofinspector как у Пушкина, "обещался, но доселе не собрался" (с) Посилання на коментар Поділитися на інших сайтах More sharing options...
Frostico Опубліковано: 17 липня 2018 Поділитись Опубліковано: 17 липня 2018 Поиски бригады кровельщиков продолжаются. Возникают вопросы по пирогу кровли. В проекте нарисована такая последовательность, в порядке из помещения в сторону улицы: -1.Плиты перекрытия 2.пароизоляционная пленка 3.утеплитель 4.супердиф.мембрана 5.холодный чердак 6.стропила 7.обрешетка 8.осб 9.подкладочный ковер 10.битумная черепица Есть мнения, что: А. Пароизоляционную пленку#1 нужно монтировать ПОД перекрытием, А НЕ НАД. Б. Между стропилами и обрешеткой нужно добавить слой гидроизоляции с контрбрешеткой, при этом используя спец. скотч по стропилам В. Вентилировать и подкровельное пространство, и чердак через конек. При этом вентиляция фасада будет выходить или через чердак, или через подкровельное пространство. Прошу помощи/комментариев знающих людей по данным вопросам. Также прошу совета по пленкам/мембранам/скотчам, которые бы подходили под данный пирог кровли. Первое что сразу бросается в глаза - это 200 мм утеплителя. Это очень мало. Минимум 250 мм, а лучше 300. В пироге стены, что это за кирпичная стена в 5 мм?? А)Пароизоляция, в первую очередь, нужна для того, чтобы защитить утеплитель от влаги, защищать плиты от влаги не обязательно) Б)Это было бы идеально. Только следует использовать контрбрус минимум 50 мм высотой для обеспечения вентиляции подкровельного пространства. Специальный скотч нужен при маленьких углах наклона кровли. В)Вентиляция подкровельного пространства нужна для отвода конденсата с конструкций кровли при перепадах температуры и защиты от перегрева кровельных материалов. Вентиляция чердака в любом случае нужна для того чтобы не было застоя воздуха и снижения температуры на чердаке. По битумной черепице есть специальные КТВ или коньковые аэраторы, в том числе самодельные. Для вентиляции чердака есть специальные сквозные проходные элементы разных видов, в том числе и с вентиляторами. Вот такого плана: www.tn.ru/catalogue/dopolnitelnye_elementy/aeroelement_ktv_tehnonikol/ www.tn.ru/catalogue/dopolnitelnye_elementy/plastikovaja_ventiljacionnaja_sistema_tehnonikol/ 1 Посилання на коментар Поділитися на інших сайтах More sharing options...
dushes86 Опубліковано: 17 липня 2018 Автор Поділитись Опубліковано: 17 липня 2018 Первое что сразу бросается в глаза - это 200 мм утеплителя. Это очень мало. Минимум 250 мм, а лучше 300. В пироге стены, что это за кирпичная стена в 5 мм?? А)Пароизоляция, в первую очередь, нужна для того, чтобы защитить утеплитель от влаги, защищать плиты от влаги не обязательно) Б)Это было бы идеально. Только следует использовать контрбрус минимум 50 мм высотой для обеспечения вентиляции подкровельного пространства. Специальный скотч нужен при маленьких углах наклона кровли. В)Вентиляция подкровельного пространства нужна для отвода конденсата с конструкций кровли при перепадах температуры и защиты от перегрева кровельных материалов. Вентиляция чердака в любом случае нужна для того чтобы не было застоя воздуха и снижения температуры на чердаке. По битумной черепице есть специальные КТВ или коньковые аэраторы, в том числе самодельные. Для вентиляции чердака есть специальные сквозные проходные элементы разных видов, в том числе и с вентиляторами. Вот такого плана: www.tn.ru/catalogue/dopolnitelnye_elementy/aeroelement_ktv_tehnonikol/ www.tn.ru/catalogue/dopolnitelnye_elementy/plastikovaja_ventiljacionnaja_sistema_tehnonikol/ Про кирпич 5мм не понял, о чем вы, а утеплителя будет 300мм, да. По углу наклона - у меня всего 15градусов, т. е. скотч таки нужен? Какие пленки/мембраны/скотчи смотреть? Посилання на коментар Поділитися на інших сайтах More sharing options...
sktd Опубліковано: 18 липня 2018 Поділитись Опубліковано: 18 липня 2018 1. Пленка под утеплитель. Зачем? Бетонное перекрытие полностью изолированной от перепадов температур и попадание влажности. 2. Контробрешетка и гидроизоляционная мембрана. Абсолютно не нужна для неутепленной стропильной системы. У Вас весь чердак сплошная вентиляция. 3. Вентиляция. Обязательно. Идеально работает коньковая( кобра). Можете выбрать грибки , которые Вам предложили. А как вариант , псевдодымоходы. Но это для большой крыши. Фирма продавая Вам битумку обязательно должна предложить все эти элементы. Еще и рассчитать колличество и место установки. 2 Посилання на коментар Поділитися на інших сайтах More sharing options...
shneider_vova Опубліковано: 18 липня 2018 Поділитись Опубліковано: 18 липня 2018 Сейчас посмотрел картинку. 1) под битумкой - не пленка, а подкладочный ковер. Для 15 градусов - сплошной, то есть по всей площади крыши. Хвалят finnmaster 2) есть очень большая засада с оставленным мостиком холода, и я не вижу, как решить проблему - с чердака через верхнюю часть стены будет промерзать перекрытие. Как минимум утеплитель должен быть завернут на стену (вертикальную часть и рядом с мауерлатом). Но его должно быть от 100 мм. 1 Посилання на коментар Поділитися на інших сайтах More sharing options...
ARCH INNOVATION Опубліковано: 18 липня 2018 Поділитись Опубліковано: 18 липня 2018 Сейчас посмотрел картинку. 1) под битумкой - не пленка, а подкладочный ковер. Для 15 градусов - сплошной, то есть по всей площади крыши. Хвалят finnmaster 2) есть очень большая засада с оставленным мостиком холода, и я не вижу, как решить проблему - с чердака через верхнюю часть стены будет промерзать перекрытие. Как минимум утеплитель должен быть завернут на стену (вертикальную часть и рядом с мауерлатом). Но его должно быть от 100 мм. обычно решается ППС 50мм. можно даже открытым оставить все равно ультрафиолета нет. 1 Посилання на коментар Поділитися на інших сайтах More sharing options...
dushes86 Опубліковано: 18 липня 2018 Автор Поділитись Опубліковано: 18 липня 2018 1. Пленка под утеплитель. Зачем? Бетонное перекрытие полностью изолированной от перепадов температур и попадание влажности. 2. Контробрешетка и гидроизоляционная мембрана. Абсолютно не нужна для неутепленной стропильной системы. У Вас весь чердак сплошная вентиляция. 3. Вентиляция. Обязательно. Идеально работает коньковая( кобра). Можете выбрать грибки , которые Вам предложили. А как вариант , псевдодымоходы. Но это для большой крыши. Фирма продавая Вам битумку обязательно должна предложить все эти элементы. Еще и рассчитать колличество и место установки. 1. Т. е. Утеплитель класть прямо на панели и накрыть сверху супкрдиф. мембраной? 2. Конденсата не будет, и потому его можно не улавливать? Посилання на коментар Поділитися на інших сайтах More sharing options...
sktd Опубліковано: 18 липня 2018 Поділитись Опубліковано: 18 липня 2018 1. Т. е. Утеплитель класть прямо на панели и накрыть сверху супкрдиф. мембраной? 2. Конденсата не будет, и потому его можно не улавливать? 1. А что Вас пугает? Зачем сверху его накрывать? 2 . Какой конденсат? У Вас должен получиться хорошо вентилируемый чердак. 1 Посилання на коментар Поділитися на інших сайтах More sharing options...
Скромный прораб Опубліковано: 18 липня 2018 Поділитись Опубліковано: 18 липня 2018 На ОСП, не зависимо от угла наклона, подкладочный ковер СПЛОШНЫМ слоем обязательно, если конечно для себя... Под битумную черепицу никто (нормальный) никаких мебран (гидроизоляций) не делает - стропила, обрешетка, ОСП, подкладочный ковер, битумка и... все. Вентиляция через подшивку свесов - вход, выход через конек, (естейственно не через какой-то самодельный, а специально для этого предназначенный) или через аэраторы, дело вкуса. 2 Посилання на коментар Поділитися на інших сайтах More sharing options...
Рекомендовані повідомлення
Створіть акаунт або увійдіть у нього для коментування
Ви маєте бути користувачем, щоб залишити коментар
Створити акаунт
Зареєструйтеся для отримання акаунта. Це просто!
Зареєструвати акаунтУвійти
Вже зареєстровані? Увійдіть тут.
Увійти зараз