Перейти до публікації
Пошук в
  • Додатково...
Шукати результати, які містять...
Шукати результати в...

Дом, в котором слышно как рычат львы

Shlromv

Рекомендовані повідомлення

Всем привет

 

Прикупил я землю 12сот (25х50) с красивым видом на лес и долину. В километре находится зоопарк, так что в безветренную погоду слышно как рычат львы и воют волки. Харьков по Белгородской трассе (с. Лесное)

 

Дом находится в средине холма, перепад на участке порядка 1,5 метра, а на пятне застройки метр. Из коммуникаций будет только свет (подключен на данный момент 11кВт).

 

Настал момент, когда вот-вот и надо приступать к стройке (все еще не покидает меня надежда начать строительство в этом сезоне).

Планирую возвести коробку с крышей/лестницей/отмосткой/ливневкой/окнами/септиком/канальей и водой одним этапом, а потом передохнуть и подкопить денюжку на отделку/свет/отопление/разводку труб вторым этапом.

 

На данный момент общестрой по большей части планирую делать наемными силами и только начинаю коммуникацию с потенциальными исполнителями.

 

Тему создаю в первую очередь для того, чтобы спрашивать совета о материальных аспектах взаимодействия с исполнителями, сравнивать цены, спрашивать совета, слушать альтернативную точку зрения.

 

Я намоделировал себе дом, взяв за основу типовой проект. По результатам заказал адаптацию проекта под мои нужды у продавца типовых проектов. Потом заказал адаптацию адаптации :oops: и просчет фундамента у местного архитектора (ребята пошли на встречу по цене, т.к. для меня это была переделка и давали много полезных советов).

Моя цель - построить дом максимально простой в эксплуатации, надежный и рациональный в строительстве.

kadastr.thumb.jpg.23d422dd9a205d791a4988d9ac7550dd.jpg

613772134_-.thumb.jpg.f397c03b446055055a64f410ec6fa02c.jpg

679822157_-.thumb.jpg.60bf055deb4fc2af8d8f95c884c1ff41.jpg

939845096_-.thumb.jpg.90d59fe4d77878285ccc9c5a445f8870.jpg

160362694_-.thumb.jpg.e8605791c4099ae292677ca7e4c2e0b4.jpg

  • Лайк 5
Посилання на коментар
Поділитися на інших сайтах

Изначально планировал идти по пути наименьшего сопротивления, чтобы не попасть на долгострой. Опыта стройки нет. Я эпизодически привлекался на стройку к отцу и следил за принятием решений, с которыми не всегда был согласен. Он по образованию инженер-конструктор (правда авиационный), так что делал многое возможно не оптимально. Но отец очень много работ делал своими силами, экономя на наемном труде, в итоге закончив общестроительные работы довольно бюджетно (если не учитывать посаженное здоровье). А еще я уверенный пользователь системы интернет Ж-). Некоторым такой багаж позволяет вести неплохой бизнес в сфере строительства :)

 

Помогает мне желание построить дом для семьи и в нем действительно жить.

Мешает мне желание быть уверенным в принятых решениях максимально, перед тем как начать их реализацию. Это сильно тормозит и вгоняет в стресс.

Так же огромным стопором в принятии решения является рельеф участка (перепад высот). Шел на покупку такого участка осознанно, теперь пожинаю.

 

Есть небольшая(в рамках смет на дома под ключ) сумма, есть небольшой стабильный доход (в $).

 

Планы:

  • Газоблок d500 400мм
  • 2 этажа и холодный чердак
  • плитное межэтажное перекрытие
  • утепление фасада и крыши базальтом
  • мокрый фасад (изначально планировал комбинировать с фасадным кирпичем, но отказался. Решил сэкономить на толщине фундамента и уменьшить количество технологических процессов)
  • обширное остекление (хочется максимально получить кайф от красивого вида на участке)
  • отопление первый этаж тп, второй радиаторы (все электрокотлом. Планирую когда более-менее разберусь со стартом стройки заняться поднятием мощности с 11кВт до 16кВт)
  • из доп построек на участке планируется только гараж (уже после строительства дома)
  • бетонная лестница без забежных ступеней
  • жить постоянно будет 3-4 человека.
  • из роскошностей - огромная неотапливаемая терраса. Из-за уклона и желания сделать ее бетонной (с плиткой) она очень сильно раздувает бюджет
  • цокольный этаж не хочу делать принципиально (путь наименьшего сопротивления и бюджета)
  • Септик переливной трехкамерный из бетонных колец 2м (возможно с дренажным полем, но хотелось бы обойтись без него)

 

Надеюсь архитектор(ы) не будет(ут) возражать против того, что я выкладываю планы, фасады и возможно какие-то узлы в будущем. Я не корысти ради, а для общей картины. Ведь все здесь цивилизованные люди и воровать никто ничего не планирует.

planirovka_1floor.thumb.jpg.9937c0b01b53b15ef2bf6c64f112ff62.jpg

planirovka_2floor.thumb.jpg.b7fae12a56a18eb7b4c2bc1085457af5.jpg

razrez-1-1.thumb.jpg.a8b6b1228273fdab238f65eb1dbbda9d.jpg

razrez-1-2.thumb.jpg.0d6eec8f90e9285412d02bd217e85795.jpg

fascade-4-1.thumb.jpg.97c5edee13b9f153eda2366fe4b403ec.jpg

fascade-1-4.thumb.jpg.7766399f092d2d940dc6c7999f9dba67.jpg

  • Лайк 2
Посилання на коментар
Поділитися на інших сайтах

Надеюсь архитектор(ы) не будет(ут) возражать против того, что я выкладываю планы, фасады и возможно какие-то узлы в будущем. Я не корысти ради, а для общей картины. Ведь все здесь цивилизованные люди и воровать никто ничего не планирует.

 

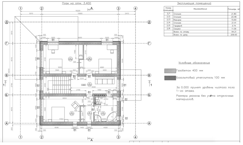
Я не поняла, выход на зону отдыха с гостиной комнаты? Мне удобнее было бы с коридора у кухни. И как там с соседями? Они могут очень попортить вид (запах, подглядывания) на вход и отдых в зоне отдыха. Мы делали все это во двор и в сад, подальше от соседей.

Посилання на коментар
Поділитися на інших сайтах

Еще когда я думал что смогу в Харькове заказать услугу просчета КР так, чтобы у меня были все расчеты и наиболее оптимальное решение по фундаменту, я сделал геологию грунта. Надеялся что это позволит мне сэкономить средств.

Это вообще была больная тема, потому что хотелось учесть все потенциальные проблемы еще перед покупкой участка.

Оказалось что везде суглинки, не очень плотные и грунтовой воды не наблюдается. Ничего криминального здесь я не увидел и купил участок.

 

Спросил у соседей (выше по склону на 50м) сколько они били скважину - сказали 56м.

 

Из таблиц значений сам ничего не понял. Надеялся что проектировщик будет учитывать в расчетах опорной площади фундамента, чтобы подобрать наиболее экономически целесообразный вариант. Насколько надежды оправдались не знаю - потому что в архитектурной части никаких расчетов нет (видимо в мою "братскую" стоимость проекта не входит).

 

Результаты геологии в атаче, может кому-то будет полезно.

Artboard.thumb.jpg.f8c2bd6da19c741adf24d70f276b14c3.jpg

Unknown-1.thumb.jpeg.bf7150076aadfc7efdc1eef27cbbffe9.jpeg

Unknown-2.thumb.jpeg.e466b5b2fd028458b26c8d0064812c4e.jpeg

Unknown-3.thumb.jpeg.7ededaf915bba2ada19aeb41326fe8ad.jpeg

Unknown-4.thumb.jpeg.a2c7d1332be0b5c43aaf633bdcf7a556.jpeg

unknown-5.thumb.jpg.526ac1d500580776c63125591c27ffbb.jpg

Unknown-6.thumb.jpeg.6b985806b11fa7de29426a301020a546.jpeg

  • Лайк 1
Посилання на коментар
Поділитися на інших сайтах

Я не поняла, выход на зону отдыха с гостиной комнаты? Мне удобнее было бы с коридора у кухни. И как там с соседями? Они могут очень попортить вид (запах, подглядывания) на вход и отдых в зоне отдыха. Мы делали все это во двор и в сад, подальше от соседей.

 

Елена, приветствую. Выход с общей зоны отдыха, все правильно. Продумывал разные варианты и остановился на таком, который учитывает расположение дома на участке и вид из окон на лес. Но тут кстати все-равно получается от террасы до забора не больше 5м, что конечно маловато.

 

Соседей пока нет никаких. Дом планирую ставить в дальней части участка (заднего двора как такового не будет, на участке будет минимум построек и садоводства, чтобы минимизировать количество требуемых усилий для ухода за ними).

 

Предполагаю что терраса в летнее время станет продолжением гостинной (за счет обширного остекления). В следующем сообщении приложу больше картинок.

  • Лайк 1
Посилання на коментар
Поділитися на інших сайтах

Еще перед покупкой первого типового проекта, решил замоделировать все это дело, чтобы понять подойдет мне или нет.

 

Для этого мне понадобились:

  • Скриншоты с сайта продавца проекта
  • Мои абсолютно отсутствующие навыки в 3д моделировании
  • бесплатная версия скечапа
  • бесчисленные человекочасы
  • моделирование дома "из коробок" чтобы на реальном примере понять предпочитаемые габариты, высоты, ширины проемов.

 

По результатам решил что буду брать другой проект (поменьше). Пошел на участок: растыкал колышков и натянул ниток, чтобы понять, хватит ли мне этих поменьше. Решил что хватит и принялся моделировать заново.

 

Забегая вперед скажу что то, что мы с архитектором "наадаптировали" по размерам вышло больше изначального проекта. Так что "поменьше" не получилось.

1825476526_13d2.thumb.jpg.469312ba5ed05cba1295c371f472fe3c.jpg

521419791_13d4.thumb.jpg.50e7c63bb3136d5ca91768b936527654.jpg

1437391287_13d.thumb.jpg.fec39db79d7b69e156f18ab153fde618.jpg

1984488592_23d2.thumb.jpg.447a2baeeb6821e047db79ef7c5dbf07.jpg

168400105_23d3.thumb.jpg.5b26c6ef31ee06d0c387421e6060bbf8.jpg

1293147833_23d.thumb.jpg.c5b3f0434b95fb4466814837fbd92edd.jpg

1036160496_1.thumb.jpg.4b0dd117c51ce1e0d272be7509564971.jpg

1389513622_1.thumb.jpg.c4c9c462471ff68830d6116964314301.jpg

2023674853_1.thumb.jpg.fdda96af0fe41ca09cf7519d94d6d24a.jpg

1575103324_1.thumb.jpg.d3ce1a0e130926c1f740fce6364bb300.jpg

781964828_1--.thumb.jpg.7a855ebf5c5d31703ddedf0c166f60f0.jpg

675429712_22.thumb.jpg.495b20079eb81021149c6572712ae8f5.jpg

1659694194_2.thumb.jpg.ef72af7dd5296cd627611411735d2113.jpg

967679737_23.thumb.jpg.fb3b45fffced60bb7ff450abc677ac88.jpg

276734008_24.thumb.jpg.52aba8bc4a0d979b249d051840b80530.jpg

1226145129_25.thumb.jpg.5a2d596eaf38d926c3e20002b4474e1a.jpg

1647943432_22.thumb.jpg.46bbcb28c73f80d8ff60f6b765cfddaa.jpg

1856428839_23.thumb.jpg.c6eda227b1b40459ea27085bd29cb6cd.jpg

347688840_24.thumb.jpg.b8b489888b61c1365d1e9b78d80767e7.jpg

415011499_22.thumb.jpg.ba0291c8f0dad2aa95bec988791368a3.jpg

243550194_2.thumb.jpg.cea74af49c4ad765096b850af74ccd14.jpg

Змінено користувачем Shlromv
Посилання на коментар
Поділитися на інших сайтах

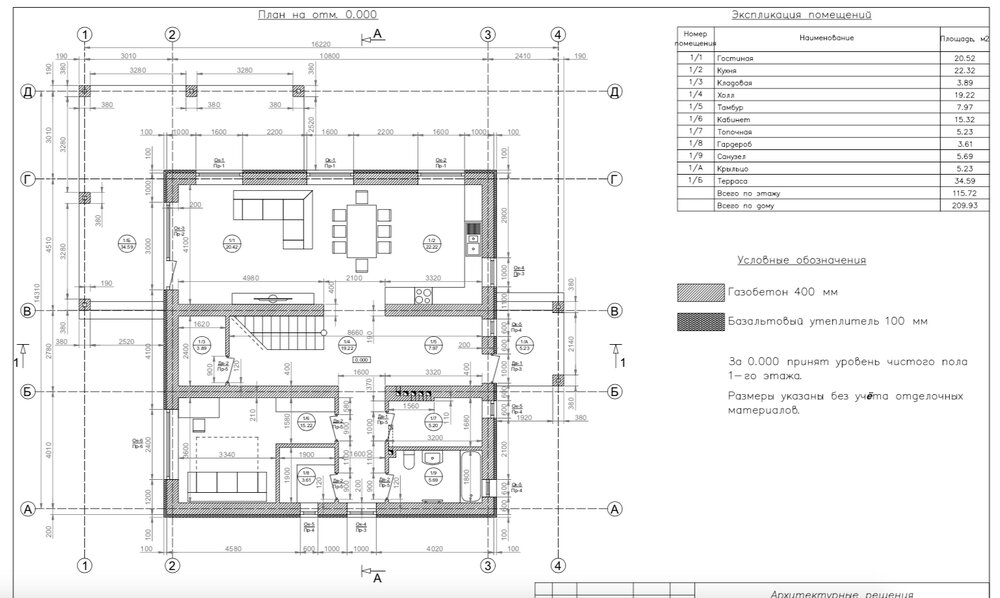
Диван в гостиной стоит напротив выхода на веранду. Не удобно. Надо сделать выход вместо окна между диваном и обеденным столом.
Посилання на коментар
Поділитися на інших сайтах

Предполагаю что терраса в летнее время станет продолжением гостинной (за счет обширного остекления). В следующем сообщении приложу больше картинок.

Мы тоже так думали, строя первый дом. А когда я через весь дом с тарелками и блюдами набегалась, в следующем доме продумали так, чтобы все это через окно можно было подать. :D Вангую, что в своем доме все завтраки, обеды и ужины в теплый сезон будут на открытой террасе. :rolleyes:

  • Лайк 1
Посилання на коментар
Поділитися на інших сайтах

Чтобы понять процесс принятия решений, сопутствующий превращению этих моих каракулей в финальный вариант проекта прикладываю пару картинок с вопросами, которые я задавал архитектору на одной из первых итераций взаимодействия.

 

Здесь видно и степень моей безграмотности в некоторых вопросах (в том числе правописания) и степень моей надоедливости. Получить такое количество комментариев на свою работу никому не понравится, но ребята с достойным покерфейсом прошлись со мной по всем пунктам и многое нашло отражение в следующем варианте проекта (не исключаю что просто чтобы я отстал).

 

А так же видно как мне помогла предварительная визуализация в понимании того, что я хочу от дома.

 

Должен заметить, что глобальной такой эксгибиционизм мне не свойственен, и в блогерстве раньше я замечен не был. Так что опыт для меня новый и я могу кое-где перегибать с количеством информации. :pardon:

199772867_commentspage1.thumb.jpg.1018f1dbaa883b09ab2f269a79d9ac38.jpg

1764519308_commentspage2.thumb.jpg.85ba9326af5e851d361daee17e7c6536.jpg

116581611_commentspage3.thumb.jpg.2f66f3be1788b6c713ad8479d343d706.jpg

Посилання на коментар
Поділитися на інших сайтах

Мы тоже так думали, строя первый дом. А когда я через весь дом с тарелками и блюдами набегалась, в следующем доме продумали так, чтобы все это через окно можно было подать. :D Вангую, что в своем доме все завтраки, обеды и ужины в теплый сезон будут на открытой террасе. :rolleyes:

 

На этот случай предполагается одно окно поближе к кухне. Я потенциально готов к некоторым осознанным неоптимальным решениям, и это одно из них (позволил такую вольность себе. Про потенциальные неосознанные думать сейчас не хочется).

Надеюсь у меня это будет первый и последний дом. Не в смысле что я там и слягу, а в смысле что я в нем и дальше жить буду.

 

По поводу ужинов надо будет еще посмотреть на результаты борьбы. Ровно в 20:00 из леса вылетают они. Комары злющие и дикие.

 

Добавлено через 3 минуты

А почему в спальне 2/2 решили не делать второе окно на запад?

 

Потому что в него будет светить закатное солнце прямо в глаза лежащему дитю. И смотреть с той стороны нечего (церква да кладбище). И эксплуатируемого пространства на стене больше.

Но теперь думаю что света может быть недостаточно от одного окна (1600х1800). Решил что вернусь к этому вопросу после закладки двух рядов блоков на втором этаже.

 

И так остекления получается 54м2. Боюсь что сердечко не выдержит сметы на окна.

Посилання на коментар
Поділитися на інших сайтах

А теперь подбираюсь к одному из двух с половиной открытых вопросов, которые не дают мне стартануть. Фундаменту.

 

Найти человека, который выполнит конструкционный расчет в том формате, который мне покажется аргументированным и достаточным (с формулами ,сравнением вариантов и вот этим всем) у меня не получилось. Я ожидал чего-то убедительного от проектировщика общей архитектурной части, но на данный момент не сложилось. Есть только аргументированный вариант, но без расчетов.

 

Проблема: перепад высот, отвод очень обильной верховодки (почва сплошные намытые канавы по пол метра).

В идеале бы все предварительно выровнять экскаватором, переместить грунт там где выше в там где ниже, убрать канавы чтобы замерять высоты точно, а не с погрешностью в пол метра. Пока на такой шаг не решаюсь, потому что не выбрал финальный вариант фундамента и не распланировал процесс нулевого цикла.

Кажется что выравнивание сейчас будет неоптимальным вкладыванием средств в технику (лучше обьединить сразу с копкой, вертикальным планированием под основание дома, перемещением песка и щебня).

Так же есть опасение что свежий грунт не даст потом возможности заехать технике для копки и заливки (как бы уже считай октябрь).

 

Потенциальные строители предложили плиту или УШП. Они и помогли предварительно померять перепад высот нивелиром (до этого я думал что у меня все намного лучше, а оказывается по диагонали участка перепад 2,5м. Но это с учетом намытых канав на грунте).

В их смете плита вышла порядка 15$, а ушп порядка 20$.

Я офигел. Моя депрессивная натура вообще предложила отключить телефоны и телеграфы, купить квартиру от жилстрой-1 и забыть о мечте и потраченных деньгах на участок.

 

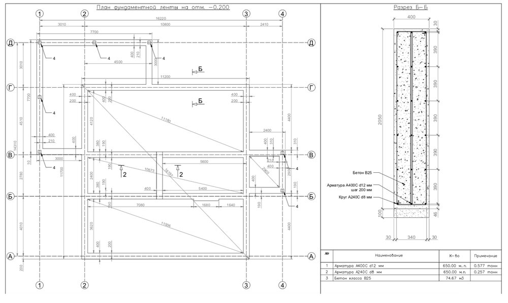
Попросил архитектора просчитать ленту. Лента просчитана в атаче. Тут без сюрпризов - это обычная лента 2м глубиной. Я все мечтал о мзфл, но перепад высот кошмарит. Финального решения я пока не принял и приветствуются аргументированные предложения, ведь по моим приблизительным подсчетам эта лента тоже будет очень затратной.

Зато если делать ленту, то можно будет под террасой замутить погребок небольшой. Монолитный, или из 2м колец. Но не то чтобы он мне нужен (в квартире без него прекрасно справляемся).

lenta.thumb.jpg.0acdf383e51e3ad7a0a6ca1fa749146f.jpg

lenta-2.thumb.jpg.452e882ebc43dca25435326877a745e2.jpg

lenta-3.thumb.jpg.7573f1fbc860daee77ba639111f22df1.jpg

lenta-4.thumb.jpg.da00ccb386ee7a09d9c0a065bbddcf56.jpg

  • Лайк 1
Посилання на коментар
Поділитися на інших сайтах

Диван в гостиной стоит напротив выхода на веранду. Не удобно. Надо сделать выход вместо окна между диваном и обеденным столом.

 

Размеры подобраны так, что свободно двигаться можно как перед, так и за диваном. Зато вся стена с огромным окном и видом на лес. так же не хотелось размещать террасную дверь на фасаде дома (она с боковой части, а на террасу вход вообще с дороги не просматривается).

Так же расположение мебели учитывает нежелательную просматриваемость и прослушиваемость из других частей дома. Круговое движение вокруг дивана и стола (он скорее всего будет круглым).

Ну и не надо забывать что когда фундамент будет стоять, возможно планировка пересмотрится.

Посилання на коментар
Поділитися на інших сайтах

А почему не фбс? Это будет дешевле при такой высоте. Можно взять бу.

 

По планировке. Мне не понравился санузел с двумя дверьми. Получается - родители зашли в ванну принять вместе душ, а тут детки прибежали...

Посилання на коментар
Поділитися на інших сайтах

А теперь подбираюсь к одному из двух с половиной открытых вопросов, которые не дают мне стартануть. Фундаменту.

В идеале бы все предварительно выровнять экскаватором, переместить грунт там где выше в там где ниже, убрать канавы чтобы замерять высоты точно, а не с погрешностью в пол метра. Пока на такой шаг не решаюсь, потому что не выбрал финальный вариант фундамента и не распланировал процесс нулевого цикла.

Кажется что выравнивание сейчас будет неоптимальным вкладыванием средств в технику ....

 

Первая мысль от Бога, вторая от лукавого.

В этом году потратиться на технику, максимально выровнять участок, надо перемещать грунт, перемещайте, не забыв, что появится свой от копки траншеи под фундамент, приямка скважины, септика... Добейтесь особенно ровной площадки под пятном застройки. И уже, после этого, в следующем году, с первым теплом, начинать. Смотрите в сторону монолитной ленты 1,2м, а никаких 2м, пяток с ФБС и тем более УШП (тут обычная математика).

Вообщем для начала нужен классический нулевой цикл - подготовка участка и разметка, цоколь, плита чернового пола с опиранием на цоколь и... пошло и поехало, стены, крыша, комуникации...

Это всё так, что бы реально, без нервов и надрывов. Что бы стройка была приятным воспоминанием, а жизнь в доме и на участке беззаботной и счастливой))).

  • Лайк 3
Посилання на коментар
Поділитися на інших сайтах

Первая мысль от Бога, вторая от лукавого.

В этом году потратиться на технику, максимально выровнять участок, надо перемещать грунт, перемещайте, не забыв, что появится свой от копки траншеи под фундамент, приямка скважины, септика... Добейтесь особенно ровной площадки под пятном застройки. И уже, после этого, в следующем году, с первым теплом, начинать. Смотрите в сторону монолитной ленты 1,2м, а никаких 2м, пяток с ФБС и тем более УШП (тут обычная математика).

Вообщем для начала нужен классический нулевой цикл - подготовка участка и разметка, цоколь, плита чернового пола с опиранием на цоколь и... пошло и поехало, стены, крыша, комуникации...

Это всё так, что бы реально, без нервов и надрывов. Что бы стройка была приятным воспоминанием, а жизнь в доме и на участке беззаботной и счастливой))).

Спасибо за здравую мысль, примерно туда и думал. Но очень не хочется пока попасть на цены 2019.

Скажите пожалуйста, в чем на ваш взгляд преимущество плиты, опирающейся на цоколь над полами по грунту?

Я вижу это как дополнительные процедуры по компенсации промерзания в торце плиты+дополнительная нагрузка на опорную часть ленты. Я мыслю не туда?

 

Добавлено через 3 минуты

А почему не фбс? Это будет дешевле при такой высоте. Можно взять бу.

 

По планировке. Мне не понравился санузел с двумя дверьми. Получается - родители зашли в ванну принять вместе душ, а тут детки прибежали...

 

Замок на двери. Сделано как раз для того, чтобы ночью родители могли не мотаться в душ через общий коридор и не стеснять детские умы.

Посилання на коментар
Поділитися на інших сайтах

Спасибо за здравую мысль, примерно туда и думал. Но очень не хочется пока попасть на цены 2019.

Скажите пожалуйста, в чем на ваш взгляд преимущество плиты, опирающейся на цоколь над полами по грунту?

Я вижу это как дополнительные процедуры по компенсации промерзания в торце плиты+дополнительная нагрузка на опорную часть ленты. Я мыслю не туда?

 

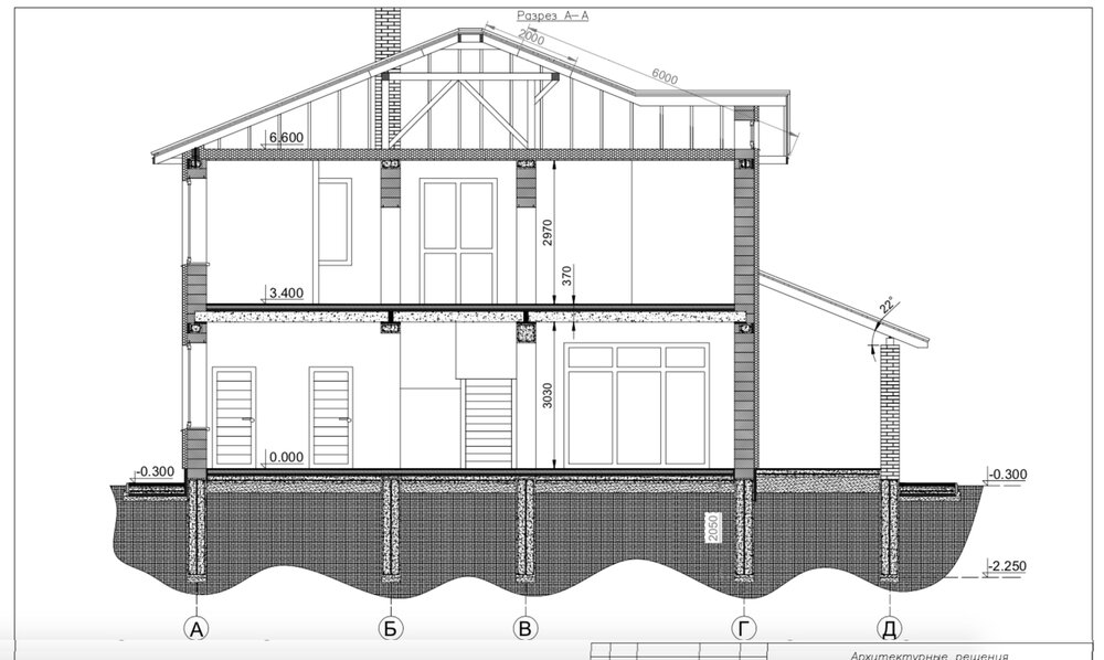
Как минимум - ничего никуда и никогда не просядет, еще быстро, недорого. Как для исполнителя, так и для заказчика одни плюсы. По промерзанию не больше, не меньше плиты по грунту. В двух словах, та же плита чернового пола, та же обратная засыпка, служащая опалубкой, гидроизоляция, арматура, только она опирается на цоколь. По нагрузке, это не тот вес, что бы серьезно о нем говорить.

Нулевой цикл - лента фундамента на уровне земли, выравнивающий слой, он же пирог отмостки, гидроизоляция, цоколь, плита чернового пола:

image.jpg.e0f95d31a0068aa34a3262681faa1d9d.jpg

Посилання на коментар
Поділитися на інших сайтах

И что бы было понятней, что дальше....

Отмостка, утепление и облицовка цоколя, стены (отделка клинкерный кирпич или штукатурка по мин. вате), утеплитель и стяжка теплого пола......

image.jpg.2a74ea3a3a489968bf9b3394ca3742d1.jpg

Посилання на коментар
Поділитися на інших сайтах

И что бы было понятней, что дальше....

Отмостка, утепление и облицовка цоколя, стены (отделка клинкерный кирпич или штукатурка по мин. вате), утеплитель и стяжка теплого пола......

 

Вот цоколь из кирпича вообще не понимаю. Материал капилярно активный, простыми словами всасывает воду как губка. Почему бы не долить это дело бетоном? Я уоколь планирую максимум 30см по верхней части дома.

Посилання на коментар
Поділитися на інших сайтах

Вот цоколь из кирпича вообще не понимаю. Материал капилярно активный, простыми словами всасывает воду как губка. Почему бы не долить это дело бетоном? Я уоколь планирую максимум 30см по верхней части дома.

Не вы первый и, к сожалению, не последний кто не понимает(((

Не устаю повторять, цоколь должен сухим и теплым (кирпич), а не холодным и сырым (бетон). "Капилярно активный"... улыбнуло, а зачем гидроизоляция?

Посилання на коментар
Поділитися на інших сайтах

Не вы первый и, к сожалению, не последний кто не понимает(((

Не устаю повторять, цоколь должен сухим и теплым (кирпич), а не холодным и сырым (бетон). "Капилярно активный"... улыбнуло, а зачем гидроизоляция?

А зачем бетону утеплитель?

 

Добавлено через 28 минут

Не вы первый и, к сожалению, не последний кто не понимает(((

Не устаю повторять, цоколь должен сухим и теплым (кирпич), а не холодным и сырым (бетон). "Капилярно активный"... улыбнуло, а зачем гидроизоляция?

Я не говорю что так нельзя делать. Я просто не понимаю смысла выбирать именно кирпич. Хочешь высоко поднять пол - почему бы не сделать из того же газобетона, если все-равно гидроизолировать и утеплять, а вода по гб поднимается не быстрее чем по кирпичу. Разве что вопрос с черновой плитой, опирающейся на цоколь. На гб не обопрешь.

Сухой и теплый. Согласен. Но кирпич то не сухой и теплый сам по себе? Его так же надо утеплить и гидроизолировать. А бетон вот гидроизолировать не обязательно. Меньше на один процесс.

  • Лайк 1
Посилання на коментар
Поділитися на інших сайтах

Какие-то моменты прийдется делать на доверии. Так как если всё разжевывать время не хватит. Ну и реально у всех - фундамент, гидроизоляция, кирпич, газоблок. Пройдитесь по стройкам.
Посилання на коментар
Поділитися на інших сайтах

Створіть акаунт або увійдіть у нього для коментування

Ви маєте бути користувачем, щоб залишити коментар

Створити акаунт

Зареєструйтеся для отримання акаунта. Це просто!

Зареєструвати акаунт

Увійти

Вже зареєстровані? Увійдіть тут.

Увійти зараз
×
×
  • Створити...