Yaroslav-x777 Опубліковано: 11 лютого 2019 Поділитись Опубліковано: 11 лютого 2019 Форумчани, приймайте в свою сімю діліться/критикуйте/допомагайте своїм великим досвідом початківцю! От і настав мій час реалізовувати свою мрію життя в будівництво будинку так як я з дружиною живемо ще з мамою і племінником в двухкімнатній квартирі, а хочеться щось своє, самі розумієте дві хазяйки на кухні... Будівництво не планую закінчити в якісь конкретні терміни (хоча мету перед собою ставлю щоб закінчити років за 3-4) так як жити є де а будівництво почав без будь якого початкового капіталу (тільки не треба критикувати сильно що це не реально в мене є бажання і мрія а мрії збуваються і по мірі можливості за зарплату поетапно буду будувати. Характеристики будиноку: Одноповерховий з масандрою, загальна площа - 180м2, зовнішні стіни з газоблока АЕРОК D400, 400х250х600 паз/гребінь, внутрішні - цегла, перекриття - плити, дах - металочерепиця. Газу немає на вулиці і не планується поки що та і дорого зараз газом отоплювати, планую ТТ котел + електрокотел, перший поверх тепла водяна підлога, другий радіатори + камін. Документація надіюся що зроблена вся , а саме: - Акт на землю (під будівництво); - Винесення в натуру участка (колишки забили з 4-х сторін) - Дозвіл на будівництво в ДАБК чи ДАБІ (повідомлення про початок будівельних робіт); - Будівельний паспорт; З зробленого уже: - Підведено електропостачання, три фази 380В і 10кВт ( так як альтернативи ТП ресу не було то прийшлося купувати у часника 500$ кВт х10 = 5000$ + 1000$ документація + 1000$ монтаж і підключення, в кінцевому результаті маю електропостачання за 7000$) дорого але без права вибору; - Куплений типовий проект у проектної фірми ТМВ (не реклама, хоч завжди дають консультації щодо будівництва коли звертаюся)); - На весні завіз (безкоштовно віддали) вагончик хоч старенький, але не протікає; - Привіз пісок і щебінь; - Змайстрував з блок хауза туалет; - Викопав ставок на участку (скважини поки що немає (в планах на майбутнє) буду брати технічну воду); - Залив фундамент; На днях мають привезти половину газоблоку на будинок 38.4м3 (попав на акцію 38 мішків клею зимового в подарунок)) На весні планую викопати септик (два колодязі 1.5м по два чи три круга), провести/закласти комунікації під воду, кабель, каналізацію засипати землею тромбонути і залити чорновий пол 10см в рівень як кажуть заподлецо з фундаментом ну і по мірі можливості будувати коробку За весь час потратив уже +- 7000$ електрика, 5000$ на фундамент, газоблок 38.4м3 з доставкою 2200$, з документацією і всякими дрібницями ще десь 1000$, а і прицеп (який вкрали місяць назад сцуки) двухосний легковий по акції на той час брав 800$ = 16 000$ 13 Посилання на коментар Поділитися на інших сайтах More sharing options...
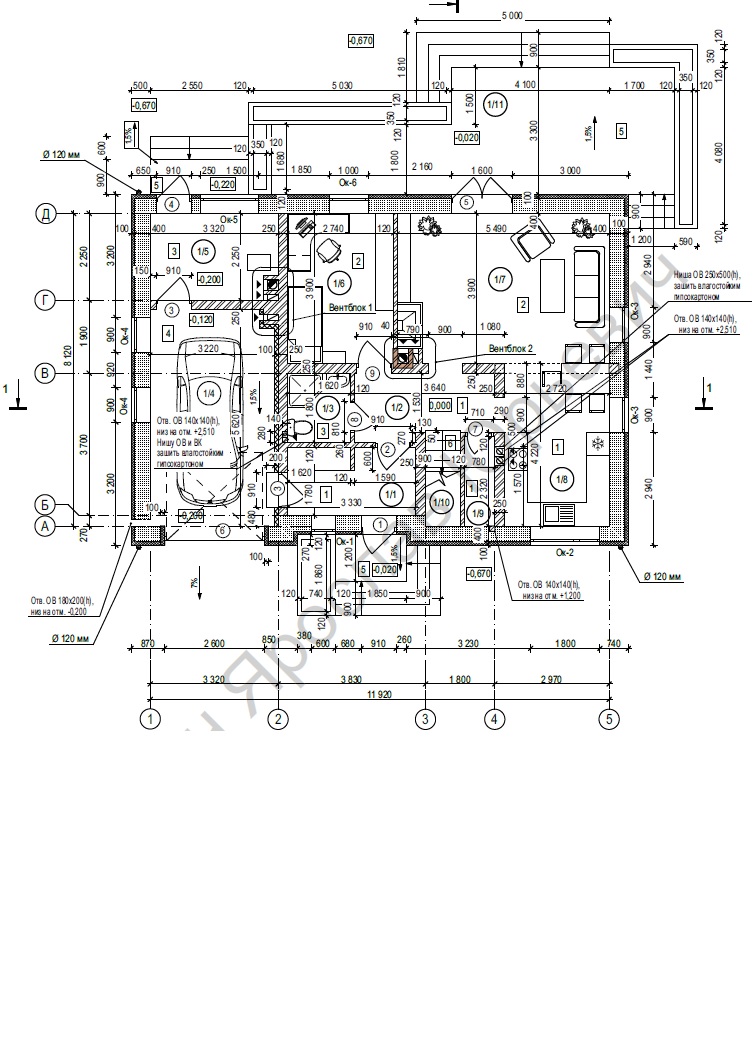
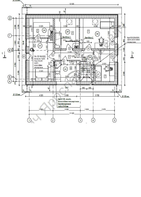
Yaroslav-x777 Опубліковано: 11 лютого 2019 Автор Поділитись Опубліковано: 11 лютого 2019 Планування 1 поверху і масандри з фото, тому що в першому пості скопіював з PDF файла і вийшло зовсім мілко Ще пару слів чому вибрав саме цей проект, тому що для мене важливо було щоб на 1 поверсі була хоч невелика кімната, гараж в будинку (це спірне питання, на форумі почитав по різному ставляться) ну і камін. Сподобалося планування з вітальні виходом на терасу (внутрішню сторону участка), зручно що з котельні окремий вихід на вулицю. Це типовий польський проект але трішки переробив під свої бачення і бажання. 1 Посилання на коментар Поділитися на інших сайтах More sharing options...
dushes86 Опубліковано: 11 лютого 2019 Поділитись Опубліковано: 11 лютого 2019 На яку кількість осіб було розраховано будинок? Посилання на коментар Поділитися на інших сайтах More sharing options...
Yaroslav-x777 Опубліковано: 11 лютого 2019 Автор Поділитись Опубліковано: 11 лютого 2019 Монтаж електропостачання 2 Посилання на коментар Поділитися на інших сайтах More sharing options...
Yaroslav-x777 Опубліковано: 11 лютого 2019 Автор Поділитись Опубліковано: 11 лютого 2019 Так сталося що знайомий підійшов до мене і запропонував викопати ставок, каже мол тут зараз вільний тракторист і може тобі викопати ставок а собі "лєвачок в карман". Не довго думав погодився, зустрівся з тракористом запросив його на участок за два дні по пару годин і ставок був викопаний, за все заплатив смішну суму 2000 грн. 2017 рік, точні розміри ставка не памятаю, але десь 8 на 15 і метра 4 до 5 в глибину. Одне жалію що тоді не поробив скоси і зараз треба чекати можливості коли буде техніка на участку щоб доробити. Щоправда був один рік дуже жаркий і ставок висох а так як правило до осені хоч трохи але вода тримається, коли пробурю скважину буду підливати. 3 Посилання на коментар Поділитися на інших сайтах More sharing options...
Yaroslav-x777 Опубліковано: 11 лютого 2019 Автор Поділитись Опубліковано: 11 лютого 2019 На яку кількість осіб було розраховано будинок? Я і моя дружина, а на майбутнє як Бог дасть то може і діти появляться) 1 Посилання на коментар Поділитися на інших сайтах More sharing options...
xPavelx Опубліковано: 11 лютого 2019 Поділитись Опубліковано: 11 лютого 2019 А какое назначение этого ставка в будущем ? Будете ли его как-то облагораживать ? Он прям рядом с будущим домом находится ? 2 Посилання на коментар Поділитися на інших сайтах More sharing options...
Вячеслав69 Опубліковано: 11 лютого 2019 Поділитись Опубліковано: 11 лютого 2019 ".... мету перед собою ставлю щоб закінчити років за 3-4) так як жити є де а будівництво почав без будь якого початкового капіталу (тільки не треба критикувати сильно що це не реально в мене є бажання і мрія а мрії збуваються і по мірі можливості за зарплату поетапно буду будувати. Характеристики будиноку: Одноповерховий з масандрою, загальна площа - 180м2" Ви хоча б на листочку порахували вартість такого будинку у форматі "стіни, дах, вікна, вхідні двері" ? Далі треба рахувати інші необхідні витрати - огорожа ділянки, коммунікації (електрика,водогін,опалення і інше). Хоча якщо Ваша з/п за місяць має мінімум чотири нулі і перша цифра більша ніж п"ять, то можете спробувати..... але явно не проект на 180м2 (имхо) 2 Посилання на коментар Поділитися на інших сайтах More sharing options...
razzil Опубліковано: 12 лютого 2019 Поділитись Опубліковано: 12 лютого 2019 Вижу глину на фото. Фундамент лента? Не было опасений за его зимовку? Посилання на коментар Поділитися на інших сайтах More sharing options...
eam Опубліковано: 12 лютого 2019 Поділитись Опубліковано: 12 лютого 2019 будівництво почав без будь якого початкового капіталу (тільки не треба критикувати сильно що це не реально в мене є бажання і мрія а мрії збуваються і по мірі можливості за зарплату поетапно буду будувати. Я і моя дружина, а на майбутнє як Бог дасть то може і діти появляться) И при этом выбрали проект с гаражом и 5 (пятью!!!) спальнями Как-то нелогично совсем. ЗЫ. Вам бы небольшой одноэтажник без гаража на 2-3 спальни в самый раз - построили бы в разы быстрее. 11 Посилання на коментар Поділитися на інших сайтах More sharing options...
Yaroslav-x777 Опубліковано: 12 лютого 2019 Автор Поділитись Опубліковано: 12 лютого 2019 А какое назначение этого ставка в будущем ? Будете ли его как-то облагораживать ? Он прям рядом с будущим домом находится ? Призначення: облагородити (поробити скоси, від верха метра півтора по кругу обкласти каменем бутом крупним) і запустити рибу, а поки немає скважини буду брати воду для будівництва. Розташований ставок метрів 30 від будинку (участок прямокутний 31х47м (15 сот.), за ним взяли ще три сотки під ОСГ там і викопали ставок. Посилання на коментар Поділитися на інших сайтах More sharing options...
Yaroslav-x777 Опубліковано: 12 лютого 2019 Автор Поділитись Опубліковано: 12 лютого 2019 ".... мету перед собою ставлю щоб закінчити років за 3-4) так як жити є де а будівництво почав без будь якого початкового капіталу (тільки не треба критикувати сильно що це не реально в мене є бажання і мрія а мрії збуваються і по мірі можливості за зарплату поетапно буду будувати. Характеристики будиноку: Одноповерховий з масандрою, загальна площа - 180м2" Ви хоча б на листочку порахували вартість такого будинку у форматі "стіни, дах, вікна, вхідні двері" ? Далі треба рахувати інші необхідні витрати - огорожа ділянки, коммунікації (електрика,водогін,опалення і інше). Хоча якщо Ваша з/п за місяць має мінімум чотири нулі і перша цифра більша ніж п"ять, то можете спробувати..... але явно не проект на 180м2 Розумію що сума не маленька, розрахунки приблизно робив, но я ж писав що жити є де і по мірі надходження коштів будуюся(щоб була вся сума зразу то купив би квартиру чи будинок). Моя ціль в першу чергу щоб перейти жити це поставити коробку, зробити внутрянку(електрика, опалення, стяжка), вдарити скважину а далі уже можна робити забор, фасад будинку, благоустрій території і т.д. Зарплата середньостатистична, але витрати в основному будуть йти на матеріал, а робота своя. Добавлено через 4 минуты Вижу глину на фото. Фундамент лента? Не было опасений за его зимовку? Фундамент монолітно-ленточний, 1.20 в землю і 65см цоколь Які можуть бути побоювання?? Посилання на коментар Поділитися на інших сайтах More sharing options...
Вячеслав69 Опубліковано: 12 лютого 2019 Поділитись Опубліковано: 12 лютого 2019 Розумію що сума не маленька, розрахунки приблизно робив, но я ж писав що жити є де і по мірі надходження коштів будуюся(щоб була вся сума зразу то купив би квартиру чи будинок). Моя ціль в першу чергу щоб перейти жити це поставити коробку, зробити внутрянку(електрика, опалення, стяжка), вдарити скважину а далі уже можна робити забор, фасад будинку, благоустрій території і т.д. Зарплата середньостатистична, але витрати в основному будуть йти на матеріал, а робота своя. Добавлено через 4 минуты Фундамент монолітно-ленточний, 1.20 в землю і 65см цоколь Які можуть бути побоювання?? Может МАНСАРДУ в проекте" законсервируете" на будущее развитие? 1 Посилання на коментар Поділитися на інших сайтах More sharing options...
Yaroslav-x777 Опубліковано: 12 лютого 2019 Автор Поділитись Опубліковано: 12 лютого 2019 И при этом выбрали проект с гаражом и 5 (пятью!!!) спальнями Как-то нелогично совсем. ЗЫ. Вам бы небольшой одноэтажник без гаража на 2-3 спальни в самый раз - построили бы в разы быстрее. Якось до душі впав цей проект, та і будуюся раз на життя, а там тьоща в гості, друзі заїдуть та і діти на майбутнє)) Добавлено через 54 секунды Может МАНСАРДУ в проекте" законсервируете" на будущее развитие? Як варіант Посилання на коментар Поділитися на інших сайтах More sharing options...
eam Опубліковано: 12 лютого 2019 Поділитись Опубліковано: 12 лютого 2019 Якось до душі впав цей проект, та і будуюся раз на життя, а там тьоща в гості, друзі заїдуть та і діти на майбутнє)) Строить дом без денег с расчетом на то что пару раз в год приедет теща или друзья и при этом вбухать на это кучу денег и отапливать... Такое себе... Насчет раз в жизни. Жизнь очень часто вносит коррективы и, как показывают примеры даже на этом форуме, строить чтото большое 'на вырост' не целесообразно. Особенно если это увеличит срок стройки в разы, т.к. самое ценное в жизни - это время. Раз фундамент залит то Вы бы переиграли сейчас планировку первого этажа и вместо гаража и топочной сделали бы спальню или две, убрали бы лестицу и получился бы маленький и не дорогой домик, в котором у вас появится шанс спокойно пожить не через 10 лет а пораньше 12 Посилання на коментар Поділитися на інших сайтах More sharing options...
Yaroslav-x777 Опубліковано: 13 лютого 2019 Автор Поділитись Опубліковано: 13 лютого 2019 І так поїхали далі, трохи в фотозвіті покажу що уже було зроблено у 2018 році: - Збив щити на опалубку, дошка 30мм, висота щита 55см. 2 Посилання на коментар Поділитися на інших сайтах More sharing options...
Yaroslav-x777 Опубліковано: 13 лютого 2019 Автор Поділитись Опубліковано: 13 лютого 2019 Привезли вагончик (хоч старенький, але всередині сухий а зовні підшаманили); Збили ящик з старих дощок для сміття; Привезли пісок своїм ходом як кажуть, друзі допомогли Щебінь доставив самосвал, 20-40 фракція, 22 тони. 3 Посилання на коментар Поділитися на інших сайтах More sharing options...
-enjoy- Опубліковано: 13 лютого 2019 Поділитись Опубліковано: 13 лютого 2019 ЗЫ. Вам бы небольшой одноэтажник без гаража на 2-3 спальни в самый раз - построили бы в разы быстрее. підтримую. просто взяв другий поверх і наложив на нього перший. 5 Посилання на коментар Поділитися на інших сайтах More sharing options...
Yaroslav-x777 Опубліковано: 13 лютого 2019 Автор Поділитись Опубліковано: 13 лютого 2019 Ставок після зими майже повний води Посилання на коментар Поділитися на інших сайтах More sharing options...
Yaroslav-x777 Опубліковано: 13 лютого 2019 Автор Поділитись Опубліковано: 13 лютого 2019 Збив у тестя туалет з блок хауза і перевіз прицепом на участок, жінки брат і тесть допомагали 4 Посилання на коментар Поділитися на інших сайтах More sharing options...
Yaroslav-x777 Опубліковано: 13 лютого 2019 Автор Поділитись Опубліковано: 13 лютого 2019 Копаємо всі дружно (друзі, батько, племінник допомагають) траншею під майбутній фундамент Трохи намучилися з внутрішніми перестінками фундаменту, дуже вузько в ямі 25см по ширині потрібно було викопати на глубину 1.20 3 Посилання на коментар Поділитися на інших сайтах More sharing options...
Yaroslav-x777 Опубліковано: 13 лютого 2019 Автор Поділитись Опубліковано: 13 лютого 2019 Тогда уже лучше квартира в городе, чем домик сторожа на приусадебном участке. Квартири не хочу, хоч обдумував різні варіанти, але мій вибір прийшов на будинок. Солідарний з Вами, якщо будувати нехай трохи довше то уже повноцінний будинок Добавлено через 11 минут Строить дом без денег с расчетом на то что пару раз в год приедет теща или друзья и при этом вбухать на это кучу денег и отапливать... Такое себе... Насчет раз в жизни. Жизнь очень часто вносит коррективы и, как показывают примеры даже на этом форуме, строить чтото большое 'на вырост' не целесообразно. Особенно если это увеличит срок стройки в разы, т.к. самое ценное в жизни - это время. Раз фундамент залит то Вы бы переиграли сейчас планировку первого этажа и вместо гаража и топочной сделали бы спальню или две, убрали бы лестицу и получился бы маленький и не дорогой домик, в котором у вас появится шанс спокойно пожить не через 10 лет а пораньше Дякую за пораду, але з плануванням і проектом уже визначився я ризикну побудувати повноцінний будинок, нехай це буде і на пару років довше Я не для тьощі чи друзів будую а для себе, а родичів і друзів хватає якщо захочуть приїхати в гості то як кажуть "милости просим" 2 Посилання на коментар Поділитися на інших сайтах More sharing options...
bulaniy.sv Опубліковано: 13 лютого 2019 Поділитись Опубліковано: 13 лютого 2019 За весь час потратив уже +- 7000$ електрика Тянули электричество по улице? Посилання на коментар Поділитися на інших сайтах More sharing options...
Yaroslav-x777 Опубліковано: 13 лютого 2019 Автор Поділитись Опубліковано: 13 лютого 2019 Тянули электричество по улице? Так по вулиці, підключення воздушне (провода на стовбах точніше один товстий кабель). Від трансформатора до стовба біля участка приблизно 100 метрів. 1 Посилання на коментар Поділитися на інших сайтах More sharing options...
yurriy Опубліковано: 13 лютого 2019 Поділитись Опубліковано: 13 лютого 2019 Збив у тестя туалет з блок хауза і перевіз прицепом на участок, жінки брат і тесть допомагали Гламурно! Посилання на коментар Поділитися на інших сайтах More sharing options...
Рекомендовані повідомлення
Створіть акаунт або увійдіть у нього для коментування
Ви маєте бути користувачем, щоб залишити коментар
Створити акаунт
Зареєструйтеся для отримання акаунта. Це просто!
Зареєструвати акаунтУвійти
Вже зареєстровані? Увійдіть тут.
Увійти зараз