SET001 Опубліковано: 3 квітня 2019 Поділитись Опубліковано: 3 квітня 2019 (змінено) В этом месяце у меня наконец-то началась долгожданная стройка. Проект дома обсуждался в этой теме В кратце это дом на 180м2 из газоблока с мансардным этажом и перекрытием из жб плит. Сейчас активно бурлят работы по обустройству фундамента. Поскольку я очень - очень далек от строительной темы, то вся надежда на то, что строители знают что делают и делаю это по совести и хороше. Однако мне хотелось бы услышать мнение бывалых и разбирающихся в теме людей со стороны. Критику и просто сопутствующие мысли. Для начала вот проект фундамента от проектировщика. По нему, глубина фундамента составляет 1,2м, однако армирование лишь один уровень в низу и в верху. Между ними все заливается монолитом бетоном. И проектировщик и строители говорят что это норм. У меня нет причин не доверять им но все же как-то странно, особенно когда гуглишь и видишь что у других армирование идет в несколько уровней на всю глубину траншеи арматурой толщиной с мою ногу. Вот как шел ход работ. Во-первых вырыли котлован под фундамент, ровно, аккуратно, быстро, никаких претензий: дальше песчаная подушка и арматура: Визуально кажется что песчаная подушка чисто символическая, там и сантиментра нету её, не знаю нормально ли это? Может там на самом деле и больше, я в яму не прыгал, пальцем не тыкал... Вчера залили первый слой бетона, как я понял это первые 30см на схеме разреза фундамента. Сегодня сооружали опалубку, завтра будут заливать до уровня земли. А потом еще уровень армирования и цокольный уровень, но это уже на след неделе. Как-то так. Насколько вообще нормально разбивать заливку фундамента на несколько дней? Змінено 3 квітня 2019 користувачем SET001 Посилання на коментар Поділитися на інших сайтах More sharing options...
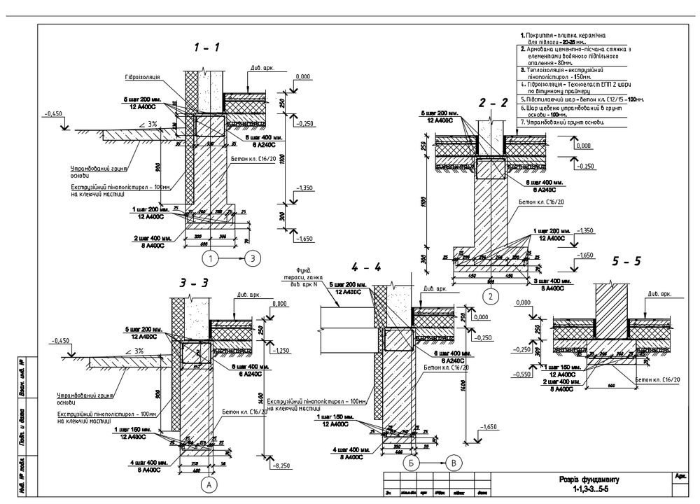
@nokhin Опубліковано: 3 квітня 2019 Поділитись Опубліковано: 3 квітня 2019 Креслення як креслення Згідно креслення знизу має бути 3 нитки в тонших стінах і 5 в товщих стінах арматури 12 мм, перемички з арматури 8 мм. У Вас лише 2 нитки з перемичками з катанки Імхо, халтура 6 Посилання на коментар Поділитися на інших сайтах More sharing options...
Drosselbeere Опубліковано: 4 квітня 2019 Поділитись Опубліковано: 4 квітня 2019 Насколько вообще нормально разбивать заливку фундамента на несколько дней? В вашем случае вообще не имеет значение на сколько во времени вы растяните заливки Посилання на коментар Поділитися на інших сайтах More sharing options...
wipe Опубліковано: 4 квітня 2019 Поділитись Опубліковано: 4 квітня 2019 Про две нитки сказали, из того, что вижу, углы и Т образные примыкания как не умели вязать (армировать) так и не умеют. 3 Посилання на коментар Поділитися на інших сайтах More sharing options...
SET001 Опубліковано: 5 квітня 2019 Автор Поділитись Опубліковано: 5 квітня 2019 Про две нитки сказали, из того, что вижу, углы и Т образные примыкания как не умели вязать (армировать) так и не умеют. это сильно критично? есть где посмотреть/почитать как должно быть по уму? Добавлено через 1 минуту В вашем случае вообще не имеет значение на сколько во времени вы растяните заливки какие факторы из моего случая на это влияют? Посилання на коментар Поділитися на інших сайтах More sharing options...
Сергей НСТ Опубліковано: 5 квітня 2019 Поділитись Опубліковано: 5 квітня 2019 ...но все же как-то странно, особенно когда гуглишь и видишь что у других армирование идет в несколько уровней на всю глубину траншеи арматурой толщиной с мою ногу.. Возможно по расчетным нагрузкам достаточно и столько продольных стержней внизу и вверху, но почему нет вертикальных хомутов, мне непонятно. В случае расслоения бетонной конструкции по холодному шву, низ и верх фундамента будут работать отдельно друг от друга, значит никак не работать. Кирпичи вместо фиксаторов защитного слоя это классика рукожопства, ну и вязка каркаса выше уже написали, что неправильно. Посилання на коментар Поділитися на інших сайтах More sharing options...
Скромный прораб Опубліковано: 5 квітня 2019 Поділитись Опубліковано: 5 квітня 2019 Возможно по расчетным нагрузкам достаточно и столько продольных стержней внизу и вверху, но почему нет вертикальных хомутов, мне непонятно. В случае расслоения бетонной конструкции по холодному шву, низ и верх фундамента будут работать отдельно друг от друга, значит никак не работать. Кирпичи вместо фиксаторов защитного слоя это классика рукожопства, ну и вязка каркаса выше уже написали, что неправильно. Что связывает пятку фундамента и армопояс, когда между ними два-три ряда ФБС? Посилання на коментар Поділитися на інших сайтах More sharing options...
Сергей НСТ Опубліковано: 5 квітня 2019 Поділитись Опубліковано: 5 квітня 2019 Что связывает пятку фундамента и армопояс, когда между ними два-три ряда ФБС? Дорогой коллега, вот зря, чесслово зря :D Пята сборно-монолитного фундамента не может быть армирована плоской сеткой, она обязательно армируется пространственным каркасом, т.е. нижней и верхней сеткой, дабы работать на изгиб в любом направлении, а не лишь в одном. Даже если пята сборная, монтаж фбс выполняется с перевязкой швов, как в кладке, а в идеале со сваркой по закладным. Сами ФБС это на Ваш взгляд бетонная конструкция или железобетонная? ;) Посилання на коментар Поділитися на інших сайтах More sharing options...
Скромный прораб Опубліковано: 5 квітня 2019 Поділитись Опубліковано: 5 квітня 2019 Дорогой коллега, вот зря, чесслово зря :D Пята сборно-монолитного фундамента не может быть армирована плоской сеткой, она обязательно армируется пространственным каркасом, т.е. нижней и верхней сеткой, дабы работать на изгиб в любом направлении, а не лишь в одном. Даже если пята сборная, монтаж фбс выполняется с перевязкой швов, как в кладке, а в идеале со сваркой по закладным. Сами ФБС это на Ваш взгляд бетонная конструкция или железобетонная? ;) Про монтаж ФБС с перевозкой швов... ага, спасибо, даже не знал, спасибо форуму и Вам лично:D Посилання на коментар Поділитися на інших сайтах More sharing options...
SET001 Опубліковано: 5 квітня 2019 Автор Поділитись Опубліковано: 5 квітня 2019 не может быть армирована плоской сеткой, она обязательно армируется пространственным каркасом так у меня по проекту там плоская сетка, по Вашему и проектировщик не прав? Посилання на коментар Поділитися на інших сайтах More sharing options...
Скромный прораб Опубліковано: 5 квітня 2019 Поділитись Опубліковано: 5 квітня 2019 так у меня по проекту там плоская сетка, по Вашему и проектировщик не прав? Не слушайте никого, пятиэтажки на таких фундаментах стоят и ничего. Вот только дальше держите все на контроле, прецендент есть, нитку арматуры сперли, неприятно. Посилання на коментар Поділитися на інших сайтах More sharing options...
SET001 Опубліковано: 5 квітня 2019 Автор Поділитись Опубліковано: 5 квітня 2019 вчера залили фундамент до уровня земли фоткал сегодня часа в четыре вечера с понедельника они будут сооружать опалубку для цоколя и в среду будут заливать его Посилання на коментар Поділитися на інших сайтах More sharing options...
Скромный прораб Опубліковано: 5 квітня 2019 Поділитись Опубліковано: 5 квітня 2019 вчера залили фундамент до уровня земли фоткал сегодня часа в четыре вечера [ATTACH]655154[/ATTACH][ATTACH]655155[/ATTACH] [ATTACH]655156[/ATTACH][ATTACH]655157[/ATTACH][ATTACH]655158[/ATTACH][ATTACH]655159[/ATTACH] с понедельника они будут городить опалубку для цоколя и в среду будут заливать его Что то поспешил я написать "не беспокоиться", что за срань на ленте? Что за свиньи. Дошло(((, вчера залили, а сегодня сняли опалубку и засыпали? 2 Посилання на коментар Поділитися на інших сайтах More sharing options...
SET001 Опубліковано: 5 квітня 2019 Автор Поділитись Опубліковано: 5 квітня 2019 я может что-то не так понял но вроде как у них были какие-то проблемы при выковыривании опалубки. В любом случае это не критично ведь? Я так понял главное проследить чтоб перед след заливкой они этот слой начисто почистили или тут есть более серъезные поводы для волнений? Меня больше смущают крошки бетона вокруг, на фотках их хроше видно. Я взял такой кусочек в руки и он запросто раскрошился в руках, может бетон просто еще не схватился, а может я уже должен бить в колокола? Посилання на коментар Поділитися на інших сайтах More sharing options...
Скромный прораб Опубліковано: 5 квітня 2019 Поділитись Опубліковано: 5 квітня 2019 с понедельника они будут сооружать опалубку для цоколя и в среду будут заливать его Вот и снимали бы с понедельника, что за непонятная спешка, закрыть засыпав? Что? Нееее, пересматривайте свое отношение к стройке - приехал, посмотрел, уехал... может плохо закончится(((. Посилання на коментар Поділитися на інших сайтах More sharing options...
SET001 Опубліковано: 5 квітня 2019 Автор Поділитись Опубліковано: 5 квітня 2019 Вот и снимали бы с понедельника, что за непонятная спешка, закрыть засыпав? Что? Нееее, пересматривайте свое отношение к стройке - приехал, посмотрел, уехал... может плохо закончится(((. А в какую сторону советуете пересматривать? я очееень далек от стройки был до тех пор пока сам не ввязался. Приезжаю каждый день, минимум через день. Постоянно фоткаю все, потом приезжаю домой и пытаюсь переосмыслить фотки, с людьми проконсультироваться. Роликов каждый день поглощаю кучу но профф строителем же меня это не сделает. Это ж только начало, вырыли яму да залили бетоном, большое ли дело, но я хочу на этом этапе понять с кем работаю и как себя дальше вести. Посилання на коментар Поділитися на інших сайтах More sharing options...
Сергей НСТ Опубліковано: 5 квітня 2019 Поділитись Опубліковано: 5 квітня 2019 Про монтаж ФБС с перевозкой швов... ага, спасибо, даже не знал, спасибо форуму и Вам лично:D Вы, не расстраивайтесь на счет прогулянных сессий и купленных зачетов :D Сегодня есть Гугля, которая может помочь восполнить бездарно прожитые студенческие годы https://www.google.com.ua/search?newwindow=1&q=схема+монтажа+фбс+в+сборных+фундаментах&tbm=isch&source=univ&client=opera&sa=X&ved=2ahUKEwiojs2xs7nhAhUxtIsKHa5uAIkQsAR6BAgcEAE&biw=1366&bih=658 Посилання на коментар Поділитися на інших сайтах More sharing options...
@nokhin Опубліковано: 5 квітня 2019 Поділитись Опубліковано: 5 квітня 2019 а может я уже должен бить в колокола? По кресленню там мав бути екструдер 100 мм на мастиці. Коли збираються вкладати, чому засипали одразу? 2 Посилання на коментар Поділитися на інших сайтах More sharing options...
Сергей НСТ Опубліковано: 5 квітня 2019 Поділитись Опубліковано: 5 квітня 2019 так у меня по проекту там плоская сетка, по Вашему и проектировщик не прав? Вы, не поняли написанное выше. Человек считавший и проектировавший Ваш фундамент, предполагал его монолитную конструкцию. Не послойную, не сборную из ФБС (на что ссылается коллега), а именно монолитную. В таком случае в данной балке будет работать нижняя и верхняя продольная арматура на растяжение и на сжатие, а так же бетон сжатых зон сечения на сжатие. Если же под нагрузкой данный фундамент расслоится по холодным швам, то расчет уже будет не верен и несущей способности может оказаться недостаточно. Кроме того, нет ни вертикальных сеток, ни хомутов принимающих косые напряжения в балке, что очень странно, как для профконструктора ж/б изделий. 1 Посилання на коментар Поділитися на інших сайтах More sharing options...
SET001 Опубліковано: 5 квітня 2019 Автор Поділитись Опубліковано: 5 квітня 2019 По кресленню там мав бути екструдер 100 мм на мастиці. Коли збираються вкладати, чому засипали одразу? Они говорят что целесообразно вырыть траншею уже когда дом стоит и прикрепить его к фундаменту. Если изначально делать то типа как некчему крепить. Я ж не шарю, как оно обычно по уму делается то? Посилання на коментар Поділитися на інших сайтах More sharing options...
Сергей НСТ Опубліковано: 5 квітня 2019 Поділитись Опубліковано: 5 квітня 2019 Это ж только начало, вырыли яму да залили бетоном, большое ли дело, но я хочу на этом этапе понять с кем работаю и как себя дальше вести. Фотки кривого фундамента постфактум не спасут будущее здание от разрушения. Думаю что верхнюю часть, т.е. по факту армопояс :D Вашего сборного фундамента нужно сделать с большииииииим запасом по прочности и лучше проконсультироваться у профи конструкторов, на форуме такие есть. Посилання на коментар Поділитися на інших сайтах More sharing options...
Скромный прораб Опубліковано: 5 квітня 2019 Поділитись Опубліковано: 5 квітня 2019 Они говорят что целесообразно вырыть траншею уже когда дом стоит и прикрепить его к фундаменту. Если изначально делать то типа как некчему крепить. Я ж не шарю, как оно обычно по уму делается то? По какому критерию выбирали строителей? Посилання на коментар Поділитися на інших сайтах More sharing options...
xPavelx Опубліковано: 5 квітня 2019 Поділитись Опубліковано: 5 квітня 2019 Они говорят что целесообразно вырыть траншею уже когда дом стоит и прикрепить его к фундаменту. Если изначально делать то типа как некчему крепить. Я ж не шарю, как оно обычно по уму делается то? Я бы выставил экструдер как опалубку и залил бы. Теперь будете откапывать траншею и крепить его на грязные кривые стены фундамента 2 Посилання на коментар Поділитися на інших сайтах More sharing options...
Сергей НСТ Опубліковано: 5 квітня 2019 Поділитись Опубліковано: 5 квітня 2019 Они говорят что целесообразно вырыть траншею уже когда дом стоит и прикрепить его к фундаменту. Если изначально делать то типа как некчему крепить. Я ж не шарю, как оно обычно по уму делается то? Заложив ЭППС до бетонирования. крепить его уже ни к чему не нужно было бы :D А так да, нужно будет раскопать кубов 20, да покрепить эн квадратов, да обратную засыпку сделать кубов 18, внимание! - с послойным уплотнением ;) Все ж копеечка... А что с Вас взять за укладку ЭППС рядом с арматурой? На пиво разве что :D 1 Посилання на коментар Поділитися на інших сайтах More sharing options...
SET001 Опубліковано: 5 квітня 2019 Автор Поділитись Опубліковано: 5 квітня 2019 Человек считавший и проектировавший Ваш фундамент, предполагал его монолитную конструкцию. Все так. Когда я перезвонил проектировщику мне показалось он немного напрягся когда я сказал ему что льют слоями. Рассказал что было бы не плохо выпустить арматуру перед след слоем ну или на худой конец, просмотрев фотки ленты, тщательно промыть еще перед след заливкой. Однако вот @Drosselbeere утверждает что: В вашем случае вообще не имеет значение на сколько во времени вы растяните заливки Посилання на коментар Поділитися на інших сайтах More sharing options...
Рекомендовані повідомлення
Створіть акаунт або увійдіть у нього для коментування
Ви маєте бути користувачем, щоб залишити коментар
Створити акаунт
Зареєструйтеся для отримання акаунта. Це просто!
Зареєструвати акаунтУвійти
Вже зареєстровані? Увійдіть тут.
Увійти зараз