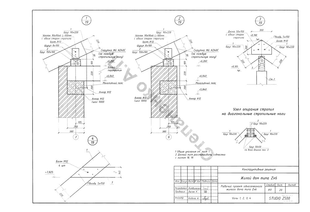
stepa12345 Опубліковано: 14 листопада 2019 Поділитись Опубліковано: 14 листопада 2019 Интересует мнение поводу опирание мауэрлата на балки перекрытие и на газобетон. Посилання на коментар Поділитися на інших сайтах More sharing options...
razzil Опубліковано: 14 листопада 2019 Поділитись Опубліковано: 14 листопада 2019 Бред какой-то, оба узла. Зачем ставить все на голову на ровном месте и не использовать стандартные решения с армопоясом под балки перекрытия и армопоясом под мауэлат? 1 Посилання на коментар Поділитися на інших сайтах More sharing options...
stepa12345 Опубліковано: 14 листопада 2019 Автор Поділитись Опубліковано: 14 листопада 2019 Так я и спрашиваю мнение на жизнь такого решение. Были даны именно такой чертеж у меня закрались опасения. Посилання на коментар Поділитися на інших сайтах More sharing options...
andrey_ka Опубліковано: 14 листопада 2019 Поділитись Опубліковано: 14 листопада 2019 вузол 1/19: Мауерлат викинути , крокви сперти беспосередньо на балки перекриття. вузол 2/19: Мауерлат викинути , замість мвуерлата встановити додаткову балку перекриття , яка буде спиратись на армопояс , і на неї сперти крокви. Замість скрутки з проволоки я б використав полосу 50х4мм , забетоновану в армопояс. Виглядає це ось так. Посилання на коментар Поділитися на інших сайтах More sharing options...
OlegArh Опубліковано: 15 листопада 2019 Поділитись Опубліковано: 15 листопада 2019 вузол 1/19: Мауерлат викинути , крокви сперти беспосередньо на балки перекриття. вузол 2/19: Мауерлат викинути , замість мвуерлата встановити додаткову балку перекриття , яка буде спиратись на армопояс , і на неї сперти крокви. Замість скрутки з проволоки я б використав полосу 50х4мм , забетоновану в армопояс. Виглядає це ось так. Более глупых рекомендаций еще не встречал. Спросите у Гугла: "зачем нужен мауэрлат"? ПыСы. За такие опирание стропил, и "связь" стропил с балками (как на фото), руки нужно отрывать. Но можно и комиксы по ним рисовать. Добавлено через 22 минуты Интересует мнение поводу опирание мауэрлата на балки перекрытие и на газобетон.Опирание балок на армопояс - нормально. Опирание стоек на балки перекрытия - вроде как похоже на правду, кроме : между осями 5 и 6, стоит стойка, подпирающая конек - потянет-ли от нее нагрузку балка перекрытия, ибо нагрузочка там "придет" в 1,5-2 тонны. Спросите у проектировщика. Да и сечение деревяшек, как бы "нестандартное" - та же указанная балка 220*270. Найдете такую? 5 Посилання на коментар Поділитися на інших сайтах More sharing options...
stepa12345 Опубліковано: 15 листопада 2019 Автор Поділитись Опубліковано: 15 листопада 2019 Спрошу поповоду нагрузки, они проектировали под керамическу черепицу но буду ложить что-то другое(битумку или металочерепицу). Поповоду сечение найти можно если заранее заказать но еще не спрашивал. Посилання на коментар Поділитися на інших сайтах More sharing options...
andrey_ka Опубліковано: 16 листопада 2019 Поділитись Опубліковано: 16 листопада 2019 ПыСы. За такие опирание стропил, и "связь" стропил с балками (как на фото), руки нужно отрывать. Но можно и комиксы по ним рисовать. Чому ,так не можна звязувати крокви з балками? Посилання на коментар Поділитися на інших сайтах More sharing options...
OlegArh Опубліковано: 19 листопада 2019 Поділитись Опубліковано: 19 листопада 2019 Чому ,так не можна звязувати крокви з балками? У стропил нет т.н. "зуба", т.е. они ни во что не упираются, а значит могут скользить по балке, а такое крепление (лентой) дает им такую возможность, потому, что подвижное. Но это все при условии, что в коньке стропила ни на что не опираются - висячая ситема. Если несущий коньковый прогон есть, то можно и так оставить Посилання на коментар Поділитися на інших сайтах More sharing options...
andrey_ka Опубліковано: 19 листопада 2019 Поділитись Опубліковано: 19 листопада 2019 У стропил нет т.н. "зуба", т.е. они ни во что не упираются, а значит могут скользить по балке, а такое крепление (лентой) дает им такую возможность, потому, что подвижное. Но это все при условии, что в коньке стропила ни на что не опираются - висячая ситема. Если несущий коньковый прогон есть, то можно и так оставить Звичайно прогін є, і крокви мають щонайменше дві точки опирання. Потрібно було просто запитати , а не руки висмикувати. Пс... Там не "лента" , а полоса 50х4мм , і я боюсь навіть уявити яки має бути навантаження , щоб цю полосу зігнуло на ребро. Посилання на коментар Поділитися на інших сайтах More sharing options...
OlegArh Опубліковано: 19 листопада 2019 Поділитись Опубліковано: 19 листопада 2019 Звичайно прогін є, і крокви мають щонайменше дві точки опирання. Потрібно було просто запитати , а не руки висмикувати. Пс... Там не "лента" , а полоса 50х4мм , і я боюсь навіть уявити яки має бути навантаження , щоб цю полосу зігнуло на ребро.Ота "полоса 50х4" - при таком креплении, гуляет как захочет, так что - не аргумент. Пс...Тоб то руки висмикував "по теме". Посилання на коментар Поділитися на інших сайтах More sharing options...
andrey_ka Опубліковано: 19 листопада 2019 Поділитись Опубліковано: 19 листопада 2019 Ота "полоса 50х4" - при таком креплении, гуляет как захочет, так что - не аргумент. Пс...Тоб то руки висмикував "по теме". Ні, Ви не праві , полоса жорстко закріпленна в армопоясі ,плюс прикручена що до крокви , що до балки. Наведіть приклад, при якому ота полоса буде гуляти ? Пс... По темі , вважав і вважаю , що в данному випадку при наявності армопояса мауерлат там зайвий . Ніякої корисної функції він не несе. Масло масляне. Посилання на коментар Поділитися на інших сайтах More sharing options...
windyhead Опубліковано: 20 листопада 2019 Поділитись Опубліковано: 20 листопада 2019 Ні, Ви не праві , полоса жорстко закріпленна в армопоясі ,плюс прикручена що до крокви , що до балки. Наведіть приклад, при якому ота полоса буде гуляти ? а де там армопояс? Пс... По темі , вважав і вважаю , що в данному випадку при наявності армопояса мауерлат там зайвий . Ніякої корисної функції він не несе. Чи маєте на таке достатню кваліфікацію? Посилання на коментар Поділитися на інших сайтах More sharing options...
Фрай Опубліковано: 20 листопада 2019 Поділитись Опубліковано: 20 листопада 2019 ... По темі , вважав і вважаю , що в данному випадку при наявності армопояса мауерлат там зайвий . Ніякої корисної функції він не несе... Правильно! А вместо гвоздей лучше использовать саморезы, крепче будут держать. :D И вааще на крыше делают много лишнего. Ту же мембрану взять. Зачем ещё и контррейку бить? Мембрана все равно провисает, вода и так стечёт. (правда в никуда) Посилання на коментар Поділитися на інших сайтах More sharing options...
andrey_ka Опубліковано: 20 листопада 2019 Поділитись Опубліковано: 20 листопада 2019 а де там армопояс? Чи маєте на таке достатню кваліфікацію? Балки прекриття лежать на армопоясі. Ні , не маю. Посилання на коментар Поділитися на інших сайтах More sharing options...
OlegArh Опубліковано: 22 листопада 2019 Поділитись Опубліковано: 22 листопада 2019 Ні , не маю. "Досвiду не маю, але iнших повчаю." Посилання на коментар Поділитися на інших сайтах More sharing options...
andrey_ka Опубліковано: 22 листопада 2019 Поділитись Опубліковано: 22 листопада 2019 "Досвiду не маю, але iнших повчаю." Чому Ви вирішили , що я когось повчаю? Я надаю максимально обективну інформацію, а "ТС" сам вирішить як йому вчинити. Чим більше буде таких варіантів , тим краще рішення він зможе прийняти. І що зміниться , якшо я скакжу , що в мене 100років досвіду , та купа дипломів. Ви що , автоматично станите довіряти усьому що я пишу? Он проетувальник , який напевне має і досвід і корочку, примудрився обіперти мауерлат на газоблок. Якщо Ви маєте потрібний досвід , то Ваша ваша відповідь повинна мати таку форму: Мауерлат прибирати не можна , тому що: бла,бла,бла. А так , ні про що. Посилання на коментар Поділитися на інших сайтах More sharing options...
OlegArh Опубліковано: 24 листопада 2019 Поділитись Опубліковано: 24 листопада 2019 І що зміниться , якшо я скакжу , що в мене 100років досвіду , та купа дипломів. Ви що , автоматично станите довіряти усьому що я пишу?Нет, конечно Он проетувальник , який напевне має і досвід і корочку, примудрився обіперти мауерлат на газоблок.Отой "проектувальник" скопировал стандартное решение из 90-х годов прошлого века. Но нынче 21-й век. Правда, несущая способность ГБ не изменилась. Якщо Ви маєте потрібний досвід , то Ваша відповідь повинна мати таку форму: Мауерлат прибирати не можна , тому що: бла,бла,бла. А так , ні про що.Вот тут, в основном соглашусь - мауэрлат убрать нежелательно - хотя бы доску 150-200х50, вместо него. А иначе, к чему крепить стропила? ПыСы. Имею собственное мнение: на любых ячеистых стеновых материалах, армопояс желателен! Хотя, в одноэтажном строительстве, не всегда обязателен, если стропила связаны с балками перекрытия.. Как то так. Посилання на коментар Поділитися на інших сайтах More sharing options...
andrey_ka Опубліковано: 24 листопада 2019 Поділитись Опубліковано: 24 листопада 2019 Вот тут, в основном соглашусь - мауэрлат убрать нежелательно - хотя бы доску 150-200х50, вместо него. А иначе, к чему крепить стропила? Крокви разом з балками закріпити до армопояса , відповідно правильно їх зєднавши (вузол 1/19) . Не дивлячись на те зєднання яке на малюнку. На малюнку я хотів показати , як зєднувати балки та крокви з самим армопоясом. Вузол 2/19: може в першому повідомленні я неправильно висловився , я мав на увазі збільшити мауерлат до перерізу балки перекриття. Пс... У вузлі 1/19 мауерлат створює тільки проблеми, спочатку його самого потрібно надійно закріпити , потім ще до нього надійно привязатись. Посилання на коментар Поділитися на інших сайтах More sharing options...
wertexan Опубліковано: 25 листопада 2019 Поділитись Опубліковано: 25 листопада 2019 Як я радий, що лише читаю цю тему))) Посилання на коментар Поділитися на інших сайтах More sharing options...
Рекомендовані повідомлення
Створіть акаунт або увійдіть у нього для коментування
Ви маєте бути користувачем, щоб залишити коментар
Створити акаунт
Зареєструйтеся для отримання акаунта. Це просто!
Зареєструвати акаунтУвійти
Вже зареєстровані? Увійдіть тут.
Увійти зараз