Andrei constructor Опубліковано: 31 травня 2020 Поділитись Опубліковано: 31 травня 2020 Зачем выходить на летнюю террасу через тамбур? Выход на террасу нужно предусмотреть из кухни-студии. Там вообще тамбур не нужен. Посилання на коментар Поділитися на інших сайтах More sharing options...
vadimv Опубліковано: 31 травня 2020 Поділитись Опубліковано: 31 травня 2020 давайте ваши мнения (ещё раз) куда лучше всё же его ориентировать а) на север или б) на запад, но оно будет закрыто крышей террасы.Лично я бы сделал на запад, из таких соображений: 1) Меньше холод от окна. 2) Больше света (несмотря на крышу террасы будут попадать прямые лучи низкого солнца). 3) Это окно будет выходить на террасу и в сторону своего участка, а не на забор и соседний участок. И можно совместить его с дверью на террасу. Посилання на коментар Поділитися на інших сайтах More sharing options...
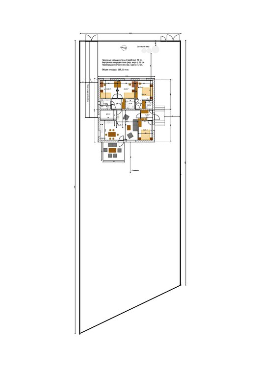
Ковал Опубліковано: 23 серпня 2020 Автор Поділитись Опубліковано: 23 серпня 2020 И снова здравствуйте... немного попустило с работой... праздники-выходные... давайте реанимируем тему плиз Малова-то нарисовали. Размеры каминных топок около 70см×50см. И плюс короб и дымоход. ага... поправил (100х50) Как это не важно? Основная задача системы отопления - компенсировать теплопотери. Как вы ее будете планировать не имея представления об уровне этих потерь? Допустим без ТА вы будете платить 2 500 грн в отопительный месяц, а с ТА - 2 000. Экономия - 500 грн. Но ТА и обвязки с доп.оборудованием будут стоить 60 000. Окупаемость ТА - 120 отопительных месяцев. Или около 15 лет. Есть лисмысл в ТА в этом случае? Или лучше эти деньги потратить на доп.утепление с окупаемость в 5 лет? пока чешу репу... склоняюсь к танцам с бубном вокруг газа А какие у вас ограничения? У вас какое перекрытие? А крыша? предполагается ж.б. плиты (несущая стена посередине, которая кирпичная и две наружные из газоблока) И кстати, если из ваших 40 м.кв вычесть кухню, проходные и нефункциональные зоны, закуток при входе, то гостиная получиться около 20 м.кв. Обратите на это внимание. обратил, спасибо... и за идею с гостевым туалетом тоже спасибо... в общем несколько изменил планировку... давайте обсуждать И еще, у вас много дверей в углах. Двери вы скорее всего будете ставить традиционные. Т.е. будут наличники. Чтоб их нормально установить нужно чтоб от края проема до угла было 7-10-15 см на этом рисунке уже все с наличниками. А как планируете вентиляцию организовывать? Из каждого угла свой вент.канал? пока нет окончательного решения Вы вроде как спросили мнение коллективного опыта, при этом почему-то отвергаете значительную часть этого опыта.не отвергаю... посмотрите на начальный план дома в первом сообщении так что прошу высказываться дальше... Лично я бы сделал на запад спасибо за мнение и аргументацию... пока оставлю на север, но думаю над этим... Посилання на коментар Поділитися на інших сайтах More sharing options...
tort Опубліковано: 23 серпня 2020 Поділитись Опубліковано: 23 серпня 2020 в общем несколько изменил планировку... давайте обсуждать Нічого не змінилося на краще. Це кого ви так не любите з кімнати 10,96м2 що зробили їм вихід через вуличний тамбур? Не розумію взагалі ці коридори до спален, але то суб'єктивна думка. А об'єктивна - ті коридори посилюють відокремленість нічних кімнат від денної зони, якщо це не суперечить режиму усіх мешканців, то нехай так і буде. Але чого точно не треба так це по двоє дверей на шляху зі спальні до зали. Достатньо одних дверей, та одного вільного проходу на всю ширину коридору, без чвертей. Тип паче якщо вже всі ті кімнатки, що поряд зі спальнями, долучені функціонально до кожної окремо, то нема сенсу огороджувати спальню від них зайвими дверима. Якщо Дві спальні мають один загальний коридор, то тоді навпаки спальні мають двері, а між коридором та залою робиться звичайний прохід. Там вже є двері у санвузлі, куди ще? Уявляєте повернення дитини з тренування чи прогулянки? Відкрили одні двері до коридору, пройшли коридор, відкрили у спальню, взяли рушник, чисту зміну одягу, закрили спальню, відкрили треті двері у душову... Далі головне опитати своїх мешканців, а не нас. Ви побажання кожного з них врахували, чи це планування - то лише проекція вашого власного уявлення про будинок? Може варто показати їм де ви плануєте їх розмістити, та корегувати план по їх відгукам. Мова звісно про старше покоління. Наприклад два ліжка у їх віці доречніші за двоспалку, треба такі моменти враховувати вже зараз, бо то різні за площею варіанти вийдуть. Два холодильника побачив, варто продумати щоб доготовочних зон теж було дві. Далі, не завадить комора для продуктів довготривалого зберігання, додаткового посуду, банок склянок тощо. Це знов таки як мінімум шафа шириною 120, а краще вже окрему комору. Бо якщо є присадибна ділянка, то там багато чого буде рости і це треба якось переробляти за допомогою різних агрегатів, і десь треба це все зберігати. Камін затулив вихід, якщо вже його плануєте, то місця малюйте побільше і подалі від дверей, не ближче 0,5 м збоку. Нема куди пральну машину втулити, а на стількох мешканців їх мабуть треба дві, потім де корзини, шафа з хімією, праску - це все потрібно. 1 Посилання на коментар Поділитися на інших сайтах More sharing options...
Ковал Опубліковано: 26 серпня 2020 Автор Поділитись Опубліковано: 26 серпня 2020 Це кого ви так не любите з кімнати 10,96м2 що зробили їм вихід через вуличний тамбур? це скоріш за все гостьова кімната, або кабінет... можливо, у разі якщо щось трапиться, заберу батьків... Два холодильника побачив, варто продумати щоб доготовочних зон теж було дві. Далі, не завадить комора для продуктів довготривалого зберігання, додаткового посуду, банок склянок тощо. Це знов таки як мінімум шафа шириною 120, а краще вже окрему комору. Бо якщо є присадибна ділянка, то там багато чого буде рости і це треба якось переробляти за допомогою різних агрегатів, і десь треба це все зберігати. ой, переробляти та зберігати то не про нас з дружиною ))) якщо говорити про шафу, то тоді дійсно, як казав @vadimv, вікно слід перенести на західний фасад, а вздовж північної стіни розмістити цю шафу... це можливо... ще один плюс до перенесення вікна )) Камін затулив вихід, якщо вже його плануєте, то місця малюйте побільше і подалі від дверей, не ближче 0,5 м збоку. прохід планувався між кріслом та диваном... Нема куди пральну машину втулити, а на стількох мешканців їх мабуть треба дві, потім де корзини, шафа з хімією, праску - це все потрібно. у котельню (6,43 м.кв) Посилання на коментар Поділитися на інших сайтах More sharing options...
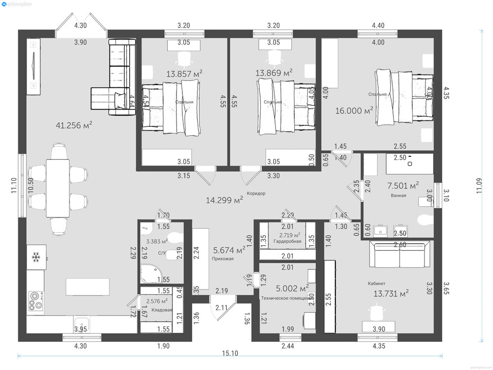
bbors Опубліковано: 30 серпня 2020 Поділитись Опубліковано: 30 серпня 2020 Три санвузли у такому невеликому домі — це забагато. Як би зручно це не здавалося, у вас не буде у них потреби. Видаливши один з них, ви значно полегшите собі життя — і в плані площі, і в плані розведення комунікацй. А взагалі, вам варто поглянути на щось зовсім інше. Тому що ваша вітальня досі залишається прохідним холлом, у вас велика кількість дверей, перестінків і місць, де людям доведеться розминатися боком. У додатку ескіз планування, який я розглядаю для себе. Тут 140 квадратів, але можна, наприклад, зменшити довжину на метр (з 11 до 10) і звузити вітальню з кухнею на півметра — матимете ваші 120 квадратів, а то й менше. 2 Посилання на коментар Поділитися на інших сайтах More sharing options...
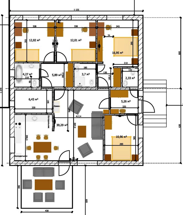
Ковал Опубліковано: 6 вересня 2020 Автор Поділитись Опубліковано: 6 вересня 2020 (змінено) @bbors, спасибо, что поделились планом... мне он понравился, красивый и удобный... правда. Но с его расположением на моем участке, как мне кажется, есть некоторые проблемы... у меня фасад участка 20 м., который ориентирован на запад, куда и хотелось бы сориентировать спальни... также там есть ещё нюанс с расположением фильтрационного колодца соседа, но об этом пойдет речь ниже... ну, и участок с незначительным, но всё же уклоном вглубь (восток)... поэтому не хочется тянуться в глубь, но как вариант я его всё же себе оставлю, поэтому просьба рассказать про перекрытия, как Вы планировали их устроить. Спасибо. Ну, теперь о том, что у меня... Итак, как выяснилось у соседа на участке в 8 м от его фасада и 3 м (края ямы) от нашего забора расположен фильтрационный колодец диаметром 1,5 м., который, как говорит сосед, у него оформлен, как выгребная яма. Я полез в интернет и вот, что он мне рассказал: ПРИБУДИНКОВА ВИГРІБНА ЯМА – САНІТАРНІ НОРМИ ТА БЕЗПЕЧНЕ ЇЇ ВИКОРИСТАННЯ Проектування і облаштування системи автономної каналізації приватного домоволодіння пов’язане з дотриманням санітарних вимог, визначених норм і правил, які обов’язкові для виконання. У разі порушення пунктів санітарних норм при проектуванні та будівництві вигрібної ями експлуатація її потім може привести до безлічі проблем і чималих штрафів. Вигрібна яма являє собою ємність для накопичення побутових стоків. Для визначення її місцезнаходження та узгодження з регламентами санітарних норм необхідно проаналізувати свою ділянку та прилеглу територію. За санітарними вимогами вона повинна бути вилучена: – Від сусіднього будинку і його споруд – на 10-12 метрів. – Меж ділянки – не менше ніж на 1,5 метра. – Житлового будинку – на відстань від 8 до 10 метрів. – Водозабірних колодязів – на 20 метрів. – Водопровідних труб – на 25 метрів. – Підземних течій ґрунтових вод – на 25 метрів. – Газових труб – на 5 метрів. При будівництві вигрібної ями потрібно враховувати стан грунту в місці розташування пристрою. На глинистих ґрунтах природні колодязі по санітарним вимогам повинні знаходитися на відстані 20 метрів від ями. На суглинних грунтах вони віддаляються на 30, а на піщаних або суперпесчаних на 50 метрів. kor-rada.gov.ua/uncategorized/prybudynkova-vygribna-yama-sanitarni-normy-ta-bezpechne-yiyi-vykorystannya Я несколько подофигел от 10-12 м. от соседа... мне не понятно, почему от моего дома до ямы (фильтр. ко-ца) по ДБНу достаточно 8 м.куб (производительностью до 1 куб.м./сут.), а до соседа нужно уже минимум 10 м. Я так и не нашел ответ на этот вопрос... прошу помощи, может кто-то знает источник... выше указанное разъяснение дано на сайте исполкома Херсона... в других источниках я не нашел. Также что-то я запутался и не могу понять какое всё же расстояние должно быть от фасада участка до фильт. к-ца и до септика... тоже прошу помощи. Ну, и исходя из 10 м. от соседской ямы (по гипотенузе на плане) я расположил дом и перекроил план (см. прикрепленный файл). Там по нему тоже "потопчитесь" плиз. И еще вопросик, крыльцо выпирает на 0,88 м от фасада, как я понимаю, в таком случае (выступающая до 1 м конструкция из негорючих материалов) отсчет расстояния от дома до края участка будет вестись от цоколя... правильно? Змінено 6 вересня 2020 користувачем Ковал Исправил ориентацию по азимуту Посилання на коментар Поділитися на інших сайтах More sharing options...
tort Опубліковано: 6 вересня 2020 Поділитись Опубліковано: 6 вересня 2020 Также что-то я запутался и не могу понять какое всё же расстояние должно быть от фасада участка до фильт. к-ца и до септика... тоже прошу помощи. ДБН В.2.5-75:2013 КАНАЛІЗАЦІЯ ЗОВНІШНІ МЕРЕЖІ ТА СПОРУДИ Розділ 17, таблиця 30. Статус - діючий. Септик, санзона - 5м, фільтруючий колодязь - 8м. Вигреби нині здається що заборонені, принаймні їх хотіли заборонити. Усі вигреби за нормами "повинні бути виконані з конструкцій, що запобігають фільтрації фекальних стоків у ґрунт". По суті це вже не вигрібна яма, а септик. ДБН Б.2.2-12:2019 ПЛАНУВАННЯ ТА ЗАБУДОВА ТЕРИТОРІЙ Розділ 6, таблиця 6.7 та Додаток И.3 (те саме що і у ДБН В.2.5.75:2013) Взагалі про якусь окрему відстань до сусіднього будинку у нормах нічого немає. Є загальна відстань до житлового будинку. За вашим посиланням судячи з назви документу "СНиП" там застаріла інформація, що посилається на СНиП 2.04.03-85. В Україні мало СНиПів що не замінено на ДБН. 1 Посилання на коментар Поділитися на інших сайтах More sharing options...
Ковал Опубліковано: 6 вересня 2020 Автор Поділитись Опубліковано: 6 вересня 2020 Взагалі про якусь окрему відстань до сусіднього будинку у нормах нічого немає. Є загальна відстань до житлового будинку. та ось і я не знайшов, та вирішив перепитати на всякий випадок... там застаріла інформація написано 05 Сер 2016... може і дійсно застаріло... якщо так, то тоді не буде потреби жатися вхідною групою до паркану... посуну будинок ближче до сусіда Посилання на коментар Поділитися на інших сайтах More sharing options...
bbors Опубліковано: 11 вересня 2020 Поділитись Опубліковано: 11 вересня 2020 просьба рассказать про перекрытия, как Вы планировали их устроить. Ми плануємо дерев'яні перекриття. Цей план ми з дружиною намалювали самостійно, зараз звернулися до архітектора за професійним варіантом на його основі. 1 Посилання на коментар Поділитися на інших сайтах More sharing options...
Ковал Опубліковано: 14 вересня 2020 Автор Поділитись Опубліковано: 14 вересня 2020 не могу понять какое всё же расстояние должно быть от фасада участка до фильт. к-ца и до септика... тоже прошу помощи. пожалуйста, если кто-то знает ссылки на нормы, регламентирующие данные отступы, откликнитесь... Вышгородский отдел градостроения и архитектуры ушел на карантин... телефоны тоже не отвечают, спросить негде Посилання на коментар Поділитися на інших сайтах More sharing options...
tort Опубліковано: 14 вересня 2020 Поділитись Опубліковано: 14 вересня 2020 пожалуйста, если кто-то знает ссылки на нормы, регламентирующие данные отступы, откликнитесь... Вышгородский отдел градостроения и архитектуры ушел на карантин... телефоны тоже не отвечают, спросить негде Два дбн давав вище. ДБН В.2.5-75:2013 КАНАЛІЗАЦІЯ та ДБН Б.2.2-12:2019 ПЛАНУВАННЯ ТА ЗАБУДОВА ТЕРИТОРІЙ. Окремі правила що прийняті місцевими органами, наврядчи хто крім самих місцевих органів може вам надати, хіба що тут земляків зустрінете. Але ці документи мають бути у межах тих норм, що вказані у ДБН. Уважно читайте, у старій сформованій забудові мінімальні відстані інші ніж у новій. 1 Посилання на коментар Поділитися на інших сайтах More sharing options...
Ковал Опубліковано: 15 вересня 2020 Автор Поділитись Опубліковано: 15 вересня 2020 17.1.1 Розміри санітарно-захисних зон від каналізаційних очисних споруд і насосних станцій до межі житлової забудови, ділянок громадських установ, будинків і споруд, продовольчих складів, підприємств харчової промисловості (з урахуванням їх перспективного розширення) слід приймати згідно з таблицею 30. Таблиця 30 - Розміри санітарно-захисних зон споруд каналізації ... Примітка 7. При використанні фільтруючих траншей, фільтруючих колодязів, а також піщано-гравійних фільтрів в якості споруд доочищення після аераційних установок або септиків, які використовуються в якості основних очисних споруд стічних вод, санітарно-захисну зону приймають для: - фільтруючих траншей і піщано-гравійних фільтрів - 25 м; - фільтруючих колодязів - 8 м; - септиків - 5 м; чи слід розуміти, що відстань, вказана у примітці 7 повинна бути застосована при розташуванні септика та фільтруючього колодязя не тільки відносно будинку, але і відносно усіх споруд на ділянці, як то огорожа, альтанка, навіс та інше? Посилання на коментар Поділитися на інших сайтах More sharing options...
tort Опубліковано: 15 вересня 2020 Поділитись Опубліковано: 15 вересня 2020 чи слід розуміти, що відстань, вказана у примітці 7 повинна бути застосована при розташуванні септика та фільтруючього колодязя не тільки відносно будинку, але і відносно усіх споруд на ділянці, як то огорожа, альтанка, навіс та інше? Ні, не слід. Пяснення у п. 17.1.1 Того ж самого Розділу 17, де і таблиця 30. Взагалі санітарно-захисна зона, це для житлової забудови та джерел води. Сараї, гаражі, огорожі, альтанки тощо не є житлом. Другий ДБН більш чітко визначає СЗЗ септика як відстань до будинку що є житлом, але забуває вказати, що то від джерел води також треба відступати. 1 Посилання на коментар Поділитися на інших сайтах More sharing options...
Рекомендовані повідомлення
Створіть акаунт або увійдіть у нього для коментування
Ви маєте бути користувачем, щоб залишити коментар
Створити акаунт
Зареєструйтеся для отримання акаунта. Це просто!
Зареєструвати акаунтУвійти
Вже зареєстровані? Увійдіть тут.
Увійти зараз