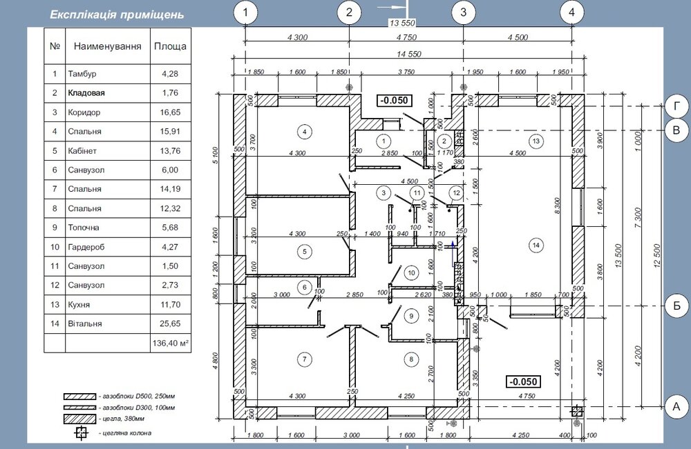
SergeyGM Опубліковано: 12 вересня 2020 Поділитись Опубліковано: 12 вересня 2020 (змінено) Привет всем читателям форума. Настала и моя очередь начать репортаж с моей долгожданной стройки. Пообщавшись со многими знакомыми, у которых есть опыт проживания как 2-х так и в 1-этажных домах, и взвесив для себя все "за" и "против", остановился на стиле жизни в один уровень. В доме планируется постоянно проживать 5 чел, поэтому немаловажно было подобрать оптимальную планировку на 4 спальни. И у меня и жены выбор остановился на Z67 A. В этом проекте под доработку попали терасса, санузел и топочная. В оригинале они весьма компактные. А в санузле очень захотелось еще и получить окно. И, как следствие, после легкого растягивания дома, появилась возможность заиметь еще и гардеробную. Площадь застройки - 196,4 м2 (в оригниале - 189м2). Жилая - 136,4. Терасса - 19,95м2 Фундамент - плита. Стены внешние ГБ с D300-ширина 500 mm, несущие - D500 ширина 250 мм, межкомнатные - D500 ширина 100 мм Крыша битумная вальмовая 4-х скатная 25 градусов. Отопление+ГВС - газовый котел. Резервное - электрокотел. Теплые полы - склоняюсь к комбинированному варианту. Т.е, в спальнях ставить радиаторы, в остальных помещениях - ТП. Но еще окончательно не решил так как не изучил тему напольных покрытий. Не укладывается в голове как в спальнях ходить по кафелю Септик - пока из реальных рассматриваю Никос-Буд Скважину уже сделал @Simp, 60 м, с кессоном и погружным насосом Змінено 13 вересня 2020 користувачем SergeyGM 15 Посилання на коментар Поділитися на інших сайтах More sharing options...
SergeyGM Опубліковано: 12 вересня 2020 Автор Поділитись Опубліковано: 12 вересня 2020 На этом фото рабочий вариант расположения мебели и сан техеники. Пытаюсь все еще оптимизировать размеры комнат не затрагивая несущих и внешних стен. И принято решение увеличить отступ от фасада до 7 метров с расчетом того, чтоб в С-В углу мог еще поместиться септик с дренажными модулями. 4 Посилання на коментар Поділитися на інших сайтах More sharing options...
ARCH INNOVATION Опубліковано: 13 вересня 2020 Поділитись Опубліковано: 13 вересня 2020 Мне всё нравится. Желаю удачи! 1 Посилання на коментар Поділитися на інших сайтах More sharing options...
shneider_vova Опубліковано: 13 вересня 2020 Поділитись Опубліковано: 13 вересня 2020 1) а чего внутренние стены не из кирпича? Повысите теплоемкость, увеличите звукоизоляцию. Имхо 2) на кухне, мне кажется, рабочий треугольник сильно растянут. Попробуйте смоделировать внатуре и походить. В нашем городе blum сделает вариант моделирования из стандартных кухонных модулей в из магазине, поищите. 3) в гостиной телевизора нет? 4) соседство котельной и спальни может быть не очень приятно по звукам, может, утолщить стену между ними? 5) парковки-дорожки - уточните, где будет калитка, и какой тип ворот. Если откатные, то придется, как я понимаю, калитку делать в воротах, что не совсем стандартно и удобно. Ну и дорожка вроде как не предусмотрена после калитки (там узкий проход вдоль машины, маловато, как мне кажется, особенно если дети есть, которые будут бегать и царапать) 4 Посилання на коментар Поділитися на інших сайтах More sharing options...
Vikctor Опубліковано: 13 вересня 2020 Поділитись Опубліковано: 13 вересня 2020 ...межкомнатные - D500 ширина 100 мм ... Я бы заменил на полкирпича полнотелого. Со штукатуркой с двух сторон будет достаточный уровень звукоизоляции. С ГБ 100мм этого не будет... ...Отопление+ГВС - газовый котел. Резервное - электрокотел... Дело конечно хозяйское, но электричество ночью с тарифом "электроотопление" заметно дешевле чем газ. Если жизнь без газа не мила, то что мешает топить днём газом, а ночью электричеством?... ... Не укладывается в голове как в спальнях ходить по кафелю ... Если плитка в спальнях табу, то существует виниловая плитка (гуглите декотайл), либо с достаточным слоем утепления тот же ламинат. Всё отлично уживётся с ТП. 2 Посилання на коментар Поділитися на інших сайтах More sharing options...
vadimv Опубліковано: 13 вересня 2020 Поділитись Опубліковано: 13 вересня 2020 Не укладывается в голове как в спальнях ходить по кафелю Мы недавно снимали на 2 суток квартиру в новострое со свежим ремонтом - плитка везде, по всему полу. Возле кроватей - кусочки ковриков. Мне в тапках - норм. Дело привычки. 2) на кухне, мне кажется, рабочий треугольник сильно растянут.А посередине - это остров нарисован? Если остров - то норм. А если обеденный стол - то там тесно будет. Я бы его вынес на свободное место у окна. 1 Посилання на коментар Поділитися на інших сайтах More sharing options...
SergeyGM Опубліковано: 13 вересня 2020 Автор Поділитись Опубліковано: 13 вересня 2020 1) да, есть сомнения хватит ли 10 см перегородок ГБ 2) и тут вы правы. Долго с женой крутили и так и этак. Думаю мебель дизайнить паралельно с размерами окон. Мне кажется что ширина кухонного окна 1,6м широковато (но красиво и много света) с учётом что есть второе. Из-за этого возникают ограничения с газовой плитой и не хочется ее в углу ставить. 3) да, привыкли жить без телевизора 4) это для меня сейчас самая животрепещущая тема. До сих пор хочется вернуть котельную к тамбуру. Есть мысли делать звукоизоляцию в топочной какими-то не толстыми материалами, по аналогии с обесшумкой авто. Иначе потеряю в габаритах. 5)калитку ещё не решил где ставить, так как еще дилемма со способом парковки. Или параллельно ставить как на эскизе или перпендикулярно. Ворота будут откатные, 4-4.5 м. Т.е по расчетам от калитки до края ворот должно быть не меньше 10-11,25 м. У мня северный фасад участка - 23 м. Т.е калитка будет где-то посередине. Посилання на коментар Поділитися на інших сайтах More sharing options...
Сергей НСТ Опубліковано: 13 вересня 2020 Поділитись Опубліковано: 13 вересня 2020 полкирпича полнотелого. Со штукатуркой с двух сторон будет достаточный уровень звукоизоляции. С ГБ 100мм этого не будет... Не нагнетайте ) Это же не скворечник в 500 квартир, а частный дом. Вопрос звукоизоляции здесь вообще вторичен. Посилання на коментар Поділитися на інших сайтах More sharing options...
Татьяна5 Опубліковано: 13 вересня 2020 Поділитись Опубліковано: 13 вересня 2020 Не нагнетайте ) Это же не скворечник в 500 квартир, а частный дом. Вопрос звукоизоляции здесь вообще вторичен. На этой площади живут 5 человек. Не упрощайте . Это очень приличное колво людей на площадь дома 8 Посилання на коментар Поділитися на інших сайтах More sharing options...
shneider_vova Опубліковано: 13 вересня 2020 Поділитись Опубліковано: 13 вересня 2020 Из-за этого возникают ограничения с газовой плитой и не хочется ее в углу ставить. я бы посоветовал, если есть еще время, сначала запроектировать кухню. я делал это в онлайн конструкторе. Он простоват, но для определения компоновки и необходимого размера помещения - этого с головой Добавлено через 46 секунд да, привыкли жить без телевизора мы тоже, но место под телик задумано. есть же и кино в конце концов, не только эфир (10 лет не смотрю и не буду). а у вас там камин. Добавлено через 35 секунд Есть мысли делать звукоизоляцию в топочной какими-то не толстыми материалами основное гашение шума - массой. Добавлено через 1 минуту калитку ещё не решил где ставить, так как еще дилемма со способом парковки мне кажется, калитка должна быть близко к воротам. и еще ньюанс - если гости будут заходить через калитку посередине участка, и напротив будут видеть террасу - они будут идти на тот вход. будете все время объяснять, что надо обойти дом и зайти в прихожую - у меня сейчас так, временно, с необустроенным участком получается Добавлено через 44 секунды Вопрос звукоизоляции здесь вообще вторичен. зависит от количества детей. например, у нас получается поспать, пока дети в гостиной бесятся - через 2 двери. Добавлено через 1 минуту Не укладывается в голове как в спальнях ходить по кафелю если вы не очень далеко от Татьяны5, попробуйте напроситься к ней в гости на один из домов на продажу, с ремонтом. В зимний отопительный период. походите босыми ногами, попробуете. В плитке нет ничего страшного. Она не обязательно должна быть под мрамор или гранит 1 Посилання на коментар Поділитися на інших сайтах More sharing options...
Татьяна5 Опубліковано: 13 вересня 2020 Поділитись Опубліковано: 13 вересня 2020 если вы не очень далеко от Татьяны5, попробуйте напроситься к ней в гости на один из домов на продажу, с ремонтом. В зимний отопительный период. походите босыми ногами, попробуете. В плитке нет ничего страшного. Она не обязательно должна быть под мрамор или гранит Да, каг бы, и в мои личных домах так же - плитка везде. По другому себе и не вижу, это оч комфортно. 4 Посилання на коментар Поділитися на інших сайтах More sharing options...
tansss Опубліковано: 13 вересня 2020 Поділитись Опубліковано: 13 вересня 2020 Пропал где то наш ГогаТриТопора. Дык он решил ШИ шкафом-купэ Утверждает - вааще бомба ничё не слышно хоть в бильярд играй ГБ 100 д500 имеет индекс 40 ГБ 150 д500 - 57 Пол кирпича (125мм) - 47 Пол кирпича с двухсторонней штукатуркой по 1,5см (155мм) - 55 5 Посилання на коментар Поділитися на інших сайтах More sharing options...
shneider_vova Опубліковано: 13 вересня 2020 Поділитись Опубліковано: 13 вересня 2020 Да, каг бы, и в мои личных домах так же - плитка везде. По другому себе и не вижу, это оч комфортно. ну я же не могу пригласить ТС в ваш личный дом Я помню, что у вас плитка, это был одно из мнений, повлиявших на мое аналогичное решение Добавлено через 2 минуты Пропал где то наш ГогаТриТопора. Дык он решил ШИ шкафом-купэ Утверждает - вааще бомба ничё не слышно хоть в бильярд играй ГБ 100 д500 имеет индекс 40 ГБ 150 д500 - 57 Пол кирпича (125мм) - 47 Пол кирпича с двухсторонней штукатуркой по 1,5см (155мм) - 55 ну у меня есть ванная за стенкой, отделенная шкафом-купе на всю стену. не очень помогает. кроме того, в котельной - могут быть и ударные шумы, не сильно гасимые стеной Посилання на коментар Поділитися на інших сайтах More sharing options...
SergeyGM Опубліковано: 13 вересня 2020 Автор Поділитись Опубліковано: 13 вересня 2020 @Vikctor, в Межречье есть только ночной тариф за 1 грн/квтч. А мощность после 10 кВт стоит неприличных денег- 1200 долл за 1квт. До 10квт-600 долл за квт. Вот газ и привлек к себе внимание 2 Посилання на коментар Поділитися на інших сайтах More sharing options...
shneider_vova Опубліковано: 13 вересня 2020 Поділитись Опубліковано: 13 вересня 2020 @Vikctor, в Межречье есть только ночной тариф за 1 грн/квтч. А мощность после 10 кВт стоит неприличных денег- 1200 долл за 1квт. До 10квт-600 долл за квт. Вот газ и привлек к себе внимание 600/квт - тоже в общем-то за рамками разумного. я за 20 квт и тариф на электроотопление заплатил 700 уе. а за газ сколько хотят? Посилання на коментар Поділитися на інших сайтах More sharing options...
Сергей НСТ Опубліковано: 13 вересня 2020 Поділитись Опубліковано: 13 вересня 2020 На этой площади живут 5 человек. Не упрощайте . Это очень приличное колво людей на площадь дома Если одной семье некомфортно жить в одном доме, то это уже проблема совсем не шумоизоляции. Не нагнетайте ) Посилання на коментар Поділитися на інших сайтах More sharing options...
shneider_vova Опубліковано: 13 вересня 2020 Поділитись Опубліковано: 13 вересня 2020 Если одной семье некомфортно жить в одном доме, то это уже проблема совсем не шумоизоляции. Не нагнетайте ) расскажите 5 месячному ребенку, когда ему надо спать, а когда кричать. И остальным детям - когда можно шуметь, а когда нет. Вот заведете себе второго/вторую технадзорщицу - - поговорим 4 Посилання на коментар Поділитися на інших сайтах More sharing options...
SergeyGM Опубліковано: 13 вересня 2020 Автор Поділитись Опубліковано: 13 вересня 2020 Газ (входные, проект, подключение) - 2500 +3000. В общем-то не намного дешевле, но хоть какая-то деверсификация поставщиков. В Межречье все на эл.-во завязывать стремно Добавлено через 4 минуты Цитата: Сообщение от SergeyGM Из-за этого возникают ограничения с газовой плитой и не хочется ее в углу ставить. я бы посоветовал, если есть еще время, сначала запроектировать кухню. я делал это в онлайн конструкторе. Он простоват, но для определения компоновки и необходимого размера помещения - этого с головой Да, освоил remplanner, но чувствую что его возможности уже исчерпаны для меня. Может подскажете что-то другое из условно бесплатного? Добавлено через 2 минуты Сообщение от SergeyGM калитку ещё не решил где ставить, так как еще дилемма со способом парковки мне кажется, калитка должна быть близко к воротам. и еще ньюанс - если гости будут заходить через калитку посередине участка, и напротив будут видеть террасу - они будут идти на тот вход. будете все время объяснять, что надо обойти дом и зайти в прихожую - у меня сейчас так, временно, с необустроенным участком получается ))) Да, вот точь в точь такие мыли были. Думаю наврено сделаю первую калитку с северной стороны, вторую калитку в восточной, чтоб сразу с терассы на терассу с улицы можно было попасть Посилання на коментар Поділитися на інших сайтах More sharing options...
shneider_vova Опубліковано: 13 вересня 2020 Поділитись Опубліковано: 13 вересня 2020 Да, освоил remplanner, но чувствую что его возможности уже исчерпаны для меня. Может подскажете что-то другое из условно бесплатного? Я использовал www.mebelok.com/online-kalkulyator-kuhni/ (не реклама, мебель заказывал не там ) 2 Посилання на коментар Поділитися на інших сайтах More sharing options...
SergeyGM Опубліковано: 13 вересня 2020 Автор Поділитись Опубліковано: 13 вересня 2020 Цитата: Сообщение от shneider_vova если вы не очень далеко от Татьяны5, попробуйте напроситься к ней в гости на один из домов на продажу, с ремонтом. В зимний отопительный период. походите босыми ногами, попробуете. В плитке нет ничего страшного. Она не обязательно должна быть под мрамор или гранит Да, каг бы, и в мои личных домах так же - плитка везде. По другому себе и не вижу, это оч комфортно. __________________ У меня простота проекта по отоплению и комфорт хождения босиком зимой борется сейчас с комфортом хождения босиком летом, с энерционностью при резком перепаде температур на улице, с более сухим воздухом, с особенностями размещения мебели на ТП и рисками "плача" окон без радиаторов Посилання на коментар Поділитися на інших сайтах More sharing options...
shneider_vova Опубліковано: 13 вересня 2020 Поділитись Опубліковано: 13 вересня 2020 с такой стоимостью подключений имеет смысл смотреть в сторону теплового насоса Добавлено через 5 минут У меня простота проекта по отоплению и комфорт хождения босиком зимой борется сейчас с комфортом хождения босиком летом, с энерционностью при резком перепаде температур на улице, с более сухим воздухом, с особенностями размещения мебели на ТП и рисками "плача" окон без радиаторов 1) температура в нормально утепленном и нормально инерционном доме меняется на 1-2 градуса в сутки независимо от того, что на улице 2) сухость воздуха от ТП - миф 3) для водяного ТП - мебель не важна (и мебели не важен ТП). 4) окна не плачут P.S. В этом сезоне, судя по дате, вы уже не стартуете, до весны есть время все хорошо продумать. дождитесь морозов и посмотрите реальный живой дом 3 Посилання на коментар Поділитися на інших сайтах More sharing options...
Сергей НСТ Опубліковано: 13 вересня 2020 Поділитись Опубліковано: 13 вересня 2020 расскажите 5 месячному ребенку, когда ему надо спать, а когда кричать. И остальным детям - когда можно шуметь, а когда нет. Вот заведете себе второго/вторую технадзорщицу - - поговорим Да ладно, давайте еще каждую комнату в отдельный бункер оборудовать ) Эти вопросы шумоизоляцией не решаются, это и есть жизнь ) Посилання на коментар Поділитися на інших сайтах More sharing options...
Татьяна5 Опубліковано: 13 вересня 2020 Поділитись Опубліковано: 13 вересня 2020 Да ладно, давайте еще каждую комнату в отдельный бункер оборудовать ) Эти вопросы шумоизоляцией не решаются, это и есть жизнь ) И это правильно, хорошая звукоизоляция - залог психического здоровья семьи 2 Посилання на коментар Поділитися на інших сайтах More sharing options...
tansss Опубліковано: 13 вересня 2020 Поділитись Опубліковано: 13 вересня 2020 И это правильно, хорошая звукоизоляция - залог психического здоровья семьи И это правильно! Но в 21 веке решать вопросы ЗИ и ШИ камнями - мммм... даже не подберу сравнение 1 Посилання на коментар Поділитися на інших сайтах More sharing options...
Vikctor Опубліковано: 13 вересня 2020 Поділитись Опубліковано: 13 вересня 2020 ...кроме того, в котельной - могут быть и ударные шумы, не сильно гасимые стеной Какие у тебя в котельной ударные шумы? Барабашек завёл? Не пугай человека - нечему генерировать неприятные шумы в современной топочной. Добавлено через 3 минуты Если одной семье некомфортно жить в одном доме, то это уже проблема совсем не шумоизоляции. Не нагнетайте ) На эскизе двуспальные кровати имеются в двух спальнях. Скорее всего ТС будет жить с супругой, ребёнком и родителями одного из супругов. Я бы лично в такой ситуации звукоизоляции уделил бы повышенное внимание. Добавлено через 50 секунд @Vikctor, в Межречье есть только ночной тариф за 1 грн/квтч. А мощность после 10 кВт стоит неприличных денег- 1200 долл за 1квт. До 10квт-600 долл за квт. Вот газ и привлек к себе внимание Ну тогда понятно. У вас и выхода особо нет... 1 Посилання на коментар Поділитися на інших сайтах More sharing options...
Рекомендовані повідомлення
Створіть акаунт або увійдіть у нього для коментування
Ви маєте бути користувачем, щоб залишити коментар
Створити акаунт
Зареєструйтеся для отримання акаунта. Це просто!
Зареєструвати акаунтУвійти
Вже зареєстровані? Увійдіть тут.
Увійти зараз