Dendnepr Опубліковано: 28 березня 2021 Поділитись Опубліковано: 28 березня 2021 Даже с барбекю ) P.S. Исправил мебель Тамбур а за ним опять коридор. Стена между залом и коридором - лишняя. 1 Посилання на коментар Поділитися на інших сайтах More sharing options...
vadimv Опубліковано: 28 березня 2021 Поділитись Опубліковано: 28 березня 2021 Планировка тс оптимальная для такой площадиЛично я бы вот так сделал: 4 Посилання на коментар Поділитися на інших сайтах More sharing options...
BugS Опубліковано: 28 березня 2021 Автор Поділитись Опубліковано: 28 березня 2021 Лично я бы вот так сделал: две террасы не обсуждаем, это очень субъективно. А на счет зоны диван - телевизор, в вашем варианте расстояние до ТВ слишком большое. С расстояния 3.5 метра нужно минимум 55 дюймов. А если 5 метров, до уже придется вешать ТВ до 70 дюймов. И двери в зоны спален я максимально смещал вниз по картинке, выходы в центр комнаты не нравятся. Интересный вариант, подумаем. Посилання на коментар Поділитися на інших сайтах More sharing options...
vadimv Опубліковано: 28 березня 2021 Поділитись Опубліковано: 28 березня 2021 две террасы не обсуждаем, это очень субъективноЧисто субъективно скажу, что я не могу летом усидеть на западной террасе под палящим солнцем - мне слишком жарко. Разве что на самом закате. А на счет зоны диван - телевизор, в вашем варианте расстояние до ТВ слишком большое. С расстояния 3.5 метра нужно минимум 55 дюймов. А если 5 метров, до уже придется вешать ТВ до 70 дюймов.Это хороший повод подсократить ширину гостиной до 4 м и сэкономить на площади дома: 1 Посилання на коментар Поділитися на інших сайтах More sharing options...
lug Опубліковано: 28 березня 2021 Поділитись Опубліковано: 28 березня 2021 расстояние до ТВ слишком большое. Придвиньте его к телевизору, делов-то... Хто сказал , что диван обязан подпирать стену? Пусть будет у него ЗА спиной - проход на террасу. И двери в зоны спален я максимально смещал вниз по картинке, Именно этот момент в вашей планировке меня напрягает : транзитная зона полностью накладывается на рабочую зону при кухне, где часами топчется хозяйка, когда готовит. Это - зер шлехт Если так, как у Вадима - то проходы четко отделяют вполне обособленную кухню от собственно гостиной зоны. И никто никому не мешает. Камин вернула ближе к центру дома. У выхода на террасу вдоль стены можно сделать декоративную "стенку" - узкие шкафчики, открытые полочки под книги, сувениры, фотки и т.п. 2 Посилання на коментар Поділитися на інших сайтах More sharing options...
ontoshko Опубліковано: 28 березня 2021 Поділитись Опубліковано: 28 березня 2021 я би відмовився від "крьільцо" - додаткові тепловтрати від внутрішніх кутів і ускладнення фундаменту. Плюс пляма забудови та ж сама. По суті ви добровільно відмовляєтесь від 7м2 площі будинку, витрачаючи ту саму кількість грошей 1 Посилання на коментар Поділитися на інших сайтах More sharing options...
dmitriylaser Опубліковано: 29 березня 2021 Поділитись Опубліковано: 29 березня 2021 Если кабинет подразумевает принятие там хоть изредка клиентов либо партнеров по бизнесу -стоит делать его ближе к входу. А детские и спальни подальше, тогда и проход мимо кухонной зоны никого не будет напрягать. По террасе на запад- только в том случае если там обалденный вид или какая либо гора( лес и т.д.) заслоняет вечернее низкое солнце. У себя пошел по пути дом дальше от дороги и терраса на входе(юго-восток) + создаем красоту перед домом и потом на нее любуемся с террасы. По отоплению камином- идея хорошая сам выбирал такую планировку чтоб камин был в центре дома и с воздушной разводкой в спальни за стеной, чтобы в случае отключения электричества точно не замерзнуть. А еще планирую им подогреваться каждый вечер до включения ночного тарифа на ЭЭ. Вот вам несколько вариантов планировок с центральным расположением гостиной, может что подчерпнете себе. P.S. последняя планировка моя по которой строюсь, вам для понимания как один камин может отопить 3 комнаты 5 Посилання на коментар Поділитися на інших сайтах More sharing options...
SergeyGM Опубліковано: 29 березня 2021 Поділитись Опубліковано: 29 березня 2021 С 3 мя спальнями все красиво. Как 4 сделать без серьезных компромиссов? 1 Посилання на коментар Поділитися на інших сайтах More sharing options...
Dendnepr Опубліковано: 29 березня 2021 Поділитись Опубліковано: 29 березня 2021 С 3 мя спальнями все красиво. Как 4 сделать без серьезных компромиссов? Мне пришлось два этажа лупить. 1 Посилання на коментар Поділитися на інших сайтах More sharing options...
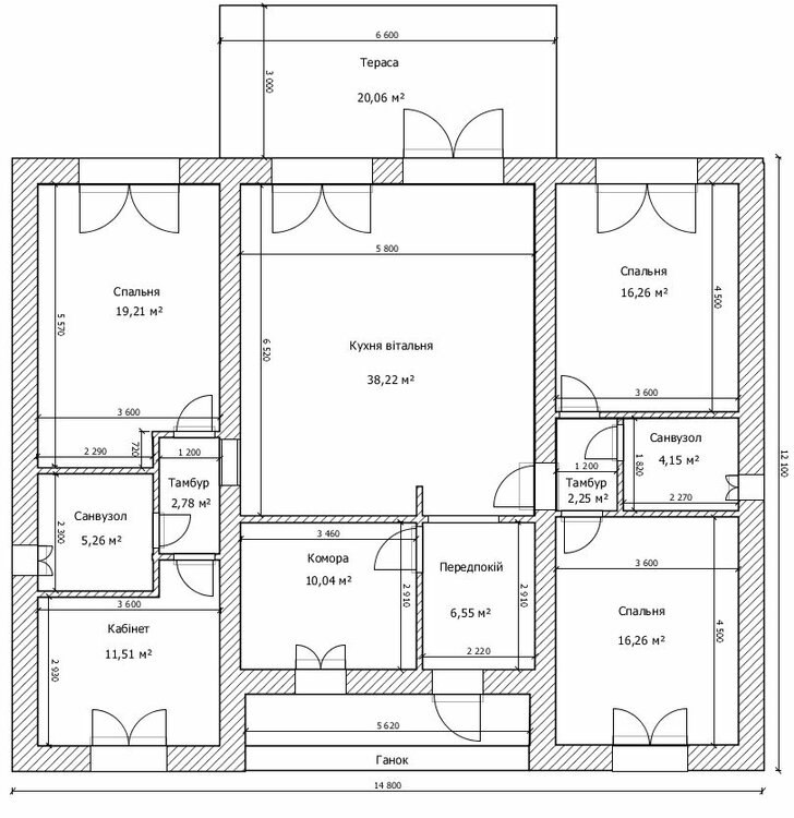
BugS Опубліковано: 29 березня 2021 Автор Поділитись Опубліковано: 29 березня 2021 (змінено) Если кабинет подразумевает принятие там хоть изредка клиентов либо партнеров по бизнесу -стоит делать его ближе к входу. А детские и спальни подальше, тогда и проход мимо кухонной зоны никого не будет напрягать. По террасе на запад- только в том случае если там обалденный вид или какая либо гора( лес и т.д.) заслоняет вечернее низкое солнце. У себя пошел по пути дом дальше от дороги и терраса на входе(юго-восток) + создаем красоту перед домом и потом на нее любуемся с террасы. По отоплению камином- идея хорошая сам выбирал такую планировку чтоб камин был в центре дома и с воздушной разводкой в спальни за стеной, чтобы в случае отключения электричества точно не замерзнуть. А еще планирую им подогреваться каждый вечер до включения ночного тарифа на ЭЭ. Вот вам несколько вариантов планировок с центральным расположением гостиной, может что подчерпнете себе. P.S. последняя планировка моя по которой строюсь, вам для понимания как один камин может отопить 3 комнаты Кабинет - только для себя, удаленная работа. Участок имеет небольшой склон с востока на запад, визуально метра полтора. Если делать дом в глубине участка, то вся вода моя. По поводу западной террасы - сейчас у нас на даче крытая терраса на юг, комфортно практически всегда. Наверное, у всех разное понимание террасы, мы привыкли к террасе с крышей, она спасает от солнца. Возможно, кто-то под террасой понимает площадку без навеса, тогда конечно только восток или север. Как обогреть печкой 3 комнаты и второй этаж, знаю, на даче такая схема) Последний план такой: Змінено 29 березня 2021 користувачем BugS Посилання на коментар Поділитися на інших сайтах More sharing options...
anabioz Опубліковано: 29 березня 2021 Поділитись Опубліковано: 29 березня 2021 Зачем Вам такие тамбура перед спальнями, тем более такие маленькие? Какой-то опыт из прошлого? Какой в них сакральный смысл? P.S. Без мебели гостиной не информативно 2 Посилання на коментар Поділитися на інших сайтах More sharing options...
Dendnepr Опубліковано: 30 березня 2021 Поділитись Опубліковано: 30 березня 2021 Кухня не угловая будет? Где холодильник? Плита? Добавлено через 2 минуты Зачем Вам такие тамбура перед спальнями, тем более такие маленькие? Какой-то опыт из прошлого? Какой в них сакральный смысл? Вот тоже не понимаю этих темных микропомешщений. Мебель через окна заносить? Посилання на коментар Поділитися на інших сайтах More sharing options...
vadimv Опубліковано: 30 березня 2021 Поділитись Опубліковано: 30 березня 2021 По поводу западной террасы - сейчас у нас на даче крытая терраса на юг, комфортно практически всегда. Наверное, у всех разное понимание террасы, мы привыкли к террасе с крышей, она спасает от солнца.В террасе на юг крыша спасает от солнца благодаря тому, что в полдень солнце стоит высоко и под крышей тень. С западной такой номер не пройдет - там низкое солнце после полудня будет жарить всю террасу. Потом пойдут варианты, чем бы ее затенить: - шторы/сетки - виноград/плющ/розы - деревья и т.п. Возможно, кто-то под террасой понимает площадку без навеса, тогда конечно только восток или север.Терраса на север практически весь день находится в тени (за исключением западной ее части вечером). Терраса на восток находится в тени после полудня. Как по мне - так это идеальный вариант. Но поскольку у вас склон на запад - то наверно вариант не ваш. 2 Посилання на коментар Поділитися на інших сайтах More sharing options...
Dendnepr Опубліковано: 30 березня 2021 Поділитись Опубліковано: 30 березня 2021 От солнца всегда можно придумать шторы какие, перголу. А вот, когда солнца нет - хоть уфо ставь. Посилання на коментар Поділитися на інших сайтах More sharing options...
Gonchik Опубліковано: 30 березня 2021 Поділитись Опубліковано: 30 березня 2021 От низкого закатного солнца не спасет крытая. Разве что шторы какие-нибудь, вьющиеся растения и т.д. Терраса на запад используется разве что утром. Ну ок, крытая на запад будет полезна часов до 16-17-ти летом. У меня открытая на северо-запад. Это фиаско) Посилання на коментар Поділитися на інших сайтах More sharing options...
vadimv Опубліковано: 31 березня 2021 Поділитись Опубліковано: 31 березня 2021 С 3 мя спальнями все красиво. Как 4 сделать без серьезных компромиссов?Там если одну из планировок допилить, то и 4 можно сделать красиво: 4 Посилання на коментар Поділитися на інших сайтах More sharing options...
Dendnepr Опубліковано: 31 березня 2021 Поділитись Опубліковано: 31 березня 2021 Там если одну из планировок допилить, то и 4 можно сделать красиво: Кстати очень неплохо. Тол ко я бы все таки террасу не делал за счёт площади дома. И комната больше будет при меньших материалах. 2 Посилання на коментар Поділитися на інших сайтах More sharing options...
dmitriylaser Опубліковано: 3 квітня 2021 Поділитись Опубліковано: 3 квітня 2021 Кстати очень неплохо. Поддерживаю - действительно не плохо. Только вижу два минуса: нет топочной с окном (на всякий случай вдруг когда-то газ захочется провести) и камин в том месте обогревает одну гостиную. Вот на 4 спальни планировка... 1 Посилання на коментар Поділитися на інших сайтах More sharing options...
SergeyGM Опубліковано: 3 квітня 2021 Поділитись Опубліковано: 3 квітня 2021 Уже веселее Посилання на коментар Поділитися на інших сайтах More sharing options...
Рекомендовані повідомлення
Створіть акаунт або увійдіть у нього для коментування
Ви маєте бути користувачем, щоб залишити коментар
Створити акаунт
Зареєструйтеся для отримання акаунта. Це просто!
Зареєструвати акаунтУвійти
Вже зареєстровані? Увійдіть тут.
Увійти зараз