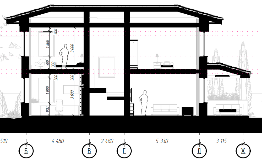
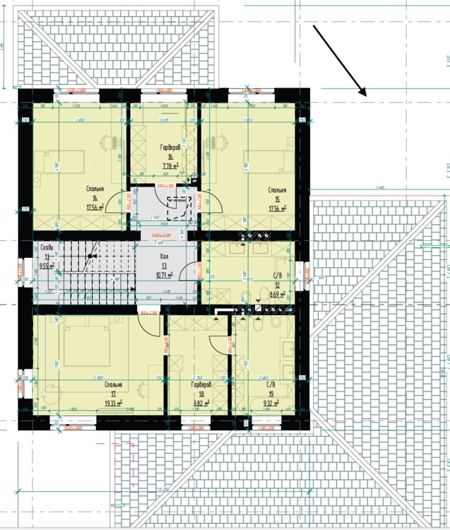
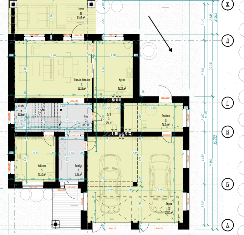
рубанок Опубліковано: 17 грудня 2021 Поділитись Опубліковано: 17 грудня 2021 Всім привіт, хотів би порадитись з досвідченими людьми щодо планування будинку. Короткий вступ до проблеми. Живемо зараз з дружиною в окремій квартирі, яка влаштовує нас усім окрім наявності сусідів (часом шумлять). Дітей немає, але плануєм. Є два гаражі в тому ж будинку, де квартира, автомобілі любим і обоє їздимо. Досвіду життя в будинку не було, але маючи певні фінансові можливості, хочемо побудуватись і спробувати, як воно буде. Мої знання про будову зводяться до непрогулювання фізики в школі та читання цього форуму, тобто я аматор в кращому випадку (досвід ремонту в квартирі з прорабом не вважаю якимось джерелом знань - радше знаю тепер, як не треба робити певні речі). Під цю справу була куплена земельна ділянка 25х40 метрів, є газ і електрика, та зроблений проект з архітектором для цієї ділянки. Планування ми з дружиною придумали, а він допомагав поправити. Самому архітектору проект не дуже подобався, ну але він мусів слухати нас, тому до нього питань нема - що ми хотіли, те він нам і намалював. Щодо проекту, то мені не дає спокою думка, що все фактично обертається навколо того великого гаража, який до того ж вносить проблеми в конструкцію будинку - бо або в ньому буде недоладна колона, або його перекриття треба буде якось по-особливому влаштувати. Перекриття в будинку по проекту монолітні. Також я наполіг на широких сходах, може навіть аж надто широких - аби було зручно ходити нагору. Невелика крита тераса на півдні трохи сумнівна (певно буде жарко). Це ті мінуси, які я бачу зараз. Можна також сказати про певну загальну гігантоманію будинку, але простір то ж ніби і добре водночас. Що мені подобається: спальня хазяїв зі своїм санвузлом та гардеробом, дитячі чи гостьові спальні з іншого боку будинку, ще й розділені іншою коморою/гардеробом - ні в кого не буде сусіда через стінку, зона хазяїв відділена від дітей та гостей, також самі площі спалень видаються оптимальними. Подобаються широкі сходи, просторий тамбур, невелика затишна вітальня й кухня. Подобаються відносно невеликі вікна, ми ніде не робили панорам, бо любим затишок. Подобається ідея мати холодний чотирискатний дах з невеликим ухилом, який певно буде фальцевим, бо кут 16 градусів для черепиці так собі. Подобаються чорнові стелі 3м на обох поверхах, якраз не низько і не високо. Де я бачу проблеми: 1) Якщо викинути гараж з проекту, на такій чи навіть меншій плямі забудови можна мати чудовий одноповерховий будинок, який набагато легше спроектувати, збудувати і обжити. Думка про те, що я по суті проектував два поверхи заради гаража і аби не спати на рівні землі, видається мені деяким гаражним ідіотизмом, якщо чесно. Ну любим ми автомобілі, але так ставити це приміщення на чолі всього проекту... Хоча сам по собі мені гараж подобається, широкі двері і просторий. Мені не подобається шо він робить з усім решта на плані. 2) Санвузли великуваті нагорі, але від цього нікуди не дітись, бо більші спальні теж не хочу. Може великувата паливна, палити думаю газом. 3) Форма будинка така, що позаду ніби і є земля, але вона фрагментована і найбільше її в куті. Проект два поверхи, а землі не так багато залишається. 4) Проблеми з фундаментом, поки не вирішив що там робити https://www.stroimdom.com.ua/topic/234710-vibir-tipu-fundamentu-za-rezultatami-geologiyi Якщо дивитись на ситуацію ширше, то я на певному роздоріжжі зараз. Варіанти бачу наступні: 1) Вислухати критику, щось поправити, знайти конструктора (прораб є і вже випромінює оптимізм - не бійся збудуєм), доробити проект і будувати з отаким гаражем та всім іншим. 2) Викинути гараж, спроектувати все в один поверх на тій же чи меншій плямі, викинувши сходи, холи і одну спальню. 3) Нічого не робити, землю залишити собі на майбутнє чи колись продати наступному любителю будови. Поки на землі нічого не робилось, вона досить ліквідна й взагалі непогана інвестиція, а вже коли там почнеш роботи, то замість ліквідного активу маєш головний біль на 2 роки чи більше. Мінус - не буде свого будинку, а купувати готовий вагаюсь, бо друзі так робили і потім рік-два доробляли-переробляли, приємного мало. Буду радий конструктивній критиці та порадам. Напрям на північ вказав стрілкою. Посилання на коментар Поділитися на інших сайтах More sharing options...
anabioz Опубліковано: 17 грудня 2021 Поділитись Опубліковано: 17 грудня 2021 Смотрите, Вас сейчас двое и, скорее всего Вам +/- 30. Будут дети. Вы спланировали садик-школа-работа-кружки-магазины? Это что касается расположения и сравнения с квартирой. Планировка хорошая, но действительно, чуть завышена площадь. Я бы на первом этаже делал хозяйскую спальню с гардеробом и с.у. + гостевой с.у. на первом + 2 спальни для детей на втором. Но то такое. Если нравится спать на втором - не проблема. Теперь главное, дом неплохой, красивый, удобный, бюджет от 1000у.е./м2. 280 м2 - а надо ли оно Вам в данный момент? Если доход позволяет строить без проблем - стройте. Но, в то де время, Ваши страхи верны, если не рассчитать, можно получить неликвидный актив. У нормальных застройщиков можно смело покупать готовые дома. Просто нужно поискать таких, они есть. Не все делают тяп-ляп для продажи. 1 Посилання на коментар Поділитися на інших сайтах More sharing options...
рубанок Опубліковано: 17 грудня 2021 Автор Поділитись Опубліковано: 17 грудня 2021 33 минуты назад, anabioz сказал: Смотрите, Вас сейчас двое и, скорее всего Вам +/- 30. Будут дети. Вы спланировали садик-школа-работа-кружки-магазины? Это что касается расположения и сравнения с квартирой. Планировка хорошая, но действительно, чуть завышена площадь. Я бы на первом этаже делал хозяйскую спальню с гардеробом и с.у. + гостевой с.у. на первом + 2 спальни для детей на втором. Но то такое. Если нравится спать на втором - не проблема. Теперь главное, дом неплохой, красивый, удобный, бюджет от 1000у.е./м2. 280 м2 - а надо ли оно Вам в данный момент? Если доход позволяет строить без проблем - стройте. Но, в то де время, Ваши страхи верны, если не рассчитать, можно получить неликвидный актив. У нормальных застройщиков можно смело покупать готовые дома. Просто нужно поискать таких, они есть. Не все делают тяп-ляп для продажи. Спасибі за відповідь! Розташування там хороше, по суті в місті, з цим проблем нема. Та й бюджет не такий великий, гараж же не буде по такій ціні робитись. Справа взагалі не в бюджеті. Основна проблема в тому, що є правильні й неправильні способи щось робити, а звідси й відчуття відповідальності за те, що ти береш хорошу землю й будуєш там казна-що. По суті, всяка будова неоптимальна там чи сям, питання на скільки і де чим пожертвувати. Від оптимуму не хочу далеко відійти, та от де він? Кілька неправильних рішень, і далі пішло-поїхало. Цього найбільше не хочеться - докласти зусиль вхолосту чи й на шкоду собі, тому й прийшов радитись з іншими людьми 🙂 Аби не думати потім, що мав час, засоби і робив все як книжка пише, а вкінці вийшло не те 🙂 Посилання на коментар Поділитися на інших сайтах More sharing options...
Savcha Опубліковано: 17 грудня 2021 Поділитись Опубліковано: 17 грудня 2021 Плюси: великі нормальні сходи доста раціональне планування немає балконів дитячі спальні на виріст (можна поставити двоспальне ліжко) Мінуси: здається трохи завищена площа приміщень (можливо скоротити на 15-20% без втрати функціональності та зручності) напіввбудований / напівприбудований гараж (ділянка дозволяє зробити просто прибудований, і, можливо, в об'ємі буде виглядати краще) можливо другий поверх треба робити мансардним, якщо немає якогось неприйняття загалом розташування внутрішніх несучих стін під плити (якщо робити монолітне перекриття можливо обійтися Г чи Т-подібним розташуванням + окремі колони і відкрити сходи до вітальні з одного боку) не вистачає загального сімейного простору на другому поверсі (замість просто транзитного холу), який може використовуватися як ігрова чи затишне місце усіма членами родини (можливо з другим світлом до вітальні) прогнозую проблеми з привабливістю фасадів (повних два поверхи, доста нудне планування, немає об'ємно-просторової ідеї - можливо буде виглядати як коробка з декоруванням) деякі дрібнички: сумбурна вхідна група без чистого рішення (двері не в створі, немає ніші під шафу, меблі виглядають розставленими хаотично); в кабінеті робоче місце спиною до дверей; відсутня гардеробна на першому поверсі; немає пральної; рішення з двома диванами в вітальні - виглядає як переговорна; вхід з гаражу до будинку (не факт, що допоможе від загазованості навіть через тамбур) 1 Посилання на коментар Поділитися на інших сайтах More sharing options...
рубанок Опубліковано: 17 грудня 2021 Автор Поділитись Опубліковано: 17 грудня 2021 3 минуты назад, Savcha сказал: Плюси: великі нормальні сходи доста раціональне планування немає балконів дитячі спальні на виріст (можна поставити двоспальне ліжко) Мінуси: здається трохи завищена площа приміщень (можливо скоротити на 15-20% без втрати функціональності та зручності) напіввбудований / напівприбудований гараж (ділянка дозволяє зробити просто прибудований, і, можливо, в об'ємі буде виглядати краще) можливо другий поверх треба робити мансардним, якщо немає якогось неприйняття загалом розташування внутрішніх несучих стін під плити (якщо робити монолітне перекриття можливо обійтися Г чи Т-подібним розташуванням + окремі колони і відкрити сходи до вітальні з одного боку) не вистачає загального сімейного простору на другому поверсі (замість просто транзитного холу), який може використовуватися як ігрова чи затишне місце усіма членами родини (можливо з другим світлом до вітальні) прогнозую проблеми з привабливістю фасадів (повних два поверхи, доста нудне планування, немає об'ємно-просторової ідеї - можливо буде виглядати як коробка з декоруванням) деякі дрібнички: сумбурна вхідна група без чистого рішення (двері не в створі, немає ніші під шафу, меблі виглядають розставленими хаотично); в кабінеті робоче місце спиною до дверей; відсутня гардеробна на першому поверсі; немає пральної; рішення з двома диванами в вітальні - виглядає як переговорна; вхід з гаражу до будинку (не факт, що допоможе від загазованості навіть через тамбур) Спасибі за відгук! Меблі ми ше не розставляли толком, поки думаєм про коробку, поверховість і т.д. Посилання на коментар Поділитися на інших сайтах More sharing options...
Savcha Опубліковано: 17 грудня 2021 Поділитись Опубліковано: 17 грудня 2021 8 хвилин тому, рубанок сказав: Спасибі за відгук! Меблі ми ше не розставляли толком, поки думаєм про коробку, поверховість і т.д. Оце погано, бо проект доста пророблений, а виявляється - то було марним. Варто починати просто з кольорових прямокутничків з меблями, конструктивна схема на це вже одягається після погодження загальних зв'язків між приміщеннями і їх взаєморозташування. Можливо під час цього виявляться додаткові смачні місця чи захочеться влаштувати, про що спочатку не думали (друге світло, перепад рівня і т.д.). 1 Посилання на коментар Поділитися на інших сайтах More sharing options...
tort Опубліковано: 17 грудня 2021 Поділитись Опубліковано: 17 грудня 2021 (змінено) 2 часа назад, рубанок сказал: Поки на землі нічого не робилось, вона досить ліквідна й взагалі непогана інвестиція, Чим більший дім ви збудуєте тим менша його ліквідність, бо не продасте його. Взагалі я трохи дивуюся з історичного прогресу, як виросли уявні потреби пересічного українця. 90% хат , ще 100 років тому будувалися одно-двокімнатними, площею десь 40-50м2 з висотою стелі 2 - 2,15м. Це одне чи два опалювальних приміщення плюс сіни та комора. А сім'ї були більшими за складом. Із цієї бідної крайнощі, так і не побудував комунізму почали кидатися в іншу - будувати собі палаци. Звісно що можливість будувати палаци у два поверхи є не у пересічного, а лише у заможного українця, але мріють усі. Феномен такий - нарізати собі іще одне приміщення #підпомідорки. Потроху така тенденція починає спадати, але шось повільно. Одні продовжують хотіти, а інші продовжують малювати їхні забаганки. Ті хто вам запропонує перед тим я будувати для себе своє спочатку пожити у приватному будинку хоча б місяць, а бажано довше та у різні пори року, ті будуть неодмінно праві. Звісно треба обрати ті умови які вам подобаються, але обов'язково треба перевірити їх, чи дійсно вони вам подобаються чи то лише вам наснилося. З приводу загального розташування та розмірів будиночка у розрізі сказаного зауважу, що зараз отакий будинок з'їдає ділянку і її простір. Він є домінантою. Звісно що, якщо поряд подібна велетенська забудова у два - три поверхи, то з цим нічого не поробиш, але можливо вам подобаються менш урбанізований простір, з садиком, з зеленню, прудиком, газоном, альтанкою тощо, з усим тим що притаманне заміській забудові. Тоді вам варто переглянути отаке одоробло (імхо) у бік меншої будівлі. Залишити більше свіжого повітря і більший простір то набагато ліквідніше ніж звести купу бетону. Одне питання до вас - скільки зараз у вас житлової площі? Ви встигаєте її доглядати? Змінено 17 грудня 2021 користувачем tort Посилання на коментар Поділитися на інших сайтах More sharing options...
vadimv Опубліковано: 17 грудня 2021 Поділитись Опубліковано: 17 грудня 2021 42 хвилини тому, Savcha сказав: напіввбудований / напівприбудований гараж (ділянка дозволяє зробити просто прибудований, і, можливо, в об'ємі буде виглядати краще) +1 Якщо витягти гараж з об'єму першого поверху і зробити його просто прибудованим, то з'явиться місце для гардеробної/пральної. І значно спроститься конструкція - можна буде обійтися без колони по центру. 2 Посилання на коментар Поділитися на інших сайтах More sharing options...
Музей Опубліковано: 17 грудня 2021 Поділитись Опубліковано: 17 грудня 2021 Поверхові плани "на трійочку". Добре, що Ви розмірковуєте з приводу гаражів, другого поверху та розміщення на ділянці. Є над чим думати. Головне не поспішати закопувати гроші в землю, тим більше, що поверхові плани "на трійочку". Коли з'являться діти, подорожі по Д\С, школах, гуртках, репетиторах можуть перекреслити більшість плюсів проживання у власному будинкові. Ви просто не матимете часу насолоджуватися життям в будинкові. Хоча, якщо це не передмістя великого міста, то може бути норм. Ви в тому віці, коли більше цінується можливість подорожувати, а перспектива переїзду в іншу частину країни у зв'язку зміною роботи - реальність. Продати квартиру - питання кількох днів. Подати будинок, що збудований за принципом "для себе", значно складніше. Питання, на кого залишити нагляд за будинком на період короткострокової відсутності вирішується за допомогою ДСО та добрих стосунків з сусідами, а от догляд за ділянкою потрібен регулярний. Це питання теж вирішується, але не так як в квартирі - закрили на ключ, здали на пульт і поїхали на скільки завгодно довго. 2 Посилання на коментар Поділитися на інших сайтах More sharing options...
рубанок Опубліковано: 17 грудня 2021 Автор Поділитись Опубліковано: 17 грудня 2021 7 часов назад, tort сказал: Одне питання до вас - скільки зараз у вас житлової площі? Ви встигаєте її доглядати? 100м2, встигаєм своїми силами 🙂 Посилання на коментар Поділитися на інших сайтах More sharing options...
anabioz Опубліковано: 17 грудня 2021 Поділитись Опубліковано: 17 грудня 2021 (змінено) 1 година тому, рубанок сказав: 100м2, встигаєм своїми силами 🙂 В любом случае, очень настоятельно советую, начните с бюджета. P.S. 300м2 + участок своими силами будет ой как сложно. Особенно, когда появятся дети. Змінено 17 грудня 2021 користувачем anabioz 1 Посилання на коментар Поділитися на інших сайтах More sharing options...
tort Опубліковано: 18 грудня 2021 Поділитись Опубліковано: 18 грудня 2021 (змінено) 5 часов назад, рубанок сказал: 100м2, встигаєм своїми силами Тоді еквівалентна площа заміського будинку для такої квартири буде десь 160-180м2. Можна навіть менше, щоб весь функціонал той, що ви маєте наразі у багатоквартирному будинку, повністю перенести у приватну оселю і отримати трошечки більше. Змінено 18 грудня 2021 користувачем tort 1 Посилання на коментар Поділитися на інших сайтах More sharing options...
gid_8462 Опубліковано: 29 грудня 2021 Поділитись Опубліковано: 29 грудня 2021 Перший поверх, дійсно, виглядає гаражем з прибудовою. Якщо гараж перетворити в навіс, то можна спробувати розміститись в один поверх: зникають сходи, а дитячі кімнати, гардеробні і санвузол є сенс вирішити компактнішими. Посилання на коментар Поділитися на інших сайтах More sharing options...
Рекомендовані повідомлення
Створіть акаунт або увійдіть у нього для коментування
Ви маєте бути користувачем, щоб залишити коментар
Створити акаунт
Зареєструйтеся для отримання акаунта. Це просто!
Зареєструвати акаунтУвійти
Вже зареєстровані? Увійдіть тут.
Увійти зараз