Savcha Опубліковано: 22 березня 2023 Поділитись Опубліковано: 22 березня 2023 (змінено) 2 години тому, Дмитрий Ф сказав: Вот такие пироги ( У кого есть какое мнение по этому поводу? Как решить вопрос защиты без строительства подвала? Якщо, як ви вірно відмітили, маємо на увазі захист від вторинних ушкоджень: 1. Захищена кімната в центрі будинку (наприклад, залізобетонний куб укриття, а ззовні дерев'яний каркас прибудови навкруги). Мамад може бути не тільки підземним. Ним може стати і вітальня в центрі будинку. Мінус - велика площа забудови. 2. Обваловка будинку Знову - потрібна велика площа ділянки. 3. Будівництво на/в схилі (будинок хобітів). Житлові приміщення - цокольні, технічні та укриття - підземні. Вартість може бути як вище, так нижче будівництва підвалу, та потрібна відповідна ділянка. Щось середнє між обваловкою і підвалом. Як варіант - забудувати яр. 4. Збірні сталеві укриття - бокси, можливо, кілька на будинок, які повинні витримувати ураження уламками та обвал будівельних конструкцій. Змінено 22 березня 2023 користувачем Savcha 1 Посилання на коментар Поділитися на інших сайтах More sharing options...
vadimv Опубліковано: 22 березня 2023 Поділитись Опубліковано: 22 березня 2023 (змінено) 18 годин тому, Drosselbeere сказав: навіщо вам знати чому людина хоче жити і будуватися в Украіні Мені цікава мотивація людей. 18 годин тому, Drosselbeere сказав: Краще запропонуйте планування тим паче у вас багато напрацювань своіх 😉 Я вже писав - найкраще укриття я бачив в селі Нижнє Солотвино на Закарпатті. Це льох, викопаний у великому пагорбі (здається, з піщаника, чи чогось подібного). Товщина шару над ним десь метрів 15-20 Змінено 23 березня 2023 користувачем vadimv 1 Посилання на коментар Поділитися на інших сайтах More sharing options...
Дмитрий Ф Опубліковано: 22 березня 2023 Автор Поділитись Опубліковано: 22 березня 2023 1 минуту назад, vadimv сказал: Мені цікава мотивація людей. Я ж вам вроде бы дал развернутый ответ ) Посилання на коментар Поділитися на інших сайтах More sharing options...
vadimv Опубліковано: 22 березня 2023 Поділитись Опубліковано: 22 березня 2023 (змінено) 1 година тому, Дмитрий Ф сказав: Эмиграция выход, когда нахождение на родине представляет угрозу жизни, причем прямую (я 100% эмигрирую из Украины если вся Украина станет как Мариуполь) или если нахождение в Украине ограничивает человека интеллектуально, ментально, физически. Я знаю людей, которые выехали из Украины, потому что им было душно тут. У меня нет пока таких проблем. Я конечно извиняюсь, но разве жизнь в подвале не означает ограничение человека интеллектуально, ментально, физически? С другой стороны, зачем загонять себя в подвал, когда нахождение на родине НЕ представляет угрозу жизни? ИМХО, тут явная нестыковка в логике. Змінено 22 березня 2023 користувачем vadimv 1 Посилання на коментар Поділитися на інших сайтах More sharing options...
Дмитрий Ф Опубліковано: 22 березня 2023 Автор Поділитись Опубліковано: 22 березня 2023 10 минут назад, vadimv сказал: Я конечно извиняюсь, но разве жизнь в подвале не означает ограничение человека интеллектуально, ментально, физически? С другой стороны, зачем загонять себя в подвал, когда нахождение на родине НЕ представляет угрозу жизни? ИМХО, тут явная нестыковка в логике. Интересно с чего вы сделали вывод про ЖИЗНЬ в подвале, а не нахождение там во время тревоги или во время сна части моих детей? Как же живут евреи в Израиле где время подлета ракеты от 30 секунд до 2 минут? Они ограничены интеллектуально, ментально, физически? Жизнь в подвале, это когда все помещения находятся исключительно в подвале, не давая возможности жильцу доступа к солнцу и свежему воздуху. Мне другое интересно ) что именно вам интересно, когда вы пытаетесь согласовать трактовку моего мышления? ) Посилання на коментар Поділитися на інших сайтах More sharing options...
Дмитрий Ф Опубліковано: 22 березня 2023 Автор Поділитись Опубліковано: 22 березня 2023 47 минут назад, Savcha сказал: Якщо, як ви вірно відмітили, маємо на увазі захист від вторинних ушкоджень: 1. Захищена кімната в центрі будинку (наприклад, залізобетонний куб укриття, а ззовні дерев'яний каркас прибудови навкруги). Мамад може бути не тільки підземним. Ним може стати і вітальня в центрі будинку. Мінус - велика площа забудови. 2. Обваловка будинку Знову - потрібна велика площа ділянки. 3. Будівництво на/в схилі (будинок хобітів). Житлові приміщення - цокольні, технічні та укриття - підземні. Вартість може бути як вище, так нижче будівництва підвалу, та потрібна відповідна ділянка. Щось середнє між обваловкою і підвалом. Як варіант - забудувати яр. 4. Збірні сталеві укриття - бокси, можливо, кілька на будинок, які повинні витримувати ураження уламками та обвал будівельних конструкцій. 2,3 в городской застройке просто не реально. 1 нужна площадь, или делать ставни, тоже касается первого все упирается в ставни Посилання на коментар Поділитися на інших сайтах More sharing options...
vadimv Опубліковано: 22 березня 2023 Поділитись Опубліковано: 22 березня 2023 (змінено) 14 хвилин тому, Дмитрий Ф сказав: нахождение там во время тревоги или во время сна части моих детей? Т.е. чуть ли не половину суток. 14 хвилин тому, Дмитрий Ф сказав: Как же живут евреи в Израиле где время подлета ракеты от 30 секунд до 2 минут? У них там тревога не по 10 раз в сутки, ежедневно, как у нас. Это раз. Во-вторых, палестинские "ракеты" слегка отличаются от кацапских с боеголовкой в тонну тротила. Поэтому им достоаточно иметь в соседней комнате цельнобетонированную комнату без окон. 14 хвилин тому, Дмитрий Ф сказав: Они ограничены интеллектуально, ментально, физически? Да. Их постоянно тягают на сборы, страна живет под психологичесим прессом, очень многие хотят свалить из этого рая подальше. 14 хвилин тому, Дмитрий Ф сказав: Мне другое интересно ) что именно вам интересно, когда вы пытаетесь согласовать трактовку моего мышления? ) Ну, я, например если чувствую, что запахло жареным - собираю вещи и уезжаю. Если более-менее безопасно - возвращаюсь/не уезжаю. Погреб на участке есть, но спать там я не собираюсь. Не представляю, с чего бы я стал строить дом с укрытием в расчете на бомбежку. Для меня такой тип мышления - загадка. Змінено 22 березня 2023 користувачем vadimv 2 Посилання на коментар Поділитися на інших сайтах More sharing options...
Savcha Опубліковано: 22 березня 2023 Поділитись Опубліковано: 22 березня 2023 2 хвилини тому, Дмитрий Ф сказав: 1 нужна площадь, или делать ставни, тоже касается первого все упирается в ставни Як варіант, центральна захищена кімната може бути частково заглиблена на 0,6 - 1,5 м (замість 3 м в варіанті підвалу), це буде створювати ефект траншеї. За рахунок цього над мамадом можна ще додатково зробити мансарду або антресоль. Центральній кімнаті не обов'язково мати повнорозмірні вікна, можуть бути і "абразури" вище рівня голови та козирок (буде як бойова рубка), а входи в створі захищатися стінами-екранами. PS До речі ще вчора як раз була думка, що підвальний простір було б гарно поєднати з вітальнею і сходи вниз відповідно перенести до неї. 1 Посилання на коментар Поділитися на інших сайтах More sharing options...
Дмитрий Ф Опубліковано: 22 березня 2023 Автор Поділитись Опубліковано: 22 березня 2023 12 минут назад, vadimv сказал: Погреб на участке есть, но спать там я не собираюсь. Не представляю, с чего бы я стал строить дом с укрытием в расчете на бомбежку. Для меня такой тип мышления - загадка. Вооот мы уже приближаемся к тому что я вам хочу донести. Что если жарить будет переодически раз в год на 2-3 недели, с разрывом в несколько месяцев. Бегать тудой сюдой? Посилання на коментар Поділитися на інших сайтах More sharing options...
vadimv Опубліковано: 22 березня 2023 Поділитись Опубліковано: 22 березня 2023 4 хвилини тому, Дмитрий Ф сказав: Что если жарить будет переодически раз в год на 2-3 недели, с разрывом в несколько месяцев. Это не жизнь. 1 Посилання на коментар Поділитися на інших сайтах More sharing options...
Дмитрий Ф Опубліковано: 22 березня 2023 Автор Поділитись Опубліковано: 22 березня 2023 48 минут назад, vadimv сказал: Это не жизнь. ну может у вас больше опыта, и я прийду к этому выводу после постройки дома. А пока что так Посилання на коментар Поділитися на інших сайтах More sharing options...
vadimv Опубліковано: 22 березня 2023 Поділитись Опубліковано: 22 березня 2023 6 хвилин тому, Дмитрий Ф сказав: и я прийду к этому выводу после постройки дома. "Не мещайте людям получать опыт"(с) Таня5 1 2 Посилання на коментар Поділитися на інших сайтах More sharing options...
normal Опубліковано: 22 березня 2023 Поділитись Опубліковано: 22 березня 2023 21.03.2023 в 12:42, Дмитрий Ф сказав: подвал делается именно под ракетные налеты, когда вся территория Украины под ударом Ймовірність поцілення ракети саме у ваш будинок практично нульова, при 2-4 тривоги на добу ми у підвалі ховались тільки один раз - у перший день війни (то більше з переляку), але враховуючи існування ще ядерних ракет та користь підвалу для зберігання консерваціі, овочів, фруктів і вина, то з підвалом взагалі краще 1 Посилання на коментар Поділитися на інших сайтах More sharing options...
ozor Опубліковано: 23 березня 2023 Поділитись Опубліковано: 23 березня 2023 18 годин тому, vadimv сказав: Я конечно извиняюсь, но разве жизнь в подвале не означает ограничение человека интеллектуально, ментально, физически? С другой стороны, зачем загонять себя в подвал, когда нахождение на родине НЕ представляет угрозу жизни? ИМХО, тут явная нестыковка в логике. Людина істота нелогічна. Зараз у Бахмуті проживає декілька тисяч цивільних (принаймі, так радіо сказало) А ви пропонуєте еміграцію людині, у якої є гроші на підвал. 2 Посилання на коментар Поділитися на інших сайтах More sharing options...
Дмитрий Ф Опубліковано: 23 березня 2023 Автор Поділитись Опубліковано: 23 березня 2023 Из всех предложенных вариантов есть такие варианты: - эмиграция - не строить подвал и вообще не строить в Израиле как-то живут люди без мамадов и мы выживем - не строить подвал и сделать какую-то конструкцию, которая защитит от вторичного поражения. Хорошо допустим отказываемся от подвала. Из чего должны быть стены чтоб удержать осколки ракеты разорвавшейся пусть будет в метре от дома? Крышу сносит и Бог с ней, а что еще делать с окнами? Потому как окна являются одним из дополнительных факторов поражения. Посилання на коментар Поділитися на інших сайтах More sharing options...
Дмитрий Ф Опубліковано: 23 березня 2023 Автор Поділитись Опубліковано: 23 березня 2023 1 час назад, ozor сказал: Людина істота нелогічна. Зараз у Бахмуті проживає декілька тисяч цивільних (принаймі, так радіо сказало) А ви пропонуєте еміграцію людині, у якої є гроші на підвал. а вы думаете на эмиграция с 4 детьми это дешевое удовольствие )))))) Странные люди, из одной крайности в другую, причем тут Бахмут? Я уже на 3 день широкомасштабного наступления был со всей семьей на западе страны, это при том что на тот момент до нас было около 100км. Весь разговор идет вокруг ракет, которые летают и могут упасть в любой части страны и которые могут полететь в любой момент после окончания боевых действий через год, два, три. Вот причем тут Бахмут? Вы лучше расскажите вот как вы решаете эту проблему? Посилання на коментар Поділитися на інших сайтах More sharing options...
US7IGN Опубліковано: 23 березня 2023 Поділитись Опубліковано: 23 березня 2023 10 минут назад, Дмитрий Ф сказал: а вы думаете на эмиграция с 4 детьми это дешевое удовольствие насправді набагато дешевше ніж з двома. як мінімум 10к ви економите одразу на документах для виїзду за кордон. допомога на 4 дітей дозволить їх батькам взагалі не працювати, що зазвичай і роблять усілякі сирійці в умовних німеччинах. можливо навіть спробувати комуністичну канаду. 2 Посилання на коментар Поділитися на інших сайтах More sharing options...
ozor Опубліковано: 23 березня 2023 Поділитись Опубліковано: 23 березня 2023 8 хвилин тому, Дмитрий Ф сказав: а вы думаете на эмиграция с 4 детьми это дешевое удовольствие )))))) Странные люди, из одной крайности в другую, причем тут Бахмут? Я уже на 3 день широкомасштабного наступления был со всей семьей на западе страны, это при том что на тот момент до нас было около 100км. Весь разговор идет вокруг ракет, которые летают и могут упасть в любой части страны и которые могут полететь в любой момент после окончания боевых действий через год, два, три. Вот причем тут Бахмут? Вы лучше расскажите вот как вы решаете эту проблему? А в мене 12 км. Було і лишилось. Тому виїхати не встиг. Ніяк не вирішую, хоч під всією квартирою на першому поверсі, маю потужний підвал про який ви мрієте. Але за весь час війни спускались туди раз десять. і коли спускались, літаки вже летіли назад відбомбившись. теж думав вкладатись і облаштовувати його за вашим планом. Але зрозумів, що якщо прилетить, то спуститись туди я не встигну. 3 Посилання на коментар Поділитися на інших сайтах More sharing options...
Дмитрий Ф Опубліковано: 23 березня 2023 Автор Поділитись Опубліковано: 23 березня 2023 16 минут назад, US7IGN сказал: насправді набагато дешевше ніж з двома. як мінімум 10к ви економите одразу на документах для виїзду за кордон. допомога на 4 дітей дозволить їх батькам взагалі не працювати, що зазвичай і роблять усілякі сирійці в умовних німеччинах. можливо навіть спробувати комуністичну канаду. )))) теория это все конечно прекрасно ) в реальности все намного сложнее. У меня есть такие которые выехали... Ну скажем так не жалуются )))) и делают вид что все хорошо. Впрочем, тут нужно понимать когда эмигрировать, если детям 17,16,15,14 то да, это экономия в 10к ))) дальше в 18 лет ты всем выдал чудесный пендаль во взрослую жизнь и сам за себя отвечаешь ) А вот что касается младшей школы, то поверьте даже перезд в Украине это такая бумажная волокита. Это как быть директором маленького предприятия, в котором у тебя полный коммунизм ))) от каждого по способностям и каждому по потребностям ))) и никого не уволишь )))) А еще скоро будет пубертат, и там закупки продуктов нужно будет делать ящиками. А еще пойди арендуй хату ))) а еще оплати страховку за машину, которая на минуточку не как у нас в стране а по 100-300 баксов в месяц и так далее и так далее... И это только экономическая часть, про социальную я писал выше. Но все это лирика. 2 Посилання на коментар Поділитися на інших сайтах More sharing options...
US7IGN Опубліковано: 23 березня 2023 Поділитись Опубліковано: 23 березня 2023 мабуть тому що ви теоретик, а я практик. мій старший за життя змінив 6 шкіл і ще більше місць проживання і я не пам'ятаю якихось проблем з паперами. на новому місці інтегрується дуже швидко, ще й дорослим фору може дати бо знає декілька мов і не має проблем зі спілкуванням. про їжу ящиками вірю. я завжди дивувався тому скільки інші їдять. в нашій сім'ї якось не прийнято стільки жерти. але то дрібниці. страховка на машину залежить від країни. там де 200-300 на місяць і зарплати відповідні. якщо одразу продумати де жити і логістику то і машина може бути не потрібна. але це все приходить з досвідом. якщо комфортніше жити в бункері і боятися невідомості то може так дійсно краще. Посилання на коментар Поділитися на інших сайтах More sharing options...
normal Опубліковано: 23 березня 2023 Поділитись Опубліковано: 23 березня 2023 1 годину тому, Дмитрий Ф сказав: Хорошо допустим отказываемся от подвала Може бути така ділянка чи геологія, що без підвала (цоколя) не обійтися, або навпаки можливий тільки з підводними ілюмінаторами замість вікон... 1 годину тому, Дмитрий Ф сказав: разговор идет вокруг ракет, которые летают и могут упасть в любой части страны От нема більше що робити ракеті за $300000, як падати на ваш будинок... Краще шукайте ділянку подалі від важливих об'єктів 1 година тому, Дмитрий Ф сказав: дальше в 18 лет ты всем выдал чудесный пендаль во взрослую жизнь и сам за себя отвечаешь Який добрий батько Є ще варіант орендувати квартиру за $3000 на рік та подумати років 5-10, може діти потікають і побудуєте будинок на 100м2 (а не 200м2) та вийде дешевше 2 Посилання на коментар Поділитися на інших сайтах More sharing options...
US7IGN Опубліковано: 23 березня 2023 Поділитись Опубліковано: 23 березня 2023 а справді, чому у нас не популярні такі підвали, які є в кожному будинку в штатах чи канаді? www.shutterstock.com/search/basement-construction Посилання на коментар Поділитися на інших сайтах More sharing options...
Savcha Опубліковано: 23 березня 2023 Поділитись Опубліковано: 23 березня 2023 31 хвилину тому, US7IGN сказав: а справді, чому у нас не популярні такі підвали, які є в кожному будинку в штатах чи канаді? Не в кожному, точніше - не в кожному штаті. Посилання на коментар Поділитися на інших сайтах More sharing options...
Дмитрий Ф Опубліковано: 23 березня 2023 Автор Поділитись Опубліковано: 23 березня 2023 43 минуты назад, normal сказал: Може бути така ділянка чи геологія, що без підвала (цоколя) не обійтися, або навпаки можливий тільки з підводними ілюмінаторами замість вікон... От нема більше що робити ракеті за $300000, як падати на ваш будинок... Краще шукайте ділянку подалі від важливих об'єктів Який добрий батько Є ще варіант орендувати квартиру за $3000 на рік та подумати років 5-10, може діти потікають і побудуєте будинок на 100м2 (а не 200м2) та вийде дешевше От нема більше що робити ракеті за $300000. Ну как не странно, но в Запорожье х-22 вроде, и в Днепр тоже х-22 прилетела (та что с псом Крым). Что им делать было в частном секторе? Больше проблема стоит, когда ракета сбивается или не долетает. То есть вы предлагаете просто забить. Что касается аренды квартир и всего такого ) То я уже если не ошибаюсь уже 8 раз переезжал по Украине ) и честно говоря как-то подустал. Но беда даже не в этом, было бы что арендовать под мои нужды. У нас в регионе или дома 55ки, которые кучей пристроек растягивают до 100 квадратов(эдакий шанхай получается), либо 200-300 квадратов с бассейном, подвалом, кинотеатром и гаражом на 3 машины ))) Промежуточного варианта нет. Ну или есть за какие нибудь нездоровые деньги 600-700 евро в месяц, т.е. мы уже выходим не на 3к в год, а на 8к в год. И за 10 лет это выйдет каких-то 80к и еще будут мосх топить что мы же вам 10 лет назад хату сдали с новыми обоями )))) Посилання на коментар Поділитися на інших сайтах More sharing options...
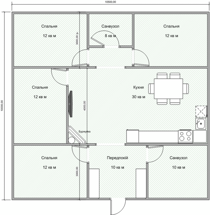
normal Опубліковано: 23 березня 2023 Поділитись Опубліковано: 23 березня 2023 (змінено) 1 годину тому, Дмитрий Ф сказав: То есть вы предлагаете просто забить Звісно і поберегти нерви, нам від попереднього власника дістались два підвали (на 5м2 та 35м2), з них використовується десь 6м2 під пусті та повні банки, а як дійдуть руки зробити полиці, то достатньо буде 2м2 для тих огірків. Якщо вже остаточно визначились з ділянкою, то замість дорогих 190м2 з підвалом та сходами, чому не зробити одноповерховий на 106м2 (в 11x11 повинні вписатись), наприклад: Змінено 23 березня 2023 користувачем normal 4 Посилання на коментар Поділитися на інших сайтах More sharing options...
Рекомендовані повідомлення
Створіть акаунт або увійдіть у нього для коментування
Ви маєте бути користувачем, щоб залишити коментар
Створити акаунт
Зареєструйтеся для отримання акаунта. Це просто!
Зареєструвати акаунтУвійти
Вже зареєстровані? Увійдіть тут.
Увійти зараз