Перейти до публікації
Пошук в
  • Додатково...
Шукати результати, які містять...
Шукати результати в...

Стільниця з бетону

Vstar

Рекомендовані повідомлення

Вітаю, поділюсь набутими практичними навичками стільниці з бетону.

Розмір 1200х500х40. Робив на основі кварцевого піску та білого цементу для досягнення максимальної білизни.

Вперше вирішив використати сітку із скловолокна, щоб в перспективі не проявлялась іржа (більше з нею працювати не хочу).

Завдання не складне тому все швиденько. Скрутив опалубку 

Прихований текст

20210824_112949.thumb.jpg.1bbc0c514c98ecb0dd2baad28c247955.jpg

Замісив розчини на білому цементі (з додаванням білого пігменту з Епіцентру) та окремо на звичайному цементі (все пропорція 1:2) з додаванням пластифікатора.

Прихований текст

20210824_122859.thumb.jpg.38903e6c1375e12f74a95a10d41f8be2.jpg

Частково змішав 2 розчини кельмою для декоративного ефекту

 

Прихований текст

20210824_123150.thumb.jpg.0a246a37bedd8004520885fe9c57bc53.jpg20210824_123842.thumb.jpg.250900bde4cfcca63575ba208b543573.jpg20210824_124557.thumb.jpg.b4341de6f9576ff3ad584e5b289600f8.jpg

Після всіх маніпуляцій та заливкою у форму почав вібрувати по бортам та днищу. Тут сітка почали спливати, набавився, добре що не велика площа, але для такого застосування вона не підійшла.

Залишив набирати міцності

20210824_134913.thumb.jpg.63b3c6b438e5d4a6a2e3a580d0d73387.jpg

 

 

  • Лайк 3
Посилання на коментар
Поділитися на інших сайтах

За період набрання міцності розчину отримав з Алі набір полірувальних дисків Д100 та зернистість від 50 до 3000.

Фото даного процесу не робив. Процес не складний але пильний. Верхній шар легенько пройшовся черепашкою, потім полірувальними дисками з водою та посипаючи цементом.

Результат вийшов цікавий, на відео стільниця після полірування зернистістю 3000 без покриттів.

Для покращення експлуатаційних характеристик згодом покрию двокомпонентним поліуретановим лаком.

Бажаю успіхів!

  • Лайк 4
  • Дякую 2
Посилання на коментар
Поділитися на інших сайтах

1 годину тому, Vstar сказав:

Вітаю, поділюсь набутими практичними навичками стільниці з бетону.

А чому не додавали щебінь?

Посилання на коментар
Поділитися на інших сайтах

47 хвилин тому, andrey_ka сказав:

А чому не додавали щебінь?

Щебінь під час шліфування та полірування проявить своєрідний рисунок, якого я не хотів.

  • Дякую 1
Посилання на коментар
Поділитися на інших сайтах

16 минут назад, Vstar сказал:

Барна стійка

Під нею ще буде якийсь конструктив, шо буде підтримувати стільницю по її площині?

Посилання на коментар
Поділитися на інших сайтах

9 хвилин тому, Dmode сказав:

Під нею ще буде якийсь конструктив, шо буде підтримувати стільницю по її площині?

П- подібне опирання стільниці по контуру

Прихований текст

 

Прихований текст

20221218_140904.thumb.jpg.df6731f0bd5435b652b1c1fbb84efea4.jpg

 

 

Змінено користувачем Vstar
Додав фото
  • Лайк 1
Посилання на коментар
Поділитися на інших сайтах

1 годину тому, Vstar сказав:

Щебінь під час шліфування та полірування проявить своєрідний рисунок, якого я не хотів.

Це - якщо стирати верхній шар до щебеню.  Якщо використати за лицьову , ту сторону , що обернена до опалубки , то і шліфувати майже не потрібно. Просто , нещодавно  заливав схожі вироби (панелі для каміна 1000х500х25мм) із використанням щебеню , то лицьова поверхня була майже глянцева.

IMG_20230127_101816.thumb.jpg.d0bc2531d15dcd23e44ca78ba887b4f5.jpg

  • Лайк 4
Посилання на коментар
Поділитися на інших сайтах

 

4 хвилини тому, andrey_ka сказав:

Це - якщо стирати верхній шар до щебеню.

Верхній шар треба зняти, адже це застигше цементне молочко яке буде з часом пилити і міцності воно не має. Тому перед поліруванням  треба пройтись черепашкою

  • Лайк 1
Посилання на коментар
Поділитися на інших сайтах

2 хвилини тому, Vstar сказав:

Верхній шар треба зняти, адже це застигше цементне молочко

З протележної сторони його немає , і вона виходить на порядок щільніша.

  • Лайк 1
Посилання на коментар
Поділитися на інших сайтах

Тільки що, andrey_ka сказав:

З протележної сторони його немає , і вона виходить на порядок щільніша.

Все вірно, протилежна сторона це низ, щебінь важкий а значить він на дні і між ним звісно є заповнювач. Так от, товщина шару розчину (наповнювача) до щебня буде мізерною і під час процедури полірування проявиться небажаний рисунок.

  • Дякую 1
Посилання на коментар
Поділитися на інших сайтах

1 хвилину тому, Vstar сказав:

Все вірно, протилежна сторона це низ, щебінь важкий а значить він на дні і між ним звісно є заповнювач. Так от, товщина шару розчину (наповнювача) до щебня буде мізерною і під час процедури полірування проявиться небажаний рисунок.

А якщо без фанатизму. Залишилась одна зайва панель , потрібно , за ради експеременту , спробувати.

  • Лайк 1
Посилання на коментар
Поділитися на інших сайтах

Відполірована панель відрізняється на вигляд від тієї що було днищем навіть при укладеній плівці перед залиттям.

Посилання на коментар
Поділитися на інших сайтах

Вітаю!

Вирішив зробити стільницю в санвузол розмірами 2500 х 470 мм.  товщина з торця 90мм (відіграє роль несучого елементу), решта товщина 50мм (Г - подібна форма).

Проштробив стіни

Прихований текст

20221126_082834.thumb.jpg.87bd71f0e4c1f78ab32966ed68e03749.jpg

Виставив опалубку та застелив плівку на низ

Прихований текст

20221126_142937.thumb.jpg.c6079fa362ff15ed8be58cd169971d39.jpg

20221126_153718.thumb.jpg.29ff0893482f06696c1e40473a924f0d.jpg

 

 

Зав'язав каркас з арматури Д-8 з чарунками близько 150 х 150 мм, та закріпив лобову дошку, встановив гільзи для зливу води та підключення крану.

Прихований текст

20221127_144622.thumb.jpg.69b3cf91c38c51dc6aac66a5c01267df.jpg

20221127_145845.thumb.jpg.a51d32445cc9a315822e399d8b2bccdf.jpg

 

 

Після всіх маніпуляцій залив розчином. Розчин робив 1:3 на відсіві (те, що було на момент :) ) а верхній шар близько 15 мм 1:1 на кварцевому піску для можливості полірування. Все заливалось без перерви між шарами. І звісно провібрував.

 

Прихований текст

20221127_160737.thumb.jpg.036627990ed3953cf29c553516631332.jpg

20221204_124017.jpg

 

Після відполірував та покрив гідрофобізатором МС для бетону та штучного каменю в 3 шари. Вода після цього залишається крапельками на поверхні і не проникає в бетон. Але з часом покрию лаком поліуретановим 2- компонентним матовим.

 

20221225_143253.thumb.jpg.e58275603f2d06a46606223b4fdc05ce.jpg

20221225_143211.thumb.jpg.92423ed3a606dbb45924e4e5ad4b2c74.jpg

20221225_143234.thumb.jpg.a65e6826ad76ee53aabecb64a5e15a80.jpg

 

Бажаю успіхів!

 

 

 

Змінено користувачем Vstar
  • Лайк 10
Посилання на коментар
Поділитися на інших сайтах

Вітаю! Крокуємо далі. Вирішив спробувати зробити стільницю з рукомийником. Розмір 2500 х 600 мм.  товщина з торця 90мм.

Детальний процес ідентичний вище написаному, повторюватись не буду, додаю фото.

Зробив опалубку яка надасть форму рукомийника. Кутики з алюмінію ввів для того, щоб була чітка грань готової конструкції.

20230204_092657.thumb.jpg.5aeb8988c009dad3f8ef1c8edad1380e.jpg

20230205_150108.thumb.jpg.da2ec065197f4e4925e1d5d6756fba2b.jpg

 

Також опалубка днищ

 

20230204_092654.thumb.jpg.b7d60935f66f71a47fc5ab3c34ad4c6b.jpg

20230204_093003.thumb.jpg.6a97adf2848d7bd3d02020d6c0d274b6.jpg

 

Почав збирати "конструктор" до кучі

20230204_153542.thumb.jpg.faecaa2506f0a98f0854ad242b5ea80b.jpg

20230204_153552.thumb.jpg.0319a261bef41c4f78d7505b5cf62491.jpg

Далі каркас
20230205_190547.thumb.jpg.c34a64a38da760d88976abaf14b03392.jpg

20230205_191746.thumb.jpg.d366ac2b89fe7a018a3c4d37c89e2aa1.jpg

20230205_191754.thumb.jpg.4e15e6b0ae9bba800485041a935994f4.jpg

 

Заливка

20230206_213350.thumb.jpg.365a5f857eaab462091473b0ab3e394c.jpg

20230206_213405.thumb.jpg.461792b16fef4deaa1aa282a08dfde41.jpg

 

На другий день накрив простирадлом та зволожуватиму тиждень

20230207_072123.thumb.jpg.d051b012f016836ae52370f84b81f5c2.jpg

20230207_073646.thumb.jpg.4f4eb5133843c878d3590582f25fccb8.jpg

 

Ну а як вийде чи ні побачимо десь через місяць.

Всім успіхів!

20230204_092709.jpg

20230207_071856.jpg

20230207_071901.jpg

Змінено користувачем Vstar
  • Лайк 7
Посилання на коментар
Поділитися на інших сайтах

9 хвилин тому, Dmode сказав:

Утеплювач для чого?

Стільниця має Г -подібну форму в розрізі. Він знімається разом з опалубкою, таким чином менші витрати на бетон і на міцність не впливає, навіть краще працюватиме. Я ж не люблю підпірок. Попередня стільниця була зроблена ідентично.

  • Лайк 1
Посилання на коментар
Поділитися на інших сайтах

39 хвилин тому, Dmode сказав:

Утеплювач для чого?

Для наглядності вигляд знизу другої стільниці знизу20230413_184607.thumb.jpg.b56c3eda963f1b2927c048199875b8df.jpg

  • Лайк 5
  • Дякую 1
Посилання на коментар
Поділитися на інших сайтах

4 години тому, semengv сказав:

Черепашки и полировальные круги можете фото показать?

Прихований текст

20230420_185556.thumb.jpg.528fd29e477a323a0798ced06121486d.jpg

20230420_185748.thumb.jpg.5170d3d6a5fcfc8bfaf182af29e8e422.jpg

Важливо,  щоб болгарка мала регулювання швидкості. Чим дрібніше полірувальний диск, тим менші оберти. 

  • Лайк 1
Посилання на коментар
Поділитися на інших сайтах

Вітаю!

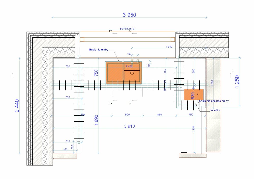
Вирішив не зупинятись і ускладнити задачу. Кухонна стільниця з вбудованою мийкою з бетону (Стільниця 4).

Знову ж таки, не хочу жодних підпор, вільний простір знизу.

Промальовую та накидую ідейно для подальшої реалізації.

1086365973_.thumb.jpg.089a4d3b10c8d1b016bfe90568eb8584.jpg

 

1190726328_2.thumb.jpg.d0cad9e70cf1fcb5633c569c967594e4.jpg

 

807998302_1.thumb.jpg.bd93351a587471dfaa8cf8cc195a5d7a.jpg

 

Стільниця з умовним підвіконням одне ціле. Маю арматуру лише Д8 А500С тому буду рахувати виходячи з цього.

 

Бажаю успіхів!

  • Лайк 2
Посилання на коментар
Поділитися на інших сайтах

  • 2 тижні потому...

Вітаю! По кухонній стільниці виставив опалубку

20230304_161345.thumb.jpg.e2f76de1145d0c91cc073ca31e2501df.jpg

 

20230305_184208.thumb.jpg.3012ddc23af4b6e4071b9b439ca778ae.jpg

 

На етапі заливки передбачив момент для подальшої установки харчових відходів. Адже в цьому місці товщина мийки має бути не більше 20 мм.

20230310_190432.thumb.jpg.83345fe3adb8664527dab3d9a93afea6.jpg

 

20230310_190426.thumb.jpg.101502ba54d4e44b915878ccdd03c006.jpg

 

20230310_191227.thumb.jpg.d389c4fa03bcbc56cdac1a4101626e28.jpg

 

Далі по напрацьованій техніці застосував плити екструдера для зменшення товщини бетону

 

20230311_131521.thumb.jpg.7f88140c891379038151ae53b74d9e72.jpg

 

20230311_131534.thumb.jpg.abda628659f977da7a4044f695eec7a1.jpg

 

20230311_131543.jpg

Змінено користувачем Vstar
  • Лайк 1
Посилання на коментар
Поділитися на інших сайтах

Писав вище, найдовша сторона у мене 4 м проліт, зав'язав каркас балки з 4-ох прутів арматури Д8 А500, хомути з кроком 150мм

20230311_174930.thumb.jpg.d572e286e46bf9b2e3bcba0718e380af.jpg

 

Далі по місцю зв'язав в єдине ціле

 

20230314_223506.thumb.jpg.c23aa3edf9ad618f038d4b8cd8e5aa15.jpg

 

20230314_223513.thumb.jpg.a2cab6766f89d5d04c37422efbd8e6f2.jpg

 

20230314_223516.thumb.jpg.47a5f5b4e93ced53b32ff8519dbbb7a5.jpg

 

На саму мийку не зміг я вигнути кустарним методом арматуру Д8. Зробив це з дроту Д3,5мм

 

 

  • Лайк 3
Посилання на коментар
Поділитися на інших сайтах

Процес заливки. Зауважу, зовнішній короб який формує форму видимої частини мийки буде усіляко випиратись до гори розчином. Я розклинив стійкою.

20230315_234414.thumb.jpg.4925f3b380edfb1453f9380e7838f6c9.jpg

 

20230315_221742.thumb.jpg.b8a254e45122c143fdc998da8fcc90d4.jpg

 

20230315_234401.thumb.jpg.de66892c38524f750c6e4d602583a112.jpg

 

Пропорції розчину як писав вище і з пластифікатором

 

  • Лайк 4
Посилання на коментар
Поділитися на інших сайтах

Створіть акаунт або увійдіть у нього для коментування

Ви маєте бути користувачем, щоб залишити коментар

Створити акаунт

Зареєструйтеся для отримання акаунта. Це просто!

Зареєструвати акаунт

Увійти

Вже зареєстровані? Увійдіть тут.

Увійти зараз
×
×
  • Створити...