Nikolay Cherednichenko Опубліковано: 7 серпня 2024 Автор Поділитись Опубліковано: 7 серпня 2024 9 часов назад, Alvalk сказал: А що там не так може бути? Хіба є якісь "стандарти" чи правила для розташування вікон? Головне, щоб зручно було Я десь писав про стандарти і правила? Написав що цікаво-і це вас ні до чого не забов'язує 🤷♂️ 1 Посилання на коментар Поділитися на інших сайтах More sharing options...
Alvalk Опубліковано: 7 серпня 2024 Поділитись Опубліковано: 7 серпня 2024 4 минуты назад, Nikolay Cherednichenko сказал: Я десь писав про стандарти і правила? Написав що цікаво-і це вас ні до чого не забов'язує 🤷♂️ Та ні, просто не зрозумів питання. Проїхали... Фасади кинув в особисті. Посилання на коментар Поділитися на інших сайтах More sharing options...
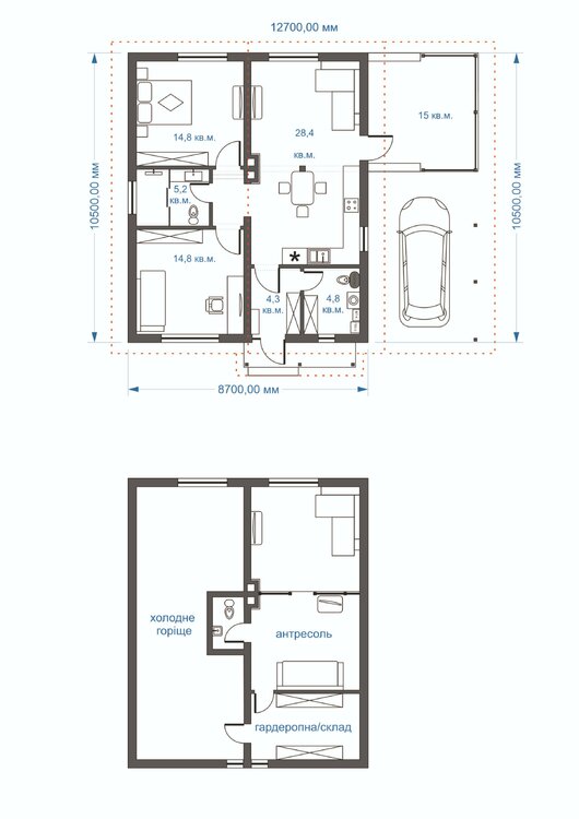
Nikolay Cherednichenko Опубліковано: 7 серпня 2024 Автор Поділитись Опубліковано: 7 серпня 2024 1 час назад, Alvalk сказал: Та ні, просто не зрозумів питання. Проїхали... Фасади кинув в особисті. Проїхали.Дякую. як вам доречі такий погляд на цей же будинок? Посилання на коментар Поділитися на інших сайтах More sharing options...
vadimv Опубліковано: 7 серпня 2024 Поділитись Опубліковано: 7 серпня 2024 (змінено) 57 хвилин тому, Nikolay Cherednichenko сказав: як вам доречі такий погляд на цей же будинок? Прикольно ), ще одна ітерація - і буде оце: Змінено 7 серпня 2024 користувачем vadimv 2 Посилання на коментар Поділитися на інших сайтах More sharing options...
Alvalk Опубліковано: 7 серпня 2024 Поділитись Опубліковано: 7 серпня 2024 46 минут назад, Nikolay Cherednichenko сказал: як вам доречі такий погляд на цей же будинок? так це ж практично віддзеркалений цей варіант Тільки вхід ззаду і немає виходу на терасу з вітальні. Тобто в порівнянні тільки мінуси. Як по мені, якщо вже і покрутити будинок на ділянці, то хіба що так: Посилання на коментар Поділитися на інших сайтах More sharing options...
Nikolay Cherednichenko Опубліковано: 7 серпня 2024 Автор Поділитись Опубліковано: 7 серпня 2024 2 минуты назад, Alvalk сказал: так це ж практично віддзеркалений цей варіант Тільки вхід ззаду і немає виходу на терасу з вітальні. Тобто в порівнянні тільки мінуси. Як по мені, якщо вже і покрутити будинок на ділянці, то хіба що так: Вхід з півночі не бажано... Ну і з фасадом буде обанайка-треба в такому випадку щось з вікнами думати. Посилання на коментар Поділитися на інших сайтах More sharing options...
Nikolay Cherednichenko Опубліковано: 7 серпня 2024 Автор Поділитись Опубліковано: 7 серпня 2024 6 минут назад, vadimv сказал: Прикольно ), ще одна ітерація - і буде оце: Норм... Але ті конурки малень з бійницями під "кругову оборону".... І головне щоб двері не покрутило біля каміну)) 1 Посилання на коментар Поділитися на інших сайтах More sharing options...
Alvalk Опубліковано: 7 серпня 2024 Поділитись Опубліковано: 7 серпня 2024 12 минут назад, Nikolay Cherednichenko сказал: Вхід з півночі не бажано... А чому? 15 минут назад, Nikolay Cherednichenko сказал: треба в такому випадку щось з вікнами думати. Ну в кімнаті, що справа, переробити вікна на схід. В другій - по бажанню, схід або південь Посилання на коментар Поділитися на інших сайтах More sharing options...
Vstar Опубліковано: 7 серпня 2024 Поділитись Опубліковано: 7 серпня 2024 Добре, що в автора є час на роздуми та варіанти. Не розглядайте планування без врахування території (ділянки), і все вірно, сторони світу, куди вікна виходять і що з того вікна буде видно. Беріть зйомку і садіть будівлю, розміщуйте на території септик враховуючи ухил каналізації та відстань до будівлі зрозумієте яка висота цоколя і де кухня. Одразу продумайте розташування колодязя (септика). І уже після цього розвивайте планування. Посилання на коментар Поділитися на інших сайтах More sharing options...
Nikolay Cherednichenko Опубліковано: 7 серпня 2024 Автор Поділитись Опубліковано: 7 серпня 2024 26 минут назад, Vstar сказал: Добре, що в автора є час на роздуми та варіанти. Не розглядайте планування без врахування території (ділянки), і все вірно, сторони світу, куди вікна виходять і що з того вікна буде видно. Беріть зйомку і садіть будівлю, розміщуйте на території септик враховуючи ухил каналізації та відстань до будівлі зрозумієте яка висота цоколя і де кухня. Одразу продумайте розташування колодязя (септика). І уже після цього розвивайте планування. Все то враховується (по можливості). В мене ділянка майже рівна (дуже маленький перепад) але дякую що читаєте і щось радите. Посилання на коментар Поділитися на інших сайтах More sharing options...
Nikolay Cherednichenko Опубліковано: 7 серпня 2024 Автор Поділитись Опубліковано: 7 серпня 2024 (змінено) 3 часа назад, Alvalk сказал: А чому? Ну в кімнаті, що справа, переробити вікна на схід. В другій - по бажанню, схід або південь Я вже вище писав що я люблю відносну симетрію а не хаотичність. Якщо мені будинок ззовні не сподобається-то мені вже плювати яке там планування🥴. Але дякую, є час, є думки мої і небайдужих з форума-тому рух йде, "кордони" розширюються Змінено 7 серпня 2024 користувачем Nikolay Cherednichenko Посилання на коментар Поділитися на інших сайтах More sharing options...
vadimv Опубліковано: 7 серпня 2024 Поділитись Опубліковано: 7 серпня 2024 1 година тому, Nikolay Cherednichenko сказав: І головне щоб двері не покрутило біля каміну)) Конструкцію опробовано на двох дачах ) 1 Посилання на коментар Поділитися на інших сайтах More sharing options...
Gonchik Опубліковано: 7 серпня 2024 Поділитись Опубліковано: 7 серпня 2024 2 часа назад, Nikolay Cherednichenko сказал: Проїхали.Дякую. як вам доречі такий погляд на цей же будинок? Щось тема в якийсь маразм скочується. Як на мене, то оте планування з антресоллю саме цікаве було. Його родзинка - тераса під одним скатом з навісом для авто, вхід в хату з тераси. Щоправда в такому варіанті було б мало світла, але можна щось комбінувати. Також не зрозумів про відкатну драбину. Де вона мала бути розміщена? Та й загалом, наскільки часто у Вас ті гості плануються, щоб городити увесь цей огород з антресоллю і туалетом? 1 1 Посилання на коментар Поділитися на інших сайтах More sharing options...
vadimv Опубліковано: 7 серпня 2024 Поділитись Опубліковано: 7 серпня 2024 Підкину ще варіант: 1 Посилання на коментар Поділитися на інших сайтах More sharing options...
Gonchik Опубліковано: 7 серпня 2024 Поділитись Опубліковано: 7 серпня 2024 22 минуты назад, vadimv сказал: Підкину ще варіант: Телевізор дивимось стоячи, бо любий диван захаращуватиме прохід. Одежа лежить по кутах кімнат, бо де ж ті шафи ставити?) попри ліжко в вузькій спальні ходимо приставними кроками) 3 Посилання на коментар Поділитися на інших сайтах More sharing options...
vadimv Опубліковано: 7 серпня 2024 Поділитись Опубліковано: 7 серпня 2024 17 хвилин тому, Gonchik сказав: Телевізор дивимось стоячи, бо любий диван захаращуватиме прохід. Одежа лежить по кутах кімнат, бо де ж ті шафи ставити?) попри ліжко в вузькій спальні ходимо приставними кроками) Насправді не все так погано, то просто хтось не дуже кваліфіковано малював. ) В кімнатах по 14 кв.м зазвичай місця набагато більше )) 1 Посилання на коментар Поділитися на інших сайтах More sharing options...
DimaF Опубліковано: 7 серпня 2024 Поділитись Опубліковано: 7 серпня 2024 44 минуты назад, vadimv сказал: Підкину ще варіант: Класс, из спальни в трусах в гостиную, если вдруг в сортир приспичило)) Чота вспомнил) 1 Посилання на коментар Поділитися на інших сайтах More sharing options...
vadimv Опубліковано: 7 серпня 2024 Поділитись Опубліковано: 7 серпня 2024 (змінено) 6 хвилин тому, DimaF сказав: Класс, из спальни в трусах в гостиную, если вдруг в сортир приспичило)) Отетот аргумент про трусы фигурирует в каментах к каждой планировке с дверями спальни в гостиную. ) Интересно, как там живут скандинавы в таких домах, наверно в лыжных штанах спят )) Змінено 7 серпня 2024 користувачем vadimv 1 Посилання на коментар Поділитися на інших сайтах More sharing options...
DimaF Опубліковано: 7 серпня 2024 Поділитись Опубліковано: 7 серпня 2024 (змінено) 18 минут назад, vadimv сказал: Отетот аргумент про трусы фигурирует в каментах к каждой планировке с дверями спальни в гостиную. ) Интересно, как там живут скандинавы в таких домах, наверно в лыжных штанах спят )) Это в Турции, там тепло.....(с.) Одно дело когда в наследство получил, и живешь как есть. Другое дело сознательно построить фигню. Змінено 7 серпня 2024 користувачем DimaF 2 Посилання на коментар Поділитися на інших сайтах More sharing options...
vadimv Опубліковано: 7 серпня 2024 Поділитись Опубліковано: 7 серпня 2024 12 хвилин тому, DimaF сказав: Другое дело сознательно построить фигню. Заметьте, отету последнюю фигню построил себе один из форумчан - я в его теме картинку стырил. ) Посилання на коментар Поділитися на інших сайтах More sharing options...
Nikolay Cherednichenko Опубліковано: 7 серпня 2024 Автор Поділитись Опубліковано: 7 серпня 2024 2 часа назад, Gonchik сказал: Щось тема в якийсь маразм скочується. В чому саме ви бачите маразм, в спілкуванні людей? 2 часа назад, Gonchik сказал: Та й загалом, наскільки часто у Вас ті гості плануються, щоб городити увесь цей огород з антресоллю і туалетом? Дуже не часто (тому антресоль то як варіант-чи пам'ятник людській жадобі) 2 часа назад, Gonchik сказал: на мене, то оте планування з антресоллю саме цікаве Яке саме? Те де терасса ззаду чи те що терасса з боку? Посилання на коментар Поділитися на інших сайтах More sharing options...
Nikolay Cherednichenko Опубліковано: 7 серпня 2024 Автор Поділитись Опубліковано: 7 серпня 2024 (змінено) 15 минут назад, vadimv сказал: Заметьте, отету последнюю фигню построил себе один из форумчан - я в его теме картинку стырил. ) Ого, все, DimaFу *изда-хай тікає з села! 😆 Змінено 7 серпня 2024 користувачем Nikolay Cherednichenko Посилання на коментар Поділитися на інших сайтах More sharing options...
Gonchik Опубліковано: 7 серпня 2024 Поділитись Опубліковано: 7 серпня 2024 В 05.08.2024 в 16:48, Nikolay Cherednichenko сказал: трохи підправив по вашим зауваженням... Оце. Там і у вітальню в труселях не треба бігти. Якось одразу не усвідомив цієї переваги) 2 Посилання на коментар Поділитися на інших сайтах More sharing options...
Nikolay Cherednichenko Опубліковано: 7 серпня 2024 Автор Поділитись Опубліковано: 7 серпня 2024 3 часа назад, Gonchik сказал: Щоправда в такому варіанті було б мало світла Цікаво, така байда в Україні продається? Посилання на коментар Поділитися на інших сайтах More sharing options...
vadimv Опубліковано: 7 серпня 2024 Поділитись Опубліковано: 7 серпня 2024 29 хвилин тому, Gonchik сказав: Оце. Там і у вітальню в труселях не треба бігти. Якось одразу не усвідомив цієї переваги) А як раптом хтось в проєм побачить? Треба двері ставити. ) 2 Посилання на коментар Поділитися на інших сайтах More sharing options...
Рекомендовані повідомлення