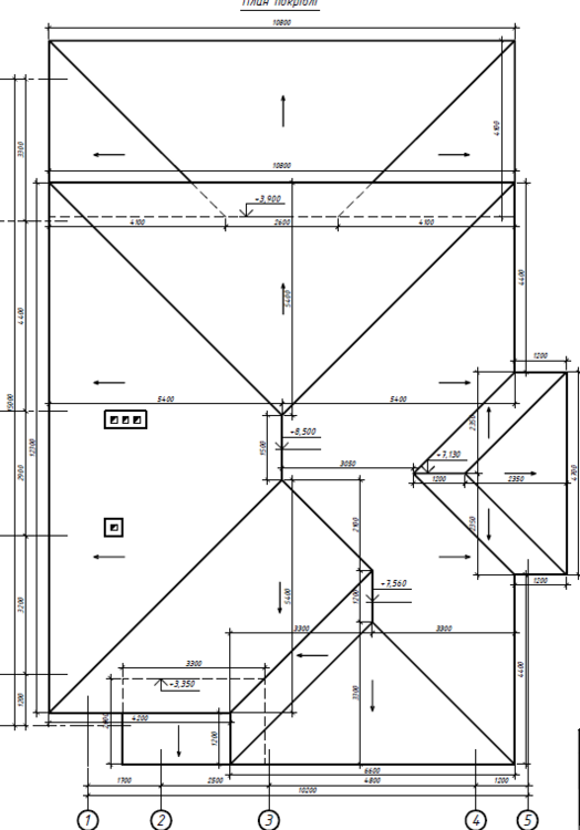
goodzik Опубліковано: 24 червня 2024 Поділитись Опубліковано: 24 червня 2024 (змінено) Доброго дня, шановне панство. Не впевнений чи вірно вибрав розділ для запитання (якщо ні, то підскажить хоч який розділ більш доцільний)... По проекту (приклад, перший поверх) передбачені такі вентиляційні канали. Зовнішні стіни (і можливо внутрішні), плануються будуватись з газоблоку і виникло питання, а з чого краще/доцільно/вірно робити вентиляційні канали? Якщо з газоблоку то як це робити... сверлити блоки, чи "викладати" щось по типу так? А потім чи треба "гільзувати" ці канали і чим? А як потім ці канали виводити над дахом, теж з газоблоку? Чи можливо можна роботи їх з цегли і якщо можна. то чи треба всю стіну робити з цегли, чи тільки частину (там де вентиляційні канали) щось типу цього ? Змінено 24 червня 2024 користувачем goodzik Посилання на коментар Поділитися на інших сайтах More sharing options...
lastandr Опубліковано: 24 червня 2024 Поділитись Опубліковано: 24 червня 2024 3 часа назад, goodzik сказал: Чи можливо можна роботи їх з цегли і якщо можна. то чи треба всю стіну робити з цегли, чи тільки частину (там де вентиляційні канали) Так, це саме технологичное и наименьше затрате рішення... При цьому краще викладати стіни с вентканалами та димоходами повністю с цегли, але можливо і частинами, тільки обов'язково треба буде зробить перев'язку кладки с ГБ та цегли металевою сіткой 50х50 х 3(4)мм або хоча б коротишами з арматури ... 1 Посилання на коментар Поділитися на інших сайтах More sharing options...
DimaF Опубліковано: 25 червня 2024 Поділитись Опубліковано: 25 червня 2024 11 часов назад, goodzik сказал: По проекту (приклад, перший поверх) А почему вентканалы сдвинуты к внешней стене!? Посилання на коментар Поділитися на інших сайтах More sharing options...
goodzik Опубліковано: 25 червня 2024 Автор Поділитись Опубліковано: 25 червня 2024 7 минут назад, DimaF сказал: А почему вентканалы сдвинуты к внешней стене!? Гарне питання... Передивився проект і здається знайшов відповідь. Скоріше через те, що зверху (на даху) йде стійка Посилання на коментар Поділитися на інших сайтах More sharing options...
goodzik Опубліковано: 25 червня 2024 Автор Поділитись Опубліковано: 25 червня 2024 7 часов назад, lastandr сказал: Так, це саме технологичное и наименьше затрате рішення... При цьому краще викладати стіни с вентканалами та димоходами повністю с цегли, але можливо і частинами, тільки обов'язково треба буде зробить перев'язку кладки с ГБ та цегли металевою сіткой 50х50 х 3(4)мм або хоча б коротишами з арматури ... Дякую за пораду Посилання на коментар Поділитися на інших сайтах More sharing options...
DimaF Опубліковано: 25 червня 2024 Поділитись Опубліковано: 25 червня 2024 4 минуты назад, goodzik сказал: Скоріше через те, що зверху (на даху) йде стійка Ясно) Чому тоді архітектор не показав як буде виглядати вихід на дах, конструктив. 1 Посилання на коментар Поділитися на інших сайтах More sharing options...
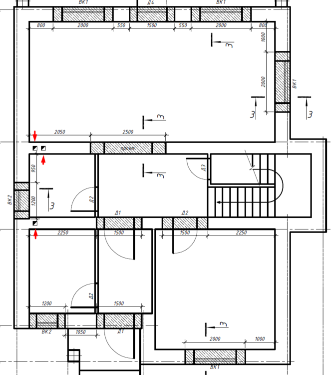
goodzik Опубліковано: 25 червня 2024 Автор Поділитись Опубліковано: 25 червня 2024 10 минут назад, DimaF сказал: Ясно) Чому тоді архітектор не показав як буде виглядати вихід на дах, конструктив. Сказав (на той момент), що то відноситься до вентиляції, про детальне "планування/креслення" якої "ми не домовлялись" і якщо я бажаю. то він це може зробити. але треба ще "накинуть"... та і взагалі (з його слів) там "виводити все дуже просто".... Хоча тепер розумію. що "не все так просто" Як виглядає на проекті Посилання на коментар Поділитися на інших сайтах More sharing options...
DimaF Опубліковано: 25 червня 2024 Поділитись Опубліковано: 25 червня 2024 2 минуты назад, goodzik сказал: Хоча тепер розумію. що "не все так просто" Так отож) Щоб воно потим ци канали не вперлися в балку) 1 Посилання на коментар Поділитися на інших сайтах More sharing options...
goodzik Опубліковано: 25 червня 2024 Автор Поділитись Опубліковано: 25 червня 2024 7 минут назад, DimaF сказал: Так отож) Щоб воно потим ци канали не вперлися в балку) Наче в балку не повинно впиратись Посилання на коментар Поділитися на інших сайтах More sharing options...
DimaF Опубліковано: 25 червня 2024 Поділитись Опубліковано: 25 червня 2024 Только что, goodzik сказал: Наче в балку не повинно впиратись Тоди можно будуватись) 1 Посилання на коментар Поділитися на інших сайтах More sharing options...
andrey_ka Опубліковано: 25 червня 2024 Поділитись Опубліковано: 25 червня 2024 (змінено) 19 годин тому, goodzik сказав: Якщо з газоблоку то як це робити... сверлити блоки, Іменно так - це найпростіший та найкращий варіант. 19 годин тому, goodzik сказав: А як потім ці канали виводити над дахом, теж з газоблоку? Так. 19 годин тому, goodzik сказав: Чи можливо можна роботи їх з цегли і якщо можна. то чи треба всю стіну робити з цегли, чи тільки частину (там де вентиляційні канали) щось типу цього ? Майте на увазі , якщо будете робити з різнорідних матеріалів , то потім будете чухати потилицю як ці місця оздоблювати. Потрібно буде туди , при штукатурці ліпити сітку. І ймовірність тріщин на межі ГБ - цегла суттєво збільшується . Воно вам треба? 19 годин тому, goodzik сказав: А потім чи треба "гільзувати" ці канали і чим? Вентеляційні непотрібно. Димоходні так. Змінено 25 червня 2024 користувачем andrey_ka 2 Посилання на коментар Поділитися на інших сайтах More sharing options...
goodzik Опубліковано: 25 червня 2024 Автор Поділитись Опубліковано: 25 червня 2024 1 час назад, andrey_ka сказал: Так. Безмежно дякую вам за фото. Тепер маю уявлення на реальному прикладі як воно повинно виглядати з газоблоком (саме вихід труби) Я бачу що самі труби з вентиляційними каналами у вас розміщена ближче до центру даху... ну тобто над дахом вони виступають до 1 метру (може трошки більше). Але у мене в проекті труби (одна на 3 канали, а інша на 1) виступають нажаль над дахом до 2х метрів Може я собі "надумую", але чомусь мені здається, що ця конструкція, якщо зробити з газоблку буде не зовсім "надійна/стійка" (особливо та що з 1-м каналом) 1 час назад, andrey_ka сказал: Вентеляційні непотрібно. Димоходні так. А у вентеляції хіба не може збиратись волога? Два канали (з трьох) будуть слугувати вентиляцяєю для ванної кімнати на другому, і туалету (можливо з душем) на першому. Підозрюю що газоблок буде набиратись вологою і тріскатись/розвалюватись, чи волога буде проступати на зовнішню сторону стіни де буде жила кімната (хоча може і помиляюсь). Посилання на коментар Поділитися на інших сайтах More sharing options...
andrey_ka Опубліковано: 25 червня 2024 Поділитись Опубліковано: 25 червня 2024 1 годину тому, goodzik сказав: Я бачу що самі труби з вентиляційними каналами у вас розміщена ближче до центру даху... ну тобто над дахом вони виступають до 1 метру (може трошки більше). 0,5м. Там більше і не терба. Пс. ІМХО При проєктувані , що димохід що вентканали потрібно намагатись розміщувати поближче до центру будинку. Це і стійкість вища (не треба тягнути високо над дахом) , і для збереження тепла (у випадку димоходу) , ну і утеплювати менше. Тобто з усіх сторін одні плюси. 1 годину тому, goodzik сказав: Але у мене в проекті труби (одна на 3 канали, а інша на 1) виступають нажаль над дахом до 2х метрів Це згідно норм така висота , ви перевіряли ? 1 годину тому, goodzik сказав: (особливо та що з 1-м каналом) Для збільшення стійкості зробіть її з цільного блоку. В такому разі торці можна не утеплювати , а утеплити лише бокові стінки. 1 годину тому, goodzik сказав: А у вентеляції хіба не може збиратись волога? Може , якщо канал неутеплений , або недостатньо утеплений. 1 годину тому, goodzik сказав: Підозрюю що газоблок буде набиратись вологою і тріскатись/розвалюватись, чи волога буде проступати на зовнішню сторону стіни де буде жила кімната (хоча може і помиляюсь). Це не так , адже при працюючій вентиляції газоблок (так само і цегла) , як вбирає в себе деяку кількість вологи , так само і віддає її. Тобто , ви прийняли душ , в вентиляцію пішов теплий вологий потік повітря , під час цього канал деяку кількість вологи увібрав в себе. Але як тільки вологість цього потоку зміниться , все що канал увібрав в себе він віддасть назад у цей потік. Перезволоження каналу може відбуватись коли він недостатньо утеплений в холодній зоні , і точка роси знаходиться всередині нього. Тоді вентиляція тупо не встигає виводити надлишок вологи зі стінок каналу. Ну або десь накосячили з самою вентиляцією , неправильна висота каналу або недостатній приток , і як наслідок погана тяга. 1 Посилання на коментар Поділитися на інших сайтах More sharing options...
SON Опубліковано: 26 червня 2024 Поділитись Опубліковано: 26 червня 2024 goodzik, не майтесь дурью. Ложите каналы из ГБ по типу как из кирпича. Причем внутренний размер канала +/- 140*140 мм. Больше не нужно, меньше совсем плохо. Уходите от разнородной стены и всяких перевязок. Над кровлей можно также из ГБ, затем обклеить шахту клинкерной плиткой, либо над крышей класть сразу клинкерным кирпичом. Облицовочный, как на фотках, долго там не протянет. Высота зонтика над шахтой не менее 0,6 от короткой стороны, либо совсем без него. Гильзовка пластиком/металлом лишняя, потечет конденсат до самого низа. А почему в проекте нет дымохода? 1 Посилання на коментар Поділитися на інших сайтах More sharing options...
normal Опубліковано: 26 червня 2024 Поділитись Опубліковано: 26 червня 2024 (змінено) Ці вентканали один фіг літом ніяк не працюють (а взимику без відкритого вікна), даремна трата грошей і зайві дірки в даху... Самий дешевий робочий варіант природньої вентиляції: взимку мікропровітрення, а влітку одна магнітна москітна штора на вхідних дверях (інакше залишиться мертва зона нижче рівня вікон і підлога не прогріватиметься). Ну і примусові витяжки з кухні і туалета навпрожки через стіну (хоча то вже екстренна вентиляція) Змінено 26 червня 2024 користувачем normal 2 Посилання на коментар Поділитися на інших сайтах More sharing options...
SON Опубліковано: 26 червня 2024 Поділитись Опубліковано: 26 червня 2024 Хто в школi не вчив фiзику, у тих кожен день новi вiдкриття. Когда народ так успел деградировать. Дурдом бля. 3 Посилання на коментар Поділитися на інших сайтах More sharing options...
normal Опубліковано: 26 червня 2024 Поділитись Опубліковано: 26 червня 2024 (змінено) То може хтось покаже яка зараз тяга у такому вентканалі? Чи вчора, чи позавчора, вдень чи вночі... Цигарка і відео, без формул по фізиці... Змінено 26 червня 2024 користувачем normal Посилання на коментар Поділитися на інших сайтах More sharing options...
ЯД Опубліковано: 26 червня 2024 Поділитись Опубліковано: 26 червня 2024 Ну у меня не вентканал, а дымоход д200, без чего либо подключенного, как вентканал. Летом тяга есть, хорошо ощущается если руку в канал сунуть. Днем. А вентиляция сама через рекуператор, выключена. 1 Посилання на коментар Поділитися на інших сайтах More sharing options...
normal Опубліковано: 26 червня 2024 Поділитись Опубліковано: 26 червня 2024 Яка тяга вдень коли на вулиці +25 і в будинку +25? То просто вітер гуляє 1 Посилання на коментар Поділитися на інших сайтах More sharing options...
goodzik Опубліковано: 26 червня 2024 Автор Поділитись Опубліковано: 26 червня 2024 5 часов назад, SON сказал: А почему в проекте нет дымохода? Котел планую ставити, але він буде з закритою камерою згорання і з турбіною, тому "вивід" простіше зробити через стіну чим в шахту вентиляційного/димохідного канала 5 часов назад, SON сказал: Уходите от разнородной стены и всяких перевязок. Над кровлей можно также из ГБ, затем обклеить шахту клинкерной плиткой, либо над крышей класть сразу клинкерным кирпичом. Облицовочный, как на фотках, долго там не протянет. Высота зонтика над шахтой не менее 0,6 от короткой стороны, либо совсем без него. Дякую велике за пораду 👍 Посилання на коментар Поділитися на інших сайтах More sharing options...
goodzik Опубліковано: 26 червня 2024 Автор Поділитись Опубліковано: 26 червня 2024 4 часа назад, normal сказал: Ці вентканали один фіг літом ніяк не працюють (а взимику без відкритого вікна), даремна трата грошей і зайві дірки в даху... Так, вже така думка блукала в голові.... що може ну його ці "канали", труби (і дірки в даху), і просто "пробуритись" через стіну, напряму. на вулицю для кожного приміщення де це необхідно (ванна, туалет, кухня, котельня)... але не впевнений що то "вірне рішення" Посилання на коментар Поділитися на інших сайтах More sharing options...
SON Опубліковано: 27 червня 2024 Поділитись Опубліковано: 27 червня 2024 10 часов назад, goodzik сказал: Так, вже така думка блукала в голові.... що може ну його ці "канали", труби (і дірки в даху), і просто "пробуритись" через стіну, напряму. на вулицю для кожного приміщення де це необхідно (ванна, туалет, кухня, котельня)... але не впевнений що то "вірне рішення" Дырка в стене не равно вентканалу. Это просто дырка в стенке. 4 Посилання на коментар Поділитися на інших сайтах More sharing options...
SON Опубліковано: 27 червня 2024 Поділитись Опубліковано: 27 червня 2024 10 часов назад, goodzik сказал: Котел планую ставити, але він буде з закритою камерою згорання і з турбіною, тому "вивід" простіше зробити через стіну чим в шахту вентиляційного/димохідного канала Пока все на этапе проекта, помиркуйте по дымоходу под каминофен или аля-буржуйку. Жизнь в нашей стране непредсказуема и ХЗ шо будет завтра. 2 Посилання на коментар Поділитися на інших сайтах More sharing options...
DimaF Опубліковано: 27 червня 2024 Поділитись Опубліковано: 27 червня 2024 (змінено) 10 часов назад, normal сказал: Яка тяга вдень коли на вулиці +25 і в будинку +25? То просто вітер гуляє Тяга слабая но есть, иначе куда бы влага/запахи девались. Да и кроме лета есть еще 9 месяцев. Я бы если сейчас новый дом строил, то сделал бы в каждой комнате вентканал, не считая кухни и с/у. Змінено 27 червня 2024 користувачем DimaF 1 Посилання на коментар Поділитися на інших сайтах More sharing options...
normal Опубліковано: 27 червня 2024 Поділитись Опубліковано: 27 червня 2024 35 хвилин тому, DimaF сказав: иначе куда бы влага/запахи девались А куди в мене без вентканалів вони діваються? Кухонна витяжка вентилятором викидає крізь стіну (не через дах), у санвузлі так само вентилятором, котел так само своїм вентилятором засмоктує і викидає через коаксикальний димохід, все інше просто залітає і вилітає через вікна, то яку роль відіграють ті вентканали, коли без вікон вони не працюють, а з вікнами все працює і без них? Посилання на коментар Поділитися на інших сайтах More sharing options...
Рекомендовані повідомлення
Створіть акаунт або увійдіть у нього для коментування
Ви маєте бути користувачем, щоб залишити коментар
Створити акаунт
Зареєструйтеся для отримання акаунта. Це просто!
Зареєструвати акаунтУвійти
Вже зареєстровані? Увійдіть тут.
Увійти зараз